معايير تصميمية جديدة لتخصصات علمية جديدة

Page 1

11421 ضايرلا 522 ب . ص ةيدوعسلا ةيبرعلا ةكلملما 465 ـ 9749 ، 464 ـ 2556 ت ضايرلا 464 ـ 6348 سكاف info@albenaamag.com

لك يف تادنتسلما لك نع ةظوفحمرشنلا قوقح تلااقلماب ةدراولا تاططخلماو رو صلاو تامولعلماو ءارلآا ةلجلما هذهب ةفلتخلما تاعور شلماو تا ساردلاو ثوحبلاو ،ايلك وأ ايئزج اهر شن ةداعإ وأ ،اهنم سابتقلااب حم سي لا ىلع لوصلحا دعب لاإ ،تناك ا مهم ةقيرط يأب ا هنيزخت وأ

سيئر نم ةيباتك ةقفاوم

00 Albenaa ءانبلا 00 تايوتحملا 10 12 4 عيراشملا كلامو نيممصملا نيب ةقلاعلا موين يف لبقتسملا ةنيدم ”نيلا اذ“ ميماصت نع نلعي دهعلا يلو ومس ةعومجم عم كرتشم فلاحت ةيقافتا لوأ عقوت ريوطتلل رمحلأا رحبلا ةكرش رمحلاا رحبلا ةهجول قلطملا ةيحاتتفلاا عيراشملا رابخأ 14 16 26 36 42 52 ةديدج ةيملع تاصصختل ةيميمصت ريياعم ةلاطبلا ةهجاومل ةيميلعت ةسسؤم ةيلاع ةنورمب ةيملع تاغارف ةفرعملاو ةكراشملل ةيميمصت تاءاحيإ ةمادتسم ةيلاع تاينقتب ميلعت روهمجلا ىلع حاتفنلااب ىقيس،ملا ميلعت ةديدج ةيملع تاصصختل ةديدج ةيميمصت ريياعم ريرحتلا سيئرو رشانلا ليلخا ابأ هللا دبع ميهاربإ سدنهلما ماعلا ريدلما ليلخا ابأ هللا دبع زيزعلا دبع سدنهلما ينفلا جارخلإا ةينارمعلا نوؤشلل ءانبلا ةلجم :عيزوتلاو تاكارتشلاا
.نادلبلا
.ريرحتلا
:ةدحاولا ةخسنلا رعس ايدوعس لااير 30 ةيدوعسلا ةيبرعلا ةكلملما يتيوك رانيد 2.5 تيوكلا ةينيرحب ريناند 9 نيرحبلا ايتارامإ امهرد 30 ةيبرعلا تاراملإا ةلود ايرطق لااير 30 رطق اينامع لااير 9 نامع ايرصم اهينج 60 رصم رلاود 8 نانبل يندرأ رانيد 2 ندرلأا وروي 6 اينالمأ وروي 6 اسنرف ينيلرتسا هينج 6 ارتلنجا رلاود 8 ىرخلأا لودلا عيمجو ةدحتلما تايلاولا ISSN: 1319 - 206 X 377 ددعلا ،نوعبرلأاو ةيناثلا ةنسلا م 2022 سرام /ـه 1443 نابعش
Held Concurrently: Gold Sponsors: 14 – 17 NOVEMBER 2022 RIYADH INTERNATIONAL CONVENTION & EXHIBITION CENTRE Under the Patronage of Media Partners: Official Magazines: Organized by: 920024020 www.saudibuild-expo.com SAUDI PMV Series 2022 The 10th International Exhibition for Construction Equipment, Plant, Machinery and Vehicles • Your gateway to the largest Construction market in the region • The heart of the Public sector and private sector decision making • Sold out shows for 31 years, have attracted key trade buyers and project owners • Leading platform to present your latest technologies, solutions, services and products and innovations. Grow your brand.

ىلإ نا����يحلأا نم ر����يثك ةبغر ب����سح هءانب ةداعإو ه����نم ءاهتنلإا ل����بق ءا����نبلا دقو ةدئاف نودب رد����هت ةلئاط لاومأ هذهو ، ك����لاملا جاتحي لاو ةريثك تلااحلا . اهنم ءزج ممصملا ل����محتي اهفادهأ ققحت م����ل يتلا ينابملاف .ة����لثمأ ىلإ ر����ملأا مت امم ةريبك ةب����سن نأ مزجأ نأ يف غلابأ لاو ، ةريثك ،ءاطخلأا هذ����ه نم ريثكلا لمحي ي����ضاملا يف ه����ئانب يتلا ةظهابلا ةفلكتلل ار����ظن اهليدعت متي مل يتلا .اهبلطتت يف ارود بعلت نأ بجيف ةيلحملا تارادلإا ة����هج نم تاودأ اهل يعولاو ةفاقثلاف.هفيقثتو

تاءار����جلااو تا����قلاعلا عو����مجم ى����لعو ءا����نبلا ينابملاو ةينارمعلا تاعور����شملادييشت يف لخدت .اهعاونأ ةفاكب ةلوه����س كانه ةفقثملاو ة����يعاولا تاعمتجملا ي����ف نم ولخي لا رملأا ناك نإو نزاوتم نارمع قيقحت ي����ف ايعوو ةفاقث لقلأا تا����عمتجملا يف نكل ، تاو����فهلا .هريوطتو نارمعلا اذه قيقحت ةبوعصلا نم نوكي يه نارمعلا ى����لع رثؤت يتلا ةماهلا تا����قلاعلا د����حأ هذه ، عيرا����شملا كلا ��م و نيممصملا ن����يب ة����قلاعلا لولحلا لضفلأ لوصولا يف دعاست نأ بجي ةقلاعلا . سكعلا سيلو ينابملل ةيميمصتلا يقلأ نأ ا����نه دوأ ب����ناوجلا ةدد����عتم ة����قلاعلا هذ����ه موقن نأ ب����جي يتلا ا����هبناوج ض����عب ىلع ءو����ضلا .اهنيسحتب . ممصملا رود

4 Albenaa ءانبلا 4 ةيحاتتفلإا عيراشملا كلام و نيممصملا نيب ةقلاعلا عمتجم ىلإ جاتحي حجانلا نارمعلا نأ هب ملسملا نم ىنارمعلا ده����شملاب ذخؤي ةدا����عو ، يعاوو ف����قثم .اهناكس ةفاقثو يعو يدم ىلع ليلدك ةنيدملل عمتجملا ي����ف ةفاقثلا هذ����هو ي����عولا اذ����ه ق����يقحت قو����سو ةينارمعلا ة����يمنتلا ىلع ر����ثؤي هنلأ يرور����ض ي����تلا
اديج م����هفتي نأ هيلع بجي ك����لاملاف ريثأت ىدم فرعأو ممصمك ةبرجتلا هذهب تررم دقل ةيمهأ ىد����مو ميمصتلا حا����جن ىلع ة����قلاعلا هذ����ه .هعورشمب ممصملا مامتهإب كلاملاروعش هنأبو كلاملا ن����يمطت يف غ����لاب ممصم ة����صق ركذأ .هر����يغل ه����كرتي ن����لو ه����سفنب م����يمصتلاب موقي����س يذ����لا م����مصملا ب����تكم ،د����عوم نود����ب ، ك����لاملا راز ىلع لمعي نيما����سرلا دحأ نأ د����جوف ارفا����سم ناك لخدت د����عبو ، اديد����ش ا����بضغ ب����ضغف ، هعور����شم نم لمعلا بح����س مدع ىلع كلاملا قفاو ءاقدصلأا هب دعو امب ريخلأا اذه موقي نأ طرشب ممصملا . ) ممصملا اذه نوع يف للها ناك ( ةفرعم مهيدل سيل كلاملا نأ انل حضوت ةصقلا هذه لب دحاو درف هيلع موقي لا ميمصتلاف ( ممصملا رودب نيدعا����سمو نيممصم نم نيصصختملا نم قيرف .) … نيماسرو ىلع ةينفلا هلويم ضرفي لا نأ ممصملا ىلع هنأ امك كلاملا فادهأ ق����يقحت نم دكأتي نأ لبق م����يمصتلا يف يدؤي فاد����هلأا ققحي لا يذلا ل����يمجلا لك����شلاف مده امبرو م����يمصتلا ةدا����عا
عتمجملا ةيعوت جمارب عضو لثم اهليعفت ةيلحملا تارادلإا ىلع بجي لثم تارهاظتلا يف اهضرعو عيراشملا كلامل ةيعوت ل����صاوتلا لئا����سو لامعت����ساو تاود����نلاو ضر����عملا كلذ حيضوت ن����يممصملا ىلع هنأ ا����مك . ي����عامتجلاا . لمعلا يف ءدبلا لبق كلاملل رظنلا ةدا����عا ىلإ ة����جاحب نحن م����مصملا ةهج ن����مو طبر وأ ة����نهملاب ميلعتلا ط����بر فدهب ميلعتلا ي����ف ةدايز للاخ نم ، ةنهملا ةسراممب يميداكلأا ميلعتلا ربكأ تار����تفب حم����ست ثيحب ميلعتلا تاون����س دد����ع نيب طبرلاو ميمصتلا بتاكم لخاد بلا ��طلا بيردتل . ةنهملا عقاوو ميلعتلا ريرحتلا سيئرو رشانلا

the

Held Concurrently With SAUDI BUILD 2022 The 32nd International Trade Exhibition for Construction Materials and Building Technologies Organized by: The 23rd International Trade Exhibition for Electricity, Alternative Energy, Air Conditioning, Lighting, and Water Technology Riyadh International Convention & Exhibition Center Riyadh - Saudi Arabia 14-17 NOVEMBER 2022 Under
Patronage of • Your gateway to the largest Electricity and HVAC market in the region • The heart of the Public sector and private sector decision making • Sold out shows for 31 years, have attracted key trade buyers and project owners • Leading platform to present your latest technologies, solutions, services and products and innovations. Grow your brand.
:ميظنت نم ،ةليدبلا ةقاطلا ،ءابرهكلل نيرشعلاو ثلاثلا يلودلا ةراجتلا ضرعم .هايملا ايجولونكتو ةرانلإا ، ءاوهلا فييكت ةياعر تحت .ةقطنملا يف ءاوهلا فييكتو ةئوهتلا ، ةئفدتلا ، ءابرهكلا قوس ىلإ عسولأا كتباوب .صاخلاو ماعلا نيعاطقلا يف رارقلا ذاختإ بلص لكشت .عيراشملا باحصأو راجتلا بذجو باطقتسإ ىلع ةردقلا اماع ٣١ رادم ىلع تاعيبملا تتبثأ .تاراكتبلإاو تاجتنملا ،تامدخلا ، لولحلا ، ايجولونكتلا ثدحأ ضرعل ةدئارلا ةصنملا انه ـه١444 يناثلا عيبر 2٣ – 20 م2022 ربمفون ١7 - ١4 قفاوملا ،ضراعملاو تارمتؤملل يلودلا ضايرلا زكرم ةيدوعسلا ةيبرعلا ةكلمملا -ضايرلا : عم نمازتلاب 2022 ءانبلل ةيدوعسلا داومل نيثلاثلاو يناثلا يلودلا ةراجتلا ضرعم ءانبلا تاينقتو
Held Concurrently: Gold Sponsors: 14 – 17 NOVEMBER 2022 RIYADH INTERNATIONAL CONVENTION & EXHIBITION CENTRE Under the Patronage of Media Partners: Official Magazines: Organized by: 920024020 www.saudibuild-expo.com SAUDI STONE TECH 2022 The 23rd International Stone & Stone Technology Exhibition • Your gateway to the largest Construction market in the region • The heart of the Public sector and private sector decision making • Sold out shows for 31 years, have attracted key trade buyers and project owners • Leading platform to present your latest technologies, solutions, services and products and innovations. Grow your brand.
يدﻮﻌﺴﻟا ﺮﺠﺤﻟا ضﺮﻌﻣ :يبهذلا يعارلا :نومظنملا يدﻮﻌﺴﻟا ضﺮﻌﻤﻟا ﺪﻳﺮﺒﺘﻟاو ﺔﺋﻮﻬﺘﻟاو ﻒﻴﻴﻜﺘﻠﻟ :يملاعلإا كيرشلا:ةيمسرلا ةلجملا ةقطنملا يف ءانبلا عاطقل قوس ربكأ طسو مكتاجتنمل جيورتلل مكتباوب صاخلاو ماعلا نيعاطقلا يف رارقلا عنص زكرم راجتلاو نيرتشملاو صاصتخلاا يوذ ًابذاج ،اماع 31لاوط لماكلاب ضرعملا تاحاسم ريجأتو زجح عيراشملا باحصأو هنإ .مكب ةصاخلا تاراكتبلااو تاجتنملاو تامدخلاو لولحلاو تاينقتلا ثدحأ ميدقتل ةدئار ةصنم .ةيراجتلا مكتملاع ومنل بسنلأا ناكملا :عم نمازتلاب:هعم نمازتي تاينقتو تادعمل يدوعسلا ضرعملا ديربتلاو ةئوهتلاو ةئفدتلا تادعملل يدوعسلا ضرعملا ةليقثلا تلالآاو تابكرملاو رجحلا تاجتنمو ةجلاعم ةينقتل يدوعسلا ضرعملا 2022 يدوعسلا رجحلا ضرعم م2022 ربمفون 17 - 14 قفاوملا ـه1444 يناثلا عيبر 23 – 20 ضراعملاو تارمتؤملل يلودلا ضايرلا زكرم ةيدوعسلا ةيبرعلا ةكلمملا – ضايرلا نوثلاثلاو يناثلا يلودلا ضرعملا ءانبلا تاينقتو تادعمو داومل 920024020www.saudibuild-expo.com ةياعر تحت

يلو ،زيزعلادبع نب ناملس نب ةرادإ سلجم سيئر دهعلا

،»نيلا اذ« انقلاطإ دنع »:موين موهفم فيرعت ةداعإب اندعو ريوطت للاخ نم ةيرضحلا ةيمنتلا اهروحم ناسنلإا نوكي تاعمتجم ققحت »نيلا اذ« مويلاو ،يسيئرلا تايدحتلا جلاعتو شيعلا ةيلاثم

.ةيرشبلا هجاوت يتلا ةحلملا ةيئانثتسلاا ميماصتلا هذه يلخادلا لكيهلا حضوت تاقبطلا ةددعتم ةنيدملل ةيقفلأا ندملا تايلاكشإ جلاعتو ةققحم ،ةطسبنملا ةيديلقتلا ةيمنتلا نيب ماتلا مغانتلا كلذب ةعيبطلا ىلع ظافحلاو ةيرضحلا ».اهدراوم لكب لهاجت اننكمي لا »:هومس فاضأو ةقيرط ةمزأ كلذكو ةئيبلا ةمزأ ندم ناهجاوت نيتللا ةايحلا نأ موين يف ىعسن اذلو .ملاعلا نومدقي نم ةعيلط يف نوكن نحنو .ةركتبمو ةديدج لاولح ةركف ذيفنت ىلع نومزاع مويلا للاخ نم ،»ىلعلأا ىلإ ءانبلا« ةفاضإ موين هدوقت لمع قيرف لوقعلا عملأ نم ةعومجم ىلإ ءانبلاو ةيرامعملا ةسدنهلا يف ».ملاعلا ىوتسم ىلع موين عورشم »:لائاق هومس عباتو ةيؤر يـف ةمهملا عيراشملا دحأ ىلع اًديكأت »نيلا اذ« دعتو ،2030 عورشم ميدقتب خسارلا انمازتلا موين نأ ثيح ،عمجأ ملاعلا ىلإ لضفأ دغب نيملاحلل ناكم يه مهتمصب عيمجلا عضيس

11 Albenaa ءانبلا 11 عيراشلما رابخأ
اهيفو .»ةيعادبلإاو ةيراكتبلاا اًجهن »نيلا اذ« ةنيدم مدقتو يذلاو ندملا ميمصتل اًديدج مادعنا« موهفم ىلع زكري كلذ ينعي ثيح ،»ةيبذاجلا ةنيدملا تانوكم ءانبو عيزوت امم ةيدومع تاقبط لكش ىلع كرحتلا ةيناكمإ سانلل حيتي ىلإ( ةثلاثلا تاهاجتلاا يف كلذكو ،لفسلأا ىلإو ،ىلعلأا .)بناج لك يف يقفأ لكشب ينابملا موهفم سكع ىلعو ةركفلا هذه لهست ،ةقهاشلا عقاوم نيب لقنتلا ةيلمع نكامأ نم ،ةيمويلا تاجايتحلاا لزانمو ،قئادحو ،سرادمو ،لمع .قئاقد سمخ نوضغ يف نييجراخلا ةنيدملا ابناج يطغيو نع ةرابع يهو ةيجاجز حطسأ اًعباط اهحنمت ةسكاع ايارم اهليصافتل حمستو ،اًديرف نيح يف .ةعيبطلا عم جامدنلااب ةيلخادلا تاحاسملا ميمصت مت براجت قلخل ،ةركتبم قرطب ،ىسنت لا تاظحلو ةيداع ريغ نييرامعملا نم قيرف للاخ نم نيروهشملا نيسدنهملاو قيرف عم نولمعي نيذلا اًيملاع .رمتسم لكشب موين يف موين نأ ركذلاب ريدجلا لامعلأا ريوطتل اهيعس اهعيراشم يف داتعملاك ميمصت ىلع لمعتس ،ةفلتخملا كلذكو ،اًيمقر اهلمكأب ةنيدملا ءانبلا تاينقت ثدحأ مدختستس اذه يتأيو .عينصتلا تايلمع و اذ« ةنيدم ميماصت نع نلاعلإا يذلا مدقتلل ارارمتسا »نيلا ريوطت يف موين هدهشت ثيح ،ةيسيئرلا اهعيراشم قلاطإ نع قباس تقو يف تنلعأ تاعانصلا ةنيدم »نوجاسكأ« ةهجولا »انيجورت« و ،ةمدقتملا مدقت يتلا ةيملاعلا ةيحايسلا يف جلثلا ىلع جلزتلل ةبرجت لوأ ،يبرعلا جيلخلا يف قلطلا ءاوهلا نيتكرش قلاطإ بناج ىلإ ةكرش امهو موينـل نيتعبات تاراكتبلااب ىنعت يتلا »اونإ« هايملاو ةقاطلا تاعانصو موين ةكرشو ،نيجورديهلاو ساو:ردصملا .ةيمقرلا ةينقتلا

ةيؤرلاو ةيمنتلا موهفم فيرعت ديعت هيلع نوكت نأ بجي امو ةيرضحلا

نم رياني يف لبقتسملا ندم .يضاملا ماعلا ،»نيلا اذ« ةنيدم ميماصت يتأتو هيلع نوكتس امل اًساكعنا البقتسم ةيرضحلا تاعمتجملا عراوشلا نم ةيلاخ ةئيب يف مهستو ،تاثاعبنلااو تارايسلاو نم %95 ىلع ةظفاحملا يف دمتعتو ،ةعيبطلل موين يضارأ ةبسنب ةددجتملا ةقاطلا ىلع ناسنلإا ةحص لعجل ،%100 نم لادب ةقلطم ةيولوأ هتيهافرو امك ةيتحتلا ةينبلاو لقنلا ةيولوأ .ةيديلقتلا ندملا يف اذ« ةنيدم تافصاوم مهأ نمو رتم 200 غلبي اهضرع نأ ،»نيلا

10 Albenaa ءانبلا 10 عيراشلما رابخأ يكلملا ومسلا بحاص نلعأ نب ناملس نب دمحم ريملأا سيئر دهعلا يلو ، زيزعلادبع ميماصت نع ،موين ةرادإ سلجم روحمتت يتلا ،»نيلا اذ« ةنيدم اًجذومن لثمتو ،ناسنلإا لوح ةمادتسلاا ققحي اًدئار اًيملاع عم مغانتلاب شيعلا ةيلاثمو .ةعيبطلا ةركفلا قلطأ دق هومس ناكو يتلا ةنيدملل ةيلولأا
وليك 170 دادتما ىلع طقف قوف رتم 500 غلبي عافتراو ، اًرتم ةنيدملا ىنبتسو .رحبلا حطس وليك 34 زواجتت لا ةحاسم ىلع 9 وحنل عستتسو ،اًعبرم اًرتم ريغ رمأ وهو ،ةمسن نييلام اذهب ندم يف اًمامت قوبسم نم للقي ،هرودب اذهو .مجحلا ززعيو ،ةيتحتلا ةينبلا ددمت ةنيدملا ةمادتساو ةءافك نم اهخانم نأ امك .زيمم وحن ىلع نمؤيس ماعلا رادم ىلع يلاثملا ةعيبطلاب عاتمتسلاا ناكسلل .مادقلأا ىلع اريس لقنتلا دنع ناكسلا عيمجل »نيلا اذ« حيتتو عيمج ىلإ لوصولا ةيناكمإ نوضغ يف تامدخلاو قفارملا راطق دوجو ىلإ ةفاضإ ،قئاقد 5 يفرط نيب لصي ةعرسلا قئاف .ةقيقد 20 للاخ ةنيدملا بحاص لاق ،ةبسانملا هذهبو دمحم ريملأا يكلملا ومسلا لبقتسملا ةنيدم »نيلا اذ« ميماصت نع نلعي دهعلا يلو ومس موين يف
Held Concurrently: Gold Sponsors: 14 – 17 NOVEMBER 2022 RIYADH INTERNATIONAL CONVENTION & EXHIBITION CENTRE SAUDI BUILD 2022 The 32nd International Trade Exhibition for Construction Materials and Building Technologies Under the Patronage of • Your gateway to the largest Construction market in the region • The heart of the Public sector and private sector decision making • Sold out shows for 31 years, have attracted key trade buyers and project owners • Leading platform to present your latest technologies, solutions, services and products and innovations. Grow your brand. Media Partners: Official Magazines: Organized by: 920024020 www.saudibuild-expo.com

ةيسيئرلا ةريزجلا قفو اهيف لمعلا يرجي يتلا ، رمحلأا هحاتتفا نوكيل ينمزلا ططخملا ةريزج دعتو .2024 ماع لئاوأ يف ةهجولل ةيسيئرلا ةباوبلا »ىروش« يتلاو ،ريوطتلل ىلولأا ةلحرملا نمض اًعجتنم 11 اهلامتكا دنع مضتس تادحوو اًرخاف اًيئانثتسا اًقدنفو ىسرمو فلوجلل بعلامو ةينكس هيفرتلا قفارم نم ديدعلاو توخيلل .مامجتسلااو ةيجيتارتسلاا ةكارشلا هذه لكشت رحبلا ةكرشل كرتشم فلاحت لوأ رهظت اهنأ امك ،ريوطتلل رمحلأا صرف حاجن يف صاخلا عاطقلا ةقث رحبلا ةهجول ةيلبقتسملا

12 Albenaa ءانبلا 12 عيراشلما رابخأ ،ريوطتلل رمحلأا رحبلا ةكرش تنلعأ عيراشم رثكأ دحلأ ةروطملا ةهجلا يف اًحومط ةددجتملا ةحايسلا فلاحت - اهعيقوت نع ،ملاعلا قلطملا ةكرش عم -كرتشم يهو ،)AREIC( يراقعلا رامثتسلال ةعومجمل ةعباتلا تاكرشلا ىدحإ .)AMG( قلطملا زواجتت يتلا ةيقافتلاا هذه بجومبو ،يدوعس لاير رايلم 1,5 اهتميق عجتنم اًعم ناتكرشلا روطتس 159 مضي يذلاو »رمحلأا رحبلا اريمج« »ىروش« ةريزج ىلع ةيقدنف ةدحو رحبلا ةهجوب
رامثتسلاا اءزج اونوكي نأب مهتبغرو رمحلأا ةيحايسلا ةهجولا هذه ذيفنت نم .ةمادتسملا ليومتلا نيمأت لعفلاب مت ثيحو نم ىلولأا ةلحرملا ذيفنتل مزلالا كرتشملا فلاحتلا اذه نأ لاإ ؛ةهجولا رامثتسلال قلطملا ةكرش عم ءوضلا طلسي )AREIC( يراقعلا هتبغرو صاخلا عاطقلا مامتها ىلع رامثتسلااو ةكراشملا يف ةديدشلا ةيدوعسلا ةيؤر عيراشم قيقحت يف رمحلأا رحبلا ةكرش يرجت امك .2030 ةلثامم تاشاقن اًضيأ ريوطتلل صرف ثحبل نيرمثتسم ةدع عم رحبلا ةهجو لوصأ يف رامثتسلاا قدانفلا لمشت يتلا ةيراجتلا رمحلأا مامجتسلاا قفارمو تاعجتنملاو بذجتس امك .هيفرتلاو قوستلاو يتلا ىرخلأا عيراشملاو لاامأ ةهجو نمض اًبيرق اهنع نلاعلإا متيس ةيمانتملا ةكرشلا لامعأ ةظفحم .نيرمثتسملل ةعونتمو ةيفاضإ اًصرف كرتشم فلاحت ةيقافتا لوأ عقوت ريوطتلل رمحلأا رحبلا ةكرش رمحلأا رحبلا ةهجول قلطملا ةعومجم عم ةكرش قيقحت دعب نلاعلإا اذه يتأيو اذه علطم يف ريوطتلل رمحلأا رحبلا رضخلأا اهليومتل يلاملا قلاغلإا ماعلا يدوعس لاير رايلم 14,120 هتميق غلابلا كونب ةعبرأ عم )رلاود رايلم 3,76( يدوعسلا كنبلا مضت ةدئار ةيدوعس كنبلاو ،ضايرلا كنبو ،يسنرفلا كنبلاو ،»باس« يناطيربلا يدوعسلا ةكرش تزاح دقو .يدوعسلا يلهلأا ةزئاج ىلع ريوطتلل رمحلأا رحبلا »ماعلل عيراشم ليومت ةقفص لضفأ« ةيدوعسلا لاملا قاوسأ زئاوج« نمض موقم ينامتئا ليهست لوأك »2021 راطإ نمض حنمي يدوعسلا لايرلاب .رضخلأا ليومتلا اًمدقت رمحلأا رحبلا ةهجو تزرحأ سكعنا عقاولا ضرأ ىلع اًظوحلم نم ةئاملاب 50 نم رثكأ لامتكا يف لوصأ ةدع ليغشتو ىلولأا ةلحرملا اًقدنف نمضتت لماك لكشب ةيسيئر موجن ةعبرأ ةئف نم نيفظوملل ربكأ ىلإ ةفاضلإاب ةيرادإ بتاكمو .ةقطنملا يف يعارز لتشم ريوطتلل رمحلأا رحبلا ةكرش تحنم ديزت ةميقب دقع 1000 نم رثكأ لاامأو يرجيو ،يدوعس لاير رايلم 25 نع لودجلا قفو قاسو مدق ىلع لمعلا يف انراوز لوأ لابقتسلا ينمزلا لوأ حاتتفا دنع 2023 ماع علطم ،ىلولأا ةلحرملا قدانف نم ةعومجم 2024 ماع لولحب لمتكتس يتلا رحبلا ةهجو فلأتت نأ ررقملا نم 2030 ماع يف اهلامتكا دنع رمحلأا 8000 ىتح رفوت اًعجتنم 50 نم نم رثكأ ىلإ ةفاضإ ،ةيقدنف ةفرغ 22 ىلع ةعزوم ةينكس ةدحو 1000 ىلع ةيلخاد عقاوم ةتسو ةريزج اًراطم اًضيأ ةهجولا مضتسو .ربلا بعلامو ،ةرخاف يسارمو ،اًيلود هيفرتلا قفارم نم ديدعلاو ،فلوغ .مامجتسلااو ساو:ردصملا

دهعملاو . ةعماجلل ينقتلا عمجملل سيئرلا بصعلا نلاكشي ناذللاو يلاع ىنمب ميلعتلل ةيلاعلا ةينقتلا نع ميمصتلا ربعي ةجودزم ةهجاوب ىنبملا فلغ ثيح ، ةيميمصتلا ةينتقلا سمش نم ةيامحلل ليلظتلاو يتوصلا لزعلا هل رفوت تقولا سفن يف رفوت ،ءاتشلا يف يرارحلا لزعلاو فيصلا . ةريفولا ةعيبطلا ةءاضلإا نوكت نأ ءانبلا يف ةلمعتسملا داوملا يف يعور ةمظنأ تريتخأ امك . ةئيبلا ىلع ليلقريثأت تاذ . ةيداصتقا فييكتو ةيكيناكيم ىلع حاتفنلااب ىقيسوملا ميلعت : سماخلا عورشملا روهمجلا ىقيسوملا

لكش ىلع نيتهجاوتم نيتيئانب نيتلتك نم نوكم ىلع ةعوفرم ةريبك ةفرش امهنيب نضتحت L فرح ةيسأرو ةيقفأ ةيلاع ةنورمب ىنبملا زيمتي . ةيئانب ةدعاق تمسق نيرود عافتراب عفترت يتلا ةيثحبلا هتاغارف يف رييغتلل ةلباق ةنرم ةفيفخ ةدامك ( بشخلاب لخادلا نم تاغارفلل يغارفلا عيزوتلا رييغت نكمي ثيحب ) ليوحتلاو . اهروطتو ثاحبلأا تابلطتم بسح ةيميلعتلا ىنبملا حتفت ةيجاجز ةجودزم تاهجاوب ىنبملا فلغ ةيعيبطلا ةءاضلإاب حمستو رضخلأا يجراخلا هطيحم ىلع ىلع يبونجلا بناجلا يف تاهجاولا تممصو ةريفولا دجوت يتلا ةيئاملا تللاشلاب انركذي يوطم جاجز لكش . ةقطنملا يف ةكراشملل ةيميمصت تاءاحيإ : ثلاثلا عورشملا ةفرعملاو نيب عمجي راكتبلااو ميلعتلل جمانرب مضي عورشم وهو ةيضاير قفارم ريفوت عم يرادلاا مقاطلاو نيثحابلاو ةبلطلا بتكم ميمصت نم وهو ،ةماع تاءاضفو .كرامندلا يف

15 Albenaa ءانبلا 15
عقيو ADEPT / Creo Arkitekter نم ززعت ةيدامو ةيريثأت تاءاحيإ لمع ىلإ ميمصتلا فدهي تعضوف ةكرحلاو ةفرعملا نيب لعافتلاو ةكراشملا ءدبم عبرأ هتحت عمجتو مضت ثيحب حطسلا يف ةيضايرلا قفارملا اهيؤي يتلا ةعبرلأا ةيميلعتلا ماسقلأا لثمت ةيئانب لتك اهضعب نع ةلقتسم ينابم ةعبرلأا لتكلا ربتعت.ىنبملا ءاضفلا : ةفلتخم رصانع ثلاثب ةطبترم اهنكلو ضعبلا ينبملا وهب لخاد ةقلعملا مللاسلاو لخدملل ماعلا رودلا يف كرتشملا ماعلا ءاضفلاو ،راودأ ثلاث عفتري يذلا يذلا اهرود عافتراب ىنبملا جوتت ةيضايرلا قفارملا . يولعلا ةصاخ ، ةزيمم ةيصخش ىنبملل ىطعتو جراخلا نم رهظي .اليل هترانإ دنع مسجلاو لقعلل يدحتلا ققحي ميمصت يه ةجيتنلاو .هطيحمو ىنبملا نيب ةميمح ةقلاعل سسؤيو ةمادتسم ةيلاع تايقنتب ميلعت : عبارلا عورشملا نم ةيملعلا ةطشنلأا عمتجت مادتسملا لقنلا راعش تحت ةعماج باحر لخاد دحاو عقوم يف ةراجتو ثوحبو بيردت نم عورشم وهو .اسنرف يف سيزيربنكونيهو نييسنلاف Coldefy Escudié Fermaut Architecture بتكم ميمصت ةمادتسملا ةكرحلاو لقنلا دهعم نم لك ةعماجلا عبتي ،ديدجلا ىنبملا اذه امهمدخي يذلا ةرادلإل يلودلا
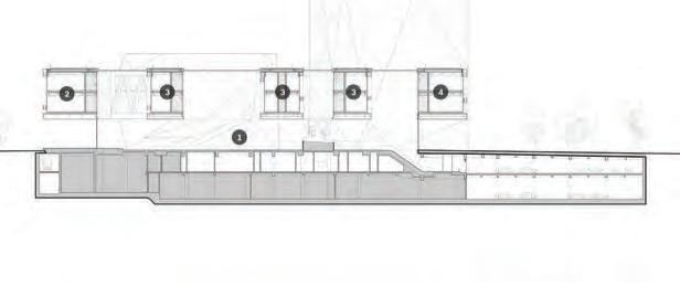
ميلعتل ايلع ةسردم عورشم وهو Diller Scofidio + Renfro بتكم ميمصت نم وهو ةسردملا لعافت ىلإ ميمصتلا فدهي . نيصلا يف عقيو ةنيدملا تاءاضف دحأ حبصت ثيحب ةنيدملا ناكس عم . روهمجلل ةبذاجلا ةيهيفرتلاو ةيفاقثلا ةماعلا لثميو روهمجلل لماكلاب حوتفم يضرلأا يوتسملاف ةيرحب نيقيسوملل حمسيو ةيجراخلا تاءاضفلل دادتمإ ماعلا ىدم ىلع روهمجلا مامأ مهتافوزعم ءاداب مايقلا صصختملا ميلعتلا ىلإ ةفاضلإاب ةسردملا مدقت امك ، نم نيبغارلا ىقيسوملا ميلعتل جمارب ىقيسوملل نم ةيقيسوملا ضورعلاو تلافحلا مدقتامك ناكسلا ءاضفلا ىلع حتفت ةريبك ةيقيسوم ضورع تاعاق للاخ ماظنب عورشملا زيمتي ، ىضرلأا ىوتسملا يف ماعلا قوف ربعت روسج ىلع يوتحي ىنبملاف نم عدبم يئاشنإ ةفلتخملا ةيقيسوملا تاعاقلا طبرتو يضرلأا ىوتسملا لكشت يكل ضعبلا اهضعبب اهطبر مت روسجلا هذه . لزلازلاو حايرلل مواقم يئاشنإ لكيه

ميمصت

اينيك

بابشلا ليهأتلا ميدقت

فدهي . Architecture لاجم يف لمعلا صرفب فيرعتلاو ىوتسملا يلاعلا

يملاعلا ىوتسملا ىلع تامولعملاو تلااصتلاا تاينقت ةرداغم نودب لمعلا نم لامعلأا لاجر نكمت يتلا كلت مهتقطنم عقوملل ةيعيبطلا سيراضتلا لامجب ميمصتلا يفتحي نييوتسم ىلع ىنبملا ممص ثيح عورشملل يفارغجلا ةعئارلا تلالاطلإا للاخ نم يعيبطلا رادحنلاا ناعبتي ةيولعلا حطسلأا تافرش اهرفوت يتلا اناكرت ةريحب ىلع .ىنبملل يف ةرشتنملا لمنلا تويب جاربأب ىنبملا لكش رثأ ةيوهت جاربأ ميمصتلا مدختسي ثيح . ةقطنملا جاربلأا هذه لمعت ثيح ىنبملا تاغارف ديربتل ةيعيبط امنيب ىنبملا جراخ ىلإ دعاصلا نخاسلا ءاوهلا

لصاوتلاو لاصتلإا لئاسوو مولعلا روطت ىدأ دقل ددعت ىلإ ينابملا يف ةمادتسلااريياعم قيبطتو ةجيتنو ةديدج ةيملع تاصصخت روهظو تاصصختلا ةيضاملا ةليلقلا نينسلا يف ميلعتلا ينابم تروطت كلذل . ظوحلم لكشب ميلعتلا ررح تنرتنلإا ةكبشو رتويبمكلا مادختساف لمعلا ىلع رداق بلاطلا لعجو ناكملاب طايترلاا نم ناك نإو . دعب نع هتذتاسأ عم لصاوتلاو ليصحتلاو ثدحأ كلذ نأ لاإ ، هنع ىنغ لا هجول هجو رشابملا لصاوتلا ،يميلعتلا ىنبملا ميمصت ىلعاريبك اريثأت غارف لك صصخت يف ناكملاب طابترلاا مدع مهاس دقلف نودب غارف ىلإ غارف نم بلاطلا لقتني ثيحب يميلعت .هثحبو هلصاوت عاطقنا يف يميلعتلا ىنبملا رودل ةديدج تاهجوت ترهظ امك ةدافتساو هطيحمب طابترلاا ةرورضو رمتسملا ميلعتلا مادختساوأ ميلعتلا يف ءوس هنم ةبيرقلا قطانملا ناكس ةضايرلا لثم ةفلتخملا ةطشنلأا ةسرامم يف هقفارم

14 Albenaa ءانبلا 14
. هيفرتلاو ةرورضو ينابملا ىلع ةمادتسلاا ريياعم ضرف عمو ةجيتن ديدج نم ينابملا تلكشت ميمصتلا يف اهجمد ةعيبطلا ةئيبلا ىلع ظفاحت ءانب داومو ةمظنأ مادختسلا ينابملا تحبصأ امك .ةقاطلا يف دصتقتو خانملا يعارتو عم فيكتلا ىلع ةرداق ةمادتسلاا ىلإ ةجيتن ةيميلعتلا اهميماصت ةنورم للاخ نم ةمداقلا لايجلأا تابلطتم .لامعتسلاا ةداعاو عسوتلاو رييغتلا ىلع اهتردقو ىنبملل ةرظنلا تريغت ةريخلأا تاونسلا هذه يف لكشب فلتخت ةيميلعت ينابم روهظ اندهاشو يميلعتلا ينابملاف ، يميلعت ينابم نم هاندهع ام نع ريبك مارتحا رثكأو اهطيحم ىلع حاتفنا رثكأ تحبصأ ةديدجلا .ةمداقلا لايجلأل ةاعارم رثكأو اهتئيبل تاصصختب ةيميلعت عيراشم ٥ ضرعتسن ددعلا اذه يف تاهجوتلا كلت اهميمصت يف لمحت ةرصاعم ةيملع .ةديدجلا ريياعملل اعبت ينابملا ليكشت ديعتو ةديدجلا ةلاطبلا ةهجاومل ةيميلعت ةسسؤم : لولأا عورشملا اههجاوي يتلا ةلاطبلا تايدحتل بيجتسي عورشم وهو Kéré بتكم
نم وهو
يف
ىلإ ميمصتلا
،
بحسب ىلإ ىوتسملا ةضفخنم تاحتف ربع درابلا ءاوهلا بحسني لمحتب يعيبطلا ديربتلا ماظن حمسي .ةيلخادلا تاغارفلا لمحملا ءاوهلا لوخد بنجتي امك ةرارحلا تاجرد عافترا تلااصتلاا تادعمب رضت يتلاو ىنبملا لخاد ىلإ ةبرتلأاب .تامولعملاو ةيلاع ةنورمب ةيملع تاغارف : يناثلا عورشملا يف نيثحابلا يميلعتلا ىنبملا اذه مدخي عورشم وهو تاعارتخلاا نيب ام تقولا راصتخا ىلإ فدهت ةردابم راطا اهحرطو اهريوطتو عمتجملا ىلع يباجيلاا ريثأتلا تاذ بتكم ميمصت نم وهو . لامعتسلال عورشملا عقي . Ennead Architects, Bora Architects ميمصت عجشي . ةيكيرملأا ناجي روأ ةيلاو يف نجوي يف فلتخم نم نيثحابلا نيب نواعتلا يميلعتلا عمجملا يطعت ةئيبو مهنيب ربكأ لعافت داجيإو ةيملعلا تلااجملا فدهيامك . ناسنلإا ةءافك عفرو ةماعلا ةعفنملل ةيلولأا وهف،ةيعامتجلاا تارابتعلاا زيزعت ىلإ ىنبملا لكش ةديدج ةيميمصت ريياعم ةديدج ةيملع تاصصختل New Design Criteria For New Education Discipline ليخلابأ للهادبع ميهاربإ : دادعا
17 Albenaa ءانبلا 17 © Photo by Kinan Deeb for Kéré Architecture ةقطنلما يف ايرامعم املعم لكشت يتلا هجاربأب عورشملل ماع رظنم : ممصملا Architect : Kéré Architecture اينيك ، اناكرت : عقوملا 2م 1،416 : ةيلامجلاا ةحاسملا م 2021 : ذيفنتلا نم ءاهتنلإا
16 Albenaa ءانبلا 16 ةلاطبلا ةهجاومل ةيميلعت ةسسؤم Startup Lions Campus
19 Albenaa ءانبلا 19 ىنبلما لكش اهب رثأت يتلاو ةقطنلما يف ةرشتلما اهجاربأو لمنلا تويب جاربلأا ةطساوب ةيوهتلا ةركف حضوي عاطق اهشئارعو تافرشلاو جاربلأا ©
Photo by Kinan Deeb for Kéré
Architecture

مدقيةيميلعتلا ةسسؤملا ةكبش رشنل ةحومط ةطخ راطإ . ةيئانلا قطانملا يف ةئشانلا عقوملل ةيعيبطلا سيراضتلا لامجب ميمصتلا يفتحينييوتسم ىلع ىنبملا ممص ثيح عورشملل يفارغجلا ىلع ةعئارلا تلالاطلإا للاخ نم يعيبطلا رادحنلاا ناعبتي .ىنبملل ةيولعلا حطسلأا تافرش اهرفوت يتلا اناكرت ةريحب ،اهقوف تاتابنلا ددمتب حمست شئارعب تافرشلا تللظعمجتلل ةصصخملا ةحوتفملا تاءاضفلل ةفطلم ءاوجأ رفوتو . ةبلطلا نيب ثيدحلا لدابتو يف ةرشتنملا لمنلا تويب جاربأب ىنبملا لكش رثأتةيعيبط ةيوهت جاربأ ميمصتلا مدختسي ثيح . ةقطنملا بحسب جاربلأا هذه لمعت ثيح ىنبملا تاغارف ديربتل بحسني امنيب ىنبملا جراخ ىلإ دعاصلا نخاسلا ءاوهلا تاغارفلا ىلإ ىوتسملا ةضفخنم تاحتف ربع درابلا ءاوهلا .ةيلخادلا تاجرد عافترا لمحتب يعيبطلا

18 Albenaa ءانبلا 18 عورشلما مسجم اينيك يف اناكرت ةريحب فافض ىلع ىنبملا اذه عقيةينقت لاجم يف ةئشان ةيميلعت ةسسؤمل دوعيو . تامولعملاو تلااصتلاا يتلا ةحلملا ةلاطبلا تايدحتل عورشملا بيجتسييلاعلا ليهأتلا ميدقت للاخ نم ةقطنملا بابش اههجاوي تاينقت لاجم يف لمعلا صرفب فيرعتلاو يوتسملا يتلا كلت ، يملاعلا ىوتسملا ىلع تامولعملاو تلااصتلاا .مهتقطنم ةرداغم نودب لمعلا نم لامعلأا لاجر نكمت يف ىلوأ ةوطخك ةديدج لمع ةدحو 100 عورشملا
ديربتلا ماظن حمسيلخاد ىلإ ةبرتلأاب لمحملا ءاوهلا لوخد بنجتي امك ةرارحلا .تامولعملاو تلااصتلاا تادعمب رضت يتلاو ىنبملا يف املعم لكشت جاربلأا نإف يئيبلا اهرودل ةفاضلإاب. ةقطنملا كراش امك يجراخ سيلت عم ةيلحم راجحأب ىنبملا ديشميمصتلا ترارق ذاختإ يف ةيلحملا مهتاربخب ناكسلا .ءانبلاو
© Photo by Kinan Deeb for Kéré Architecture

From the Architect Report: The Startup Lions Campus is an information and communication technologies (ICT) campus, located on the banks of Lake Turkana, Kenya. The project responds to the pressing challenge of youth unemployment faced in the region by offering high-level training and access to international job opportunities, allowing young entrepreneurs to thrive professionally without having to leave their place of origin. The campus will provide 100 new workstations and is the first step in an ambitious vision of spreading ICT networks in remote areas.The project celebrates the unique morphology and natural beauty of its site. It is built over two levels that follow the natural slope and features extensive roof terraces that offer sweeping views over Lake Turkana. The roof terraces are shaded by creeping vegetation, providing pleasant outdoor meeting spaces and opportunities for the informal exchange of ideas. The building takes inspiration from the towering mounds built by termite colonies in the region. Tall ventilation towers create a stack effect to naturally cool the main working spaces by extracting warm air upwards, while fresh air is introduced through specially designed lowlevel openings. This system allows the campus to withstand high temperatures and is especially well suited as it prevents dust from damaging the IT equipment. In addition to their functional role, the towers create a landmark in the surroundings.The campus is built out of locally sourced quarry stone with a plaster finish. In choosing which materials and construction techniques to use, ecological sustainability, cost and availability factors were weighed to arrive at the best compromise. Collaboration with the local community was key in this decision-making process, drawing from their experience and expertise.

21 Albenaa ءانبلا 21
لولأا رودلا يناثلا رودلا عاطق عاطق
20 Albenaa ءانبلا 20 يضرلأا رودلا ةسيئرلا ةهجاولا
ةيوهتلا جاربأو ىنبلما تاهجاو نم بناج
© Photo by Kinan Deeb for Kéré Architecture
22 Albenaa ءانبلا 22 ىنبلما تلاامعتسا حضوي روظنم ةيساردلا لوصفلا نم بناج
© Photo by Kinan Deeb for Kéré Architecture
25 Albenaa ءانبلا 25
© Photo by Kinan Deeb for Kéré Architecture
24 Albenaa ءانبلا 24 ىنبملل ةيجراخ تاطقل
27 Albenaa ءانبلا 27 © Bruce Damonte ةمئاقلا ةيميلعتلا ينابلماو ديدلجا ىنبلما ينب طبارلا ساوقلأا ةطساوب لوملمحا رسلجاو ىنبملل ماع رظنم ةيلاع ةنورمب ةيملع تاغارف Phil and Penny Knight Campus for Accelerating Scientific Impact : ممصملا Architect : Ennead Architects, Bora Architects ناجيروا ، نجويا : عقوملا 2مدق 225،000 : ةيلامجلاا ةحاسملا م 2020 : ذيفنتلا نم ءاهتنلإا ةددعتم ةيثحب ةعومجم غارف لك مضي نيرودلا عافتراب حمسي ثيحب مدق 21 رود لك عافترا غلبيو ، تاصصختلا ةيملع بتاكم ىلع يوتحي بشخلا نم نينازتم رود لمعب ةعومجملا يف نيثحابلا لك غارفلا عمجي ثيحبو ،ةفلتخم نيبو مهنيب عيرسلا لصاوتلا ققحيو ةدحاولا ةيثحبلا .ايلعلا تاساردلا ةبلط و لماعملا بسح عيوطتلاو ريغتلل ةلباق ةنرم تاغارف ميمصتلا رفويةحوتفم تاغرفو ةيلاع ةيفافش رفوي امك ، ثاحبلأا تابلطتم . لماعملا يف لصاوتلا عجشت ةئشانلا تاسسؤملل راجيلال ةيثحب لماعم عورشملا رفوينم ةيثحبلاو ةيملعلا تاكارشلل بذاج عمجملا لعجت . ملاعلا ءاحنأ فلتخم ىلع ىنبملا حتفت ةيجاجز ةجودزم تاهجاوب ىنبملا فلغةريفولا ةيعيبطلا ةءاضلإاب حمستو رضخلأا يجراخلا هطيحم جاجز لكش ىلع يبونجلا بناجلا يف تاهجاولا تممصو . ةقطنملا يف دجوت يتلا ةيئاملا تللاشلاب انركذي يوطم لماعملا يف ةءافكلا يلاع جاجز تاهجاولا يف لمعتساةيرصبلا ةحارلا ققحيلو سمشلا ةرارح نم ليلقتلل بتاكملاو . يعيبطلا يجراخلا هطيحم ىلع ىنبملا حتفو ةيفافشلاو ديدجلا ىنبملاب ةيميلعتلا ينابملا طبري ةاشم رسج كانهرسجلا زاكترا ةدمعأ نم للقت نيريبك نيسوق رسجلا لمحي ، . هتحت نم تابكرم قيرط رورم ةيرحب حمستو
26 Albenaa ءانبلا 26 راطا يف نيثحابلا يميلعتلا ىنبملا اذه مدخيتاعارتخلاا نيب ام تقولا راصتخا ىلإ فدهت ةردابم اهحرطو اهريوطتو عمتجملا ىلع يباجيلاا ريثأتلا تاذ . لامعتسلال نيثحابلا نيب نواعتلا يميلعتلا عمجملا ميمصت عجشيمهنيب ربكأ لعافت داجيإو ةيملعلا تلااجملا فلتخم نم . ناسنلإا ةءافك عفرو ةماعلا ةعفنملل ةيلولأا يطعت ةئيبو وهف،ةيعامتجلاا تارابتعلاا زيزعت ىلإ ىنبملا لكش فدهيفرح لكش ىلع نيتهجاوتم نيتيئانب نيتلتك نم نوكم ، ةيئانب ةدعاق ىلع ةعوفرم ةريبك ةفرش امهنيب نضتحت L .امهنيب طبري رسجب امهنيب اميف نيتلتكلا لصتت امنيب هيمحتو ةفرشلا نم بناج ةفافش فصن ةلظم يطغتلصاوتلاو ءاخرتسلال ءيداه ناكم رفوتو راطملأا نم نم . ةعيبطلاب طابترلااو ةفرشلا ىلع لطي يذلا ينبملا نم يلامشلا بناجلا ءاجةقلعم ةيجاجز تاهجاو نم نوكم وهف طسبم ميمصتب . اهفلخ نم يئاشنلإا لكيهلا نع حصفت فلتخم ىلع نيثحابلا لمع تادحو تعزو لخادلا نمىدح ىلع صصخت لك يبلتل تممصو ةيملعلا ماسقلأا اهلامعتساو ماسقلأا نيب ثحبلا تاعومجم لقنتت ثيحب . ثحبلا تابلطتم بسح ريبك غارف نم نييولعلا نيرودلا نم رود لك نوكتي -

From the Architect Report:The Knight Campus’ transformative, human-centered design will support researchers as they advance the initiative’s mission to shorten the timeline between discovery, development, and deployment of innovations that will have positive societal impact.

The Knight Campus encourages collaboration among researchers from a wide variety of scientific fields and is designed to create greater interactions between them in an environment that prioritizes wellness and optimizes human performance. The building’s massing reinforces the notion of community. The Knight Campus features two L-shaped towers that face each other to cradle an elevated terrace and courtyard, joined above by a transparent connector. A translucent canopy over the terrace offers protection during the rain, while providing a light-filled outdoor environment to relax, socialize, and connect with nature. The northern sides of the two towers, which fold into the courtyard and terrace, embrace simplicity in a glass curtain wall system that reveals the building structure.

Open, variably scaled workspaces distributed throughout the facility allow research groups to leave their labs and take advantage of different communal environments. The two upper floors of the facility contain interdisciplinary research neighborhoods which bring experimental and computational research together. A 21-foot floor-to-floor height allows for suspended mezzanine structures of mass timber containing offices for faculty, creating a new level of connectivity to their laboratories and graduate students.

The building was programmed to be highly adaptive, allowing research groups to easily shift focus depending on where discoveries lead. Transparency and open space promote communication in the labs and heighten building performance: by reducing the volume of the bench areas, fewer air changes are necessary and energy usage is diminished. A variety of closed and open computational spaces depending on researchers’ preferences supplement the traditional bench and studio spaces.

The innovation labs have been designed to be rented out by startup businesses in the area, establishing the Knight Campus as a community-enhancing institution aimed at attracting partnerships from all around the world to tackle some of society’s most pressing problems.

The unique double-skin façade signals a connection to the Oregon landscape. Sunlight floods the interior through a skin of folded glass panels, emulating water cascading over rock formations and offering views that invite the outdoors inside. High-performance glass shades the lab and office spaces to reduce solar heat gains, improve visual comfort, and emphasize transparency, while putting both nature and science on display. At each of the main entry points, embossed stainless steel walls reflect light from adjacent water features, referencing the nearby Willamette River. The building utilizes cross-laminated timber, connecting with the surrounding environment as well as the local economy. The highly efficient and sustainable campus is on track to be certified LEED Gold.

An enclosed pedestrian bridge connects the new facility back to existing campus research buildings. The bridge has a tied arch design that is self-supporting and simple. It features two splayed arches springing from a common support point on each side of the boulevard and uses tension cables to support the bridge enclosure at its floor structure.

29 Albenaa ءانبلا 29
يضرلأا رودلا ثلاثلا رودلا ىنبملل ةيدؤلما ةيجرالخا تارملما نم بناج © Bruce Damonte
28 Albenaa ءانبلا 28 ةاشلما رسجو ةيولعلا اهتيطغتو ةفرشلاو اهفلخ نم يئاشنلإا لكيهلا نع حصفت ىتلا ةيجاجزلا هتاهجاوو ىنبلما نم يلامشلا بنالجا ماعلا عقولما يناثلا رودلا مرودبلا لولأا رودلا © Bruce Damonte
31 Albenaa ءانبلا 31 ةيولعلا راودلأا تانوكملل ةيحيضوت تاعاطق © Bruce Damonte
30 Albenaa ءانبلا 30 ةفرشلاو ىنبلما يتلتك ينب طبارلا رسج
© Bruce Damonte
لماعلما © Bruce
Damonte
32 Albenaa ءانبلا 32 يننازتيلما راودأو ملاسلا لثم ةيلخادلا ءازجلأا ديشت يف بشلخا لامعتسا اهلخاد يننازتيلما رودو ةيولعلا راودلأا دحأ نم بناج © Bruce Damonte © Bruce Damonte
35 Albenaa ءانبلا 35 ليل ةيلامشلا ةهجاولا © Bruce
Damonte
34 Albenaa ءانبلا 34
37 Albenaa ءانبلا 37 مويلا نم ةفلتخم تاقوأ يف هرهظمو عورشملل ماع رظنم

ةيميمصت

نيب عمجي راكتبلااو ميلعتلل جمانرب ىنبملا اذه مضيةيضاير قفارم ريفوت عم يرادلاا مقاطلاو نيثحابلاو ةبلطلا

. ةماع تاءاضفو مسجلاو لقعلل يدحتلا ققحي ميمصت يه ةجيتنلاو.هطيحمو ىنبملا نيب ةميمح ةقلاعل سسؤيو ززعت ةيدامو ةيريثأت تاءاحيإ لمع ىلإ ميمصتلا فدهيةكرحلاو ةفرعملا نيب لعافتلاو ةكراشملا ءدبم نم عمجتو مضت ثيحب حطسلا يف ةيضايرلا قفارملا تعضوف يتلا ةعبرلأا ةيميلعتلا ماسقلأا لثمت ةيئانب لتك عبرأ هتحت .ىنبملا اهيؤي ضعبلا اهضعب نع ةلقتسم ينابم ةعبرلأا لتكلا ربتعتماعلا ءاضفلا : ةفلتخم رصانع ثلاثب ةطبترم اهنكلو عفتري يذلا ينبملا وهب لخاد ةقلعملا مللاسلاو لخدملل . يولعلا رودلا يف كرتشملا ماعلا

36 Albenaa ءانبلا 36
تاءاحيإ ةفرعملاو ةكراشملل
ءاضفلاو ،راودأ ثلاث رهظي يذلا اهرود عافتراب ىنبملا جوتت ةيضايرلا قفارملادنع ةصاخ ، ةزيمم ةيصخش ىنبملل ىطعتو جراخلا نم .اليل هترانإ ةيعيبط ةءاضإ رفوي يجاجز فقس ىنبملا وهب يطغيددع مضت يتلا ةماعلا ةيلخادلا تاءاضفلاو وهبلل ةريفو عمجتلا ناكم يف عقت يتلا ةيرادلإاو ةيعامتجلاا فئاظولا نم . ىنبملل يزكرملا تاذ تاهجاوب ةعبرلأا لتكلا نم ةيئانب ةلتك لك عتمتتةرهاظلا ةناسرخلا ةفرخز ف عونت لثم ةيلكش تاريبعت تاءاحيإ. تاهجاولل Cortex Park : ممصملا Architect : ADEPT / Creo Arkitekter كرامندلا : عقوملا 2م 7500 : ةيلامجلاا ةحاسملا م 2015 : ذيفنتلا نم ءاهتنلإا © Adam Mørk
39 Albenaa ءانبلا 39 حوتفلما حطسلا نم بناج ةيلامشلا ةهجاولا ةعبرلأا ةيئانبلا لتكلا ينب زيتم تاهجاو لايف ةعونتم ةيناسرخ فراخز ةيقرشلا ةهجولا ةيبونلجا ةهجاولا يطسولا وهبلا ىلع عاطق © Adam Mørk © Adam Mørk
38 Albenaa ءانبلا 38 ثلاثلا رودلا.عبارلا رودلا يضرلأا رودلالولأا رودلا يناثلا رودلا ةيضايرلا قفارلما © Adam Mørk
41 Albenaa ءانبلا 41 ةعبرلأا ةيئانبلا لتكلا اهب طيتح ةكرتشلما تاءاضفلاو مللاسلاو يطسولا وهبلا
40 Albenaa ءانبلا 40 لتكلا : ىنبلما تانوكلم يروظنم مسر يوتحي يذلا حطسلاو ةعبرلأا ةيئانبلا تاهجاوو ةيضايرلا قفارلما ىلع ىنبلما جوتت يتلا يولعلا حطسلا ةعبرلأا ةيئانبلا لتكلل ةيلخادلا تاهجاولا نم بناج © Adam Mørk © Adam Mørk
43 Albenaa ءانبلا 43 ىنبملل ماع رظنم : ممصملا Architect : Coldefy Escudié Fermaut Architecture اسنرف : عقوملا 2م 5900 : ةيلامجلاا ةحاسملا م 2020 : ذيفنتلا نم ءاهتنلإا مادتسملا لقنلل ضرعم ربع ىنبملا ىلإ روهمجلا لخدي. جراخلاب ايرصب هطبرت ةفافش ةيجاجز ةيجراخ تاهجاوب ضرعملا بناجب عقت يتلا ىربكلا تارضاحملا ةعاق زيمتتحمست ةكرحتم لصاوف امهنيب لصفت ثيح ةيلاع ةنورمب ةصنم كيرحت نكميو ،ضعبلا امهضعب ىلع امهتاغارف حتفب تدوز امك ، ضرعملا تاحاسم نم ديزتل اهضفخو حرسملا . يطلل ةلباق ةكرحتم تاجردمب ةعاقلا نينازتيم لمعب حمسي نيرود عافتراب ةيئانبلا ةدعاقلا عفترت. ىهقملا مضيو يطسولا ءانفلا ىلع ةضيرع ةللاطإ هل ىنبملا لخدم وهب ىلع ةرشابم تارضاحملا ةعاق حتفت.دعقم 300 عستو ةرجشم ةقيدح مضت ةفرش ةدعاقلا حطس قوف عقتىنبملا يلمعتسملل تاسلجل تايطغتو ميلعتلا لوصف ىلع ةدعاقلا قوف ىنبملا يتلتك مضت. ةذتاسلأا بتاكمو نوكت نأ ءانبلا يف ةلمعتسملا داوملا يف يعورةمظنأ تريتخأ امك . ةئيبلا ىلع ليلقريثأت تاذ . ةيداصتقا فييكتو ةيكيناكيم
42 Albenaa ءانبلا 42 نم ةيملعلا ةطشنلأا عمتجت مادتسملا لقنلا راعش تحتةعماج باحر لخاد دحاو عقوم يف ةراجتو ثوحبو بيردت .اسنرف يف سيزيربنكونيهو نييسنلاف لقنلا دهعم نم لك اهل عبتي يتلا يه ةعماجلا كلتامهمدخي يذلا ةرادلإل يلودلا دهعملاو ةمادتسملا ةكرحلاو سيئرلا بصعلا نلاكشي ناذللاو ،ديدجلا ىنبملا اذه . ةعماجلل ينقتلا عمجملل همدختست يذلا ةعماجلل سيئرلا قيرطلا ىلع ىنبملا عقي. ماعلا لقنلا لئاسوو ةاشملاو تاجاردلاو تابكرملاو ةمادتسم ةيلاع تاينقتب ميلعت The Sustainable Transport and Mobility Institute and The International Institute of Management of the University of Valenciennes and Hainault-Cambrésis نيدهعملا يتلتك اهقوف عفترت ةيئانب ةدعاق نم ىنبملا نوكتييتوصلا لزعلا هل رفوت ةجودزم ةهجاوب ىنبملا فلغيف يرارحلا لزعلاو فيصلا سمش نم ةيامحلل ليلظتلاو . ةريفولا ةعيبطلا ةءاضلإاو ،ءاتشلا ةئلئلتم حيباصم اهنأكو ةيليل ةرانإ ةفلغملا تاهجاولا رفوت.اليل ىنبملا طيحم يف ايجيردت لاقتنلاا متي ثيحب ىنبملا ةدعاق تلاامعتسا تبترتلاامعتسلااف ، ةصاخلا تاغارفلا ىلإ ةماعلا تاغارفلا نم يطسولا ءانفلا ىلع ةرشابم لطت روهمجلاب ةرشابم ةقلعتملا

From the Architect Report: On the same site, training, research and commercial activities come together around the theme of sustainable transport. The IMTD and the IIM, which are part of the UVHC’s Innovative Campus operation, are the nerve centre of the technology park. Linked by the grand central square, which is a garden, they form a single unit. The road along the front of the university building is used by public transport, vehicles, pedestrians and cyclists. The buildings aligned like a showcase, create a continuous space. The B road to the East provides quick and easy access to the campus. The entire site is perfectly aligned with this road.Enveloping the building is a double-skin façade providing acoustic insulation, solar shading in summer and thermal insulation in winter. The gable walls provide nighttime illumination, transforming them into lanterns at night. Behind this envelope are curtain walls, in frosted glass and stainless steel. The various activity hubs within the base of the building are organised in such a way as to create a progression from public spaces to private spaces. Facilities open to the public face the central square. The public enters via the central exhibition space, showcasing the sustainable transport knowledge and expertise on the campus. The showroom’s glazed façade creates a connection with the exterior. The grand conference room directly adjoins the showroom. A moveable partition creates a strong symbiosis between these two areas. The stage also extends on the other side of the moveable partition, forming a platform in the exhibition space. It can be lowered into the ground to enable a vehicle or any other object to be displayed on stage from the exhibition room. The raked seating in the conference room is also retractable and can be stored along the lateral wall. These retractable features make these two areas incredibly flexible and modular.The double-height ceiling makes way for a two-level mezzanine offering panoramic views and different ambiances, this is where you will find the cafeteria. The auditorium, which can accommodate up to 300 people, is connected directly to the entrance hall. The two projecting volumes have been organised around the two main functional hubs:The teaching hub and all the various classrooms and the office hubs made up of the ITD and IIM office hub and the teacher/PhD student offices.All of the teaching rooms are in a block above the students’ entrance hall. A green roof with trees provides an area for users to walk. A covered roof terrace can be used as a relaxation and entertainment area for staff. The building is perfectly integrated into the site through its volumes and the choice of exterior claddings. With its double-skin façades on the two projecting volumes, it takes full advantage of free solar heating in winter and huge amounts of natural light throughout the year. The materials used for the building’s construction and finishes have a low environmental and health impact and are almost all biomaterials and bio-sourced materials. The operations and maintenance considerations, taken into account from the outset of the operation, determined the economic quality of the building. Heat is produced by two air to water heat pumps installed on the top level of the building. Each pump covers 2/3 of the needs. Several distribution circuits are provided. The ventilation system is divided into several independent groups: offices, cafeteria, amphitheatre, exhibition spaces and meeting rooms.The bioclimatic potential has been fully exploited with a naturally ventilated double-skin façade on all façades. This double-skin creates a protective envelope that stores heat from the sun in winter and provides natural ventilation in summer thanks to pivoting panels. The building faces South, a layout conducive to exploiting solar energy.

ضرعلما -1 روهمجلل ةحوتفم تارضالمحا ةلاص -رركم1

يملع ضرعم -2

عينصت ربتخم -3 ىهقم-4 ءانف-5

روهمجلل حوتفم ميلعت زكرم-6

تاجارد فقاوم-7

روهمجلل ةحوتفم تارضاحم ةعاق-8

يمقر رمغ ةعاق-9

45 Albenaa ءانبلا 45
5 6 7 8 9 4 3 2 1 رركم1 يضرلأا ىوتسلما رركتلما يميلعتلارودلا
44 Albenaa ءانبلا 44 ءانفلا تاهجاولا نم بناج لقنلا دهعم ةلتك رهظتو ىنبلما ةدعاق حطس ىوتسم عاطق عاطق ةهجاو

ةيلخادلا ةهجاولا ةذفانلا

نوكيلس لزاعوةتباث ذفاونب ةيجرالخا ةهجاولا اهتيفافش ءافصب زيمتت يتلا ةيجاجزلا عم يدامر نولب لصاوفلا مالح عم يس .يف .يب نم تايضرأ ءاضيبةرزو مس ةكامسب20 فقسلا ةطلاب لكيه ىلع ةتبثم ةنفلجم ةيندعم حئافصب ةيلخادلا ةهجاولا يرارح لزاع عم ةيناسرخ حاولأ ىلع ةلومحم نفلجم يندعم ةكامسب جرالخا نم ةيناسرخ طئاوحو

ةكرحتم

ةيجراخرئاتس

فوص

46 Albenaa ءانبلا 46 ةجودزلما تاهجاولل يليصفت عاطقىنبلما تاهجاول ةفلتخم تاطقل ةلباقلما ةحفصلا يف ينتقبط وذىئام لزاع ةوغر اهلخادبو ةاوقم مس 20 ةكامسب يرارح لزع حاولأ ناثوريلوبلا نخاسلا ءاوهلا نم صلختلاو ةيوهتلل ةكرحتم حاولأ يفخم تيبثتب توصلل لزاع فقس ايرارح لوزعم موينمولأ تاراطا نم ذفاونب
حتف ةيواز يف مكتحو حاوللأا ينب
يرخص
نم مس 20
ةفافش فصن
ءاوهلا كيرتحو ةيوهتل ينتهجاولا ينب ةيوهت ةحتف ةيندعم ةيطغت عم ةهجاولا ةدعاق اهعافترا يف مكحتلا نكيم دعاوق ىلع عوفرم يناسرخ طلاب نم مس 20 ةكامسب يرارح لزاعو يئام لزع ينتقبط عم ينثرويلوبلا
ىهقلما
48 Albenaa ءانبلا 48 ةيميلعتلا تاغارفلل ةيلخاد تاطقل
51 Albenaa ءانبلا 51 ةكرحتلما تاجردلما ضرعلما تارضاحم ةعاق
50 Albenaa ءانبلا 50 يملعلا ضرعلما لخدلماو ضرعلما
53 Albenaa ءانبلا 53 © Zhang Chao, Courtesy
of Diller
Scofidio +
Renfro
ةيلامشلا ةهلجا نم ىقيسولما ةسردلم ماع رظنم
52 Albenaa ءانبلا 52 روهمجلاىلع حاتفنلااب ىقيسوملا ميلعت THE TIANJIN JUILLIARD SCHOOL : ممصملا Architect : Diller Scofidio + Renfro نيصلا ، نجايت : عقوملا 2م : ةيلامجلاا ةحاسملا م : ذيفنتلا نم ءاهتنلإا
55 Albenaa ءانبلا 55 ةيبونلجا ةهلجا نم ماع رظنم ءادلاا ىلع نيرمتلا ةعاقوهبلا نم بناج © Zhang Chao, Courtesy of Diller Scofidio + Renfro © Zhang Chao, Courtesy of Diller Scofidio + Renfro

عفترت ةيجاجز روسج 5 لتكلا نيب طبرت -

ةطيحملا ةيجراخلا تاحاسلل يبحمو راوزلاو ةبلطلا سيئرلا وهبلا لبقتسيةيقيسوملا مهضورع ميدقتب نيبغارلل حمسيو ىقيسوملا . روهمجلل ةرحلا ميلعتلا تاهويدتساو لوصفلا ةيجاجزلا روسجلا مضت،اهلخاد مدقيام عامسو ىلع علاطلإاب حمستو بيردتلاو . راوزلاو نيسردملاو بلاطلا نيب لعافتلا ىلع عجشت كلذبو امنيب ، ىنبملا يف ةيوازلا راجحأ ةعبرلأا لتكلا لكشت.هيف ةكرحلا قيعت ةدمعأ نودب وهبلا قوف روسجلا دتمت ةاشملا لبقتست ةحاس ةيلامشلا ةهجلا نم ىنبملا دحتةنيدملا تاءاضفو ةقيدحلاو راطقلا ةطحم نم ميداقلا . ىنبملاب اهلك ةمخاتملا رهنلاو تممص ةريبك ةحاس ةيبونجلا ةهجلا نم ىنبملا دحتويوتحت امك ، تابسانملاو ةيقيسوملا

54 Albenaa ءانبلا 54 ماعلا عقولما ءادلال زكرم مضت ىقيسوم ميلعتل ةسردم وه عورشملا، ايلعافت اضرعم مضت امك ثحبلاو بيردتلاو يقيسوملا روهمجلا لبقتست يكل تممص ةماع تاغارف ىلإ ةفاضلإاب . يقيسوملا ءادلااو عادبلإا عم لعافتلا يف بغري يذلا مضتو ىقيسوملا يف ريتسجاملا ةجرد ةسردملا حنمتجماربو ىقيسوملا ملعتل نيمدقتملا ليهأتل جمارب ضورعلا مدقت امك ، رامعلأا لكل رمتسملا ميلعتلل . ةيقيسوملا ضورع ةعاق ىؤت ةسيئر لتك 4 نم ىنبملا نوكتيحرسمو ) دعقم 299 ( فزع ةلاصو ) دعقم 690 ( ةيقيسوم ةيساردلا لوصفلاو ةرادلإا ىلإ ةفاضلإاب ، ) دعقم 225 (. .ءادلاا ىلع نيرمتلا جماربو وهبلا قوف
دتمي يذلاو يضرلأا رودلا يف عقي يذلا سيئرلا يطسولا .ىنبملاب
ضورعلا لابقتسلإ . ريبك ءام ضوح ىلع تاحتف 4 ايعيبط هئيضتو 2م 2260 وهبلا ةحاسم غلبتتاعاق ىلإ لوخدلا نكميو . ىهقمو سولجلل نكامأ روهمجلل اماع اءاضف لثمي يذلا وهبلا هللاخ نم ىقيسوملا . ةنسلا رادم ىلع سماخلاو عبارلا ىوتسملا يف ةبتكم يلع ىنبملا يوتحيروهمجلل نكمي ةعورزم تافرش ىلع ىوتحيف حطسلا امأ . ةنيدملاو ىنبملا طيحم ىلع ةللاطلإل هيلإ لوصولا امك ،يتوصلا لزعلا يف ةءافكلا قيقحت ىنبملا يف يعور. ةيداصتقا ةئفدتو فييكت مظن رايتخا يعور ميمصتلا تازيمم دحأ روسجلل يئاشنلإا ميمصتلا ربتعينولامج لكشت ثيحب اهنيب لميف روسجلا طبر مت ذإ رصانع نيب ةكرحتملا ةطبارلا لصاوفلا ءاغللإ دحاو يئاشنإ ةيئاشنلإا ليصافتلا نم للقي امم يئاشنلإا لكيهلا حايرلل لكيهلا ةمواقم نم ديزيو ، ىنبملا لكش طسبيو لزلازلاو

From the Architect Report:The Tianjin Juilliard School (TJS) is a center for performance, practice, research, and interactive exhibitions, with communal spaces that are designed to welcome the public into the creative process and performance of music. The building is composed of four faceted pavilions housing a 690-seat concert hall, a 299-seat recital hall, a 225-seat black box theater, and administrative, faculty, and rehearsal programs. Five glass bridges span an expansive public space that extends the surrounding park into the building, inviting students, visitors and concert goers to mingle, relax and experience the students practicing and giving informal performances.Major Features Four pavilions serve as cornerstones for the campus with glass bridges spanning a generous,column free space that extends the surrounding park into the building.

North Plaza:The grain of the larger pedestrian systems intersecting on the site –visitors from the high speed railway station to the north, the park to the east, the town square to the west, and riverfront to the south – is recognized in a series of gardens in the north plaza designed in collaboration with Hargreaves Jones.

South Plaza : Programmed as a performance and event venue amenity forJuilliard, as well as a community space, the plaza features stepped piano-key like seating and planting. The shallow reflecting pools form a dialogue with the nearby Hai River.

Lobby: This 2,260 m2 generous, column-free space at ground level features four sky-lit atriums that draw light down to lower levels programmed by a café, grove seating and tilt-up grandstand seating.With six entrances accessible from every direction, the lobby provides interior access to all three concert venues.

Bridges: Five windowed bridges span the pavilions, housing two levels of instructional spaces including 12 classrooms, 23 teaching studios, and 86 practice rooms.

Pavilions :

-Level (-1) Concert Hall:The 810 m2Concert Hall is the institution’s primary performance facility with a seating capacity of 690, including 80 balcony seats. The hall features mechanized wood stage risers that can transform the stage into various configurations.The hall is clad in eucalyptus wood, creating a warm, reverberant environment. A glass façade equipped with motorized blackout shades offers a view to the Hai River as a dramatic backdrop for performances.

-Level (-1) Recital Hall: The 440 m2 Recital Hall is the acoustic workhorse of the school with nearly continuous use for studentand faculty recitals, with a seating capacity of 299, and a 14meter x 6 meterstage with a glass façade overlooking the nearby park and reflecting pool.

-Level (-1) Black Box Theater: The 400 m2 Black Box Theater has been designed for multi-media performances as well as recitals, small ensembles and chamber opera, and dance events. The theater has a seating capacity of 225, including telescopic seating.

-Level (-1) Large Rehearsal Rooms: Three110 m2 rehearsal rooms function both as education and performance spaces,equipped for real time audio recording. The rehearsal rooms are located in the same B1 level as the Concert Hall and Recital Hall stage to allow easy movement of large instruments from one space to the other.

-Level (-1) Juilliard Imagination: Juilliard Imagination is a multifaceted, digital learning environment for exploring a rich tapestry of music, dance, and drama.This dedicated 810m2 space has curated interactive displays with exciting audio and visual experiences incorporating virtual reality and other cutting-edge technologies .

-Level (2, 3, and 4) Offices: Three of the four pavilions house administrative offices in their upper levels. These levels feature open office plans with large atria to draw in daylight.

-Level (4) Orchestral Rehearsal: A 270 m2 rehearsal space above the main concert hall opens up to a roof terrace with views of the Hai River. In addition to housing the full orchestra for rehearsals,

the space can be used as a multi-purpose, pre-function room and event space to host events.

-Level (4, 5) Library: The 560 m2 libraryoffers reading rooms, reference sections, as well as computer and multimedia stations for faculty and staff. The open stacks on Level 5 can be seen through aglass floor from the reading room below.

-Rooftop Terrace: A publicly accessible rooftop terrace outside the orchestral hall with planting, paving, and bench seating provides views of the nearby Hai River.

Acoustic Performance: TJS was built to meet the high demands for world-class acoustics and sound isolation, without compromising the building’s openness and transparency. The concert hall is acoustically isolated on giant springs and an acoustic resonant chamber under the stage enhances the sound of cello and bass. Distinctive diffusion cones identical to those found on the upstage wall and side walls of Alice Tully Hall were also used in the TJS concert hall to disperse soundand reduce the harshness of tone. In the Orchestral Rehearsal space, flipping wood wall panels allow

57 Albenaa ءانبلا 57 ةفلتخم تاعاطق

the room to be fine-tuned for any performance or rehearsal.In order to foster both a visual and aural connection between visitors in the lobby and students in the practice rooms, the glazing of the bridges was engineered to let moderate sound from the practice rooms pass into the lobby, while lobby sound is hushed when penetrating the sound-absorptive practice spaces.

Building Materials: The exterior materials and cladding for the building include high-performance glass assemblies, bead blasted stainless steel, glass fiber reinforced concrete (GFRC), and Parklex wood panels. The pavilion walls in the lobby are clad in the GFRC of the exterior walls. The bridges utilize triple glazed IGU enclosures that broadcast their activities from the building’s lobby and public spaces.A continuous surface of stone paving connects the main lobby with the exterior plaza to emphasize the extension from indoor to outdoor.

Sustainability: Large skylights flood the public lobby with direct sunlight, providing sufficient lighting for plants that are normally grown outdoors. Exterior shades provide solar control. Solar heat

gain is reduced by a radiant floor cooled by water circulated through tubing embedded in the structural foundation piles. This simple, lowtech solution maintains the architectural design intent for the lobby and bridge.Dedicated outdoor air systems with energy recovery, coupled with radiant heating and cooling panels condition all but the larger performance spaces. The Concert and Recital halls utilize underfloor displacement ventilation for enhanced air quality, comfort, and energy performance.

Structural Features: Arup engineers sought to integrate the distinct main spaces and their connecting bridges into a single structure, free of movement joints. From a structural perspective, the result was essentially a single building, as opposed to a more conventional solution of a series of smaller buildings and bridges in close proximity. Eliminating movement joints enabled an uncompromised expression of exterior finish materials as well as improved weather protection of the exterior envelope. In addition, leveraging the full extent of the project as a single structure offered maximum efficiency against wind and seismic action.

56 Albenaa ءانبلا 56 يضرأ تتح ىوتسلما عبارلا ىوتسلما
يضرلأا ىوتسلما يناثلا ىوتسلما
59 Albenaa ءانبلا 59 يئاشنلإا اهلكيهو روسجلل ةفلتخم تاطقل ©
Zhang Chao, Courtesy of Diller Scofidio + Renfro © Zhang Chao, Courtesy of Diller Scofidio + Renfro
61 Albenaa ءانبلا 61 روسلجا هولعت سيئرلا وهبلل تاطقل
60 Albenaa ءانبلا 60
© Zhang Chao, Courtesy of Diller Scofidio + Renfro
-ةسيئرلا ةيقيسولما ضورعلا ةعاق
© Zhang Chao, Courtesy of Diller Scofidio + Renfro
يدﻮﻌﺴﻟا ﺮﺠﺤﻟا ضﺮﻌﻣيدﻮﻌﺴﻟا ضﺮﻌﻤﻟا ﺪﻳﺮﺒﺘﻟاو ﺔﺋﻮﻬﺘﻟاو ﻒﻴﻴﻜﺘﻠﻟ 920024020www.saudibuild-expo.com ءانبلا تاينقتو تادعمو داومل نوثلاثلاو يناثلا يلودلا ضرعملا 2022 يدوعسلا ءانبلا ضرعم م2022 ربمفون 17 - 14 قفاوملا ـه1444 يناثلا عيبر 23 – 20 ضراعملاو تارمتؤملل يلودلا ضايرلا زكرم ةيدوعسلا ةيبرعلا ةكلمملا – ضايرلا :يبهذلا يعارلا:يملاعلإا كيرشلا:ةيمسرلا ةلجملا :نومظنملا ةياعر تحت ةقطنملا يف ءانبلا عاطقل قوس ربكأ طسو مكتاجتنمل جيورتلل مكتباوب صاخلاو ماعلا نيعاطقلا يف رارقلا عنص زكرم راجتلاو نيرتشملاو صاصتخلاا يوذ ًابذاج ،اماع 31لاوط لماكلاب ضرعملا تاحاسم ريجأتو زجح عيراشملا باحصأو هنإ .مكب ةصاخلا تاراكتبلااو تاجتنملاو تامدخلاو لولحلاو تاينقتلا ثدحأ ميدقتل ةدئار ةصنم .ةيراجتلا مكتملاع ومنل بسنلأا ناكملا :نمضتي تاينقتو تادعمل يدوعسلا ضرعملا ديربتلاو ةئوهتلاو ةئفدتلا ةينقتل يدوعسلا ضرعملا رجحلا تاجتنمو ةجلاعم تادعملل يدوعسلا ضرعملا ةليقثلا تلالآاو تابكرملاو
:يبهذلا يعارلا :نومظنملا يدﻮﻌﺴﻟا ضﺮﻌﻤﻟا ﺪﻳﺮﺒﺘﻟاو ﺔﺋﻮﻬﺘﻟاو ﻒﻴﻴﻜﺘﻠﻟ :يملاعلإا كيرشلا:ةيمسرلا ةلجملا ةقطنملا يف ءانبلا عاطقل قوس ربكأ طسو مكتاجتنمل جيورتلل مكتباوب صاخلاو ماعلا نيعاطقلا يف رارقلا عنص زكرم راجتلاو نيرتشملاو صاصتخلاا يوذ ًابذاج ،اماع 31لاوط لماكلاب ضرعملا تاحاسم ريجأتو زجح عيراشملا باحصأو هنإ .مكب ةصاخلا تاراكتبلااو تاجتنملاو تامدخلاو لولحلاو تاينقتلا ثدحأ ميدقتل ةدئار ةصنم .ةيراجتلا مكتملاع ومنل بسنلأا ناكملا :عم نمازتلاب:هعم نمازتي تاينقتو تادعمل يدوعسلا ضرعملا ديربتلاو ةئوهتلاو ةئفدتلا نوثلاثلاو يناثلا يلودلا ضرعملا ءانبلا تاينقتو تادعمو داومل 920024020www.saudibuild-expo.com ةليقثلا تلالآاو تابكرملاو تادعملل يدوعسلا ضرعملا 2022 يدوعسلا تادعملا ضرعم م2022 ربمفون 17 - 14 قفاوملا ـه1444 يناثلا عيبر 23 – 20 ضراعملاو تارمتؤملل يلودلا ضايرلا زكرم ةيدوعسلا ةيبرعلا ةكلمملا – ضايرلا يدﻮﻌﺴﻟا ﺮﺠﺤﻟا ضﺮﻌﻣ ةينقتل يدوعسلا ضرعملا رجحلا تاجتنمو ةجلاعم ةياعر تحت

Turn static files into dynamic content formats.

Create a flipbook
Issuu converts static files into: digital portfolios, online yearbooks, online catalogs, digital photo albums and more. Sign up and create your flipbook.