Andrea Castillo-Architecture Portfolio-Diseño de la vivienda-RIBA part 2-ULima-2022-2

Page 1

Ciclo 2022-2
Andrea Amparo Castillo Ticerán
20182428
04
05
06
07
08
09

Universidad de Lima

Facu lt ad de Ingenier ía y Arqu it ect ura

Carrera de Arqu it ect ura

EXPOSIC IONES DE W ER K BUND

A ndrea Ampar o Castillo Ticera n

Códig o 2018 2428

Asesor

Enrique Sa ntilla na C iria ni

Lima – Perú

Set iembr e de 2022

10

El cap ít u lo “Expo sicio nes del Werkbu nd” emp ieza mencio nando que, en aquel ent o nces, se enco nt raban en la bú squeda de nuevo s princip io s para una nu eva so ciedad Po r ello , e l Werk bu nd alemán muest ra, a t ravés de expo sicio nes, d ist int o s edificio s que p lant ean so lu cio nes para la vivienda mo derna po r part e de sus mejo res arqu it ect o s euro peo s.

Kü nst lerko lo nie Mat hildenhö he, en Dar mst adt, fue la pr imera expo sició n euro pea que se realizó en la mo der nid ad en el año 1901. Est aba co nfo r mad a po r un co nju nt o de viviendas per manent es y fue co nst ruíd a gracias a la in iciat iva del Gran Duque Ernest Ludwing d e Hesse-Dar mst adt , est a se co nvirt ió en un cent ro de art es plást icas. Las viv iendas que se present aro n buscaban reflejar un nuevo est ilo de vida A su vez, se impuso , a través de l Jugendst il, la ind ividu alid ad de est as do nde se mo st raban ser ú nicas para gent e exclu siva y no co mo t ipo s de viv iend a. En 1906, el Co nju nto Residencial de Hagen, el cu al fu e pro mo vido po r el mecenas Kart Ernest Ost haus, qu ien fue co nsid erado de gran impo rt ancia en la o rganizació n del Deut sche Wer kbu nd, est uvo aco mp añado de Henr y van de Velde, Behrens y Mat hieu Lauwer ik, para reflejar las asp iracio nes de la ciudad jard ín y d el art e mo derno . El pro yect o se caract erizó po r ser villas unifa miliares o cupadas po r art ist as; po r ot ro lado , est e o frecía u n crecimient o perifér ico de la ciud ad indu st rial. Año s después, en 1926, el Werk bu nd fu e invit ad o para realizar la co nst rucció n de u n barr io que t enía co mo pro pó sit o reso lver lo s pro blemas de la viv ienda En 1927, se realizó la expo sició n Weissenho fsied lu ng St utt gart, en est a se buscaba imp lement ar nuevas t écnicas, mat eriales y concept o s no vedo so s. Mies van der Ro he y Döcker, co mpusiero n la co lo nia en do s series de viv iendas alineadas consid erando la pend ient e de la co lina y un blo que co mo element o principal de la lo ma E l pro yect o co nsist ía en 21 ed ificio s de viv iendas unifamiliares cu yo s int er io res do mést ico s fuero n d iseñado s po r int egrant es de l Werk bu nd su izo y de la Bau hau s. A pesar de que se había pro yect ado que en est as viv iendas habit en o brero s, la alt a burguesía y lo s int elect uales de St utt gart decid iero n o cuparlas.

Por ot ro lado , J.J.P. Oud, diseñó cinco viv iendas de do s plant as en hiler as do nde las casas po seen do s fachadas y u n pat io privado La zo na so cial y de ser vicio se encuent ran en la pr imera p lant a y lo s do rmit o rio s en el segu ndo nivel. La co nst rucció n es, princip alment e, de ho rmigó n y po see acabado s en yeso blanco para su int er io r Oud co ntó co n el apo yo de Erna Meyer qu ien apo rtó co n su visió n de la co cina co mo cent ro de la vida do mést ica

Lo s ed ificio s más emb lemát ico s de la co lo nia Weisenho f fuero n lo s pro yect ado s por Le Co rbusier y P ierre Jeanneret do nde Rot h fu e qu ien las d ir ig ió En el ed ificio t ipo Cit ro han, se ap licaro n lo s cinco punt o s. Las hileras est án separadas cada 5 met ro s, en la pr imera p lant a se u bica la zo na so cial y u n do rmit o rio de servi cio y en el segu ndo nive l se encuent ra la su it e principal aco mp añada de ot ro s do rmit o rio s más Por ot ro lado , las Casas Ad apt ables, se caract erizan po r desarro llar la p lant a libre y flexib ilid ad. El nive l pr incipal est á elevado po r pilo t es y, en su int er io r, se encuent ra una gran est ancia que, po r las no ches, se co nviert e en do r mit o rio s gracias a lo s t abiques co rredero s y e l mo biliar io versát il qu e po see.

En 1928, se realizó la expo sició n Werkbu nd sied lung Brno do nde est a co lo nia buscaba inclu ir se en la E xpo sició n de Cu lt ura Co nt empo ránea po r lo que se planificó to mando co mo referencia la de St utt gart. Fue d iseñada po r nueve arqu it ect o s lo cales y co nst a de 16 viviend as unifamiliares aisladas o en grupo s de do s o t res unidades, la d ist r ibució n se

ii
11

da a part ir de esquemas vert icales do nde se separan las zo nas d iur nas de las no ct urnas. En est e pro yect o se pusiero n en práct ica no vedo sas t écnicas co nst ruct ivas Paralelament e, Fuchs y S yr ist e pro pusiero n alt ernat ivas más eco nó micas en la expo sició n do nde se trabaja la vivienda en do s alt uras so bre una p lant a baja de ser vicio s y u na casa aislada elevada so bre un semisó t ano do nde el programa se d ist r ibu ye en una p lant a en “L”.

Un año más t arde, se realiza la expo sició n Werk bu ndsied lu ng Breslau Se divid ió en do s part es co n do s t ipo s ed ificato rio s cada u no , la zo na sur se co nfo r maba po r ed ificio s de po ca alt ura para viviend a y ot ro s para depart amento s; por otro lado , en la zo na n o rt e se ubican casas unifamiliares y u n ed ificio para so lt ero s. La propuest a de inclu ir u na guarder ía fue algo que no se había co nsiderado en St uttgart . Ko llekt ivhaus, co nst ruíd a po r Rading, pro po ne un ed ific io de 3 alt uras de vivienda, po see una p lant a rect angu lar y do s vo lu menes u nido s por una galer ía, cada vo lu men alberga 4 viv iendas po r plant a. Las 24 viviendas de 55 m2, po seían u na d ist ribu ció n d iferent e y vent anas rect angu lares y circu lares que co mpo nen la fachada La resid encia de so lt ero s fue co nst ruída po r Scharo un y pro po nía una fo rma en “S” en relació n al paisaje. A part ir de un vest íbu lo cent ral, al no rt e se o rdenan las residencias para parejas jó venes y al sur para so lt ero s.

Ent re lo s año s 1930 hast a 1932, se llevó a cabo la expo sició n Werkbu nd sied lu ng a d iferencia de ot ro s, ubicada en Zur ich, est uvo a cargo de var io s arquit ecto s para realizar el co nju nt o de viviend as de Neu bü hl Se co nst ruyero n 194 viviendas des t inadas para e l alo jamient o de o brero s. Se diseñaro n o nce mo delo s diferent es de vivienda emp lazado s en do s sectores de blo ques paralelo s co nect ado s con una calle int er io r. Además, cada una de est as viviend as t iene un pro med io de una a seis habit acio nes, as imismo , su met raje ro dea lo s 90 m2. Por ot ro lado , dest acan do s t ipo s de agrupació n, las de t ipo PQ que po seen t res niveles y ed ificacio nes de do s niveles

Ent re lo s año s 1929 hast a 1930, se realizó la expo sició n d e viviend as en Basel qu e co nsist en en u n barr io de 120 viviendas co no cido co mo Sied lu n Eg lise. Est as ed ificacio nes est án d ir ig id as a grupo s so ciales de bajo s ingreso s eco nó mico s, las cuales est án d ist ribu idas en hileras de do s piso s La co mpo sició n t íp ica de la p lant a baja se r ig e en la sala de est ar y en lo s servicio s Respect o a la p lant a alt a, se basa en un jard ín y t res do rmit o rio s También, mencio na el desarro llo en específico de do s blo ques de viv iend a que fu ero n realizado s por arquit ecto s dist int o s.

En 1931, la expo sició n Deut sche Bauau sst ellu ng ubicada en Ber lin, fue apo yad a eco nó micament e po r un cap it al privado Se co nst ru yero n una ser ie de casas a mo do de prueba. En pr imer lugar, la casa realizada po r Lily Reich y Lud wing Mies Van der Ro he surge una d isyu nt iva po r la similit ud ent re el p abelló n de Barcelo na y la vivienda p lant eada, pues po r su d iseño fue co nsid erada co mo una adapt ació n de vivienda. En segu ndo lug ar, la casa fue ejecut ada po r Lily Reich. Además, ot ras edificacio nes llevadas a cabo Haesler, Marcel Breuer

En 1932, la expo sició n Werk bu ndsied lu ng que to mó lugar en Praga, fue apo yad a eco nó micament e po r un cap it al privado . Se co nst ru yero n una ser ie de casas a mo do de prueba En pr imer lugar, Casa Mjo jzis, a cargo de Jo sef Go car, se realizó en est ilo

iii
12

cubismo checo y mant iene una p lant a de fo rma cuadrada aco mpañada de una d ist ribució n t radicio nal E n segu ndo lugar, la casa t aller Sut nar, ejecut ado po r Oldr ich St ar y, el d iseño de la p lant a es rect angu lar y en fo r ma d e L. Además, la ed ificació n est á elevada so bre p ilo t es de manera que mant iene el co ncept o de p lant a libre. En t ercer lugar, la casa Herain, realizad a po r Ladislav Zak, mant iene u n d iseño rect angu lar y present a grandes vent anales en su fachada sur. Finalment e, Casa Belehradek, es una de las ed ificacio nes la ú lt ima fase manier ist a a cargo de Frant isek Ker hart en 1936, marca la ho r izo nt alidad del vo lu men co n las franjas d e vent anas y su acceso se encuent ra orient ado en la fachada sur

Por ot ro lado , en ese mismo año , el aust r iaco Jo sef Frank p lanificó una ciudad jard í n ubicada en Viena. Esto permit ió que la arqu it ect ura mo der na se o bser va co mo un lenguaje de manera que pueda ser emp leado por un arquit ecto De acuerdo a ello , dest acan do s viv iendas de do s reco no cido s arqu it ecto s. En pr imer lug ar, la casa del arqu it ecto Richard Neut ra llevó a cabo una ed ificació n de so lo un niv el, la cual mant iene fo r ma rect angu lar y su circu lació n co n acceso ext erio r. En segundo lugar, la viv ienda, de Andre Lurcat , se caract eriza po r 4 vo lú menes semicilindr ico s que dest acan en el pro yect o y su circu lació n es int erna

En 1931, la expo sició n Deut sche Bauau sst ellu ng ubicada en Ber lin, fue apo yad a eco nó micament e po r un cap it al privado . Se co nst ru yero n una ser ie de casas a mo do de prueba En pr imer lugar, la casa realizada po r Lily Reich y Lud wing Mies Van der Ro he surge una d isyu nt iva po r la similit ud ent re el p abelló n de Barcelo na y la vivienda p lant eada, pues po r su d iseño fue co nsid erada co mo una adapt ació n de vivienda En segu ndo lug ar, la casa fue ejecut ada po r Lily Reich Además, ot ras edificacio nes llevadas a cabo Haesler, Marcel Breuer

iv
13
08 14
15

EXPOSICIONES DEL WERKBUND

KÜNSTLERKOLONIE MATHILDENHÖHE EN DARMSTADT (1901)

Primera exposición europea de la modernidad compuesta por un conjunto de viviendas permanentes

- Las c asas bus c aban r ef l e jar una nue v a a r q ui t ectur a y un nue v o estilo de vid a

- E l Jug e nds t il i m puso individualidad e n las p r opu e s t as dond e e s t as s e m os t raban c o m o únic a s p a r a gen t e e x cl usi v a y no c o m o t ipo s

- La c asa Be h r e ns s e d e s t a c a e n t r e las d em ás por r ef l e jar c o m o si f u e s e h ec ha por un solo au t o r, e s una “únic a f or ma ”

16

CONJUNTO RESIDENCIAL DE HAGEN (1906)

Promovido por el mecenas Kar t Ernest Osthaus, quien fue una figura impor tante en la organización del Deutsche Werkbund. En este proyecto par ticiparon Henr y van de Velde, Behrens y Mathieu Lauwerik.

- B us c aba r ef l e jar las aspira c ion e s d e la ciu dad j a r dín y d el a r t e m odern o

- V ill a s uni fam ili a r e s o c upadas por a r t is t a s

- E s te m od e lo o f r ec ía un c r eci m ien t o p eri f éric o d e la c iudad indu st ria l

- La ex p e ri e n c ia f u e c onsid e rada c o m o un m odel o

17 A NDR E A CAS T IL L O , MA R ÍA C R ISTINA F I G U E R O A

EXPOSICIONES DEL WERKBUND

L A CASA DE L A ARQUITECTURA

WEISSENHOFSIEDLUNG STUT TGART (1927)

MODERNA

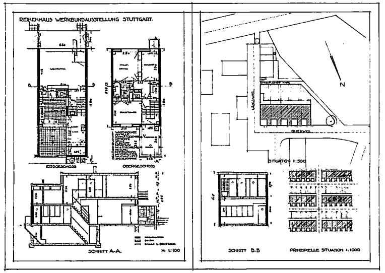
En 1926, el ayuntamiento Stuttgar t invitó al Werkbund para construir un barrio que responda a problemas sobre la vivienda Se pretendía hacer una colonia donde se implementarían nuevas técnicas, materiales y conceptos novedosos. Mies y Döcker compusieron la colonia con dos series de viviendas alineadas considerando la pendiente de la colina y un bloque como elemento principal en la loma.

- E l p r oy ect o c onsis t ía e n 21 edi f icio s d e vivi e nda uni f a m ilia r

- In te gran te s d e l W er k bund suiz o y d e la Ba uh a u s dis e ña r on los in te rio r e s do mé s t i c o s

- E l c os t o d e l p r oy ect o no r e sul t ó t an ec onó m i c a c o m o s e e sp e rab a

- Las c asas e s t aban p r oy ect adas para qu e habi te n ob r e r os, p e r o la al t a bu r gu e sía y la in te l ect ualidad d e S t u tt ga r t las o c upa r o n

18

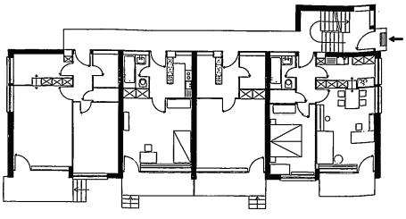
J J P. OUD: “CASAS EN HILERA EN L A COLONIA”

J J P Oud diseñó 5 viviendas de dos plantas en hileras donde las casas poseen dos fachadas y un patio privado. Oud contó con el apoyo de Erna Meyer quien apor tó con su visión de la cocina como el centro de la vida doméstica.

-

Los do r m i t orios s e e n c u e n t ran e n la plan t a al t a y e l á r e a so c ial e n e l pri me r pis o

-

La c ons t ru cc ión e s e n hor m igó n y los in te rio r e s t i e n e n a c abados e n y eso bl a nc o

- E s t as c asas pos ee n varios m ec a nis m o s

19
A NDR E A CAS T IL L O , MA R ÍA C R ISTINA F I G U E R O A

EXPOSICIONES DEL WERKBUND

L A CASA DE L A ARQUITECTURA MODERNA

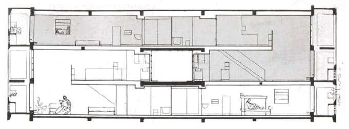
LE CORBUSIER Y PIERRE JEANNERET: TIPO CITROHAN

En este tipo se aplicaron ¨los 5 puntos” Las hileras están separadas cada 5 metros En la primera planta se ubica la zona social y un dormitorio de ser vicio. En el segundo nivel, se encuentra la suite principal y otros dormitorios más

20

LE CORBUSIER Y PIERRE JEANNERET: CASAS ADAPTABLES

En el proyecto, el nivel principal se encuentra elevado sobre pilotes y sus espacios flexibles se relacionan, directamente, con los espacios fijos dentro de la vivienda.

- Pl a nt a lib r e y f le x ibilid a d d e e spa c io s

- E n su in te rior pos ee una gr a n est a nci a qu e , por las no c h e s, s e c onvi e r te e n do r m i t orios gra c ias a los t a bi q ues cor r ede r o s qu e pos ee y m obili a rio v e r s á ti l

21
A NDR E A CAS T IL L O , MA R ÍA C R ISTINA F I G U E R O A

EXPOSICIONES DEL WERKBUND

L A CASA DE L A ARQUITECTURA MODERNA

WERKBUNDSIEDLUNG BRNO (1928)

Esta colonia, para incluirse dentro de la Exposición de Cultura Contemporánea, se planificó tomando como referencia a la de Stuttgar t. Fue construida por 9 arquitectos locales.

- Cons t a d e 16 viviend a s uni fam ili a r e s , aisladas o e n grupos d e dos o t r e s unidad e s

- No v edos a s t écnic a s constructi v a s

- La dis t ribu c ión s e da a pa r t ir d e esque ma s v e r tic a le s dond e s e s e paran las z onas diu r nas y no ct u r na s

- La solu c ión d e l e di f i c io e s c úbi c a, c on v ent a n a s a l a r g ad a s y t err a z a s tr a nsit ab le s

22

WERKBUNDSIEDLUNG BRESL AU (1929)

La colonia construida en Breslavia fue construida por arquitectos locales. El objetivo del grupo Silesia era que Breslavia fuera tan conocida como fue la exposición en Stuttgar t. Se dividió en dos par tes con dos tipos edificatorios cada uno.

- Z ona Su r : c on f o r m ado por e d i f icios de p oc a a ltur a para vivi e nda y o t r os para d e pa r t a me n t o s

- Z ona N o r te : c on f o r m ado por c a s a s uni fam ili a r e s y un e di f i c io para sol te r o s

- S e p r opuso una gu a r derí a , lo c ual f u e algo innov ador qu e no s e había considerado en Stuttgar t

- El bloque de viviendas de Heim y Kempter propone d istrib uciones distint a s en c a d a pl a nt a

23
A NDR E A CAS T IL L O , MA R ÍA C R ISTINA F I G U E R O A

EXPOSICIONES DEL WERKBUND

L A CASA DE L A ARQUITECTURA

DEUTSCHE BAUASSTELLUNG - BERLIN

LUDWING MIES VAN DER ROHE

c ara cte rís t i c a s - uso: vivi e nda ob r e ra / bu r gu e sía in te l e ct ua l - plan t a lib r e c o m o prin c ipio e s t ru ct ural : - c a r ece d e pu e r t as -exce p t o la c o c ina

MODERNA

LILY REICH

c ara cte rís t i c a s - dis t ribu c ión bin uc l e a r - plan t a e n L - pa r e ja sin hijo s - dos c rujia s

MARCEL BREUER - CASA PARA UN DEPORTISTA

c ara cte rís t i c a s - sup e r f i c i e c uadrad a - V O L U ME N C E RR AD O = plan t a lib r e - e spa c ios in te grados e n la sala d e e s t ar

24

c ara cte rís t i c a s - plan t a r ect angular - p r e s e n t a nu e v e t ra m os d e c arpin te ri a - me didas: 11,11 x 6,60 m - div e r sas c o mposi c ion e s f a m ilia r e s

OT TO HAESLER

BOARDINGHAUS - CASA DE HUÉSPEDES

c ara cte rís t i c a s - 3 plan t a s - 5 c rujias - d e pa r t a me n t o para sol te r o y pa r e ja sin hijo s

c ara cte rís t i c a s - E di f i c io e n dos plan t as sob r e pilo t i s - gal e ría e l e vad a A NDR E A CAS T IL L O , MA R ÍA C R ISTINA F I G U E R O A 25

EXPOSICIONES DEL WERKBUND

L A CASA DE L A ARQUITECTURA MODERNA

WERKBUNDSIEDLUNG ZURICH - NEUBUHL

Año: 1929-1932

Arquitectos involucrados: Paul Ar taria / Schmidt / Max Haefeli / Carl Hubacher / Rudolf Steiger / Werner Moser / Emil Roth Es un de conjunto de 194 viviendas con 11 modelos de vivienda destinado al alojamiento de obreros TIPO PQ

c ara cte rís t i c a s -met raj e : 30 - 90 m 2 - N ° d e habi t a c ion e s: 1 - 6 - dos t ipos d e agrupa c ión:

1. T ipo P Q 3 p l a nt a s : uno o dos c rujías p e rp e ndi c ula r e s 2. D os plan t as e n hil e ra m od e los : 2.1. Modelo A : dos c rujías 2.2. Modelo D : e s c al e ra jun t o a me dian e r a

26
MODELO A

WERKBUNDSIEDLUNG BASEL_1920-1930

Exposición de edificios de vivienda enfocado a grupos sociales de bajos ingresos. Se le conoce como Siedlun Eglisee

c ara cte rís t i c a s - barrio d e 120 vivi e nda s - plan t a baja: sala d e e s t ar / s e r vi c io s - plan t a al t a: 3 do r m i t orios / c ob e r t i z o / ja r dín

BLOQUE 8

PL ANTA BA JA Y ALTA

BLOQUE 14

27
A NDR E A CAS T IL L O , MA R ÍA C R ISTINA F I G U E R O A

EXPOSICIONES DEL WERKBUND

L A CASA DE L A ARQUITECTURA MODERNA

WERKBUNDSIEDLUNG PRAGA - 1932

JOSEF GOCAR - CASA MJOJZIS

Esta edificacion fue realziada en Checolosvaquia que forma par te del cubismo checo, estilo que casi se convier te en “estilo nacional”

c ara cte rís t i c a s

- dis t ribu c ión t radi c iona l - plan t a c asi c uadrad a - a cce so c on ect a a un v e s t íbulo

OLDRICH STARY - CASA TALLER SUTNAR

EL arquitecto fue director director de la revista Architecktura y formo par te de la generacion purista

c ara cte rís t i c a s

- plan t a r ect angula r - apoyada sob r e pilo te s - f o r m a d e L

- a cce so f a c hada no r t e - t abiqu e s e para e l salón d e l t all e r

28

L ADISL AV ZAK - CASA HERAIN

Esta edificacion fue realziada en Checolosvaquia que forma par te del cubismo checo, estilo que casi se convier te en “estilo nacional”

c ara cte rís t i c a s

- plan t a r ect angula r - a r e a: 130 m 2

- v e n t anal e s - f a c hada sur - s e ll e vó a c abo la c ons t ru cc ión d e 10 c asas c o m o la úl t i m a f as e m ani e ris t a

FRANTISEK KERHART - CASA BELENHRADEK

Esta construcción forma de esta ultima fase manerista

c ara cte rís t i c a s

- volu me n hori z on t al por las f ranjas d e v e nt anas

- a cce so - f a c hada su r - losa volada c on ect a a un v e s t íbulo in te rior

29
A NDR E A CAS T IL L O , MA R ÍA C R ISTINA F I G U E R O A

EXPOSICIONES DEL WERKBUND

L A CASA DE L A ARQUITECTURA MODERNA

c ara cte rís t i c a s

- una sola al t ura - plan t a r ect angular - e s c al e ra c on a cce so exte rior - p e qu e ño voladi z o sob r e la e n t rad a - Cubi e r t a plana ´ - c o m posi c ion:

1. sala d e e s t ar ce n t ra l

2. v e n t anal ( f a c hada sur)

3. c o c ina (o e s te )

4 do r m i t orios

5. baño ( e s te )

30
WERKBUNDSIEDLUNG WEISSENHOF DE STUT TGART - 1932 RICHARD NEUTRA - CASA NEUTRA

ANDRE LURCAT

c ara cte rís t i c a s - 4 s e m icili nd r o s d e c ajas d e e s c al e ra - v e n t anal e s hori z on t al e s o c upan f a c hada d e l ja r dín - esc a ler a in t erior - a ccesos centr a do s e n las pa r e d e s divis orias jun t o a c ada e s c al e r a - plan t as bajas c on sup e r f i c i e lib r e

c ara cte rís t i c a s - f o r m a e n L - gal e ria in te r me dia e l e vada - e s c al e ra s e dirig e a los do r m i t orios d e la plan t a al t a

31
FRANTISEK KERHART - CASA BELENHRADEK
A NDR E A CAS T IL L O , MA R ÍA C R ISTINA F I G U E R O A
32
33
34
35
MARSELLA
1994 1994 36
Boulevard Michelet 280 FRANCIA
1
1887 1905 1900 1965 1914 3 CON
CASA CULTURAL HEIDI
VEN TO DE LA TOURE T T E
37
2 MUSEO NACIONAL DE LA ART ES OCCIDEN TALES
1 3 2 16 1 2 17 18 15 14 13 12 11 10 9 8 7 6 5 4 3 2 1 38
Azotea
1 FACHADA 2 PLAN TA LIBRE 3
5
4 CIRCULACION 39
MODELO HIBRIDO
VEN T ILACION
LEYENDA
40
Sistema
41
42
_
43
43
45

Turn static files into dynamic content formats.

Create a flipbook
Issuu converts static files into: digital portfolios, online yearbooks, online catalogs, digital photo albums and more. Sign up and create your flipbook.