




This year’s cohorts of graduating students are unique; for the first time since formal university-level qualifications for architecture in Australia were established at the beginning of the 20th century these cohorts of students will have earned their degree mostly, if not entirely, from within the walls of their homes.
For our students then, the annual exhibition will be a celebration of a rigorous architectural education, but also a longawaited opportunity to publicly present their final studio projects. The exhibition is aptly named ‘UNBOXED’ in reference to the popular practice of ‘unboxing’ where the contents of a box are unpacked, displayed, and reviewed publicly.
The staff and students would like to show our respect and acknowledge the Bedegal People as the traditional custodians of the lands and waters of this place we now call Kensington. We acknowledge all Aboriginal and Torres Strait Islander Elders, past and present, and thank them and their communities who have shared and practised their teachings.
Dr. Cristina Garduño Freeman
Exhibition Design and Development
James Hargrave @ ABSTRACT8
Exhibition Design Team
Ross Driessen
Yihang Xie
Ryan Chen
Exhibition Production Team
Brittany Elliott
Feimo Song
Visual Communications Design
Justin Wohl
Kate Morris
Louisa Hartley
Benjamin Rowbotham
Gabriela Lauria
Taylor Joffe
Tony Li
Kefeng Yuan
Jiawei Xu
Jinlong Li
Jiarui Zhu
Head of School, School of Built Environment
UNSW Faculty of Arts, Design & Architecture
In 2021 our graduating architecture students have completed their most important projects; the architectural briefs tackled within their capstone studios in difficult circumstances. But they have excelled.
I’m amazed by the diversity of student projects we have on show this year: they range from a transportation museum built from mass timber to a community library in regional NSW; from architecture typologies that seek to tackle discrimination, to the adaptive reuse of a warehouse and its extension to create new urban housing.
While the projects in this year’s studios vary in scale, typology and direction, what draws them together are two common themes we address across UNSW Architecture: firstly an engagement with human-centered architecture with a social purpose. A concern for the way people live, how they work and inhabit architecture –including those for whom cities are places of unfairness, inequality or isolation. And, secondly, a concern for the environment, creating architecture that engages with climate, place, and explores innovative low-carbon technologies and materials.
As our students graduate from their undergraduate and postgraduate architecture degrees at UNSW Built Environment, they’ll be entering a profession that, I believe, will play a key role in resolving many of our global challenges. The rigorous education they have received here prepares them to contribute to these challenges and to go on to establish careers which will positively impact our built environment in the future.
In closing, I would like to thank our staff, your resilience and innovative teaching is the foundation of the impactful education of our students. I also wish to thank all our industry partners and the many practitioners who contribute their knowledge, passion, and energy to design learning within our studios. Finally, I would like to congratulate all our students, and especially our graduating cohorts. You have shown determination, ambition, and creativity throughout this year. We look forward to watching you leave your mark on the design and shape of our future buildings.
Yours sincerely,
Phil Oldfield
Discipline Director of Architecture, School of Built Environment
UNSW Faculty of Arts, Design & Architecture
Within the daily flow of emails that keep me busy, it is always such a wonderful and elevating moment to receive messages from studio leaders and tutors telling of how impressed they are with the standard of student work in their courses. They describe in the most sincere and genuine way the deep respect they have for the passion and commitment of their students. They describe the strong impressions made on guest reviewers and panel members. These messages are a small but not insignificant reminder of the huge amount of work our students devote to their studio projects. Behind the virtual spaces of our studios this year, where Zoom, Teams, Miro and Conceptboard are the means of communication and representation, there lies hours and hours of hard work, often running late into the night. There are the unseen emotions, the ups and downs, notebooks and sketches, inspirations, images of building precedents and piles of dishes!
In sharing this reflection, I would like to congratulate all graduands from the Bachelor of Architectural Studies and Master of Architecture degrees at UNSW on their achievements this year and in previous years. I know I speak on behalf of all my colleagues within the Architecture
program in saying we are tremendously proud of you. We admire your dedication, creativity and curiosity and the true love you have for this discipline we know as architecture.
For those who are finishing their undergraduate studies we wish you all the best in your future endeavours, especially if they involve moving into further studies in the form of the Masters degree. For those who are finishing their university studies altogether, an extra big congratulations. We wish you all the best as you step into the world of architectural practice or, indeed, if your path takes you somewhere else.
I would like to take this opportunity to offer a sincere thanks to all the sessional teaching staff within our courses and in particular to those who taught within our graduation design studios. The work represented in this catalogue is in no small way a tribute to your passion and commitment to the education of our students and their development as future architects.
Yours sincerely, Paul
Hogben
ARCH1302 Course Convenor, School of Built Environment
UNSW Faculty of Arts, Design & Architecture
The graduation studio within the Bachelor of Architectural Studies degree at UNSW is concerned with how multiple environmental, technological, and social factors influence architectural our thinking and production. Students can select from two exciting design opportunities led by distinguished and innovative Sydney based architects.
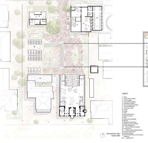
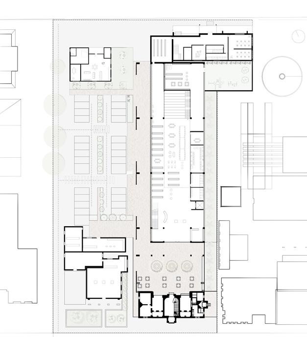
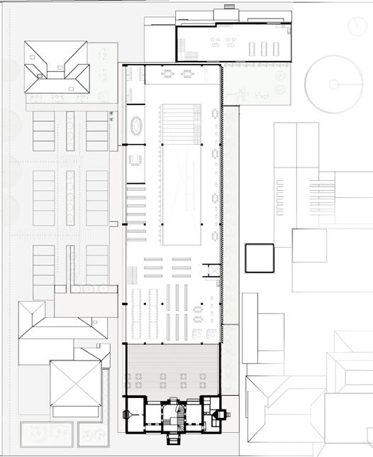
Our Urban Studio is led by Sam Marshall and explored design proposals for the Museum of Applied Arts and Sciences in North Parramatta. By contrast, our Regional Studio, which was led by Professor Rachel Neeson, developed designs for the Broken Hill Library in farwestern NSW.
Regardless of location and program, each studio presents students with a challenging site alongside a complex program. The Urban Studio’s Parramatta site is located on the land of the Burramattagal people of the Darug clan; Regional Studio’s Broken Hill site is located in Wilyakali country. Fortunately, site visits were possible at the beginning of the term before the pandemic triggered more lockdowns.
Students learning on-campus participated in memorable site visits at the beginning
of the term. Urban Studio students walked the streets and spaces of their Parramatta site, guided by their tutors’ knowledge and experiences of this historic city in Sydney. Regional Studio students undertook the journey by coach to and from Broken Hill where they had the opportunity to meet with local residents and indigenous leaders as well as exploring the city’s urban fabric and rich, desert landscape. Our on-campus students shared their experiences of both sites with those overseas unable to join them, through the wonders of digital technology.
Both project sites are integral parts of larger and significant urban change –the transformation of Parramatta into Sydney’s second CBD and the rejuvenation of Broken Hill’s urban centre. They required students to research and interpret spatial and social issues to generate an architectural proposal and its appropriate representation.
Congratulations!
Yours sincerely,
John Gamble
Course Convenor, ARCH7219
Graduation Exhibition Design, School of Built Environment
UNSW Faculty of Arts, Design & Architecture
I joined UNSW’s thriving architecture program as a Senior Lecturer in August 2021, ready and enthused to convene the Graduate Exhibition Design course.
Working with our graduating students in this endeavour was a unique opportunity to meet them. Weary from months of remote learning, a task made even more difficult in design studio, they nonetheless took up the challenge to explore how exhibitions are being transformed by increasingly sophisticated digital technologies within a time of global pandemic.
Putting on an exhibition is no mean feat. Putting on a virtual exhibition even less so! Students have researched a broad range of exhibitions, from architecture to fashion to those that are digitally avant-garde and make us the product. They have learnt from professionals, Antonia Fredman from Kaldor Public Art Projects and Sasha Baroni from City of Sydney shared their knowledge and expertise in this area.
These students have undertaken a valuable experience that spans from the theoretical to the practical. They have explored ideas, applied for roles, created marketing plans, liaised with sponsors, delivered outcomes, and most importantly worked as a team.
I am incredibly proud of each and every one of you: Ross, Brittany, Justin, Yihang, Kate, Kefeng, Jiarui, Gabriela, Ben, Feimo, Louisa, Ryan, Tony, Taylor, Jinlong and Jiawei. Together with James Hargrave, we have learned to turn on a dime to get things done, to be flexible and creative, to take risks and offer each other encouragement and constructive feedback.
Welcome to Unboxed!
Yours sincerely, Cristina Garduño Freeman
Virtual Exhibition Developer, ABSTRACT8
My career has traversed architecture in all its forms. From building the possible to building the seemingly impossible. Seeded by a first-year project while studying architecture here at UNSW, I now run my own company.
Abstract8 specialises in developing virtual exhibitions: digital spaces that transform online experiences from flat, point and click to immersive custom designed places.
Telling a story is a central to the success of virtual exhibitions. It has been a constant theme over the years embedded in the imaginative and idealised projects produced at university, to communicating architectural projects professionally and teaching students about the impact of presentation.
The pandemic has transformed the cultural sector. As the world shut down and we all transitioned to life via zoom, our ideas about exhibitions changed too. That first-year project, where we were tasked with taking crude sketches and
simple 3D prototypes and creating an immersive experience using video game engines, coupled with the encouragement of Dr Russell Lowe grew a passion into a profession. The result is Abstract8 and a growing portfolio of exhibitions, hybrid virtual/ physical installations, art exhibitions, education tools, and many other inspirational experiences.
No project is the result of one person. ARCHEX 2021 has been a wonderful collaboration, with the Graduate Exhibition Design students and course convenor Cristina Garduño Freeman.
ARCHEX 2021 Unboxed is a playful and unique exhibition inspired by the students’ experiences. A playful take on life, an experience we can all relate to.
Congratulations to all the graduating students.
James Hargrave Founder of ABSTRACT8
Architecturally Designed, Digital Places.
NSW Architects Registration Board
Gold Sponsor
Bates Smart EM BE CE
Silver Sponsor
Bijl Architecture
Turner Studio
Tzannes
Architectus
NBRS Architecture
TKD Architects
Bronze Sponsor
Ethos Urban
GCCV
CONGRATULATIONS to the graduates of the University of New South Wales!
We look forward to seeing you in the near future as you continue your journey toward registration.
Bates Smart would like to congratulate 2021’s graduates!
Looking for career opportunities? We are on the lookout for current students and recent graduates.
For more information and to apply, please visit batessmart.com
EM BE CE is a new design studio which was established in July 2021.
The practice name is derived from a phonetic rendering of our first name initials: Mladen, Ben, Chi - EM BE CE. Our name embodies our Studio’s approach to a collective and collaborative working ethos.
We aim to work across the spectrum of the built environment, from the chair to the city, with a focus on mixed use, multi-residential projects, commercial projects, urban renewal, heritage adaptation, precinct planning and bespoke homes.
We believe good design is for everyone and the process of making places and buildings requires a strong collaborative approach across all disciplines and all stages of the process. Our ambition is to bring this ethos into our teaching as we believe this is a central to being an architect. We look to embed an open design discourse with our students and value the opportunity to be involved in the mentoring of future architects.
Congratulations to the 2021 graduates! You are now crossing the threshold into a fulsome engagement with practice, entering a profession and broader industry that offers exciting opportunities and worthy challenges.
At Bijl Architecture, we understand and embrace the demands made of our profession - that architecture must improve our connections to each other, ourselves, the environment, and to future generations. Our practice is guided by these beliefs - and that architecture must also bring enduring surprise and delight. Our residential projects are borne from an empathic, deeply personal expression of our clients’ vision for living; our educational and public architecture progresses our shared social and built legacy. By acknowledging the traditional owners of the lands upon which we work, our practice embraces an open design culture – to encourage everyone to learn about Country and participate in reconciliation. From this philosophical framework we create architecture that is impeccably detailed, grounded in economic mindfulness, perceptive, and proudly Bijl – alive with light, character; sometimes mercurial, always striving.
Congratulations to the graduating students of the Bachelor & Master of Architecture at UNSW.
At TURNER we design, we lead, and we deliver. We are proud to offer our ongoing support to graduate programs.
Turnerstudio.com.au/contact/careers/ Careers@turnerstudio.com.au
Be passionate. Be brave. Be agile. Be curious. Be collaborative. Be mindful.
Congratulations to the graduating cohort of 2021. We commend you for your perseverance and unwavering dedication to good design throughout this year that has been like no other.
We at Tzannes are focused on innovative, sustainable and enduring design in alignment with the values of the UNSW Architecture program. While current circumstances don’t permit the celebration of your achievements together in one room, we are confident that we will learn about you and your contributions to the profession in the future. We wish you the best in your journey ahead and may even welcome you to our practice one day.
Architectus is a multi-award winning Australian architecture and design studio specialising in commercial, education, interiors, public, residential, transport, and urban design. Our design philosophy is underpinned by our 5Ps – people, place, purpose, planet, and production. We are thoughtful in our approach and we work collaboratively with our clients and partners to create places and spaces that stand the test of time and are respected for their rationality, ingenuity and beauty. At Architectus, we take community and environmental sustainability seriously – accepting responsibility for our projects’ social and ecological impact and our practice operations. We take design leadership for environmental impact, cultural heritage, economic viability and social significance so that each precinct, building or interior space will withstand and adapt to whatever the future holds. As of 2021, we are net-zero in our operations and will be carbon neutral certified in 2022. We are one of the first large practices to have an endorsed Reconciliation Action Plan. We are committed to making reconciliation tangible by listening, learning and working with First Peoples in our practice and in our projects. We are dedicated to supporting the next generation of architects and designers. Our Graduate Program offers students a valuable opportunity to launch their careers. Our graduates benefit from networking and mentorship from industry leaders while working on exciting projects that strengthen their conceptual knowledge and develop real-world experience. We operate as a single studio with more than 400 staff across Adelaide, Brisbane, Melbourne, Perth, and Sydney. Our practice is governed by a Board of Directors that ensures best practice is achieved in everything that we do. In 2022, we will celebrate our 21st birthday.
Congratulations ARCHEX 2021!
NBRS - shaping people’s lives
We constantly strive for innovation in built environments. Committed to excellence in design, we draw on genuine insight and our own research, to create stronger connections between people and place.
We believe the wellbeing of ecology, society, and culture is interconnected. Whether at individual, or community level, wellbeing is at the heart of all we do. So naturally, we don’t just support sustainability, we champion it. Caring for our environment, our cultures, and our heritage, raising our voice for the marginalised, for social justice, equal employment and anti-slavery, and honouring the continuing efforts of Aboriginal and Torres Strait Islander peoples caring for Country. To us, sustainability is more than a principle. It’s a driving force.
congratulations ARCHEX 2021
shaping people’s lives
https://nbrs.com.au/
At TKD we are passionate about design and architecture - creativity and imagination is at the heart of what we do. Our team is committed to the idea of collaboration and collegiality and we have a culture of independence and responsibility, something evident in all of our projects. So let’s connect.
Studio Lead (Architect Marshall)
Urban Studio Tutors:
Peter Farman
Sam Marshall
John Cabello
Urban Studio tackles complex, heritage rich and dense urban sites to understand the context and respond with built fabric that actively contributes to its users and the community.
Plans to transform Parramatta into a second CBD as the ‘next great city’ have lately attracted significant media coverage and interest. The proposed $8 billion investment in the redevelopment of Parramatta is ‘set to dramatically reshape the city’s skyline’ while the proposed $2 billion for the redevelopment of Parramatta Square is considered ‘one of the largest urban renewal projects in the country and aims to position the city as a rival to the Sydney CBD’. Key cultural and public domain initiatives underway or planned include the Parramatta River Strategy and the proposed Civic Link which connects the civic space of Parramatta Square (currently under construction) to the future Powerhouse Museum and the Parramatta River.
The site, the former Female Factory at 1A Fleet Street North Parramatta,
being located on the edge of this dense urban environment has a rich history having been the traditional land of the Burramattagal of the Darug clan, it was then cleared for farming, then a hospital, a factory, a lunatic asylum and a prison for women who had committed crimes. It was the site of Australia’s first industrial action when women rioted as a response to a cut in rations and poor conditions.
This project explores the potential for a contemporary art space in this heritage precinct as a ‘building of public good’ that creatively and constructively engages with the community’s needs.
This project asks students to consider the city as the space between the buildings for the community. We own this space and we occupy it. We should be demanding a lot from it. It should be giving us all that we need and more. As a minimum there should be spaces for public social interaction, relaxation and presentation of public events.
Linkedin: Roy Yue
Instagram: @roy_architecture
Email: roy.yue.arch@gmail.com
The urban project is to design a new Parramatta Art Studio (PAS) within a heritage precinct (used to be a gaol). The brief asks for public exhibition spaces, twenty artists’ studios, artists residences, retail, education area, and artwork loading dock. The design is required to consider the future of Parramatta, understand the context, respect the historical site, and respond to the users, community, and city.
The project tries to impact Parramatta city by connecting three significant precincts
(history, nature, and culture) to influence the public and society. By contrast, it is also formed by the city and surroundings. The objective of the design is to create a sense of harmony between history, nature, and culture, and provide an inclusive place for all types of people to be aware of the local history, embrace spirit, and enjoy & create artworks.
Linkedln: lisa_zhuang_arch
Email: lisazhuang12345@gmail.com
The project aims to make working spaces for Parramatta art studio and increase interaction between the public and artists. With the history of the Female Factory, the concept is to reflect on its historical value and rectify people from the past. To engage with the growing global Parramatta, the space is flexible to hold different activities.
The objective of design includes function, history, and environment. Firstly, porosity
between internal and outdoor spaces is the way to encourage interaction. Secondly, the Curved roof is used to reveal history to liberate the site from the prison’s roof style. Finally, it is effective to habitat and responds to the environment by passive lighting and shading. Light materials such as wood, glass, and steel are used to provide a warm and comfortable space.
Linkedln: zivtee
Instagram: @ziv_tea
Email: teejiamin13@gmail.com
Suppose you look at the site development of Parramatta Female Factory in the colonial past. You see that you either have a precinct with the isolate and boundary, at the same time with the inability to accommodate contemporary programs and density. Or you have colonial neighborhoods with great heritage wall boundaries but without interaction, charm, and programmatic diversity to create a lively community.
I am trying to do with Parramatta Art Studio to create an interaction chain and
interlock surrounding site context. So, in a way, bring back the interaction of the great boundary, bring back the walkable streets of the urban neighborhood, get around the urban park feel of liveness, with Parramatta Park and Parramatta river strategy. To provide the cultural infrastructure to create a lively sort of artist studios and the homes to create a residential population, to populate the streets. To create a new community art studio at the heart of Parramatta that, in a way, combines the best of the site context.
Linkedin: nadianursalim
Instagram: @archibottle
Email: n.nursalim@student.unsw.edu.au
Situated at the Female Factory, North Parramatta, Parramatta Artist Studio is a home for artists to develop their creative practices and community to come together and engage with one another. A study of history formed the basis of the new arts space, revealing changes in the geometry of the place caused by the demolition of some of the original buildings in the past. The design aspired to acknowledge this critical piece of history while giving the site a new meaning relevant to us today.
In response to these, the design proposed a building to be ‘floating’ above the ground to allow a view across the site. It also features a cantilever hovering over a multi-purpose foyer that was built on the footprint of the solitary confinement cell. The building ultimately provides an open and welcoming public space for everyone to ‘collaborate’ on art.
Linkedin: Mackenzie Peachey
Instagram: @mac_._._zie
Email: mackenzie.peachey@gmail.com
The proposal lies within Australia’s first female convict prison, intended to expose and clarify the hidden history of the site. As guests descend into the proposal, they are probing the history and ascending with a sense of enlightenment. The scheme mirrors the demolished structures maintaining all details with an inversion of materiality. The original glazed openings become sandstone blocks inscribed with references to the history of the site. All sandstone will be sourced onsite during the excavation and features a high thermal mass. Low-e glazing is specified where there once were sandstone barriers; it is no longer a place of entrapment but a place
of freedom. Illuminated ‘PAS’ signage lights the interior space, luring people in. The glazed structures work to exhaust hot air during summer and capture it within during winter. The proposal features a set of galleries, food and gathering spaces, retail spaces, shared studios (for private and public use), artist’s studios (20), artists’ residences (5), and an urban art park for the display of larger works. The proposal ultimately works to satisfy the four key objectives, facilitating community growth, supporting PAS artists and alumni, activating the site, and exposing its history.
Thea Barth
Linkedin: Thea Barth Instagram: @tbarth_architecture
Email: thea.mag.barth@gmail.com
The project aims to create strong connections between Parramatta Art Studios and different parts of Parramatta and its community-enhancing creativeness and growth within a growing urban environment. The project provides a café, a residence for artists, 20 adaptable studio spaces, and a large gallery—the design is interactive where people are able to interact with the building itself and the art within. Before, upon, and after entering and exploring the site, you will be learning
about the site’s history, the art of PAS, and its people.
The project’s different components have been carefully considered respecting the aboriginal people of this land and the sites later history as a prison. The design is adaptive and allows various artists to control their environment, enhancing the diversity of artists passing through over time.
Linkedin: darakeramati
Instagram: @keramati_architecture
Email: darakeramati@gmail.com
The sole design intent of Interconnection is to be an efficient, sustainable, and inspirational space for people to discuss new ideas, meet new people and enjoy the artistic atmosphere through the complexity of its architectural design. The entire design consists of a heritage walL around it, for it not to be a mere aesthetic, but rather a foundation upon which the new architecture sits on, serving a higher purpose.
For the space to be considered artistic and inspiring for the people, it was important to design the spaces to be interactive rather than a mere piece of structure-a wall isn’t just a wall but can
be manipulated into serving a higher purpose. Additionally, the importance of sustainability is greatly expressed through Interconnection. Thinking not about the present but the future, the proud feature of Interconnection is utilizing solar energy through the methodology of solar glassreplacing all windows in the architecture.
Experimenting with different levels in elevation introduces a sense of curiosity into the site. Interconnection being designed for the people, the intriguing pathways and community spaces allow people to experience accidental encounters with strangers and moments of reflection upon themselves.
Linkedin: nerissa-tan
Instagram: @arch.tella
Email: nerissatan@ymail.com
The Parramatta Artist Studios (P.A.S) will be a place for emerging artists to birth creations that will generate a range of discussions for years to come. Still, most importantly, it will encourage storytelling through an environment that reconciles with the Country and its layers of history concealed beneath rapid urban growth. Unparalleled to any other opportunities, artists and visitors at P.A.S will engage with storytelling within an environment infused with a rich history.
Today, our British heritage reflected within the Georgian grid continues to inform how our cities are designed. However, it doesn’t represent the richness of a broader interpretation of who we are unique. Suppose Parramatta and P.A.S are to cultivate and embrace an expanding, multiculturally diverse population. In that case, we need to come to terms with our foundational story – that is what’s unique to us, and we must build upon that.
Studio Leader (Neeson Murcutt+Neille)
Regional Studio Tutors:
John Baker
Tamas Jones
Katie Molnar
David Ostinga
Brendan Randles
Isabelle Toland
The urban footprint of Broken Hill is clearly visible within its arid landscape in far west NSW near the South Australian border. It has a large diurnal temperature range with extremes of heat and cold, high impact rain events, and evaporation that generally outstrips precipitation. Added to this are frequent strong winds, dust storms and high lead levels, creating a need to filter and shelter the weather conditions.
Broken Hill is a distinctive regional urban place with much to offer as a site for architectural exploration and learning. Particular to this studio is the opportunity for students to gain an understanding of the urban whole – conditioned by geology, climate and history – to which their final proposals will relate.
Linkedin: annika-day
Email: day.annika@gmail.com
The main library’s circular form becomes the center of the design, drawing upon the relationship with the public toilet and the Telstra Tower. Sitting upon the circular form is the Water Tank Tower. The Water Tank Tower is a rural Australian cultural statement and a practical feature on the site, storing greywater for irrigation and amenities. The new library is energy conscious and self-sufficient, with additional solar panels on the existing Charles Rasp Library. Lightweight
corrugated iron structures are brought back into the site to create a space with similarities to the residential areas of Broken hill.
The building’s thermal comfort using reversed concrete brick veneer is maximized in harsh environments. The canopy structures diffuse light entering the library and create habitable outdoor spaces surrounded by native desert vegetation.
Instagram: @susan_archi
Email: z3358659@ad.unsw.edu.au
The proposed design for the Broken Hill Library follows a strong logic guided by the site context and environmental conditions; and aspires to pay tribute to the magnificent natural landscape of outback NSW and the rich indigenous and industrial culture of Broken Hill.
A courtyard typology is adopted for the general arrangement of the library, which reinforces the cartesian geometry of a broken hill city and offers ample light and refreshing green views to the interior spaces. An extensive roof covers the solid exterior wall, which provides weather
protection for the building and shading for outdoor circulation. The low-lying form of the building does not compete with the sophisticated historic buildings on the site but still maintains its solid individual identity. The light scoops and shading devices follow the solar geometry to moderate the interior lighting and thermal comfort to achieve their full potential. Light spoons are inspired by the mining architectures in Broken Hill and define the library’s interior spaces. The needs of all age groups and people from different cultural backgrounds are considered in the design of library spaces.
Linkedin: breannawallace
Instagram: @breanna_wallace27
Email: breanna.wallace27@gmail.com
Derived from the maxim “Big Sky, Deep Earth,” ‘Past, Present, Future’ respects the traditional owners of Broken Hill, the Wilyakali, and the wider Baarkinji Nation whilst looking to support the future of Broken Hill through providing muchneeded facilities to their Children and Youth.
The building folds around a sunken garden where every prominent space can look onto a collection of Native Australian Flora, the heart of the library. At three stories, visitors enter the ground level that holds
the main library reading floor, Children’s Room, and Youth Area.
One integral aspect of knowledge keeping and sharing in the Wilyakali and broader Indigenous community is spreading knowledge through verbal means- stories and lessons. Part of the library features archives that cater to the physical copies but to cater to the digital, unique rooms adjacent to the main reading room are sound insulated so visitors can listen to the recorded voiced history of the Broken Hill Area, particularly the Wilyakali.
Linkedin: Jessica Tippett
Instagram: @jet.arch
Email: jetippett@bigpond.com
Focusing on creating a central hub for the Broken Hill site and revitalizing Argent street, the community library building aims to draw the public into the center of the site. Public outdoor space is important in bringing a community together. This has been extended by creating a terraced seating space above the car park to complement the curved form of the library.
By pushing the built forms to the edges of the site, the natural linear circulation
path from Argent street to Blende street is kept intact, allowing for the flow of people through the site to remain unaffected. This allows the focus to be placed on the large established trees of the site as a critical feature in the previously barren site. The large roof provides muchneeded shade while the brick facade and timber screen construction tie the form to the surrounding buildings and natural landscape.
Linkedin: jean-alda
Instagram: @j.alda_
Email: jean.cecilia49@gmail.com
Tasked to reinvigorate the city’s cultural sector, this project is deeply rooted in and inspired by Broken Hill’s rich historical identity. Its structural form extends on the tripartite configuration of the existing Town Hall building, while its arched facade reimagines the language of colonial architecture, which dominates the civic block.
As the project prioritises cultural activities, all communal and cultural spaces have
been conveniently placed on the ground floor, and are accessible via the main street and car park. The main reading area, as well as other quieter spaces, have been placed upstairs, separate from the cultural spaces. This subsequently creates a circulation path that gradually eases and transitions users from a vibrant, and social zone- into a more reserved and academic area. By separating the two distinct zones, the different activities in each will not disturb one another.
Instagram: @hailey.ysl
Email: ysl.hailey@gmail.com
In a hot desert climate like Broken Hill city, building a large public space relies on substantial studies of the environment. The focus on light derives from the history of a mining town and the way the harsh weather has, until now, shaped the architectural language. It is a quest of redefining walls and openings, to which modern technology sheds light on newer possibilities. Strategically connected to the preserved and restored Town Hall, it is also bridged to the old library serving as an exhibition space for city events. The
enhancement of connected landscape spaces on-site pays homage to the way of life: being on the ground and absorbing the deep earth and big sky. Round, tubular skylight openings bring a visitor’s vision to the sky above, parallel to the sense of being underground. This simple engagement draws inspiration from the earliest roots of a mining town. What makes underground homes so attractive to city dwellers? Broken Hill’s latest edition is envisioned as a gathering place that opens up by shutting out.
Linkedin: jingyonggoh
Email: z5181884@ad.unsw.edu.au
The Site:
To introduce new physical forms that knit into the existing site. Flaws of the site will not be seen as weaknesses but opportunities to enhance the new proposal.
The Architecture:
The new exterior fabric must respect the existing urban fabric of Broken hill; there is a hierarchy for building types that must be considered. The interior will be animated
through the orchestration of building components. A single organism is formed by different components that help evoke emotions different from the external spaces.
The Community: Community spaces will become a key factor in the proposal by making spaces physically comfortable and mentally uplifting. A place promotes community activities that bring life to the public areas.
Linkedin: boyang-liu
Instagram: @boyang.arch
Email:liuby0219@gmail.com
“In a remote, rural city such as Broken Hill, the library fills many roles as a community hub and a focus for community engagement and lifelong learning..”.
The meaning of a library for Broken Hill is of great value. It serves people with more functions than a standard library in an urban city. It works as a community center for the residents for daily leisure, learning, and working, and it also represents and preserves and history and culture of this city.
As the social gathering and interaction space in a house, the living room is where
a variety of activities take place in one’s home. This library is trying to achieve a role of a living room for the city of Broken Hill. It is community-based and provides both public spaces and learning spaces. Two public plazas are proposed according to the entrances and circulation of the site. They can provide social gathering and interaction spaces for the visitors in an outdoor environment. The brick protects the internal reading space with a warm and quiet atmosphere.
Linkedin:Carrie (zhaoqi) Song
Instagram: @carrie_song_
Email: z5212882@student.unsw.edu.au.com
Broken Hill - a legendary outback city rich with history, a vibrant artistic community, and a cast of colourful characters. It is a small town embracing a strong period atmosphere, its architectural style is quite old-fashioned and the people here are simple and kind. The town culture is very inclusive, Aboriginal local indigenous culture is the most prominent. The site
situates at the town center in between Argent street and Blende street where surrounded by several local facalities such as townhall, police station etc. Without doubt, the newly established library will become a new population as well as a cultural exchange centre as well as a community centre serving people here.
Linkedin: amira-shammo
Instagram: @amirashammo
Email: amira.shmo@hotmail.com
The designed Library aims to create a visual connection to the site of Broken Hill and three identified views from within the site, the Memorial Park, the Line of Lode, and Argent Lane. Those three views influence the building’s organic form, creating the form as an extension to reach out to those views.
The curvature of the form appears where courtyards are presented as if pushing artificial elements internally. The Three
levels building assembles the staff areas and exhibition space on the ground level, the children’s library on the first level, and the youth library, leaving the main Library on the second level. The design activates the corners by presenting seating areas near windows to facilitate the visual connection to the outside. The courtyards are divided into three parts and provide shaded seating spaces to facilitate flow all over the building.
Zann Chiam
Linkedin: zann chiam
Instagram: @zanizzle
Email: zannchiam@gmail.com
Situated in Broken Hill, the site is known for its picturesque landscape and is rich in history and indigenous culturepredominantly the Wilyakali aboriginal group.
The Wilyakali people were part of the tribal group of the Darling River basin, and they built shelters to seek refuge in, the pioneer builders of the land. The shelter takes the form of a dome structure and is commonly built using materials sourced
from their surroundings, such as saplings and spinifex grass. The Wilyakali people valued the land and the night sky, which was pivotal in storytelling and was seen as a guide to where emus laid their eggs.
The library; a gesture to the Wilyakali people and is an archive with a keeping place for artefacts, photographs, and information, emphasizing the aboriginal identity in Broken Hill.
Arina Jin
Instagram: @aaaaaarina_
Email: ajiaxuan99@hotmail.com
Broken Hill sits beneath a vast sky, atop a landscape famed for its natural, cultural and industrial heritage. The new library takes place in the heart of broken hill as a new community centre, designed not only to allow people to read books but as a ‘home away from home’, a space that will enable users to feel comfortable visiting and staying. The new library recognises the importance of this historically significant place, regenerating a connection between architecture, the land and human being.
The central courtyard is the keyspace of the building that embodies an inclusive public realm, making connections to the rich landscape and provides a clear way
towards the building. The flanking side of the architecture houses functional programs, providing community, entertainment, cultural and educational opportunities for locals and tourists.
The new library is inclusive and accessible, welcoming all people. It is sustainable that is environmentally responsible, and energy-efficient. The external wall uses thick rammed earth to connect to the rich landscape and heritage context, also effective at controlling indoor temperature fluctuations. The roof features solar panels that reduce resource usage and make heating and cooling more effective.
Linkedin: Ryan Huang
Instagram: @ryan_wongyuiyeung
Email: z5134418@ad.unsw.edu.au
This project endeavors to serve as a regional library and a community center that reflects local history. The civic block has witnessed the city’s architectural development since the gold rush in the late 19th century, from the Victorian style Colonial architecture (Town Hall Facade) to the modern architecture (Charles Rasp Memorial Library).
Recognizing the critical role these old civic buildings have played, the design seeks to encourage visitors to explore the site and its history. So thinking about the library as the bond to connect different site elements evokes the vernacular of the outback region with the goal of cultural resiliency.
Instagram: cf_arch
Email: carmen.feng213@gmail.com
The proposed library seeks to celebrate the diversity of the cultural narrative of Broken Hill through crystalizing the values for the regional center Broken Hill, both in terms of its identity and its assets.
The library acts as a ‘public living room’ for the community, reactivating an unused part of town and drawing locals back to the site, a fundamental part of Broken Hill’s heritage while bringing tourists and visitors to the heart of the town. In recent years, the town had turned its back on the
Town Hall fragment and the project site behind it, using it merely as an overflow parking lot. Hence, the new library is intended to act as a civic set piece in the site, surrounded by significant buildings, with functions that are more than just a place to read. But a public space invites occupation, a place to sit, shade in summer, access to public amenities, a cafe, and a through-site laneway that can be transformed into an outdoor cinema or theatre for the community.
Linkedin: sophie griffiths
Instagram: @sophieg_arch
Email: sophie.griffiths@student.unsw.edu.au
The modern library is an evolving public space. Movement away from solely physical resources and the growing disconnect of communities in the online age has grown demand for a multifaceted and adaptable community space in regional areas. The Broken Hill Library Precinct responds to these needs.
A place of refuge is created through the simple concept of a shed protecting a smaller unit beneath. Sheltered by the outer skin of the shed structure, users can participate in a range of activities while
connecting to the unique landscape of the area as the walls operate in response to the conditions. The re-use of existing buildings and the integration of landscape features invites people back into the city center.
The use of a grid also establishes a continuation of Argent Lane. This connection to the urban form is a direct response to the site, and the library precinct provides a path of connection across the block in three directions of flow.
Linkedin: William Xie
Instagram: @willxie_arch
Email: willxie1818@gmail.com
The proposal of the new Broken Hill Library and Public Plaza, aims to revitalise the existing civic and cultural centre of the town. The value of Broken Hill has long been defined as the material worth of the Line of Lode but is truly characterised by its close relationship with the deep earth and open sky.
The proposal of a below-grade Library enhances this relationship, by increasing the proximity of the deep earth and framing the open sky through the sunken courtyard. The centralised courtyard forms a meeting place for the local community, seeking to re-ignite the strong communal bond through a place of stasis.
Surrounding this tranquil zone, is a cluster form that joins the iconic parts of the heritage site, embracing the rich and rapid history of Broken Hill.
By siting the Library below-grade, the ground level of the site provides opportunities for various community engagements within the public plaza on the street level. A large, uniform roof plane shades the plaza, relieving the occupants from the harsh climatic conditions of Broken Hill. The public plaza provides opportunities to activate the site and the town, where cultural festivals and various activities can take place.
Tran Bao Nghi Huynh
Instagram: @nghi_do_arch
Email: nghihtb2902@gmail.com
Broken hill is a remarkable city that grew out of the desert, carrying treasurable resources. However, the aboriginal community, who were long a part of the land, saw the mining industry as an exploitation of nature. Nowadays, broken hill city is working to harmonise the aboriginal roots of the land as well as the mining history.
My design aims to use the concept of water as a common source of life to harmonise the layers of history. Aboriginal tribes (wilyakali and barkindji) had tied their life and culture to rivers and lakes
through hunting/fishing and ceremonies. While for broken hill residence living in the desert, water must be extracted from the murray river to serve life and the mining industry. Therefore, the concept of water is expressed through building form and the usage of water in the design. The spatial experience of ground-level could be compared to being under a flowing river going through the site. While the experience at the underground level could mimic being under a mining tunnel where the only source of natural light is through the central “waterfall. “
Linkedin: jose-siccion
Email: josesiccion@gmail.com
A regional library in the center of Broken Hill was designed to create a portal from Argent street to Blende street. The idea behind this concept was to emulate the existing public buildings formation in the general district of the town. As such, the library was created to create this passageway that would not block the existing passage. But instead of complimenting it as it supports the existing public building with its public spaces within its courtyard, it lends to creating a
road or portal in the middle of the public space, allowing people to rest or pass by as they please whenever they enter the library spaces. The library and the public space work together to create this sense of movement and passage. Furthermore, the building was designed to counteract the heat of broken hill through its use of moving louvers on its façade that allowed the building to look ephemeral through its large glass facades while still being practical.
Ivy Ning
Linkedin: ivy-ning
Instagram: @ivyningg
Email: ivy.ning@hotmail.com
Broken Hill’s rich Aboriginal history should be acknowledged and highlighted through its public spaces. The proposal is centered around the idea of a meeting place that showcases this history through the central placement of the Wilyakali, keeping the place in the building and on the site. All the other spaces are offset from this room to allow constant visual connection and recognition of the traditional owners and their history.
The notion of ‘Labyrinth’ is described as a meandering path, often universal, with a singular path leading to a center. The ramp adjoining all levels and the exterior
landscape maintains this undisturbed path and leads the public into the Wilyakali keeping place where the archives are stored and displayed. Users enter the town hall, utilizing the very space that was once the most significant part of town. They approach the building through the perforated brick screens housing areas of native planting, and openings in the screen connect the new architecture to the surrounding site and beyond. The double skin of the proposal provides thermal comfort through shading the building and pathway and allows openings and windows from the building to frame the significant buildings.
Linkedin: renee-qin
Instagram: @rq_arch
Email: reneeqin02@gmail.com
The design responds to the overwhelming sense of separation of community within Broken Hill. The population is spread out rather than clustered together; therefore, the site aims to revitalize and rebuild a sense of community. The town square is relocated behind the town hall fragment to facilitate social activity. Placing the town square behind the Town Hall fragment will promote gatherings and provide an open space for children to play. A skating platform is thus positioned in this outdoor space, referencing Broken Hill’s Sturt Park to create playfulness on site.
From its entrance to the town square to the library itself, the aim was to blur the lines between inside and outside, as seen by the direct views of the outdoor spaces from the children’s library, which were made possible by the double-height glass curtain walls. Further, there is a centralized view into the courtyard formed by the cloister circulation that connects all the spaces. This centrality of the idea can also be found in the main reading room, where the mezzanine wraps around above the ground-level reading space.
Linkedin: shantelle-ayad
Email: shantelle.maree@hotmail.com
The design proposal for the Silver City library and cultural centre was curated to enhance the mining and cultural history of the broken hill. The form of the building is solid, raw, and continuous, yet it is broken and complex. It brought a new definition to the broken hill through innovative
and contemporary design while further enhancing what has been forgotten about the past. The choice of materials and structure are used to enhance the history while encapsulating the essence of what there to offer as what once was a mining city, also known as the Silver City.
Linkedin: mouriya-senthilkumar-
Email: mouriyasenthilkumar1@gmail.com
‘Through and Through’
The design centers around the concept of light and nature to promote sustainability and increase a sense of connection to the unique environment around Broken Hill. There are two lighting giving projections placed within the design - one which provides light from the sky and one which breathes light within. These areas subsequently also depend on the type of space and activity experienced there. Drawing on inspiration from the notion of deep earth and big sky, the design forms a layered approach, with entry and main social areas spilling into zones for
private activity. Additionally, weathering materials have been used in the design to convey a concept of time and the growth of the library with the people who inhabit it. There is also a strong emphasis on desert-type landscaping that alludes to the desert blooms and plants found within the outback. Using site-specific planting for the majority of the landscapes, the design attempts to increase a sense of place.specific planting for the majority of the landscapes, the design attempts to increase a sense of place.
Sylvia Chen
Linkedin: sylvia-chen
Instagram: @s.ch_design
Email: syl.chen8@gmail.com
Broken Hill is a place that used to be a thriving town filled with hope and confidence for the future. However, what we see now is quite the opposite ever since the depletion of resources, leading to an increasingly aging population.
Nonetheless, the city remains a place for numerous social and economic opportunities to become a livelier site. Its vast history and rich landscape are indeed
the critical factors that can propel Broken Hill into a place that was once the thriving city. It used to be.
‘For: Broken Hill’ aims to reactivate the Broken Hill city precinct through a multipurpose center that focuses on bringing together the Broken Hill community and its Indigenous people into comfortable gathering, learning, and performing spaces.
Linkedin: anoushka-thatte
Website: https://issuu.com/athatte/docs/1_portfolio_2021
Email: anoushkathatte@gmail.com
A Portal Through in Broken Hill is an architectural proposal for a new civic institution in the heart of a city with historic roots. The new library explores the charms of Broken Hill’s historic streets and laneways to connect and revitalize its community. Working in a heritage town, the proposal balances the past and the present to create a new library that respects its history while also progressing.
The intrigue and mystique of the laneways of Broken Hill are in these courtyards visible from Argent Street, inviting those
passing by to join in on community events in the Makerspace or to learn more about the history and culture of the Wilyakali people in their Keeping Place. Connecting these critical community spaces with outdoor shaded areas makes it essential for community engagement and revitalizing the town.
The proposed Portal Library is fundamentally a place for people to read at and a sanctuary where the community can foster and the town can once more come alive.