PORTAFOLIO DISEÑO DE LA VIVIENDA

Page 1

924 DISEÑO DE LA VIVIENDA PORTAFOLIO 2022-2 BRYAN MALDONADO QUISPE CÓDIGO: 20172318 DOCENTE: ENRIQUE SANTILLANA CIRIANI Facultad de Ingeniería y Arquitectura Carrera de Arquitectura - Área Académica de Construcción y Estructuras Ciclo 2022-2 UNIVERSIDAD DE LIM A

Facultad de Ingeniería y Arquitectura Carrera de Arquitectura

Alumno

20172318

Diseño de la Vivienda.

Universidad de Lima Curso Docente

Bryan Maldonado Quispe. Enrique Santillana Ciriani. 2022 - 2 Lima, Perú
DISEÑO DE LA VIVIENDA PORTAFOLIO 2022-2 SECCIÓN 924
TABLA DE CONTENIDO EC.01 EC.02 PRIMERA PARTE SEGUNTA PARTE EC 02.1 EC 01.2 EC 01.3 EC 02.2 EC 01.1 CG1/CG2/CG3 CG4/CG5/CG6 CG7/CG9/CG10 CG11 CG1/CG2/CG3 CG4/CG5/CG6 CG7/CG9/CG10 CG11 CG1/CG2/CG3 CG4/CG5/CG6 CG7/CG9/CG10 CG11 Visita Guiada a Casa Santillana. Visita Guiada a Mirones. Exposición de un capítulo
Investigación y análisis de un proyecto de vivienda construido. Escrito de un capítulo bibliográfico. 4
bibliográfico.
CR CV IC CR CV IC Código RIBA Curriculum Vitae Información del curso 5
6

DESCRIPCIÓN

que alojaban mas de una familia. En el proceso de la lectura se puede identificarlos periodos de cambio y el proceso arquitectónico para llegar a lo que hoy conocemos como un edificio de depar tamentos. En mi opinión, este capitulo nos denota que todo nace bajo una necesidad por un grupo de personas, pero que las opiniones arquitectóni cas pueden variar como generar nuevas alternati vas de edificación en el proceso.

EC.01.1 CG2/CG4/CG5/CG6/CG7/CG9/C10/CG11 RESUMEN
UN CAPÍTULO
ESCRITO DE
BIBLIOGRÁFICO.
Como apertura del ciclo universitario, la actividad inicial fue generar un resumen respecto a un ca pitulo asignado por el docente del libro La casa de la Arquitectura Moderna. En mi caso, el capi tulo fue el séptimo, el cual nos menciona sobre la evolución y la necesidad de la época industrial para obtener viviendas a menor precio y con el alojamiento de grandes cantidades de personas. En este capitulo, se pudo evidenciar los debates de una arquitectura nueva y revolucionaria, es decir, las residencias o viviendas multifamiliares EC 7

“La imagen moderna de las calles estará dominada por bloques de edificios en los que las casas estarán

Tussendijken, Rotterdam, 192o-1924 por J.J.P. Oud Manzana C, Eigen Haard, Amsterdam por Michel de Klerk. J.J.P. Oud, arquitecto.
colocadas
una distribución
8
en
de planos y masas”.

ALGUNOS MODELOS DE AGREGACIÓN

A finales del siglo XIX, la interpretación de familia fue varian do con respecto a las categorías que se lo podían asignar según la estabilidad económica con la que contaban. Esto se vio reflejado en la moda, la tecnología, el arte y la vivienda familiar. La ultima mención, se expresa en el planteamiento de Joseph H. Stubben, quien clasifica las familias en dos campos: La familia obrera, las cuales vivirían en edificios de varias plantas por su inestabilidad económica, y las familias de clase media, quienes tendrían una casa individual para sus necesidades. Si bien para la época esto no se expreso al 100%, se puede afirmar que el pensamiento de agrupar a una gran cantidad de personas compuestas por familias era un tema que estaba en conversación, debate y mejora para la sociedad.

Sin embargo, es el siglo XX donde el estilo de familia con vivienda se mezclan para dar una apertura al diseño de espacios dedicados a este grupo de personas. Este cambio inicia 40 años después del planteamiento de Stubben con el articulo “La vivienda minima en la casa sin escaleras” por Ludwig Hilberseimer, el cual comienza a proponer la fusión de casas altas con bajas en una misma fachada continua para generar un lenguaje visual con el peatón.

Si bien se estaba posicionando la configuración de fusión por Ludwig Hilberseime, en otro continente se estaba siguiendo un modelo distinto al antes mencionado. Europa estaba siguiendo la tipología de Ciudad Jardin como un modelo de desarrollo urbano de las colonias y suburbios. Un claro ejemplo, es la Colonia Obrera de Kiefhoek por J.J.P.Oud quien diseño viviendas con el estilo moderno de la época y la adopción de criterios económicos de fachada con la sociedad. En esta, se planteaba las casa unifamiliares adosadas en hilera para generar una serie de viviendas con su propio terreno, es decir, mantenerlas a todas en una altura típica para mantener el lengua de la fachada; ideología y planteamiento muy distinto al que estaba planteando Hilberseime en su articulo. Con el paso de los años, se fueron desarrollando distintas opiniones como planteamien tos urbanos y de viviendas para una mejor calidad de vida para una familia. Dentro de ellas, resalta el diseño de vivien da, en mi opinión, mas invasivo para un contexto, el bloque. Este elemento comienza a generar unidades residenciales alineadas y en altura para formar edificios compactos sin contar con dobleces y sin características particulares, es decir, bloques sin vida. En lo único que variaban, era en las alturas; con ello, se comenzó generar distribuciones ortogo nales teniendo en cuenta el terreno. No obstante la duración de esta ideología no fue tan desarrollada como las otras, pero sí dio una gran apertura a la exploración de generar mediante áreas grandes un planeamiento urbano para la vivienda y la ciudad. Es así que se desarrolla: La manzana cerrada, quien se encargara de dar continuidad al tejido urbano integrando las funciones diversas de la comunidad en su planimetría de una manera espacial y formal. Esta definición se puede evidenciar en la Manzana C por Michel

de Klerk, quien genero, en el edificio, jardines privados, equipamiento de escuela y oficina de correos para los residentes de ese espacio. Ademas de predisposicionar la manzana y dar una arquitectura urbana de orden superior en el contexto ubicado.

Es a partir de aquí que el estilo e ideología de vivienda para el contexto humano comienza a evolucionar constante mente. Uno de los que han sobrevivido hasta la actualidad es La Torre, quien brinda su origen en la disposición en altura para edificios de oficina, pero que evoluciona a edificio de viviendas en una área mínima. Este tipo de viviendas nace en Norteamérica donde los rascacielos tuvieron su origen por la sociología y economía del lugar. Por ejemplo Chelsea en NYC por Philip Hubert, primer edificio de viviendas en altura, contaba con 11 pisos y un núcleo de escaleras con ascensores en el centro de la planta; o Centuary por Jacques L. Delamarre, quien diseña estas viviendas con una reducción drástica de la superficie de cada departamento y con un bloque funcional por cocina, despensa y habitación de servicio. Eventualmente, esto se ve reflejado en Europa por Eugene Beaudoin con su bloque de edificios Cite de la Mutte, en el cual situaba 5 bloques paralelos con torres de 16 pisos entre cada bloque.

Pero uno de los esquemas programáticas mas desarrolla dos se situó en Rotterdam por arquitectos Holandeses; estos esquemas de agrupación serian, según el libro La casa de la arquitectura moderna por Manuel Martín Hernández, los mas ricos del siglo XX en cuanto a vivien das arquitectónicas. Esta mención se ve reflejada en Tussendijken por el arquitecto J.J.P. Oud, quien propuso elevar la edificacion ininterrumpida de la calle al nivel de imagen urbana reconocible haciendo que los bloque de viviendas ocupen el perímetro de las manzana.Ademas de generar una disposición de alturas no tan invasivas, es decir, no mas de 4 pisos, los cuales estarían compuestos por los 2 primeros niveles con una sola planta y los siguientes con 2 alturas.

En conclusión, la búsqueda de una distribución de vivien das adecuadas para un grupo de persona siempre ha sido un tema de estudio en lo arquitectónico, económico y social. Esto se ve reflejado durante todo el capitulo, el cual nos guía a ver la evolución constante de la vivienda bajo los criterios y necesidades que tenían las familias en esa época. Si bien hay algunas que hoy en día prevalecen, hay otras que ya no continuan con la misma estructura planteada pero sí evolucionando para algo mejor. Personalmente, creo que le autor quiso mostrarnos aquel lo, es decir, que la vivienda es un material de investigación constante que prevalece hasta hoy en día por la sociedad, la economía y la necesidad de buscar un buen lugar donde vivir.

9
CAPITULO 07: RESUMEN. LIBRO: LA CASA EN LA ARQUITECTURA MODERNA. ESCRITO POR: BRYAN EDU MALDONADO QUISPE.
10

DESCRIPCIÓN

Como continuación de la actividad anterior, se asigna a dos estudiantes que hayan leído el mismo capitulo, la exposición de este frente a sus compañeros. Si bien resulta que la actividad es rápida y sencilla, para mi compañera y yo fue un reto poder manifestar todo lo mencionado en la lectura hacia nuestros la clase, ya que cada detalle de este contaba la cronología de poder

obtener, lo que hoy conocemos como viviendas multifamiliares en nuestras vidas. Para nosotros era importante mencionar la historia de una acti vidad que hoy en día lo vemos común y corriente en nuestras vidas.

EC.01.2 CG2/CG4/CG5/CG6/CG7/CG9/C10/CG11 EXPOSICIÓN AUDIOVISUAL DE UN CAPÍTULO BIBLIOGRÁFICO.
EC 11

Algunos Modelos de Agregación

Poner Juntas

01
C a p í t u l o V I I 02 A l g u n o s m o d e l o s d e A g r e g a c i ó n
Brunella Ciccarelli / Bryan Maldonado
12

Joseph H. Stübben

Puso las bases para el debate de la vivienda en alquiler en altura o unifamiliar

Las familias de clase baja vivían en casas en alquiler, mientras que la clase media en unifamiliares

"La casa en alquiler es más indispensable que la casa individual"

Se debía enfocar en la arquitectura de el modelo casa de alquiler para así mejorar varias condiciones de vida y urbanísticas

Siguió en el debate acerca de que modelo de vivienda era mejor para la vivienda

En su artículo, proponía cambiar la " o " por la " y "

Para ello, propuso las casa combinadas debido a factores económicos y de mejora en lo urbano

Tenía tres dispociones elementales para estas unidades:

Lud Wig Hilberseimer

La hilera en serie

Casa en L Vivienda aislada Problemas de aislamiento y solamiento Mayores ventajas sin aumentar la simensión de la fachada significativamente

Estos debates ayudaron a las investigaciones más productivas del siglo XX hasta finales de los años 1940

03 A l g u n o s m o d e l o s d e A g r e g a c i ó n .
04 A l g u n o s m o d
l o s d
A g r e g a c i ó n .
e
e
La que mejor funcionaría y con la estandarizaión e industrialización a gran escala reduciría sus costos
13

05 A l g u n o s m o d e l o s d e A g r e g a c i ó n

06 A l g u n o s m o d e l o s d e A g r e g a c i ó n

Casas Adosadas

Las Casas Adosadas

1

Uno de los modelos más desarrollados a lo largo de las primeras décadas del siglo XX

Unidas por sus muros, se repetía cada vivienda como tipo medianera 2 Este tipo de viviendas permitía que cada propietario disponga de su propio terreno

3.

Además de ser económica, este conjunto daba una mejor imagen urbana

14
4

J.J.P. Oud

Desarrolló ideas del desarrollo urbano como: la organización de bloques y manzanas, la tecnología constructiva y la organización de planta de las viviendas modernas

Nunca olvidó los criterios estéticos para la definición de las fachadas

Se alineó a los alemanes con:

El aprovechamiento de las técnicas constructivas

La estandarización de determinados componentes

Criterios económicos como la reducción de la dimensión de la fachada

Es la obra que le dio reputación como arquitecto de la casa moderna

Debía ser económica a pesar de estar dirigida para familias con miembros de 6 8 personas

Se aplicó los métodos de producción y estandarización conocida como "Casa Ford"

Se proyectó una planta compacta sin sobrantes

En la primera planta, se encontraba un vestíbulo pequeño, la sala, cocina y un cuarto de servicio En la segunda se encontraban los dormitorios

Para que resultara ser económicos, existía una sola escalera para la cubierta y servicios, además de un solo conducto para la chimenea e instalaciones

Alineadas a lo largo de calles paralelas y dejarian jardines interiores

07 A l g u n o s m o d e l o s d e A g r e g a c i ó n
08 A l g u n o s m o d e l o s d e A g r e g a c i ó n
La Colonia Obrera Kiefhoek
15

La Zeilenbau Bloques Lineales

A l g u n o s m o d e l o s d e A g r e g a c i ó n

10

Otto Haesler

A l g u n o s m o d e l o s d e A g r e g a c i ó n

Pionero en la adopción de la construcción en hilera como solución de los SiedLungen (asentamientos)

09
16

Italienischer Garten

Es un tipo de agrupacción la cual desarrollaba una intervención de tipo urbano

Estas filas eran colocadas a una distancia óptima para una mejor isolación y ventilación

La distancia deberían ser no menor a dos veces la altura del bloque

Se convirtió en modelo para el nuevo Frankfurt de Ernst May

Georgsgarten

11 A l g u n o s m o d e l o s d e A g r e g a c i ó n
12
17

Colonia Rothenberg

Con el ejemplo anterior se desarrolló un estudio de modelos de vivienda, la cual, añadirían habitaciones en función al número de miembros 14 A l g u n o s m o d e l o s d e A g r e g a c i ó n

A l g u n o s m o d e l o s d e A g r e g a c i ó n .

El Bloque

13
18

15 A l g u n o s m o d e l o s d e A g r e g a c i ó n

El Bloque

Unidades residenciales alineadas y en altura Edificios compactos No dobleces y sin diferencias

16 A l g u n o s m o d e l o s d e A g r e g a c i ó n

La Manzana Cerrada

Gropius y Haesler COLONIA DAMMERSTOCK
19

17

La Manzanas Cerrada:

La Manza C / Klerl

planta triangular gran patio de manzanas semipublicas

Kilometrico / Karl Marx Hof

mas de 1 300 habitantes grandes superficies jardinadas

A l g u n o s m o d e l o s d e A g r e g a c i ó n

18

La Torre

A l g u n o s m o d e l o s d e A g r e g a c i ó n

20

La Torre

A l g u n o s m o d e l o s d e A g r e g a c i ó n .

20

Las Unidades Complejas

A l g u n o s m o d e l o s d e A g r e g a c i ó n

19
Philip Hubert CHELSEA Jacques L Delamarre CENTUARY Eugene Beaudoin CITE DE LA MUTTE
21
22

EC.01.3

VISITA GUIADA A MIRONES. DESCRIPCIÓN

Una de las primeras actividades que se realizaron después de la exposición del capitula asigna do fue la visita guiada a una de las residencias mas conocidas y con un buen plan ejecutado en la época en la que se realizo. Estas son las unidades vecinales de Mirones, las cuales están hechas para la conciliación de un gran grupo de gente. Este lugar mostró un inicio de la construc

ción de arquitectura distinta peruana que fue un impacto, hasta el día de hoy , por su distribución como su programa emplazado. Se menciona su programa, ya que cada unidad mantiene una zona recreativa, zona de comercio, zona clínica y hasta zona de seguridad que no es común en contrar en la ciudad de Lima hoy en día.

EC 23
24
25
26

EC.02.1

VISITA GUIADA A LA CASA SANTILLANA.

DESCRIPCIÓN

En la segunda parte del semestre, se decide realizar otra visita guiada a la Casa Santillana en Punta Negra realizada por el arquitecto Ciriani a mediados de 1998. Esta casa es la expresión latente de una arquitectura hecha con una intención desde el exterior y el interior. En la visita, el arquitecto Santillana nos explico las intenciones que tenia la casa sobre el terreno; así como, la historia de la construcción de la. Personalmente,

fue una experiencia enriquecedora en cuanto a conocimientos porque se pudo expresar lo aprendido en el ciclo con otros anteriores sobre el modernismo en la vivienda.

Esta casa logra evidenciar la extracción de blo ques macizos para la liberación de vistas direc tas con intención hacia lo mas importante: el mar.

EC 27
28
29
30
EC.02.2 CG2/CG4/CG5/CG6/CG7/CG9/C10/CG11 INVESTIGACIÓN Y ANÁLISIS DE UN PROYECTO DE VIVIENDA CONSTRUIDO.
trabajo final del ciclo, se realiza la investigación y analisis de un proyecto de vivienda realizado en cualquier parte del mund, en este caso, se escogio la Casa Equis, hecho por los arquitectos Jean Pierre Crousse
Sandra Barclay. TF 31
DESCRIPCIÓN Como
y

CASA EQUIS

& Crousse Architecture

La casa Equis es una de las tres casas diseñadas por el estudio de arquitectura Barclay & Crousse. El proyecto cuenta con una distribución y emplazamiento con el terreno que lo ha hecho ganar varios premios por su alta calidad arquitectónica y personal.

Barclay
32

FICHA TÉCNICA:

ARQUITECTOS. LOCALIZACIÓN. AÑO DE CONSTRUCCIÓN. AREA CONSTRUIDA.

S. Barclay – J.P. Crousse. Cañete, Peru. 2003. 174 m2. Seminuevo. Vivienda.

ESTADO ACTUAL. EQUIPAMIENTO.

33

BARCLEY & CROUSSE

ARCHITECTURE

Barclay & Crousse Arquitectos nace en 1994 en la ciudad de Paris para que posteriormente en el 2006 abra una sede en Lima, perú. Ambos arquitectos fueron educados en su país de origen con la profesión de arquitectura.

Así mismo ambos viajan al continente Europeo para enriquecer sus aprendizajes y mejorarlos en el ámbito correspondiente adquiriendo una gran influencia de Le corcusir como otros arquitectos moder nistas en sus propios diseños. Sin embargo, hay una esencia que transmite su arquitectura y que es muy predominante a pesar de los estudios previos. En otras palabras, las grandes referencias perua nas prehispánicas que posicionan en cada uno de sus proyectos y que los hacen únicos y diferenciados al resto.

Actualmente, la empresa ejerce laboralmente en ambos países y su arquitectura ha sido reconocida internacionalmente posicionándola en una de los mejores estudios de arquitectos en el Perú y siendo tomado como referentes de varios estudiantes por sus diseños.

Algunos de sus reconocimientos son los siguiente: el Premio Mies Crown Hall of the Americas 2018 y el primer Premio Oscar Nieme yer. Además, de ser reconocidos por su trabajo por el Comité Inter nacional de Críticos de Arquitectura (CICA) con el Premio América Latina 2013 y el Premio Nacional de Arquitectura Peruana en 2014 y 2018.

Sandra Barclay

Nace en 1967 en Lima (Perú) con un padre arquitecto y construc tor que lo ayuda en su proceso a temprana a edad al gusto por la obra en construcción. Entre 1986 y 1990 estudia Arquitectura en la Universidad Ricardo Palma de Lima (URP) y migra para 1990 a Francia para estudiar y graduarse como arquitecta en la Escuela de Arquitectura de París-Belleville. Uno de sus logros personales es el reconocimiento de su Tesis que el 1993 recibe el Premio Robert Camelot al mejor diploma, otorgado por la Academia de Arquitec tura de Francia. De sus etapas formativas resalta a dos arquitectos: Juvenal Baracco y Henri Ciriani, quienes le emplazaran una forma distinta de hacer arquitectura desde el detalle.

Al inicio de sus estudios en la URP conoció a Jean Pierre Crousse, actualmente su marido y socio y tras ganar juntos el segundo pues to en el Concurso Europan en la ciudad de Le Havre y el concurso para la Reestructuración del Museo de la misma ciudad -asociados a Laurent y Emmanuelle Beaudouin- abrieron en 1994 su propia oficina en París con el nombre Barclay & Crousse.

Actualmente, trabaja en su estudio de Lima y ejerce como docente en la Pontifica Universidad Catolica del Perú.

34

Jean Pierre Crousse

Nace en 1963 en Lima (Perú) con un padre arquitecto que lo influen cia y genera un enfoque hacia la construcción como el diseño arqui tectónico. Entre 1986 y 1990 estudiA Arquitectura en la Universidad Ricardo Palma de Lima (URP) y migra para 1990 a Francia donde estudia con Enrique Ciriani. Es a partir de aqui que nace y comienza a generar una intención de arquitectura con Barclay quedando 17 años en el continente Europeo hasta el ofrecimiento de generar una propuesta de diseño para una serie de casas en la playa peruana que cambiaria el rumbo de su carrera y su reconocimiento.

En 2006 inició sus estudios de posgrado en la Maestría en Paisaje e Infraestructura Contemporánea en la Universidad Diego Portales de Chile, obteniendo su título de Máster en 2013. Actualmente, trabaja en su estudio de Lima y ejerce como docente en la Pontifica Univer sidad Catolica del Perú.

REFERENTES:

“En cada proyecto, repasamos el proceso del croquis a la maqueta, al dibujo preciso y luego, a la realidad de cada edificio”
Museo de Sitio de la Cultura Paracas Paracas-Perú Casa Huayoccari Cusco-Perú
35
Instalaciones Universitarias UDEP Piura-Perú

EMPLAZAMIENTO: CIUDAD.

El proyecto fue encargado desde Peru cuando ambos arquitec tos se encontraban de Francia, consistía en la ejecución de 3 casas de playas que le darían el pie y el posicionamiento arqui

PROVINCIA.

La Casa Equis se encuentra ubicada en la provincia de Cañete. Los arquitectos al denotar aquello estudiaron y mencionan que el desierto peruano es uno de los más áridos del mundo, su clima no es extremo. Las temperaturas oscilan entre los 14°C (mínima en invierno) y los 29°C (máxima en verano), con muy pocas va riaciones entre el día y la noche debido a un alto porcentaje de humedad. Al denotar aquello comienzan a pensar en las aper turas de este dentro de la vivienda como su emplazamiento yen el terreno.

TERRENO.

El terreno cuenta con una inclinación a la parte posterior con respecto a la calle, ya que éste va en pendiente hacia el nivel del mar generando una topografía semiempinada; ademas su clima no es ni frió ni caliente y cuenta con casi nada de vegetación a su alrededor, los arquitectos buscaron integrar la obra al contexto que encierra el terreno, tratando de modificar lo menos posible la topografía del terreno, e integrando colores y texturas que se asemejen a las de dicho ambiente.

36

El Concepto del proyecto inicia con la intención de “domesticar” el orden absoluto y eterno del paisaje en par ticular, sin negarlo o traicionarlo, es decir, sin hacer que pierna el protagonismo que se merece con su entorno. Es por ello, que comienzan a crear una intimidad entre el terreno, proyecto y usuario para la vivencia diaria. Ellos lo logran integrando la vivienda con la inmensidad y la abstracción del paisaje costero peruano.

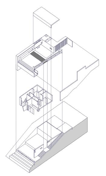
CONCEPTO: COMPOSICIÓN:

La forma en que el estudio inicia a componer el proyecto es través de la imaginación de un volumen abstracto y simple cuyos límites es tán definidos por las normas de construcción, pero con el concepto y el estudio del lugar, comienzan, durante el proceso, a excavar la materia poco a poco para comenzar a des cubrir el corazón del proyecto como si fueran las ruinas de una región.

El resultado de este ejercicio genero la fusión de los espacios exteriores e interiores en un espacio de recorrido y continuo hacían bor de infinito dividido entre los espacios íntimos de la vivienda y el mar que marcan con lineas rectas y directas.

37

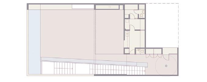
PLANIMETRÍA:

PRIMER NIVEL.

La vivienda tiene una composición de apertura directa; desde el ingreso a la vivienda se puede percibir la inten ción de los arquitectos de poder demarcar la naturaleza intangible del lugar. Es por ello que nos presenta una terraza amplia y compuesta hacia una vista directa al mar que se mimetiza e invita con las lineas ortogonales del proyecto y la losa que te lleva hacia el infinito océano. Dentro de este primer nivel también se puede identificar baño de visita, cocina, lavandería y cuarto de servicio.

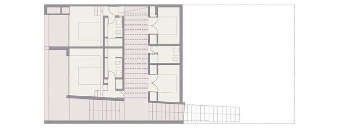
SEGUNDO NIVEL.

Al tener una tipografía en descendencia hacia el mar, los arquitectos aprovechan esta caída para generar un flujo de escaleras directas que te llevan hacia los dormitorios; estos están escondidos bajo la terraza social superior para que no interrumpa con la visual hacia mar que es el remate de las escaleras. Este flujo también logra evi denciar las 3 capas y las intenciones del estudio con el proyecto pues en el mismo recorrido se logra visualizar lo natural y lo hecho por el humano (la piscina) combinarse sin que uno restringe el otro.

38

LEYENDA:

Reunirse. Aseo. Descanso. Alimentarse.

39
40

CONCLUSIÓN Y REFLEXIÓN

La casa Equis es un claro ejemplo de una arquitectura pensada desde la sensación, importancia de la historia y el estudio del lugar de un proyecto para poder ejecutar una obra altamente elaborada y con intención.

Dicho esto, es necesario generar un recalco hacia una arquitectura de la cual no se esta generando hoy en el Perú o es muy poco observar. El estudio intenta mos trarnos, bajo mi opinión, el poder generar una vivienda no solamente funcional y de uso sino una vivienda que tenga una experiencia que contar desde la apertura de esta. Cómo se menciono anteriormente, Barclay & Crousse, son dos arquitectos que enfocaron su concepto en la idea de poder proyectar una edificación intima con su propio entorno y la cultura del lugar.

Esta intimidad que generan , para mí, es dulce y rica en expresión, ya que nos de muestra la unión de lo construido con lo natural combinándose para darnos una conexión visible e invisible para el ojo humano. Los remates y encuentros de cada espacio tienen una intención teatral y de contar que no es necesario mencionarlo sino que se percibe hasta en las fotos.

Dentro de lo investigado respecto a esta casa, me es necesario mencionar, su com posición y la forma de llegar de lo lleno con lo extraído a una arquitectura conec tada con su espacio. He aprendido con esta casa y la Casa Santillana que muchas veces la mejor forma de poder empezar a diseñar puede iniciar desde un bloque y su extracción. Esta intención que el estudio tuvo al excavar también se denoto por Ciriani que la Casa Santillana. Si bien no he tenido la oportunidad de visitar la Casa Equis, no me cabe duda que ambas componen una misma intención y es la de conectar íntimamente con su entorno, en este caso, el mar.

El proyecto muy aparte de mostrarnos la intimidad nos muestra el estudio del color y las texturas para generar una calidez en el espacio. La intención de utiliza un color especifico para que se mimetice con la arena o un color magenta para resaltar un espacio, es parte de lo que genera que este proyecto haya ganado más de un pre mio, ya que la conexión deja de ser táctil o sensorial y se agrega lo visual.

En mi opinión, la Casa Equis es una obra arquitectónica que demuestra un proyecto bien ejecutado desde un estudio e intención inicial para mantenerse hasta el final. No me cabe duda que el lograr una sensación de conexión directa hacia el mar fue un reto, pero también lo llevo como enseñanza para enfocarme que en lo menos se puede sacar mucho más sin necesidad de ornamentarlo sino enfocándolo en una intención y concepto

41
42

criterios RIBA

RIBA busca elevar la calidad de la educación arquitec tónica, a través del reconocimiento y apoyo a la expe rimentación, innovación, y relevancia profesional de los cursos, las metodologías de enseñanza, y los resulta dos académicos.

Los Criterios de Validación RIBA, ofrecen una base para el diseño curricular, esto es, para lograr las habilidades teóricas y prácticas necesarias para arquitectos que cada vez ocupan roles más diversos dentro de una economía globalizada.

Conocimiento de habilidades para crear diseños arquitectónicos y satisfacer los requerimientos técnicos estéticos.

Conocimiento adecuado de las historias y las teorías de arquitectura y las rela cionadas al arte, la tecnología y las ciencias humanas.

Conocimiento de las bellas artes, como una influencia sobre la calidad de dise ño arquitéctonico.

Conocimiento adecuado del diseño urbano, planeamiento y las habilidades re lacionadas al proceso de planeamiento.

Compresión de la relación entre las personas y las edificaciones con su medio ambiente y la necesidad de relacionar las construcciones y los espacios entre estas y las necesidades humanas y su escala.

Compresión de la profesión de arquitectura y rol de la arquitectura en la so ciedad, en particular en la preparación de proyectos que tenga en cuenta los factores sociales.

Conocimiento adecuado del diseño urbano, planeamiento y las habilidades re lacionadas al proceso de planeamiento.

Conocimiento adecuado de las historias y las teorías de arquitectura y las rela cionadas al arte, la tecnología y las ciencias humanas.

Conocimiento de las bellas artes, como una influencia sobre la calidad de dise ño arquitéctonico.

Conocimiento adecuado del diseño urbano, planeamiento y las habilidades re lacionadas al proceso de planeamiento.

Conocimiento adecuado del diseño urbano, planeamiento y las habilidades re lacionadas al proceso de planeamiento.

CG4 CG5 CG6 CG7 CG8 CG9 CG10 CG11
índice CG1 CG2 CG3
43
44

EDUCacIóN:

BRYAN MALDONADO QUISPE

EXPERIENCIA PROFESIONAL:

ARCAILAB S.A.C. - Lima, Perú [Noviembre del

Prácticas de elaboración planimétrica de arquitectura y especialidades en Archicad 25. Además, de la investigación y elaboración de modelados 3D de proyectos de vivienda de interiores y exteriores.

Logros:

+ Coordinación y participación activa en el proceso de anteproyecto y proyecto para la elaboración planimétrica.

+ Dominio y constante coordinación con el equipo en el programa Archicad 25 para la adecuada elaboración de proyectos.

cursos:

OTROS ARQUITECTOS S.A.C. - Lima, Perú [Octubre del 2021 - Octubre del 2021]

Prácticas de modelado 3D y levantamiento en el programa Archicad 23. Desarrollo y elaboración de espacios exteriores, interiores y planimetria.

Logros:

+ Responsabilidad y puntualidad en el área de espacios exteriores del proyecto.

+ Coordinación constante con el equipo de trabajo para el cumplimiento de logros del proyecto por la modalidad de homeoffice.

REDIEBRY S.R.L. - Lima, Perú [Junio del 2020 - Julio del 2020]

Prácticas de supervisión de obra y calidad de entrega de proyectos. Desarrol lo y elaboración de contenedores a baños y duchas industriales.

Logros:

+ Observación en acabado y entrega optimas de cada proyecto realizado.

+ Elaboración de procedimiento y seguimiento de ejecución de obra con documentación de entrega al supervisor.

Mountain Creek Resort - New Jersey, E.E.U.U. [Diciembre del 2018 - Marzo del 2019]

Empleo de Operador de ski lift (Lift Operator) con distribución y organización del público para la mayor eficiencia de la zona recreativa.

+ Dominio comunicativo, expresivo y escrito del

RECONOCIMIENTOS:

2021 - Marzo del 2022]
Estudiante de arquitectura en octavo ciclo de la Universidad de Lima; actualmente, en el quinto superior. Bilingüe: Ingles y dibujo arquitectónico, diseño y producción de elementos gráficos, renderizado, fotografía y Interesado en la ejecución de proyectos, en el área de diseño, el área de urbanismo y la supervisión en obra. Experiencia en diseño de contenido grafico, modelados 3D, levantamientos planimétricos.
Proactivo, creativo y organizado.
Correo:
Cellphone: (+51) 957305360 Linkedln: https://n9.cl/l69o
Lima, Peru Universidad de Lima Quinto superior [2017 - Actualidad] Primaria & Secundaria: Lima, Peru Colegio Parroquial Nuestra Señora de Montserrat Tercio superior
2015]
bryanmaldonadoarq@gmail.com
Pre-Grado:
[2001 -
Ingles
+ Manipulación y responsablidad
cargo
clientes.
en el país.
de herramientas del
para la mayor la seguridad de los
Logros: Lectura de planos estructurales SENSICO [Junio de 2020 - Julio de 2020] Archicad 22 + Artlantis Universidad Nacional de Ingenieria [Enero
2020 -
de 2020] SketchUp + Vray + Illustrator + Indesign Ilumina Arquitectura [Junio de 2020 - Julio de 2020] PROGRAMAS: APTITUDES: + A. Illustrator + A. Photoshop + A. Indesign + A. Lightroom + Organización + Trabajo en equipo + Investigación + Creatividad + Proactivo + Diseño gráfico + Autocad + Archicad 25 + Revit + Sketchup + Lumion + Twinmotion + Vray + Microsoft Office + Proyecto Final del curso Proyecto de Arquitectura VII / ULima
para Exposición
+ Proyecto Parcial del curso Proyecto de Arquitectura III / ULima
+ Proyecto Parcial del curso
/ ULima
+ Proyecto Parcial
curso
45
de
Febrero
[Seleccionado
del 2021].
[Seleccionado para Exposición de profesores del 2018].
Proyecto de Arquitectura II
[Seleccionado para Exposición del 2017].
del
Proyecto de Arquitectura I / ULima [Seleccionado para Exposición del 2017].

INFORMACIÓN DEL CURSO

2022 - 2 CURSO.

Diseño de la Vivienda. Enrique Santillana Ciriani.

DOCENTE. SUMILLA.

Diseño de la Vivienda es una asignatura teórica-práctica, destinada a entender el problema de la vivienda social y las principales respuestas urbanas arquitectónicas.

OBJETIVOS GENERALES. OBJETIVOS ESPECÍFICOS.

Adquirir una comprensión holística de las nuevas formas de habitar la vivienda.

1. Adquirir mediante el análisis de la historia y la teoría los aspectos espaciales, sociales, tecnológicos y tipológicos de la arquitectura y el urbanismo, para el estudio a futuro de las tipologías de vivienda.

2. Analizar la influencia del diseño y el desarrollo de ciudades del pasado y del presente en el medio construido con temporáneo, entendiendo la importancia que representa la vivienda en la configuración de la ciudad, como un hecho urbano – social y no como una unidad per se.

3. Revisar críticamente los precedentes pertinentes a la función, organización, estructuración y estrategia tecnológica de las propuestas de diseño de la vivienda.

4. Desarrollar la capacidad de abordar el diseño de la vivienda desde la perspectiva del uso, las necesidades y aspiraciones de los usuarios de las edificaciones.

5. Objetivos de Desarrollo Sostenible – ODS:

- Objetivo 5: Lograr la igualdad entre los géneros y empoderar a todas las mujeres y niñas.

- Objetivo 10: Reducir la desigualdad en y entre los países

- Objetivo 11: Lograr que las ciudades sean más inclusivas, seguras,resilientes y sostenibles.

46

Autor: Bryan Edu Maldonado Quispe Correo: bryanmaldonadoarq@gmail.com Cel.: 957305360

Autor: Bryan Edu Maldonado Quispe Correo: bryanmaldonadoarq@gmail.com Cel.: 957305360

Turn static files into dynamic content formats.

Create a flipbook
Issuu converts static files into: digital portfolios, online yearbooks, online catalogs, digital photo albums and more. Sign up and create your flipbook.