







HOTEL SUM A Q QOCH A PIUR A Y








INTEGRANTES



DANITZA GRACIELA TIMOTEO CAMPOS
U 19208373

MARIA CRISTINA GALVEZ MOROCHO
U 19208373
MIRANDA MARIA RAMIREZ QUISPE
1623100

XIMENA ARACELLI CABRERA LLAUCE
U 18308414
JACKELIN MARGOTH CONDORI MAMANI
U 19204548
HOTEL SUM A Q QOCH A PIUR A Y
DANITZA GRACIELA TIMOTEO CAMPOS
U 19208373
MARIA CRISTINA GALVEZ MOROCHO
U 19208373
MIRANDA MARIA RAMIREZ QUISPE
1623100
XIMENA ARACELLI CABRERA LLAUCE
U 18308414
JACKELIN MARGOTH CONDORI MAMANI
U 19204548
Í N D I C E
0 1 0 3 0 2 0 4 D A T O S G E N E R A L E S
UBICACIÓN - VIAS DE ACCESO - CLIMA
C O N C E P T O - L A N D A R T
CONCEPTUALIZACIÓN - REFERENTE - LANT ART
P U N T O D E P A R T I D A
ESTRATEGIAS - MATERIALIDAD - VEGETACIÓN DEL LUGAR
N O R M A T I V A - P R O G R A M A A R Q U I T E C T O N I C O
NORMA A030 HOSPEDAJE-NORMA A120 ACCESIBILIDAD Y ESPECIFICACIONES - MINCETUR
0 5 D I A G R A M A S D E L P R O Y E C T O
ANÁLISIS DE MATRIZ DE RELACIONES ESPACIALES - ORGANIGRAMA ARQUITECTÓNICO
0 6 A N Á L I S I S A N T R O P O M É T R I C O Y E R G O N Ó M I C O
MEDIDAS CORPORALES - ESTUDIO DE CONDICIONANTES ESPACIALES
0 7 A C T I V I D A D E S - M A Q U E T A 3 D
MASTER PLAN - TRATAMIENTO DE ACTIVIDADES INTERIORES Y EXTERIORES - VISTAS 3D
D A T O S G E N E R A L E S
DISTRITO DE CHINCHERO
SE ENCUENTRA UBICADO EN LA PROVINCIA DE URUBAMBA,DEPARTAMENTO DEL CUSCO
NORTE: DISTRITO DE HUAYLLABAMBA
SUR: DISTRITO DE CACHIMAYO
ESTE: DISTRITOS DE CUSCO, COYA Y CALCA
OESTE: DISTRITOS DE ANTA Y MARAS
POBLACIÓN: 10477 HAB
TEMPERATURA:
MES MÁS CÁLIDO DEL AÑO EN CHINCHERO ES NOVIEMBRE CON UNA TEMPERATURA PROMEDIO DE PARA DESDE HASTA DESDE HASTA
DIRECCIÓN DEL VIENTO:
EL MES MÁS CALMADO ES ABRIL, CON VIENTOS A UNA VELOCIDAD PROMEDIO DE 6.9 KM/H.
LA DIRECCIÓN DEL VIENTO PROMEDIO POR HORA PREDOMINANTE EN CHINCHERO ES DEL NORTE DURANTE EL AÑO.
EL PERIODO DEL AÑO SIN LLUVIA DURA 4.6 MESES Y EL MES CON MENOS LLUVIA EN CHINCHERO ES JULIO, CON UN PROMEDIO DE 3 MILÍMETROS DE LLUVIA.
C O N C E P T O - L A N D
CHINCHERO ES UN LUGAR MUY RECONOCIDO INTERNACIONACIONALMENTE POR SU TEXTILERÍA,ADEMAS TIENEN UN VALOR ANCESTRAL MUY IMPORTANTE, YA QUE SIGUEN CON LAS TRADICIONES MILENARIAS COMO EL USO DE LA PIGNACIÓN NATURAL Y LA SIMBOLOGIA ANDINA.
El Tambo del Inka, un establecimiento de lujo ubicado en el Valle Sagrado de los Incas, es el único hotel de Urubamba que tiene una estación de tren privada con conexiones a Machu Picchu. El establecimiento cuenta con piscina y spa.
Las habitaciones son elegantes y presentan tejidos de la región y un diseño típico local. Todas disponen de balcón privado con vistas al entorno natural
C O L C A L O D G E ( A R E Q U I P A )
Este alojamiento es ideal para pasar un buen momento de relajación, alejado del estrés de la ciudad. Ubicado a orillas del río Colca, cuenta con un diseño inspirado en las antiguas construcciones que datan desde antes de era incaica, incluyendo barro, piedra y paja en la construcción de sus instalaciones.
Plaza la luna 5
Espacio de convergencia,en forma circular y rodeado por habitaciones
P U N T O D E P A R T I D A
BUSCAMOS LA COENXCION DE TODOS LOS AMBIENTES, LO CUAL SE LOGRA MEDIANTE LOS CAMINOS QUE GIRAN EN TORNO A LA PLZ CENTRAL
SE PROPONE ACTIVIDADES
CERCA A LA LAGUNA CON EL FIN DE LOGRAR QUE EL HUESPED ENCUENTRE LA PAZ VIENDO LA LAGUNA
COMO PUNTO CENTRL SE ENCUENTRA LA PLAZA, LA CUL DISTRIBUYE REPARTE A LOS DEMAS AMBIENTES DEL HOTEL.
EN TODOS LOS AMBIENTES SE PRIORIZA QUE LA VISUAL ATRYENTE DEL HOTEL SEA EN DIRECCION DE LA LAGUNA DE PIURAY.
CHINCHERO ES UNO DE LOS POCOS SITIOS EN DONDE PARECE QUE EL TIEMPO NO PASA, YA QUE LAS TRADICIONES Y LA CULTURA INCA AUN PERSISTE.
MATERIAL PREDOMINANTE DE TECHOS SON LAS TEJAS DE BARRO Y ADOBE
MATERIAL REFERENTE DEL CAMINO DEL INCA Y MUROS SON LAS PIEDRAS
MATERIAL PREDOMINANTE DE PAREDES ES EL ADOBE
VIVIENDA AGROPECUARIA (PRESENTA PATIOS CENTRALES)
VIVIENDA PECUARIA (LAS HABITACIONES DE VIVIENDA ESTAN DISPERSAR)
MATERIAL COMO LA MADERA UTILIZADO PARA MARCOS DE LAS VIVIENDAS.
EN CHINCHERO UTILIZAN TECHOS DE DOS AGUAS POR EL CLIMA QUE PRESENTA, YA QUE EN EL DISTRITO SE EVIDENCIA 7 MESES DE LLUVIA Y SOLO 5 MESES DE DIAS CLUROSOS. 1 2 3 4
ÁRBOL QUEÑUAL
QUEÑUAL EL ARBOL NATIVO PARA HACER FRENTE A LA ESCASES DEL AGUA, ASI MISMO SU AROMA FUNCIONA BIEN PARA EL TEMA DE RELAJAMIENTO DENTRO DE AMBIENTES O AL AIRE LIBRE. ES FUENTE DE LEÑA Y LA MADERA SE PUEDE UTILIAR PARA LOS TIPOS DE TEJIDOS Y LA CORTESA SIRVE OCMO UN TINTE NATURAL.
N O R M A T I V A - P O G R A M A
A R Q U I T E C T O N I C O
REQUISITOS MINIMOS OBLIGATORIOS PARA UN ESTABLECIMIENTO
DE HOSPEDAJE CLASIFICADO COMO HOTEL
REQUISITOS MÍNIMOS
INGRESO DE HÚESPEDES(PARA USO
EXCLUSIVO DE LOS HÚESPEDES, SEPADADO DEL INGRESO DE SERVICIO
RECEPCIÓN Y CONSERJERÍA
COCINA
COMEDOR
BAR
CAFETERIA
HABITACIÓN(ÁREA MINIMA EN m2)
SIMPLE
DOBLE
SUITE(SALA INTEGRADA AL DORMITORIO)
SUITE(SALA SEPARADA DEL DORMITORIO)
SERVICIOS HÍGENICOS ( DENTRO DE LA HABITACIÓN)
TIPO
ÁREA MÍNIMA (m2)
CLOSET-GURDARROPA(DENTRO
SERVICIOS Y EQUIPOS(TODAS LAS H.)
SISTEMA DE VENTLACIÓN
AGUA FRÍ Y CALIENTE
SISTEMA DE COMUNICACIÓN TELEFONICA
ASENSORES
ASENDORES DE USO PÚBLICO
ASENSOR DE SERVICIO DISTINTO A LOS DE USO PÚBLICO
ALIMENTACIÓN ELÉCTRICA E EMERGENCIA
ESTACIONAMIENTO
ESTACIONAMIENTO PRIVADO Y CERRADO (% POR EL N° DE HABITACIONES
ESTACIONAMIENTO FRONTAL
SERVICIOS BÁSICOS DE EMERGENCIA
AMBIENTES SEPARADOS PARA EQUIPOS DE GENERACIÓN DE ENERGIA ELECTRICA
SERVICIOS HÍGENICOS DE USO PUBLICO
OBLIGATORIO
OBLIGATORIO PARA TINAS-DUCHAS-LAVADO
HABITACION Y BAÑO
OBLIGATORIO A PARTIR DE 4 PLANTAS
OBLIGATORIO A PARTIR DE 4 PLANTAS
OBLIGATORIO
OBLIGATORIO
OBLIGATORIO PARA TINAS-DUCHAS-LAVADO
HABITACION Y BAÑO
OBLIGATORIO A PARTIR DE 4 PLANTAS
OBLIGATORIO A PARTIR DE 4 PLANTAS
OBLIGATORIO
OBLIGATORIO
OBLIGATORIO PARA TINAS-DUCHAS
HABITACION
OBLIGATORIO A PARTIR DE 4 PLANTAS -
OBLIGATORIO
OBLIGATORIO
OBLIGATORIO
OBLIGATORIO
OBLIGATORIO OBLIGATORIO OBLIGATORIO
OBLIGATORIO
DIFERENCIADOS POR SEXO.CONTAR MÍNIMO 1 LAVATORIO-1 INODORO
SERVICIO DE TELÉFONO PÚBLICO
ZONA DE MANTENIMIENTO-DEPOSITO
OFICIO(S)
OBLIGATORIO
DIFERENCIADOS POR SEXO.CONTAR MÍNIMO 1 LAVATORIO-1 INODORO
OBLIGATORIO
DIFERENCIADOS POR
SEXO.CONTAR MÍNIMO 1 LAVATORIO-1 INODORO
OBLIGATORIO OBLIGATORIO OBLIGATORIO
OBLIGATORIO OBLIGATORIO OBLIGATORIO
OBLIGATORIO OBLIGATORIO OBLIGATORIO
B. EQUISITOS MINIMOS OBLIGATORIOS DE EQUIPAMIENTO
REQUISITOS 5***** 4**** 3***
GENERALES
CUSTODIA DE VALORES(INDIVIDAL EN LA HABITACIÓN O CAJA FUERTE COMÚN)
INTERNET
HABITACIONES
FRIGOBAR
TELEVISOR
TELÉFONO CON COMUNICACIÓN NACIONAL E INTERNACIONAL
OBLIGATORIO OBLIGATORIO OBLIGATORIO
OBLIGATORIO OBLIGATORIO OBLIGATORIO
OBLIGATORIO OBLIGATORIO -
OBLIGATORIO OBLIGATORIO OBLIGATORIO
OBLIGATORIO OBLIGATORIO OBLIGATORIO
C. EQUISITOS MINIMOS OBLIGATORIOS DE SERVICIO
REQUISITOS
GENERALES
LIMPIEZA DIARIA DE HABITACIONES Y DE TODOS LOS AMBIENTES DEL HOTEL.
SERVICIO DE LAVADO Y PLANCHADO
SERVICIO DE LLAMADAS, MENSAJES INTERNOS Y CONTRATACIÓN DE TAXIS
SERVICIO DE CUSTODIA DE EQUIPAJE
PRIMEROS AUXILIOS
HABITACIONES
CAMBIO REGULAR DE SÁBANAS Y TOALLAS
OBLIGATORIO OBLIGATORIO OBLIGATORIO
OBLIGATORIO OBLIGATORIO OBLIGATORIO
OBLIGATORIO OBLIGATORIO OBLIGATORIO
OBLIGATORIO OBLIGATORIO OBLIGATORIO
OBLIGATORIO OBLIGATORIO BOTIQUIN
OBLIGATORIO OBLIGATORIO OBLIGATORIO
ARTÍCULO 4.- SE DEBERÁN CREAR AMBIENTES Y RUTAS ACCESIBLES QUE PERMITAN EL DESPLAZAMIENTO Y LA ATENCIÓN DE LAS PERSONAS CON DISCAPACIDAD, EN LAS MISMAS CONDICIONES QUE EL PÚBLICO EN GENERAL
ARTÍCULO 5.- EN LAS ÁREAS DE ACCESO A LAS EDIFICACIONES DEBERÁ CUMPLIRSE LO SIGUIENTE:
LOS PISOS DE LOS ACCESOS DEBERÁN ESTAR FIJOS, UNIFORMES Y TENER UNA SUPERFICIE CON MATERIALES ANTIDESLIZANTES.
LOS PASOS Y CONTRAPASOS DE LAS GRADAS DE ESCALERAS, TENDRÁN DIMENSIONES UNIFORMES.
ARTÍCULO 6.-LOS INGRESOS Y CIRCULACIONES DE USO PÚBLICO DEBERÁ CUMPLIRSE LO SIGUIENTE:
EL INGRESO A LA EDIFICACIÓN DEBERÁ SER ACCESIBLE DESDE LA ACERA CORRESPONDIENTE EN CASO DE EXISTIR DIFERENCIA DE NIVEL, ADEMÁS DE LA ESCALERA DE ACCESO DEBE EXISTIR UNA RAMPA.
LOS PASADIZOS DE ANCHO MENOR A 1 50 M
ARTÍCULO 12.- EL MOBILIARIO DE LAS ZONAS DE ATENCIÓN DEBERÁ CUMPLIR CON LOS SIGUIENTES REQUISITOS:
SE HABILITARÁ POR LO MENOS UNA DE LAS VENTANILLAS DE ATENCIÓN AL PÚBLICO, MOSTRADORES O CAJAS REGISTRADORAS CON UN ANCHO DE 80 CM. Y UNA ALTURA MÁXIMA DE 80CM LOS ASIENTOS PARA ESPERA TENDRÁN UNA ALTURA NO MAYOR DE 45CM Y UNA PROFUNDIDAD NO MENOR A 50 CM.
ARTÍCULO 15.- EN LAS EDIFICACIONES CUYO NÚMERO DE OCUPANTES DEMANDE SERVICIOS HIGIÉNICOS POR LO MENOS UN INODORO, UN LAVATORIO Y UN URINARIO DEBERÁN CUMPLIR CON LOS REQUISITOS PARA PERSONAS CON DISCAPACIDAD DE LOS MISMOS.
ARTÍCULO 16.- LOS ESTACIONAMIENTOS DE USO PÚBLICO DEBERÁN CUMPLIR LAS SIGUIENTES CONDICIONES:
NÚMERO TOTAL DE ESTACIONAMIENTOS
DE 0 A 5 ESTACIONAMIENTOS DE 6 A 20 ESTACIONAMIENTOS
ESTACIONAMIENTOS ACCESIBLES REQUERIDOS
NINGUNO 01
ARTÍCULO 19.- LAS EDIFICACIONES DE HOSPEDAJE DEBERÁN CUMPLIR CON LOS SIGUIENTES REQUISITOS:
DEBERÁN EXISTIR HABITACIONES ACCESIBLES A RAZÓN DE 1 POR LAS PRIMERAS 25, Y EL 2% DEL NÚMERO TOTAL, A PARTIR DE 26 LAS FRACCIONES SER REDONDEAN AL ENTERO MAS CERCANO LAS HABITACIONES ACCESIBLES DEBERÁN SER SIMILARES A LAS DEMÁS HABITACIONES SEGÚN SU CATEGORÍA. EN LAS HABITACIONES ACCESIBLES SE DEBEN PROVEER DE ALARMAS VISUALES Y SONORAS, INSTRUMENTOS DE NOTIFICACIÓN Y TELÉFONOS CON LUZ.
ZONAS
AMBIENTES
HALL INGRESO
RECEPCIÓN
DEPOSITO DE MALETAS
RECEPTIVO
SERVICIOS HIGIENCIOS
LOBBY
ÁREA DE TELEFONOS PUBLICOS TÓPICO
SS.HH. HOMBRES
SS.HH. MUJERES
SS.HH. DISCAPACITADOS
HALL
RECEPCIÓN
SALA DE ESPERA OFICINA DE GERENCIA + SS.HH.
SECRETARIA
SS.HH. HOMBRES
OFICIONA ADMINISTRATIVAS
3L, 3I, 3U 3L, 3I ADMINISTRATIVA
SS.HH. MUJERES
ARCHIVO
SALA DE REUNIONES
OFICINA DE LOGISTICA
OFICINA
HABITACIONES
RECIBIDOR DE HABITACIONES
HALL RECEPCIÓN
DEPOSITO DE MALETAS ALMACÉN DORMITORIO
H. SIMPLES
H. DOBLES
SUITE CLOSET
BAÑO TERRAZA
DORMITORIO BAÑO TERRAZA CLOSET DORMITORIO BAÑO TERRAZA WALKING CLOSET
+ KITCHENETTE
BUNGALOWS
BUNGALOWS
BUNGALOWS DUPLEX
RESTAURANT PÚBLICO
DORMITORIO CLOSET
BAÑO
SALA + KITCHENETTE TERRAZA
2 DORMITORIO + 1 CLOSET KITCHENETTE 2 BAÑOS SALA
AREA DE MESAS
SERVICIOS COMPLEMENTARIOS SS
RECEPCIÓN COCINA CAMARA FRIA
VESTUARIO MIXTO CUARTO DE LIMPIEZA
ZONAS
AMBIENTES SUBAMBIENTES
RESTAURANT PRIVADO
SERVICIOS COMPLEMENTARIOS
MINI GRANJA
BIOHUERTO
AREA DE MESAS
CUARTO DE LIMPIEZA
RECIBIDOR COCINA CAMARA FRIA
ÁREA DE BUFFET
ALMACÉN
TERRAZA
SS.HH. HOMBRES
SS.HH. MUJERES 3L, 3I, 3U 3L, 3I
SS.HH.DISCAPACITADOS-
SERVICIOS
COMPLEMENTARIOS
HALL
RECEPCION
DEPOSITO
VESTIDOR MUJERES
VESTIDOR HOMBRES
PISCINA TERMAL
SALA DE RELAJACION
CUARTO DE MASAJES
SS.HH. HOMBRES
SS.HH. MUJERES
SS HH DISCAPACITADOS 2L, 3I, 3U 2L, 3I 1L, 1I
ESCALERA
HALL
SS.HH. HOMBRES
SS HH MUJERES 2L, 3I, 3U 2L, 3I
DEPOSITO
CUARTO DE MASAJES
SALA DE RELAJACION
SAUNA
VESTIDOR MUJERES
VESTIDOR HOMBRES
PISCINA TERMAL
CUARTO DE LIMPIEZA -
SERVICIOS GENERALES
LAVANDERIA
CUARTO DE MAQUINAS
GRUPO ELECTROGENO
CUARTO DE BOMBAS
SALA DE PERSONAL
SERVICIOS HIGIENICOS + VESTIDORES
DEPOSITO DE ALIMENTOS
DEPOSITO GENERAL
CUARTO DE BASURA
RECEPCION
DEPOSITO DE CARRITOS
LAVANDERIA
ESTACIONAMIENTO
SS HH + VESTIDORES HOMBRES
SS HH + VESTIDORES MUJERES
ESTACIONAMIENTO DEL PERSONAL
ESTACIONAMIENTO DEL PUBLICO
ESTACIONAMIENTO DE HUESPEDES
D I A G R A M A S D E L P R O Y E C T O
RELACIÓN NECESARIA RELACIÓN DESEABLE
RELACIÓN OPCIONAL SIN RELACIÓN
ORGANIGRAMA DENTRO DEL TERRENO
INGRESO DEL PERSONAL Y VEHICULOS DE SERVICIO
RESTAURANTE PÚBLICO
RESTAURANTE PRIVADO
ZONA DE SERVICIO ZONA DE MANENIMIENTO
PLAZA DE INGRESO
SOUVENIR GRANJA BAR
ADMINISTRACIÓN
RECEPCIÓN
P. DE ENCUENTRO SPA
RECIBIDOR
P. DE ENCUENTRO
BIOHUERTO
ACCESO LAGUNA
HABITACIONES
BUNGALOWS
MIRADOR
CENTRO DE LENGUAS NATIVAS
TALLERES TEXTILES
PLAZA PRINCIPAL
ALAMEDA
ALAMEDA
ZONA DE CABALGATA
ZONA DE MOTOCROS ALAMEDA
ACCESO LAGUNA CONTROL
ALAMEDA CONTROL
CAMPY PÚBLICO
SERVICIOS
RESTAURANTE PÚBLICO
RESTAURANTE PRIVADO
RECEPCIÓN
SOUVENIRS
TOPICO
SPA
RECIBIDOR
RECREACIÓN
PLAZA CENTRAL
PUNTOS DE ENCUENTROS
MINI GRANJA
BIOHUERTO
ALOJAMIENTO
BUNGALOWS
HABITACIONES
SERVICIOS GENERALES
ADMINISTRATIVA
ÁREA DE MANTENIMIENTO
RESTAURANTE PRIVADO
RESTAURANTE PÚBLICO
ESTACIONAMIENTO
ZONA DE RECEPTIVA
SOUVENIRS
ADMINISTRACIÓN
BIOHUERTO
TOPICO
SERVICIOS GENERALES
BUNGALOWS DUPLEX
RECIBIDOR
BUNGALOWS
INGRESO PERSONAL
CIRCULACION DE HUESPEDES
CIRCULACION DEL PERSONAL
CIRCULACION MIXTA
PUNTOS DE RECORRIDO DE MOTOCROS
RECORRIDO DE CABALGATA
ZONA DE CAMPING
CANOTAJE STAND UP PUDDLE
110.1799
PENDIENTE% =Y/X*100
=6.6883/110.1799 *100
=6.6883/110.1799*100 6.6883
=6.07%
=6%DEPENDIENTE
EMPLAZAMIENTO HOTEL
CORTE A-A
CORTE DONDE SE PUEDE APRECIAR LA ZONA DE LAS HABITACIONES Y EL ESCALONAMIENTO DE LOS VOLÚMENES ENTERRADOS, Y LOS TEJADOS EN DESCENSO.
CORTE DONDE SE APRECIA LA ENTRADA PRINCIPAL AL HOTEL.
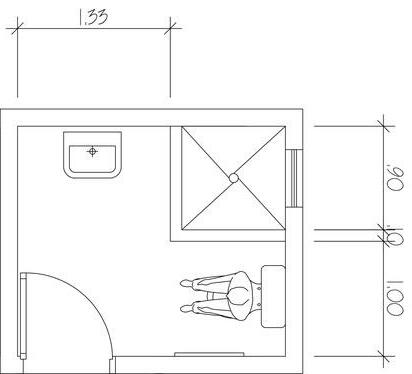
N A L I S I S A N T R O P O M É T R I C O Y E R G O N Ó M I C O
REFERENCIA: HABITACIÓN SIMPLE - HOSTELERIA
LIBRO: NEUFERT 16 EDICION PDF
MOBILIARIOS: ÁREA MINIMA SEGÚN EL RNE: 11 M2
MOBILIARIOS: 1 CAMA, CLOSET, BAÑO Y TELEVISOR
22.94 M2
2.74 M2
ÁREA TRABAJADA TOTAL: ÁREA DE MUROS: ÁREA DE CIRCULACIÓN:
6.97 M2
1 CAMA, CLOSET, BAÑO, TERRAZA Y TELEVISOR
ANTROPOMETRIA Y ERGONOMETRIA- DORMITORIO
IMAGENES DE REFERENCIA
LAS DIMENSIONES HUMANAS EN LOS INTERIORES
ÁREA TRABAJADA: 13 78 M2
ANTROPOMETRIA Y ERGONOMETRIA- BAÑO
TRABAJADA: 4 72 M2
LAS DIMENSIONES HUMANAS EN LOS ESPACIOS INTERIORES
IMAGENES DE REFERENCIA
LAS DIMENSIONES HUMANAS EN LOS ESPACIOS INTERIORES
HUMANAS EN LOS ESPACIOS
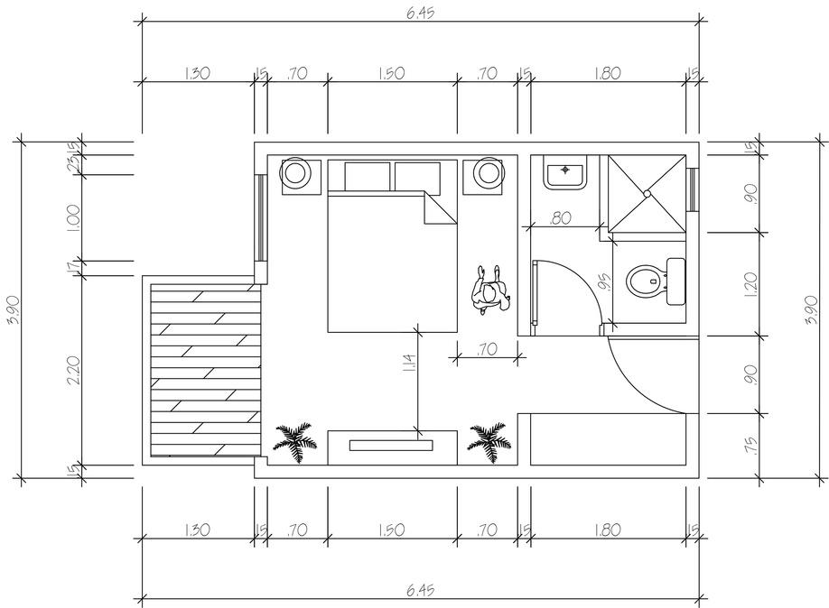
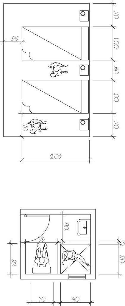
REFERENCIA: HABITACIÓN DOBLE - HOSTELERIA
LIBRO: NEUFERT 16 EDICION.PDF
MOBILIARIOS: ÁREA MINIMA SEGÚN EL RNE: 14 M2
2 CAMAS , CLOSET, BAÑO Y TELEVISOR
27.24 M2
ÁREA TRABAJADA TOTAL: ÁREA DE MUROS: ÁREA DE CIRCULACIÓN:
3.20 M2 9.12 M2
MOBILIARIOS:
2 CAMAS, CLOSET, BAÑO, TERRAZA Y TELEVISOR
ANTROPOMETRIA Y ERGONOMETRIADORMITORIO ANTR
TRABAJADA: 18 03 M2
ÁREA TRABAJADA: 4 72 M2
IMAGENES DE REFERENCIA
LAS DIMENSIONES HUMANAS EN LOS INTERIORES
IMAGENES DE REFERENCIA
LAS DIMENSIONES HUMANAS EN LOS ESPACIOS INTERIORES
LAS DIMENSIONES HUMANAS EN LOS ESPACIOS INTERIORES
S HUMANAS EN LOS ESPACIOS
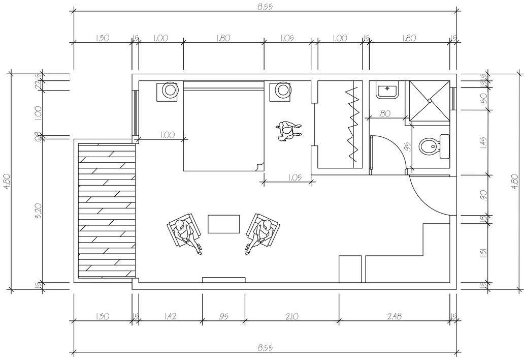
REFERENCIA: HABITACIÓN SUITEHOSTELERIA
LIBRO: NEUFERT 16 EDICION.PDF
ÁREA MINIMA SEGÚN EL RNE: 24 M2
MOBILIARIOS:
1 CAMA, CLOSET, BAÑO, SALA,KITCHEN Y TELEVISOR
38.96 M2
2.09 M2
ÁREA TRABAJADA TOTAL: ÁREA DE MUROS: ÁREA DE CIRCULACIÓN:
10.09 M2
MOBILIARIOS:
1 CAMA, WALKING CLOSET, BAÑO, TERRAZA, TELEVISOR,SALA, FRIGOBAR Y KITCHEN
ANTROPOMETRIA Y ERGONOMETRIADORMITORIO
IMAGENES DE REFERENCIA
ÁREA TRABAJADA: 9.00 M2
ANTROPOMETRIA Y ERGONOMETRIA- BAÑO
ÁREA TRABAJADA: 4.72 M2
IMAGENES DE REFERENCIA
LAS DIMENSIONES HUMANAS EN LOS ESPACIOS INTERIORES
ANTROPOMETRIA Y ERGONOMETRIACLOSET
ÁREA TRABAJADA: 2.92 M2
IMAGENES DE REFERENCIA
LAS DIMENSIONES HUMANAS EN LOS ESPACIOS INTERIORES
BUNGALOW ÁREA MINIMA:
REFERENCIA: HABITACIÓN BUNGALOWHOSTELERIA
LIBRO: NEUFERT 16 EDICION.PDF
ÁREA MINIMA SEGÚN EL RNE:
LA NORMA 030 NO ESPECIFICA AREA MINIMA
MOBILIARIOS:
1 CAMA, CLOSET, BAÑO, SALA,KITCHEN Y TELEVISOR
BUNGALOW ÁREA TRABAJADA:
ÁREA TRABAJADA TOTAL:
50.45 M2
ÁREA DE MUROS:
4.17 M2
ÁREA DE CIRCULACIÓN:
16.30 M2
MOBILIARIOS:
1 CAMA, WALKING CLOSET, BAÑO, TERRAZA, TELEVISOR,SALA, FRIGOBAR Y KITCHEN
ANTROPOMETRIA Y ERGONOMETRIADORMITORIO
ÁREA TRABAJADA: 17 94 M2
IMAGENES DE REFERENCIA
ANTROPOMETRIA Y ERGONOMETRIA- BAÑO
ÁREA TRABAJADA: 7 69 M2
ANTROPOMETRIA Y ERGONOMETRIA- SALA
ÁREA TRABAJADA: 16 75 M2
IMAGENES DE REFERENCIA
IMAGENES DE REFERENCIA
LAS DIMENSIONES HUMANAS EN LOS ESPACIOS INTERIORES
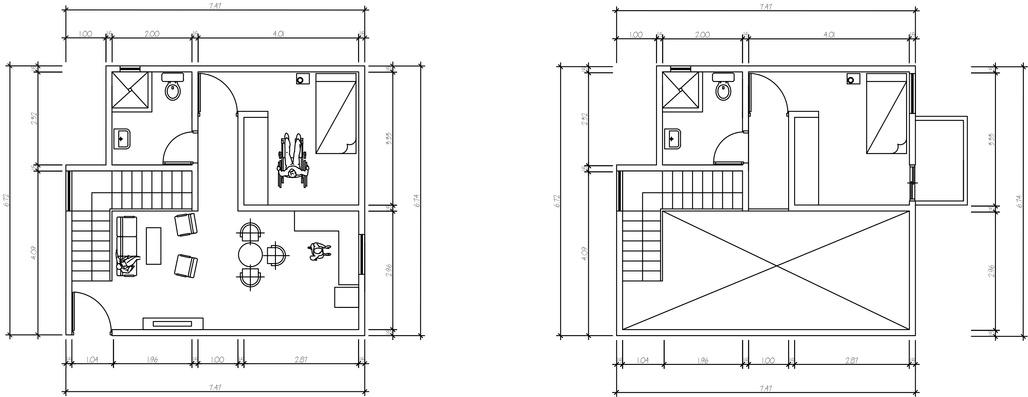
BUNGALOW DUPLEX ÁREA TRABAJADA:
PRIMER PISO
SEGUNDO PISO
ÁREA MINIMA SEGÚN EL RNE:
LA NORMA 030 NO ESPECIFICA AREA MINIMA
MOBILIARIOS:
2 CAMAS, CLOSET, BAÑO, SALA,KITCHEN Y TELEVISOR
69.11 M2 11.18 M2
ÁREA TRABAJADA TOTAL: ÁREA DE MUROS: ÁREA DE CIRCULACIÓN:
14.34 M2
MOBILIARIOS:
2 CAMAS, WALKING CLOSET, BAÑO, TERRAZA, TELEVISOR,SALA, FRIGOBAR Y KITCHEN
ANTROPOMETRIA Y ERGONOMETRIADORMITORIO
ÁREA TRABAJADA: 8 54 M2
ANTROPOMETRIA Y ERGONOMETRIA- BAÑO
ÁREA TRABAJADA: 4 72 M2
ANTROPOMETRIA Y ERGONOMETRIA- SALA
ÁREA TRABAJADA: 13 71 M2
IMAGENES DE REFERENCIA
IMAGENES DE REFERENCIA
LAS DIMENSIONES HUMANAS EN LOS ESPACIOS INTERIORES
LAS DIMENSIONES HUMANAS EN LOS ESPACIOS INTERIORES
LAS DIMENSIONES HUMANAS EN LOS ESPACIOS INTERIORES
RECEPCIÓN ÁREA TRABAJADA:
RECEPCIÓN ÁREA MINIMA:
ÁREA MINIMA SEGÚN EL RNE:
LA NORMA 030 NO ESPECIFICA AREA MINIMA
MOBILIARIOS:
RECEPCIÒN, HALL, BAÑOS Y LOBBY
ÁREA TRABAJADA TOTAL:
378.15 M2
ÁREA DE MUROS:
50.89 M2
ÁREA DE CIRCULACIÓN:
220.00 M2
MOBILIARIOS:
RECEPCIÒN, HALL, BAÑOS Y LOBBY
ANTROPOMETRIA Y ERGONOMETRIARECEPCIÓN
ÁREA TRABAJADA: 31 02 M2
ANTROPOMETRIA Y ERGONOMETRIA- BAÑO
TRABAJADA: 7 73M2
IMAGENES DE REFERENCIA
IMAGENES DE REFERENCIA
SEGÚN EL MINSITUR MODULO DE RECEPCIÓN PARA DISCAPACITADOS, ALTURA DE 50
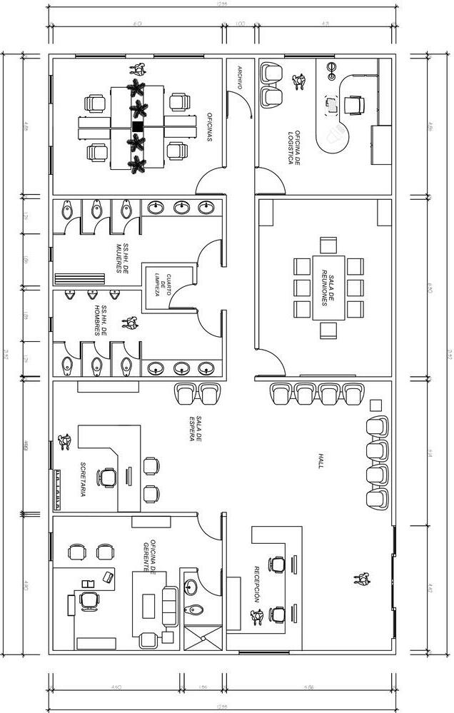
ADMINISTRACIÓN ÁREA TRABAJADA:
ADMINISTRACIÓN ÁREA
MINIMA:
ÁREA MINIMA SEGÚN EL RNE: LA NORMA 030 NO ESPECIFICA AREA MINIMA
MOBILIARIOS:
RECEPCIÓN,O.GERENTE, SECRETARIA,OFICINAS, LOGISTICA, BAÑOS, ARCHIVO Y SALA DE REUNIONES
262.82 M2
40.09 M2
ÁREA TRABAJADA TOTAL: ÁREA DE MUROS: ÁREA DE CIRCULACIÓN:
80.09 M2
MOBILIARIOS:
RECEPCIÓN,O GERENTE, SECRETARIA,OFICINAS, LOGISTICA, BAÑOS, ARCHIVO Y SALA DE REUNIONES
ANTROPOMETRIA Y ERGONOMETRIASALA DE REUNIÓN
ÁREA TRABAJADA: 32 34
ANTROPOMETRIA Y ERGONOMETRIAOFICINA
ÁREA TRABAJADA: 31 59 M2
IMAGENES DE REFERENCIA
IMAGENES DE REFERENCIA
MINIMA:
ÁREA MINIMA SEGÚN EL RNE: A NORMA 030 NO ESPECIFICA AREA MINIMA
MOBILIARIOS:
ÀREAS DE MESAS, RECEPCIÒN,BAR,COCINA,BAÑOS Y TERRAZA
436.66 M2
30.00 M2
ÁREA TRABAJADA TOTAL: ÁREA DE MUROS: ÁREA DE CIRCULACIÓN:
100.09 M2
MOBILIARIOS:
ÀREAS DE MESAS, RECEPCIÒN,BAR,COCINA,BAÑOS Y TERRAZA
ANTROPOMETRIA Y ERGONOMETRIAÁREA DE MESA
ÁREA TRABAJADA: 15.4 M2
ANTROPOMETRIA Y ERGONOMETRIA- BAÑO
ÁREA TRABAJADA: 7 23 M2
IMAGENES DE REFERENCIA
DIMENSIONES HUMANAS EN LOS ESPACIOS INTERIORES
IMAGENES DE REFERENCIA
DIMENSIONES HUMANAS EN LOS ESPACIOS INTERIORES
DIMENSIONES HUMANAS EN LOS ESPACIOS INTERIORES
A C T I V I D A D E S -
M A Q U E T A 3 D
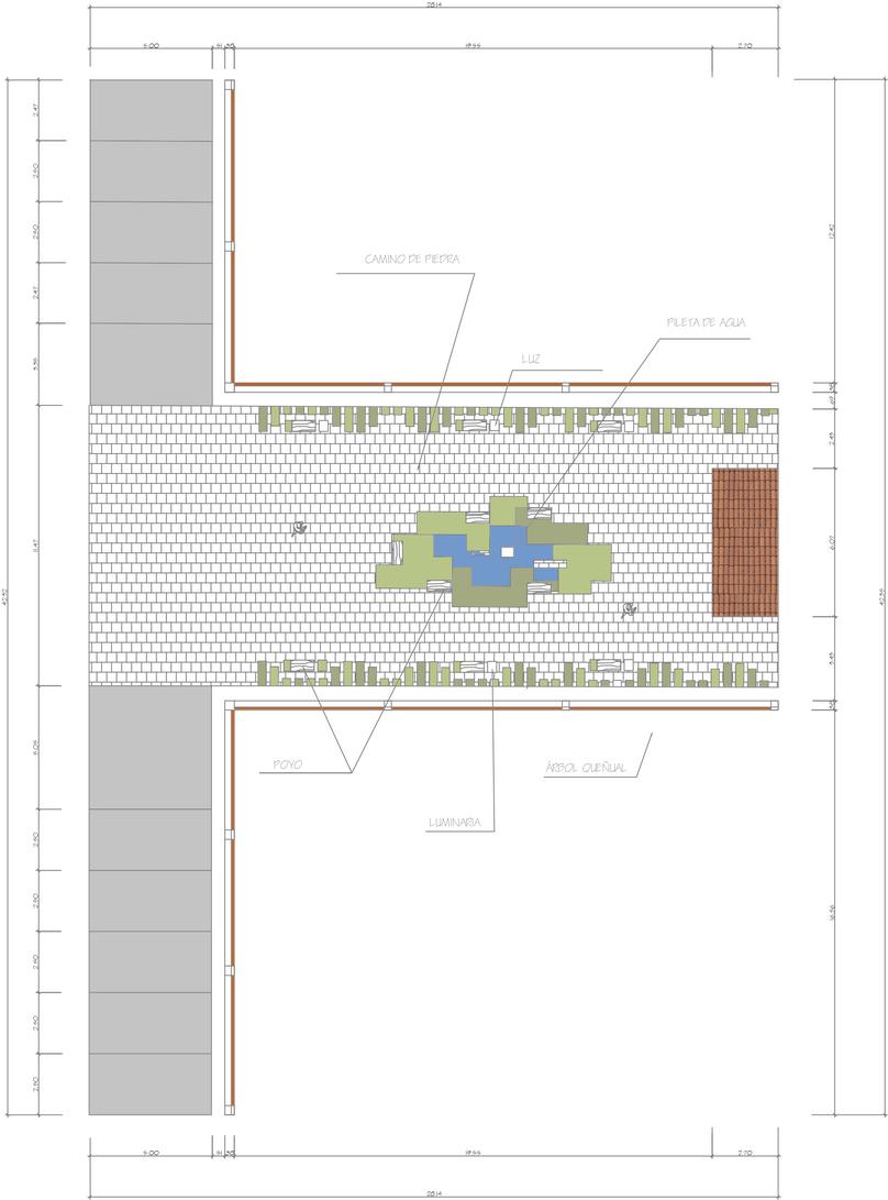
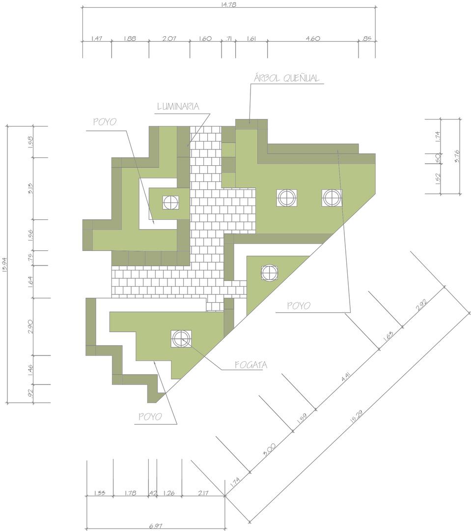
ACCESO PRINCIPAL DEL HOTEL, CON LOS ESTACIONAMIENTOS HACIA LOS DOS LADOS Y UNA PILETA CENTRAL, DONDE YACE UN ARBOL QUEÑUAL EN EL MEDIO. AMBOS BORDES DEL CAMINO PRESENTAN ZONAS VERDES Y LUMINARIAS, ASI COMO POLLOS, A MODO DE RECIBIMIENTO.
VEGETACIÓN
POYO-CERAMITOS
PLAZA CENTRAL, ELABORADA COMO EJE ORDENADOR DEL PROYECTO Y ESTRATEGIA A MODO DE DISTRIBUCIÓN.
PRESENTA UNA CUBIERTA DE TEJA ANDINA A MODO DE SEGUIR LA ESENCIA DE CHINCHERO, Y COMO PROTECCIÓN DE LA LLUVIA. EN EL MEDIO SE ENCUENTRA UNA PILETA CON UNA APACHETA EN LA ZONA CENTRAL.
SE PROPONE UNA ALAMEDA QUE
CONECTE EL HOTEL Y LA LAGUNA
PIURAY GENERANDO UN EJE CENTRAL QUE SERVIRA PARA PROPICIAR DIVERSAS ACTIVIDADES AL EXTERIOR CON EL OBJETIVO DE RESALTAR EL PAISAJE NATURAL.
PASEO DE ALAMEDA
ZONA DE YOGA PRIVADA
ZONA DE CONTEMPLACIÓN
MOBILIARIO EN ALAMEDA EXTERIOR
MOBILIARIO DE POYOS CON CUBIERTA . PROPUESTOS PARA ACTIVIDAD DE DESCANSO.ESTOS SE ENCUENTRAN EN LA ALAMEDA QUE CONECTA EL HOTEL CON LA LAGUNA PIURAY.
CUBIERTA
POYOS DE PIEDRA
VEGETACIÓN
VEGETACIÓN
ELEVACIÓN FRONTAL MOBILIARIO
LATERAL MOBILIARIO
LA ZONA DE YOGA SE PROPUSO UNA PÚBLICA Y PRIVADA EXCLUSIVAMENTE PARA LOS HUESPÉDES DEL HOTEL.
SECCIÓN A A
CESPED NATURAL
LA ZONA DE CAMPING SE PROPUSO DOS PRIVADAS EXCLUSIVAMENTE PARA LOS HUESPÉDES DEL HOTEL.
SECCIÓN A - A
VISTA 1ZONA DE CAMPING
VISTA 2ZONA DE CAMPING