Espacios multifuncionales en la Vivienda de Interés Prioritario en Colombia

Page 1

VANESSA DEL PILAR VIVIESCAS PICO ESPACIOS MULTIFUNCIONALES EN LA VIVIENDA DE INTERÉS PRIORITARIO EN COLOMBIA

Vanessa del Pilar Viviescas Pico 2022 vanessaviviescas95@outlook.com

Facultad de Arquitectura e Ingeniería Arquitectura

Informe de investigación

Asesores (as)

Arq. Mg. Diana María Bustamante Parra

Arq. Mg. Catherine Preciado Santa Medellín, 2022

Vanessa del Pilar Viviescas Pico

Espacios multifuncionales en la Vivienda de Interés Prioritario en Colombia

Proyecto de investigación

Informe de investigación

Arquitectura

Institución Universitaria Colegio Mayor de Antioquía

ESPACIOS MULTIFUNCIONALES EN LA VIVIENDA DE INTERÉS PRIORITARIO EN COLOMBIA

Autora: Vanessa del Pilar Viviescas Pico

Asesores (as)

Arq. Mg. Diana María Bustamante Parra Arq. Mg. Catherine Preciado Santa

Institución Universitaria Colegio Mayor de Antioquía Facultad de Arquitectura e Ingeniería Arquitectura

2022
00 01 02 03CONTENIDO

LA VIVIENDA DE INTERÉS PRIORITARIO:ESTRATEGIA

SOCIAL EN COLOMBIA.................................................12

• ¿Como surgió la vivienda de interés prioritario en Colombia?...........14

• Problemáticas e impacto social.........................................................20

• Flexibilidad en la tipología.................................................................24

FLEXIBILIDAD Y VERSATILIDAD.....................................30

• Modularidad.....................................................................................34

• Disposición móvil..............................................................................36

• Espacios mutables............................................................................38

ESTRATEGIAS ADAPTABLES A LA VIVIENDA DE INTERÉS PRIORITARIO EN COLOMBIA.........................................42

• Espacios multifuncionales................................................................48

• Espacios sin jerarquía......................................................................52

INTRODUCCIÓN...........................................................06
CONCLUSIONES .......................................................... 56 ÍNDICE DE IMÁGENES...................................................58 BIBLIOGRAFÍA..............................................................60 01 02 03 00
Figura 1. Vivienda de interés prioritario en Bogotá.
00

INTRODUCCIÓN

8 ESPACIOS MULTIFUNCIONALES EN LA VIVIENDA DE INTERÉS PRIORITARIO

Esta investigación cuestiona la poca flexibilidad que tienen los espacios en la vivienda de interés Prioritario (VIP) en Colombia en la actualidad, por esta razón se analizarán las principales características de la VIP como son: lo económico, social, cultural y configuración espacial, las cuales tienen una gran influencia en la calidad de vida de las personas que habitan estas viviendas.

Teniendo en cuenta que estas viviendas multifamiliares son adquiridas a costos cada vez más bajos, pero de igual manera reducen las áreas en metros cuadrados y los materiales no presentan mejor calidad. Actualmente, este tipo de proyectos en Colombia, se han convertido en un prototipo replicable, el cual carece de una configuración que permita dar respuesta a los diferentes núcleos familiares y sus necesidades, lo cual ha sido una problemática en este tipo de propuesta.

Por esta razón, una de las variables que más se analizará y es sinónimo de estudio, es la configuración espacial y sus dimensiones, ya que son espacios con pocos metros cuadrados en los que se desarrolla, contando con servicios mínimos vitales como: agua potable y energía, siendo espacios adecuados para su desarrollo integral, pero generando el mismo modelo para todos sus habitantes resultando espacios reducidos y rígidos que generan un gran obstáculo para su adaptación y resistencia para habitarlas.(Cano,2015).

Otro ítem que se analizará es desde el punto social y cultural el cual repercute en la configuración de estas viviendas, ya que en la actualidad han cambiado las necesidades de los usuarios, que estos espacios, que antes eran de uso netamente doméstico, han tenido que implementar otros usos como espacios destinados para el trabajo o espacios productivos por lo que hay otras dinámicas sociales y la transformación que han tenido los núcleos familiares con el pasar de los años, generando interés en cómo estas dinámicas se deben tener en cuenta en la planificación de los espacios, puesto que estos proyectos una de sus mayores problemáticos es pensar el usuario como un mismo prototipo.

Uno de los aspectos aún más importante es el tema económico, ya que a partir de que el estado abandona el papel financiero y constructor y las empresas privadas acogen estos proyectos, resaltando que su valor máximo es de 70 salarios mínimos legales mensuales vigentes definidos en el decreto 4466 del 2007, dando la oportunidad de adquirir vivienda a un costo bajo, pero en el que se ha visto afectado la calidad de vida de las personas, debido a la poca flexibilidad y adaptabilidad, ya que al ser proyectos construidos en masa, se ejecuta la misma tipología con un área total mínima, supliendo sus necesidades básicas, pero condicionando los espacios sin pensar en la diversidad de usuarios y las necesidades que cada uno requiere.

Con base en estos aspectos es que podemos hacer énfasis en las principales problemáticas de este tipo de modelo habitacional como es la vivienda de interés prioritaria, la cual es una vivienda de espacios reducidos que carece de flexibilidad y adaptabilidad para responder a las necesidades que afrontan los usuarios que cada día están en constante transformación, se expondrán otras problemáticas que han un gran impacto en la calidad de vida en la investigación, con el fin de dar a conocer un tipo de vivienda que aunque ha sido un gran beneficio para las personas de escasos recursos, es un sistema que tiene falencias y debe estar en constante estudio, ya que debe garantizar una calidad de vida óptima.

Para esto es importante conocer y analizar como funciona la flexibilidad y adaptabilidad de este tipo espacios tan reducidos, al igual que analizar los núcleos familiares, su transformación con el paso del tiempo y los nuevos usos que se le están dando a la vivienda, para así saber las necesidades a las cuales se les tiene que dar una posible solución a partir de la planificación o el planteamiento de estrategias que permitan espacio sin jerarquías que sean utilizados con base en la necesidad.

Por lo cual surgen interrogantes respecto a ¿Cómo se podría construir un modelo de interés prioritario que se pueda adaptar a todo tipo de usuario?, ¿Cuáles estrategias se podrían implementar para generar espacios más versátiles?, ¿Cómo generar espacios multifuncionales en áreas tan reducidos?, ¿Cómo lograr espacios flexibles a partir de la modularidad?, ¿Cómo puede un programa de viviendas que son replicadas piso tras piso solucionar los problemas de sus habitantes? ¿Qué impacto ha tenido la falta de lineamientos de planeación, que estimulen distintos diseños y ejecución de proyectos que preserven la intimidad, la privacidad y el desarrollo de los distintos usos de los habitantes en la configuración de los espacios en la VIP?

En relación con estas preguntas surge el objetivo general, el cual pretende dar a conocer las estrategias que se implementaran para el modelo de la vivienda VIP, acorde a las dimensiones mínimas con las que cuenta este tipo de proyecto. Por lo cual, para dar una respuesta a estos interrogantes sobre VIP en Colombia y los impactos que ha tenido este tipo de proyectos sociales y establecer las estrategias que se implementaran en la investigación, se consultaron diferentes autores, que permitieron tener un conocimiento más amplio del tema de la investigación, como es el caso:

La transformación de la casa en serie financiada por el estado en Bogotá 1938-1958(2015) de Roa, nos coloca en contexto como surgió la vivienda social y los cambios que han tenido con el paso de los años desde su planteamiento para la transformación de algunos sectores de la ciudad de Bogotá como la construcción de algunos barrios con este sistema en serie que fue uno de los pioneros en vivienda social.

Figura 2. Vivienda de Interés Prioritario en Bogotá,
INTRODUCCIÓN 9

10 ESPACIOS MULTIFUNCIONALES EN LA VIVIENDA DE INTERÉS PRIORITARIO

Además, el texto Transformacióndelosconflictosylasviolenciasgeneradas porlacoexistenciadegruposreasentadosenlaCiudadelaNuevoOccidente (2015), en el cual Cano, en el cual nos contextualiza sobre la Vivienda de Interés Prioritario y la el impacto que ha tenido este tipo de vivienda en la calidad de vida de las personas que la utilizan, con el ejemplo de la VIP en el barrio la Aurora.

En ese sentido, El tipo y la tipología en la arquitectura de la vivienda: Incidencia del sitio, la actividad y la técnica como factores externos en la arquitecturaenelproyecto(2016), es un análisis donde Salazar expone todo lo que influye en la construcción de la vivienda en Colombia, como es el tema económico y como influye estén la arquitectura y en los diseños que se están construyendo.

Además, en el texto Laflexibilidadenlaviviendacontemporánea,propuesta deseismodelostipológicos (2017) la autora Carboni analiza la flexibilidad en la vivienda contemporánea desde diferentes características, donde nos expone diferentes proyectos que han implementado la adaptabilidad y transformación de los espacios pensando en la diversidad de usuarios.

En esta investigación se implementó una metodología de 3 fases: en la primera, se realizó una búsqueda detallada de la información en manuales, revistas y en la normativa, la cual se enfoca en el surgimiento de la vivienda social, sus antecedentes, problemáticas, como se ha transformado este tipo de modelo y todo lo relacionado con la Vivienda de Interés Prioritario, que permita tener un conocimiento amplio sobre el tema. Posteriormente, en una segunda etapa se analizaron diferentes estudios de caso de España con base en diferentes categorías como son modularidad, espacios mutables y disposición móvil, las cuales son alternativas para una arquitectura flexible y adaptable. Finalmente, se desarrollaron dos estrategias de flexibilidad y adaptabilidad como son espacios multifuncionales y espacios sin jerarquía, planteadas para una posible solución a la problemática de la Vivienda de Interés Prioritario en Colombia.

Figura 3. La playa-Medellín.

Los resultados de la investigación se consolidaron en tres capítulos. En el primero, La Vivienda de Interés Prioritario: Estrategia social en Colombia, expone los inicios de la vivienda de interés prioritario, como surgió, sus antecedentes, las problemáticas que han tenido este tipo de vivienda y todo lo relacionado con su normativa, su impacto social en la calidad de vida de quien lo habita, y la importancia de la flexibilidad de las tipologías en la vivienda de interés prioritario y la importancia que tiene en los usuarios la transformación de estos espacios, las cuales serán analizadas con 3 proyectos en Colombia como son la Hoja en la ciudad de Bogotá, donde se expone una alternativa de flexibilidad, un proyecto en el Barrio la Aurora la cual plantea una tipología poco adaptable para el usuario y la Playa otro ejemplo de la arquitectura flexible, estos dos últimos proyectos ubicados en Medellín.

Además, en el capítulo 2 Flexibilidad y versatilidad, se hace un análisis por medio de 3 estudios de caso en España, sobre las estrategias de flexibilidad y adaptabilidad que han implementado estos proyectos, los cuales proponen, desde la modularidad, espacios mutables y disposición móvil, plantear espacios que su pueden transformar con base en las necesidades del usuario y los nuevos usos que se están implementados en la vivienda, ya que este lugar ya no es solamente de uso doméstico, dando diferentes estrategias que permiten creas espacios con múltiples usos permitiendo una relación entre el usuario y las necesidades.

Finalmente en el capítulo 3 Estrategias adaptables a la vivienda de interés prioritario en Colombia, se plantean dos estrategias replicables con base en los estudios de caso analizados en el anterior capítulo de flexibilidad y adaptabilidad y se extraen estrategias como: los espacios multifuncionales y los espacios sin jerarquía los cuales buscar que los usuarios utilizan los espacios con base en las necesidades, a partir de los nuevos núcleos familiares que surgen en la actualidad cada uno con sus necesidades específicas e individuales e igualmente dando una posible solución a los nuevos usos que se le están dando a la vivienda, ya que no es solamente de uso doméstico, sino también espacios productivos y de trabajo.

Figura 4. Interior Proyecto en Carabanchel
INTRODUCCIÓN 11
Figura 5. Edificio la Hoja-Bogotá,
01

LA VIVIENDA DE INTERÉS

PRIORITARIO: ESTRATEGIA SOCIAL EN COLOMBIA.

En este capítulo se contextualiza sobre la VIP en Colombia, partiendo de la pregunta ¿Cómo surgió este modelo de vivienda?, además de su normativa, antecedentes y problemáticas, apoyado en los autores referenciados en la investigación con el marco teórico, a su vez el impacto que ha tenido en la calidad de vida de las personas.

01

¿CÓMO SURGIÓ LA VIVIENDA DE INTERÉS PRIORITARIO (VIP) EN COLOMBIA?

Es importante entender sus inicios, cómo se ha desarrollado la VIP y como esta se ha transformado a través del tiempo.

En 1932, bajo el gobierno del Presidente Enrique Olaya Herrera, con el decreto 711 de ese mismo año, se fundó el Banco Central Hipotecario (BCH), el cual fue el encargado de financiar vivienda obrera y mínima, apoyado con otras entidades como la compañía central de construcciones, para que ya en el año 1935 se fundaron los barrios Colombia, Restrepo, Calle 67, las Mercedes y Bosques Calderón Tejada ubicados en la ciudad de Bogotá, los cuales fueron impulsados por BCH. (Camargo, 2011).

En 1936, con el gobierno de Eduardo Santos, se creó el Instituto de Crédito Territorio (ICT), con el fin de incentivar la construcción para los trabajadores en el campo, esto con la ayuda de las entidades bancarias que facilitaban préstamos destinados a la vivienda campesina.(Roa, 2018).

Con la Ley 170 de 1936 se le dio oportunidades a la Compañía Central de construcciones a la cual BCH le podría suscribir acciones con el fin de

adquirir terrenos para construir viviendas, promoviendo así la construcción de vivienda obrera a través de montos máximos de financiación y subsidios. Ya en el año 1942 debido al constante crecimiento poblacional, debido a que empezaron las personas a emigrar del campo a la ciudad, el ICT dio origen a la vivienda urbana y se dedicó exclusivamente a esta, dejando a un lado la vivienda rural, de la cual se encargó la caja de Crédito Agrario y con el decreto 1579, se creó la sección de vivienda urbana la cual era enfocada a la clase media y por esta razón en ese mismo año se crea la Caja de Vivienda Popular (CVP), con el fin de construir barrios que fueran asequibles por un medio ya formal.(Camargo, 2011).

Durante la crisis económica entre 1942-1946, la construcción desaceleró su ritmo de construcción y los esfuerzos del gobierno por crear una vivienda para aquellas personas de escasos recursos se estancó, ya para el año 1949, las ciudades se vieron sobre pobladas, lo que ocasiono, invasiones, hacinamientos y muchas otras problemáticas ocasionadas por el crecimiento poblacional, por lo que se tenía que pensar en el desarrollo urbano. (Camargo, 2011).

Figura 6. Vivienda social en Bogotá. Figura 7. Los Alcázares (1949)- Bogotá.
14 LA VIVIENDA DE INTERÉS PRIORITARIO:ESTRATEGIA SOCIAL EN COLOMBIA

En 1950 el ICT inicia 4 proyectos de vivienda unifamiliar, 2 en Bogotá: Los Alcázares (1949) y Muzú (1949), y también se realizaron otros en Cúcuta y Tuluá, los cuales recibieron el nombre de “Unidades vecinales”, estos proyectos estuvieron a cargo del ingeniero Bernabé Pineda, posteriormente se unieron las entidades BCH o la CVP los cuales desarrollaron el urbanismo de sus barrios con el mismo esquema. (Roa, 2018).

En 1958 el ICT crea un programa de vivienda de autoconstrucción el cual consistía en la venta a crédito de un lote urbanizado y a su vez le prestaban a las personas para la compra de materiales, junto con una asesoría técnica.

Ya para 1963, con el acuerdo 51 de ese año se establecen las categorías de zonificación y las medidas de la vivienda, las cuales estaban entre 80 y 90 metros cuadrados.(Camargo, 2011).

Con la densificación de las principales ciudades y las problemáticas que esto estaba generando en la década de los 70, en ciudades como Medellín carecían de terrenos para construir nuevas viviendas con lo que se pensó en la construcción de viviendas multifamiliares y es así que 1972 es aprobado la primera reglamentación para edificios multifamiliares aislados, con el fin de ayudar a la sobrepoblación, y se construían principalmente en espacios que tuvieran grandes recursos, como sistemas de vías, servicios públicos y equipamientos, con base en esto se diseñó y puso en práctica en 1973 los proyectos como: la urbanización las Playas (Rafael Uribe Uribe), Carlos E. Restrepo y el programa de vivienda para los empleados municipales en el barrio Manrique siendo estas las primeras urbanizaciones en adoptar este modelo, pensado para la clase media. (Corporación Colegio de Villa de Leyva 1996).

Estos proyectos multifamiliares en Medellín, los cuales eran pensados aun para la clase media, servían de ejemplo y en 1982 se piensa en la construcción de vivienda masiva a un precio barato, con especificaciones mínimas, con lo que trajo espacios que no cumplían con los estándares de calidad y sistemas constructivos mínimos, por lo que este modelo no tiene una buena acogida por los usuarios. (Corporación Colegio de Villa de Leyva 1996).

¿Como surgió la vivienda de interés prioritario en Colombia?

Figura 9. Barrio los Alcázeres- Bogotá. Figura 8. Vista los Alcázeres- Bogotá.
15

Con la Ley 3ª de 1991, se reorientó la política, de acuerdo con las tendencias internacionales, hacia un esquema de subsidios basado en mecanismos de mercado, de esta forma el Estado abandonó su papel de intermediario financiero y constructor de vivienda y se sustituyó el ICT por el Instituto Nacional de Vivienda de Interés Social y Reforma Urbana (INURBE), entidad encargada de administrar el sistema de subsidios y prestar asistencia técnica.

Esto cambia cuando el artículo 51 de la constitución colombiana cita principalmente “Todos los colombianos tienen derecho a una vivienda digna” y el estado deberá hacer planes de viviendas para suplir las necesidades, esto conlleva al aumento de proyectos en todo el país para suplir las necesidades y empiezan a aparecer cambios drásticos en las políticas públicas modificando las leyes para la creación del instituto nacional de vivienda de interés social, creando sistemas de subsidios y préstamos a proyectos de este tipo allí es donde se empiezan a incorporar la VIP que vemos actualmente, en donde es una vivienda a bajos costos con pequeños espacios con desarrollos urbanísticos mínimos o casi inexistentes. (Guisao y Medina, 2019)

Ya en el año 2000 las únicas indicaciones que se tenían en cuanto a la vivienda social era la norma NSR-98, y los temas de dimensiones y los requisitos eran condicionados por la escala económica y no tanto por las condiciones espaciales, como es el caso de la vivienda de interés social (VIS) y la vivienda de interés prioritario (VIP), las cuales resultaron viviendas tan pequeñas que carecen de flexibilidad. (Camargo, 2011), para luego ser reglamentada por NRS-10, la cuales reglamentan este tipo de viviendas. Es allí donde ingresan los planes de ordenamiento territorial que juegan un papel importante en la VIP, ya que estos clasifican los suelos para que se pueda proponer y desarrollar la VIP y orienta en la producción de la misma. Estos macroproyectos nacionales cuentan con recursos de inversión pública necesarios para su ejecución, además de contar con las Cajas de compensación y de las ONG, así como en las entidades financieras de FONVIVIENDA, FOVIMED y del sector financiero privado. (Ceballos, 2008)

16 LA VIVIENDA DE INTERÉS PRIORITARIO:ESTRATEGIA SOCIAL EN COLOMBIA

¿Como surgió la vivienda de interés prioritario en Colombia? 17

Con base en esto, las VIP son adquiridas a costos cada vez más bajos, pero de igual manera reducen las áreas en metros cuadrados y los materiales no presentan la mejor calidad donde se instaura, la vivienda de interés social (VIS) y la vivienda de interés prioritario, la (VIP) que es la solución de viviendas cuyo valor máximo es de 70 salarios mínimos legales mensuales vigentes definidos en el decreto 4466 de 2007, generada con el fin de atender a los sectores más vulnerables de la población con aportes del estado, y de la sociedad en general. (decreto 4466 de 2007).

En la actualidad este tipo de vivienda se ha catalogado como un prototipo único del cual se supone que puede albergar a todo tipo de habitantes, logrando satisfacer todas las necesidades, cometiendo los mismos errores de planificación, sino que se está creando un sistema poco flexible que está identificado el modelo de vivienda de interés prioritario.

Una de las características principales de este tipo de viviendas son los pocos metros cuadrados en los que se desarrolla, contando con servicios mínimos vitales como: agua potable y energía, siendo espacios adecuados para su desarrollo integral, pero generando el mismo modelo para todos sus habitantes resultando espacios reducidos y rígidos que generan un gran obstáculo para su adaptación y resistencia para habitarlas.(Cano,2015), ya que no  brindan  variedad en tipologías o en áreas solo cambia su disposición si es en un piso alto o bajo y no se tiene en cuenta que es para una población tan diversa ni la configuración de los grupos familiares, sus prácticas al habitar.

Con base en esto es que este tipo de vivienda ha tenido varios problemas a nivel social y cultural para la adaptabilidad de las personas, ya que ha sido pensado como un sistema para suplir las problemáticas de densidad e incentivar a que las personas de pocos recursos tenga la posibilidad de tener una vivienda propia, aunque se han tenido a lo largo de los años, se pensó en la densificación dejando de lado que con esto también estaban surgiendo otros problemas como era la diversidad de los núcleos familiares y las nuevas necesidades que cada usuario requiere.

Figura 10. Vivienda de Interés Prioritaria en Medellín.

LÍNEA DE TIEMPO DE LA VIVIENDA DE INTERÉS PRIORITARIO (VIP).

Figura 11- Línea de tiempo de la VIP en Colombia.

18 LA VIVIENDA DE INTERÉS PRIORITARIO:ESTRATEGIA SOCIAL EN COLOMBIA

Para entender el surgimiento de la Vivienda de Interés Prioritario y su transformación con el pasar de los años, es importante contextualizar sobre la vivienda social y estatal en Colombia, como estas fueron determinantes en la búsqueda de un modelo habitacional que fuera asequible para personas de escasos recursos con el fin de tener una vivienda digna lo que dio paso a la VIP, lo cual es expuesto en esta línea de tiempo.

¿Como surgió la vivienda de interés prioritario en Colombia?
19

PROBLEMÁTICAS E IMPACTO SOCIAL

Aunque estos proyectos de vivienda social se pensaron para suplir una necesidad para aquellas personas que no contaban con recursos para tener una vivienda, y han generado nuevas dinámicas, son modelos habitacionales que no terminan de integrar algunos aspectos importantes, como es tener una configuración espacial adecuada (Uribe, 2015).

Con lo mencionado anteriormente una de los problemas de este tipo de vivienda es la falta de planificación de la VIP solo se supuso como una tipología de vivienda para el mismo prototipo de habitante, pero no se reflexionó en la diversidad cultural y dinámicas de quienes la habitarían lo cual hizo que las calidades espaciales que respondían al contexto se perdieran, logrando que la configuración espacial de la vivienda generara repercusiones en la manera de habitar, con lo anterior estos espacios se volvieron solo de carácter residencial, siendo insuficientes para suplir la estructura cultural y dinámicas de la cantidad de personas que lo van a habitar, pues al hacer los lineamientos y las planificaciones diseñaron considerando que eran poblaciones homogéneas y con similares necesidades en consecuencia se crean unidades habitacionales, con una tipología edificatoria que se convierten en modelo para reproducir en serie porque lo importante es la cantidad de viviendas construidas para suplir la cantidad de familias sin vivienda digna; en otras palabras se hace notoria la falta de apropiación adecuada de los espacios, generando nuevos usos en ellos.

A pesar de esto, este modelo habitacional ha generado muchas incógnitas acerca de si responde a las necesidades de los usuarios y los núcleos familiares que están en constante transformación y si este modelo tiene la capacidad de responder en el tiempo los nuevos usos y necesidades como son los espacios para el trabajo y la productividad y se ha adaptado o no a la formulación que se planteó de mejorar las condiciones de vida de las personas que lo habitan. Aun cuando este sistema ha logrado transformar las condiciones físicas y ambientales, también en algunos aspectos referentes a la economía, empleo y estándares urbanísticos de los habitantes (Uribe, 2015).

Figura 12. Proyectos VIP- Soledad,Atlántico. Figura 13. Proyectos VIP en Jamundi.
20 LA VIVIENDA DE INTERÉS PRIORITARIO:ESTRATEGIA SOCIAL EN COLOMBIA

El problema central de la VIP es que aunque cuenta con un diseño planificado, carece de flexibilidad y adaptabilidad para lograr responder a los núcleos familiares en constante cambio y a la cantidad de personas que la van a habitar, con su estructura cultural y sus dinámicas derivando que sean viviendas poco flexibles generando poca adaptabilidad; los que planifican este tipo de proyectos deben garantizar, administrar, ejecutar y colocar en el mercado soluciones de vivienda que tengan gran eficiencia tanto del manejo de los recursos públicos como en los procesos constructivos, pero a su vez, que sean viviendas capaces de suplir las necesidades para ser habitadas por múltiples familias con diversas realidades y culturas.

Pero no solo es la configuración espacial o las dimensiones de la vivienda, sino también el tema constructivo, social y el económico, los cuales son factores que influyen en la construcción de estos proyectos. Con base en esto, si se mira la configuración espacial o dimensiones, es una tipología que cuenta con dimensiones mínimas, las cuales en promedio cuentan con áreas que están entre los 43 y 60 m² y los espacios internos oscilan entre 2 y 3 alcobas, sala, baño, cocina y zona de ropas o algunas carecen de este último espacio. (Gómez 2012)

Ya que estos proyectos son pensadas para las personas de bajos recursos, estos tienen problemas económicos, por lo cual necesitan adquirir nuevos ingresos, como es compartir el espacio con otra familia, o volver los espacios de la vivienda en lugares productivos, por lo cual en muchas ocasiones llega haber hacinamiento es estas viviendas, por lo cual presenta carencias cualitativas en la estructura y espacio. Por lo que también influye el sistema constructivo, el cual para satisfacer la creciente demanda de este tipo de vivienda se han desarrollados sistemas constructivos con una variedad de alternativas en la utilización de diferentes materiales y sistemas estructurales; sin embargo, ha sido utilizado en pocos proyectos, como por ejemplo el proyecto la Hoja en Bogotá y la Playa en Medellín, las cuales utilizan una metodología alejada de la tradicional, enfocandosé en el usuario y como este pueda transformación su espacio en

Figura 15. Interior de la VIP- La Aurora, Medellín. Figura 14. Proyectos VIP- La Aurora, Medellín.
Problemáticas e impacto social 21

Favor de los usos que vaya a tener el espacio, pero este no es el caso de otros proyectos de VIP, los cuales se construyen en masa, sin importar el usuario, esto debido a que los proyectos son construidos por las entidades privadas las cuáles con base en los costos y la rentabilidad que tiene el proyecto, son planificados y ejecutados por esta razón prima la mampostería tradicional, (Castro 2011) basándose en que tiene un menor costo, que utilizar otro método de construcción, que implique costos más altos, lo cual no genera una rentabilidad con estos proyectos, es así como se construye pensando en masa, sin pensar en el usuario y aunque cumplen con todo lo requerido por la normativa como es la norma NRS10, RETIE, cuenta con todas las redes como agua y luz y demás que exige el gobierno, es enfocada esta tipología desde un tema más técnico, si enfocarse en lo social.

Por lo que en cuanto a lo social y cultural es una problemática en constante estudio, ya que estos espacios son utilizados por una gran diversidad cultural, a la cual le dan un uso diferente al doméstico con base en sus necesidades económicas, si por ejemplo tomamos como usuario una persona reubicada estas personas tienen ciertas costumbres, puesto que muchos de ellos es la primera vez que utilizan el modelo de vivienda colectiva, por lo que estos espacios se les hacen pequeñas para satisfacer sus necesidades y adquieren otros usos como es la utilización de espacios para uso comercial, ya que no cuentan con un trabajo fijo por lo que buscan otras alternativas y este tipo de viviendas no cuentan con la capacidad para suplir estas necesidades como es el caso de la VIP en el barrio la Aurora, el cual alberga este tipo de usuarios.

Como resultado de estas problemáticas, este sistema de vivienda no cuenta con la capacidad de ser transformada con el tiempo por el usuario, ya que cuenta con un sistema estructural fijo con espacios delimitados y jerarquizados, lo que genera en un futuro es que los usuarios para generar cambios, tengan que adquirir nuevos costos, que en muchos casos no cuentan con estos recursos, lo que no permite que los espacios sean utilizados en función a las necesidades dependiendo de la actividad que vayan a realizar, sin ser espacios multifuncionales.

Figura 16. Espacios interiores deteriorados de la VIP en el barrio la Aurora. LA VIVIENDA DE INTERÉS PRIORITARIO:ESTRATEGIA SOCIAL EN COLOMBIA
22

Figura 17.Esquema de problemáticas de la VIP.

Problemáticas e impacto social 23

FLEXIBILIDAD EN LA TIPOLOGÍA

Con el paso del tiempo y el constante cambio en la conformación de los núcleos familiares, las viviendas de interés prioritario, pasan por diversas etapas donde la vida de sus habitantes y su configuración tiende a cambiar, ya que estos van adecuando y personalizando con base en sus necesidades, es de vital importancia temas como la flexibilidad y esto conlleva a la progresividad.

Para esto tenemos que entender el significado, la flexibilidad y adaptabilidad en la vivienda, “la adaptabilidad es una característica de diseño que engloba estrategias espaciales, estructurales y de servicios, la cual permite al artefacto físico un grado de maleabilidad en respuesta a los parámetros operacionales que cambian a lo largo del tiempo. Este cambio estratégico muestra a los edificios no como obras acabadas fuera del tiempo, sino como objetos imperfectos cuyas formas están en continuo movimiento evolucionando para adaptarse a las metamorfosis funcionales, tecnológicas y estéticas de la sociedad.” (Schmidt, 2010)

Desde la planificación de la VIP actual se ha visto no suplen las configuraciones espaciales de poblaciones tan diversas con una misma tipología constructiva, en casos como la VIP en Medellín, se ha encontrado que  la flexibilidad y la adaptabilidad generan un desarrollo en estas y le dan esencia a cada vivienda y crea una variedad espacial ‘‘Pensar en espacios flexibles implica, entre otras estrategias de diseño, definir una adecuada articulación de los diversos sistemas que confluyen en la vivienda (sistemas estructurales, elementos constructivos, cerramientos e instalaciones). Deben ser pensados para permitir la mayor evolución y adecuación a los requerimientos cambiantes de los usuarios’’.(Montaner, Muxí, Falagán, 2011)

El arquitecto Holandés N. J Habraken fue el primero que abordó y aclaró lo que es inamovible y lo que es colectivo, en sí lo que viene siendo el soporte, lo que es transformable, logrando que el usuario tenga la potestad de decir lo que compone la planta libre. La vivienda flexible es un tema que ha estado en constante análisis durante él sigo XX a causa del constante crecimiento y cambio de los núcleos familiares, por esta

Figura 18.Edificio residencial La Playa, Medellín.
24 LA VIVIENDA DE INTERÉS PRIORITARIO:ESTRATEGIA SOCIAL EN COLOMBIA

razón se debe analizar la flexibilidad desde diferentes principios: espacio, construcción, diseño para la adaptación, estructura, planta típica y servicios. “La teoría de Flexible de Housing propone dos grandes categorías para estudiar la flexibilidad: el uso y la tecnología. El uso se refiere a la manera en la cual el diseño afecta la forma con el pasar del tiempo y la tecnológica se relaciona con la construcción, el mantenimiento y la forma en que estas afectan el potencial de la flexibilidad.(Carboni, 2017)

Con el fin que permita una arquitectura modificable, se ha pensado en un esqueleto estructural en el que la única parte fija sean la de los servicios, como es cocina, baño y zona de ropas, debido a que a su sistema constructivo, como son la redes, permite la facilidad en la construcción que estos elementos estén juntos, por lo que los otros espacios no tendrían una jerarquía y su utilización estaría enfocado en las necesidades, se vayan planteando con el cambio de los años.

La flexibilidad al igual que la adaptabilidad es necesaria cuando la vivienda tiene que responder al cambio y la diversidad de núcleos familiares, para satisfacer las necesidades del usuario y los nuevos usos que están surgiendo con el pasar del tiempo y que este a su vez tenga la autonomía de ser el responsable de la transformación que se le da a la vivienda, con el fin de mejorar la calidad de vida, para esto se necesitan espacios que sean capaz de transformar su funcionalidad, a través del cambio de uso o de forma, por esto es importante el planteamiento de un diseño capaz de crear espacios sin jerarquías, en el cual se haga una buena implementación del sistema constructivo y su configuración espacial que permita crear una relación entre los espacios sin condicionar y el uso.(Carboni, 2017)

Con base en esto se analizan tres modelos de Vivienda de Interés Prioritario en Colombia, como son la plaza de la Hoja en Bogotá, la Playa y un proyecto en el barrio la Aurora, estos dos últimos ubicados en Medellín, con el fin de dar a conocer la implementación de la flexibilidad y la adaptabilidad, las estrategias utilizadas o si al contrario carece de estas, en el planteamiento de su modelo tipológico y su configuración espacial.

Figura 19.Edificio residencial La Hoja, Bogotá.
Flexibilidad en la tipología 25

Proyecto en el Barrio la Aurora, Medellín.

Este proyecto es una iniciativa de la alcaldía de Medellín, para las familias de escasos recursos, entre sus principales usuarios están las personas reubicadas de otros sectores de Antioquia, este modelo habitacional consta 358 viviendas, distribuidas en 6 torres de hasta 8 niveles y cada célula habitacional tiene un área aproximadamente de 47 metros cuadrados, consta de tres o dos habitaciones, sala-comedor, cocina-zona de ropas y un baño, las cuales acogen núcleos familiares conformados en promedio 3 y 6 personas.

Su planteamiento constructivo se emplea en favor de la economía, con muros internos en mampostería, lo cual genera un sistema compacto, sin utilizar otras herramientas de construcción que permitan ser modificadas con mayor facilidad sin generar costos adicionales para los usuarios.

El diseño interior está regido por una configuración poco flexible. En el cual configura los espacios en disposición de las zonas fijas como son las zonas húmedas (cocina, baño y zona de ropas), las cuales por su sistema de redes es la opción más adecuada para su construcción, pero aun así no utiliza alguna estrategia de flexibilidad que plantee un mayor aprovechamiento de estos o buscar alternativas que logren optimizar los espacios permitiendo emplear el menor número de metros cuadrados para ser utilizados en otros usos, los otros espacios son jerarquizados como son las habitaciones, sala-comedor, los cuales solo permiten un uso, ya que no tienen una alternativa que permita múltiples usos, lo que genera espacios con inactivada por un tiempo, sin que estos permitan ser transformados por el usuario.

Por esta razón, este modelo carece flexibilidad y adaptabilidad, ya que no permiten que el usuario, pueda transformar los espacios con base a la necesidad, sino que para reformar estos tendrá que gastar un dinero adicional que la mayoría de familia no cuenta con estos recursos.

Muros fijos en mampostería tradicional

Baño, cocina, z. ropas (z. húmedas) Habitaciones Sala comedor

Figura 20. Esquema tipología la Aurora, Medellín
26 LA VIVIENDA DE INTERÉS PRIORITARIO:ESTRATEGIA SOCIAL EN COLOMBIA

Muros fijos en mampostería tradicional

Baño (uso simultáneo)

Cocina, z. ropas (z. húmedas)

Planta libre (transformable)

Proyecto La playa, Medellín.

Este proyecto localizado en el centro de Medellín, es una propuesta de unidad básica de la arquitecta Ana Elvira Vélez, la cual propone 3 filas de hasta 5 pisos con 88 apartamentos cada uno, planteando así 254 viviendas, las cuales configuran senderos peatonales, entre ellos, la célula habitacional tiene un área de 53 metros cuadrados más un balcón con una dimensión de 2 metros, las cuales constan de una zona de servicios (baño múltiple, ropas y cocina) y un espacio libre.

Su sistema constructivo en el interior es estructural, permitiendo una planta libre que cuenta con dos muros en mampostería tradicional ubicados estratégicamente para una posible división, por lo que este proyecto implementa estrategias de adaptabilidad a partir de su planteamiento constructivo, además de generar espacios con una adecuada iluminación y ventilación con sus vanos idénticos y alargados, que permiten generar una iluminación acorde a cualquier uso.

Su configuración espacial plantea una zona fija con estrategias de uso múltiple como es el baño que permite ser utilizado por más personas, optimizando los espacios y a su vez genera una mayor utilidad y una planta libre sin etiqueta de usos que permite ser modificada con el tiempo permitiendo su versatilidad en la modulación con base en sus elementos constructivos, los cuales logran la versatilidad por medio de su planteamiento constructivo que permite un espacio sin delimitaciones (muros en mampostería tradicional), sino que se plantean dos muros que permiten una distribución con base en las necesidades del usuario.

Con base en esto, este es un proyecto que buscar plantear una alternativa de flexibilidad y adaptabilidad al usuario, permitiendo que este se pueda transformar con base en los usos o necesidades que se le quieran dar, alejada de los espacios sin jerarquías e integrando la multifuncionalidad de los espacios.

Figura 21. Esquema tipología la Playa, Medellín. en
Flexibilidad
la tipología 27

SOCIAL EN COLOMBIA

Proyecto Plaza la Hoja, Bogotá.

Este proyecto de uso mixto, es una iniciativa de la alcaldía de Bogotá, con el fin de generar una integración urbana con la población de bajos recursos en el centro de Bogotá, justo en la carrera 80, enfocado en el urbanismo táctico, en la cual se diseñaron 457 viviendas distribuidas en torres de diferentes alturas, su célula habitacional cuenta un área aproximadamente de 50 metros cuadrados, distribuidos en una zona de servicios (cocina, zona de ropas y baño múltiple), sala-comedor y 3 habitaciones (espacio adaptable).

Este modelo habitacional plantea una alternativa que permita transformar el espacio con el tiempo, con esto a partir de su sistema constructivo, el cual consta de muros estructurales en mampostería tradicional y la implementación de una estrategia de flexibilidad como son los muros en yeso, con el fin de que estos elementos se logran mover con facilidad.

Los espacios de este proyecto fueron pensados con base en la flexibilidad y la transformación que le pueda dar el usuario, con un planteamiento de zona de servicio, en el cual articulan la multifuncionalidad con el baño que permiten un uso múltiple, configurando a su vez una zona versátil como son las habitaciones y la sala-comedor las cuales se pensaron a partir de la modificación, por medio de estrategias en la implementación de su sistema constructivo y la utilización de mobiliario que actúa como un elemento móvil que permite ser adecuado en función del uso, generando una relación más directa con el usuario, en el cual él puede reformar sus espacios a partir de la necesidad, permitiendo que esta sea una vivienda flexible con el tiempo, teniendo en cuenta la diversidad de núcleos familiares.

Este planteamiento de vivienda flexible articula estrategias que permiten dar uso de acuerdo a la necesidad que se requiera en el momento, logrando involucrar al usuario, sin llegar a crear un prototipo para un solo tipo de personas, logrando la adaptabilidad sin necesidad de modificar su área.

Muros fijos en mampostería tradicional

Muro liviano en yeso (versátil)

Baño (uso simultáneo)

Cocina, z. ropas (z. húmedas)

Planta libre (transformable)

Mobiliario adaptableFigura 22. Esquema tipología la Hoja, Bogotá.

28 LA VIVIENDA DE INTERÉS PRIORITARIO:ESTRATEGIA

Aunque en Colombia se ha buscado plantear estrategias de flexibilidad y adaptabilidad, las cuales siempre están en constante estudio para el modelo habitacional de la Vivienda de Interés Prioritario, con el fin de plantear un diseño enfocado a la diversidad de núcleos familiares, aún son pocos los proyectos que tiene una buena planificación de los espacios.

Con base en esto se han analizado proyectos que han implementado alternativas que no son costosas las cuales permiten crear espacios de confort y versatilidad a favor de la calidad de vida de las personas que los habitan, a partir de estrategias que involucran el sistema constructivo y el diseño interior, se pueden generan los usos multifuncionales las cuales pueden ser identificadas en tipologías VIP como la Hoja, Bogotá y la Playa, Medellín, las cuales plantean otro método constructivo al tradicional, que logran una articulación con el usuario en favor a su necesidad sin modificar el área de la planta teniendo en cuenta que este tipo de proyecto, una de sus principales características son sus dimensiones tan reducidas.

Incluso con ejemplos como estos donde priman las estrategias versátiles enfocadas a crear espacios transformables sin modificar la dimensión de la tipología, estas ideas no son utilizadas por otros proyectos como es el caso de La Aurora, las cuales no plantean la flexibilidad en las viviendas como algo fundamental o necesario para quienes construyen estas células habitaciones, ya que son proyectos que se piensan en grandes masas, desde el aspecto técnico y económico, dejando de lado el social y cultural como un prototipo para un tipo de usuario alejado de la vivienda contemporánea, los cuales no responden a las necesidades los núcleos familiares y los nuevos usos los cuales están en constante transformación.

Por esta razón, es importante incluir estrategias de flexibilidad en los proyectos de vivienda, ya que no se condicionan los núcleos familiares que van a utilizar estas células habitacionales, logrando ser transformado con el pasar del tiempo basándose en las necesidades o los usos que cada usuario le quiera dar en función de la utilización.

Figura 23. Proyecto VIP la Aurora-Medellín. Figura 24. Proyecto VIP la Playa-Medellín. Figura 25. Proyecto VIP Plaza la Hoja-Bogotá.
Flexibilidad en la tipología 29
Figura 26. Collage estudios de caso. 02

FLEXIBILIDAD Y VERSATILIDAD

En este capítulo se analizarán 3 estudios de caso en España, que han implementado estrategias de flexibilidad tales: modularidad, espacios mutables y disposición móvil, que permiten desarrollar y extraer nuevas alternativas replicables al modelo de vivienda de interés prioritario con mayor adaptabilidad al usuario.

ESTUDIOS DE CASO

Estudio de

Figura 27. Interior proyecto Cornellà.
caso: Viviendas Cornellá, España. 1 MODULARIDAD 32 FLEXIBILIDAD Y VERSATILIDAD

DISPOSICIÓN MÓVIL

• Estudio de caso: Viviendas sociales Carabanchel, Madrid-España.

ESPACIOS MULTABLES

• Estudio de caso: Vivienda social, Barcelona, España.

Figura 28. Fachada proyecto Carabanchel. Figura 29. Fachada proyecto vivienda social.
3
33
2

Viviendas en Cornellá

Figura 30. Fachada edificio en Cornellá.

Arquitecto: Marta Peris y José Toral

Año: 2021

Ubicación: Cornellá-España

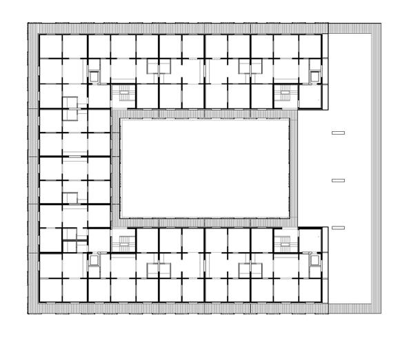
Concepto: Construir una vivienda social flexible por medio de la modularidad. Programa:Vivienda social

Las 85 viviendas se distribuyen en 4 agrupaciones y el total por piso son 18 viviendas. El diseño se estructura a partir de un patio central, y un primer nivel con pórticos que permite la permeabilidad entre lo público y lo privado, lo cual lleva a un estilo de plaza, tiene una circulación continua que actúa como fachada y a su vez es la entrada a los apartamentos.

Figura 31.Sección

Figura 33. Esquema planta módulos.

El proyecto busca la modularidad como forma de generar un espacio flexible, por medio de un módulo 3,60 x 3,60 al cual se llegó desde un gran estudio y la influencia de proyectos como: habitación de 8 tatamis 3,60 x 3,60 m, casa tradicional japonesa (1), Le Petit Cabanon 3,66 x 3,66 m Le Corbusier (2), entre otros, con el fin de crear un espacio indiferenciado, no tanto a través de la movilidad, sino con una dimensión capaz de albergar cualquier uso que se le fuera a dar y que además fuera un área generosa, en donde el usuario tenga la alternativa de cambiar los espacios, por esta razón se crea esta matriz.

Figura 32. Planta

Figura 34. Planta modular.

1-MODULARIDAD
34 FLEXIBILIDAD Y VERSATILIDAD 1 2

TIPOLOGÍA Y USOS

Elementos fijos (cocina y baño).

Figura 35. Esquema usos fijos.

Las tipologías cuentan con un módulo matriz 3,60 x 3,60 m, utilizando la agregación de este módulo es que se dan diferentes tipologías y tamaños como son de 4 y 6 módulos, siendo 2 módulos fijos como son la cocina y el baño, y los otros módulos son espacios indiferenciados, generando un gran número de posibilidades para ordenar los espacios los cuales el usuario es quien le da el uso, cuenta con una circulación interna dada por las aberturas que dejan los muros lo que permite una mayor libertad, generando una permeabilidad visual en los espacios con sus aberturas de 1,60 x 1,40 m.

Circulación

Figura 36. Esquema de usos y circulación

La privacidad de los espacios la dan las puertas corredizas según la necesidad.

Figura 37. Esquema elementos móviles.

Figura 38. Interior del proyecto.
M1 M1 M2 M2 M3 M3 M4 M4
Modularidad 35

MÓVIL

Viviendas sociales Carabanchel

Arquitecto: Aranguren + Gallegos Arquitectos

Año: 2003

Ubicación: Madrid-España

Concepto: Construir una vivienda social flexible por medio de paredes móviles. Programa:Vivienda colectiva social.

Este proyecto cuenta con 67 viviendas las cuales tienen diferentes tamaños y contienen entre 2,3 y 4 dormitorios los cuales se pueden reformar, su fachada son paneles prefabricados de hormigón, contando con ventanas de 2 m de alto por 0.60 m, generando espacios iluminados en su interior.

Figura 40. Planta 2 y 3

El sistema del proyecto es un esqueleto, con elementos fijos como son la cocina y baño, la tipología varía en función de las necesidades, la flexibilidad es pensada a partir de la movilidad de los elementos que articulan el diseño como son los muros fijos que actúan como elementos divisorios con base en la actividad o la necesidad que esta requiera y el mobiliario el cual son elementos que se pueden transformar con base en lo que el usuario necesite, por esto este sistema es pensado para la optimización de los espacios, ya que estos no tienen el mismo fluyo durante un periodo de tiempo sin limitar su uso.

Figura 39. Fachada edificio en Carabanchel. Figura 41. Interior proyecto en Carabanchel Figura 42. Esquema de usos.
2-DISPOSICIÓN
36 FLEXIBILIDAD Y VERSATILIDAD

TIPOLOGÍA Y USOS

Planta libre (flexible).

Z. servicios (cocina y baño). Circulación

Figura 43. Isométrico, distribución de espacios.

Usos durante el día Usos durante noche Usos fijos

Figura 44. Planta de usos.

El diseño plantea espacios fijos como lo son cocina y zona de ropas y espacios que se puedan modificar según la utilidad, por medio de reemplazar muros en mampostería, por elementos como los muros móviles, creando un sistema versátil, que permite que no se pierda la privacidad, que necesitan ciertos espacios, como son los espacios de descanso articulado junto con el mobiliario, permitiendo así espacios que no limitan su uso.

MOBILIARIO

Este proyecto utiliza estrategias versátiles a partir de elementos móviles, al igual que la implementación de mobiliario, siendo este parte fundamental de la célula habitacional, ya que ayuda a optimizar los espacios con base en este se genera la flexibilidad y adaptabilidad por medio de los desniveles pensados como espacios de almacenamiento.

Articulado a elementos transformables que se puede modificar para generar un uso diferentes como es pasar de espacios para el descanso u ocio a espacios para el estudio o el trabajo, permitiendo que la distribución varíe en función del día y noche, cuando hay más actividad que es durante el día las paredes se mueven y el mobiliario de los nichos se vuelve almacenamiento y en función de la noche se vuelven espacias con compartimientos donde se generan las habitaciones.

Mobiliario

Muros móviles

Espacio para el descanso o ocio Espacio para el estudio o trabajo

Figura 45. Mobiliario.

Disposición móvil 37

Vivienda social para mayores

Figura 46 . Fachada edificio en Barcelona.

Arquitecto: Bonell & Gil Peris + Toral arquitectes

Año: 2016

Ubicación: Barcelona-España

Concepto: Construir una vivienda social flexible, capaz de ser transformable con el tiempo.

Programa:Vivienda colectiva social.

Este proyecto cuenta con 105 viviendas distribuidas en 3 volúmenes, las cuales se articulan con una circulación central y con grandes ventanales que permiten la iluminación, cuenta con espacios comunitarios, logrando así que los habitantes se relacionen.

figura 47. Plantas 1,2 y 3.

Figura 48. Sección transversal.

La flexibilidad de la tipología es planteada a partir de la mutabilidad, donde el espacio tenga la oportunidad de transformarse sin tener etiqueta, si no se le da el uso con base en las necesidades que cada persona requiere, por eso se plante un núcleo central, que articula los espacios y permite, en cierta manera, una división de ellos, pero sin llegar a la limitación.

Apoyado de elementos móviles como las puertas corredizas, que juegan un papel fundamental, ya que son las responsables de dar la privacidad a los espacios o de delimitarlos cuando sea necesario.

Figura 49. Interior de la vivienda

3-ESPACIOS MUTABLES
38 FLEXIBILIDAD Y VERSATILIDAD

TIPOLOGÍA Y USOS

Z. servicios (cocina y baño).

Planta libre (flexible).

Figura 50. Planta usos.

Circulación

Figura 51. Planta circulación.

La tipología cuenta con un área de 40 m², el cual se organiza alrededor de un núcleo central, en el cual está el baño y alrededor de este núcleo se encuentran ubicados los usos fijos como son cocina y el lavamanos, el cual se divide del baño para generar un espacio de usos múltiple, lo que genera un espacio libre sin estar condicionado, logrando espacios mutables que puedan ser utilizados con base en la necesidad. Este núcleo central es el articulador y responsable de los espacios, ya que con base en él se genera la circulación y conecta o separa los espacios, puesto que a partir del diseño de este bloque se guardan las puertas corredizas, las cuales son las responsables de darle al espacio la privacidad que necesitan ciertos espacios. Lo que genera un espacio flexible y transformable, basándonos en el empleo y la necesidad, ya que no cuenta con espacios jerarquizados y estos pueden mutar con base en los empleos que se le van a dar a los espacios, generando que el usuario se apropien de ellos.

Figura 52. Esquema zonas fijas.

Espacios fijos (cocina y baño).

Figura 53. Esquema funcionamiento móvil.

Núcleo (baño), articula el espacio, responsable de conectar o separar espacios. Elementos móviles (puertas corredizas).

Espacios mutables 39

Configuración espacial

Teniendo en cuenta los estudios de caso anteriores, se pueden concluir a partir de las estrategias implementadas diversos aportes claves los cuales permiten mejorar la flexibilidad y adaptabilidad de las viviendas logrando que con el tiempo se puedan transformar con base a las necesidades de cada persona, creando espacios de los cuales el usuario tiene la autonomía de cambiar, para esto proponen, algunas alternativas de configuraciones espaciales como son la planta libre con un núcleo dejando la libertad de usos y transformar según las necesidades, o una planta modular que permite un modelo sin jerarquías las cuales pueden albergar cualquier tipo de utilidad.

Sistema constructivo - Muros móviles

Otra estrategia planteada es cambiar la mampostería tradicional o liviana por muros móviles los cuales permite dividir la planta para generar privacidad, necesarias en algunas actividades, pero a diferencia de los muros fijos, estos tienen la libertad de moverse, logrando disminuir o ampliar los espacios con base en la actividad que se vaya a realizar o inclusive actuar como una cortina que se puede correr y eliminar la división del espacio, lo cual es una alternativa para generar espacios flexibles, que aportan a la transformación de la vivienda y la funcionalidad, con base en otra propuesta del sistema constructivo utilizada en los proyectos.

Aportes claves de flexibilidad de los estudios de caso.
Figura 54. Plantas libre vivienda social para mayores y planta modular viviendas en Cornellá. Figura 55. Muros móviles, viviendas sociales Carabanchel.
40 FLEXIBILIDAD Y VERSATILIDAD

Figura 56. Mobiliario adaptable, viviendas sociales Carabanchel.

Mobiliario adaptable

Un elemento importante del cual se busca una mayor exploración, es el mobiliario adaptable el cual es una parte fundamental de la propuesta flexible, el cual se articula a la configuración espacial para crear un espacio adaptable a partir de elementos que pueden transformarse con base en la necesidad, logrando optimizar los espacios que componen la vivienda, lo cual es ideal, ya que permite dar otro uso, siendo este un planteamiento desde el aspecto de composición espacial y en el cual se trabaja muy poco, puesto que siempre se mira desde el aspecto constructivo, pero no desde el interiorismo, el cual es un aporte clave para que estos se puedan configurar con base en los usos.

Figura 57. Multifuncionalidad, vivienda social para mayores.

Espacios multifuncionales

Otra estrategia que se logró concluir con estos estudios de caso es el uso múltiple de los espacios como se propone dividir un espacio fijo como es el baño, lo que genera que varios usuarios puedan realizar la misma actividad a la vez, generando una alternativa de flexibilidad con base en la disposición de los elementos fijos las cuales son las zonas húmedas, siendo configurados espacialmente por la facilidad constructiva, a través de las nuevas propuestas han logrado que estos espacios generen la adaptabilidad y versatilidad en la vivienda, creando espacios multifuncionales en función a la necesidad y utilidad del usuario.

41
03 Figura 58. Esquema de uso múltiple, baño y z. Ropas.

ESTRATEGIAS ADAPTABLES A LA VIVIENDA DE INTERÉS PRIORITARIO.

En este capítulo después de analizar y tomar las estrategias más significativas de los estudios de caso, se proponen unas estrategias adaptables para el contexto de la vivienda de interés prioritario, con posibilidad de adecuarse a las diferentes etapas de la vida, necesidades funcionales y espaciales. Donde sea posible espacio de trabajo productivo .

ESTRATEGIAS

1ESPACIOS MULTIFUNCIONALES

Estos espacios permiten generar flexibilidad y adaptabilidad a partir de la unión de diferentes usos que permiten la simultaneidad, ya que es importante en la optimización de espacios sin cambiar las dimensiones, logrando así que estos sean utilizados por varios usuarios a la vez y el usuario a la vez puede realizar varias actividades en un solo espacio, como es el caso de la unión de elementos de servicios (cocina, baño y zona de ropas), que son espacios que son fijos debido a la implementación de redes en su construcción, por lo que se pueden acondicionar estos espacios para que no sean solamente elementos fijos que nos puedan modificar, sino que adopten la adaptabilidad a partir de los usos simultáneos en favor del usuario.

Figura 59. Esquema de uso múltiple, baño y z. Ropas.
44 ESTATEGIAS ADAPTABLES A LA VIVIENDA DE INTERÉS PRIORITARIO EN COLOMBIA

ESPACIOS SIN JERARQUÍA

Estos espacios no están condicionados ni predeterminados por la arquitectura, ya sea espacialmente o delimitados constructivamente, ya que se centran en plantas más libres y que sea el usuario el encargado de darle el uso que requiere con base en la necesidad lo que permite que se optimice el espacio y a su vez no se genere los espacios inactivos, como se ven en los proyectos jerarquizados, puesto que hay espacios que se utilizan por un tiempo específico y a su vez estos espacios se pueden ir transformando con el paso del tiempo y los nuevos núcleos familiares o la incorporación de nuevos usos como son los espacios para el trabajo, zonas productivas sin dañar las dinámicas del hogar.

Figura 60. Espacio sin jerarquía.

2
45

ESTATEGIAS ADAPTABLES A LA VIVIENDA DE INTERÉS PRIORITARIO EN COLOMBIA

Para plantear las estrategias como espacios multifuncionales y espacios sin jerarquía se analizaron los elementos que condicionan la flexibilidad en la vivienda de interés prioritario en Colombia, con lo que se analizaron 3 elementos:

Los elementos no estructurales, los cuales son los muros internos, que son los principales en permitir la flexibilidad, teniendo en cuenta que la vivienda es construida por muros fijos en mampostería, en función de las divisiones de los espacios, estos crean una estructura poco adaptable a los cambios que se puedan realizar con el pasar del tiempo, teniendo que ser derribados en muchas oportunidades, por esta razón se ha estudiado la manera de cambiar estos elementos por paredes móviles o livianas que permiten una mayor adaptabilidad y a su vez logren generar la privacidad que algunos espacios requieren.

Otro elemento son los espacios fijos como son cocina, zona de ropas y baño, ya que son espacios que necesitan redes hidro-sanitarias y por consiguiente no tienen la facilidad de cambiar, por esta razón se producen espacios mutables ya sea cocina con zona de ropas o baño con zona de ropas, con el fin de originar un espacio más óptimo.

Finalmente, el mobiliario es un elemento fundamental de las estrategias en este sistema, teniendo en cuenta que parte de la flexibilidad son estos elementos móviles que generan grandes alternativas y formas de crear espacios dependiendo de la necesidad, son elementos que muy poco se exploran en el diseño de estas tipologías, por esta razón son elementos que se articulan con los espacios para generar estrategias a transformar espacios con el pasar del tiempo y los nuevos núcleos familiares.

La VIP es una célula habitacional, que busca satisfacer las necesidades de los usuarios que la habitan, contando con un factor determinante los pocos metros cuadrados que tienen este tipo de proyectos, si se analizan las necesidades de los usuarios y el constante cambio de los núcleos familiares y la utilización de la misma con el pasar de los años, la vivienda se ha transformado y tiene nuevos usos como espacios laborales (trabajo en casa, ventas, etc.).

Figura 61. Esquema de elementos que influyen en la flexibilidad .
46

Es por esto que este tipo de viviendas necesita irse transformando, con base en esto se analiza cada espacio y la predominancia con la cual se utiliza en la mañana y noche, teniendo en cuenta que son espacios delimitados se crea un solo uso, por esta razón los espacios tienen que ser adaptables con el fin de crear espacios enfocados en la necesidad.

Con base en la frecuencia con la que se emplean los espacios, si se analizan en tiempo como es el día y la noche, se pueden originar espacios con múltiples usos,  satisfaciendo las necesidades en conjunto con la actividad que se vaya a realizar, a partir de mobiliario o elementos móviles con el fin de optimizar el mayor número de espacios.

Por ejemplo, la cocina, baño y zona de ropas son espacios con mayor empleo, los cuales son elementos fijos, pero que pueden ser multifuncionales, a partir de una buena distribución, y espacios como sala, comedor y habitaciones son elementos que tiene una mayor facilidad a la hora de la flexibilidad en la cual con el juego del mobiliario se pueden producen varias formas y alternativas de distribuir el espacio y generar diferentes empleos con base en la necesidad del usuario en su momento.

Originando espacios sin jerarquías. Los cuales no son condicionados espacialmente, favoreciendo el uso simultáneo, no se predetermina los espacios desde la arquitectura, sino que los mismos usuarios le dan el uso más adecuado, además de la incorporación de espacios para el trabajo productivo sin dañar las dinámicas del hogar. Tenido en cuenta estos aspectos arquitectónico, constructivos y de la utilidad que se le dan a los espacios, se plantean las estrategias las cuales se van a borda a continuación con el fin mostrar espacios flexibles, adaptables a la VIP, que pueden ser adaptables por otro tipo de vivienda que carezca de flexibilidad y adaptabilidad, con el fin de transformarlos en el tiempo con base en la necesidad que plantea el usuario.

Figura 62. Esquema de usos.

47

ESTRATEGIA 1: ESPACIOS MULTIFUNCIONALES

Esta estrategia propone crear espacios que puedan suplir las necesidades y usos de las personas que los van a habitar, se busca la manera de generar espacios de uso simultáneo en los elementos fijos, los cuales se deben articular más a la vivienda y no solo limitarlos por esto con el fin de generar el mayor número de usuarios y a su vez optimizar espacio, convirtiendo lugares poco utilizados en espacios en constante flujo con base en la versatilidad de actividades que se puedan llegar a realizar en el mismo espacio con tan solo mover mobiliario o tener una buena distribución.

Los espacios multifuncionales se vuelven en la mejor opción cuando se carece de metros cuadrados, además de dar la posibilidad al usuario de ejecutar múltiples tareas como por ejemplo el baño, el cual es un elemento muy usado, pero que pocas veces es modificado en su estructura, el cual puede pasar de ser usado por 1 usuario a ser empleado por 3 usuarios separados los espacios que requieren privacidad de los que no generando así que cada persona emplee lo necesita en su momento y si a demás de eso no lo condicionamos a solamente un servicio, sino poder vincular otro uso como es la zona de ropas, generando para el usuario un tema de confort o también es el caso de poder unir la cocina con la zona de ropas generando la posibilidad de darle al usuario multifuncionalidad.

Con la articulación de estos usos y la utilidad que el usuario va a implementar en ellos se crea un sistema que permite la flexibilidad y optimización logrando un significativo ahorro en metros cuadrados que pueden ser utilizados en otras actividades que este requiera y además de facilitar el sistema constructivo con la implantación de redes hidro-sanitarias en un solo lugar, por esta razón es que se deben pensar en la implementación de espacios multifuncionales cuando de recursos económicos se carece, ya que si se plantea desde el principio en la planificación y configuración espacial son espacios que pueden suplir necesidades y en las que el usuario tendrá un mejor manejo de ellos, por esta razón es que esta es una de nuestras estrategias pensadas para ser replicables en diferentes proyectos de vivienda que permitan suplir las necesidades de los diferentes núcleos familiares.

Figura 63. Esquema de espacios fijos en la vivienda. 48 ESTATEGIAS ADAPTABLES A LA VIVIENDA DE INTERÉS PRIORITARIO EN COLOMBIA

Figura 64. Esquema de uso múltiple, baño y z. Ropas.

La unión de espacios como la zona de ropas y el baño genera que más usuarios puedan utilizar estos espacios y a su vez tiene la posibilidad de no limitar los usos, sino tener la multifuncionalidad, optimizando espacio y tiempo en sus labores cotidianas.

Figura 65. Esquema de uso múltiple, cocina y z. Ropas.

Otro espacio que se puede unificar es la cocina y la zona de ropas gracias a la facilidad en su sistema constructivo, generando un espacio de múltiples usos y optimiza el mayor número de espacios y contribuyen a que el usuario tenga la posibilidad de realizar múltiples tareas.

Estrategia 1: Espacios multifuncionales 49

50 ESTATEGIAS ADAPTABLES A LA VIVIENDA DE INTERÉS PRIORITARIO EN COLOMBIA

Figura 66. Esquema de uso día.

Este mobiliario se transforma con base en la necesidad, contando con espacios de almacenamiento y espacios que permitan diferentes usos, como una mesa plegable que permite ser utilizado ya sea para el estudio o para el trabajo, con repisas para guardar elementos que sean necesarios para la actividad.

Figura 67. Esquema uso noche.

En la noche también puede ser utilizado para el descanso con una cama que se despliega y elementos de almacenamiento como es el caso de un closet, el cual se da al girar una parte del mobiliario, permitiendo un espacio completamente adaptado a la necesidad.

Figura 68. Esquema mueble versátil.

Este mobiliario se modifica sacando los elementos como muebles de tal forma que puede ser utilizado para actividades como el trabajo y estudio y una zona de estar con estante para guardar cosas, lo que posibilita que varios usuarios tenga la oportunidad de utilizarlo con base en la necesidad de cada uno.

Figura 69. Esquema muro móvil.

Este un muro móvil en forma de mobiliario, el cual puede ser utilizado como espacio de almacenamiento, este se abre para generar un doble almacenamiento y con el fin también de alargar ese elemento móvil que permite también la delimitación o la privacidad si alguna actividad lo requiere.

Estrategia 1: Espacios multifuncionales 51

52 ESTATEGIAS ADAPTABLES A LA VIVIENDA DE INTERÉS PRIORITARIO EN COLOMBIA

ESTRATEGIA 2: ESPACIOS SIN JERARQUÍA

Esta estrategia propone los espacios sin jerarquía y etiquetas, partiendo de espacios modificables donde el usuario sea el responsable de adaptarlos, según la necesidad que él requiera, es con base en esto que se parte de la flexibilidad y adaptabilidad, sin perder la privacidad que algunos espacios requieren.

Para que estos espacios cuenten con la capacidad de ser transformados, el sistema constructivo tiene que ser un gran aporte para ellos, por lo que cuando se construye con mampostería tradicional son espacios poco adaptables y son delimitados con base en la distribución o configuración espacial.

Cuando dejamos de ver el espacio sin jerarquías se da la posibilidad al usuario de ser ellos quien le den el uso para esto se requiere utilización de nuevos elementos que permitan que los espacios sean modificables con el tiempo, como se puedo ver en el proyecto 67viviendassocialesCarabanchel donde se articulan nuevos elementos como es pasar de lo tradicional a elementos móviles que permiten dar ese concepto de libertad dejando atrás los espacios inactivos que son utilizados por periodos de tiempo, por esta razón con el pasar del tiempo y la importancia que han creado los espacios multifuncionales, se ha optado por espacios que no sean rígidos, sino que permitan estos constantes cambios, los cuales no limitan las dimensiones y generar privacidad para aquellas actividades que las necesitan como es dormir, estos muros son livianos y están simple como recogerlos para liberar el espacio y empleados para otra actividad.

Si se empieza a pensar el muro como una estrategia  de espacios de almacenamiento en donde vincula un mobiliario más elaborado con diferentes alternativas de utilización, permitiendo realizar diferentes actividades, deja de ser un simple elemento de división a hacer parte del sistema que compone los elementos de la célula habitacional.

Por esta razón se involucra el mobiliario móvil pensado para funcionar como una pared que delimita cuando es necesario, pero que permite generar nuevos espacios con base en su diseño que permite la transformación.

Figura 70. Elementos no estructurales.

Planta con espacios jerarquizados

Para crear espacios sin jerarquía se debe pensar en la configuración espacial, las cuales pueden ser desde plantas modulares o con dimensiones similares que permitan un intercambio de habitaciones o incluso plantas libres, las cuales logran mayores modificaciones de estos espacios generando que el usuario transforme los usos, este ayudado del mobiliario y los elementos como los muros móviles siendo aspectos claves para la adaptabilidad, teniendo en cuenta que es una herramienta poco explorada en las VIP y son las alternativas que mayor pueden aportar a la flexibilidad.

Planta modular sin jerarquizar espacios

Planta libre sin jerarquizar espacios

Figura 71. Planta sin jerarquía.

Es por esto que el espacio tiene que ser pensado como un lugar que se emplea en favor de la actividad o la función que se le vaya a dar y no como esté catalogado, ya que al tener un empleo específico el espacio va a tener momentos de inactividad, puesto que hay actividades que no se realizan todo el tiempo y hay otras que se realizan por intervalos de tiempo por esa razón el espacio debe ser sin jerarquías y a su vez tengan la capacidad de optimizar espacio, lo que es de gran importancia cuando se tiene una vivienda de pocos metros cuadrados donde viven un número de personas con necesidades diferentes.

Por esta razón, se crean diferentes alternativas enfocadas en mobiliario y la configuración espacial en función de la necesidad, logrando ser modificables y multifuncionales, con base en la utilización de los espacios y la frecuencia con la que lo emplean los usuarios.

Estrategia 2: Espacios sin jerarquía 53

DE INTERÉS

EN

Plantear un espacio sin jerarquías a partir de una configuración espacial, ya sea por medio de módulos que tiene dimensiones similares, el cual permite albergas diferentes usos o plantas libres, con la ayuda de elementos móviles que logran dar la privacidad que la actividad requiere, generando tipologías versátiles enfocadas en la flexibilidad y adaptabilidad o articular mobiliario adaptable que permita una fácil modificación de los espacios, en este caso se plantea una tipología modular que tenga la capacidad de albergar diferentes usos, sin jerarquizarlos y permitiendo que el usuario transforme sus espacios en función a la actividad que requiera.

Figura 72. Planta sin jerarquía.
54 ESTATEGIAS ADAPTABLES A LA VIVIENDA
PRIORITARIO
COLOMBIA

Estrategia 2: Espacios sin jerarquía

Figura 73. Espacio sin jerarquía.

Aunque no todas las Viviendas de Interés Prioritario cuentan con balcón, este podría ser un buen elemento de adición a la flexibilidad de la vivienda, el cual actuaria como un espacio articulador de diferentes usos, con una dimensión adecuada que pueda albergar diversidad de amoblamiento y diferentes alternativas de ser utilizado, se crea un espacio sin jerarquía, que no se condiciona, pasando de un lugar inactivo en muchas ocasiones a un lugar con usos como comedor o zona de ropas, etc. El cual pueda implementar el usuario según la necesidad y la transformación que se le dé con el paso del tiempo o el cambio de núcleo familiar.

Balcón con dimensiones mínimas. Espacios sin jerarquía de usos (balcón con dimensiones adecuada para albergar cualquier uso).
55
CONCLUSIONES

Con el pasar de los años la vivienda necesita irse transformando para lograr satisfacer a los núcleos familiares tan diversos y los nuevos usos que se están implementando, por eso este fue el objetivo principal la problemática de flexibilidad y adaptabilidad, sobre todo en la vivienda de interés prioritario en Colombia.

La cual con el tiempo ha ido evolucionando y ha estado en constantes estudio de análisis y de la cual se ha reflexionado en torno a este tipo de proyectos sociales y que tanto se brinda calidad de vida a las personas que la habitan, como lograr cambiar estos espacios, para tener viviendas de calidad que no sean simplemente prototipo, rígido sino que sea capaz de transformarse con el tiempo de lo cual carece la VIP.

La cual se limita a cumplir con unos requerimientos técnicos, dejando de lado el aspecto más importante el usuario, ya que no son pensadas desde el tema social y cultural, sino desde el tema económico, por eso se analizaron proyectos sociales en España que han planteado espacios flexibles contribuyendo a mejorar los espacios y dar usos con en base en las necesidades del usuario, los cuales sirvieron de base para plantear las estrategias, logrando dar claros ejemplos de versatilidad en los diseños y planteamientos desde la arquitectura y como todos los elementos que hacen parte de ella actúan como sistema.

Con el desarrollo de las estrategias se permite profundizar en tácticas de flexibilidad y adaptabilidad que se pueden utilizar en la vivienda, desde la multifuncionalidad hasta espacios sin jerarquía, generando la investigación un aporte al planteamiento de la vivienda de interés prioritario a Colombia

y como está ha impactado en la calidad de vida de las personas y los nuevos retos que tiene que afrontar este tipo de modelo social, que está en constante cambio, demostrando que la flexibilidad. Las estrategias de flexibilidad y adaptabilidad propuestas en esta investigación pueden ser aplicables en el ámbito local, como lo han demostrados proyectos como la Playa, Medellín y plaza la Hoja, Bogotá, los cuales se han vuelto en referentes de las buenas prácticas de habitar, planteando desde la configuración espacial y el sistema constructivo, nuevas tácticas para la VIP en Colombia, que han optado por tipologías flexibles, dando un claro ejemplo que este tipo de proyectos, pueden contribuir a la vivienda social en Colombia, con alternativas no costosas, sino desde la vinculación de estrategias constructivas y la configuración espacial adecuada que pueden crear espacios para todo tipo de usuario.

Como aporte a mi carrera profesional me llevo una gran reflexión, los espacios se diseñan en función de la necesidad del usuario y no con base en los prototipos comerciales, como arquitectos debemos brindar espacios de calidad, ya que estas viviendas son el refugio de las personas y es donde trascurre su vida, aun en la investigación quedan incógnitas, puesto que el tema del hábitat siempre va a estar en constante estudio de adquirir nuevos planteamientos en la flexibilidad de la vivienda, pero la cual da respuesta a pregunta inicial. La vivienda social en Colombia aún tiene muchas falencias, lo cual se demostró en la investigación y aunque hay proyectos que han implementado la flexibilidad, aún se piensa la vivienda como un prototipo comercial que puede suplir las necesidades de los usuarios, cuando no es así, por eso estos proyectos necesitan de nuevas formas constructivas que se enfoquen en las necesidades del usuario.

Conclusiones 57

58 ESPACIOS MULTIFUNCIONALES EN LA VIVIENDA DE INTERÉS PRIORITARIO

ÍNDICE DE IMÁGENES

Figura 1 y 2: Vivienda de interés prioritario en Bogotá, recuperado de: https://www.kienyke.com/sites/default/files/wp-content/uploads/2017/07/ Helicoptero-Alcon-Bogota-Policia2.png

Figura 3: La playa-Medellín, ejemplo de vivienda social flexible, recuperado de: https://images.squarespace-cdn.com/content/v1/58f51143414fb53ff 70c8135/1495806315610-69CHZK9R5YPC34Z1H6YJ/_IRM2051.jpg

Figura 4 y 41: Interior Proyecto en Carabanchel, recuperado de: https://i. pinimg.com/originals/76/56/0c/76560c3cf048fd1e727eaa6dbf5ffbe3.jpg

Figura 5: Edificio la Hoja-Bogotá, recuperado de: https://images.adsttc. com/media/images/59db/732e/b22e/3855/0a00/00cd/medium_jpg/LA_ HOJA_MGP_(15).jpg?1507554070.

Figura 6: Vivienda social en Bogotá, recuperado de: https://i.pinimg.com/ originals/09/ee/57/09ee577c09f633afd5ea0b2b121d5a26.jpg.

Figura 7: Los Alcázares (1949)- Bogotá, recuperado de: http://4. bp.blogspot.com/-v8BZ8Fs4vdQ/UgKXTh11gZI/AAAAAAAAAYE/ uJwl5oEJ8oU/w1200-h630-p-k-no-nu/23.jpg

Figura 8 y 9: Barrio los Alcázeres- Bogotá, recuperado de: https://www. redalyc.org/pdf/3416/341638957019.pdf

Figura 10: Vivienda de interés social y prioritaria en Medellín, recuperado de: http://elnororiental.com/wp-content/uploads/2020/07/ IMG-20200725-WA0022.jpg

Figura 11: Línea de tiempo de la VIP en Colombia, elaboración propia.

Figura 12. Proyectos VIP- Soledad, Atlántico, recuperado de: https://lacha chara.org/wp-content/uploads/2020/07/2-Elsa1-1-1024x768.jpg

Figura 13. Proyectos VIP en Jamundi, recuperado de: https://harkon.co/ wp-content/uploads/2020/05/v1.jpg

Figura 14. Proyectos VIP- La Aurora, Medellín, recuperado de: https:// www.calculoyconstrucciones.com/wp-content/uploads/2016/01/jama71. jpg

Figura 15. Interior de la VIP- La Aurora, Medellín, recupera do de: http://www.scielo.org.co/scielo.php?script=sci_arttext&pi d=S1900-54072008000200004#f44

Figura 16: Espacios interiores deteriorados de la VIP en el barrio la Aurora,

recuperado de: http://www.scielo.org.co/img/revistas/antpo/n7/n7a04f58.jpg

Figura 17.Esquema de problemáticas de la VIP, elaboración propia.

Figura 18.Edificio residencial La Playa, Medellín, recuperado de: https://images.squarespace-cdn.com/content/v1/58f51143414fb53ff70c8135/1495806318466-F3CLIHTCQXY3248AXCK4/_MG_8079

Figura 19.Edificio residencial La Hoja, Bogotá, recuperado de: https://images. adsttc.com/media/images/59db/730b/b22e/3855/0a00/00cc/large_jpg/LA_HOJA_ MGP_(9).jpg?1507554050

Figura 20. Esquema tipología la Aurora, Medellín, elaboración propia.

Figura 21. Esquema tipología la Playa, Medellín, elaboración propia.

Figura 22. Esquema tipología la Hoja,Bogotá, elaboración propia.

Figura 23. Proyecto VIP la Aurora-Medellín, recuperado de: https://www. calculoyconstrucciones.com/wp-content/uploads/2015/06/AURORA4.jpg

Figura 24. Proyecto VIP la Playa-Medellín, recuperado de: ht tps://images.squarespace-cdn.com/content/v1/58f51143414fb53ff70c8135/1495806322658-PL4JU7MZXP4666GS1R19/MCMIRM-%283%29.jpg?format=1500w

Figura 25. Proyecto VIP Plaza la Hoja-Bogotá, recuperado de: https://carte lurbano.com/sites/default/files/editores/img_9100.jpg

Figura 26. Collage estudios de caso, elaboración propia.

Figura 27. Interior proyecto Cornellà, recuperado de: https://tectonica.archi/ projects/85-viviendas-sociales-en-cornella-de-peris-toral-arquitectes/

Figura 28. Fachada proyecto Carabanchel, recuperado de: https://arquitectu raviva.com/assets/uploads/obras/38433/av_imagen.jpg?h=2e5867c8

Figura 29. Fachada proyecto vivienda social, recuperado de: https://arquitec turaviva.com/obras/105-viviendas-para-mayores

Figura 30. Fachada edificio en Cornellá, recuperado de: https:// pro-tectonica-s3.s3.eu-west-1.amazonaws.com/resized-vpo-corne lla-jul2021-16jpg

Figura 31.Sección, recuperado de: https://tectonica.archi/projects/85-vivien das-sociales-en-cornella-de-peris-toral-arquitectes/

Figura 32. Planta, recuperado de: https://tectonica.archi/projects/85-vivien das-sociales-en-cornella-de-peris-toral-arquitectes/

Figura 33. Esquema planta módulos, recuperado de: https://tectonica.archi/ projects/85-viviendas-sociales-en-cornella-de-peris-toral-arquitectes/

Figura 34. Planta modular, recuperado de: https://tectonica.archi/pro jects/85-viviendas-sociales-en-cornella-de-peris-toral-arquitectes/

Figura 35. Esquema usos fijos, recuperado de: https://tectonica.archi/pro jects/85-viviendas-sociales-en-cornella-de-peris-toral-arquitectes/

Figura 36. Esquema de usos y circulación, elaboración propia.

Figura 37. Esquema elementos móviles, elaboración propia.

Figura 38. Interior del proyecto, recuperado de: https://tectonica.archi/pro jects/85-viviendas-sociales-en-cornella-de-peris-toral-arquitectes/

Figura 39. Fachada edificio en Carabanchel, recuperado de: https:// arquitecturaviva.com/assets/uploads/obras/38433/av_medium__av_89931. jpeg?h=2e5867c8.

figura 40. Planta 2 y 3, recuperado de: https://arquitecturaviva.com/assets/ uploads/obras/38433/av_89930.jpeg?h=2e5867c8.

Figura 42. Esquema de usos, elaboración propia.

Figura 43. Isométrico, distribución de espacios, elaboración propia.

Figura 44. Planta de usos, recuperado de: https://arquitecturaviva.com/ obras/viviendas-sociales-1-10

Figura 45. Mobiliario, elaboración propia.

Figura 46 . Fachada edificio en Barcelona, recuperado de: https:// arquitecturaviva.com/assets/uploads/obras/39034/av_medium__av_13322. jpeg?h=ab6c4c07.

figura 47. Plantas 1,2 y 3, recuperado de: https://arquitecturaviva.com/ assets/uploads/obras/39034/av_13326.jpeg?h=ab6c4c07.

Figura 48. Sección transversal, recuperado de: https://arquitecturaviva.com/ assets/uploads/obras/39034/av_13323.jpeg?h=ab6c4c07.

Figura 49. Interior de la vivienda, recuperado de: com/assets/uploads/obras/39034/av_13333.jpeg?h=ab6c4c07.https://arquitecturaviva.

Figura 50. Planta usos, recuperado de: https://arquitecturaviva.com/obras/105-viviendas-para-mayores

Figura 51. Planta circulación, recuperado de: https://arquitecturaviva.com/obras/105-viviendas-para-mayores

Figura 52. Esquema zonas fijas, elaboración propia.

Índice de imágenes

Figura 53. Esquema funcionamiento móvil, elaboración propia.

Figura 54. Figura 54. Plantas libre vivienda social para mayores y planta modular viviendas en Cornellá, elaboración propia.

Figura 55. Muros móviles, viviendas sociales Carabanchel, elaboración propia.

Figura 56. Mobiliario adaptable, viviendas sociales Carabanchel, elaboración propia.

Figura 57. Multifuncionalidad, vivienda social para mayores, elaboración propia.

Figura 58 y 64. Esquema de uso múltiple, baño y z. Ropas, elaboración propia.

Figura 59 y 65. Esquema de uso múltiple, cocina y z. Ropas, elaboración propia.

Figura 60 y 73. Espacio sin jerarquía, elaboración propia.

Figura 61. Esquema de elementos que influyen en la flexibilidad, elaboraciónpropia.

Figura 62. Esquema de usos, elaboración propia.

Figura 63. Esquema de espacios fijos en la vivienda, elaboración propia.

Figura 66. Esquema de uso día, elaboración propia.

Figura 67. Esquema uso noche, elaboración propia.

Figura 68. Esquema mueble versátil, elaboración propia.

Figura 69. Esquema muro móvil, elaboración propia.

Figura 70. Elementos no estructurales, elaboración propia.

Figura 71. Planta sin jerarquía, elaboración propia.

Figura 72. Planta sin jerarquía, elaboración propia.

59
BIBLIOGRAFÍA

• Cano, M. (2015). Transformación de los conflictos y las violencias generadas por la coexistencia de grupos reasentados en la ciudadela nuevo occidente[online] Medellín, pp.1-106.recuperado de http://repository. unaula.edu.co:8080/bitstream/123456789/976/1/unaula_rep_pos_mae_ eduder_2015_tcion_conflicto.pdf

• Carboni, I. (2017). La flexibilidad en la vivienda contemporánea, propuesta de seis modelos tipológicos, pp 1-145 recuperado https://issuu. com/icarboni/docs/la_flexibilidad_en_la_vivienda_cole.

• Camargo, J. (2011). Normas mínimas de urbanización en Colombia: origen, desarrollo y potencial, recuperado de https://repositorio.uniandes. edu.co/bitstream/handle/1992/14754/u470832.pdf

• Castro, G y Díaz, C. (2011). Vivienda de interés de prioritario para la población desplazada: Problemática, lineamientos y propuesta de modelo de implementación, recuperado de https://repository.javeriana.edu.co/ bitstream/handle/10554/1765/DiazCastanedaCamiloHernan2011.pdf

• Ceballos, O, Tarchopulos, D y Saldarriaga, A (2008) Vivienda social en Colombia: Una mirada desde su legislación. 1918-2005. Editorial Pontificia Universidad Javeriana.

• Corporación Colegio de Villa de Leyva; CEHAP y CITCE, 1996.Estado, ciudad y vivienda: urbanismo y arquitectura de la vivienda estatal en Colombia, 1918-1990 recuperado de https://repositorio.unal.edu.co/ bitstream/handle/unal/12020/VivEstatal.pdf.

• Goméz B. (2012). Uribe, M (2015). Gestión de vivienda de interés prioritario a partir de la Implementación de los Planes de Ordenamiento territorial :El caso de la ciudad Medellín, recuperado de https://repositorio. unal.edu.co/bitstream/handle/unal/9739/43861794._2012.pdf

• Guisao, S y Medina, J. (2019). Transformaciones al modelo de vivienda de nterés prioritario, municipio de Medellín. [online] Medellín, pp. 1-94 recuperado de https://issuu.com/cartillasinvestigacion/docs/cartilla_ final_transformaciones_al_.

• Montaner, J, Muxí, Z, Falagán, D.(2011). Herramientas para habitar el presente, pp. 53 recuperado de: https://www.academia.edu/43278250/ HERRAMIENTAS_para_habitar_el_presente_Tools_for_Inhabiting_ the_present

• Roa, M. (2018). Agentes, proyectos y resultados, pp.1-32.recuperado de https://www.academia.edu/37089693/La_transformaci%C3%B3n_ de_la_casa_en_serie_financiada_por_el_Estado_en_ Bogot%C3%A1_1938_1958_Agentes_proyectos_y_resultados.

• Salazar, N (2016). El tipo y la tipología en la arquitectura de la vivienda: Incidencia del sitio, la actividad y la técnica como factores externos de la arquitectura en el proyecto de vivienda. Recuperado de http://bdigital. unal.edu.co/54587/1/nelsonenriquesalazarsolano.2016.pdf

• Schmidt III, R., Eguchi, T., Austin, S. y Gibb, A. (mayo de 2010). ¿Cuál es el significado de adaptabilidad en la industria de la construcción? En la 16ª Conferencia Internacional sobre “Edificio Abierto y Sostenible (pp. 17-19).

• Uribe, M (2015). Vivienda social en Medellín. Propuesta de un modelo habitacional diferente, ciudad de Madrid. [online] Madrid, pp. 1-15 recuperado de http://oa.upm.es/47258/1/INVE_MEM_2015_260014.pdf

Bibliografía 61

ESPACIOS MULTIFUNCIONALES EN LA VIVIENDA DE INTÉRES PRIORITARIO EN COLOMBIA

Esta investigación cuestiona la poca flexibilidad que tienen los espacios en la vivienda de interés prioritario en Colombia y su poca modificación con el paso del tiempo para responder a las necesidades y los núcleos familiares tan diversos, desvinculando al usuario, ya que es pensada como un prototipo, generando con esto un gran impacto en la calidad de vida.

Partiendo de diferentes estudios de caso como: viviendas sociales, Cornellà, y otros proyectos de España, permite dar a conocer la flexibilidad desde diferentes planteamientos como son la modularidad, disposición móvil y espacios mutables, logrando dar una alternativa al habitante para ser utilizados en función de la necesidad, generando espacios multifuncionales que logran articular al usuario.

Con base en los referentes analizados, se pretende generar estrategias replicables que permitan flexibilidad a los proyectos VIP, ya que cada vivienda es usada por un número significativo de personas y no cuentan con las condiciones necesarias, tanto en dimensión como en versatilidad para los diferentes núcleos familiares. La implementación de diferentes estrategias convierte los espacios de un solo uso a espacios múltiples que pueden ser empleados por diferentes usuarios, planteando una vivienda más eficiente y la cual óptima los espacios, al igual que los convierte en multifuncionales.

Palabras clave: Espacios multifuncionales, Vivienda de Interés Prioritario, versatilidad, flexibilidad, núcleos familiares, espacios mutables.

Turn static files into dynamic content formats.

Create a flipbook
Issuu converts static files into: digital portfolios, online yearbooks, online catalogs, digital photo albums and more. Sign up and create your flipbook.