


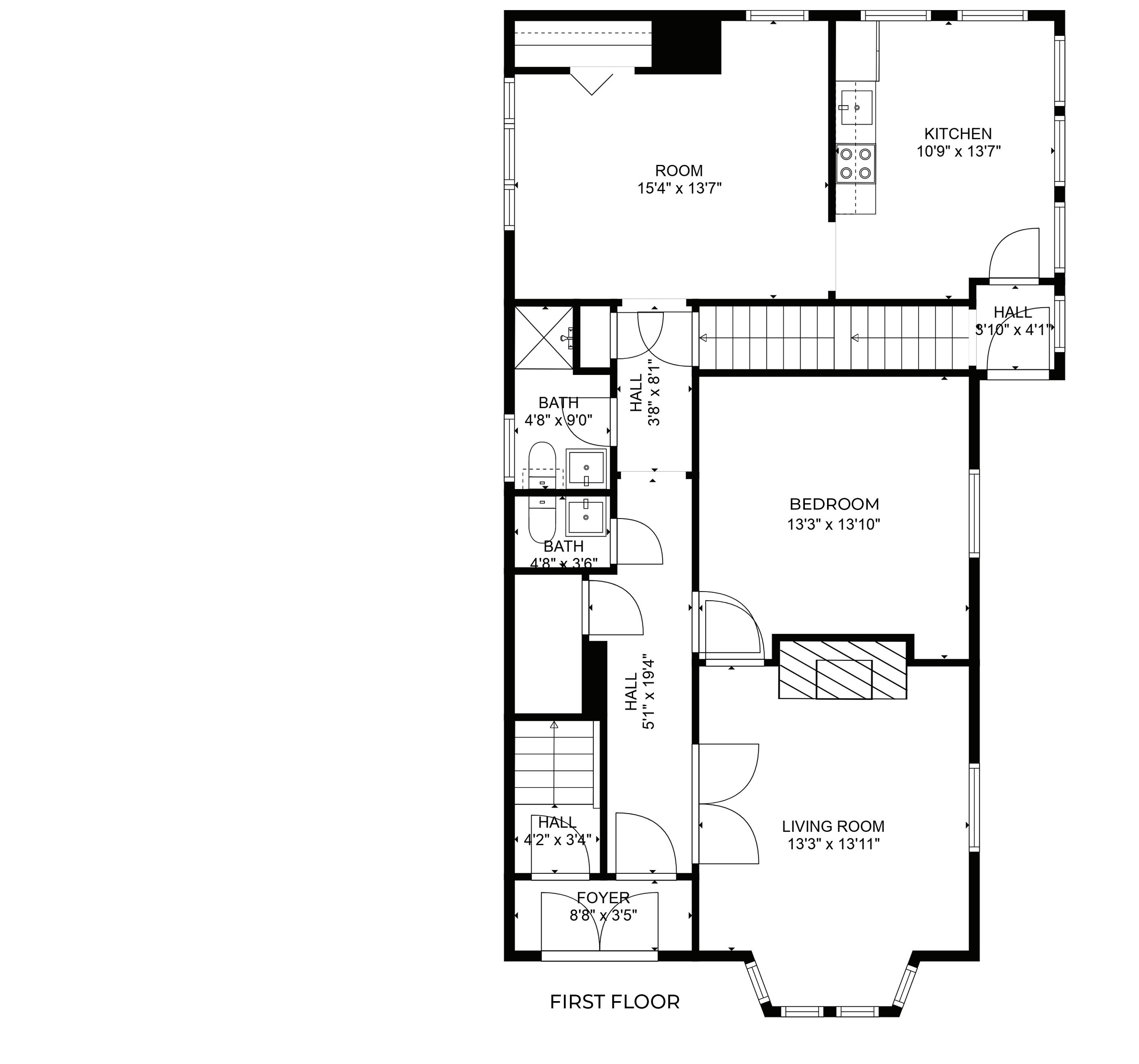
Prime Downtown location - One block from Historical Plymouth Waterfront this 5-Bedroom, 4-bath (2 full 2 half) approximately 2,500 square foot Colonial in TC zoning has various opportunities - Single-family living, Legal 2-Family, Multigenerational living, rental investment ~ can be short term or long or Specialty Retail / office. The first level boasts the living room with fireplace, 2 bedrooms, 1.5 baths and light and bright kitchen. Take the staircase with period details to the second level boasting a great room, bedroom, 1.5 baths and second kitchen with open concept. The third floor has 2 additional bedrooms one with an Oceanview. Walk-out basement with plenty of storage has potential for finished space, off street parking for 8 cars. Nelson St park, playground and beach just a short stroll away. Entertainment and fine dining minutes away. Ready for immediate occupancy. Town water, sewer and natural gas - Endless opportunities.