Briceño Tocancipá 1-2022

Page 1

briceño - tocancipá región metropolitana

Atlas Ecléctico 2022

Integrantes:

Alejandra Cote Acosta

Natalia Cruz Rodríguez

Daniela Rodríguez Landa

Directores:

Fernando Rubio

Juan Jacobo Molina

Componentes:

Gestión: Christhian Ortega

Estética: Fabio Avendaño

Ambiental: Laura Mantilla

Social: Mario Mayorga

Tecnología: Tomás Santacruz

briceño-tocancipá Atlas ecléctico 2022

ZONA DE ESTUDIO FRANJA

REGIONAL CATÁLOGO DE CÓDIGOS SÍNTESIS DE FENÓMENOS PROYECTO URBANO BOGOTÁ METROPOLITANA ANÁLISIS AMBIENTAL METACITY | DEMOGRAFÍA

FENÓMENOS DESARROLLO URBANO

contenido

Centros Urbanos - 2022 - Atlas 7 1 2 3 4 5 6 7 8 9 10 11 12 METROPOLIZACIÓN
METROPOLITANAS
ÁREAS

CENTROS URBANOS

Centros urbanos es un taller de arquitectura y urbanismo que busca generar un cambio tanto formal, como analítico en el desarrollo de las ciudades del siglo XXI; todo esto mediante el entendimiento del verdadero significado de lo urbano, lo metropolitano y la ciudad como ese espacio dinámico que es generado a partir de las relaciones e interacciones entre individuos y de manera multiescalar.

Para esto se parte de la nueva concepción de lo metropolitano mediante la observación de las diferentes espacialidades y dinamicas que conforman lo urbano. Dicho enfoque nos permite comprender las relaciones que tiene la sociedad con el espacio que habita y cómo lo transforma.

Centros Urbanos - 2022 - Atlas 8 Introducción

METROPOLIZACIÓN

“Integración en un único conjunto de diferentes áreas urbanas dispersas, entre las cuales se establecen interrelaciones e interdependencias desde el punto de vista social, económico y cultural”

francesco indovina

Centros Urbanos - 2022 - Atlas 12 Cita Metropolización

metropolización

Las múltiples transformaciones socioeconómicas, la mundialización de la economía junto con la evolución de los procesos productivos hacia formas de producción más flexibles y fragmentadas, los avances en sistemas de comunicaciones, trajeron consigo consecuencias en las múltiples esferas de la sociedad humana, cambios en patrones de asentamiento, dispersión de población y actividades llegando a espacios anteriormente periféricos.

Esto genera un nuevo espacio urbano descentralizado, discontinuo y extendido a lo largo de las vías de comunicación organizada en redes de centros y sistemas urbanos. Es una integración sistémica por encima de los límites político-administrativos; sin embargo, debido a la falta de planificación conjunta entre los municipios y a una dinámica de crecimiento acelerado, incontrolado y expansivo, se configura un territorio mediante fragmentos desarticulados. Los diversos centros urbanos que componen al territorio metropolitano operan a escala metropolitana o regional, especializándose por funciones que cumplen dentro de la metrópolis: ciudades dormitorio, ciudades industriales, municipios de trabajo, de servicios, de recreación… Así, se relacionan generando interdependencias y se crean nuevas modalidades de uso del territorio por parte de los diferentes grupos sociales.

Por esto, el territorio metropolitano termina por configurarse en una retícula sobre la cual se dispone un proceso de urbanización disperso.

Centros Urbanos - 2022 - Atlas Centros Urbanos - 2022 - Atlas 14 15 Metropolización contexto
Metropolización cita
“El proceso de una masiva dispersión de las actividades sobre el territorio, equiparable al concepto de la -explosión de la ciudad-”
FONT ARRELLANO

Título del capítulo

ÁREAS METROPOLITANAS

Subtítulo del capítulo

CONTEXTUALIZACIÓN

metropolización en COLOMBIA

En Colombia, el proceso de metropolización se vio afianzado por el intenso proceso de urbanización en los últimos 40 años, la polarización del desarrollo económico en sus principales regiones en torno a una serie de centros urbanos: Bogotá, Cali, Medellín, Barranquilla y Bucaramanga.

La metropolización se genera como consecuencia de la ruptura de las escalas urbanas, por un deterioro crítico del ecosistema, conflictos de dependencia intermunicipal en materia de usos de suelo y de control de actividades productivas. Este fenómeno requirió el diseño de una serie de instrumentos de articulación y cooperación entre distintas localidades.

El objetivo de estos instrumentos es contribuir efectivamente a la adecuada planeación del desarrollo urbano integral y, a la generación de sinergias positivas entre municipios vecinos que deben coordinar sus planes de ordenamiento territorial, sus sistemas de transporte, sus programas de vivienda, servicios públicos, infraestructura vial, seguridad, y ante todo, la protección del medio ambiente y la generación de espacios públicos adecuados para garantizar la calidad de vida de los habitantes urbanos.

Centros Urbanos - 2022 - Atlas Centros Urbanos - 2022 - Atlas 18 19
Áreas metropolitanas
Contextualización
Áreas metropolitanas

metropolización en BOGOTÁ

La conformación de una nueva ciudad metropolitana en la Sabana de Bogotá, a causa de la “explosión de la ciudad” (Font Arellano, 2007), es un proceso que se encuentra en marcha. La evidencia se observa en la urbanización reciente de las áreas rurales de la Sabana de Bogotá y en la materialización del proceso que tiene lugar en el territorio: la aparición en los últimos treinta años de ciertos patrones urbanísticos y arquitectónicos residenciales, productivos, de distribución y de ocio, junto a procesos informales de urbanización.

Una característica morfológica de la transformación de los territorios metropolitanos es la dispersión de la urbanización impulsada, entre otros muchos factores de primer orden, por la mejora en las infraestructuras del transporte vial y ferroviario, la mejora en las condiciones económicas del país y un mayor bienestar de las personas y la colmatación del núcleo de la ciudad central. El fenómeno metropolitano se presenta en tres modelos de crecimiento: por agregación, por dispersión y por polarización. Estos modelos de crecimiento adquieren materialidad a través de los patrones urbanísticos: estructura espacial, urbanística, arquitectónica y funcional, generando una configuración física concreta, es decir, al sistema de relaciones entre parcelas, edificios, vialidad, espacio libre, equipamientos y dotaciones, que son las nuevas modalidades de organización espacial que construyen la realidad metropolitana reciente.

Centros Urbanos - 2022 - Atlas 20 Metropolización Bogotá

BOGOTÁ METROPOLITANA

Bogotá y sabana

Área metropolitana

GachancipáBogotá

17 4 5

BOGOTÁ-SABANA 3

6

15 16

18 19 20 21 22

13

7 8 9 10 1

12 11 LEYENDA FusagasugáTocancipá 1 12 Soacha La Calera 3 14 Zipacón Funza 5 16 SubachoqueTabio 7 18

14

Sibaté Sopó 2 13 Bojacá Mosquera 4 15 FacatativáTenjo 6 17 Zipaquirá Cajicá 8 19 Cogua Chía 9 20 Nemocón Cota 10 21

Centros Urbanos - 2022 - Atlas Centros Urbanos - 2022 - Atlas 24 25
11 22
La conformación de una nueva ciudad metropolitana en la Sabana de Bogotá, a causa de la “explosión de la ciudad” (Font Arellano, 2007), es un proceso que se encuentra en marcha. La evidencia se observa en la urbanización reciente de las áreas rurales de este territorio y en la materialización del proceso que tiene lugar en el territorio: la aparición en los últimos treinta años de ciertos patrones urbanísticos y arquitectónicos residenciales, productivos, de distribución y de ocio, junto a procesos informales de urbanización. 2

Plan integral de desarrollo para municipios con más de 200.000 hab, y propone el control público sobre los usos del suelo urbano, la descentralización industrial, aplicación de técnicas modernas de coordinación urbana regional, la protección ecológica.

1984

Construcción de la terminal de transportes. Con ella se dio respuesta a la necesidad imperante de agrupar a las empresas de transporte intermunicipal en un sitio adecuado, con operaciones nacionales.

1989

1991

Ley 9 de 1989 en la cual obligatoriedad de presentar planes de desarrollo físicos para la viabilidad de las políticas de gestión del suelo en un contexto descentralizado.

Cierre del sistema de ferrocarril de la Sabana Constitución Política Nacional en 1991 fomenta los procesos de descentralización política, fiscal y administrativa, la planificación del territorio adquiere una importancia vital.

Centros Urbanos - 2022 - Atlas Centros Urbanos - 2022 - Atlas 26 27 Área metropolitana desarrollo histórico
1978 1960 1949
1972 1966

Instalación de complejos industriales nacionales e internacionales de exportación en municipios de Chía, Cajicá, Tocancipá, Sopó Funza, Mosquera.

Articulación industrial de tipo nacional con diferentes regiones del país por corredores viales.

Ley 388,creación progresiva de los POT (Planes de Ordenamiento Territorial) en los municipios y distritos.

Ley 1625 de 2013 Régimen para las Áreas Metropolitanas en Colombia define los lineamientos jurídico-normativos requeridos para la conformación de áreas metropolitanas en Colombia.

Centros Urbanos - 2022 - Atlas Centros Urbanos - 2022 - Atlas 28 29 Área metropolitana desarrollo histórico
1996
1993 1984 1978
1997 2013 2013 1998

estructura ecológica principal Área metropolitana

CUERPOS HÍDRICOS

La “vida urbana” y la “vida rural” son dos factores principales que afectan la vida de los cuerpos hidricos dentro de BogotáSabana, pues afecta su cauce y fluidez de manera significativa.

ZONAS DE PROTECCIÓN

La Sabana de Bogotá cuenta con una poca cantidad de humedales, los cuales se ven cada vez más amenazados por las nuevas propuestas de edificaciones y uso de su territorio. Por la acción humana han perdido los bordes naturales que conforman su morfología y la serie de transiciones entre especies vegetales y animales que permiten el balance normal de su ecosistema.

TEMPERATURA

La densidad poblacional afecta directamente en la temperatura actual y futura de la ciudad. Las zonas más densas es donde se concentra la mayor cantidad de contaminación, lo que causa un aumento de temperatura casi 3 veces mayor que en las zonas cercanas a los cerros orientales y los grandes cuerpos arbóreos.

LEYENDA

Huella urbana

Zonas de protección regional

Cuerpos hídricos

Zonas de protección urbana

Centros Urbanos - 2022 - Atlas Centros Urbanos - 2022 - Atlas 30 31

AUTOPISTA

Cuentan con dos o más carriles y están diseñadas para la movilización masiva de automóviles, buses y vehículos de carga. La Autopista La Caro, la ruta nacional 55 son ejemplos de este tipo de vía perteneciente a la red primaria.

CORREDOR REGIONAL

Los Corredores Urbanos son elementos conectores de núcleos secundarios del área metropolitana, independizando su circulación de la red principal de Bogotá, pretendiendo agilizar los trayectos de carga y de movilidad individual.

MALLA arterial local

Esta red está compuesta por las vías troncales, que son de ocho o más carriles y permiten la circulación de vehículos de servicio público masivo en sus calzadas interiores.

Centros Urbanos - 2022 - Atlas Centros Urbanos - 2022 - Atlas 32 33 Área metropolitana Movilidad
LEYENDA Corredor Regional Malla Local Malla Arterial Local Autopistas

rESIDENCIAL

Es el uso predominante en la región. Esto es debido a que es una región metropolitana altamente densa de población, lo que genera una gran demanda de proyectos de vivienda de todo tipo.

INDUSTRIAL

Se localiza mayoritariamente en los bordes de la mancha urbana de la ciudad de Bogotá y en los corredores viales de más interconexión como lo son la calle 13, la calle 80, la autopista sur y la autopista norte, aprovechando la cercanía al mercado de bogotá pero evitando las congestiones que se producen dentro de la misma.

EQUIPAMIENTOS

Los equipamientos se distribuyen de manera relativamente equitativa por toda la región, aunque hay zonas que cuentan con un déficit de servicios. Esto se da debido a la segregación socioespacial muy presente por la división en estratos socioeconómicos.

COMERCIAL

Aunque el uso comercial es algo que se encuentra en todo el sector, se concentra principalmente en la zona centro de la ciudad, en barrios como San Victorino.

Centros Urbanos - 2022 - Atlas Centros Urbanos - 2022 - Atlas 34 35 Área metropolitana Usos LEYENDA Industria Equipamientos Comercio Residencia

Título del capítulo

Subtítulo del capítulo

zona de estudio

Briceño - tocancipá

Zona de estudio

Caracterización del TRIÁNGULO

Localizado sobre la ruta nacional 55 o troncal central del norte a 35 kilómetros del Distrito Capital en el área geográfica de la sabana de Bogotá, limitada en el oriente por el sistema montañoso de la cuenca del río Teusacá, por el norte con el río Bogotá, por el sur occidente con la formación montañosa denominada cerro Tibitoc y por el sur con el ramal de la ruta nacional 55 que conecta Briceño con el casco urbano de Sopó. Geográficamente se caracteriza principalmente por su relieve de planicie y valle; cercado por el sistema montañoso de la cordillera oriental, el río Bogotá.

Centros Urbanos - 2022 - Atlas 38

cARACTERIZACIÓN DEL SECTOR

La franja de Briceño-Tocancipá se caracteriza por ser un desarrollo sin fundación colonial, estructurado por la Ruta Nacional 55 de manera longitudinal y axial. Es un territorio caracterizado principalmente por el ocio y por el uso industrial. Ambas actividades tienen como soporte las grandes piezas que los configuran, así como la malla vial sobre la cual se implantaron, aprovechando la alta conectividad y accesibilidad con la que cuentan por el alto desarrollo de la infraestructura de movilidad.

Centros Urbanos - 2022 - Atlas Centros Urbanos - 2022 - Atlas 40 41 Zona de estudio Franja

Es una vía en doble calzada con separador verde un perfil de 30 metros, conecta la ruta nacional 55 en línea recta hasta el autódromo. Cuenta con ciclorruta y alameda.

Ramal que se cuelga a la ruta nacional 55, teniendo su intersección en el punto medio del triángulo, la vía ha conservado su perfil pero ahora cuenta con superficie en rodadura asfáltica.

1998 - 2015

Vía que conecta con la ruta nacional 55 con la vía piense monte. Ha conservado su perfil en las últimas cinco décadas, pero ahora fuente con superficie en asfalto.

Vía principal que conecta Bogotá con el norte del país, en 1998 duplica en su perfil, generando doble calzada. Es el perfil vial de mayor jerarquía en el sistema

Centros Urbanos - 2022 - Atlas Centros Urbanos - 2022 - Atlas 42 43 Zona de estudio evolución de las vías 1988 1957 2005 15m 6.5m7.5m2m 30m 9m 9m 7.5m6.5m
Vía Autódromo Vía Canavita-Buenos Aires
1988
1957 1957 10m 7.5m 8m 30m 8m 16m 12m 60m 16m8m 4m7m 7m4m 20m 5m 6.25m 5m 6.25m
Vía Sopó - Briceño - Zipaquirá
1970
Ruta Nacional 55

Llega Alpina a Sopó. Primera sede de la historia de Alpina, sus dueños eran de nacionalidad suiza y llegan a Colombia huyendo de la Segunda Guerra Mundial.

La vía se constituye con la ruta nacional 55, conocida también como Troncal del Norte, en paralelo con el corredor ferroviario, de allí se desprenden ramales secundarios Briceño-Sopó-Salitre y Briceño-portachuelo-Zipaquirá.

Imágenes históricas

Se pavimentan y realzan las vías secundarias, así como la ampliación de las servidumbres, que hoy en día conforman la estructura de vías públicas.

Se inaugura el Autódromo de Tocancipá. Considerado uno de los proyectos automovilísticos más importantes del país. Se eligió esta ubicación debido a que el espacio cumplía con todas las exigencias del deporte y porque poseía una excelente proyección de desarrollo futura.

Inauguración Parque Jaime Duque, este se construyó con el fin de generar ganancias para ayudar a entidades sin ánimo de lucro dedicadas al servicio de los ancianos, adultos y los niños.

Se finaliza la ampliación en doble calzada de la ruta nacional 55, desde la salida norte de Bogotá hasta el municipio de Tocancipá, 2 kilómetros al norte de la intersección de Briceño-Sopó.

Centros Urbanos - 2022 - Atlas Centros Urbanos - 2022 - Atlas 44 45 Zona de estudio desarrollo histórico
1945 1957 1960 - 1969
1980 1983 1998

Se amplía la ruta 55 a doble calzada, generando separador y red de andenes. En la actualidad es la vía que se desprende de la troncal del norte, quedando en paralelo por aproximadamente 800 metros.

Imágenes históricas

En el 2004 se finalizó el proceso de adquisición de Cervecería Leona que inició en el año 2000.

Sika inaugura su tercera planta en el país. Con esta nueva obra se espera suplir la demanda local y además atender las ventas a Venezuela y a los principales países de Centroamérica. Cuenta con una sede administrativa, zona de producción y logística, un edificio de operaciones, laboratorios técnicos especializados y un centro de distribución.

Bavaria se traslada por completo de Bogotá a Tocancipá, dicha acción se realiza debido a una caída en las ventas sufridas durante dos años consecutivos. El siguiente año Bavaria realiza una expansión de su fábrica.

Inauguración de nueva planta de Coca-Cola FEMSA en Tocancipá, la cual generó más de 150 empleos directos, tuvo una inversión social de US$1 millón y cuenta con certificación Leed. En dicha planta se llevarán a cabo todos los procesos para que la bebida salga directo a los estantes.

Parque Arauco, compañía chilena desarrolladora y operadora de activos inmobiliarios, llega a Colombia en 2017 con el centro comercial Premium Outlet Arauco en Sopó, donde busca imponer el concepto de fashion center, tiendas con marcas de lujo en formato outlet.

Centros Urbanos - 2022 - Atlas Centros Urbanos - 2022 - Atlas 46 47 Zona de estudio
desarrollo histórico
2000 2009 2004
2010
2015 2017
49 Centros Urbanos - 2022 - Atlas Leyenda Chatarra Bodega Comercio Casa comercio Oficinas Automotriz Invernaderos Sala Ventas Vivienda Ocio Comercio cantera Hotel Parqueaderos Aire Libre Cafetería Educación Restaurantes Industria Construcción Hacienda Servicio Estación servicio

Metacity

El Metacity consiste en una representación gráfica desglosada y específica que permite tener un diagnóstico cuantitativo y porcentual de los usos del suelo. Permite comprender de manera más precisa la manera en que se emplea el territorio y qué caracteriza más al lugar. En el caso de Briceño-Tocancipá, hay un uso predominante residencial por la cantidad de piezas de vivienda que hay. Sin embargo, el uso industrial es un uso que determina al sector.

CONCLUSIÓN

A pesar de lo arrojado por los porcentajes, las construcciones que tienen mayor impacto y jerarquía en el territorio son las del sector industrial y las de ocio, no solo por el espacio que abarcan en la franja, sino también por su nivel de alcance. Por ejemplo, en el sector industrial podemos hablar de un alcance global en algunos casos, mientras que, en lo relacionado al ocio es de un alcance regional e incluso nacional. Siendo estas dos actividades las mayor protagonismo en el sector de estudio.

En cuanto al estado de las edificaciones, las construcciones que conforman las categorías antes mencionadas son las que se conservan en el mejor estado, en lo referente a las demás, la mayoría se pueden considerar de un nivel medio, exceptuando los parqueaderos y lo relacionado a servicios.

Centros Urbanos - 2022 - Atlas 50
16% 14% Ocio Residencia Comercio Industria 61% 20% 51 Centros Urbanos - 2022 - Atlas Análisis metacity
Centros Urbanos - 2022 - Atlas 52 Nolli Franja 53 Centros Urbanos - 2022 - Atlas
Leyenda Terreno Poroso Parques
Predios Agua No poroso Sólidos Vías

ANÁLISIS AMBIENTAL

Título del capítulo Subtítulo del capítulo

Actualmente la consciencia ambiental es uno de los temas más importantes en la sociedad en que vivimos debido a la gran influencia e impacto que esta tiene sobre el mundo en que vivimos y que hasta el día de hoy conocemos. Como primera medida es importante entender que cada pequeño fragmento de nuestras vidas, es el resultado de todo un proceso natural y ambiental, desde el lugar donde vivimos, hasta lo que comemos a diario. Sin embargo, aunque es un tema tan tratado y controversial, parece quedarse en palabras, pues con los años, a pesar de conocer tan bien dicha problemática, los daños causados son cada vez más severos e irreversibles.

Como respuesta por parte de nuestras autoridades ambientales, ha surgido diferentes campañas y normativas que pretenden educarnos ambientalmente como sociedad para impedir que dicho caos siga aumentando y que lleguemos a un punto en el que no tengamos un lugar que habitar. Dichas respuestas abarcan diferentes disciplinas, siendo el urbanismo y la arquitectura una de ellas, pues en su mayoría, los materiales implementados tienen un impacto considerablemente negativo en el medio ambiente, por lo que se busca una construcción y un diseño más amigable y respetuoso con su entorno desde los procesos, la materia prima implementada hasta la vida posterior del mismo.

En cuanto al urbanismo específicamente, esta consciencia ambiental busca ser entendida desde las estrategias de conformación de las ciudades y los espacios vacantes (especialmente los verdes) que se encuentran en estas. Es necesario comenzar a conformar espacios que funcionen como una respuesta adecuada a las problemáticas y exigencias actuales. Es necesario conformar espacios de permanencia funcionales que le permitan a los usuarios interactuar de manera directa con su entorno ecológico y que de esta forma cultiven una conciencia ecológica más adecuada a la que reclama nuestro entorno actualmente. Igualmente, un proceso adecuado de intervención ambiental, se conforma por un adecuado e intuitivo uso de las especies vegetales, pues funcionan como potenciadoras de dichas estrategias ambientales al limpiar todo el aire, las aguas y producir más oxígeno.

En este punto, hacemos referencia al sector de Briceño – Tocancipá, pues a pesar de contar con un gran número de intersticios verdes, estos están completamente inactivos y con una gran deficiencia arbórea. Igualmente, es un territorio potencialmente industrial, por lo que se ve afectador por las grandes nubes de humo negro que día a día van creciendo por la llegada de nuevas empresas productoras. Es por esto que, aunque es un territorio con una posibilidad fuerte de crecimiento, necesita potenciar su estructura ecológica principal e implementar de forma más eficiente, las normativas de sostenibilidad y las directrices de una ciudad sostenible.

Centros Urbanos - 2022 - Atlas 56
Consciencia ambiental
Análisis ambiental
introducción

densidad de vivienda

Análisis ambiental

Mediante el gráfico podemos notar que la densidad de viviendas en la franja Briceño-Tocancipá es baja, comienza a aumentar con la llegada de los conjuntos de viviendas multifamiliares que van surgiendo en el territorio en forma de islas.

En lo relacionado a la permeabilidad del suelo, es evidente que, debido a la poca densidad de construcciones en el sitio, el suelo posee en su mayoría una gran permeabilidad, excepto en los suelos que han sido intervenidos.

Centros Urbanos - 2022 - Atlas Centros Urbanos - 2022 - Atlas 58 59
LEYENDA Baja Media Media alta Alta Análisis ambiental permeabilidad
LEYENDA 50% 80% >80% 30% 40% 20% - 30% <20%

Proximidad, conectividad, funcionalidad y transporte

Análisis ambiental

LEYENDA

Sopó - Zipaquirá, transporte intermunicipal

Bogotá Tunja, transporte intermunicipal, regional y de carga pesada

LEYENDA

Sopó - Cajicá, transporte intermunicipal

Mediante el gráfico podemos notar que la densidad de viviendas en la franja Briceño-Tocancipá es baja, comienza a aumentar con la llegada de los conjuntos de viviendas multifamiliares que van surgiendo en el territorio en forma de islas.

Debido a la alta concentración de la industria en el sector, se evidencia la alta contaminación sonora relacionada al tráfico de camiones de carga que se mueven en la autopista norte hasta las industrias, para buscar o llevar los productos de distribución al resto del territorio nacional e incluso internacional.

Centros Urbanos - 2022 - Atlas Centros Urbanos - 2022 - Atlas 60 61
Análisis ambiental CONFORT ACÚSTICO
Media baja Media Media alta Nula Alta Baja

densidad de arbolado

Análisis ambiental

Análisis ambiental

En cuanto a los árboles, en el sector de estudio no se ve presencia de grandes masas en los alrededores de las vías, sino que se observan principalmente hacia las afueras del territorio cercano a los cerros. Sin embargo, los árboles siguen usándose como método para dividir los predios.

Roble (Quercus robur)

Altura: 40m

Mano de oso (Oreopanax bogotensis)

Altura: 15m

Cedro (Cedrus)

Altura: 20m

Cajeto ( Citharexylum subflavescens)

Altura: 20m

Arboloco (Smallanthus pyramidalis)

Altura: 10m

Arrayán (Luma apiculata)

Altura: 2 - 4m

Centros Urbanos - 2022 - Atlas Centros Urbanos - 2022 - Atlas 62 63
LEYENDA Media Nula Media alta Baja Alta
arbolado

LEYENDA Análisis ambiental índice de aves

alta

Media baja

Centros Urbanos - 2022 - Atlas Centros Urbanos - 2022 - Atlas 64 65 Análisis ambiental SUPERFICIE VERDE
Media Media
La superficie verde en el sector tiene gran protagonismo, se encuentra a ambos lados de la vía, esto como característica del sector ya que es poco denso de construcciones y las que hay se encuentran salpicadas a lo largo y ancho de la vía principal que sirve como estructurante. Alta Baja
En cuanto a la variedad de aves, estas se distribuyen según el arbolado de la ciudad, ubicándose donde se encuentran la mayor variedad de especies vegetales y en los cerros. No obstante, se pudo observar una gran variedad de aves en el Ecoparque de la Fundación Jaime Duque, donde se está realizando un trabajo de reforestación.
LEYENDA Baja Nula Media Alta

A lo largo del año se puede observar que la temperatura se mantiene entre los 5° y los 20° a lo largo del año, a pesar de que entre la máxima y la mínima hay un gran rango, no excede estos límites. Por otro lado, la precipitación varía dependiendo de los meses del año, siendo marzo, abril, mayo, septiembre, octubre y noviembre los más lluviosos, llegando incluso hasta los 100 mm de precipitación.

En lo relacionado al préstamo de bicicletas, el lugar donde se pueden adquirir es en Briceño. Seas pudo observar una ciclovía en Tocancipá y cercana a las industrias también. Por otro lado, se vio una gran presencia de ciclistas en las vías el fin de semana.

Centros Urbanos - 2022 - Atlas Centros Urbanos - 2022 - Atlas 66 67
ambiental temperatura y precipitación
Análisis
bicicletas
Análisis ambiental

parqueaderos

Análisis ambiental

puntos de recogida

Análisis ambiental

Los parqueaderos son alrededor de cinco en la franja y se enfocan principalmente para el estacionamiento de camiones de carga que distribuyen las mercancías de las distintas industrias del sector hacia los otros de consumo.

Centros Urbanos - 2022 - Atlas Centros Urbanos - 2022 - Atlas 68 69

El área de estudio se caracteriza por ser una zona de actividad industrial de gran envergadura, es por esto que se observa una gran presencia de lugares de carga y descarga de productos de dichas industrias. Pudimos observar que, todos estos se encuentran en el interior de los perímetros de dichas industrias, por lo que esta actividad no obstaculiza el tráfico en el territorio

Síntesis ambiental

Luego del estudio de los distintos indicadores que abarcan todo lo relacionado con lo ambiental, se puede concluir que la industria genera una gran contaminación en el aire y el sonido en el área, que va desde chimeneas, hasta el gran flujo de transporte de los productos de las distintas bodegas e industrias. Además pudimos notar que a pesar de que se tiene una gran percepción del verde no es un verde público, el único espacio público existente es la calle y unas pequeñas áreas con gimnasios al aire libre y canchas deportivas. El verde no es de disfrute, y los árboles en su mayoría están usados como separadores de predio, no en su estado natural de bosques. Para finalizar, a pesar del impacto ambiental que está generando la industria, se han propuesto diversas alternativas para combatir el deterioro ambiental, como el realizado por la Fundación Jaime Duque que ha creado un Ecoparque abarcando una gran parte del terreno de Briceño, donde se conserva un humedal en su estado natural y donde se está reforestando con las especies endémicas, igualmente, esta fundación se encarga de la siembra de árboles en otros lugares, como es el caso de Corona donde sembraron alrededor de 20.000 especies. Aunado a eso, CocaCola FEMSA es una de las pocas industrias que tiene emisiones cero de carbono, toda la planta se diseñó para ser lo menos contaminante posible, incluso cuentan con camiones eléctricos para hacer pequeños envíos. Estos son puntos importantes que nos muestran la importancia que tiene la conservación de la naturaleza en el lugar a pesar de la gran presencia industrial, connotando la importancia del sistema natural dentro de conformación del área de estudio.

Centros Urbanos - 2022 - Atlas Centros Urbanos - 2022 - Atlas 70 71 Análisis ambiental carga y descarga
Análisis ambiental síntesis ambiental

catálogo del paisaje

Título del capítulo Subtítulo del capítulo Centros Urbanos - 2022 - Atlas Centros Urbanos - 2022 - Atlas 72 73
Catálogo de paisaje cuenca visual #1 11 14 10 Punto de observación Barrido panorámico Esquema de visuales Esquema de color ambiental Ruta visual Captura tomada de streetview 360° 50% 1% 14% 5% 17% 31% 46% 10%
Centros Urbanos - 2022 - Atlas Centros Urbanos - 2022 - Atlas 74 75
Catálogo del paisaje 10 11 12 13 14 15 Punto de observación Captura tomada de streetview 360° Barrido panorámico
cuenca visual #2
Esquema de visuales
Ruta
36% 0% 15% 5% 5% 12% 45% 31%
Catálogo del paisaje 13 11 17 12 15 10 14 Punto de observación Barrido panorámico
ambiental Ruta
Captura tomada de streetview 360° 32% 1% 16% 2% 9% 16% 50% 60%
Esquema de color ambiental
visual
cuenca visual #3
Esquema de visuales Esquema de color
visual

cuenca visual #4

Catálogo del paisje

cuenca visual #5

Catálogo del paisaje

Punto de observación

Punto de observación

Barrido panorámico

Barrido panorámico

Esquema de visuales

Esquema de visuales

Esquema de color ambiental Ruta visual

Esquema de color ambiental Ruta visual

Centros Urbanos - 2022 - Atlas Centros Urbanos - 2022 - Atlas 76 77
22 19 16 14
Captura tomada de streetview 360° 36% 0% 15% 4% 2% 3% 45% 27%
18 10 14 13
Captura tomada de streetview 360° 25% 0% 12% 3% 1% 4% 60% 11%

fRANJA REGIONAL

Título del capítulo Subtítulo del capítulo Centros Urbanos - 2022 - Atlas 78
Franjas regionales movilidad

mETACITY | DEMOGRAFÍA

Título del capítulo Subtítulo del capítulo

Datos demográficos

Briceño - Tocancipá

Según los datos obtenidos por el censo realizado por DANE en el año 2005, la población de Briceño era de 8.783 personas. Sin embargo, al analizar el resto de los municipios de la Sabana de Bogotá, se pudo observar que la mayoría aumentó su población al doble, por lo que consideramos que actualmente Briceño puede contar con el doble de su población, no obstante, al no ser un municipio consideramos que su tasa de crecimiento poblacional pudo haber sido un poco menor, por lo que 12.500 puede ser el número por el que rondan los habitantes de este centro poblado. En cuanto a Tocancipá, su población aumentó alrededor de 15.000 en el 201mpersonas más de las que había en el 2005 al 2018.

En cuanto a la salud se puede observar que más de la mitad de las personas forman parte de los afiliados en salud al régimen contributivo en el año 2014. Sumado a eso, la tasa de mortalidad infantil por cada 1000 nacidos vivos disminuyó notablemente del año 2012 al 2013.

En tema de población expulsada y recibida Tocancipá, recibe mayor número de personas de las que expulsa de su municipio, dando cabida a 38 personas en el año 2014.

En lo relacionado a la cobertura educativa bruta, para el 2014 el 104,41% se encontraba en la etapa de transición, el 108,32% en primaria, el 125,88% en secundaria y el 90,83% en el nivel medio.

Para el año 2017 solo cuenta con el 6,2% de personas desempleadas, siendo el segundo municipio de la región con menos desempleo.

Según los datos obtenidos en el 2018, el 37,9% de los habitantes de Tocancipá salen del municipio hacia Bogotá a realizar alguna de sus principales actividades, esto debido genera una conmutación por la cercanía con la capital.

Centros Urbanos - 2022 - Atlas Centros Urbanos - 2022 - Atlas 82 83

Según el Plan de Desarrollo de Sopó 2020-2023, este cuenta con una población primordialmente urbana, siendo 17.435 el número exacto, mientras que la rural es un poco más de la mitad de la población urbana, 8.347. Esto para el año 2018, dando un total de la población de 25.782.

Con respecto a la ocupación de las personas que habitan el territorio según SISBEN para el 2018, habían7.214 personas trabajando, 5.985 en proceso de estudio y/o formación, 2.406 personas dedicadas a los oficios del hogar y personas sin actividad de 2.864.

Sin embargo se está priorizando a la educación, por medio del Acuerdo Municipal 011 de 2016, se plantea el establecimiento del 3.0% del impuesto de industria y comercio, actividad industrial del presupuesto de rentas y gasto de cada vigencia para subsidiar, apoyar e invertir en el apoyo al acceso a la educación superior.

Al igual que Tocancipá, la mayoría de sus habitantes se encuentran afiliados al sistema de régimen contributivo y, en lo relacionado a la mortalidad infantil por cada 1.000 nacidos vivos, se mantuvo sin variación entre los años 2012 a 2013.

En lo relacionado a la educación, Sopó posee niveles más bajos a Tocancipá, sin embargo siguen siendo altos, el 95,15% se encuentra en transición, el 93,87% en primaria, el 114,96% en secundaria y por último el 92,21% en media.

Tocancipá registra un crecimiento del 32,2% en lo relacionado a empresas activas, pasó de 1.575 en 2013 a 2.082 en 2014.

Centros Urbanos - 2022 - Atlas Centros Urbanos - 2022 - Atlas 84 85 Sopó - Tocancipá Datos dempgráficos

Para el 2013, ambos municipios obtuvieron el mismo índice fiscal, obteniendo un grado medio alto de gestión en finanzas públicas en ambos municipios. En cuanto a lo relacionado con ingresos por Impuesto de Industria y Comercio Tocancipá obtuvo 32.800.624 millones de pesos en 2014, y ese mismo año Sopó obtuvo 10.420.986 millones de peso relacionado al mismo tema.

Se puede observar que ambos municipios experimentaron una disminución en sus ingresos por impuesto predial para el año 2014, lo que puede estar relacionado a nuevas políticas implementadas en dichos territorios. El Tocancipá termina en el puesto 3 del más bajo de la región, mientras que el de Sopó termina en el puesto 6 de la misma categoría.

Cabe destacar que en el municipio de Sopó las actividades económicas que destacan son las actividades económicas secundarias (industria, comercio y construcción) abarcan el 72% de los aportes económicos del territorio, mientras que las actividades económicas primarias (agricultura, ganadería, caza, silvicultura y pesca) aportan solamente el 1,33% a la economía total del territorio.

Para finalizar es importantes destacar que lo agregado por Tocancipá a los municipios de la Provincia de Sabana Centro en el años 2012 fue de 1.811 miles de millones de dólares Corrientes. En cuanto al aporte de Sopó fue de 595 miles de millones de dólares corrientes para el mismo año.

Centros Urbanos - 2022 - Atlas
datos demográficos Sopó - Tocancipá

Encuesta

Pregunta 1:

¿Qué tipo de transporte considera sería el más directo para movilizarse a las actividades de recreación ubicadas en el sector?

Pregunta 2:

¿De existir el sistema de transporte seleccionado en la pregunta anterior, visitaría más seguido el sector?

Pregunta 3:

¿Cuáles actividades recreativas considera hacen falta en el sector?

Pregunta 4:

¿Aproximadamente con qué regularidad realiza actividades recreativas en sector?

Centros Urbanos - 2022 - Atlas Centros Urbanos - 2022 - Atlas 88 89
ocio Encuestas

equipamientos

Encuestas

Pregunta 5:

¿Qué tipo de transporte considera sería el más directo para movilizarse a las actividades de recreación ubicadas en el sector?

Pregunta 6:

¿Cuál considera que es el estado de los siguientes equipamientos?

Pregunta 7:

¿Considera que los equipamientos del sector son suficientes?

Centros Urbanos - 2022 - Atlas 90

Pregunta 8:

¿Qué tipo de equipamientos considera que hacen falta en el sector?

Pregunta 9:

¿Qué tipo de transporte utiliza normalmente?

Pregunta 10:

¿Usted considera que la movilidad en el sector es?

Centros Urbanos - 2022 - Atlas 93
Encuestas equipamientos y movilidad

movilidad y transformaciones

Encuestas

Pregunta 11:

¿Considera que la movilidad en su sector se ve afectada por

Pregunta 12:

¿Con respecto a la situación de la movilidad en el sector hace 5 años usted considera que?

Pregunta 13:

¿Qué tipo de transformación ha percibido en el sector?

Pregunta 14:

Considera que los cambios en el sector se deben a:

Centros Urbanos - 2022 - Atlas 94

Pregunta 15: ¿Considera usted que la industria en el sector en los últimos 10 años?

Pregunta 16: ¿Es para usted importante la existencia del espacio público?

Pregunta 18: ¿Qué tipo de intervención considera necesaria en el sector? (Seleccione varias)

Centros Urbanos - 2022 - Atlas 97 Encuestas
trANSFORMACIONES y espectativas de intervención

Título del capítulo

catálogo de CÓDIGOS

Subtítulo del capítulo

Planta de producción Oficinas

Parqueo camiones

Bodega industrial

En esta sede también se encuentra la Fábrica de Tapas, la cual fue inaugurada en 1969 para la fabricación de las tapas corona. La fábrica produce 11,2 millones de hectolitros al año. Se encarga del 40% de la producción del país, atendiendo a 69mil clientes distribuidos en 70 municipios y, al 79% de los clientes de Bogotá. Desde esta fábrica se llega a los 36 puestos de distribución que tiene Colombia y se despachan aproximadamente unos 6000 a 7000 viajes en total. Tiene cuatro líneas de vidrio, una línea de barriles, una de latas y una de pet. Esta fábrica cuenta con un área de 160.000 m cuadrados.

Centros Urbanos - 2022 - Atlas Centros Urbanos - 2022 - Atlas 100 101 Códigos Bavaria
Almacenaje de malta
sección axonométrica Bavaria Códigos
Localización Imágenes aéreas de la planta de Bavaria

Almacenaje de liquido carbonatado

Cuenta con 7 plantas embotelladoras, 25 centros de distribución y más de 9 mil colaboradores para servir diariamente a 413 mil puntos de venta y ofrecer un amplio portafolio de bebidas a 47 millones de consumidores, encargándose del 44% de la producción del país de Coca-Cola. Posee una extensión de aproximadamente 30 hectáreas. Cabe destacar que la esencia de la tradicional gaseosa continúa llegando de Atlanta, Estados Unidos, sin embargo, es en la planta industrial y parque empresarial de Tocancipá, donde se realizan todos los procesos para que la bebida salga directo a los estantes.

Planta de producción

Localización

Se encuentra a solo tres kilómetros de Tocancipá y 26 kilómetros de Bogotá (30 min. aproximadamente), ubicado al frente del Autódromo de Tocancipá y muy cerca de las zonas turísticas y culturales. Posee un área de 1.000.000 m2. Cuenta con conexión vía terrestre con el primer puerto aéreo logístico del país (Bogotá), interconectada departamentalmente con los diferentes corredores de comercio exterior a pocos kilómetros de la vía Panamericana y la Ruta del Sol. Se encuentran alrededor de 37 empresas tanto de carácter nacional como internacional.

Localización

Centros Urbanos - 2022 - Atlas Centros Urbanos - 2022 - Atlas 102 103
Coca-cola femsa Códigos Oficinas
Códigos parque industriAL GRAN SABANA
Alpex Reciclene S.A.S Carvajal Empaques Impulsemillas Colsein Poilgas Madetecno SMI Colombia

Fue fundado por Jaime Duque, un capitán de la aviación civil. Entidad sin ánimo de lucro con el objetivo de servir a la comunidad y apoyar a las personas de menos recursos. Recreación sostenible y turismo con propósito. Se extiende por 200 hectáreas y se localiza a 30 minutos de Bogotá, saliendo por la autopista norte. El Parque se ha convertido en un centro de conservación natural, a través de atracciones y acciones que fortalecen la educación, protección de los ecosistemas, fauna y flora endémica y la defensa de la vida de la población más vulnerable de nuestro país. Dentro del Jaime Duque encontramos el Ecoparque, el cual es un área dispuesta para la conservación natural, donde se incluye un humedal que se encuentra 100% en su estado natural.

Localización

Circuito de carreras situado en Tocancipá, a 30 kilómetros aproximadamente de la ciudad capital. El circuito más largo alcanza uno 2.725 m. Considerado uno de los proyectos automovilísticos más importantes del país. Constituye un gran atractivo turístico para el territorio.

Centros Urbanos - 2022 - Atlas Centros Urbanos - 2022 - Atlas 104 105 Códigos parque jaime duque
Códigos AUTÓDROMO
Imagen aérea Parque Jaime Duque Imagen del autódromo Localización

Establecimiento comercial especializado en la venta de productos de lujo en inventario o de una temporada anterior, siendo por tanto el precio inferior al habitual. Se basa en grandes piezas con espacio interno amplio para la disposición de una gran cantidad de artículos para la venta.

SECCIÓN AXONOMÉTRICA OUTLET PREMIUM ARAUCO

Códigos

Localización

Centros Urbanos - 2022 - Atlas Centros Urbanos - 2022 - Atlas 106 107
Códigos Outlet premium arauco
Imágenes aéreas del Outlet Premium Arauco

Excelente ubicación, fácil acceso a Bogotá, a Sopo, Zipaquirá, conjunto cerrado, de viviendas multifamiliares. Apartamentos de estrato 3, con un área construida de 51 m2, distribuida por sala-comedor-cocina, con dos habitaciones y un baño. Vigilancia privada, salón comunal, parque infantil, cancha deportiva, jardines, zona bbq y parqueadero comunal.

La Urbanización San Javier se basa en un conjunto de viviendas unifamiliares, pertenecientes a estrato 3. Cada vivienda posee un área construida de 60 m2, distribuidos entre dos habitaciones, un baño, sala, comedor y patio. Posee áreas comunes en el centro del conjunto conformadas básicamente por jardines y una cancha deportiva. Se ubica en una vía secundaria conectada a la autopista norte.

Centros Urbanos - 2022 - Atlas Centros Urbanos - 2022 - Atlas 108 109 Códigos Conjunto cerro fuerte ii
Códigos conjunto san javier
Circuitos internos Imagen aérea Circuitos internos Imágenes aéreas

Códigos

Códigos

Estos asentamientos se pueden describir como unidades de planificación unitaria que se cuelgan de las vías arteriales y que cuentan con un circuito de circulación interna. Esta forma de agrupación genera una fragmentación del territorio por su característica de isla o bolsa separadas de todo lo demás. Lo que genera una urbanización dispersa y por ende paisajes de baja densidad urbana debido a la poca conexión entre las piezas que conforman al territorio.

Localización

Centros Urbanos - 2022 - Atlas Centros Urbanos - 2022 - Atlas 110 111
Conjunto milenium
sección axonométrica milenium Imágenes aéreas del conjunto Milenium
Subtítulo
Título del capítulo
del capítulo FENÓMENOS
Centros Urbanos - 2022 - Atlas Centros Urbanos - 2022 - Atlas 116 117
Título del capítulo Título del capítulo Subtítulo del capítulo Subtítulo del capítulo
aglomeración transescalar

Transgresiones escalares

Fenómenos

aglomeración transescalar

La aglomeración escalar se refiere a la transformación multiescalar que ha atravesado y sigue atravesando el territorio, y que ha tenido como consecuencia la reconfiguración de la estructura preexistente y el alcance del sector con respecto a la región a la que pertenece y al país. Estas transformaciones son producidas por nuevos elementos caracterizados por ser grandes piezas de uso industrial o logístico que, al implantarse, potencian el desarrollo de la zona generando procesos de transformación y autoorganización como respuesta a estas nuevas dinámicas impuestas por las grandes piezas que tienen como eje estructurante y orientador la arteria vial. Esto determina una serie de patrones discontinuos, acentuados por el uso preponderante del transporte privado.

conceptos utilizados

Escala | Gibson, Mcmaster, Sheppard

Territorio Híbrido | Mauricio Romero

Ciudad Difusa | Francesco Indovina

Escenarios en Red | Guillermo Velandia

Nueva Geografía | Edward Soja

Centros Urbanos - 2022 - Atlas 118

Áerofotografía: 1957 Áerofotografía: 2011 Áerofotografía: 2021

El uso tradicional agrícola del territorio, ocupado por una población muy reducida que se asentaba en construcciones de pequeño tamaño, se vio sustituido por el uso industrial y logístico, atractor de grandes masas de población y caracterizado por piezas de gran tamaño. Este proceso inicia en el año 1926, con la llegada del ferrocarril. En 1940 se pavimenta la vía, dando pie a la aparición de la primera empresa de transporte público vehicular entre este sector y Bogotá, lo que modifica las dinámicas territoriales, convirtiéndose en un punto más accesible. A finales de los años 50 se desarrolla de manera acelerada la construcción debido a la construcción de la estación de gasolina de la Diana, fomentada a su vez por la ampliación y pavimentación de la carretera central del norte. La llegada de la energía eléctrica también tiene un impacto en el desarrollo del sector, iniciando un proceso de loteo con edificaciones destinadas a la gastronomía y al comercio.

No es sino hasta el año 2009 que se implantan grandes industrias en el sector, con la llegada de Sika y el traslado de la fábrica de Bavaria de Bogotá al territorio de Briceño.

Centros Urbanos - 2022 - Atlas 120
Línea de tiempo
Fenómenos Imágenes aéreas de Briceño - Tocancipá Conexiones Nacionales Fenómenos Bucaramanga Bogotá Briceño Medellin Cali Cútcuta Santa Marta Cartagena Buenaventura Baranquilla

Preguntas proyectuales

Fenómenos

¿Qué manifestaciones espaciales tiene la implantación de piezas industriales de gran escala en un territorio históricamente conformado por construcciones de pequeña escala y uso mayoritariamente agrícola?

¿Cómo se relacionan con las preexistencias?

Centros Urbanos - 2022 - Atlas 122

4.000 Empleados

Según datos de la empresa Bavaria cuenta con

Bavaria representa cerca del 1% del PIB nacional. La Cervecería de Tocancipá se caracteriza por ser la más productiva del sistema de Bavaria y una de las más avanzadas en Latinoamérica.

En esta sede también se encuentra la Fábrica de Tapas, la cual fue inaugurada en 1969 para la fabricación de las tapas corona. La fábrica produce 11,2 millones de hectolitros al año. Se encarga del 40% de la producción del país, atendiendo a 69mil clientes distribuidos en 70 municipios y, al 79% de los clientes de Bogotá. Desde esta fábrica se llega a los 36 puestos de distribución que tiene Colombia y se despachan aproximadamente unos 6000 a 7000 viajes en total. Tiene cuatro líneas de vidrio, una línea de barriles, una de latas y una de pet. Esta fábrica cuenta con un área de 160.000 m cuadrados.

Centros Urbanos - 2022 - Atlas 124
Códigos Fenómenos
Localización
Imágenes aéreas de la planta de Bavaria
Bavaria nacional
Fenómenos Distribución bavaria

Códigos

Fenómenos

Coca-Cola FEMSA

Cuenta con 7 plantas embotelladoras, 25 centros de distribución y más de 9 mil colaboradores para servir diariamente a 413 mil puntos de venta y ofrecer un amplio portafolio de bebidas a 47 millones de consumidores, encargándose del 44% de la producción del país de Coca-Cola. Posee una extensión de aproximadamente 30 hectáreas. Cabe destacar que la esencia de la tradicional gaseosa continúa llegando de Atlanta, Estados Unidos, sin embargo, es en la planta industrial y parque empresarial de Tocancipá, donde se realizan todos los procesos para que la bebida salga directo a los estantes.

7.769 Empleados

Según datos de la empresa Coca-cola FEMSA cuenta con

Coca-Cola FEMSA: Esta planta está ubicada en la Zona Franca Permanente Parque Industrial FEMSA en Tocancipá.

Localización

Centros Urbanos - 2022 - Atlas 126
Imágenes aéreas de la planta de Coca-cola FEMSA Fenómenos Distribución nacional coca-cola femsa

Fenómenos

Parque Industrial Gran Sabana

Se encuentra a solo tres kilómetros de Tocancipá y 26 kilómetros de Bogotá (30 min. aproximadamente), ubicado al frente del Autódromo de Tocancipá y muy cerca de las zonas turísticas y culturales. Posee un área de 1.000.000 m2. Cuenta con conexión vía terrestre con el primer puerto aéreo logístico del país (Bogotá), interconectada departamentalmente con los diferentes corredores de comercio exterior a pocos kilómetros de la vía Panamericana y la Ruta del Sol. Se encuentran alrededor de 37 empresas tanto de carácter nacional como internacional.

8 Empresas

Según datos de la empresa El parque Gran Sabana cuenta con

El parque llega a Tocancipá en el año 2007, posee grandes empresas como Quala, Diaco, Lucta, Sidenal, entre otras. El parque industrial se comunica con Bogotá a través de la Autopista Norte.

Localización

Densidad de ocupación: 1957

Podemos evidenciar que para el año 1957, la densidad de ocupación del territorio era muy baja con construcciones de pequeño tamaño debido al predomindante uso agropecuario del sector.

Asimismo, las construcciónes se encuentran desvinculadas de la vía.

Densidad de ocupación: 1988

Para 1988, se evidencia un notorio cambio en la densidad de ocupación. Se estructura principalmente sobre la vía y se observa la inserción de piezas de mayor tamaño debido al uso industrial.

Densidad de ocupación: 2013

Desde el 2013 y hasta la actualidad, el uso industrial se convirtió en el uso principal, lo cual se puede visualizar a través de estos enclaves de gran extensión.

Sin embargo, existe un fuerte contraste con las construcciones colindantes que siguen manteniendo la escala original del territorio.

Centros Urbanos - 2022 - Atlas Centros Urbanos - 2022 - Atlas 128 129
códigos
Fenómenos densidad ocupacional

Ubicación y red de distribución de Bavaria

Fenómenos

LEYENDA

Bodega / Depósito Industrial Bodegas Industriales Industrias

Desde la planta de Tocancipá se llega a los 36 puestos de distribución que hay en Colombia

El 40% de la producción de cerveza del país se realiza en esta planta

Con la producción de esta planta se abastece al 79% de los clientes de Bogotá

Se producen aproximadamente 120.000 botellas por hora

Cuenta con una flota de 990 camiones de reparto de mercancía

Se realizan 345 viajes diarios con 950 tripulantes

Fenómenos circuitos internos

Se observa una dinámica de nuevas tipologías de gran extensión que se implantan en el territorio, las cuales se caracterizan principalmente por ser conjuntos cerrados, compuestos por edificaciones que se caracterizan por ser de rápida construcción y por tener un gran espacio interno amplio, con la capacidad de albergar maquinaria pesada.

Estos patrones discontinuos producen las distorsiones escalares, no sólo en el cambio de escala de los predios y de sus construcciones, sino también en las escalas de alcance que tienen estas grandes industrias que se asientan en el territorio. Cuentan con un alcance regional, nacional e internacional, facilitado por la conectividad característica del nodo. Esto entra en contraste con las actividades que tradicionalmente se habían desarrollado en el sector que todavía se evidencian en el borde de la vía: pequeñas edificaciones de uso primordialmente comercial, gastronómico o residencial de escala local. Esto termina por configurar un territorio híbrido, siendo Briceño una pieza de la aglomeración metropolitana que cuenta con dinámicas multiescalares propias (Mejía, 2009).

Centros Urbanos - 2022 - Atlas Centros Urbanos - 2022 - Atlas 130 131
Circuito interno de Bavaria Circuito interno de Parque Industrial Bavaria
Centros Urbanos - 2022 - Atlas Centros Urbanos - 2022 - Atlas 132 133
División de Vallado
LEYENDA
Vallado
Fenómenos
Título del capítulo Título del capítulo Subtítulo del capítulo Subtítulo del capítulo Centros Urbanos - 2022 - Atlas Centros Urbanos - 2022 - Atlas 134 135
enclaves insulares residenciales

enclaves insulares de carácter residencial

Fenómenos

Enclaves insulares de carácter residencial conceptos utilizados

Los procesos de metropolitanización presentados en el sector están asociados mayoritariamente al desarrollo vial y a la movilización que esta permite, contribuyendo a la expansión generalizada y a la suburbanización. Como explican Keil y Young (2009), el sistema de transporte regional constituye la grilla a partir de la cual las regiones urbanas se conectan a través de una compleja red de topologías descentralizadas y desarticuladas. Así, la extensión del sistema de autopistas acentúa las estructuras lineales, favorece la aceleración del tránsito y la urbanización de zonas periféricas (Borsdorf, 2003). Particularmente en el centro poblado de Briceño, que no presenta localidades de fundación colonial y que hasta mediados del siglo XIX solo se registran pequeñas construcciones, es un territorio conformado y transformado por los componentes infraestructurales de movilidad. Este proceso tiene su intensificación a partir de las últimas décadas del siglo XX y genera una revalorización del suelo aledaño a las mismas y desencadenan nuevos procesos de urbanización.

Atractor Lineal | Stefano Boeri

Urbanización Dispersa | Ewing, Quim

Paisajes Emergentes | Steven Johnson

Paisajes de baja densidad | Guillermo Velandia

Centros Urbanos - 2022 - Atlas 136

¿De qué manera la extensión del sistema de autopistas propicia la urbanización en un sector que no cuenta con una fundación colonial?

¿Cuál es la tipología residencial que el fenómeno metropolitano produce en el territorio?

Centros Urbanos - 2022 - Atlas 139 138 Centros Urbanos - 2022 - Atlas Axonometría Fenómenos
preguntas proyectuales
Fenómenos

Conjunto San Javier

La Urbanización San Javier se basa en un conjunto de viviendas unifamiliares, pertenecientes a estrato 3. Cada vivienda posee un área construida de 60 m2, distribuidos entre dos habitaciones, un baño, sala, comedor y patio. Posee áreas comunes en el centro del conjunto conformadas básicamente por jardines y una cancha deportiva. Se ubica en una vía secundaria conectada a la autopista norte.

Conjunto Cerro Fuerte II

Excelente ubicación, fácil acceso a Bogotá, a Sopo, Zipaquirá, conjunto cerrado, de viviendas multifamiliares. Apartamentos de estrato 3, con un área construida de 51 m2, distribuida por sala-comedor-cocina, con dos habitaciones y un baño. Vigilancia privada, salón comunal, parque infantil, cancha deportiva, jardines, zona bbq y parqueadero comunal.

Centros Urbanos - 2022 - Atlas 141 códigos Fenómenos

Códigos Fenómenos Conjunto

Milenium

Proyecto con 204 viviendas unifamiliares de 35, 50 y 60m2 y más de 9000 m2 construidos. Agrupadas en las cuatro esquinas del lote, las viviendas conforman un circuito interno de vías con zonas comunes para sus habitantes, compuesta por jardines y cancha deportiva.

Estos asentamientos se pueden describir como unidades de planificación unitaria que se cuelgan de las vías arteriales y que cuentan con un circuito de circulación interna. Esta forma de agrupación genera una fragmentación del territorio por su característica de isla o bolsa separadas de todo lo demás. Lo que genera una urbanización dispersa y por ende paisajes de baja densidad urbana debido a la poca conexión entre las piezas que conforman al territorio.

Centros Urbanos - 2022 - Atlas 142
143 Centros Urbanos - 2022 - Atlas axonometría Fenómenos
Centros Urbanos - 2022 - Atlas Centros Urbanos - 2022 - Atlas 144 145
Título del capítulo Título del capítulo Subtítulo del capítulo Subtítulo del capítulo
polo de atracción turístico

polo de atracción turístico

El carácter turístico del territorio está ligado a actividades de ocio/recreación, deporte y comercio: Parque Jaime Duque, Autódromo de Tocancipá, Campo de Golf Briceño 18 y el Outlet Premium Araúco. Estos elementos se convierten en un polo atractor que posicionan al territorio como un lugar privilegiado y que permite generar dinámicas económicas en sus entornos inmediatos, transformando asimismo la estructura física del sector y el uso del suelo. La actividad turístico-recreativa como inductora de un proceso de desarrollo local, debido a su incidencia directa en la creación de puestos de trabajo y en la creación de infraestructura y servicios de soporte de esta actividad, Shroeder 2011.

conceptos utilizados

Nodo | Humberto Molina

Zonificación del ocio y desarrollo histórico

Autodromo: 1980

Parque Jaime Duque: 1983 Briceño 18: 2015Outlet Premium Arauco: 2017

Centros Urbanos - 2022 - Atlas Centros Urbanos - 2022 - Atlas 146 147
polo de atracción turístico
Fenómenos
Fenómenos Outlet Premium Arauco Briceño 18 Parque Jaime Duque Autódromo

¿De qué manera el uso recreativo del sector acentúa los flujos intermitentes en el territorio?

¿Cómo estos flujos intermitentes configuran al sector como un territorio-parador debido a su ubicación estratégica sobre un corredor nacional?

Centros Urbanos - 2022 - Atlas 148
proyectuales
Fenómenos Preguntas

Fenómenos

Outlets Arauco

Establecimiento comercial especializado en la venta de productos de lujo en inventario o de una temporada anterior, siendo por tanto el precio inferior al habitual. Se basa en grandes piezas con espacio interno amplio para la disposición de una gran cantidad de artículos para la venta.

Parque Jaime Duque

Fue fundado por Jaime Duque, un capitán de la aviación civil. Entidad sin ánimo de lucro con el objetivo de servir a la comunidad y apoyar a las personas de menos recursos. Recreación sostenible y turismo con propósito. Se extiende por 200 hectáreas y se localiza a 30 minutos de Bogotá, saliendo por la autopista norte. El Parque se ha convertido en un centro de conservación natural, a través de atracciones y acciones que fortalecen la educación, protección de los ecosistemas, fauna y flora endémica y la defensa de la vida de la población más vulnerable de nuestro país. Dentro del Jaime Duque encontramos el Ecoparque, el cual es un área dispuesta para la conservación natural, donde se incluye un humedal que se encuentra 100% en su estado natural.

Circuito de carreras situado en Tocancipá, a 30 kilómetros aproximadamente de la ciudad capital. El circuito más largo alcanza uno 2.725 m. Considerado uno de los proyectos automovilísticos más importantes del país. Constituye un gran atractivo turístico para el territorio.

El territorio se ha transformado en un lugar de gran potencial y estos flujos de fin de semana o días feriados generan distintas dinámicas, que por tener grandes atractivos turísticos, es decir atraer un número tan alto de visitantes al lugar, han hecho que aparezcan nuevas piezas que albergan grandes eventos. Este es el caso del Outlet Premium Arauco, que surge a raíz de este gran flujo que se traslada los fines de semana al sitio para disfrutar de sus diferentes atractivos. Sin embargo, cabe destacar que el Autódromo de Tocancipá tiene actividades todos los días, desde prácticas libres en días de semana hasta torneos y piques los fines de semana. Este último es el que genera mayor atractivo en la zona.

Otra transformación que se ha generado son los restaurantes alrededor de la vía, a pesar de que siempre se han encontrado ciertos puntos gastronómicos, en los últimos años se han intensificado, al igual que la actividad turística en el lugar gracias a las diferentes actividades que se han ido implementando en la zona aprovechando las grandes ventajas que les proporciona dicho nodo vial.

Los flujos de fines de semana están creando nuevas actividades en el territorio, que se complementan entre sí para hacer de este un gran atractor para los usuarios, va desde la visita al Jaime Duque y al Autódromo, hasta comer en un restaurante característico del lugar e ir de compras al Outlet.

Centros Urbanos - 2022 - Atlas Centros Urbanos - 2022 - Atlas 150 151
códigos
Parque Jaime Duque
Fenómenos códigos

SÍNTESIS DE FENÓMENOS

Título del capítulo
Centros Urbanos - 2022 - Atlas Centros Urbanos - 2022 - Atlas 152 153
Subtítulo del capítulo

territorio intermitente

La transición del uso agrícola tradicional que caracterizaba al territorio de Briceño se ve causada por el desarrollo de las infraestructuras viales. Esta evolución del sistema de movilidad automotor afecta directamente al territorio, ya que lo sitúa como un nodo vial altamente interconectado con puntos claves del país hacia el nororiente. La gran accesibilidad que el sistema vial proporciona, junto con el cambio del uso del suelo y la proximidad a Bogotá permiten la implantación de grandes piezas industriales de alcance nacional e internacional en el sector. De esta manera, los diferentes usos se van configurando a lo largo del eje vial de la Ruta Nacional 55, anclándose a este y generando circuitos internos e inconexos entre sí, lo que termina estableciendo patrones discontinuos y fragmentados de islas desarticuladas. El resultado de esto es un espacio carente de áreas de permanencia, determinando a Briceño como un territorio parador, reforzado por el fuerte uso turístico con el que cuenta la franja: El Parque Jaime Duque, el Autódromo, el Campo de Golf Briceño 18 y el Outlet Arauco son polos atractores de población transitoria los fines de semana que se aproximan al sector de manera temporal y efímera. Esta población proviene principalmente de Bogotá, quienes encuentran en Briceño un espacio de esparcimiento en sus días libres. Por otro lado, la intermitencia del sector se ve definida por el uso logístico e industrial. Este genera una serie de flujos que, a diferencia de los generados por el turismo, predominan entre semana y tienen dirección opuesta. Su punto de partida es la franja Briceño-Tocancipá: se dirigen hacia Bogotá, Boyacá y los Santanderes distribuyendo la mercancía que se produce en las plantas ubicadas en este sector.

Desde la planta de Tocancipá se llega a los 36 puestos de distribución que hay en Colombia.

El 40% de la producción de cerveza del país se realiza en esta planta.

Con la producción de esta planta se abastece al 79% de los clientes de Bogotá.

Se realizan 345 viajes diarios con 950 tripulantes.

Centros Urbanos - 2022 - Atlas Centros Urbanos - 2022 - Atlas 154 155
Conclusión Síntesis de fenómenos
sectorización
Síntesis de fenómenos
Parque Jaime Duque Bavaria Parque Industrial Gran Sabana Coca-cola FEMSA Autódromo de Tocancipá Conjunto San Javier Conjunto Cerro Fuerte II Outlet Premium Arauco
Centros Urbanos - 2022 - Atlas Centros Urbanos - 2022 - Atlas 156 157 desarrollo urbano
Título del capítulo Título del capítulo Subtítulo del capítulo Subtítulo del capítulo

Banda programática de OcioIntersticios

Banda programática de Industria

Banda programática Confetti

Núcleos residenciales

Tren Ciclorrutas

Vías

Centros Urbanos - 2022 - Atlas Centros Urbanos - 2022 - Atlas 158 159 Proyectuales plano visión
LEYENDA

Plano visión

Por medio del Vision Plan, se propone la organización del territorio a través de bandas programáticas, tomando como referencia el proyecto de Rem Koolhaas, Melum Senart. Dichas bandas se crearon siguen la naturaleza del territorio, es decir, basados en los usos y potenciales proyectuales que este posee, es así como se crean la banda programática de (ahí nombras todas, y al mismo tiempo un sistema de entretejido por medio del componente ambiental y de los intersticios que existen en el lugar como forma de conectar todas las distintas actividades.

Centros Urbanos - 2022 - Atlas Centros Urbanos - 2022 - Atlas 160 161
Título del capítulo Subtítulo del capítulo
Conclusión plano visión
franjas y dinámicas
Centros Urbanos - 2022 - Atlas 162 CONFETTI Proyectual 163 Centros Urbanos - 2022 - Atlas Leyenda Chatarra Bodega Comercio Casa comercio Oficinas Automotriz Invernaderos Sala Ventas Vivienda Ocio Comercio cantera Hotel Parqueaderos Aire Libre Cafetería Educación Restaurantes Industria Construcción Hacienda Servicio Estación servicio
Centros Urbanos - 2022 - Atlas Centros Urbanos - 2022 - Atlas 164 165 Confetti 20% 35% 25% Ocio Espacio público Residencia Comercio Industria 70% 30% metacity proyectual
167 Centros Urbanos - 2022 - Atlas
Leyenda Terreno Poroso Parques Predios Agua No poroso Sólidos Vías
Título del capítulo Subtítulo del capítulo Centros Urbanos - 2022 - Atlas Centros Urbanos - 2022 - Atlas 168 169 estrategias

parque eco-industrial metropolitano

Centros Urbanos - 2022 - Atlas 171 Centros Urbanos - 2022 - Atlas estrategias

Parque eco-industrial metropolitano Estrategias

¿por qué?

El predominante uso industrial y logístico y las grandes piezas que este supone ha generado profundas transformaciones en el territorio. Por un lado, las dinámicas territoriales pasan de una escala local a una escala nacional, regional e internacional proporcionando al territorio un carácter nodal de conexiones. Por otro lado, es el uso que más ha impactado a la estructura ecológica principal, debido a sus procesos industriales y al fuerte flujo de transporte de carga que este uso implica. Además, estas piezas se organizan teniendo como eje estructurante la vía, lo que produce una serie de patrones discontinuos, generando así un paisaje de baja densidad, con microcircuitos logísticos que configuran islas rodeadas generalmente de intersticios inactivos, impidiendo la continuidad del verde y que terminan por establecer bordes de separación entre las distintas industrias y parques industriales.

¿para qué?

ANÁLISIS Estrategias

Se plantea con el fin de generar una interconexión ambiental y una disminución de la huella negativa que genera la actividad industrial en la zona, protegiendo y potenciando la estructura ecológica principal. Esta conexión no solo se da en lo ambiental, sino también se articulan todos esos intersticios que quedan del patrón discontinuo de islas inconexas que presenta el territorio, cambiando la manera en que lo construido se relaciona con los espacios inactivos, integrándose y generando un todo cuyas partes estén altamente relacionadas e involucradas con su entorno y la naturaleza que lo compone. De esta forma, se proporciona continuidad al territorio y se diversifica la manera en que los habitantes se relacionan con este, mientras que, a su vez, se fortalece la reserva del componente natural.

Configuración de uso industrial en enclaves insulares

Desde la planta de Tocancipá se llega a los 36 puestos de distribución que hay en Colombia.

El 40% de la producción de cerveza del país se realiza en esta planta.

LEYENDA

Con la producción de esta planta se abastece al 79% de los clientes de Bogotá.

Se realizan 345 viajes diarios con 950 tripulantes.

Estación de carga Banda de ocio

Centros Urbanos - 2022 - Atlas Centros Urbanos - 2022 - Atlas 172 173
Masas
Estación de pasajeros Intersticios verdes Banda industrial Tren de cercanías Red de ciclorrutas
arbóreas

Planteamiento Estrategias

Actividades carectes en el sector según encuesta Intervenciones consideradas necesarias en el sector

¿CÓMO?

Mediante la interconexión de los espacios vacantes, a través de la creación de reservas naturales, espacios de permanencia, esparcimiento y de la creación de corredores ambientales como estructurantes de dichos espacios, que, al mismo tiempo permitan la implementación de métodos de transporte alternativos al automóvil, como senderos y ciclorutas, con el fin de crear un parque de escala metropolitana.

Al mismo tiempo, se plantea la aplicación de medidas eco-ambientales en las industrias, como es el caso de techos verdes, con el fin de minimizar la temperatura del interior de las industrias que se da como resultado de todos estos procesos de producción; aprovechamiento de la ventilación e iluminación natural; así como sistemas de recolección de aguas lluvias para el riego y cuidado de los intersticios; la siembra de cadenas de jardines filtrantes que limpien las aguas residuales de las industrias in situ; el uso de concreto poroso que permita mantener el suelo permeable; continuidad de pasos peatonales y puntos de préstamo de bicicletas para los trabajadores y turistas, como forma de fomentar alternativas de movilidad y el uso del tren de cercanías para transportar la mayor parte de los productos, lo que disminuirá las emisiones de los transportes tradicionales de carga pesada.

Bavaria

ntersticios industriales como espacios de continuidad ecológica Espacios híbridos entre industria y recreación para generar multifuncionalidad

Leyenda

Masas arboreas

Intersticios verdes

Espacios de permanencia

Aumento de la filtración del suelo mediante la implantación de bosques nativos que generen ecosistemas compatibles con la industria

Punto de prestamo de bicicletas conectados con sistema de transporte masivo para dar continuidad a los diferentes recorridos y velocidades

Centros Urbanos - 2022 - Atlas Centros Urbanos - 2022 - Atlas 174 175
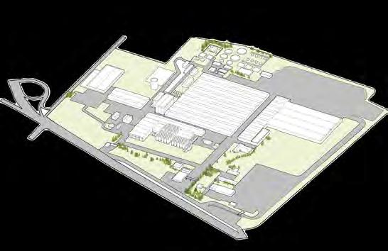
Sección urbana Parque Industrial Gran Sabana | Escala 1:1000

sistema de movilidad interescalar

Centros Urbanos - 2022 - Atlas 177 Centros Urbanos - 2022 - Atlas 176 estrategias

Sistema de movilidad interescalar Estrategias

El proceso de metropolización que se ha desarrollado en el sector está asociado mayoritariamente al desarrollo vial y a la movilización que esta permite. Particularmente en el centro poblado de Briceño, que no presenta localidades de fundación colonial y que hasta mediados del siglo XIX solo se registran pequeñas construcciones, es un territorio conformado y transformado por los componentes infraestructurales de movilidad. Estos se convierten en catalizadores de urbanización en ambientes tradicionalmente rurales, profundizando los fenómenos de dispersión y fragmentación en los patrones de asentamiento en el sector. Esto genera un paisaje urbano en archipiélago (Vidal-Koppmann, 2009), también denominado ciudad insular: enclaves de planificación unitaria que se caracterizan por su desconexión con el resto del tejido y por su ubicuidad debida a su conexión con los ejes viales mediante circuitos cerrados de circulación interna.

Esta estrategia de movilidad se plantea, por un lado, con el objetivo de reforzar las conexiones que se tienen a escala metropolitana y nacional, diversificando los vectores de carga de flujos que tienen como punto de convergencia el sector de Briceño-Tocancipá. Esto permitirá la consolidación del territorio como centro recreativo regional debido a la fácil accesibilidad mediante medios de transporte rápidos con la que contará. Además, este método de transporte aumenta la capacidad distributiva del territorio, disminuyendo tanto los tiempos de los recorridos de distribución de carga como las emisiones que esta actividad produce y el crecimiento de la escala de alcance del territorio con respecto a la región metropolitana y el país.

Por otro lado, esta estrategia tiene el objetivo de proporcionar al territorio de un sistema continuo de movilidad a partir de la cual se pueden organizar y localizar las diferentes actividades con las que cuenta el sector, respondiendo a la fragmentación generada por el carácter insular del patrón de asentamiento existente. Así, se generan relaciones directas entre los diferentes elementos que componen al sector, se disminuye la dependencia de la Ruta Nacional 55 y se rompe con la estructura axial y lineal con la que cuenta el territorio.

Configuración de uso industrial en enclaves insulares

Método más efectivo por tranporte (encuesta)

La malla de vía secundaria actual consiste en desarrollos autogestionados o de iniciativa privada que comunican una o una seride de edificaciones con una vía principal. Esto genera que la única manera que haya de transportarse de un punto a otro sea a través de la Ruta Nacional 55. No existe níngun tipo de continuidad del trazado que permita la interconexión entre elementos acentuando el patrón fragmentado de asentamiento.

Porcentaje de usuarios que visitarían más seguido si hubiera transporte (encuesta)

Malla

Centros Urbanos - 2022 - Atlas Centros Urbanos - 2022 - Atlas 178 179
¿por qué?
Estrategias ANálisis
¿para
qué?
de carga
de pasajeros
LEYENDA Estación
Estación
vial local propuesta
existentes
de cercanías
de ciclorrutas
Vías
Tren
Red

planteamiento

Estrategias

Mediante la reutilización de las infraestructuras de movilidad subutilizadas como el tren de cercanías, implementando dos tipos de estaciones diferentes que den respuesta a las dos necesidades con las que cuenta el territorio: la llegada desde el exterior de pasajeros ya sean con intenciones turísticas o laborales, y la distribución más efectiva de las mercancías que son producidas por el predominante uso industrial del sector.

carril vehicular cICLORRUTA sENDEROS PEATONALES

El sistema ferroviario se articula con un sistema de movilidad automovilística de escala local que conecta el territorio actualmente fragmentado de manera longitudinal por la Ruta Nacional 55. Tiene como resultado una grilla a partir de la cual se pueden organizar y localizar las diferentes actividades con las que cuenta el sector. La movilidad motora se conjuga con una red de ciclorrutas y movilidad peatonal, con préstamo de bicicletas, que proporciona un método de transporte alternativo, además de una interacción más directa con el entorno y la naturaleza, interconectando espacios de esparcimiento con núcleos de servicios y vinculado a la franja de ocio para que también sea un atractivo turístico recorrer el territorio a través de sus múltiples ecosistemas y paisajes.

Estación de carga

Estación de carga para una distribución eficiente de mercancía

Prestamo de bicicletas

Tren de cercanías vinculado a la industria

Red de ciclorrutas

Sección urbana estación de carga | Escala 1:1000

Malla vial local continua y articulada

Centros Urbanos - 2022 - Atlas Centros Urbanos - 2022 - Atlas 180 181
600 - 1.600 personas/hora 7.500 personas/hora 9.000 personas/hora 10.000 - 25.000 personas/hora
¿CÓMO? TRANSPORTE COLECTIVO
Ruta Nacional 55 Vía Sopó - Briceño

núcleos residenciales funcionales

Centros Urbanos - 2022 - Atlas 183 Centros Urbanos - 2022 - Atlas 182 Estrategias

Núcleos residenciales funcionales Etrategias

¿por qué?

El uso residencial del sector se desarrolla en urbanizaciones cerradas junto a las vías de comunicación, alejadas de los núcleos urbanos y de los servicios que se concentran en estos. Se caracterizan por su baja densidad edificatoria y de población, su planificación unitaria que genera circuitos internos, reforzando su ubicuidad e introspección, evitando el contacto con su entorno. Todo esto determina un territorio insular, fragmentado, en el que el uso residencial se contempla como un uso aislado y desvinculado del resto de elementos que componen el territorio, generando discontinuidad tanto en los patrones de asentamiento como en la movilidad.

El objetivo principal de esta estrategia es generar núcleos de usos híbridos, vinculando la residencia directamente con los servicios que requiere. Esto no solo reduce la carencia de servicios con la que cuenta el sector, sino que establece una nueva modalidad de implantación, que mantiene la escala actual del territorio, pero que propicia una gran porosidad en los enclaves residenciales, permitiendo la permeabilidad del trazado y la continuidad de la movilidad, favoreciendo la movilidad peatonal y su articulación con el espacio público.

Los núcleos híbridos configuran un territorio policéntrico que permite el establecimiento de un patrón de asentamiento que contempla la indeterminación programática como una posibilidad dentro de la estructura que genera el tejido interno de las manzanas y su prolongación y continuación en los lotes vacantes.

Configuración de vivienda en conjuntos residenciales cerrados

Percepción sobre la suficiencia de los equipamientos existentes (encuesta)

Servicios carentes en el sector (encuesta)

Centros Urbanos - 2022 - Atlas Centros Urbanos - 2022 - Atlas 184 185
Análisis
Estrategias
¿para qué? LEYENDA Estación de carga Estación de pasajeros Intersticios verdes Tren de cercanías Red de ciclorrutas Malla vial local propuesta Núcleos residenciales Vías existentes

planteamiento

Estrategias

Configuración volumétrica proyectual

Unidades de vivienda multifamiliares

Bosques como parte del programa multifuncional

Distribución tradicional Configuración del trazado Dsitribución volumétrica

Espacios internos articulados a los corredores verdes

Mediante la creación de enclaves situados en puntos estratégicos del territorio, vinculados con las diversas bandas programáticas que componen al territorio y estableciéndose como núcleos nodales de actividad múltiple, altamente conectados y articulados con el sistema de movilidad tanto motora como alternativa y peatonal. Así, dentro de estos enclaves se plantea tanto la residencia como la dotación de diversos servicios como lo son el educativo, el de salud y el comercio, utilizando la primera planta como medio de relación del espacio público con las edificaciones que lo componen. Asimismo, se establecen relaciones con los equipamientos de carácter cultural y recreativo vinculadas con la banda de ocio, aumentando la calidad de vida de las personas que allí habitan y estableciendo la vivienda como un uso articulador del territorio y no como fraccionador de la continuidad físico-espacial.

Módulos de servicio

Malla vial como grilla estructurante del sistema de manzanas multifuncionales

Centros Urbanos - 2022 - Atlas Centros Urbanos - 2022 - Atlas 186 187
Estrategia CÓDIGO
¿cómo? Sección urbana Parque Jaime Duque | Escala 1:1000

síntesis de estrategias

Centros Urbanos - 2022 - Atlas Centros Urbanos - 2022 - Atlas 188 189
Título del capítulo Subtítulo del capítulo

Síntesis

bandas programáticas de articulación territorial

En la actualidad, el territorio de Briceño-Tocancipá se ve caracterizado por ser un territorio fragmentado, insular, cuyas partes se encuentran desvinculadas una de las otras con desarrollos individuales los cuales no configuran un sistema continuo. Como respuesta a esto, surgen las bandas programáticas como mecanismo de integración de aquellas partes que se encuentran actualmente desarticuladas. Así, se organizan las relaciones espaciales entre los diversos y a veces poco compatibles usos que se encuentran implantados en el sector. Estas bandas son determinadas por las preexistencias, por lo que se permite una interdependencia de lo propuesto con lo ya configurado, con la intención de desjerarquizar y descentralizar el esquema organizativo. De esta manera, se establece un sistema abierto de relaciones, en las que las bandas están compuestas por una serie de elementos ordenados que comparten la estructura común de la banda. Al yuxtaponer y sobreponer estas bandas, se garantiza la integridad del conjunto frente a cambios locales, ya que están contemplados espacios en los que estos procesos emergentes de autoorganización se desarrollen sin plan previo. Son los espacios “libres de programa” los que se entienden como espacios de oportunidad, debido a que son los espacios con mayor superficie de contacto con las bandas programáticas que lo configuran, convirtiéndose en puntos estratégicos para proyectos como enclaves residenciales funcionales. Estas bandas programáticas tienen dos elementos que los amalgama y estructura: el sistema de movilidad que responde a las diversas escalas presentes en el territorio y los corredores verdes con masas arbóreas que permiten estructurar esas áreas multi programáticas generadas por la superposición de bandas.

Considera que la movilidad en su sector se ve afectada por:

¿Cuáles actividades recreativas considera hacen falta en el sector?

¿Considera que los equipamientos del sector son suficientes?

¿Qué método de transporte utiliza normalmente?

Centros Urbanos - 2022 - Atlas Centros Urbanos - 2022 - Atlas 190 191
de estrategias Conclusión Análisis Subtítulo del capítulo

PROYECTO URBANO

Título del capítulo Título del capítulo Subtítulo del capítulo Subtítulo del capítulo Centros Urbanos - 2022 - Atlas Centros Urbanos - 2022 - Atlas 192 193

franjas proyectuales

Centros Urbanos - 2022 - Atlas 196
Centros Urbanos - 2022 - Atlas 197 Industria, movilidad y ocio FRANJA REGIONAL PROYECTUAL
Título del capítulo Subtítulo del capítulo Centros Urbanos - 2022 - Atlas 199 Centros Urbanos - 2022 - Atlas 198 masterplan
Centros Urbanos - 2022 - Atlas 201

Los bosques urbanos son masas arbóreas cuyo objetivo principal es la regeneración y la resiliencia del sistema ecológico al que se anexan, entendiéndose así como extensiones del mosaico paisajístico mayoritariamente rural y natural de los territorios metropolitanos.

Los diversos espacios creados se conectan entre sí a través de una red de infraestructura lineal natural, conformadas por bandas de vegetación que se entienden como elemento estructurante del actualmente fragmentado territorio, configurando así la red articuladora y de soporte de todos los sistemas.

Otra intervención dentro de lo privado son las cubiertas verdes en las industrias. Consisten en una serie de capas que contienen membranas que soportan y controlan las raíces de las plantas. Además, recolectan, almacenan y reusan el agua. Se establecen como un método de adaptación al cambio climático al tiempo que se proporcionan espacios verdes como espacios comunes dentro de las industrias que no están necesariamente vinculadas al espacio público.

Estos espacios aumentan la calidad de vida tanto de los habitantes como de la fauna del sector, ya que se establecen como refugios para estas especies. Estos espacios verdes de todas las escalas cerca a espacios residenciales y comerciales son altamente beneficiosos para la salud de la población y para su calidad de vida; asimismo, se aumenta la superficie permeable incrementando así los niveles de evapotranspiración, evitando inundaciones y se disminuye la polución del aire.

Los humedales artificiales replican los procesos naturales de estos, beneficiando así el correcto flujo de las aguas subterráneas evitando estancamientos con infraestructuras que recuperan el agua de las lluvias. Además, se generan alrededor de estos espacios de esparcimiento y aporta a la construcción de un paisaje metropolitano cada vez más rico y complejo.

Se establecen como el espacio de menor escala en cuanto a las soluciones basadas en la naturaleza. SIn embargo, son un elemento clave tanto en la configuración del paisaje como en la continuidad del sistema ecológico, generando así un trazado permeable a través de la naturaleza y propiciando espacios amenos de socialización incluso dentro de lo privado.

Centros Urbanos - 2022 - Atlas Centros Urbanos - 2022 - Atlas 202 203 Masterplan TIPOLOGÍAS
Masterplan tipologías

masterplan 2050

Las soluciones basadas en la naturaleza son aproximaciones que utilizan la naturaleza y sus procesos para desarrollar infraestructura, servicios y soluciones integrales para potenciar la resiliencia urbana.

El objetivo es proteger, manejar, restaurar o crear nuevos espacios urbanos que tienen la naturaleza como elemento estructurante.

Estas medidas se hacen tanto en espacios internos de los espacios urbanos, pero también se utilizan como bordes que terminan por estructurar también el tejido y el patrón de asentamiento del territorio.

Las intervenciones se pueden clasificar en:

-Protección del ecosistema existente

-Rehabilitación de ecosistemas degradados por el impacto industrial

-Creación de nuevos espacios naturales vinculados al sistema ecológico principal con el objetivo de crear una continuidad en el territorio que tienen como punto de partida El Monte Tibitoc y el eco parque.

Centros Urbanos - 2022 - Atlas 204
Objetivos Masteplan

modelos de gestión

Centros Urbanos - 2022 - Atlas Centros Urbanos - 2022 - Atlas 206 207
Título del capítulo Título del capítulo Subtítulo del capítulo Subtítulo del capítulo

Aglomeración transescalar

Son producidas por nuevos elementos que se caracterizan por ser grandes piezas de uso industrial o logístico, que al implantarse, potencian el desarrollo de la zona, transformando y autoorganizándose como nuevas dinámicas impuestas, las cuales determinan una serie de patrones discontinuos, acentuados por el uso preponderante del transporte privado.

Medidas eco-ambientales

Creación de reservas naturales, espacios de permanencia, corredores ambientales, senderos, ciclorrutas, techos verdes, sistemas de recolección de aguas lluvias, jardines filtrantes, concreto poroso, pasos peatonales, préstamo de bicicletas.

NA Vías y espacio público

Revisión del P.O.T Beneficios tributarios 5 - 10 años

Instrumento:

Proyecto Público

Gestión:

EnagenaciónExpropiación

Enclaves insulares residenciales

El uso residencial del sector se derarrolla en urbanizaciones cerradas junto a las vías de comunicación, alejadas de los núcleos urbanos y de los servicios que se concentran en estos. Se caracterizan por generar circuitos internos, reforzando su ubicuidad e introspección, evitando el contacto con su entorno.

Potenciación de la conectividad

Desarrollo de una estación de carga ubicada en el eje industrial del territorio, con el fin de potenciar la actividad industrial en la zona logrando así una mayor facilidad en el transporte de productos y minímizando el impacto ambiental producido por los camiones que los transportan, así como la optimización de tiempo en cuanto a la distribución de los mismos.

Contribución por valorización Estación de carga 19919,97 m2 1

Proyecto público, valoralización del suelo Enagenación o expropiación 9 - 10 años

Instrumento:

Proyecto Público

Gestión:

EnagenaciónExpropiación

Territorio policéntrico

Creación de enclaves de carácter híbrido situados en puntos estratégicos del territorio, vinculados con las diversas bandas programáticas que componen al territorio y estableciendose como núcleos nodales de actividad múltiple, altamente conectados y articulados con el sistema de movilidad tanto motora, como alternativa y peatonal. Se plantea igualmente, una dotación de diversos servicios como lo son educativos, de salud, cultura, ocio y comercio, entendiéndose la vivienda como un articulador del territorio. Estos mantienen la escala actual del territorio y propician una gran porosidad en los enclaves residenciales que permite la permeabilidad del trazado y la continuidad de la movilidad en el territorio, así como la articulación con el espacio público.

Vivienda, oficinas, comercio, colegios Vías y espacio público

172993,52 m2

48805,16 m2

27896,97 m2

4622,94 m2

23838,43 m2

8710,03 m2

11

Licenciamiento y unidad de planificación rural

Gestión asociada voluntaria

5-6 años

Instrumento: Plan Parcial

Gestión: IntegraciónReajusteColaboración

Centros Urbanos - 2022 - Atlas 209 208 Centros Urbanos - 2022 - Atlas F e n ó m e n o P r o b e m a / O p o r u n d a d P o p u e s a A c c i o n e s B e n e f c o s Ca r g a s Á r e a s P r o p e t a r i o s n s t r u m e n t o s G e s t i ó n Im p l e m e n t a c ó n R e v i s ó n d e P O T
Matriz
Modelos de gestión

Modelos de gestión

Polo de atracción turístico

Los elementos de atracción se convierten en un polo atractor que posiciona al territorio como un lugar que permite generar dinámicas económicas en sus entornos inmediatos, transformando asimismo la estructura física del sector y el uso del suelo.

Consolidación del ocio

Creación de un núcleo turístico, conformado por una estación turistica, puntos de comercio, servicio, centros culturales y deportivos con el fin de consolidar a Briceño como un centro recreativo regional y de potenciar los lugares turísticos preexistentes en el territorio. Potenciación del Ecoparque existente.

Comercio, centro cultural y contribución por valorización

Estación turística, espacio público, equipamientos 29965,60 m2 2

Proyecto público y Licenciamiento

Enagenación o expropiación

Gestión asociada voluntaria

5-6 años

Instrumento: Proyecto Público

Gestión:

EnagenaciónExpropiación

Se genera una malla víal de escala local, a partir de la cual se pueden organizar y localizar las diferentes actividades con las que cuenta el sector y proveer al territorio de una movilidad más continua. Esto se conjuga con una red de ciclorrutas y movilidad peatonal, con préstamo de bicicletas, que proporciona un método de transporte alternativo, interconectando espacios de esparcimiento con núcleos de servicios y vinculado a la banda de ocio, de tal manera que, también sea un atractivo turístico recorrer el territorio a través de sus múltiples ecosistemas y paisajes.

Contribución por valorización Vías y espacio público

Proyecto público y Contribución por valorización Enagenación o expropiación 3 10 años

Instrumento: Proyecto Público Gestión: EnagenaciónExpropiación

Centros Urbanos - 2022 - Atlas Centros Urbanos - 2022 - Atlas 210 211
Matriz
Malla víal
Título del capítulo Título del capítulo Subtítulo del capítulo Subtítulo del capítulo Centros Urbanos - 2022 - Atlas Centros Urbanos - 2022 - Atlas 212 213
DISPOSITIVOS

NÚCLEOS RESIDENCIALES FUNCIONALES

Dispositivos

Casa unifamiliar

Alzado urbano | Escala: 1:250

Dispositivos TIPOLOGÍAS

Planta casa unifamiliar | Escala: 1:250

Edificio tipo 1

Corte longitudinal| Escala: 1:250

Planta primer piso | Escala: 1:250

Corte longitudinal | Escala: 1:250

Centros Urbanos - 2022 - Atlas Centros Urbanos - 2022 - Atlas 214 215

Dispositivos

Centros Urbanos - 2022 - Atlas 216
TIPOLOGÍAS
Edificio tipo 2 Planta primer piso Escala: 1:250 Corte longitudinal | Escala: 1:250

Dispositivo

Título del capítulo

Subtítulo del capítulo

Estación de carga

Planta | Escala: 1:250

Corte longitudinal | Escala: 1:250

Tipología implementada:

| 1:250

Centros Urbanos - 2022 - Atlas Centros Urbanos - 2022 - Atlas 218 219
estación de
carga
Alzado urbano estación de carga

eco-parque Dispositivos

planta y sección Dispositivos

Tipologías implementadas:

Bosques urbanos Corredor verde con tren de cercaníasRecuperación de humedales

Eco-parque

Planta | Escala: 1:250

Alzado urbano eco-parque | 1:250

Centros Urbanos - 2022 - Atlas Centros Urbanos - 2022 - Atlas 220 221

Dispositivos

Antes

Antes

Después

Después

Centros Urbanos - 2022 - Atlas Centros Urbanos - 2022 - Atlas 222 223
renders estación de carga
Dispositivo
Renders residencia

Dispositivos

SECCIÓN AXONOMÉTRICA NÚCLEOS RESIDENCIALESS FUNCIONALES sección axonométrica estación de carga Subtítulo del capítulo

Centros Urbanos - 2022 - Atlas Centros Urbanos - 2022 - Atlas 224 225

axonometrías progresivas

Centros Urbanos - 2022 - Atlas Centros Urbanos - 2022 - Atlas 226 227
Título del capítulo Título del capítulo Subtítulo del capítulo Subtítulo del capítulo
Centros Urbanos - 2022 - Atlas 228 Axonometría 2022 Proyecto urbano 229 Centros Urbanos - 2022 - Atlas Dispositivos axonometría 2030
Centros Urbanos - 2022 - Atlas 230 Dispositivo axonometría 2040 231 Centros Urbanos - 2022 - Atlas Dispositivo axonometría 2050

Bases conceptuales

Título del capítulo Título del capítulo Subtítulo del capítulo Subtítulo del capítulo Centros Urbanos - 2022 - Atlas Centros Urbanos - 2022 - Atlas 232 233

Conceptos

Sistemas emergentes

Steven Johnson

Patrón identificable tanto en el tiempo como en el espacio de nivel superior que surge de interacciones complejas entre agentes locales

Ciudad Insular Duhau y Giglia

La ciudad insular se caracteriza por su indiferencia al entorno y su desconexión con el resto del tejido urbano ‘como si no hubiera nada alrededor, por su ubicuidad debida a su conexión con los ejes viales, generando espacios insulares, que son implantados muchas veces como una suerte de enclaves, cuya relación con el resto de la ciudad sólo importa en términos de accesibilidad.

Urbanización dispersa

Ewing. Quim Español

Una forma específica de desarrollo urbano, caracterizada por la baja densidad edificatoria, la discontinuidad y fragmentación de los nuevos usos del suelo en el territorio y la preponderancia del transporte privado por carretera, teniendo como causa y consecuencia las nuevas infraestructuras viales.

Escenarios en red

Juan Guillermo Velandia

Artefactos localizados sobre las vías nacionales, en los enclaves nacionales más importantes. Conforman nodos a partir de su importancia, funcionalidad y tamaño. Se caracterizan por tener ocupaciones extensas y por tener alta dependencia del corredor nacional.

Metropolitanización

Aglomeraciones urbanas

Estructuración regular de las trazas y el crecimiento por agregación, generando una estructura compacta y continua.

Atractor lineal o desarrollo en filamentos

Stefano Boeri

Un atractor lineal que establece la orientación y constituye el punto central de referencia. Desarrollo a lo largo de un eje vial, del cual se desprenden filamentos que determinan la estructura vial y los escenarios en red.

Franceso Indovina

Modelo interpretativo de las dinámicas sociales de relaciones de poder entre clases y de la distribución de ventajas y desventajas urbanas.

Paisajes de baja densidad

Juan Guillermo Velandia

Se pueden identificar formas de ocupación correspondientes a los usos industriales y de bodegaje, localizados sobre las vías arteriales y secundarias, desarrollados en agrupación con circuitos viales internos articulados a la red general con un único acceso.

Centros Urbanos - 2022 - Atlas Centros Urbanos - 2022 - Atlas 234 235 Conceptos base

CONCEPTOS BASE

Conceptos

Nodo

Humberto Molina

Punto de confluencia de vectores que van en sentido contrario. Las nuevas centralidades surgen en los nodos de las infraestructuras de transporte, y las áreas de actividad especializada aprovechan la accesibilidad y la fluida conectividad que suministran las grandes autopistas para conformar otros tipos de aglomeraciones o de corredores empresariales y residenciales.

Exópolis

Edward Soja

Se trata de nuevas formas de urbanización por fuera o más allá de la ciudad central, en la zona o región metropolitana, a través de sistemas que interactúan en red, tendiendo a configurar ciudades-región o megalópolis. Estas formas comienzan a emerger cuando el crecimiento por conurbación o anexión disminuye “y los límites de la ciudad central se estabilizan relativamente”.

Territorio híbrido

Mauricio Mejía

Los territorios híbridos se configuran como piezas de la aglomeración metropolitana con dinámicas multi escalares propias (locales, urbanas y metropolitanas). Son espacios simultáneamente de conflictos y oportunidades, en los que se puede y se debe indagar sobre la función y el tratamiento de los espacios libres metropolitanos (paisajes culturales, áreas de protección, espacios del agua, áreas rurales) y su relación con la ciudad construida y sus dinámicas de crecimiento.

Enclaves Lévy

Enclaves son espacios aislados, mal conectados o desconectados de las redes de transporte y del resto del territorio, físicamente individualizados y cuya relación mutua se garantiza por la creciente accesibilidad del automóvil privado y el desarrollo de los sistemas de información.

Ciudad difusa

Francesco Indovina

Territorio urbanizado con presencia de una gran variedad de funciones y dotación de servicios dispersos, se diferencia esencialmente de otros asentamientos de baja densidad que se difunden en el espacio rural por la condición urbana que sus propios habitantes le confieren. La ciudad difusa es simultáneamente difusa y ciudad.

Nodo

La urbanización del campo se genera como un nuevo tipo de ciudad que nace de la crisis de la ciudad compacta Los nuevos desarrollos que aprovechan ventajas comparativas de localización, alta accesibilidad, amplia exposición visual, innovación y tecnología que principalmente se localizan sobre las vías principales.

Nueva geografía del urbanismo metropolitano

Edward Soja

La nueva geografía del urbanismo metropolitano es vista como el producto tanto de una descentralización como de una recentralización, de la desterritorialización como de la reterritorialización, de la continua expansión y de una intensificada nucleación urbana, de una creciente homogeneidad y heterogeneidad, de integración socio-espacial y desintegración, etc.

Mutaciones Javier Muñoz Reyes

mutaciones urbanas son cambios o transformaciones que se dan de una manera espontánea o planificada que generalmente son provocados por algún acontecimiento o algún factor que tiene como resultado una modificación estructural parcial o total de la ciudad ya sea en términos morfo tipológicos o de funcionalidad.

Centros Urbanos - 2022 - Atlas Centros Urbanos - 2022 - Atlas 236 237

Turn static files into dynamic content formats.

Create a flipbook
Issuu converts static files into: digital portfolios, online yearbooks, online catalogs, digital photo albums and more. Sign up and create your flipbook.