Portafolio Arquitectura - Dana Martin Barrera - 2023-I

Page 1

POR TFO LIO

DANA MARTIN BARRERA

Estudiante de octavo semestre, Pontificia Universidad Javeriana

Soy una persona comprometida con mi trabajo, líder, honesta y apasionada por la disciplina. Tengo habilidades en la representación digital de proyectos y me caracterizo por mi gran sentido del arte y la creatividad, los cuales aplico diariamente a mis trabajos. Me interesa la gestión de proyectos y el diseño.

Gracias a mi formación, cuento con habilidades analíticas, críticas y sintéticas que me permiten desarrollar propuestas arquitectónicas de manera efectiva. Me desenvuelvo bien en trabajos grupales y bajo presión, soy capaz de seguir instrucciones y

CONTACTO

+57 3204267198

martinb-danag@javeriana.edu.co

danagabriela58@gmail.com

linkedin.com/in/dana-martin-78ab65270

Bogotá, Colombia

Portafolio I Dana Martin 02 I

FORMACIÓN ACADÉMICA

Pontificia Universidad Javeriana

Pregrado

Junio 2019 - Actual

European School of Architecture

Curso de Revit Architecture

2023

Kazan State University of Architecture and Engineering

Curso de Ruso A2

2018-2019

Academia de Artes Guerrero

Curso de bocetación y fotografía

2018

RECONOCIMIENTOS

Segundo puesto a nivel nacional

Architecture Student Contest ed. XVII | Saint

Gobain

Junio 2022

HABILIDADES

- Creativa

- Responsable

- Comunicación asertiva

- Empatía

- Liderazgo

- Trabajo en equipo

- Adaptabilidad

- Disciplina

COMPETENCIAS

- Modelado 3d

- Planimetría técnica

- Representación

arquitectonica

IDIOMAS

- Español: Nativo

- Inglés: B2

- Ruso: A2

- Diseño

- Diseño gráfico

- Renderización

CONOCIMIENTO TÉCNICO

ADOBE

Illustrator

Photoshop

Indesing

MODELADO - RENDERIZADO - CAD

Revit Autocad

Rhino

Sketch up

3ds Max

Lumion

Twinmotion

Curriculum Vitae I CV I 03
Portafolio I Dana Martin 04 I 0 1 I CONTENIDOS 0 2 I ECOSOCIAL GARDEN TARAK I Pág. 6 I I Pág. 30 I
Contenidos I I 05
VIS 0 3 I 0 4 I COLEGIO PATIO BONITO I Pág. 44 I I Pág. 62 I
CONTENIDOS
Portafolio I Dana Martin
06 I
TARAK 0 1 I
Tarak I P1
I 07
TARAK
Portafolio I Dana Martin 06 I
Tarak I P1 I 07

TARAK

Año 2022.

Ubicación: Chandigarh,India.

Habitat del siglo XXI.

Vivienda multifamiliar.

La propuesta metropolitana busca ligar a la ciudad con su periferia, por medio de transporte multimodal y la expansión de las líneas del metro existente, también se busca compactar la ciudad por medio de un cinturón verde que revitaliza las zonas más afectadas, así mismo se busca que sea una ciudad descentralizada es decir que tenga múltiples centralidades.

La propuesta de la célula se localiza en una zona de expansión de la ciudad, en donde la propuesta urbana liga la el área de intervención, para continuar una expansión física ordenada y así mismo que de conectividad y la relación de Chandigarh como ciudad con su periferia ya que están desarticuladas.

En el recinto se buscó integrar el sistema natural preexistente transformándolo en un parque lineal donde se vuelca la actividad hacia el río. Los edificios se abren a este parque y busca conexión con la malla roja de centralidades en la parte central de la célula, así mismo los edificios se conectan por medio de una plataforma que permite el intercambio de usos. por último. la configuración de estos edificios mas la plataforma, da como resultado un espacio para la integración de los distintos usuarios del recinto

Takar es un edificio que se diseña a partir de módulos intercalados, tiene uso en la primera y segunda planta tiene locales comerciales, en la tercera planta cuenta con un espacio común, donde está la plataforma integradora de usos, que se conecta al gimnasio. En las siguientes plantas se encuentra el área privada de viviendas con cuatro tipologías de apartamentos, estos usos se integran mediante las zonas sociales intercaladas en las plantas, como espacios de coworking y oficinas, en el último piso está

Portafolio I Dana Martin 10 I
Tarak I P1 I 11
plan Chandigarh
Master
01 I Etapas de crecimiento 03 I Usos Comercio Vivienda Industria Mixto 05 I Sistema ecológico Área verde Río 02 I Funciones Centrales Cuerpos hídricos Vías pincipales 04 I Movilidad y transporte Metro Ferrocarril
Portafolio I Dana Martin 12 I
06 I Master plan final V.regionales V.metropolitanas V.sectoriales
de la fábrica
Localización urbana Restauración
Área del poligono
Tarak I P1 I 13
Propuesta urbana del poligono
01 I Área del lote 02 I Aperturas 04 I Retrocesos Proceso de diseño del recinto 03 I Ejes compositivos Conexión por Portafolio I Dana Martin 14 I

Planimetría del recinto

01 I Planta de sótano Parqueaderos 110 Zona de carga y descarga Cuartos tecnicos

Axonometría del recinto

01 I Primera planta Espacio Público Acceso a restaurante Acceso a parqueadero Acceso a edificios

Tarak I P1 I 15

Usos

- Locales de comercio

- Local tipo 1: 65M2

- Local tipo2: 32M2

- Local tipo 3: 20M2

- Acceso privado a vivienda

Primera planta
Portafolio I Dana Martin 16 I
Planimetría

Segunda planta Usos

- Locales de comercio

- Local tipo 1: 65M2

- Local tipo2: 28M2

- Local tipo 3: 20M2

- Salon comunal vivienda

Tercera planta Usos

- Gimnasio

- Salas de yoga

- Salas de pilates

- Terraza para actividad a aire libre

-Conexion con plataforma del recinto

Tarak I P1 I 17

Planta tipo pisos 4,5,9,10,14,15

Usos

- Apartamento tipo 1: 201m2

- Apartamento tipo 2: 188 m2

- Apartamento tipo 3: 105m2

- Apartamento tipo 4: 100 m2

- Depositos: 20m2

Planta tipo pisos 6,7,11,12,17,18

Usos

- Apartamento tipo 1: 201m2

- Apartamento tipo 2: 188 m2

- Apartamento tipo 3: 105m2

- Apartamento tipo 4: 100 m2

- Depositos: 20m2

Portafolio I Dana Martin 18 I

Coworking

Planta tipo pisos 8 & 13

- Cubiculos de oficina

- Oficinas privadas

- Oficina de juntas

- Baños

Terraza

Planta piso 19

- Zona bbq

- Espacios de permanencia

- Salas al aire libre

Tarak I P1 I 19
Área 188 m2 - 3 Habitaciones - 4 Baños Apartamentos tipo 01 I Tipo 1 I Portafolio I Dana Martin 20 I
Área 201 m2 - 4 Habitaciones - 5 Baños 02 I Tipo 2 I Área 105 m2 - 2 Habitaciones - 3 Baños 03 I Tipo 3 I Área 100 m2 - 1 Habitaciones - 2 Baños 04 I Tipo 4 I Tarak I P1 I 21
Fachadas & Cortes Fachada principal 01 Fachada secundaria 02 Fachada terciaria 03 Portafolio I Dana Martin 22 I
Corte longitudinal A-A’
Tarak I P1 I23
Corte transversal B-B’
Corte
24 I
Detalle de baño Planta
Portafolio I Dana Martin
Tarak I P1 I 25
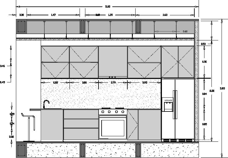
Detalle Cocina Planta Corte
26 I
Corte por fachada Portafolio I Dana Martin

Planta estructural

01 I Planta Estructural

Columna 40x70 cm

Viga 30x45 cm

Vigueta 12x45 cm

Render diurno

02 I Planta de Cimentación

Zapata 1.50x1 m

Viga 30x45 cm

Vigueta 12x45 cm

03 I Modelo estructural

- Caja estrcutural

punto fijo

- Sistema portante

Tarak I P1 I 27
Portafolio I Dana Martin 28 I
Tarak I P1 I 29

ECOSOCIAL GARDEN 0 2 I

Portafolio I Dana Martin 30 I
Ecosocial garden I P2 I 31
ECOSOCIAL GARDEN

ECOSOCIAL GARDEN

Año 2022.

Residencias estudiantiles.

Ubicación: Varsovia, Polonia.

Segundo puesto nacional, Architecture Student Contest, 17th International Edition.

Este proyecto se basa en el concepto de jardines ecosociales, entendiendo lo ecosocial como la integración y participación de la comunidad estudiantil en el entorno mediante estrategias ambientales, sociales y culturales que generan una diversidad ecológica propia del proyecto. Se realizo un análisis del lugar en términos dé preexistencias, flujos de movilidad, vegetación, asoleación y caracteres particulares como su articulación con la ciudad de Varsovia. Todos estos factores incidieron en el planteamiento volumétrico y de implantación. Inicialmente se paramento el lote para brindar un espacio público dando respuesta a las actividades del sector, seguido a esto se eleva la geometría delimitada en las áreas estipuladas y sus alturas límite, en donde los flujos fragmentan los volúmenes permitiendo permeabilidad y acceso. Así mismo, se retrocede el volumen para buscar orientar visuales y fachadas respondiendo a asoleación. Por otro lado, se logra otorgar privacidad al centro verde por medio del cambio de nivel. De acuerdo los parámetros del concurso, se establecieron distintos usos en altura de acuerdo con su grado de privacidad, incorporando el comercio, la administración, y los servicios estudiantiles en el primer nivel, seguido a ello espacios de ocio y de estudio que se configuran como áreas comunes para los estudiantes y en los niveles superiores se ubican las residencias como el uso más privado. Por medio del criterio de diseño de las habitaciones busca juntar la actividad y los usos afines. para ello, se integraron y optimizaron los espacios, incorporando mobiliario plegable y móvil. En cuanto al desarrollo planimétrico, iniciando por una primera planta de uso mixto donde se encuentran los servicios. Posteriormente encontramos una plataforma integradora donde recorrer todo el edificio y en las plantas posteriores se ubican todos los espacios privados. En cuanto a espacios al aire libre, integramos a la comunidad mediante jardineras comunes, zonas de relajación, juegos y algunas zonas de permanencia, como distintivo de las zonas privadas para los estudiantes, hay gimnasios, zona de juegos, coworkings y salas de tv.

Por último,se buscó una rehabilitación del patrimonio y una resignificación de los usos en el interior por medio de la tecnología, el arte y la cultura logrando una participación activa de la fábrica con su entorno.

Portafolio I Dana Martin 32 I
Ecosocial garden I P2 I 33

Usos en altura

Implantación
01 I Terreno y Orientación 14.500 m2 02 I Extrucción Sección volumétrica admitida en las zonas B 03 I División y Orientación Ejes compositivos para abrir flujos 04 I Niveles Establecido el número de pisos por volumen (5m y 3m de altura) 05 I Retrocesos y terrazas Permitir que la vegetación suba al edificio 06 I Conectividad Articulación de volúmenes con plataforma elevadora 07 I Excavación Por debajo del nivel cero para garantizar la privacidad en el centro
Portafolio I Dana Martin 34 I
Restauración
de la fábrica
01 I Primera planta Actividades culturales y artisticas
Axonometría con usos Ecosocial garden I P2 I 35
02 I Segunda planta Salones de tecnología

Primera planta Comercio

Segunda planta

Plataforma integradora

Tercera planta Habitaciones

Portafolio I Dana Martin 36 I

Habitaciones

Habitaciones

Habitaciones

Cuarta planta Quinta planta Sexta planta
I 37 Ecosocial garden I P2
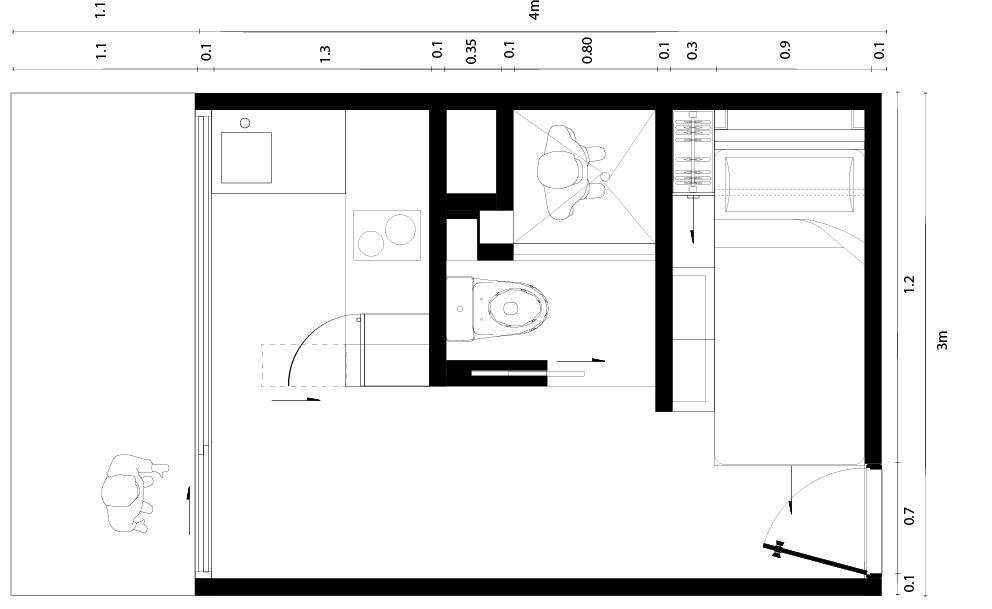
de apartamento
Tipología
N°1
01 I Planta apartamento para una persona Área total: 12m2 Corte I Balcón, cocina, baño, habitación+estudio
38 I
Axonometría I Mueble plegable (cama y escritorio integrado)
Portafolio I Dana Martin
de apartamento
Tipología
N°2
02 I Planta apartamento para dos personas Área total: 24m2 Corte I Balcón, cocina, baño, habitación+estudio
I 39 Ecosocial garden I P2
Axonometría I Mueble plegable (cama y escritorio integrado)
Corte longitudinal A-A’ Corte transversal B-B’ Fachada principal 01 Fachada secundaria 02 Portafolio I Dana Martin 40 I

Espacios comunes

Terrazas para descanso

Jardines colgantes

Espacio público

Mesas al aire libre

Juegos

I 41 Ecosocial garden I P2

Detalles constructivos

Cubierta verde

01. Concrete Crowning

02. Aislamiento térmico

ISOFACE 32R

03. Cornisa de hormigón

04. Barrera de vaporISOVER Stopair 1104

05. Tubo BLUETOP

BioZinalium 10mm

06. Grava media

07. Barrera en concreto

08. Vegetación

09. Sustrato

10. Geotextile NT 1800

11. Láminas de drenaje en poliestireno 0 HDPE

12. Hoja de aislamiento

13. Aislamiento térmico-FEUTRE BARDAGE

14. Nivelación

15. Mortero impermeabilizante

16. Losa de hormigón

Fachada

01. Altillo de madera

02. Perno de anclaje

03. Perfil metálico de marquetería

04. SGG CLIMATOP Lux

Rw 35dB - vidrio

05. Palos de madera

06. Barandilla metálica

07. Sistema de rieles

08. Perfil de guía

09. Barrera de vaporISOVER Stopair 1104

10. Placa de losa de madera

Zapata

01. Suelo

02. Muro de contención

03. Acabado de piso

04. Mortero

05. Aislamiento de lana mineral- ISOVER

Stropoterm

06. Losa base de hormigón

07. Malla soldada

08. Concrete Crowning

09. Columna en concreto

10. Cornisa de hormigón

11. Cesta de aceroColumna

12. Flejes

13. Cesta de aceroVigueta

14. Vigueta de amarre

Portafolio I Dana Martin 42 I

Detalles constructivos

Conexión de placa intermedia y columna

01. Altillo de madera

02. Perno de anclaje

03. Perfil metálico de marquetería

04. SGG CLIMATOP Lux

Rw 35dB - vidrio

05. Palos de madera

06. Barandilla metálica

07. Sistema de rieles

08. Perfil de guía

09. Barrera de vaporISOVER Stopair 1104

10. Placa de losa de madera

Detalle de la pared divisoria

01. Altillo de madera

02. Perno de anclaje

03. Perfil metálico de marquetería

04. SGG CLIMATOP Lux

Rw 35dB - vidrio

05. Palos de madera

06. Barandilla metálica

07. Sistema de rieles

08. Perfil de guía

09. Barrera de vaporISOVER Stopair 1104

10. Placa de losa de madera

I 43 Ecosocial garden I P2
Portafolio I
44 I
COLEGIO BONITO 0 3 I
Dana Martin
I 45 CPB I P3
COLEGIO PATIO BONITO
Portafolio I Dana Martin 46 I
I 47 CPB I P3

COLEGIO PATIO BONITO

Año 2021.

Equipamiento Urbano.

Ubicación: Patio Bonito, Bogotá, Colombia. Colegio con énfasis en producción de alimentos.

Este equipamiento urbano queda ubicado en el barrio Patio Bonito, de la ciudad de Bogotá. La propuesta cuenta con un planteamiento urbano que busca solucionar la falta de conexión de la movilidad que se debe a la gran densificación en el sector, producto de la ocupación ilegal en Patio Bonito, lo cual afecta la articulación y el funcionamiento de los flujos internos del barrio. Por medio de la conexión de la movilidad y su relación con la morfología, eventualmente se verá la continuidad de los flujos, lo cual permitirá una continua circulación tanto de peatones como de vehículos en el sector. Por otro lado, la propuesta también busca la integración del río Bogotá y su comunicación mediante un parque lineal central, lo cual generará un sentido de apropiación y fomenta el buen manejo de los espacios públicos. Finalmente se plantea una propuesta de usos que contenga una red de equipamientos, que se integren mediante el urbanismo. En cuanto al equipamiento urbano, se propone un colegio con énfasis en la producción de alimentos, dado a la cercanía del barrio con la central de abastos de alimentos más importante de Bogotá, en este colegio los estudiantes podrán capacitarse y tener espacios como: parqueaderos, cafeterías, zonas administrativas, comercio con venta de productos producidos por los estudiantes, cocinas, laboratorios, un auditorio, salones y aulas interactivas enfocadas al conocimiento técnico, para así tener una mejor formación. El Colegio Patio Bonito, cuenta con cuatro plantas y una cubierta transitable que permite el aprovechamiento de este espacio público tanto de los estudiantes como de la comunidad.

Portafolio I Dana Martin 48 I
I 49 CPB I P3

Master plan

Propuesta de usos

Espacio público Equipamientos

Residencial Servicios

Comercio

Propuesta de accesos

Río Bogotá

Vías principales de borde

Vía arterterial interior

Sentido N-S

Sentido S-N

Sentido O-E

Estaciones SITP

Propuesta de mobiliario

Red de iluminación

Parques lineales

Mejoras en el mobiliario urbano

Puntos SITP

Puntos de recogida de basura

Propuesta de equipamientos

Equipamiento de salud

Equipamiento de educación

Centro de reciclaje

Equipamiento deportivo

Portafolio I Dana Martin 50 I
Planta eje central
Villavicencio
38
+ Comercio I 51 CPB I P3
Cortes viales Avenida
Calle
sur Parque lineal
Sotano N -3.0 3 A A C C 4 3 4 SÓTANO COLEGIO PATIO BONITO N -4,00 N 0,0 N 0,0 N 0,00 N -1,00 N 0,0 N +0,30 N +0,30 ACCESO RAMPA PARQUEADERO ACCESO VEHICULAR N -4,00 N -4,00 CUARTO DE SERVICIOS Planimetría Portafolio I Dana Martin 52 I

PRIMERA PLANTA

1 2 3 A A 1 2 4 B B C C 4 2 3
COLEGIO PATIO BONITO CAFETERÍA ZONA ADMINISTRATIVA HALL N 0,0 N 0,0 N 0,0 N 0,0 N +4,00 N -1,00 N 0,0 N +0,30 N +0,30 ACCESO RAMPA BAÑOS AUDITORIO DE MUESTRAS ACCESO PRINCIPAL N 0,0 N -3,00 Primera planta N 0.0 I 53 CPB I P3

SEGUNDA PLANTA

Segunda planta N +4.0 Planimetría 1 2 3 A A 1 2 4 B B C C 4 2 3
COLEGIO PATIO BONITO AULAS ZONAS DE ESTUIDIO ZONAS DE ESTUIDIO N +4,00 N +4,00 N +4,00 N 0,0 N 0,0 N +4,00 N -1,00 N 0,0 N +0,30 N +0,30 ACCESO RAMPA BAÑOS
54 I
Portafolio I Dana Martin

TERCERA PLANTA

Tercera planta N +8.0 1 2 3 A A 1 2 4 B B C C 4 2 3
COLEGIO PATIO BONITO COMEDOR N 0,0 N 0,0 N +4,00 N -1,00 N 0,0 N +0,30 N +0,30 ACCESO RAMPA BAÑOS ACCESO PRINCIPAL N +8,00 N -3,00 N +8,00 N +8,00 LABORATORIO COCINAS I 55 CPB I P3

CORTES Y FACHADAS

Portafolio I Dana Martin

CORTES Y FACHADAS

CORTES Y FACHADAS

COLEGIO PATIO BONITO CORTE A-A’ FACHADA SUR
COLEGIO PATIO BONITO CORTE A-A’ CORTE B-B’ CORTES Y FACHADAS COLEGIO PATIO BONITO CORTE A-A’ CORTE B-B’ FACHADA SUR
COLEGIO PATIO BONITO CORTE A-A’ CORTE B-B’ FACHADA ORIENTAL FACHADA SUR Corte longitudinal A-A’ Corte transversal B-B’ Fachada principal 01 Fachada secundaria 02
56 I

CORTE POR FACHADA

ESCALA 1:200 . COLEGIO PATIO BONITO

Corte por fachada

Panel tipo C Hunter Douglas

Soporte

Perfil tubular

Platillo metálico

Tornillo de anclaje

Nudo articulador

Pernos de anclaje

Perfil tubular hueco. E=0,60m

Perciana de madera

Lamina de Steeldeck 2”

Concreto pulido modulado

Mortero

Malla electrosoldada

Viga perfil tipo I

Lamina de cieloraso

Vidrio laminado Low E. E=0.04mm

Junquillo recto

Perfil marqueteria

Pernos de anclaje

Perfil tubular hueco. E=0,60m

Perciana de madera

Muro de contención

Platina 1mx1mx0.5m

Pernos de anclaje

Soporte de ancleje de Steeldeck

Mortero

Impermeabilización de membrana asfaltica

Canasta de aceros

Viga de amarre de concreto reforzado

Viga de cimentación

N -4.00m N 0,0m N 0,0m N 0,0m N 4,0m N 8,0m N 13,0m
I 57 CPB I P3

ESCALA

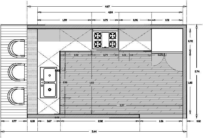
Detalle de cocina

ACCESO PRINCIPAL

LABORATORIO N°1

CUARTO DE BASURAS

PREPARACIÓN DE CARNES PREPARACIÓN DE VERDURAS

PREPARACIÓN DE COCINA FRÍA

ZONA DE PRECOCCIÓN

ESTACIÓN N°1

ESTACIÓN N°2

ACCESO SECUNDARIO

ZONA DE PRÁCTICA

ESTACIÓN N°3

CIRCULACIÓN

ALMACENAMIENTO DE UTENCILIOS

APOYO PREPARACIÓN

PREPARACIÓN FINAL

LABORATORIO N°1

ZONA DE PRÁCTICA

CIRCULACIÓN

LABORATORIO N°2

LABORATORIO N°2

CIRCULACIÓN

LAVADO DE UTENCILIOS

ALMACENAMIENTO

ESTACIÓN N°4

ESTACIÓN N°5

ESTACIÓN N°6

ESTACIÓN N°7

ZONA DE PRÁCTICA

CIRCULACIÓN

CUARTO FRÍO BAÑOS

ALMACENAMIENTO ALIMENTOS SECOS

CIRCULACIÓN

ALMACENAMIENTO GENERAL

LABORATORIO DE COCINA
DETALLE
80 80
FRÍO LACTEOS
1:200 . COLEGIO PATIO BONITO
CUARTO
I Dana Martin 58 I
Portafolio

Render interior cocina

Render espacio público

I 59 CPB I P3
Portafolio I Dana Martin 60 I
I 61 CPB I P3
VIS 0 4 I Portafolio I
Martin 62 I
Dana
VIS I 63 CPB I P3

VIS BARRIO ARABIA

Año 2022.

Vienda popular.

Ubicación: Arabia, Ciudad Bolivar, Bogotá, Colombia. Vivienda de interes social de caracter productivo.

Este proyecto de vivienda se ubica en el barrio Arabia en la localidad de Ciudad Bolívar, se planteó un máster plan que solucionara los problemas de segregación urbana que se presenta en este lugar. La propuesta consta un plan de movilidad, usos y conservación del sistema ambiental, con la integración de los distintos sistemas se busca una mejora en la calidad de vida de esta población que en su mayoría vive en condiciones de pobreza. En cuanto a la propuesta de vivienda, se enfoca en la población migrante proveniente de distintas partes de Colombia, la propuesta cuenta con espacios como comercio, talleres formativos, comedores comunitarios y salones sociales, enfocado en familias nucleares del barrio Arabia.

Portafolio I Dana Martin 64 I
I 65 VISI I P4
Análisis
del barrio Arabia
03 I Usos Comercio Vivienda Industria Mixto 05 I Nolli Vacío Lleno 01 I Movilidad
Cuerpos
hídricos Vías pincipales 04 I Movilidad y transporte Metro Ferrocarril
Portafolio I Dana Martin 66 I
06 I Remoción en masa Riesgo alto Riesgo medio Riesgo alto
Master plan I 67 VISI I P4

Criterios de diseño e implantación

Cortes longitudinal

Cortes transversal

I Dana Martin 68 I
Portafolio
01 I Nodo articulador como episodio de actividad Concepto entretejiendo habitat 03 I Naturaleza como objeto integrador
I 69 VISI I P4
02 I Red de atractores como nodos

Criterios de diseño e implantación

01 I Área y Paramentos A: 2176m2 04 I Conexíon de franja productiva con espacio público de las viviendas, espacios semiprivados. 03 I Implantación en el terraceo, desnivel de -1m. 06 I Creación de huertas comunitarias como apoyo a la franja productiva. 05 I Terraceo con viasuales hacia la zona productiva.
Portafolio I Dana Martin 70 I
02 I Terraceo Cortes + Relleno
Volumetría de las viviendas I 71 VISI I P4
Portafolio I Dana Martin 2 TARAK 0 1 I POR TFO LIO Dana +57 danagabriela58@gmail.com

TARAK

Dana Martin Barrera

3204267198

danagabriela58@gmail.com

Tarak I P1 3

Turn static files into dynamic content formats.

Create a flipbook
Issuu converts static files into: digital portfolios, online yearbooks, online catalogs, digital photo albums and more. Sign up and create your flipbook.