Dearq 31. Vivienda 2.0 / Housing 2.0

Page 1

De arq 31

Vivienda 2.0

Housing 2.0

$40.000 COP

9772011318009

E-ISSN 2215-969X Revista de Arquitectura de la Universidad de los Andes

Dearq 31

VIVIENDA 2.0

HOUSING 2.0

Septiembre de 2021

Raquel Bernal Salazar

Rectora (e) Universidad de los Andes

Rafael Hernando Barragán Romero

Decano Facultad de Arquitectura y Diseño

Claudia Mejía Ortiz

Directora Departamento de Arquitectura

Camilo Salazar Ferro

Director

Lucas Ariza Parrado

Editor

Ignacio Borrego Gómez-Pallete

Juan Manuela Medina del Río

Editores invitados

Manuela Tafur Victoria

María Carolina Pinedo Cobos

Gestoras editoriales

Adriana Páramo Urrea

Coordinadora de publicaciones

Carolina Rodríguez

Traducción y correción de estilo

Ella Suárez

Correción de estilo

Santiago Orjuela Garzón

Juliana Sepulveda Osorio

Monitores

Mateo Pérez

Lacol

Imágenes de carátula y postales

Xpress Estudio Gráfico y Digital S. A .S.

Impresión

Dearq

Universidad de los Andes Facultad de Arquitectura y Diseño Departamento de Arquitectura

Carrera 1 Este núm. 18A-70, bloque C, piso 4 Tel. +(571)332 4511 - 339 4949, ext. 5981

Bogotá, Colombia https://revistas.uniandes.edu.co/journal/dearq dearq@uniandes.edu.co

E-ISSN 2215-969X

Precio por unidad: $40.000 pesos (Colombia)

Ediciones Uniandes

Edificio Barichara, torre B, oficina 1401 Tel. +(571)339 4949, ext. 2133

Bogotá, Colombia http://ediciones.uniandes.edu.co infeduni@uniandes.edu.co

Distribución, ventas y suscripciones Librería Universidad de los Andes http://libreria.uniandes.edu.co

Librerías afiliadas a la red de distribución de Siglo del Hombre Editores - http://libreriasiglo.com/

Nota legal

La revista no realiza cobros a los autores por la sumisión de artículos, evaluación por pares, corrección de estilo o publicación. La versión impresa de la revista tiene un precio y puede adquirirse en los puntos autorizados para la venta y comercialización.Todos los contenidos de la revista Dearq, a menos de que se indique lo contrario, están bajo la licencia de Creative Commons Attribution License*

*Atribución: Esta licencia es la más restrictiva de las seis licencias principales, sólo permite que otros puedan descargar las obras y compartirlas con otras personas, siempre que se reconozca su autoría, pero no se pueden cambiar de ninguna manera ni se pueden utilizar comercialmente.

Universidad de los Andes | Vigilada Mineducación

Universidad: Decreto 1297 del 30 de mayo de 1964.

Reconocimiento como

Reconocimiento personería jurídica: Resolución 28 del 23 de febrero de 1949 Minjusticia. Acreditación institucional de alta calidad, 10 años: Resolución 582 del 9 de enero del 2015, Mineducación

Dearq es una revista cuatrimestral a partir del 2020 (enero-abril, mayo-agosto y septiembrediciembre), que publica al inicio de cada período, creada en el 2007 por el Departamento de Arquitectura de la Universidad de los Andes (Colombia). Su objetivo es contribuir a la difusión de análisis, investigaciones, re exiones y opiniones críticas que la comunidad cientí ca nacional e internacional elaboren sobre la arquitectura, la ciudad y sus áreas a nes. La revista recibe contenidos inéditos y originales, sin postulación simultánea, en español y en inglés. Está dirigida a una comunidad cientí ca que incluye investigadores, profesionales, estudiantes e interesados en contribuir con el diálogo y el intercambio de ideas basadas en las discusiones y problemáticas abordadas por la revista.

La estructura editorial de la revista Dearq se divide en secciones:

- La Editorial está a cargo del Equipo Editorial que introduce la temática del número.

- La sección Investigación reúne un conjunto de documentos que abordan el tema especí co del número mediante la exposición de avances o resultados de investigaciones con una perspectiva crítica y analítica.

- La sección Proyectos presenta una selección de obras arquitectónicas y urbanas recientes y/o signi cativas, que complementan el tema especí co de cada número.

- La sección Creación expone trabajos creativos que desde disciplinas distintas a la arquitectura abordan temas de naturaleza espacial o urbana.

Dearq is a quarterly publication upon 2020 (January-April, May-August and SeptemberDecember), that is published at the beginning of each of these periods, created in 2007 by the Department of Architecture of the Universidad de los Andes (Colombia). Its objective is to contribute to the dissemination of the research, analyses and opinions that the national and international academic community elaborates on architecture, urbanism and related areas. The journal receives previously unpublished and original contents in Spanish and English.

It is aimed for a scienti c community that includes researchers, professionals, students and other interested in contributing with the dialog and the exchange of ideas based on the discussions and issues proposed by the journal.

The structure of the Dearq journal is divided in sections:

- The Editorial section is in charge of the editorial team, who introduces the issue's thematic.

- The Research section integrates a series of documents and content about a speci c topic proposed by the journal. They must present advances in or results of research, or thematic reviews from a critical and analytical perspective.

- The Project section presents a recent and/or meaningful selection of architectural and urban built projects that illustrate and complement the issue’s theme.

- The Creation section exhibits creative works that address spatial or urban topics through disciplines di erent from architecture.

Editores Invitados - Guest Editors

Ignacio Borrego Gómez-Pallete, Technische Universität Berlin, Alemania

Juan Manuel Medina del Río, Universidad de los Andes, Colombia

Comité Editorial - Editorial Committee

Andrés Burbano Valdes, Universidad de los Andes, Colombia

Daniel Cardoso Llach, Carnegie Mellon University, Estados Unidos

Francisco A. García Pérez, Escuela Técnica Superior de Arquitectura, España

Daniel Huertas Nadal, Universidad de los Andes, Colombia

Hugo Mondragón López, Universidad Católica de Chile, Chile

Sandra Reina Mendoza, Universidad Nacional de Colombia, Colombia

Carolina Rodríguez Bernal, Universidad Piloto de Colombia, Colombia

Diego A. Rodríguez Lozano, Tecnológico de Monterrey, México

Denise Helena Silva Duarte, Universidade de São Paulo, Brasil

Comité Cientí co - Scienti c Committee

Rodolfo Manuel Barragán Delgado, Tecnológico de Monterrey, México

Ricardo Castro, McGill University, Canada

Pilar Chías Navarro, Universidad de Alcalá de Henares, España

Fernando Lara, University of Texas at Austin, Estados Unidos

Juan José Lahuerta, Universitat Politècnica de Catalunya, España

Jorge Francisco Liernur, Universidad Torcuato di Tella, Argentina

Ángel Martín Ramos, Universidad Politécnica de Cataluña, España

Catalina Mejia Moreno, SSoA University of She eld, Reino Unido

Ton Salvadó Cabré, Universitat Politècnica de Catalunya, España

Marta Sequeira, Universidade de Évora, Portugal

Tatiana Urrea Uyabán, Universidad Nacional de Colombia, Colombia

Sheila Walbe Ornstein, Universidade de São Paulo, Brasil

La revista Dearq agradece la colaboración de las siguientes personas que cumplieron el rol de pares evaluadores de este número:

Dearq journal acknowledges the collaboration of the following people who ful lled the role of peer evaluators of this issue:

José del Carmen Palacios Aguilar, Universidad de Lima

Andrés Martínez-Medina, Universidad de Alicante

Carlos Alberto Fuentes Pérez, Universidad Autónoma de Tamaulipas

Carolina Blanco, Universidad de los Andes

Rodrigo García Alvarado, Universidad del Bío-Bío

Silvia Colmenares Vilata, Universidad Politécnica de Madrid

Victoria Eugenia Sánchez Holguín, Universidad Ponti cia Bolivariana

Luis Rojo de Castro, Universidad Politécnica de Madrid

Sergio Martín Blas, Universidad Politécnica de Madrid

María Luisa Vela Garavito, Universidad de los Andes

Juan José Cuervo Calle, Universidad Ponti cia Bolivariana

Ricardo Iván Checa Mora, Universidad de Nariño

Fernando E. Chávez Finol, Universidad del Bío-Bío

Juan Gabriel Hurtado Isaza, Universidad Nacional de Colombia

Indexación - Indexation

La revista Dearq está incluida en los siguientes directorios, servicios de indexación y base de datos:

Dearq journal is currently available in the following directories and index services:

• Actualidad Iberoamericana, Centro de Información Tecnológica (Chile), desde 2011

• ARLA - Asociación de Revistas Latinoamericanas de Arquitectura (Latinoamérica), desde 2012

• Art & Architecture Complete. EBSCO Research Databases (Estados Unidos), desde 2007

• Art & Architecture Source. EBSCO Research Databases (Estados Unidos), desde 2007

• Art Abstracts (H.W. Wilson). EBSCO Research Databases (Estados Unidos), desde 2010

• Art Full Text (H.W. Wilson). EBSCO Research Databases (Estados Unidos), desde 2008

• Art Index (H.W. Wilson). EBSCO Research Databases (Estados Unidos), desde 2008

• Avery Index to Architectural Periodicals & Avery Architectural and Fine Arts Library. Columbia University Libraries (Estados Unidos), desde 2010

• ANVUR, Agenzia Nazionale di Valutazione del Sistema Universitario e della Ricerca (Italy), desde 2018

• CLASE, Citas Latinoamericanas en Ciencias Sociales y Humanidades (México), desde 2018

• CINECA, Consultor Informático en Italia. Ministerio de Educación (Italia), desde 2017

• DAAI, Design and Applied Arts Index. Proquest (Estados Unidos), desde 2011

• DOAJ - Dictionary of Open Access Journals. Infrastructure Services for Open Access (Reino Unido), desde 2017

• Dialnet - Difusión de Alertas en la Red. Universidad de La Rioja (España), desde 2007

• EBSCO HOST (Estados Unidos), desde 2011

• Electronic Journals Library. Uneserität Regensburg (Alemania), desde 2010

• ESCI - Emerging Source Citation Index. Thomson Reuters (Estados Unidos), desde 2016

• ERIHPLUS - European Reference Index for the Humanities and the Social Sciences (Noruega), desde 2017

• Gale Cengage, Database Title List (Estados Unidos), desde 2010

• Google Académico, desde 2010

• HAPI - Hispanic American Periodicals Index. University of Califonia (Estados Unidos), desde 2012

• LATINDEX - Sistema Regional de Información en Línea Para Revistas Cientí cas de América Latina, el Caribe, España y Portugal (México), desde 2010

• LatinREV - Red Latinoamericana de Revistas Académicas en Ciencias Sociales y Humanidades. FLASCO (Argentina), desde 2018

• MIAR - Information Matrix for the Analysis of Journals. Universitat de Barcelona (España), desde 2012

• Ocenet - Editorial OCEANO (España), desde 2011

• Periódicos CAPES/MEC (Brasil), desde 2014

• Publindex. Colciencias (Colombia), desde 2021

• Redalyc - Red de Revistas Cientí cas de América Latina, el Caribe, España y Portugal. UAEM (México), desde 2011

• REDIB - Red Iberoamericana de Innovación y Conocimiento Cientí co (España), desde 2010

• ROAD - Directory of Open Access Scholarly Resources. ISSN International Centre (Francia), desde 2018

• Socolar - CEPIEC - China Educational Publications Import and Export Corporation (China), desde 2010

• Ulrich’s Periodicals Directory. Proquest (Estados Unidos), desde 2011

• Urban Studies Abstract. EBSCO Research Databases (Estados Unidos), desde 2007

Note:

The Editorial Committee establishes the editorial policy and safeguards its compliance; guides the editorial process in order to guarantee maximum quality, based on criteria established by the databases and evaluation systems of national and international journals; it ensures compliance with the ethical standards of publication in accordance with international standards and validates strategic lines of interest for the launching of new issues, as well as its publication schedule.

The Scienti c Committee contributes in the national and international academic media to the dissemination of the journal, its numbers, international calls and events and also establishes links with recognized researchers and other academic and investigative bodies to identify possible collaborators , as peer reviewers, guest editors and columnists, among others.

Nota:

El Comité Editorial de la revista establece la política editorial de esta y salvaguarda su cumplimiento; orienta el proceso editorial con la nalidad de garantizar la máxima calidad, en función de criterios establecidos por las bases de datos y sistemas de evaluación de revistas nacionales e internacionales; vela por el cumplimiento de las normas éticas de publicación conforme estándares internacionales y valida líneas estratégicas de interés para el lanzamiento de nuevos números, así como su agenda de publicación.

El Comité Cientí co de la revista contribuye en el medio académico nacional e internacional a la divulgación de la revista, sus números, convocatorias y eventos internacionales y además, establece vínculos con reconocidos investigadores y con otras instancias académicas e investigativas para la identi cación de posibles colaboradores, como pares evaluadores, editores invitados y articulistas, entre otros.

31 De arq

PRESENTATION

Housing of our time

Camilo Salazar, Lucas Ariza

RESEARCH

Home, City, Territory: A collective enquiry on the transformations of contemporary urban habitation

Miguel Paredes Maldonado

Collaborative housing in the digital age as a sustainable process

Lucía de Molina Benavides, Elisa Valero Ramos

Five principles for a vulnerable and intimate architecture: Drawing alternative boundaries and apertures to home and self

Maya Orzechowska

Parametric Modeling in the Design Process: Strategies to Create Flexibility and Spatial Adaptation for Social Housing

Wilson Florio, Ana Tagliari

Tenements in Bogotá: From a socio-spatial problem to an architectural proposal for housing

Valeria Abello Aldana, Miriam Kuehler

Interview with Jacob van Rijs

Jacob van Rijs, Ignacio Borrego Gómez-Pallete, Juan Manuel Medina del Río

PROJECTS

Housing 2.0. Imagining a future Juan Manuel Medina del Río, Ignacio Borrego Gómez-Pallete

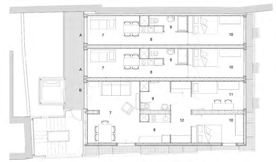
APAN Laboratorios de Vivienda: Vivienda Mínima

Ocoyoacac

Tatiana Bilbao y socios

Cooperativa de vivienda La Borda

Lacol

APROP Ciutat Vella

Straddle3, Eulia Arkitektura, Yaiza Terré

RESEARCH - CREATION

The city: An interior look

Lorenzo Morales

Vivienda 2.0

Housing 2.0

PRESENTACIÓN

La vivienda de nuestro tiempo

Camilo Salazar, Lucas Ariza

INVESTIGACIÓN

Casa, ciudad, territorio: una investigación colectiva sobre las transformaciones del habitar urbano contemporáneo Miguel Paredes Maldonado

La vivienda colaborativa en la era digital como proceso sostenible

Lucía de Molina Benavides, Elisa Valero Ramos

Cinco principios para una arquitectura vulnerable e íntima: dibujando límites y aperturas alternativos al hogar y al yo

Maya Orzechowska

Modelado paramétrico en el proceso de diseño: estrategias para crear exibilidad y adecuación espacial para la vivienda social

Wilson Florio, Ana Tagliari

Los inquilinatos en Bogotá: desde la problemática socioespacial hasta una propuesta arquitectónica habitacional

Valeria Abello Aldana, Miriam Kuehler

Entrevista a Jacob van Rijs

Jacob van Rijs, Ignacio Borrego Gómez-Pallete, Juan Manuel Medina del Río

PROYECTOS

Vivienda 2.0. Imaginando un futuro

Juan Manuel Medina del Río, Ignacio Borrego Gómez-Pallete

APAN Laboratorios de Vivienda: Vivienda Mínima

Ocoyoacac

Tatiana Bilbao y socios

Cooperativa de vivienda La Borda

Lacol

APROP Ciutat Vella

Straddle3, Eulia Arkitektura, Yaiza Terré

INVESTIGACIÓN - CREACIÓN

La ciudad, de puertas para adentro

Lorenzo Morales

81 116 4 6 21 32 46 60 74
2 – 3

La vivienda de nuestro tiempo

Housing of our time

DOI: https://doi.org/10.18389/dearq31.2021.01

En los años treinta del siglo XX, Mies van der Rohe escribía, en el Programa para la Exposición de Construcción de Berlín, que la vivienda de su tiempo no existía, que estaban en mora de concebir un nuevo modelo para las sociedades que habitaban la ciudad de esa época. Creemos que esa frase todavía tiene vigencia para la discusión contemporánea del habitar. Los problemas siguen siendo los mismos; no han cambiado. Tal vez lo que se ha transformado, afectado por el tiempo, son los enfoques o las soluciones. Estamos nuevamente a tiempo de implementar nuevas soluciones a viejos problemas.

Quizás nos ayude detenernos y cuestionar el signi cado de la palabra habitar El lósofo e historiador francés Jean-Marc Besse, en su libro Habitar, planteó un entendimiento basado en el concepto de resistencia a lo que se deteriora, de cuidado de nosotros y de eso que nos rodea y en lo que somos. Esta aproximación nos permite comprender la relevancia de la vivienda en nuestro día a día, una vivienda que cuidar y que nos cuida. ¿Algún propósito más relevante en nuestro estar en el mundo? Cuidar y ser cuidados.

Aunque no podamos decir que no existe la vivienda para este tiempo, sí podemos a rmar que es difícil encontrar en nuestros contextos formas de habitar —o de cuidar— que propongan un cambio en los paradigmas establecidos y se acerquen a las necesidades reales de nuestras poblaciones.

No debemos buscar estas nuevas propuestas ni en la o cialidad ni en las constructoras, más preocupadas por sacar un rédito económico que por experimentar con modelos alternativos (ante circunstancias contemporáneas, urgentes y vitales). Esto porque las normas urbanísticas, las técnicas constructivas y la

Presentación
Habitar no es construir o edificar, recuerda Ingold siguiendo a Heidegger. Habitar es situarse en la temporalidad específica del cuidado, es decir, en esa especie de conversación silenciosa que se teje en nuestras relaciones cotidianas y ordinarias con el lugar donde vivimos. Habitar es situarse en un devenir del lugar, o más exactamente, en sus líneas.
Jean-Marc Besse, Habitar
Dearq 31

necesidad de unos bene cios económicos en nuestras ciudades, donde el precio del suelo es cada vez más alto, llevan ya mucho tiempo condicionando las pautas de proyecto y dejando de lado no solo la experimentación, sino también el surgimiento de otras alternativas de desarrollo.

Una mirada hacia la investigación, la academia y los proyectos periféricos puede darnos una alternativa para esta discusión. En este número, encontramos resultados de investigaciones y proyectos cercanos a las necesidades y deseos de los habitantes, donde estos últimos son realmente el centro de la re exión. Lugares donde hay ciudadanos organizados que emprenden intervenciones participativas, que crean unidades exibles, que mezclan usos dentro de la vivienda y que se adaptan a los cambios. En síntesis, comunidades que ayudan a la regeneración del tejido social, algo de gran relevancia en un país como el nuestro, que atraviesa un proceso de poscon icto, entre otros procesos difíciles y prolongados en el tiempo.

Por lo general, los habitantes no se organizan solos, y para ello es necesario que también existan programas, políticas y asociaciones en capacidad de proponer nuevos procesos y que ayuden a consolidar estas unidades vecinales. Dearq recoge una serie de re exiones, investigaciones, proyectos y escenarios con centro en el habitar y la vivienda contemporánea, que plantean una mirada fresca, que permite cuestionar la calidad de vida de nuestras ciudades. En todo esto, la arquitectura desempeña un papel fundamental ante la actual crisis social y medioambiental y es protagonista por razones como la participación, la innovación, la densidad, la exibilización y, sobre todo, por quienes la cuidan (o la habitan).

Cómo citar: Salazar Ferro, Camilo y Lucas Ariza Parrado. "La vivienda de nuestro tiempo". Dearq no. 31 (2021): 4-5. DOI: https://doi.org/10.18389/dearq31.2021.01 investigación 4 – 5

Casa, ciudad, territorio: una investigación

colectiva

sobre las transformaciones del habitar urbano contemporáneo Home, City, Territory: A collective enquiry on the transformations of contemporary urban habitation

El artículo explora las relaciones interescalares establecidas en tiempos recientes entre el dominio doméstico de la vivienda y los ámbitos colectivos de la ciudad y el territorio, desde la óptica del desarrollo de nuevos “comunes urbanos”. Dicha exploración se formaliza como una investigación colectiva, basada en la participación en concursos de arquitectura y elaborada en el contexto docente de la Universidad de Edimburgo (Reino Unido) entre septiembre y diciembre de 2020. Sus retsultados ponen en relieve el pronunciado sustrato infraestructural del habitar urbano contemporáneo e identi can los principales procesos de transferencia entre los dominios de lo doméstico y lo colectivo dentro de una serie de escenarios de habitación urbana.

Palabras clave: vivienda, ciudad, territorio, concursos, comunes urbanos, colectividad, pedagogía.

This paper looks into a series of recently established trans-scalar links between the domestic domain of housing and the collective realms of the urban and the territorial. Working across several scenarios of urban habitation, these links are explored in terms of their contribution to the development of new ‘urban commons.’ The research methodology is formalised as a collective enquiry, grounded on the participation in two open architectural competitions within the academic context of the University of Edinburgh (United Kingdom) between September and December 2020. The ndings of this enquiry foregrounded the infrastructural character of contemporary urban life, identifying key transferences between the domestic and the collective – and ultimately mobilising them as propositions for novel forms of urban habitation.

Keywords: housing, city, territory, competition, urban commons, collective, pedagogy

Artículo de Reflexión Recibido: 17 de diciembre de 2020 Aceptado: 27 de julio de 2021 Cómo citar: Paredes Maldonado, Miguel. "Casa, ciudad, territorio: una investigación colectiva sobre las transformaciones del habitar urbano contemporáneo". Dearq no. 31 (2021): 6-20. DOI: https://doi.org/10.18389/dearq31.2021.02
https://doi.org/10.18389/dearq31.2021.02
DOI:
Dearq 31

introducción

. la vivienda como problema multidimensional

El presente artículo plantea dos cuestiones de importancia para la disciplina arquitectónica contemporánea: ¿qué parámetros nos permiten investigar sobre la vivienda de forma efectiva e innovadora en el contexto planetario actual? ¿Pueden los concursos de arquitectura emplearse como medio para acometer dicha investigación dentro de un marco pedagógico? La pandemia que ha transformado las dinámicas del habitar humano a lo largo de 2020 y 2021 puede enmarcarse dentro de un esce nario amplio de crisis medioambiental a escala mundial que ha venido ganando en foco e intensidad a pasos agigantados a lo largo de las últimas décadas. La urgencia del momento presente sugiere que es necesario proponer nuevos medios de re exión sobre la vivienda como un ámbito de largo alcance, donde tiene lugar la negociación entre lo doméstico, lo colectivo y lo territorial.

En este sentido, la re exión propuesta en este artículo parte de una experiencia docente organizada en la Escuela de Arquitectura de Edimburgo (Reino Unido) y centrada en la participación en concursos de arquitectura relacionados con el habitar contemporáneo durante el primer semestre del curso académico 20202021. El objeto de este ejercicio colectivo es generar una exploración amplia, múltiple y especulativa sobre las capacidades operativas y transformativas del proyecto de vivienda contemporánea. Se parte de que los factores que afectan la vivienda —presente y futura— son, hoy más que nunca, multidimensionales. La investigación colectiva aquí descrita pretende capturar esa “multidimensionalidad”. No se aspira a establecer una visión exhaustiva del problema, sino a identi car vectores de trabajo signi cativos de cara al futuro.

Simultáneamente, este ejercicio de re exión colectiva pretende poner en valor el trabajo sobre vivienda en el contexto del aprendizaje académico y profesional. En este sentido, el ámbito académico que nos ocupa aborda el concurso de ideas como un medio de producción consustancial con la práctica profesional y también como una herramienta para abordar problemas arquitectónicos desde múltiples ángulos.

vivienda y ciudad. lo doméstico y lo colectivo

En un artículo reciente, Pier Paolo Tamburelli (2020) argumenta que la ciudad no cambiará a corto o medio plazo como resultado de la pandemia actual, aunque muchos de los hábitos urbanos adquiridos se mantendrán y tendrán una in uencia decisiva sobre el espacio doméstico. En particular, Tamburelli identica la escala de las relaciones locales (aquellas que nos permiten satisfacer las necesidades de nuestra vida diaria dentro de un radio de acción cercano) como un dominio clave de transformación futura.

Esta re exión apunta a una conexión explícita entre lo doméstico y lo colectivo, basada en la relación entre el diseño de vivienda y el proyecto urbano. Para Van Gameren, Axel y Oosterman (2015) lo uno no existe sin lo otro: el espacio que está alrededor de la vivienda constituye una parte consustancial de esta. La vivienda no es una distribución de metros cuadrados o un “puzzle tipológico” aislado del contexto, sino un “entorno vivido” unido a dicho contexto. Existe, por tanto, una relación íntima e interescalar entre vivienda, ciudad y metrópolis.

investigación 6 – 7

Esta es, precisamente, la relación que se pretende explorar en el marco de los dos concursos elegidos para desarrollar la experiencia docente que nos ocupa.

En la escala de relación inmediata entre vivienda y entorno, el desarrollo de vivienda colectiva de alta densidad ha sido, a menudo, criticado por incluir grandes super cies de espacios comunales, a menudo sin forma ni función especí ca (Hanley 2007, 103). Sin embargo, la pandemia actual ha puesto de mani esto la enorme importancia de dichos espacios para el bienestar de sus residentes, con la salvedad de que estos deben estar bien diseñados y mantenidos, y ofrecer una funcionalidad clara (jardines, huertos, espacios de reunión, cafés, etc.). En todo el planeta, y a lo largo del desarrollo de la pandemia causada por el virus de la COVID-19, los residentes en complejos de vivienda colectiva se han reunido en los espacios comunes en cuanto ha resultado posible. La comunidad vecinal que se forma en estos ámbitos hace, además, que las tareas relacionadas con los cuidados (de mayores, de niños, de enfermos o de connados) resulten más asumibles (Hatherley 2020).

Por otra parte, la popularización de los formatos de vivienda compartida en las últimas décadas ha re ejado cómo las estructuras familiares estereotípicas tienen cada vez menor peso en la ocupación del stock de vivienda. Otras estructuras de ocupación —a menudo más transitorias y de naturaleza colectiva— sustituyen al modelo familiar y requieren adaptaciones del stock existente a sus necesidades especí cas (Jaque 2015). La vivienda, por tanto, no es un programa jo sino permeable, que conecta la esfera privada con las esferas local y social. Estas visiones refuerzan el factor clave de la re exión que nos ocupa: la estrecha conexión entre el habitar la casa y el habitar la ciudad. Desde el punto de vista de las relaciones sociales, las personas no habitan solamente “edi cios”, sino también vecindarios y comunidades. Estos “lugares” constituyen un ámbito denso de relaciones sociales en espacios compartidos (Marcuse y Madden 2016, 198).

los comunes urbanos

Como señalan Peter Marcuse y David Madden (2016, 26-50), en el contexto político-económico actual se ha privilegiado una visión nanciera de la vivienda, que la entiende fundamentalmente como un vehículo de inversión y, por tanto, su diseño y desarrollo se restringen según criterios exclusivamente mercantiles. En contraste con esta mercantilización del habitar, David Harvey (2012, 73) contrapone la idea de los comunes urbanos: los espacios de relación social colectiva con ámbitos especí cos del entorno construido. Estos comunes son recursos compartidos y organizados colectivamente. No son solamente los espacios compartidos, sino también sus estructuras sociales de gobernanza (Harvey 2011). Más allá de proporcionar servicios y recursos, también permiten generar nuevas formas de relación social que, más adelante, darán lugar a nuevas categorías de comunes urbanos (Harvey 2012, 67 y 68).

El valor de los comunes urbanos se mani esta con particular intensidad por medio de su capacidad de distribución de funciones y programas. Ello permite que estos se desplacen entre los ámbitos de lo público y de lo privado en respuesta a las necesidades de cada momento. Anna Puigjaner (2019) ilustra esta oscilación a través del ámbito de la cocina, que parece de nir un polo fundamental de la vivienda en el imaginario colectivo (relacionado además con cuestiones de género y economía productiva). Puigjaner indica que esta “domesticidad” es simplemente una construcción social, susceptible de revertirse o reorganizarse. Las cocinas urbanas de Lima constituyen un ejemplo de esta redistribución, en la que lo tradicionalmente doméstico se traslada al ámbito de los comunes urbanos, formando comunidades y agencias políticas —conectadas con otras instituciones de mayor escala— que replantean los límites entre público y privado, masculino y femenino, estructuras familiares y roles domésticos.

Dearq 31

aula y oficina. concursos de arquitectura como herramientas de investigación

Como se adelantó en la introducción, se propone investigar estos polos de conexión entre lo doméstico y lo colectivo en relación con la vivienda y la ciudad mediante la participación en dos concursos de arquitectura dentro de un contexto académico. En ese sentido, se persigue establecer transferencias entre academia y práctica profesional que faciliten la especulación intelectual y la experimentación por medio de formatos de organización inéditos. El objetivo no es tanto “entrenar” a los estudiantes para la práctica profesional, sino usar el ámbito académico como plataforma de re exión e investigación colectiva sobre el entorno construido. Cristina Goberna, Urtzi Grau y Timothy Moore (2015) nos recuerdan que, en varios momentos históricos, la experimentación en el ámbito arquitectónico ha tenido lugar exclusivamente en el ámbito académico (una situación que consideran opuesta a la actual, en la que las escuelas a menudo se enfocan en alimentar los mecanismos establecidos por la práctica profesional). Goberna, Grau y Moore también se re eren a los concursos de arquitectura como “espacios pedagógicos”: modelos de relación entre lo académico y lo profesional, donde el conocimiento no se produce exclusivamente bajo condiciones de mercado.

Por otra parte, Federico Ortiz (2020) interpreta el trabajo académico en concursos de arquitectura como una alternativa a la organización jerárquica que caracteriza la enseñanza convencional en el taller de proyectos. En particular, Ortiz señala el ejemplo de la Unidad 9 en la Architectural Association de Londres durante la década de 1970 (liderada sucesivamente por Elia Zenghelis, Rem Koolhaas y Zaha Hadid), donde la participación en concursos se empleó para generar espacios productivos de encuentro entre estudiantes y profesores, a n de establecer una jerarquía completamente horizontal. Así, el enfoque pedagógico que nos ocupa persigue disolver las fronteras entre el ámbito académico y el profesional, manteniendo la distancia crítica y la autonomía. Este último aspecto resulta clave, por cuanto traslada el valor crítico de la contribución académica al campo de la contribución profesional.

metodologías de trabajo colectivo

La experiencia docente aquí presentada explora un amplio espectro en torno a la vivienda colectiva sobre la base de los dos polos identi cados en las reexiones anteriores: por una parte, la experiencia pedagógica de investigación y producción no jerárquica a través de concursos de arquitectura. Por otra, el entendimiento de la vivienda como un sistema habitacional que conecta el ámbito doméstico con la ciudad y el territorio por medio de la generación de comunes urbanos.

Esta exploración se ejecutó a lo largo de un semestre de doce semanas, en un curso de Proyectos Arquitectónicos de tercer año, dentro de una unidad docente con quince estudiantes y tutelada por un equipo formado por el autor de este artículo y la profesora Ana Bonet Miró. La unidad se organizó en torno a la participación en dos concursos internacionales de arquitectura, entregados en las semanas cuatro y once, respectivamente. Desde el punto de vista de las dinámicas de trabajo establecidas, cabe reseñar que la totalidad de la docencia en el curso tuvo lugar de forma remota, como resultado de la pandemia causada por el virus COVID-19. En términos prácticos, esta situación se solventó con el uso simultáneo de una aplicación de videoconferencia (Microsoft Teams) y una aplicación planteada como mesa colaborativa virtual (Miro). Mientras que la primera permitió reconstruir el “plano vertical” de comunicación cara a cara entre grupos de tutores y alumnos, la segunda permitió generar un “plano horizontal” de desarrollo compartido, análogo a la super cie de mesas de trabajo y reunión que encontraríamos en el aula física.

investigación 8 – 9

La capacidad de esta segunda herramienta para trabajar de modo acumulativo resultó de especial importancia: al igual que en un desarrollo proyectual convencional, fue posible ir acumulando gradualmente distintos tipos de documentos (dibujos, esbozos, fotografías, referencias, textos, notas y diagramas) en esta super cie virtual, reorganizándolos e interrelacionándolos entre sí “en vivo” durante cada una de las tutorías semanales ( g. 1). Esta “mesa colaborativa” también constituyó el espacio central de trabajo, reunión y toma de decisiones para los equipos de estudiantes fuera del horario de tutorías. En este sentido, este espacio virtual se articuló como un “archivo vivo” de los procesos de proyecto llevados a cabo por cada grupo a lo largo del semestre.

desarrollo y discusión de resultados

La exposición del proceso y los resultados de esta experiencia docente se basan en una selección de materiales elaborados por los distintos equipos de alumnos para la entrega nal de cada concurso, generados mediante el proceso de trabajo descrito. La exposición también se apoya en notas de los tutores en referencia a las conversaciones llevadas a cabo durante las tutorías, así como en re exiones sobre los procesos de proyecto elaboradas según el “archivo vivo” proporcionado por la aplicación Miro. Todo ello se complementa con una introducción al contexto (tanto geográ co como intelectual) de cada uno de los dos concursos.

El primer concurso se localizaba en el contexto de Penang Bay (Malasia), un territorio organizado en torno a dos áreas metropolitanas (Butterworth y Georgetown) separadas por el estrecho de Penang. La región presenta uno de los índices de crecimiento de población más altos del planeta, así como la densidad de población más alta de todo el territorio de Malasia. Se trata de un área sujeta a un rápido e intenso ritmo de desarrollo humano, rica en recursos naturales y con prósperas industrias tecnológicas y manufactureras. Como otras regiones en proceso de desarrollo acelerado, Penang Bay está lastrada por múltiples problemas ecológicos y medioambientales, así como por altos índices de desigualdad económica y social. Por una parte, la ciudad de Butterworth acoge la enorme infraestructura portuaria de la región. En consecuencia, constituye el principal polo industrial y de transporte del área metropolitana y experimenta los problemas medioambientales asociados a dicho estatus. Por otra parte, el centro urbano de Georgetown proviene de la evolución de un asentamiento tradicional de gran antigüedad y la Unesco lo ha clasi cado como Patrimonio de la Humanidad, por su enorme riqueza urbana, arquitectónica y cultural. Georgetown se encuentra franqueada al sur por un puerto franco de grandes dimensiones, dedicado a servir a la totalidad de la región, y al oeste, por la exuberante biosfera selvática de las montañas centrales de Penang.

Dearq 31
Fig. 1_ Capturas de pantalla de la aplicación Miro, mostrando ejemplos de dibujo y anotación realizados de forma colectiva y simultánea por alumnos y tutores, octubre de 2020.

El concurso no se enfocaba especí camente en la vivienda, sino que perseguía generar re exiones sobre la transformación de su espacio urbano a escala metropolitana en un escenario de disrupción tecnológica. De ahí que tomando como punto de partida el contexto regional expuesto, la convocatoria hacía hincapié en la necesidad de diseñar nuevas formas de resiliencia desde lo social, lo económico y lo ambiental (“Penang Bay International Ideas Competition” 2020). En este sentido, el objetivo pedagógico de la participación en este primer concurso fue iniciar una discusión colectiva dirigida a identi car vectores clave en el desarrollo de comunes urbanos. La premisa era que estos vectores de desarrollo podrían extrapolarse a otros contextos de transformación del habitar urbano durante las siguientes fases de la experiencia docente. En términos pedagógicos, esta operación contribuiría a poner de mani esto la relación entre la domesticidad de la vivienda y la colectividad de lo urbano.

Durante el desarrollo del primer concurso, los alumnos se dividieron en tres equipos con cinco miembros cada uno. Como punto de partida, los tutores propusieron una exploración sobre cinco amplios bloques temáticos, que podrían contribuir a establecer diferentes direcciones propositivas:

1. Cambio climático en relación con el paisaje costero.

2. Infraestructuras, movilidad urbana y patrones de habitación.

3. Tecnología digital en relación con el trabajo e infraestructuras productivas.

4. Paisaje cultural y social en relación con la vida diaria, la historia y la tradición.

5. Alimentación, energía y sus respectivas cadenas de distribución.

Tal y como estaba previsto, las tres propuestas elaboradas por los alumnos se aproximaron de distintas maneras a estos bloques temáticos, destacando algunos por encima de otros. Así, la propuesta “Penang Green Spine” ( gs. 2 y 3) se centró en la movilidad urbana como vector fundamental de transformación sostenible. Su intervención – elaborada por Lottie Greenwood, Thomas Gumbrell, Eilidh Mckenna, Joseph Simms y Jenny Steinsdatter – se basaba en un “corredor verde” de gran longitud y anchura variable, paralelo a la línea costera de la isla de Penang y conectado a sus infraestructuras regionales productivas y de transporte. Diseñado para albergar el trá co de bicicletas y peatones en distancias medias, perseguía replantear los desplazamientos urbanos realizados a diario por la población de Penang Bay como ámbitos de habitación “de baja velocidad”. De este modo, la propuesta consolidaba grandes extensiones infrautilizadas de super cie —anexas a infraestructuras urbanas existentes— y las recuperaba como un gran “salón urbano” de uso colectivo.

Fig. 2_ Fragmento de la propuesta “Penang Green Spine”
investigación 10 – 11
Fig. 3_ Collage urbano residencial sobre la propuesta “Penang Green Spine”

La segunda propuesta, titulada “A Modular Ecology” ( gs. 4 y 5) y elaborada por Ellen Clayton, Eleanor Collin, Xingyu Li, Xinran Wang y Shiyu Zhang, empleaba un sistema constructivo basado en el ensamblaje de ligeros armazones cúbicos de cuatro metros de lado, con distintas opciones de acabado y revestimiento. Con este sistema se esperaba proyectar un amplio catálogo de intervenciones —de pequeño tamaño, pero abundantes en número y diversidad de programas—, desplegadas territorialmente en la isla de Penang. Cada uno de los nodos de intervención pertenecía a un tipo funcional básico en relación con su posición en el paisaje ecológico-productivo de la región (montaña, río, costa y bahía). La propuesta planteaba el conjunto a modo de una constelación de nodos, habitada por distintas comunidades e interconectada entre sí de forma remota. Estos nodos coordinarían sus respectivos desarrollos en tiempo real y generarían un único objeto distribuido de habitación colectiva del paisaje como medio activo de articulación ecológica y social.

La tercera propuesta, “Penang Bay Agritechture” ( gs. 6 y 7) fue elaborada por Coll Drury, Inka Eismar, Lee Han Liang, Jenna McMahon y Maria Wolonciej. Partía de un proceso productivo circular, basado tanto en la piscicultura y el cultivo de algas marinas en las zonas costeras como en el desarrollo de agriculturas urbanas hacia el interior de la isla de Penang. Se proyectaron “corredores productivos” lineales que conectaran estos programas entre sí, generando ámbitos de continuidad entre los tejidos costeros, urbano y rural, facilitados por una red de transporte ligero. Todos los componentes productivos de este desarrollo se plantearon como infraestructuras ligeras habitadas, asociadas a programas especí cos de vivienda in situ. Con ello se perseguía estimular la formación de economías locales, que a su vez se bene ciaran de una conexión directa con la escala territorial.

Tras entregar el primer concurso, los tutores organizaron una sesión de reexión colectiva para identi car en las propuestas los temas de mayor calado y potencial transformativo en el habitar urbano contemporáneo, con el objeto de considerarlos un punto de partida en el proyecto de vivienda del segundo concurso. Más allá del carácter estratégico de las distintas intervenciones, la discusión identi có una clara resonancia con la idea de los comunes urbanos: los tres proyectos realizados para el concurso de Penang Bay inciden de distintas maneras en la creación de nuevos ámbitos colectivos de habitación, exibles y desarrollados a lo largo del tiempo, como medio de articulación social del habitar urbano.

Fig. 4_ Fragmento de la propuesta “A Modular Ecology”
Mountain Intervention River Intervention Bay Intervention Coastal Intervention Dearq 31
Fig. 5_ Detalle de las intervenciones productivas habitadas en la propuesta “A Modular Ecology”

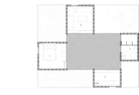
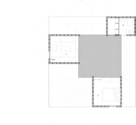
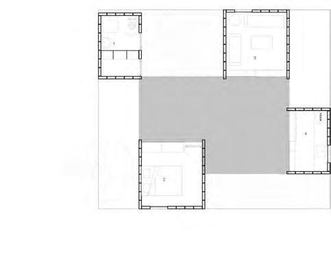
Posteriormente —y con el objetivo pedagógico de apoyar la investigación de cara al segundo concurso—, los tutores propusieron la realización de una serie de “estudios habitacionales”, elaborados individualmente por cada alumno y objeto de discusión durante una nueva sesión de trabajo colectivo en la plataforma Miro ( g. 8). Se estudiaron quince ejemplos de vivienda no convencional con respecto a dos parámetros expuestos al principio de este artículo: la respuesta a estructuras sociales de cohabitación no estereotípicas y el refuerzo del vínculo entre programas privados y programas comunes. El objeto de este ejercicio era situar conceptualmente los temas explorados en el primer concurso dentro de escalas más cercanas a lo doméstico. En sintonía con las ideas de Dick van Gameren, la representación isométrica de los ejemplos se escogió para soslayar sus aspectos tipológicos —centrados en los ámbitos “interiores” de la arquitectura— y poner el relieve en sus mecanismos “externos” (de relación colectiva).

Tras completar este ejercicio intermedio, el grupo se concentró en el segundo concurso, que extendía el Premio Anual de Arquitectura Residencial de Taiwán a través de una convocatoria de investigación proyectual. Se perseguía una exploración especulativa sobre la vivienda del futuro, respondiendo a di cultades ya existentes pero exacerbadas por la pandemia del virus por COVID-19:

Fig. 6_ Escala territorial de la propuesta “Penang Bay Agritechture”
investigación 12 – 13
Fig. 7_ Viviendas productivas en el área costera, “Penang Bay Agritechture”
Dearq 31

Fig. 8_ Conjunto de estudios habitacionales anotados digitalmente en la aplicación Miro tras la discusión colectiva, octubre de 2020. De izquierda a derecha, y de arriba hacia abajo: Transformation of 530 dwellings, Bordeaux (Lacaton & Vassal); Quinta Monroy, Iquique, Chile (Elemental-Alejandro Aravena); Moriyama House, Tokyo (Ryue Nishizawa); Nagakin Capsule Tower, Tokyo (Kisho Kurokawa); Cité manifeste, Mulhouse (Lacaton & Vassal); 110 Rooms 22 Dwellings Housing Block in Barcelona (MAIO); Nemausus Building, Nîmes (Jean Nouvel); Quinta Malagueira, Evora (Álvaro Siza); Narkomfim Building, Moscow (Moisei Ginzburg, Ignaty Milinis); Terrassenhaus Berlin/Lobe Block (Arno Brandlhuber); Mother”s House, Amsterdam (Aldo Van Eyck); Ökohaus, Berlin (Frei Otto); Silodam, Amsterdam (MVRDV); Granby Four Streets-10 Houses on Cairns St., Liverpool (Assemble); Saishunkan Seiyaku Women’s Dormitory, Kumamoto City (Kazuyo Sejima).

Fig. 9_ Collage conceptual: edificio Seagram como “cantera” en “Inhabiting Seagram”

Fig. 10_ Colonización doméstica de planta tipo, edificio Seagram, “Inhabiting Seagram”

la urgente necesidad de protección y conexión simultáneas, enmarcada en un contexto planetario de crisis ecológica (“2021 International Residential Architecture Conceptual Design Competition” 2020). Para la realización de este concurso, los tres equipos anteriores se subdividieron en seis equipos de dos o tres estudiantes, y pese a que las bases del concurso no prescribían ninguna ubicación en particular para la propuesta que se iba a presentar, los seis equipos decidieron apoyarse en contextos urbanos concretos a lo largo del proceso de proyecto. El conjunto de propuestas así elaboradas presentaba amplias variaciones de enfoque y contexto, aunque el trabajo con estructuras urbanas existentes fue una constante universal. A continuación, se analizan las tres propuestas más destacadas.

Articulada en torno a la idea del reúso, la propuesta “Inhabiting Seagram” ( gs. 9 y 10) – realizada por Ellen Clayton y Eleanor Collin – tomaba como referencia el vaciado de los centros nancieros de las grandes ciudades como consecuencia de la pandemia causada por el virus de la COVID-19 y sus potenciales efectos permanentes. A lo largo de dicha pandemia (y especialmente en el contexto de economías y sectores desarrollados), las dinámicas de trabajo remoto desde el propio hogar han disminuido radicalmente los desplazamientos laborales hacia las áreas predominantemente empresariales, así como los índices de ocupación de los edi cios de o cinas allí ubicados, hasta el punto de poner en duda la necesidad de continuar disponiendo de estos espacios en el largo plazo (“The Guardian View on Empty O ces” 2020). Así, se exploró el desmantelamiento y reconstrucción selectiva de un icono de la arquitectura moderna y paradigma del edi cio de o cinas contemporáneo: el edi cio Seagram, de Ludwig Mies van der Rohe, en el centro nanciero de Manhattan, Nueva York. El proyecto aprovechaba el potencial de la planta libre y profunda del edi cio Seagram para imaginar la ocupación de algunos de sus pisos. Este proceso desplegaba un sistema de particiones exibles en torno a los núcleos de comunicación vertical, construidas con materiales provenientes del desmantelamiento parcial de las estructuras de fachada y forjado. Así, los so sticados per les de bronce y los delicados paneles de vidrio ahumado de hoja simple que caracterizan la conguración material exterior del edi cio se reorganizaron hacia el interior como un lujoso sistema de particiones móviles y pivotantes en el que —parafraseando a Iñaki Ábalos y Juan Herreros (1993)— lo doméstico se desplazaría de lo inmueble a lo mueble. En este proceso de desmantelamiento y reorganización material, el lujo simbólico del mundo nanciero se revertiría hacia los ámbitos domésticos de la vida diaria, para generar grandes atrios semiabiertos de uso compartido por los nuevos habitantes del edi cio.

La segunda propuesta aquí analizada fue elaborada por Coll Drury, Inka Eismar y Jenna McMahon. El proyecto, titulado “Housing Reframed” ( gs. 11 y 12), se centró en los edi cios de vivienda pública en el barrio periférico de Restalrig Park, en la ciudad de Edimburgo (Escocia) y extendió su estrategia a contextos similares en el Reino Unido. Dichos contextos se caracterizan por un gran stock de vivienda social de nales de 1960, organizado mediante torres de alta densidad que han recibido un escaso mantenimiento y que se encuentran aisladas entre tejidos de vivienda unifamiliar de muy baja densidad. Este modo de urbanización vuelve a la población de estas zonas totalmente dependiente del transporte privado para el acceso a recursos urbanos como tiendas, educación, deporte y trabajo. En respuesta a esta situación, el argumento de la propuesta elaborada hacía referencia directa a las extensiones realizadas en el stock de vivienda de Burdeos (Francia), por Anne Lacaton y Jean-Philippe Vassal, así como a las viviendas incrementales desarrolladas por Alejandro Aravena en Quinta Monroy (Chile).

Así, se diseñó un sistema de adiciones modulares de estructura de madera laminada, ensambladas sobre las fachadas existentes para añadir espacio a las viviendas y modular su respuesta ambiental. La innovación clave de esta propuesta fue la extensión de este sistema modular al desarrollo de un completo sistema de equipamientos comunes (guardería, talleres y huertos urbanos) que

investigación 14 – 15

ocupaban la cubierta de las torres, sus plantas de acceso y el espacio indiferenciado que las rodea en el solar. Estos equipamientos constituían un ámbito productivo autosu ciente y gestionado por la comunidad, en continua evolución a lo largo del tiempo. En línea con el concepto de comunes urbanos, el proyecto planteaba no solamente un sistema espacial y constructivo, sino también una noción de arquitectura como proceso social colectivo. Ocio, trabajo y cuidados pasarían a formar parte de un nuevo ámbito doméstico, extendido y abierto hacia lo público, que a su vez se relacionaría con la ciudad. En otras palabras, la propuesta planteaba extender el ámbito de lo doméstico como un proceso de “reproducción”, interpretando dicho proceso desde la óptica de la generación y el mantenimiento de los recursos sociales compartidos. La propuesta “Housing Reframed” resultó particularmente exitosa a lo largo del proceso del concurso, siendo seleccionada como nalista entre un total de 328 trabajos entregados, y obteniendo el quinto puesto en la ronda de selección nal.

Por último, la propuesta de Xingyu Li, Xinran Wang y Shiyu Zhang “City in the Building” ( gs. 13 y 14) planteaba estrategias de transformación para una tipología característica del tejido urbano de Hong Kong: el edi cio híbrido en esquina o corner house. Ampliamente extendida durante las décadas de 1950 y 1960, esta tipología se caracteriza por su carácter híbrido, al combinar usos comerciales, industriales y residenciales en un único volumen de distribución interna segmentada pero altamente exible. Como importante característica adicional, su composición externa destaca la posición preponderante del edi cio como remate de las esquinas de densas manzanas. Se reconocía en esta tipología un ámbito especialmente intenso de contacto con el denso tejido urbano de la ciudad, con un inusual valor tectónico producto del ensamblaje de capas, que sin embargo ha ido cayendo en desuso y ha sido sustituido por tipologías exentas (Yin y DiStefano 2011).

La propuesta elaborada para el concurso se describía como una “reprogramación” tipológica, extensible a otros bloques próximos como estrategia urbana.

Dearq 31
Fig. 11_ Comunes urbanos de domesticidad productiva, “Housing Reframed”

Se eliminaba uno de cada dos forjados para obtener una estructura interna volumétrica y exible, que generara viviendas intergeneracionales (niños, adultos y mayores) distribuidas mediante plataformas ligeras interconectadas y ubicadas a distintos niveles. Las particiones se resolvían con elementos de mobiliario y almacenamiento que permitían adaptar la distribución a los cambios en las circunstancias vitales de sus habitantes. Simultáneamente, una nueva estructura se acoplaría a las dos fachadas traseras del edi cio, que generaría una rampa que —a modo de promenade— conectaba los ámbitos diáfanos y abiertos al público de la planta baja con una nueva cubierta ajardinada y dotada de equipamientos de uso colectivo. Esta secuencia continua de acceso y ascensión construía nuevos ámbitos públicos de escala barrial, anexos al comercio tradicional en esquina: un conjunto de comunes urbanos verticales que exprimirían al máximo la densidad de Hong Kong. La reprogramación generaba una amplia gradación de condiciones de habitación —para negociar lo doméstico con lo colectivo— y una intervención pública acumulativa y de gran escala.

conclusiones

La contribución del presente artículo se sitúa en dos áreas diferenciadas. La primera de ellas corresponde a un ámbito principalmente operativo: el trabajo establece las pautas de una línea de actuación profesional que opera a través de la realización de concursos de arquitectura dentro del ámbito docente. En relación con dicho objetivo operativo, la discusión desarrollada en los párrafos anteriores plantea una aproximación metodológica a dicha línea de actuación y esboza cómo esta metodología puede ser exportable a diferentes contextos concretos, tomando la forma de problemas locales de investigación. En este sentido, es necesario reconocer la tensión existente entre el carácter sistemático del desarrollo de la experiencia —que, de cierto modo, se presenta como independiente de las especi cidades de las actuaciones seleccionadas— y la necesidad de generar respuestas contextualizadas a dichas actuaciones en términos sociales, geográ cos y culturales muy concretos.

investigación 16 – 17
Fig. 12_ El día a día en las adiciones domésticas modulares, “Housing Reframed”

La segunda área de contribución se re ere a la demostración de la tesis inicial de este artículo por medio de los procesos de investigación y proyecto (enmarcados en el ámbito docente) que se han expuesto. La discusión sobre estos procesos demuestra que, aunque pueda parecer paradójico, el ámbito de lo doméstico está —hoy más que nunca— íntimamente vinculado con lo colectivo: la vivienda futura se mira necesariamente en la ciudad. Abundan las transferencias recíprocas entre ambos dominios: los comunes urbanos se incorporan al universo doméstico; mientras que la vivienda se expande hacia lo colectivo. Esta vivienda no puede disociarse de los procesos de la vida diaria en los que está subsumida (trabajo, cuidados, ocio, salud, etc.) y que articulan su constitución espacial y temporal. Tal y como las tres propuestas para el segundo concurso aquí presentadas apuntan de forma inequívoca, la vivienda futura se nos presenta como un proceso social en desarrollo permanente. Dicha vivienda futura se per la en superposición a estructuras existentes. La construcción de vivienda ex novo constituye una excepción más que un mecanismo prevalente.

Fig. 13_ Reprogramación estructural de tipología en esquina, “City in the Building”
Dearq 31

Se trata, por el contrario, de proyectar ajustes y adecuaciones que pueden ser extremadamente ambiciosos y replantear radicalmente aquello que ya tenemos. Por último —y tal y como todas las propuestas para el primer y segundo concurso ponen de mani esto—, parece evidente que la vivienda futura trasciende el sitio del proyecto. Está íntimamente conectada a infraestructuras (con huella física o sin ella) que la relacionan con procesos económicos, sociales y ambientales de escala planetaria. Más que ninguna otra tipología actual, en la vivienda futura existe un espacio interescalar radical que negocia lo doméstico con lo territorial-metropolitano.

Tal y como nos ha enseñado el escenario de pandemia actual, el aislamiento como opción vital no es sostenible en ninguna de sus dimensiones. La resiliencia en el entorno urbano está condicionada al desarrollo de procesos transformativos que conecten el habitar local y colectivo. Así, de forma inevitable, se nos plantea una pregunta clave para el desarrollo de nuestro futuro urbano: ¿qué y cuánto es aquello que queremos compartir?

investigación 18 – 19
Fig. 14_ Escenarios de vivienda flexible multigeneracional, “City in the Building”

agradecimientos

El autor desea expresar su agradecimiento a la profesora Ana Bonet Miró por su inestimable labor como co-tutora de la experiencia docente expuesta en este artículo. Este agradecimiento se extiende a los profesores que contribuyeron con sus ideas y comentarios a lo largo de las dos sesiones críticas celebradas durante el semestre: Mark Dorrian (Universidad de Edimburgo), Pablo Martínez Capdevila (Universidad de Portsmouth), Arturo Romero Carnicero (Karlsruhe Institute of Technology) y Nuria Nebot Gómez de Salazar (Universidad de Málaga). Por último, el autor quisiera agradecer el esfuerzo y el entusiasmo de todos los alumnos participantes: Ellen Clayton, Eleanor Collin, Coll Drury, Inka Eismar, Lottie Greenwood, Thomas Gumbrell, Xingyu Li, Lee Han Liang, Eilidh Mckenna, Jenna McMahon, Joseph Simms, Jenny Steinsdatter, Xinran Wang, Maria Wolonciej, Shiyu Zhang.

bibliografía

1. “2021 International Residential Architecture Conceptual Design Competition”. 2020. https://en.traa.com.tw/ Event/News/135

2. Abalos, Iñaki y Juan Herreros. 1993. Abalos & Herreros. Editado por Xavier Güell. Barcelona: Gustavo Gili.

3. Gameren, Dick van, Nick Axel y Arjen Oosterman. 2015. “Dwelling on Dwelling: Dick van Gameren Interview”. Volume, n.º 46: 38-42.

4. Goberna, Cristina, Urtzi Grau y Timothy Moore. 2015. “Peer Reviews, Replicas and Resistance: Fake Industries

Architectural Agonism

Interviewed by Timothy Moore”. Volume, n.º 45: 2025.

5. Hanley, Linsey. 2007. Estates: An Intimate History. London: Granta.

6. Harvey, David. 2011. “The Future of the Commons”. Radical History Review, 2011, n.109: 101-107. https://doi. org/10.1215/016365452010-017

7. Harvey, David. 2012. Rebel Cities: From the Right to the City to the Urban Revolution. London: Verso.

8. Hatherley, Owen. 2020. “The Pandemic Has Made It Clear That Housing Is England’s Greatest Divide”. The Guardian, 17 de noviembre. https:// www.theguardian.com/ commentisfree/2020/ nov/17/pandemic-housingengland-divide-ownerstenants.

9. Jaque, Andrés. 2015. “Sheltering the Rolling Society”. Volume, n.º 46: 86-91.

10. Marcuse, Peter y David Madden. 2016. In Defense of Housing. London: Verso.

11. Ortiz, Federico. 2020. “Architecture Competitions as Pedagogical Tools: Bridging the Unit and the Office”. Footprint 14, n.º 1: 111-25. https:// doi.org/10.7480/ footprint.14.1.4300

12. “Penang Bay International Ideas Competition”. 2020. https:// penangbaycompetition. com.my/

13. Puigjaner, Anna. 2019. “Bringing the Kitchen Out of the House”. e-flux Architecture. https://www.e-flux. com/architecture/ overgrowth/221624/ bringing-the-kitchen-outof-the-house/

14. Tamburelli, Pier Paolo. 2020. “Keep Calm and Plan! Notes on Cities after COVID-19”. The OECF Forum Network. https:// www.oecd-forum.org/ posts/keep-calm-andplan-notes-on-cities-aftercovid-19

15. “The Guardian View on Empty Offices: Goodbye to All That?”. 2020. The Guardian, 4 de agosto.

16. Yin, Lee Ho y Lynne D. DiStefan. 2011. “Corner

Delight: Hong Kong

Composite Buildings of the 1950s and 1960s”. En Michael Wolf: Hong Kong Corner Houses, 8-20. Hong Kong: Hong Kong University Press.

Dearq 31

Aprobado: 27 de julio de 2021

Recibido: 15 de diciembre de 2020

Cómo citar: de Molina Benavides, Lucía y Elisa Valero Ramos. "La vivienda colaborativa en la era digital como proceso sostenible". Dearq no. 31 (2021): 21-31.

La vivienda colaborativa en la era digital como proceso sostenible*

DOI: https://doi.org/10.18389/dearq31.2021.03

Collaborative housing in the digital age as a sustainable process

La era digital ha supuesto una revolución en la vida de millones de personas. En la actualidad, se observa cómo el desarrollo tecnológico está afectando la sostenibilidad social de las ciudades en temas como exclusión, individualismo o gentri cación. En contraposición, dicha tecnología aplicada de manera transversal genera inclusión, diversidad y sentimiento de comunidad. Este artículo afronta el tema de la vivienda colaborativa, entendida como un proceso participativo, extendido más allá de las fases de proyecto y construcción, hacia la gestión y uso de los espacios que, gracias a las tecnologías digitales, favorece su sostenibilidad social.

Palabras clave: vivienda colaborativa, cohousing, proceso, participación, sostenibilidad, comunidad, habitante digital.

Lucía de Molina Benavides

luciadmb@gmail.com

Universidad de Granada

Elisa Valero Ramos

elisa@elisavalero.com

Universidad de Granada

DOI: https://doi.org/10.18389/dearq31.2021.03

The digital age has revolutionized the lives of millions of people. At present, it is observed how technological development is a ecting the social sustainability of cities in issues such as exclusion, individualism or gentri cation. In contrast, this technology applied in a transversal way generates inclusion, diversity and a communuty feeling. This article addresses the issue of collaborative housing, understood as a participatory process, extended beyond the project and construction phases, towards the management and use of spaces that, thanks to digital technologies, favor their social sustainability.

Keywords: collaborative housing, cohousing, process, participation, sustainability, community, digital inhabitant.

* Este artículo se elaboró a partir de las investigaciones realizadas para el desarrollo de una tesis doctoral, aún proceso, centrada en el estudio de la sostenibilidad de los modelos colaborativos surgidos en la era digital.

Artículo de Reflexión
investigación 20 – 21

introducción

Al inicio de la era digital,1 acontecimientos como el calentamiento global o la pasada crisis económica2 despertaron conciencia respecto a la necesidad de ofrecer soluciones sostenibles en todas las escalas. La llegada de internet como una gran red de conexión posibilitó la economía colaborativa e impulsó la creación de plataformas digitales como un medio de contacto directo entre personas para el intercambio de servicios, bienes o conocimiento. Sin embargo, avanzada esta nueva era, se ha evidenciado que, en el ámbito de la vivienda, ciertos modelos que en sus inicios eran colaborativos han dejado de serlo y están causando un efecto negativo en las ciudades. El marcado desarrollo tecnológico presente en la sociedad desde un modelo top-down aumenta el individualismo, la exclusividad y la movilidad, y afecta aspectos de la sostenibilidad social de naturaleza intangible y subjetiva, como la cohesión social, la identidad, el sentido del lugar y de pertenencia o la sensación de bienestar o de calidad de vida (Bouzguenda, Alalouch y Fava 2019, 9).

Empresas digitales como Airbnb, que nacieron bajo la losofía BnB (Bed & Breakfast) con un n colaborativo, en que una familia ofrecía una habitación a un viajero, al eliminar la relación directa entre an trión y huésped, se han transformado en un servicio turístico que opera como un negocio especulativo. Del mismo modo aparece el modelo coliving, 3 una red global privada de servicios compartidos que, operado nuevamente por empresas digitales, funciona como un gran “Airbnb” densi cado dirigido a turistas4 y nómadas digitales5 ( g. 1). Consecuencia de estas actividades, los centros turísticos de ciudades como Barcelona o Ciudad de México están experimentando un fenómeno de gentricación a causa del aumento del precio del alquiler de la vivienda, que resulta inasequible para el ciudadano medio. Asimismo, se reduce la oferta de alquiler de vivienda habitual, al ser más rentables las estancias de corta duración.

En contraposición a esto han entrado en auge otros modelos verdaderamente colaborativos, como el cohousing, 6 en los cuales la digitalización e internet surgen desde un enfoque bottom-up como unas herramientas que promueven una mayor participación entre los usuarios en la gestión y uso del espacio o en la optimización de los recursos de todo tipo ( g. 2). Así, se convierten en proyectos abiertos que dan lugar a sinergias que mejoran las relaciones entre sus habitantes, lo cual reduce la soledad no deseada y la exclusión social.

El objetivo de este artículo es demostrar cómo la tecnología digital, utilizada de manera transversal, potencia la participación del habitante en procesos que generan vínculos con la comunidad y el lugar, y que favorecen así la sostenibilidad social de las viviendas colaborativas (Dempsey et al. 2011, 290-295).

la vivienda colaborativa en la era digital

A lo largo del tiempo, diversos proyectos de vivienda social han puesto de mani esto la relación entre los procesos participativos y la cohesión de sus comunidades. El arquitecto holandés N. John Habraken, en su teoría de soportes, propone una fase de diseño como un proceso colaborativo (Habraken y Mignucci 2009, 11), al igual que lo hace el arquitecto chileno Alejandro Aravena, que extiende la colaboración hasta la fase constructiva. Con ello, ambos pretenden adaptar el modelo de vivienda a las necesidades de sus usuarios. Aunque parten de una concepción de proceso abierto a lo largo de toda su vida útil, la parte colaborativa es limitada, porque se produce únicamente durante las

técnicas.

El modelo cohousing, a diferencia de los anteriores, propone mantener la colaboración a través de procesos participativos de manera permanente, que conducen a una comunidad más cohesionada.

1.

La tecnología digital ha marcado el inicio de una nueva era. Aunque esta nueva revolución comenzó en la segunda mitad del siglo XX, en el nuevo milenio es cuando ha tenido repercusiones significativas en la sociedad.

2.

En 2006, el colapso de la burbuja inmobiliaria estadounidense derivó en una crisis financiera global en 2008.

3.

Se trata de un modelo inmobiliario con sedes por todo el mundo y concebido como un servicio efímero, centrado en un usuario sin residencia estable. Se muestra como el “hogar” de una “comunidad de ciudadanos globales”, para estancias entre uno y doce meses (De Molina y Valero 2020, 95 y 96).

4.

La figura del turista digital está representada por un individuo hiperconectado, para quien el smartphone predetermina los viajes como itinerarios estipulados (Manibardo y Fernández 2021, 132).

5.

Este perfil social surge con la digitalización de servicios y nuevas formas de trabajo, caracterizado por individuos jóvenes con poder adquisitivo alto y sin obligaciones familiares, que utilizan la tecnología para trabajar desde cualquier lugar del mundo (De Molina y Valero 2020, 95).

6.

Se trata de un modelo colaborativo surgido en Dinamarca en los años sesenta, por la insatisfacción de las familias danesas con respecto al diseño de las viviendas convencionales, inadaptadas a sus necesidades. Consiste en viviendas individuales con estancias y servicios compartidos, diseñadas y gestionadas por la comunidad.

Fig. 1_ Espacios comunes concebidos como una gran red de servicios individuales. Coliving The Collective Old Oak, Londres. Fuente: PLP Architecture, Amandine Alessandra, The Collective (s. f.).

Fig. 2_ Espacios comunes reprogramables a través de la participación de sus usuarios. Cohousing R50, Berlín. Fuente: ifau (2012).

Fig. 3_ El proyecto “Casa en construcción” consiste en la rehabilitación progresiva de los espacios acorde con la evolución de las necesidades de sus usuarios. Fuente: Raed Gindeya (s. f.).

fases
Dearq 31
investigación 22 – 23

En la actualidad, la reuni cación de las esferas doméstica, laboral y social, gracias a la tecnología digital, han convertido la vivienda colaborativa en un escenario estimulante. La reprogramación de las salas comunes en o cina, sala de juegos, aula e incluso gimnasio por procesos participativos abiertos permiten consolidar la comunidad: “En un sistema abierto, lo que con gura el nal no es destino, que da por supuesto que la vida evoluciona de una manera determinada, sino el proceso mismo” (Sennett 2019, 252).

Estos modelos de vivienda son sostenibles7 no solo porque los procesos participativos se mantienen a lo largo del tiempo, sino porque se sostienen de manera ilimitada y con el propósito de resolver problemas futuros. Dichos procesos se vuelven más e cientes a lo largo de la vida útil del modelo, tal y como a rma el arquitecto Federico Soriano:

Desde hace tiempo venimos impulsando la idea que un proyecto es un procedimiento más que el resultado de un proceso. […] Los procedimientos son, actuaciones por trámites que se realimentan constantemente, modi cándose la trayectoria generada, ya sea por el entorno o por el propio proceso, integrando o absorbiendo nuevos datos, condiciones cambiantes o la aparición de agentes recién llegados. (2014, 107)

La metodología utilizada para validar esta hipótesis es el estudio de dos casos de vivienda colaborativa, entendida esta como procesos abiertos dirigidos hacia el desarrollo de una vida enriquecida, gracias a su diversidad, y potenciada mediante la tecnología digital, como una herramienta de empoderamiento e interacción con el medio. Se pretende, a través del análisis de sus procesos, demostrar la in uencia positiva de la tecnología en la sostenibilidad de la vivienda colaborativa por medio de resultados intangibles y el testimonio de sus habitantes.

casa en construcción en quito

Se trata de un caso de rehabilitación de un conjunto residencial en el centro histórico de Quito que los vecinos habían abandonado, al igual que otros inmuebles, a causa de la gentri cación de la zona tras la implantación en 2012 de la Ordenanza Municipal 236 (Oviedo, Llugsha y Ocaña 2020, 151) para promover la actividad turística ( g. 3).

La intervención ha consistido en transformar una casa en estado ruinoso de más de 600 m², de los que solamente 50 estaban ocupados. Ante la necesidad habitacional y económica de los propietarios, que no disponían de recursos para nanciar el proyecto, y de los arquitectos, que buscaban un lugar de trabajo propio, surgió el trueque como un modelo de actuación. Así, se intercambió diseño y construcción, por tiempo de ocupación, y ambas partes han resultado bene ciadas. A partir de esta losofía colaborativa, el proyecto se ha planteado como un catalizador para la regeneración del barrio, que ha atendido no solo a los aspectos materiales del patrimonio arquitectónico, sino también a los intangibles, ya que se ha apoyado en las relaciones sociales y redes locales de los habitantes.

La propuesta se desarrolló con el apoyo de la tecnología digital, como un proceso continuado en el tiempo para optimizar los recursos disponibles: materiales existentes que se reutilizan y mano de obra local que, dividido en varias fases de construcción, ha permitido implementar, en las etapas sucesivas, soluciones aprendidas a lo largo del proceso. De esta manera, la construcción ha reutilizado los materiales de la propia obra, con un desperdicio mínimo, al hacer del reciclaje la fuente principal de recursos. Avanzadas las fases constructivas y gracias a aplicaciones de chat, se han conseguido incluir en este proceso los restos y stocks de materiales existentes en la ciudad, provenientes de demoliciones, a través de la creación de grupos y redes de contactos, como el Fondo de Materiales Inservibles ( g. 4).

7.

La Organización de las Naciones Unidas define el desarrollo sostenible como la satisfacción de “las necesidades de la generación presente sin comprometer la capacidad de las generaciones futuras para satisfacer sus propias necesidades” (Comisión Mundial sobre el Medio Ambiente y el Desarrollo 1987).

Fig. 4_ Proceso de reciclaje de los materiales extraídos de la obra. Fuente: AL BORDE (s. f.).
Dearq 31
Fig. 5_ Los espacios se muestran inmersos en un continuo proceso colaborativo de transformación y aprendizaje. Fotografías: Raed Gindeya (s. f.).
investigación 24 – 25
Dearq 31

8.

Talleres organizados por la Organización Nacional de Estudiantes de Arquitectura Ecuador, sin fines de lucro, para un cupo de veinte estudiantes. Su difusión como tutoriales de construcción ha tenido un impacto significativo, al ser los videos DIY con más descargas de la red.

9.

El Programa de Residencias es una experiencia de seis meses para cuatro estudiantes internacionales.

10.

Formada por una comunidad de unos sesenta miembros, donde un 43 % son parejas; un 24 %, familias; un 10 %, grupos de amigos; un 10 % personas solas, entre ellas jubilados.

11.

El modelo de cesión de uso Andel y FUCVAM ponen en práctica un modelo de vivienda colaborativa en el que la propiedad del inmueble es colectiva y recae siempre en la cooperativa. Ello evita que sus habitantes se conviertan en propietarios o inquilinos y se protege la vivienda frente a la especulación.

A medida que han avanzado las etapas, se han generado nuevas sinergias, y así el proyecto ha resultado en un proceso abierto de cooperación que continúa después acabada la obra y se consolida con el tiempo ( g. 5). De nuevo, ha sido posible con la intervención tecnológica que, a través de su difusión en las redes sociales, ha cambiado la escala de la participación, la cual ha ido desde familiares y amigos, mediante eventos organizados en Facebook, hasta arquitectos y estudiantes nacionales e internacionales, por medio de talleres de experimentación8 y prácticas profesionales9 ( g. 6). De la misma manera, con el tiempo también ha surgido una red de intercambio de servicios como el Tratado de Libre Cambalache.

La recon guración de los espacios arquitectónicos también ha ido evolucionando a medida que ha avanzado el proyecto, adaptándose a las necesidades de sus habitantes y dando lugar, aparte de las viviendas de los propietarios y de la o cina de arquitectura, a otras unidades habitacionales, como una residencia para los estudiantes de arquitectura en prácticas, que con ello contribuyen a la diversidad de la comunidad ( g. 7).

El éxito de este proyecto evidencia el poder de la colaboración que, con tecnología digital, promueve iniciativas participativas desde diversas escalas. A partir de este modelo, han surgido multitud de microintervenciones que han conseguido regenerar la identidad del lugar, su revalorización económica y el empoderamiento de sus comunidades:

Nuestra casa re eja la constante búsqueda de sentido y re exión que tenemos sobre nuestra práctica. Es un proceso que no tiene n. Nace de lo ordinario, de las necesidades cotidianas y se relaciona desde ellas al mundo. Adaptar el proyecto para que nos permita trabajar de acuerdo a como queremos vivir; después de todo, creemos que la profesión es importante, pero más importante es la vida. (Testimonio de uno de los habitantes del complejo y miembro de Al Borde)

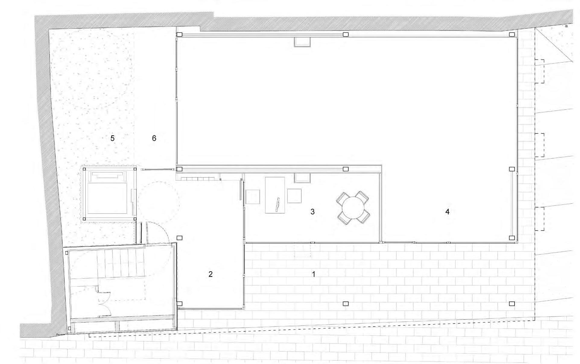
cooperativa la borda en barcelona

Este proyecto de cooperativa, formado por una comunidad intergeneracional,10 se sitúa en un recinto industrial abandonado de Barcelona, Can Batlló, y nace de la necesidad de proporcionar vivienda social en una zona donde el mercado inmobiliario la hace inasequible a los vecinos del barrio ( g. 8).

Esta cooperativa de 28 viviendas con espacios de relación y servicios compartidos ( g. 9) se ha llevado a cabo mediante la cesión de uso.11 En este caso, el Ayuntamiento ha cedido durante 75 años el uso de un solar público para la construcción de vivienda social en autopromoción, donde los cooperativistas deben cumplir con los requisitos establecidos por el Estado: no poseer propiedades inmobiliarias y tener un ingreso anual inferior a 40.000 euros. En este modelo, los habitantes han adquirido el derecho de ocupación mediante el depósito de una entrada de 18.500 euros, retornables, y el pago mensual de una cuota, acorde con la super cie de cada vivienda, además de una cuota de socio de 200 euros.

El proyecto se ha ideado como un proceso de colaboración continuo desde sus primeras fases de diseño, nanciación y construcción. Hasta el día de hoy, la tecnología ha favorecido la gestión y su uso, al adaptarlo a las necesidades de sus usuarios. En este caso, el blog de la cooperativa ha supuesto un gran apoyo en la fase de nanciación, ya sea porque ha posibilitado donaciones de particulares o por la participación en ella como socios externos, para la promoción de futuras cooperativas ( g. 10).

Fig. 6_ Proceso de construcción participativo impulsado a través de las redes sociales. Fuente: AL BORDE (s. f.).

Fig. 7_ Planificación de las diferentes fases de construcción con sus respectivas intervenciones. Fuente: AL BORDE (s. f.).

Asimismo, se han creado aplicaciones digitales propias para la gestión de recursos y el seguimiento del consumo energético, a n de obtener así una mayor e ciencia de las instalaciones ( g. 11). Medidas como el reciclaje de residuos o la realización de encuestas para conocer el confort climático de los usuarios permiten el bienestar de la comunidad a bajo costo ( g. 12).

investigación 26 – 27

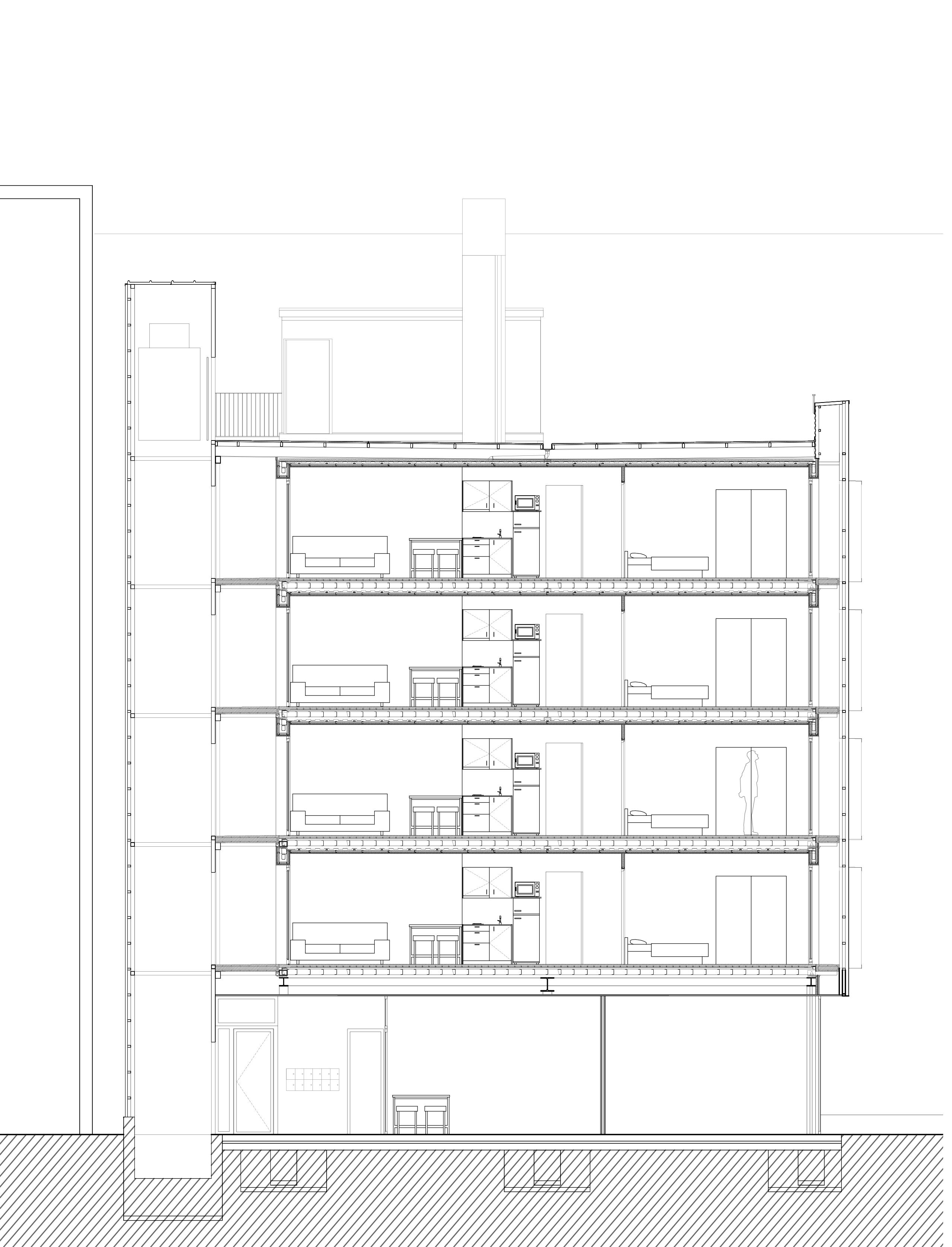
Fig. 8_ Fachada de la Cooperativa La Borda. Fuente: Lacol (s. f.).

Fig. 9_ Zonas compartidas de La Borda, abiertas a cualquier escenario. Fuentes: Lacol, La Borda, World Habitat, Ana Jiménez (s. f.).

Fig. 10_ Diferentes fuentes de financiación. Fuente: Lacol (2019).

Fig. 11_ Storyboard donde se muestra la colada como un proceso colaborativo sostenible mediante la tecnología digital. Fuente: Adrià Garcia i Mateu (2015).

Fig. 12_ Objetivos ambientales del proyecto. Fuente: Lacol (s. f.).

Dearq 31

Aportaciones de capital de las socias habitantes

Aportaciones de colaboradores

Préstamos a la inversión

Títulos participativos

Que bien que hayamos guardado las mejores lavadoras y comprado una industrial ¡Ah! y que las instalen con la ayuda del técnicos

Qué gracioso eso del Auca de la lavandería ¡no hay quien se lo pierda!

Emisiones

¡Qué bien! Hay un espacio libre para mañana en la tarde

Un programa rápido porque tengo que ir a entreno

¡Siraaa! Sí...subo a extender y salimos. Dile a Lluc que se despierte

Ep, aquí vamos de nuevo ¡el monstruo de las pinzas está en llamas!

Residuos de obra que se reciclan (%)

Joseé ¡donde pueda verte! Ueeeee, hemos bajado los consumos ¡y por debajo de la media!

A mí me gustaría que los turnos fueran de 2 horas. Si la persona no irá, poderlo saber para aprovecharlo

Hola, llamo de La Borda. Se ha estropeado una lavadora, la hemos estado tratando de reparar pero no lo logramos

Préstamos participativos Subvenciones Aportaciones a fondo perdido Otros ingresos por actividades
0 0,05 0,1 0,15 0,2 0,25 0,3 0,35 0,4 0,45 0,5 0,55 0,6 0,65 0,7 0,75 0,8 0,85 0,9 0,95 ESC Actual 41% ESC Normativa (2020) ESC Propuesta 75% 90% ESC Parque Actual 87,49 ESC cte ESC Propuesta 0,00 10,00 20,00 30,00 40,00 50,00 60,00 70,00 80,00 90,00 100,00 66,37 36 92 cocción refrigeración calefacción ACS iluminación equipamiento
590.109,06 € 194.500,00 € 500.000,00 € 865.000,00 € 450.000,00 € 661.500,00 € 1.200,00 € 12.750,00 €
de CO
extracción/fabricación materiales (kgCO2/m2) 0 50 100 150 200 250 300 350 400 450 500 550 600 650 700 ESC Actual 650 450 200 ESC Optimizado ESC Propuesta investigación 28 – 29
2

En cuanto a los espacios compartidos, aparte de los dedicados a la vida diaria como la lavandería o la cocina-comedor, aparecen otros de naturaleza exible que, gracias a la tecnología digital, permiten su desprogramación a favor de una mayor interacción de sus usuarios. De esta manera, espacios neutros se convierten en espacios coworking, en cine o en talleres ( g. 13). Finalmente, a través de redes sociales, se organizan eventos abiertos al público como comidas, visitas a la cooperativa o jornadas abiertas con talleres infantiles, debates, etc., donde se refuerzan los vínculos y la cohesión de la comunidad.

Tras el éxito de esta cooperativa12 ha surgido otra iniciativa, Sotrac, con la intención de reproducir el modelo de La Borda en terrenos ubicados en la misma zona. Así, el modelo colaborativo, con ayuda de la tecnología digital y en benecio de la comunidad, es capaz de reactivar un área urbana obsoleta y de favorecer la sostenibilidad social de las ciudades. “Queremos recuperar el vínculo entre personas como antes pasaba en los barrios y en los pueblos. Y a la vez resolver necesidades habitacionales. Es más que compartir espacios, también darse apoyo mutuo” (Testimonio de Ernest Garriga, de la Cooperativa La Borda, citado en Rodríguez Bosch 2020).

conclusiones

De los casos de estudio analizados, se observa que la tecnología digital facilita la interrelación de sus usuarios e impulsa, por ejemplo, la organización de eventos de diversidad cultural, las iniciativas de crowdfunding, la optimización de recursos o el reciclaje de materiales. Esto repercute de manera directa en los indicadores intangibles de sostenibilidad social, como los sentimientos de empoderamiento, de identidad o de pertenencia al lugar y a la comunidad.

Cuando la vivienda se concibe como un proceso participativo abierto, va más allá de sus fases de diseño y construcción, y se continua en la gestión y uso del modelo (Lacol y La Ciudad Invisible 2018, 108 y 109). En este aspecto, la tecnología digital desempeña un papel fundamental ya que, gracias a ella, se realiza un seguimiento permanente y se reajuste para una mayor e ciencia,

En

Fig. 13_ Axonometría del modelo donde se muestran los espacios de relación. Fuente: Lacol (s. f.). Nota: Imagen editada sin texto. Puede encontrar la información completa en la Sección Proyectos, página 96. 12.
Dearq 31
una entrevista realizada por La Fábrica del Sol a un miembro de la cooperativa en 2019 se comprueba la alta demanda de este modelo, pues ya en esa fecha había una lista de espera de 70 personas.

bibliografía

1. “909 re:u reciclaje urbano y vivienda eficiente”. 2014. En Glosario de reciclaje urbano, dirigido por Elisa Valero. Valencia: Ed. General de Ediciones de Arquitectura.

2. Ábalos, Iñaki. 2020. Palacios comunales atemporales. Barcelona: Puente.

3. Bienales de Arquitectura. 2016. “Casa en construcción”. http://www. bienalesdearquitectura. es/components/ com_chronoforms/ uploads/Panorama-obrasXBIAU/20160127185211_ CASA%20EN%20 CONSTRUCCIN%20.pdf

4. Becker, Annette, Laura Kien, Kristien Ring y Peter Cachola Schmal. 2015. Bauen und wohnen in Gemeinschaft: Ideen, Prozesse, Architektur / Building and living in communities: ideas, processes, architecture. Basel: Birkhäuser Verlag GmbH.

5. Bouzguenda, Islam, Chaham Alalouch, Nadia Fava. 2019. “Towards smart sustainable cities: A Review of the Role Digital Citizen Participation Could Play in Advancing Social Sustainability”. Sustainable Cities and Society, 50: 1-15. https://doi.org/10.1016/j. scs.2019.101627

como modi caciones en el consumo de las instalaciones o en el uso de las zonas comunes, que se adaptan a las necesidades de cada momento. Esto, en la era digital, donde el teletrabajo se implanta, abre la posibilidad de que los habitantes puedan reducir su movilidad a favor de una mayor interacción con el resto de la comunidad.

La sostenibilidad social del modelo se vincula de modo especial con el hecho de que sus habitantes sean residentes estables, ya que esto implica cuestiones como la inclusión y la concienciación ambiental, resultado de su interacción permanente con el entorno (Dempsey et al. 2011, 296). Cabría analizar, por contraste, la sostenibilidad social y la cohesión de la comunidad en aquellos modelos también llamados colaborativos, pero concebidos desde una posición topdown, en el que sus usuarios, nómadas digitales, están desvinculados del lugar.

Modelos sostenibles son los que, mediante el uso de la tecnología digital de manera transversal, dan como resultado una arquitectura colaborativa con procesos participativos que cohesionan la comunidad. Se convierten en espacios de relación e intercambio para sus ocupantes y dan lugar a sinergias que generan un compromiso, re ejado en el uso responsable de los recursos compartidos, que evitan problemas sociales como el individualismo, la exclusión social o la gentri cación de los barrios.

6. Comisión Mundial sobre el Medio Ambiente y el Desarrollo. 1987. “Nuestro futuro común”. http:// www.ecominga.uqam. ca/PDF/BIBLIOGRAPHIE/ GUIDE_LECTURE_1/ CMMAD-InformeComision-Brundtlandsobre-Medio-AmbienteDesarrollo.pdf

7. Cooperativa La Borda. s. f “Vivienda para construir comunidad”. http://www. laborda.coop/es/

8. De Molina, Lucía y Elisa Valero. 2020. “Habitar en la era digital: Modelos colaborativos y su respuesta en tiempos de crisis”. Rita (Revista Indexada de Textos Académicos), 14, n.º 4: 94-101. https://doi. org/10.24192/23867027(2020)(v14)(04)

9. Dempsey, Nicola, Glen Bramley, Sinéad Power y Caroline Brown. 2011.

“The Social Dimension of Sustainable Development: Defining Urban Social Sustainability”. Sustainable Development, 19, n.º 5: 289-300. https://doi. org/10.1002/sd.417

10. Habraken, N. J. et al. 2000. El diseño de soportes Barcelona: Gustavo Gili.

11. Habraken N. J. y Andrés Mignucci. 2009. Soportes: Vivienda y ciudad Barcelona: Universidad Politécnica de Cataluña.

12. ID22: Institute for Creative Sustainability. 2017. CO Housing Inclusive: SelfOrganized, Community-Led Housing for All. Berlin: Jovis Verlag GmbH.

13. Kries, Mateo et al. 2017. Together! The New Architecture of the Collective. Berlin, Weil am Rhein: Vitra Design Museum, Ruby Press.

14. Lacol y La Ciudad Invisible. 2018. Habitar en comunidad: La vivienda cooperativa en cesión de uso. Madrid: Fundación Arquia-Los Libros de la Catarata.

15. LafargeHolcimFoundation. s. f. “Under Construction”. https://www.lafargeholcimfoundation.org/Projects/ under-construction

16. Lietaert, Matthieu. 2010. “Cohousing’s Relevance to Degrowth Theories”. Journal of Cleaner Production, 18, n.º 6: 576-580. https://doi.org/10.1016/j. jclepro.2009.11.016

17. Manibardo, Almudena y Antonio Fernández. 2021. “Del viajero al turista hiperconectado”. RECERCA: Revista de Pensament I Anàlisi, 26, n.º 1: 111-132. http://dx.doi.org/10.6035/ Recerca.2021.26.1.6

18. Oviedo, María Soledad, Víctor Llugsh y Walter Ocaña. 2020. “Actividad turística y su relación con la gentrificación en el Centro Histórico de Quito”. INNOVA Research Journal, 5, n.º 3.2: 151-162. https:// doi.org/10.33890/innova. v5.n3.2.2020.1560

19. Ribot, Almudena, Ignacio Borrego, Javier García-German y Diego García-Setén. 2014. Colaboratorio: Fabricación digital y arquitecturas colaborativas. Ciudad Autónoma de Buenos Aires: Diseño.

20. Rodríguez Bosch, Marta. 2020. “‘Cohousing’: Construir comunidad”. Magazine de La Vanguardia, 1.º de marzo. http://www. magazinedigital.com/ estilo/arquitectura/ cohousing-construircomunidad

21. Sennett, Richard. 2012. Juntos: Rituales, placeres y políticas de cooperación Barcelona: Anagrama.

22. Sennett, Richard. 2019. Construir y habitar: Ética para la ciudad. Barcelona: Anagrama.

23. Soriano, Federico. 2014. “Un método es un proyecto”. En Colaboratorio: Fabricación digital y arquitecturas colaborativas, editado por Almudena Ribot, Ignacio Borrego, Javier GarcíaGerman y Diego GarcíaSetén, 106-109. Ciudad Autónoma de Buenos Aires: Diseño.

24. TU BERLIN. 2017. “CoLab: UPM”. En Open Building 2.0: Re-pensando la edificación abierta, editado por Almudena Ribot, Ignacio Borrego, Javier García-German y Diego García-Setén. Madrid: ColabMadrid.

investigación 30 – 31

Cinco principios para una arquitectura vulnerable e íntima: dibujando límites y aperturas alternativos al hogar y al yo

Five principles for a vulnerable and intimate architecture: Drawing alternative boundaries and apertures to home and self

Los límites y las aberturas del hogar no están separados entre sí; desempeñan un papel activo en políticas de salud corporal y social. Tanto la idea de hogar como la de vivienda falla cada día a un mayor número de personas; por eso, este artículo busca alternativas a la narrativa del hogar, de la intimidad interna utópica, que avala el retiro, y de una relación de no responsabilidad frente al ámbito público. Se sugiere que el resultado es distópico en ocultar y exacerbar la vulnerabilidad y su resistencia al cambio. En contraste, una arquitectura vulnerable e íntima se centra en el cuerpo vulnerable, que dibuja lo extraño, reprimido y emocional en el hogar.

Palabras clave: hogar, límites, empatía, disparidad, utopía, Levittown, psicoanálisis.

The boundaries and apertures of home are not separate from but play an active role in a politics of body and social body health. As both the idea of home and housing fail increasing numbers of people, this thesis seeks alternatives to home’s narrative of utopic internal intimacy that endorses retreat and a relationship of non-responsibility vis-à-vis the public realm. It suggests the result is dystopic in its concealment and exacerbation of vulnerability and its resistance to change. Instead, a vulnerable and intimate architecture centers the vulnerable body, by drawing the uncanny, repressed and emotional in home.

Keywords: home, boundaries, empathy, disparity, utopia, Levittown, psychoanalysis

Maya Orzechowska morzechowska@ryerson.ca

Ryerson University, Canadá

Aprobado: 10 de agosto de 2021 Cómo citar: Orzechowska, Maya. "Cinco principios para una arquitectura vulnerable e íntima: dibujando límites y aperturas alternativos al hogar y al yo". Dearq no. 31 (2021): 32-45. DOI: https://doi.org/10.18389/dearq31.2021.04

Recibido: 15 de diciembre de 2020

DOI: https://doi.org/10.18389/dearq31.2021.04

Artículo de Reflexión
Dearq 31

1.

Este ensayo es un resumen y reelaboración de los hallazgos documentados en la tesis de la autora (Orzechowska 2020). A la autora le gustaría reconocer las contribuciones de su supervisor de tesis, Colin Ripley; su segundo lector, John Cirka, y sus comentaristas de panel, Cheryl Atkinson y Marco Polo, quienes guiaron la investigación original.

La brecha entre la idea de la vivienda unifamiliar y la experiencia de hogar de las personas se está ampliando.1 En las últimas décadas, la vivienda en muchos centros urbanos se ha vuelto menos asequible. El número de personas que vive solas o en grupos familiares menos convencionales y más exibles ha seguido aumentando. Al mismo tiempo, las imágenes culturales de la familia de mediados de siglo siguen siendo excluyentes por motivos raciales, sexuales, económicos, de edad o de salud. Esta idea estandarizada de hogar, basada en la familia nuclear de clase alta o media, es un modelo anticuado para diseñar proximidades y relaciones. La idea simplista de la vivienda unifamiliar cerrada e introvertida, en su simpli cación reductiva de la intimidad, es limitante y anticuada; además, refuerza las jerarquías políticas, económicas y sociales de principios y mediados del siglo XX

La investigación posterior de estas preocupaciones se basa en el interés histórico de la arquitectura en la salud corporal y social (Colomina 2019), con un enfoque en los vínculos entre el hogar y las concepciones psicológicas del sí mismo (Ahmed 2006; Bachelard 1969). Esta utiliza lo extraño como metodología para examinar las brechas entre la idea y la experiencia que las malas interpretaciones de vulnerabilidad e intimidad generan con respecto a los límites del hogar ( g. 1). La coin uencia de estas emociones en el bienestar interpersonal y la comprensión del sí mismo se examinan dibujando cinco hogares extraños, o no hogares, inspirados en los cinco puntos de Le Corbusier, que calibraron el tema y los valores de la arquitectura moderna hace cien años. Los dibujos especulan con ajustes a los puntos de Le Corbusier y evolucionan en cinco principios para una arquitectura vulnerable e íntima.

La in uencia de la vulnerabilidad y la intimidad en los límites arquitectónicos y las aperturas del hogar y de sí mismo comprende dos partes: 1) la relación entre la vulnerabilidad, la intimidad y la arquitectura del hogar y 2) las in uencias del hogar en la comprensión de sí mismo en relación con el mundo. En arquitectura, la vulnerabilidad y la intimidad describen una respuesta emocional correspondiente a los espacios designados como interiores o exteriores en función del límite de una casa. El interior se conceptualiza como un refugio seguro e íntimo de las amenazas exteriores. No obstante, si la vulnerabilidad y la intimidad se consideran en un contexto social, es más fácil entender que no hay intimidad sin el potencial de vulnerabilidad. Ambos están presentes en cada relación, en cada espacio y a través de cada límite. La separación arquitectónica está incrustada en una historia social, cultural y económica de los fundamentos

investigación 32 – 33
Fig. 1_ Vulnerabilidad + intimidad en Arquitectura

de la idea de hogar y tiende a ocultarse. La vulnerabilidad y la intimidad se tratan como binarios, como si la separación perfecta fuera un objetivo deseable. Revelar contradicciones en este binario es extraño, ya que preocupa a las narrativas culturalmente aceptadas de un límite estable entre el interior y el exterior en los conceptos preconcebidos del hogar en el yo.

Lo extraño se puede entender a través de los términos alemanes heimlich y unheimlich, hogareño y no hogareño (Freud 1919). Hogareño representa lo íntimo y secreto; mientras que no hogareño captura lo que se revela desde dentro de lo seguro y secreto (lo reprimido, lo olvidado, lo ignorado) (Kunze 2003). Sin embargo, las dos de niciones coinciden cuando algo que debería ser íntimo emerge y se revela (Kunze 2003). Visualizar lo interno en el exterior proporciona una oportunidad para que el sujeto considere la construcción cticia de un binario interno-externo y la in uencia no realizada de un lado en el otro, ya que el cambio de pensamiento desencadenado por los estímulos externos demuestra el funcionamiento de los mecanismos internos u operaciones de pensamiento (Kunze 2003). De esta manera, lo extraño llama la atención sobre las in uencias de las identidades, valores o deseos (como el hogar), lo que sugiere que el sujeto personal, emocional, es el objeto de mayor in uencia cultural de lo realizado (Kunze 2003).

A medida que lo extraño expone las interrelaciones de la lógica y la emoción, el ensayo combina el dibujo emocional y los argumentos basados en la razón, para exponer cómo lo emocional transgrede lo racional y lo que se percibe como racional está presente en lo emocional. Los dibujos de cinco hogares extraños o no hogares y cinco principios para una arquitectura vulnerable e íntima cuestionan los límites del hogar y del yo. El término deshogar está inspirado en la naturaleza provocadora de Reyhner Banham y François Dallegret, “un hogar no es una casa”,2 mientras que cada deshogar y principio están arraigados en los cinco puntos de Le Corbusier, a partir de los cuales se especulan nuevas oportunidades. Desarrollados en constante interacción, los principios y dibujos re ejan una metodología donde “dibujar” es repermeado por sus muchos signi cados,3 como exponer, usar una habilidad, ser la causa de una respuesta y alcanzar un nal empatado. Entendidos en su complejidad, estos adelantan lo emocional/psicológico y normalmente oculto (lo reprimido y poético en la arquitectura) y sugieren un hogar simbólico, menos prescriptivo o codi cado (Pérez-Gómez 2018).

Lo extraño cuestiona la historia olvidada del acto de equilibrio cultural y arquitectónico, responsable de las estructuras imperantes. Con el hogar privado se han arraigado las presunciones de que la intimidad, la socialización y el espacio público (para los habitantes) se centran en el hogar (Chermaye y Alexander 1963, 210 y 211). Sin embargo, dado el aumento de las tendencias en la vida solitaria, las distancias entre quienes se cuidan unos a otros, el uso de la comunicación tecnológica y las preocupaciones de saneamiento médico o aislamiento asociado a la COVID-19, puede haber casos en los que esto ya no sea apropiado.

Examinar los hogares no convencionales y los no hogares molesta a los hogares deseados convencionales, ya que muestra que la idea culturalmente promovida de un hogar deseable, de hecho, tiene características indeseables; muestra que el hogar indeseable tiene algunos aspectos y potenciales deseables, y muestra que su clasi cación como deseable e indeseable es una construcción cticia. Los hogares extraños exponen los hogares actuales como una mezcla de ambos, y los hogares especulados del futuro podrían ampli car y remezclar estas decisiones. Al visualizar una situación pasada, presente o futura, la arquitectura evoca la emoción, el pensamiento y la reacción del público sobre una situación o idea (Ockman 2016; Young 2012; Pérez-Gómez 2006). Los dibujos del hogar son especulaciones destinadas a producir respuestas emocionales que lleven a suavizar y ampliar los límites del hogar y su comunidad, mediante la comprensión de la vulnerabilidad y la intimidad. La intención es reinvertir la arquitectura con intimidad y ganas a través de un proceso que, al dejar espacio para soñar, desarrolla espacios que sueñan.

2. El término deshogar (unhome, en inglés) está influenciado por las especulaciones domésticas críticas y provocadoras de Reiner Banham, en “A Home Is Not a House” (1965).

3. Véase el término draw, en el Diccionario en línea de Oxford (1989) y en el Merriam Webster Dictionary Online.

Dearq 31

El primer principio de una arquitectura vulnerable e íntima es reconocer las estructuras de separación. Este principio y su correspondiente deshogar ( g. 2) evolucionan a partir de los pilotes (pilotis) de Le Corbusier, que reestructuran una comprensión de la arquitectura basada en el concreto, la prefabricación y la estandarización. Al aplicar una metodología extraña, la base o fundamento del hogar es la revelación de la transparencia contextual y narrativa. El primer principio y el deshogar exponen el consumo de recursos, el aislamiento, el acceso y la propiedad, al hacer transparente el límite del hogar. Las vistas de rayos X cuestionan si los límites conceptuales del hogar actúan como una estructura de separación y esferas de interés y cuidado establecidas por las casas uniformes y prefabricadas de Levittown. Estas popularizaron el sueño americano posterior a la Segunda Guerra Mundial, de una residencia nuclear privatizada, como un retiro íntimo, familiar, privado y asequible. Muchos de los proyectos de Levittown siguen siendo viviendas familiares individuales suburbanas y urbanas y edi cios residenciales multiunidad (por ejemplo, torres de apartamentos). Clasi car, agrupar y separar los límites y las divisiones internas del hogar tienen implicaciones sociales (Preciado 2020). La extraña transparencia de la limitante llama la atención sobre cómo el hogar apoya y refuerza la fetichización social de la propiedad, el poder, la permanencia y la escala que impulsan un modelo antropocéntrico de extracción y consumo. Las posesiones dentro del no hogar, encerradas con su habitante, pero separadas de los demás, revelan los efectos económicos, sociales y ambientales de hacer que los recursos públicos sean privados (Wigley 1992), y exponen la extensión de los recursos recaudados.

34 – 35
Fig. 2_ Principio 1: estructuras de separación. ¿Qué pasa si los límites del hogar pierden esferas de interés + cuidado?

La transparencia del primer deshogar desdibuja el límite entre el interior y el exterior, creando un continuo gradual entre lo público y lo privado. En el no hogar, la vulnerabilidad y la impugnación de los que quedan fuera de los modelos de vivienda de una sociedad se vuelve más difícil de ignorar para los que están dentro. El deshogar transparente hace que las variaciones y especi cidades de diferentes adaptaciones interiores sean una actuación visible; al contrario de las casas modelo de Levittown, reconocidas ahora por su racismo, sexismo, clasismo y ocultamientos de cualquier variación menor detrás de modelos estándar opacos y prefabricados y conformidad regulada (Marshall 2015). El deshogar expone la idea personal, única y pluralista, en lugar de la idea singular, estandarizada y esterilizada del hogar.

El segundo principio es curar fachadas aislantes temporales. Este es una extensión de la fachada libre de Le Cobusier. Interpretado a través de la lente de lo extraño, la fachada se vuelve operable, mediante una exibilidad que expone (y personaliza) el deseo interno del habitante. Esto se desarrolla a partir de la creencia de Gaston Bachelard (1969) de que el espacio que habitamos in uye en nuestros pensamientos, emociones y sueños y, de esta manera, seleccionamos y damos forma a los espacios que nos rodean. Sara Ahmed (2006) describe esta conformación como una orientación corporal en el tiempo y el espacio, donde uno está “en casa”, cuando está familiarizado con su posicionamiento y lo que está próximo o al alcance. Por el contrario, para Ahmed uno “no está en casa” en situaciones en las que su camino de vida ha sido diferente de los convencionales, cuando estructura relaciones únicas de proximidad y oportunidades alternativas.

Los límites del hogar se pueden leer como una narrativa de qué cuerpos o subjetividades (no) se han considerado. Priorizando las experiencias de algunos, sugiere qué subjetividades o cuerpos son cuidados por una cultura y qué relaciones de cuidado son promovidas por una cultura. Esto in uye en quién experimentará sentimientos de falta de vivienda, en el sentido moderno y emocional de una melancolía, o como resultado de perseguir un sueño inalcanzable, o lograrlo y encontrarlo insatisfactorio. Según Jane Rendell (2019), Sigmund Freud ha declarado que esta pérdida melancólica es “una pérdida en la vida instintiva” (237) y relacionada con una pérdida que se oculta a la conciencia de tal manera que el sujeto no puede llorarla, y está atrapado en la experiencia emocional resultante. Entre la idea cultural y consumista del hogar y la experiencia hay un ocultamiento responsable de la melancolía y el vacío comunes en la modernidad. Oculta la dinámica de la vulnerabilidad y la intimidad; mientras que la cultura y los medios de comunicación contribuyen a una orientación fuera de lugar de la intimidad como un objetivo que se debe aislar y la vulnerabilidad como algo contra lo que aislarse. El resultado es una as xia y aniquilación simultáneas de la intimidad, que está destinada a ser protegida.

Históricamente, la arquitectura y sus límites están in uenciados por el interés del campo médico (Colomina 2019, 13-30). Sin embargo, para la arquitectura del hogar, abordar la vulnerabilidad hoy en día sugiere reevaluar este paradigma, cuyo objetivo es el máximo aislamiento. Si bien las enfermedades respiratorias transmitidas por el aire, como el coronavirus de 2019, siguen siendo un riesgo global (World Economic Forum 2019), en los últimos años la principal causa de muertes se debe a las enfermedades cardiovasculares (World Health Organization 2017b). Sus factores de riesgo incluyen el estrés y los comportamientos que están in uenciados por el estrés (World Health Organization 2017a). Las tasas de ansiedad y depresión han aumentado cerca del 50 % entre 1990 y 2013 (World Economic Forum 2019, 34 y 35), y se correlacionan con el aumento de las tasas de suicidio en los países más ricos. Estos aumentos en las enfermedades del corazón y la mente pueden entenderse como un efecto de la brecha entre las ideas de hogar (y uno mismo) y la experiencia. Los costos y límites de los hogares que se supone satisfacen nuestros sueños también pueden fomentar comportamientos que contradicen las necesidades de socialización, intimidad y relajación.

Dearq 31

Para dirigirse al estrés y la melancolía, el segundo deshogar ( g. 3) amplía las oportunidades de participación y personalización de los habitantes dentro del proceso de diseño y a través del tiempo. Esta exploración de la personalización tiene algunas similitudes con el concepto de N. John Habraken (1972) de “soportes” y “rellenos”, y el deshogar busca oportunidades para que el habitante cure los objetos domésticos en capas como fachadas aislantes temporales. La fachada del hogar responde al estado de ánimo, la salud, la atención y el saneamiento. El aislamiento del hogar, al igual que su etimología de la creación de una isla a partir de tierra rme,4 podría ser dictado temporalmente en función del estado físico y emocional. Un hogar podría ser una expresión mecanizada de interés en el mundo externo, en que se equilibra la experiencia emocional personal matizada de la separación, ajustable para los niveles de atención, los visitantes y las personalidades únicas.

El tercer principio es el plan ilimitado que se desarrolló a partir del plan abierto de Le Corbusier (que se constriñe a los que están dentro del edi cio). Los dibujos correspondientes a este deshogar ( g. 4) exponen cómo la reubicación del programa interior (y los muebles) de la casa en el perímetro proporciona oportunidades para el diálogo entre el interior y el exterior. Da a los que están fuera un asiento en la mesa y sugiere conceptualmente que todos los límites son un diálogo, compartido e in uenciado por los constituyentes internos y externos. Este enfoque se basa en la conceptualización de Elizabeth Grosz y Peter Eisenman (2001), de la frontera como un sitio abierto de intercambio y cambio (193), e inspira la frontera del deshogar para estar más cerca de las concepciones

4. “Insulate” (Lexico s. f.).
investigación
Fig. 3_ Principio 2: curar fachadas aislantes temporales. ¿Qué pasaría si los límites respondieran al estado de ánimo, la salud, la atención y el saneamiento?

biomédicas contemporáneas del cuerpo como algo poroso (un tema de ujos y cambios a lo largo del tiempo) (Kovar 2018, 3 y 4). Modi ca el enfoque antropocéntrico (Haraway 2016) del hogar donde el yo y lo interno son primarios y lo externo es solo un recurso que fomenta los límites estables y jos asociados a las polarizaciones ideológicas y al crecimiento de la disparidad socioeconómica. El tercer principio pone el relieve en la necesidad de espacio público para encuentros accidentales y un ámbito político para la expresión de opiniones y negociación de posiciones. Las paredes operables de los elementos del programa del hogar son compartidas por el interior y el exterior. Sus ventanas giratorias, puertas y pantallas funcionan desde ambos lados, y su posicionamiento es una negociación de los intereses personales de los involucrados. Los diagramas de su movimiento están inspirados en la perspectiva de Hannah Arendt (1998), donde el dominio público o diálogo requiere una recreación constante para existir. Esta conceptualización de límites sociales se burla de las oportunidades para encuentros casuales inesperados e informales, oportunidades para mediar en nuevos entendimientos. El deshogar no se basa en la nostalgia, en las tendencias escapistas o en los ritmos mecanizados del reloj industrializado y estandarizado; en cambio, evoluciona según a las relaciones y los ritmos con sus vecinos, en el sentido más inclusivo. Se basa en los acontecimientos de la vida.

Dearq 31
Fig. 4_ Principio 3: el plan ilimitado. ¿Qué pasa si los límites permiten el diálogo entre el interior y el exterior?

El cuarto principio es la ventana ilimitada, que expone cómo los límites re ejan la hospitalidad y la generosidad del habitante. Se construye a partir de la ventana (horizontal) de Le Corbusier, que cura los aspectos del exterior que están permitidos en la casa (luz y aire fresco), para proteger contra la tuberculosis. Basado en los aspectos extraños de la hospitalidad en la losofía (Dufourmantelle y Derrida 2000), sus dibujos de deshogar ( g. 5) desarrollan una comprensión de que la vulnerabilidad se supone generalmente a lo que es externo a uno mismo, el huésped (u otro) que es desconocido, no entendido. Los hogares revelan los límites que los habitantes han dibujado a su alrededor y exponen su relación psicológica con los que están fuera, al mediar los aspectos del exterior qué son bienvenidos. Sin embargo, los deseos del interior están intrincadamente ligados con los del exterior. Las vulnerabilidades a las que están sometidos o condenados los extracomunitarios externos (viajeros, personas sin hogar, mensajeros, trabajadores esenciales, tratadores de necesidades físicas y emocionales y extranjeros) son inevitablemente susceptibilidades de la comunidad que imagina que se ha protegido contra ellas (Preciado 2020). Como ningún límite puede proteger perfectamente, existe el peligro de no proteger o considerar a los más vulnerables dentro de un sistema más amplio (protegerlos es autopreservación).

investigación
Fig. 5_ Principio 4: la ventana hospitalaria. Y ¿si los límites reflejan la hospitalidad + la visión del mundo del habitante?

El cuarto deshogar atrae una gama de hospitalidad y compromisos temporales o comunicativos entre un an trión y un huésped, que van desde el servicio plug and play (conectar y usar) para los viajeros a las oportunidades de entrada en el hogar y el uso en ausencia del an trión, o visitas afectuosas que son climáticamente separadas. Las variaciones en grados de hospitalidad muestran oportunidades de intimidad que equivalen a vulnerabilidades. El hogar privado es indicativo de las ideologías públicas de una cultura, y el trato, la hospitalidad o la generosidad hacia el huésped, el forastero, re eja la propia apertura y posición ética hacia los vecinos y el mundo. La extraña apariencia del exterior (huésped) en el interior (hogar) mani esta la exposición de los valores, creencias y miedos inconscientes del habitante (Dufourmantelle y Derrida 2000, 125-135). Esta extraña revelación es como una versión adulta más profunda de la etapa espejo de Jacques Lacan en la que un bebé reconoce la separación entre su proyección en el espejo (narrativa pública del yo y los valores) y lo personal (yo privado y comportamiento verdadero) (Krukowski 1993). La confrontación del habitante con su respuesta al huésped (y sus valores públicos) en relación con su espacio privado permite una reevaluación y recalibración.

El quinto principio es el del retorno y la generosidad, que explora la extraña circulación de la materialidad, las posesiones y los recuerdos del cuerpo humano en la muerte para cuestionar las formas en que las prácticas funerarias re ejan y refuerzan los límites y los valores. Está inspirado en el quinto punto de Le Corbusier, el jardín de la azotea, que devuelve el suelo que ocupa en otros lugares.

A menudo, los hogares de los muertos demuestran una base similar a los de los vivos. Los cementerios y los crematorios que albergan a los muertos representan un consumo continuo de recursos mucho después de la muerte de una persona. El desafío de albergar cuerpos crecientes es evidente en ciudades densamente habitadas con una geografía restrictiva, como Hong Kong o Venecia (Riggs 2010; Young 2019; Isola di San Michele, Wikipedia 2018). Los consumos de una vida también son evidentes cuando alguien se reduce cerca del nal de su vida, o muere, y muchas de sus posesiones se convierten en residuos.

Inspirados por ideas de retorno o reregalar pensamiento a través del cuerpo y el ciclo de vida, los bocetos del quinto deshogar ( g. 6) exploran el retorno de lo que fue ocupado, utilizado y presumido a lo largo de una vida. Las reciprocidades y obligaciones sociales asociadas a la entrega de regalos y la generosidad (Ekerdt et al. 2004) son relevantes para aquellos en la condición más vulnerable. La condición de los casi muertos o muertos que no pueden cuidar o recordar ellos mismos (Philips 2015). Los dibujos del deshogar buscan nuevas formas de reimaginar la muerte como un proceso de dar que fortalece los recuerdos y fomenta el aprecio en los vivos. Se desplaza el enfoque en la muerte, como la pérdida de una vida individual y un nal. En cambio, se recalca la transmisión (de pensamientos, recuerdos y objetos), el potencial generativo (a medida que estos elementos se modi can y reinterpretan) y la continuación (un día pueden ser transferidos de nuevo). Esto naliza la partida de una de nición material, basada en la posesión del yo, remplazada por una que se basa en sistemas de generosidad y encuentros acumulados con los demás, desarrollados a través de los deshogares. Estos reenfocan la arquitectura a la vida de sus habitantes, haciendo hincapié en los momentos de la vida que los que mueren a menudo se arrepienten de no priorizar durante sus vidas.

Un deshogar nal ( gs. 7-12) combina los principios y amplía las ideas de los deshogares individuales, imaginándolos en el contexto de una comunidad de covivienda. Especula con una arquitectura vulnerable e íntima que reconoce las in uencias de la pandemia y la crisis ambiental como una oportunidad para reconsiderar los principios arquitectónicos básicos en el futuro. Las estaciones de limpieza pueden seguir siendo un accesorio de espacios públicos o en entradas. Las formas de entretenimiento en el hogar o las reuniones sociales en espacios públicos pueden seguir estando in uenciadas por los deseos de no admitir a los huéspedes tan profundamente en el hogar o las preocupaciones

Dearq 31

de penetrar tan profundamente en un espacio público interior. El deshogar explora la extensión de los umbrales y la programación de un límite arquitectónico más grueso, suave o escalonado. Muestra una arquitectura vulnerable e íntima, sensible al contexto y capaz de mediar entre ese contexto y sus ocupantes, instigando una gama de ámbitos intersticiales entre “público” y “privado” y espacios para nuevas actividades y exploraciones.

La materialidad puede signi car capas o espaciamiento de elementos de pared para espacios intersticiales habitables. Su espaciamiento y las posibles permeabilidades de temperatura o aire a través de límites fragmentados son una nueva respuesta a las envolventes que están demasiado selladas y se han convertido en culpables del síndrome del edi cio enfermo y de las condiciones internas, insu cientemente ventiladas, que aumentan los riesgos de transmisión de enfermedades. Sentir y escuchar un poco más el ambiente externo (lluvia o vecinos) puede proporcionar una desaceleración bienvenida y necesaria, o interrupciones. Permitir una temperatura menos mediada en habitaciones semiexteriores, tipo pérgola, puede ayudar a combatir los sentimientos de connamiento, al proporcionar espacios para las visitas.

Fig. 6_ Principio 5: retorno + generosidad. Y ¿si las prácticas funerarias repiten los límites colectivos + valores de las viviendas? pre-1900s: the attic 1920s: the roof garden 2020s: the memory garden
40 – 41
Dearq 31
Fig. 7_ Cohogar nivel 1. Espacio para entrar, limpiar + renunciar a bienes materiales Fig. 8_ Cohogar nivel 2. Espacios periféricos para interacciones diarias, espacios centrales para bañarse + cambiarse Fig. 9_ Cohogar nivel 3. Techo para ceremonias de salida + memoria colectiva Fig. 10_ Cohogar sección BB'
investigación 42 – 43
Fig. 11_ Cohogar sección AA'

Esto podría lograrse en la envolvente de un edi cio con materiales de construcción, tradicionales o más recientes (como ETFE), separados para un recinto que es más permeable o en capas como una serie de voladizos, pórticos o balcones que penetran hacia adentro desde el exterior y hacia afuera desde el interior. Las zonas tendrían diferentes grados de transparencia acústica y visual y representarían un modelo en algún lugar entre la calefacción local y central. Las capas podrían separarse y habitarse como una serie de zonas climáticas, que albergan selectivamente diferentes bene cios.

Los principios de una arquitectura vulnerable e íntima también pueden aplicarse a los límites o interfaces que, a menudo, se producen entre unidades de gran altura, para darles cierta exibilidad pensando en un futuro impredecible. Por ejemplo, incluyendo espacios semipúblicos entre unidades, tales que existan espacios intersticiales para la expresión externa y el cultivo de relaciones entre vecinos. Un espaciamiento similar y más variado sería capaz de proporcionar formas para que las personas internadas en un hogar sientan una autonomía en su relación con el mundo externo, reconociendo y no eliminando las barreras. A veces, estas ventanas de límite comunicativas pueden incluso ser pantallas electrónicas.5 Al reenfocar el hogar a las interacciones con los demás y en reconocimiento de un sistema más grande, una arquitectura vulnerable e íntima es empática con el contexto externo y se reconcilia con las tensiones entre el deseo y la distancia en un momento en que los que están emocionalmente más cerca están cada vez más físicamente fuera. Sopesa las necesidades internas y una gradación de las interacciones externas. Se complace en mediaciones personales y únicas, ya que equilibra la salud física y mental, lo personal y lo público.

5. Esta idea está inspirada en el capítulo final de Teyssot (2013, 251-284)
Dearq 31
Fig. 12_ Cohogar detalle

bibliografía

1. Ahmed, Sara. 2006. Queer Phenomenology: Orientations, Objects, Others. Durham, NC: Duke University Press.

2. Arendt, Hannah. 1998. The Human Condition. Chicago: University of Chicago Press.

3. Bachelard, Gaston. 1969. The Poetics of Space Boston: Beacon Press.

4. Banham, Reyhner. 1965. “A Home is not a House”. Art in America 2: 70-79.

5. Chantry, Erin. s. f. “The Legacy of Levittown”. En Smart Cities Dive. https://www. smartcitiesdive.com/ex/ sustainablecitiescollective /legacy-levittown/79661/

6. Chermayeff, Serge y Christopher Alexander. 1963. Community and Privacy: Towards a New Architecture of Humanism New York: Doubleday and Company.

7. Colomina, Beatriz. 2019. X-Ray Architecture. Zürich, Switzerland: Lars Müller Publishers.

8. Diccionario en línea de Oxford. 1989. Londres: Oxford University Press.

9. Dufourmantelle, Anne y Jacques Derrida. 2000. Of Hospitality: Anne Dufourmantelle invites Jacques Derrida to Respond. Traducido por Rachel Bowlby. Stanford: Stanford University Press.

10. Ekerdt, David J., Julie F. Sergeant, Molly Dingel y Mary Elizabeth Bowen. 2004. “Household Disbandment in Later Life”. The Journal of Gerontology: Social Sciences 9B: S265-S273.

11. Freud, Sigmund. 1919. “The Uncanny”. En Sammlung Traducido por A. Strachey. Funfte Folge.

12. Grosz, Elizabeth A. y Peter Eisenman. 2001. Architecture from the Outside: Essays on Virtual and real Space. Cambridge, MA: MIT Press.

13. Habraken, N. John. 1972. Supports: An Alternative to Mass Housing. New York, N. Y.: Praeger.

14. Haraway, Donna. 2016. Staying with the Trouble: Making Kin in the Chthulucene. Durham, NC: Duke University Press.

15. Lexico.com. s. f. “Insulate”. https://www.lexico.com/ definition/insulate

16. Kovar, Zuzana. 2018. Architecture in Abjection: Bodies, Spaces and Their Relations. London: I. B Tauris.

17. Kunze, Donald. 2003. “The Natural Attitude versus the Uncanny”. Pennsylvania State University. http:// www.arch.mcgill.ca/ theory/conference/papers/ Kunze_Donald_revised_ June6_07.pdf

18. Krukowski, Samantha. 1993. “Le Corbusier’s Beistegui as Emblem of Surrealist Space”. http:// www.rasa.net/

19. Marshall, Colin. 2015. “Levittown: The Prototypical American Suburb – A History of Cities in 50 Buildings, Day 25”. The Guardian, 25 de abril 25 de 2015. https://www.theguardian. com/cities/2015/apr/28/ levittown-americaprototypical-suburbhistory-cities

20. Ockman, Joan. 2016. “Afterword”. En Can Architecture be an Emancipatory Project?: Dialogues on Architecture and the Left, editado por Nadir Lahiji. Winchester: Zero Books.

21. Orzechowska, Maya. 2020. “On boundaries + Apertures: Drawing a Vulnerable and Intimate Architecture”. Tesis de Maestría, Ryerson University, Canadá.

22. Pérez-Gómez, Alberto. 2006. Built Upon Love: Architectural Longing after Ethics and Aesthetics Cambridge: MIT Press.

23. Pérez-Gómez, Alberto. 2018. “Surrealism and architectural atmosphere”. En Architectural Design: Celebrating the Marvelous. Surrealism in Architecture, editado por Neil Spiller, 88: 25-35. Chichester, West Sussex, UK: John Wiley & Sons.

24. Philips, John W. P. 2015. “Force and Vulnerability in Philosophy and Science: Husserl, Derrida, Steigler”. Cultural Politics an International Journal 11, n.º 2: 145-161. https://doi. org/10.1215/174321972895723

25. Preciado, Paul B. 2020. “Learning from the Virus”. Traducido por Molly Stevens. Artforum. https:// www.artforum.com/ print/202005/paul-bpreciado-82823

26. Rendell, Jane. 2019. “May Mo(u)rn: Transitional Spaces in Architecture and Psychoanalysis – A Site-Writing”. The Journal of Architecture 24, n.º 2: 223-286. https://doi.org/10 .1080/13602365.2019.157 8076

27. Riggs, Ransom. 2010. “Strange Geographies: Death in Venice”. Mental Floss, 16 de mayo de 2010. https://www.mentalfloss. com/article/24709/ strange-geographiesdeath-venice

28. Teyssot, Georges. 2013. A Topology of Everyday Constellations. Cambridge, MA: MIT Press.

29. Young, Jessie. 2019. “‘Dead space’: Photographer Captures Hong Kong’s Dense Hillside Cemeteries”. CNN, 17 de septiembre de 2019. https://www.cnn.com/ style/article/hong-kongcemetery-intl-hnk-scli/ index.html

30. Young, Liam. 2012. “The Educator of Excess”. En Future Practice: Conversations from the Edge of Practice, editado por Rory Hyde. London: Routledge.

31. Wigley, Mark. 1992. “Heidegger’s House: The Violence of the Domestic”. En Columbia Documents of Architecture and Theory, vol. 1. New York: Columbia University.

32. World Economic Forum. 2019. The Global Risks Report 2019. 14.ª ed. Geneva.

33. World Health Organization. 2003. “Sars Outbreak Contained Worldwide”. https://www.who.int/ mediacentre/news/ releases/2003/pr56/en/

34. World Health Organization. 2017a. “Cardiovascular Diseases (CVDs)”. https:// www.who.int/newsroom/fact-sheets/detail/ cardiovascular-diseases(cvds)

35. World Health Organization. 2017b. “Cardiovascular Diseases”. World Health Organization. https://www. who.int/news-room/factsheets/detail/the-top-10causes-of-death

investigación 44 – 45

Parametric Modeling in the Design Process: Strategies to Create Flexibility and Spatial Adaptation for Social Housing

Los nuevos hábitos, fruto de los cambios socioculturales ocurridos en las últimas décadas, exigen crear espacios de vivienda exibles, personalizados y adaptables. El artículo informa sobre el proceso de diseño paramétrico de viviendas colectivas en el centro de São Paulo (Brasil), basado en los principios y directrices establecidos para las zonas céntricas. A efectos de generar y materializar un proyecto, explorando la combinación de parámetros de diseño, se utilizaron tecnologías digitales, como el modelado paramétrico y la fabricación digital. Las estrategias de diseño para crear nuevas tipologías de vivienda social, generadas mediante la inserción de algoritmos en zonas urbanas deterioradas, son la contribución original.

Palabras clave: tipo, búsqueda de la forma, parámetro, cohabitación, estrategias de diseño, algoritmo.

New habits, resulting from the socio-cultural changes that occurred over the last decades, demand the creation of exible, customized, and adaptable spaces for housing. This article reports on the parametric design process for collective housing in downtown São Paulo, based on the principles and guidelines established for central areas. Digital technologies, such as parametric modeling (PM) and digital fabrication, were used to generate and materialize a project, exploring the combination of design parameters. The original contribution here is the design strategies to create new social housing typologies, through algorithms inserted into deteriorated urban areas.

Keywords: type, form- nding, parameter, cohabiting, design strategies, algorithm.

Wilson Florio wilsonflorio@gmail.com

Mackenzie Presbyterian University

Ana Tagliari tagliari.ana@gmail.com

University of Campinas

Aprobado: 11 de agosto de 2021

Recibido: 15 de diciembre de 2020

Cómo citar: Florio, Wilson y Ana Tagliari. "Modelado paramétrico en el proceso de diseño: estrategias para crear flexibilidad y adecuación espacial para la vivienda social". Dearq no. 31 (2021): 46-59. DOI: https://doi.org/10.18389/dearq31.2021.05

DOI: https://doi.org/10.18389/dearq31.2021.05

Artículo de Investigación
Modelado paramétrico en el proceso de diseño: estrategias para crear flexibilidad y adecuación espacial para la vivienda social
Dearq 31

introducción

Las zonas céntricas de la ciudad de São Paulo (Brasil) presentan una buena diversidad arquitectónica, debido a las transformaciones que se han producido en los últimos 150 años. Sus edi caciones, así como sus variados principios compositivos, de diferentes estilos arquitectónicos, generaron discontinuidades morfológicas, alternancias de alturas y ritmos de fachada; no obstante, se ha producido un creciente deterioro de su calidad urbana, con falta de identidad y ausencia de espacios libres preparados para la estancia.

Según los datos publicados por el Instituto Brasileño de Geografía y Estadística, en 2019, la población de Brasil alcanzó los 210 millones de habitantes, y la de São Paulo, los 12,3 millones. En cambio, el dé cit de viviendas llegó a 1,4 millones de casas.

Hay familias cohabitantes, es decir, aquellas que viven bajo el mismo techo. El mayor problema de la convivencia entre estas familias es la necesidad de compartir habitaciones pequeñas, a menudo sin libertad o privacidad. En 2020, esta situación empeoró mucho, debido a la pandemia causada por el nuevo coronavirus.

Los hábitos se desarrollan culturalmente y se difunden implícitamente en cada sociedad. A lo largo del siglo XX, se ha observado que es difícil tratar los hábitos universales, así como los espacios para la vivienda social de poblaciones de diferentes países, con la misma propuesta arquitectónica. Por otro lado, a medida que ciudades como São Paulo se expanden sin control, debido principalmente a la migración a gran escala, se ha creado un importante y creciente dé cit de viviendas, que hacen más urgente la tarea de repensar los espacios domésticos.

Ante el problema identi cado, es natural llamar la atención para la siguiente pregunta: ¿cómo generar nuevos tipos de viviendas para las formas de vida contemporánea? En este sentido, es fundamental crear directrices y parámetros para nuevas propuestas de vivienda colectiva en las zonas céntricas deterioradas. En este contexto, es razonable utilizar el modelado paramétrico (MP) para promover otras formas de pensar los espacios en una diversidad cultural. Por lo tanto, la pregunta relevante de este artículo es: ¿cómo utilizar el MP durante el proceso de diseño de nuevos tipos de vivienda social?

Este artículo es el resultado de una investigación aplicada, ya que responde a una demanda real de la sociedad. Precisamente, se trata de una investigación a través de la práctica, porque se relató un experimento práctico, paso a paso, mientras se creaba una vivienda paramétrica. El objetivo es contribuir al debate sobre cómo aplicar el MP durante el proceso de diseño de las viviendas sociales.

investigación 46 – 47

principios y directrices para la vivienda social

Durante la investigación se encontraron muchas propuestas innovadoras de urbanización horizontal y vivienda social. Sin embargo, después de 100 años de viviendas colectivas, es posible identi car diferentes formas y estrategias de ocupación de zonas de terreno. Los estudios elaborados por Per et al. (2009, 2015) muestran que la densidad se basa en la interacción entre agentes, ujos y territorio, y puede variar según el tipo de forma urbana que se adopte. Leupen y Mooij (2011) plantean un análisis muy interesante de la organización básica del espacio de vivienda privada en el siglo XXI. A partir de estudios de casos, Robinson (2018) reseña enfoques exitosos para el diseño de la densidad en los Países Bajos, incluso los diferentes estilos arquitectónicos y estrategias de organización. Levitt y Levitt (2010) establecen los principios de diseño para todos los componentes esenciales de un diseño de vivienda exitoso. El arquitecto Moisei Ginzburg (2017), famoso por sus numerosos trabajos sobre el diseño de edi cios residenciales, publicó un libro en 1934, como resultado de una intensa investigación producida durante la década de 1920 en la Unión Soviética. El edi cio Narkom n, su obra más importante, inspiró a Le Corbusier en Marsella años después, y fue estudiado por Sbriglio (2013), cuyo libro aporta una completa documentación grá ca sobre este. Henderson (2013) examina la nueva Fráncfort del Meno a la luz de los debates sociales y políticos que le dieron forma, destacando el cuidadoso trabajo coordinado por el arquitecto Ernst May.

La investigación elaborada por Scanlon, Whitehead y Arrigoitia (2014) descubre la situación real de la vivienda social en doce países europeos. Por otro lado, según Sposito (2012), “las dinámicas sociales, económicas y políticas de los últimos años han modi cado no solo los estilos de vida”, sino que han determinado “la necesidad de exibilidad y adaptabilidad” (153) de las áreas comunes. En gran parte de América Latina, la vivienda social está marginada. El estudio de Balchin y Stewart (2001) muestra la situación crítica de las grandes ciudades. Todos los autores mencionados demuestran el estado del arte relacionado con la vivienda colectiva.

De esta literatura especí ca se han extraído unos principios sobre desarrollos de vivienda, en particular las directrices para la vivienda social. Con la exibilidad, como principio rector del proyecto, se crean formas de pensar los espacios internos para una diversidad de hábitos. La primera directriz adoptada en esta investigación es la unidad urbana. Las construcciones que se propongan deben seguir los atributos morfológicos identi cados en las manzanas existentes. En este sentido, es preciso estudiar las alineaciones, las alturas de las edi caciones y la masividad de forma adecuada para orientar las acciones del diseño.

Las intervenciones en zonas céntricas, dotadas de buena infraestructura, requieren propuestas de nuevas edi caciones que aumenten la ocupación del terreno, al tiempo que se amplían las zonas libres para el espacio público. La implementación debe evitar la segregación y generar, en cambio, una mayor integración entre los espacios públicos y los privados. La intención es buscar alternativas de diseño que favorezcan la creación de implantaciones centradas en el concepto de manzana abierta, muy bien de nido por Christian de Portzamparc.

Para generar unidades habitacionales exibles y adaptables a los cambios en el tiempo, es fundamental proponer un sistema de circulación que brinde alternativas espaciales a las unidades. Como se verá en la discusión de este artículo, las circulaciones horizontales y las verticales, con diferentes posiciones de las escaleras, permiten distintas disposiciones de las unidades habitacionales.

Otro principio rector fue el de generar unidades habitacionales con diferentes áreas, a n de promover varios tipos. Además, las unidades dúplex o tríplex facilitan crear diferentes tipos de sectorización en las áreas social, íntima y de servicios.

Dearq 31

Debido a las restricciones técnicas, que pesan sobre los costos de las viviendas, se adoptó una geometría regular para las unidades y un área especí ca para las instalaciones sanitarias. Además, con el propósito de generar fachadas diversi cadas, otro principio fue crear ventanas con diferentes geometrías, que promuevan diferentes visuales y penetraciones de luz en los espacios interiores. También, con el mismo propósito, se propusieron diferentes formas para las aberturas cenitales en el techo.

Utilizando un conjunto de principios, en la sección de resultados se discuten las opciones para las unidades habitacionales —derivadas de las combinaciones entre parámetros, ya sea del tipo de sistema de circulación, escaleras, sectorización, conexiones entre niveles y posición de áreas higiénicas— que se adaptan a las nuevas formas de vida contemporáneas.

diseño paramétrico y proceso de búsqueda de formas

Diferentes autores han advertido recientemente sobre cambios sustanciales en el proceso de diseño que surgen del impacto de las nuevas tecnologías digitales (Picon 2010; Oxman 2005; Kolarevic 2003). Sin embargo, todavía falta una discusión sistémica sobre los impactos del MP en la práctica del diseño para crear soluciones alternativas para la vivienda colectiva. Las investigaciones realizadas por Barrios (2006), Davis, Burry y Burry (2011), Woodbury (2010) y Alvarado (2013) demuestran el estado del arte relacionado con la aplicabilidad del MP en el proceso de diseño.

La palabra algoritmo puede de nirse como “el complejo conjunto de reglas que permiten la resolución de un problema determinado” (Breton 1991, 59). Un algoritmo especi ca la secuencia de instrucciones básicas para obtener un resultado esperado. El diseño arquitectónico se denomina paramétrico cuando sus elementos constructivos se de nen y manipulan mediante variables contenidas en el MP. El diseño es paramétrico cuando se usa el computador para modicarlo automáticamente mientras se cambian los valores de los parámetros durante el proceso de diseño.

Un MP implica restricciones, de nidas a priori, que permiten combinar los parámetros de forma investigativa, con resultados inesperados. Así, el algoritmo propaga los cambios basándose en parámetros restrictivos conocidos, pero con resultados normalmente inesperados. La propagación de un cambio entre parámetros, que están relacionados, produce cambios rápidos y e caces.

El principal cambio en el diseño paramétrico es que este proceso no busca crear una forma única, de nida a priori, para cada elemento constructivo o edicación, sino encontrar posibles alternativas para luego seleccionar la opción más adecuada. El MP contiene tres algoritmos (Woodbury 2010, 15). El primero es el orden de la secuencia de nodos que contienen los parámetros y sus propiedades. El segundo es la propagación, que evalúa cada nodo y sus restricciones expresadas por fórmulas, funciones u operaciones. El tercero permite mostrar datos en tres dimensiones.

El llamado proceso de búsqueda de formas implica que una forma se puede encontrar inesperadamente mediante la combinación de parámetros previamente establecidos en el algoritmo (Florio 2011). Así, se encuentra a posteriori, a través de variaciones —también llamadas generativas—, ya que permiten experimentar, comparar y seleccionar nuevas familias de formas complejas, delineadas por parámetros. Utilizando el plug-in Grasshopper, se exploró este concepto durante el proceso de diseño.

investigación 48 – 49

entrada de datos procesamiento de información análisis de datos & modelado resultados & discusión vivienda social paramétrica

enfoque: MP de la vivienda social modelado 2D & 3D

datos gráficos de vivienda colectiva vivienda social relevante

extrayendo parámetros

algoritmos & combinación de parámetros

dron libros

tesis

artículos

fotos

internet web

método

conocimiento + conceptos: MP, cohabitación & búsqueda de formas

modelado paramétrico

En esta investigación, el proyecto se elabora utilizando los principios y las directrices presentados en la sección anterior y los parámetros presentados en la sección “De nición de parámetros para el modelado paramétrico”. Sin embargo, la naturaleza de la investigación exigía el uso de nuevas tecnologías digitales, como el modelado y la fabricación digital. Las cinco etapas principales de este estudio se presentan en la gura 1.

Análisis de las viviendas colectivas pertinentes

Con el n de permitir la identi cación de los parámetros de diseño para el MP de la vivienda social, se analizaron cuidadosamente 38 edi cios emblemáticos, entre los cuales están los proyectos: Unitè D’Habitacion (1947), Le Corbusier; Quinta da Malagueira (1977), Alvaro Siza; Rue des Hautes Forms (1979), Christian de Portzamparc; Nemausus (1988), Jean Nouvel; IJ Plein Housing (1988), OMA; Gifu (2010), Sanaa, y Silodam (2002), MVRDV

Relevamiento y análisis de la intervención en São Paulo

Se seleccionaron dos zonas para el relevamiento de los edi cios existentes y el desarrollo de proyectos de vivienda colectiva. En este artículo solo se menciona la zona ubicada en la región de Barra Funda, que es una zona especial para viviendas colectivas y que está dentro de los límites del Centro de Operaciones Urbanas.

La zona de intervención se estudió siguiendo cuatro procedimientos: a) reconocimiento aéreo por dron, b) registro fotográ co por vistas en serie, c) reconocimiento por CAD Mapper y d) fabricación digital de modelos físicos. Utilizando la fresadora CNC, el modelo físico más tangible, se complementó la percepción e identi cación de las zonas construidas y vacías existentes ( g. 2, parte superior).

También se produjeron modelos impresos en 3D de la zona de intervención de

impresión 3D & CNC variación paramétrica

Fig. 1_ Flujo de trabajo.
Dearq 31

Barra Funda ( g. 2, parte inferior). Como resultado, se podría tomar una mejor decisión sobre la zona real de implantación de las nuevas viviendas. Estos modelos físicos se basaron en el modelo geométrico generado por CAD Mapper (disponible en línea) y en la información complementaria obtenida mediante el uso del dron y Google Maps/Earth.

Identi cación y clasi cación de los tipos de vivienda en la zona de intervención

Como resultado de las evaluaciones anteriores, se identi caron los tipos de vivienda presentes en la zona de intervención ( g. 3), y así se tomaron en consideración los catalogados en la misma manzana. Por lo expuesto, en este artículo solo se explica la vivienda horizontal, la tipología de tres pisos, por ser esta la altura de las viviendas de los dos barrios circundantes existentes y la altura de la mayoría de los edi cios en esta manzana.

De nición de parámetros para el modelado paramétrico

Con el n de introducir un análisis correcto de la información de los casos de estudio (mencionados en la sección “Análisis de las viviendas colectivas pertinentes”), así como de responder a la pregunta de este artículo, se concibieron parámetros especí cos para los algoritmos de esta vivienda horizontal. Inicialmente, el objetivo era de nir los parámetros generales. A medida que avanzaba la investigación, se establecieron algunas estrategias de diseño, con el n de satisfacer necesidades especí cas.

Los proyectos de referencia analizados (mencionados en la sección “Análisis de las viviendas colectivas pertinentes”) proporcionaron los parámetros necesarios para iniciar el diseño de los algoritmos para crear las unidades residenciales a través del MP. Hay dos tipos de parámetros: 1) para las de niciones generales del edi cio y 2) para los elementos especí cos del edi cio.

Fig. 2_ Parte superior: Modelo físico de la zona de intervención producido por la fresadora. Parte inferior: dos modelos de impresión 3D que muestran la misma zona, con los edificios degradados o desocupados y sin estos.
investigación 50 – 51
Fig. 3_ Tipos de viviendas unifamiliares y colectivas en Barra Funda.
Parámetro Mínimo Máximo Geometría/dimensiones Tipo de ventana unidad A 1 60 Tipo de ventana unidad B 1 60 Tipo de ventana unidad C 1 60 Tipo de ventana unidad D 1 60 Tipo de ventana unidad E 1 60 Tipo de ventana unidad F 1 60 Módulo z 1,13 1,13 Módulo y 0,43 2,26 Módulo x 0,43 0,43 Módulo w 0,43 0,70 Módulo v 0,16 0,27 Módulo blanco 1 0,27 1,13 Módulo blanco 2 0,27 1,13 Módulo blanco 3 0,27 1,13 Tipo de ventana cenital 1 6 Parámetro Mínimo Máximo Geometría/dimensiones Ancho de la unidad 3,0 6,0 Longitud de la unidad A 3,0 12,0 Longitud de la unidad B 3,0 12,0 Longitud de la unidad C 3,0 11,0 Longitud de la unidad D 3,0 11,0 Longitud de la unidad E 3,0 12,0 Longitud de la unidad F 3,0 12,0 Ancho del pasillo 1,2 2,5 Número de pasos 14 16 Escalera tipo A 1 5 Escalera tipo B 1 5 Escalera tipo C 1 5 Escalera tipo D 1 5 y z x x w v Dearq 31

Parámetros para las de niciones generales del edi cio: a) tipos y tamaños de las viviendas, b) variaciones en los sectores de la vivienda colectiva, c) tipo y ubicación de las circulaciones horizontales y verticales, d) posición y dimensiones de las áreas hidráulicas, f) exibilidad de los espacios internos (eliminación de muros), h) ubicación y dimensiones de las terrazas e i) de nición de la geometría de los edi cios.

Parámetros para las de niciones especí cas: a) tipos de escaleras, b) tipos de ventanas y puertas, c) tipos de elementos de transición (pérgolas, marquesinas, etc.), d) tipos de baños y e) tipos de cocinas.

resultados: algoritmo de una vivienda social

Se proyectó un complejo de viviendas de tres pisos con circulación longitudinal en el primer piso, que da acceso a diferentes tipos de apartamentos, de uno, dos o tres pisos. El objetivo era proveer viviendas para familias de una (unidades con 15 m²) a seis personas (con 90 m²), que representan el principal público de las zonas céntricas.

Este algoritmo ( g. 4) contiene un conjunto de parámetros del edi cio: a) variaciones de anchura y longitud de cada unidad (de la A a la F); b) unidad de uno, dos o tres pisos; c) ubicación especí ca de las zonas hidráulicas; d) cinco tipos de escaleras; e) de nición de las dimensiones y posiciones de los vanos del entrepiso; f) tipos de marcos de ventanas y su posición (basado en el Modulor); g) dimensiones y posición de las paredes; h) dimensiones y ubicación de seis tipos de aberturas cenitales; i) dimensiones de las terrazas, alféizares y bancos; j) dos tipos de puertas, y k) dimensiones de la encimera del fregadero de la cocina.

Los tipos de unidades se generaron a partir de las combinaciones de las unidades A, B, C, D, E y F ( g. 5). La manipulación de los parámetros permitió generar un gran número de tipos de unidades, con grandes variaciones de área, de 30 a 90 m². Como el objetivo establecido era crear una variedad de tipos de unidades, principalmente derivados de la posición estratégica de la circulación, se crearon los parámetros insertados en el algoritmo que posibilitaron tales combinaciones.

investigación 52 – 53
Tabla 1_ Parámetros generales. Tabla 2_ Componentes del edificio. Fig. 4_ Algoritmo de una vivienda social.

El algoritmo cuidadosamente planeado nos permitió generar un conjunto diversi cado de unidades, con el n de crear tres unidades por cada modulación ( g. 6). Luego de esta etapa, se detallaron los elementos de las unidades, es decir, pisos, escaleras, paredes, ventanas, puertas, bancos y encimeras de lavabos.

La exibilidad de disposición de los tipos de escaleras en las unidades dúplex y tríplex permitió distribuir los sectores social, íntimo y de servicios en diferentes posiciones en el espacio. Además, la posibilidad de generar diferentes vanos en las unidades, con el n de proporcionar alturas alternantes y diferentes visuales internas ( g. 7).

En la gura 8 se pueden ver los baños, situados en las áreas interiores junto a la circulación central que atraviesa todas las unidades del complejo de viviendas. En esta gura es posible visualizar, de forma esquemática, las principales decisiones tomadas para de nir los componentes del edi cio.

Se adoptó el sistema Modulor de Le Corbusier para de nir las ventanas que contribuyen a la fachada dinámica. El enfoque paramétrico promueve un gran número de alternativas para las aperturas de las unidades individuales, dúplex y tríplex ( gs. 9 y 10). La diversidad de las unidades, resultante de la manipulación de los parámetros, responde a los nuevos modos de vida contemporáneos, que exigen exibilidad, capacidad de adaptación a diferentes entornos internos y externos.

discusión

El proceso de diseño se inició luego de relevar las tipologías existentes en las manzanas seleccionadas para la intervención. La primera directriz adoptada fue la unidad urbana. La villa urbana se creó para promover la diversidad tipológica y, al mismo tiempo, respetar la altura de la villa existente. La nueva vivienda propuesta respeta los atributos de morfología urbana identi cados. Además, se estudiaron adecuadamente las alineaciones de los edi cios y sus alturas, con el n de orientar las acciones de diseño.

Fig. 5_ Combinaciones entre las unidades A, B, C, D, E y F. Fig. 6_ Unidades de vivienda diversificadas generadas por el algoritmo. Fig. 7_ Tipos de escaleras empleadas en el algoritmo en unidades dúplex y tríplex.
Dearq 31
Fig. 8_ Subdivisiones del edificio de tres pisos.
baños volumen circulación divisiones 3 unidades unidad 1 unidad 2 unidad 3 pisos escaleras muros bancos tipo 9 investigación 54 – 55
z w x v y y *Ejemplo de módulo Dearq 31

Fig. 10_ Diversidad de unidades.

Fig. 11_ Planta baja de ocho unidades.

Fig. 12_ Primer piso de ocho unidades.

Fig. 13_ Perspectiva de ocho unidades.

Fig. 14_ Vivienda social de diseño paramétrico.

Se establecieron cuatro estrategias de diseño para las viviendas colectivas: 1) creación de algoritmos para cada uno de los elementos constructivos; 2) creación de algoritmos para el diseño de tipos de unidades, sin subdivisiones; 3) diseño y desarrollo de algoritmos para cada tipo de vivienda colectiva, horizontal y vertical, y 4) generación de formas y espacios a partir de algoritmos que combinen los distintos algoritmos anteriores. Así, se podría probar cada algoritmo antes de unirlos en algoritmos más grandes.

El diseño paramétrico puede modi carse y actualizarse más rápido después de los cambios que normalmente ocurren durante el proceso. Estos se propagaron en el modelo tridimensional sin necesidad de reiniciar el modelado, haciendo el proceso no lineal y, así, proporcionaron constantes cambios y actualizaciones con gran agilidad. La de nición de los parámetros, sus conexiones y las pruebas necesarias para la veri cación requieren mucho tiempo hasta que demuestren ser e cientes en generar combinaciones y lograr buenos resultados ( gs. 11 y 12).

Se puede concluir que la ubicación del sistema de circulación, las áreas hidráulicas y la distribución espacial de las unidades son las principales estrategias de diseño para de nir la parte arquitectónica del edi cio. La exibilidad para integrar espacios sociales o íntimos depende de la posición de la escalera, así como de la cocina y los baños. Así, se asumieron tres estrategias: a) adoptar la posición central de la circulación pública, b) concentrar las áreas hidráulicas junto a esta circulación central y c) promover diferentes espacios adoptando tipos de escaleras, localizados en diferentes lugares ( gs. 13 y 14).

En lugar de compartir demasiado las habitaciones de una misma casa para quienes la cohabitan, se puede, por ejemplo, mantener la privacidad con cuidado por medio de muebles o dispositivos móviles. Como resultado, los espacios no compartimentados permiten la exibilidad y adaptación espacial de los usuarios a lo largo de los años de convivencia familiar.

Fig. 9_ Algunos tipos de ventanas con modelación paramétrica basadas en Modulor.
investigación 56 – 57

Al adoptar un conjunto de tipos de escaleras, ubicadas en diferentes posiciones, se generó uidez entre los pisos de la misma unidad. Por otro lado, los vanos internos, creados en las unidades, permitieron que se lograse la deseada expansión de vistas internas y la entrada diferente de luz natural que ilumina a lo largo del día. La creación de diferentes tipos de aberturas cenitales, en diferentes ubicaciones del techo, proporcionó luz natural a los ambientes alejados de las ventanas.

Usando combinaciones de parámetros, se crearon muchas opciones para el diseño de las ventanas. En consecuencia, las unidades, una al lado de la otra, muestran diversidad formal y espacial, lo que re eja los per les familiares en la actualidad ( gs. 15 y 16).

La tangibilidad de los modelos físicos, producidos por la máquina CNC y la impresora 3D, contribuyó a una mejor comprensión de la naturaleza de los edicios generados. Con el n de respetar la diversidad morfológica existente y promover la mejora del espacio público en las zonas céntricas, se resumen a continuación los principios y directrices adoptados para la creación de las viviendas colectivas mediante el MP: 1) diversidad tipológica de los nuevos edicios, en diálogo con la diversidad existente; 2) unidades de vivienda que respondan a las necesidades de familias numerosas con diferentes per les; 3) mejora de la planta baja de la manzana abierta, mitigando el impacto del edi cio en relación con el entorno; 4) ritmos y variaciones de los elementos de fachada para conseguir una identidad propia, y 5) exibilidad y adaptación espacial de las unidades para nuevas formas de vivir.

La oportunidad única de crear una alternativa para las casas listas para su uso se puede explorar mediante el MP, con el n de personalizar las unidades para diferentes maneras de vivir recientes. Una vez más, la intención es crear viviendas asequibles y personalizadas para nuevos tipos de hábitos. Por lo tanto, en un intento de comprender este proceso, el artículo colabora con los debates sobre cómo utilizar el MP durante el proceso de diseño de las viviendas sociales. De hecho, realizar proyectos paramétricos implica replantear un nuevo profesional (Florio 2017), con competencias contemporáneas, capaz de diseñar a partir de algoritmos. Por lo tanto, es fundamental de nir estrategias de diseño para la concepción del partido arquitectónico, a partir de un conjunto preciso de parámetros, de los requerimientos del problema y de los requisitos impuestos por los propios diseñadores.

Fig. 15_ Inclusión de la nueva villa urbana junto a villas existentes.
Dearq 31
Fig. 16_ Modelos físicos producidos por la impresora 3D.

agradecimientos

Los autores agradecen el apoyo económico del Fondo de Investigación MackPesquisa 2017-2019 y del Consejo Nacional de Desarrollo Cientí co y Tecnológico, CNPq 2019-2021, así como de Norma Luz Arteaga de Medina por la traducción al español.

bibliografía

1. Alvarado, Rodrigo. 2013. “Diseño paramétrico en Arquitectura: Método, técnicas y aplicaciones”. Arquisur 3, n.º 3: 16-27.

2. Balchin, Paul N. y Jill Stewart. 2001. “Social Housing in Latin America: Opportunities for Affordability in a Region of Housing Need”. Journal of Housing and the Built Environment, n.º 16: 333-341. https://doi. org/10.1023/A: 1012520013862

3. Barrios, Carlos. 2006. “Design Procedures: A Computational Framework For Parametric Design and Complex Shapes in Architecture”. Tesis de doctorado. Boston: Massachusetts Institute of Technology. https:// dspace.mit.edu/ handle/1721.1/35507

4. Breton, Philippe. 1991. História da informática São Paulo: Editora Unesp.

5. Davis, Daniel, Jane Burry y Mark Burry. 2011. “Understanding Visual Scripts: Improving Collaboration through Modular Programming”. International Journal of Architectural Computing 9, n.º 4: 361-375. https:// doi.org/10.1260/14780771.9.4.361

6. Florio, Wilson. 2011. “Modelagem Paramétrica, Criatividade e Projeto: duas experiências com estudantes de arquitetura”. Gestão & Tecnologia de Projetos, 6 (2): 43-66.

7. Florio, Wilson. 2017. Projeto Paramétrico: transformações da prática de projeto decorrentes da exploração de modelagem por scripts. En Modelos em arquitetura: concepção e documentação, organizada por Aristóteles Lobo de Magalhães Cordeiro, Germana Costa Rocha, 97127. João Pessoa: UFPB.

8. Ginzburg, Moisei. 2017. Dwelling: Five Years‘ Work on the Problem of the Habitation. Originally published in 1934. London: Fontanka Publications/ Ginszburg Design Limited.

9. Henderson, Susan R. 2013. Building Culture: Ernst May and the New Frankfurt Initiative, 1926-1931. New York: Peter Lang.

10. Kolarevic, Branko (Ed.). 2003. Architecture in the Digital Age: Design and Manufacturing. New York: Spon Press.

11. Leupen, Bernard y Harald Mooij. 2011. Housing Design: A Manual Rotterdam: NAi.

12. Levitt, David y Bernstein Levitt. 2010. The Housing Design Handbook. New York: Routledge.

13. Oxman, Rivka. 2006. “Theory and Design in the First Digital Age”. Design Studies 27, n.º 3: 229-265.

14. Per, Aurora, Javier Mozas y Javier Arpa. 2009. HoCo: Density Housing Construction & Costs Victoria-Gasteiz: a+t.

15. Per, Aurora, Javier Mozas, Alex Ollero y Aitor Deza. 2015. Why Density: Debunking the Myth of the Cubic Watermelon Victoria-Gasteiz: a+t.

16. Picon, Antoine. 2010. Digital Culture: An Introduction for the Design Professions. Basel: Birkhäuser.

17. Robinson, Julia W. 2018. Complex Housing: Designing for Density. New York: Routledge.

18. Sbriglio, Jacques. 2013. Le Corbusier: L’Unité D’Habitation de Marseille Marseille: Parenthèses.

19. Scanlon, Kathleen, Cristine Whitehead y Melissa F. Arrigoitia. 2014. Social Housing in Europe. Oxford: John Wiley & Sons.

20. Sposito, Cesare. 2012. “Identità, flessibilità e sostenibilità per un nuovo Social Housing Identity”. Techne, n.º 4: 153-159.

21. Woodbury, Robert F. 2010. Elements of Parametric Design. Routledge: Abingdon.

investigación 58 – 59

Artículo de Reflexión

Los inquilinatos en Bogotá: desde

la

problemática socioespacial hasta una propuesta arquitectónica habitacional

Tenements in Bogotá: From a socio-spatial problem to an architectural proposal for housing

El artículo visibiliza la tipología del inquilinato como una forma de habitar relevante para la población más vulnerable. Se describe su situación actual y sus dinámicas socioespaciales y se re exiona sobre aspectos negativos y potenciales, para llegar a la hipótesis de que los inquilinatos son una problemática resultante de factores económicos y sociales que se re ejan en el aspecto espacial; entonces, si se plantean desde la arquitectura, tienen el potencial de convertirse en una alternativa digna de vivienda. Por consiguiente, el proyecto arquitectónico pretende validar esta hipótesis, generando una discusión en torno al inquilinato como una solución habitacional.

Palabras clave: inquilinato, vivienda informal, vivienda compartida, vivienda temporal, habitar, proyecto arquitectónico, propuesta habitacional.

This article aims to visualize Bogotá´s tenements, in the local context called Inquilinatos, as a dwelling typology relevant for the most vulnerable population. It describes its current situation, socio-spatial dynamics and contemplates its negative and potential aspects. The paper establishes the hypothesis that: Inquilinatos embody a problem that results from economic and social factors and re ects in the spatial dimension. Thus, if we approached them through the discipline of architecture, they may have the potential to become an adequate housing alternative. Therefore, this article proposes an architectural design to validate this hypothesis, generating a new discussion around the tenement as a housing solution.

Keywords: tenements, informal housing, cohousing, temporary housing, inhabiting, architectural design, housing proposal

Universidad Técnica de Viena

Aprobado: 2 de agosto de 2021

Recibido: 16 de diciembre de 2020

Cómo citar: Abello Aldana, Valeria y Miriam Kuehler. "Los inquilinatos en Bogotá: desde la problemática socioespacial hasta una propuesta arquitectónica habitacional".

Dearq no. 31 (2021): 60-73. DOI: https://doi.org/10.18389/dearq31.2021.06

DOI: https://doi.org/10.18389/dearq31.2021.06

Dearq 31

Información Adicional

Este artículo se basa en la tesis de maestría de arquitectura desarrollada en el 2019 en la Universidad

Técnica de Viena “El fenómeno urbano de los inquilinatos: La vivienda colectiva, informal y temporal para comunidades vulnerables en Bogotá” * desarrollada por Miriam Kuehler y la tesis de pregrado de arquitectura desarrollada en el 2020 en la Universidad de los Andes

“Hábitat Micro Temporal” ** desarrollada por Valeria Abello Aldana y bajo la dirección de Gloria Serna.

* https://repositum.tuwien.at/handle/20.500.12708/1699

**

https://www.behance.net/gallery/105213593/

contexto

La situación global producida por la COVID-19 ha abierto un nuevo debate desde la arquitectura sobre cómo debería ser el tipo de vivienda que es capaz de responder a la actual crisis sanitaria y cómo repensarla en el futuro. Pero también ha visibilizado problemáticas en torno al habitar que nunca habían sido temas de discusión pública. Una de las situaciones que ha llamado la atención mediática es aquella que se vive actualmente en los inquilinatos y pagadiarios. Entre las problemáticas que se complejizaron debido a la situación sanitaria, cabe resaltar el hecho de que esta tipología de vivienda impide que las personas puedan tomar medidas de aislamiento físico, dadas las condiciones de hacinamiento. Además de no poder tomar medidas sanitarias adecuadas, las condiciones de presión económica limitan la capacidad de pago de las personas, lo que ha llevado a desalojos masivos.

Ahora, a pesar de la resonancia mediática que tuvieron los desalojos, los inquilinatos y pagadiarios siguen siendo una problemática socioespacial poco tratada. Aunque se encontró que en ciudades como Medellín se han tomado importantes decisiones desde hace unos años, como el Acuerdo 19 del 2016 y el Decreto 0145 del 2019, en Bogotá son más limitadas las medidas tomadas al respecto. Cabe mencionar que se encuentra el Proyecto de Renovación de un Inquilinato de la Fundación Candelaria, actualmente patrimonio de 1992 (Marta Lucía Gallo, conversación telefónica con la autora, 7 de abril del 2020) y el Plan Piloto para el Mejoramiento de Inquilinatos en el barrio Egipto (La Milagrosa y Betania), de 1994 (Clemencia Escallón de Acevedo, mensaje de correo electrónico con la autora, 25 de marzo de 2020; “Plan piloto para mejorar los inquilinatos” 1994). Sin embargo, se concluyó que desde entonces y hasta las últimas administraciones, se ha debatido el tema como un aspecto de la revitalización urbana del centro de la ciudad, pero no se ha realizado ningún proyecto especí co (Alejandro Florián Borbón, mensaje de correo electrónico con la autora, 16 de agosto de 2021). Además, los estudios académicos sobre el tema son escasos.

metodología

Por esta razón, la presente investigación se desarrolla bajo un enfoque cualitativo, empleando instrumentos teóricos, pero, sobre todo, empíricos. La investigación teórica incluye revisión de literatura, fuentes periodísticas, estudios estadísticos, informes poblacionales y evidencia fotográ ca, esto teniendo en cuenta di cultades a la hora de acceder a la información, debido a la falta de datos o ciales y a la escasez de trabajos académicos al respecto, principalmente en Bogotá. En paralelo, se utilizan instrumentos de investigación empírica en campo, como visitas al lugar, entrevistas a habitantes y administradores de los inquilinatos, también sorteando di cultades como la poca disposición a proporcionar información o di cultades a la hora de realizar el trabajo de campo, por temas de seguridad. Por otro lado, se entrevistó a docentes y profesionales vinculados con el tema y se llevaron a cabo levantamientos de datos en entidades públicas. Adicionalmente, en la tesis de Valeria Abello Aldana (2020), “Hábitat Micro Temporal”, se emplea una metodología proyectual, con el n de generar una re exión acorde con la realidad actual, planteando una propuesta arquitectónica como instrumento para dicho n.

investigación 60 – 61

la problemática socioespacial

Los inquilinatos son una forma de habitar tradicional e histórica de Bogotá, colectiva, temporal e informal (Ocampo Ríos 2013, 36). Distintas personas viven bajo un mismo techo, donde cuentan únicamente con su habitación, ya que comparten baño y cocina entre aproximadamente diez personas. El pago es diario y la duración de permanencia varía: puede ser algo transitorio pero muchas veces se vuelve permanente. Estos inmuebles son un negocio informal (89) y los administra una persona que cobra por el cuarto subarrendado (Coupé 2018). Los inquilinos —muchas veces familias enteras— adquieren el derecho a usar el inmueble, pero sin seguridad de tenencia (Ocampo Ríos 2013, 70 y 149).

Los inquilinatos como tipo de vivienda y negocio existen en toda Latinoamérica, pero se conocen bajo diferentes nombres: vecindades, conventillos (Coupé 2018), callejones, ciudadelas, cortiços… (Harms, Pfei er y Ludeña 1996). En Colombia también se denominan pagadiarios; sin embargo, hay que aclarar que no son equivalentes a los inquilinatos ( g. 1). Los pagadiarios se distinguen por tener condiciones mucho más precarias y, por ello, precios más bajos (“La resistencia de los emberá” 2018). Se paga por cama o colchón y el hacinamiento es extremo. Al carecer de las condiciones mínimas de habitar, más que una vivienda, son un negocio de explotación con rentabilidades.

Tradicionalmente, los inquilinatos se ubicaban en el centro, en casas coloniales y republicanas, en barrios como La Candelaria, Santa Fe y Los Mártires. Hoy en día, se han dispersado por distintas localidades de Bogotá, como Tunjuelito y Barrios Unidos (Secretaría Distrital de Planeación 2017). Actualmente, se encuentran en viviendas multifamiliares, o cinas, talleres y bodegas, y surgen informalmente en inmuebles que se adaptan y transforman de manera improvisada, como se evidencia en la gura 2, que buscan obtener el mayor provecho por el subarriendo del mayor número de cuartos (Álvarez 2003, 21). Así, aun cuando el precio del cuarto por noche es de aproximadamente 15.000 COP, estos se convierten en 450.000 COP al mes, que para el arrendatario se traducen en 9.000.000 COP, si tiene al menos 20 cuartos.

Es por ello por lo que, a la hora de adaptar los inmuebles, las condiciones de habitar no se tienen en cuenta, y presentan incluso problemas de habitabilidad y salubridad; pero, sobre todo, de hacinamiento. Lo que era un hogar de seis personas se convierte en el techo de treinta. Cualquier espacio se puede convertir en una pieza, sin importar la iluminación o la ventilación natural, y las habitaciones, a pesar de sus medidas reducidas, se convierten en microuniversos y el escenario donde toda la vida familiar sucede (Cuervo-Calle 2009, 54).

Los espacios complementarios, como baños, cocinas, salas y patios ( g. 3), los comparten entre todos y, frecuentemente, se vuelven escasos ( g. 4). El número de usuarios por espacio sobrepasa el nivel aceptable y causa situaciones críticas (CEHAP 2006). Además, las difíciles condiciones físicas se superponen a complejas situaciones sociales, que producen con ictos, violencia y abuso, donde niñas, adolescentes y mujeres se convierten en la población más vulnerable (Olga Lucía Ceballos Ramos, en entrevista con Miriam Kuehler, 30 de mayo del 2018).

Estas condiciones de precariedad se han potenciado con la crisis sanitaria de la COVID-19. La falta de condiciones de habitabilidad y salubridad adecuadas aumentan el riesgo de infección. Adicionalmente, la situación de hacinamiento y la obligación de usar espacios compartidos impide aislarse. Hacer cuarentena se vuelve casi imposible teniendo en cuenta, además, el aumento de los casos de violación intrafamiliar (Cepal 2020, 6). Esta es la realidad actual de sus habitantes.

Fig. 1_ Pagadiario vs. inquilinato. Fuente: Miriam Kuehler. Fig. 2_ Transformación de una casa unifamiliar. Fuente: Miriam Kuehler.
Dearq 31
Fig. 3_Espacios dentro de un inquilinato. Fuente: Miriam Kuehler.

I. Estado original: Vivienda unifamiliar

II. Proceso: Adaptación de espacios existentes y construcción de nuevos espacios

III. Estado final: Transformación con ocupación maxima

A Administrador B Baño C Cocina L Lavadero

Propietario Habitaciones en arriendo Espacios funcionales

investigación 62 – 63
Plantas Cuartos | Paga-diario Plantas Cuartos | Inquilinato

dinámicas sociales

La población de los inquilinatos es muy variada: mujeres, hombres, niños, adolescentes y adultos mayores. Aunque se diferencian en estructura familiar, procedencia y ocupación, comparten ciertas características. Son personas socioeconómicamente desfavorecidas, en situación de pobreza o pobreza extrema, en su gran mayoría trabajadores informales, y los inquilinatos son la única forma de vivienda accesible, que responde sus lógicas socioeconómicas.

Existen tres factores principales que promueven la producción de los inquilinatos. El más importante es la migración tanto interna como externa, por razones como la búsqueda de mejores oportunidades o por el desplazamiento causado por la violencia (Coupé 2018). Actualmente, una gran parte de los inquilinos proviene de Venezuela, debido a la ola migratoria. Esta es una migración histórica y sin precedentes, Colombia es el principal país receptor y Bogotá es la ciudad con mayor cantidad de población migrante (Banco Mundial 2018). En general, las personas que llegan poseen pocos recursos y el inquilinato es el primer paso en la inserción a la ciudad (Fernando Cortés, en entrevista con Miriam Kuehler, 8 de junio del 2018).

La informalidad y las condiciones socioeconómicas de sus habitantes también son factores que generan oferta y demanda. Esta última, la demanda de habitaciones pagadas por día, se mantendrá mientras existan los trabajos informales pagados por día; además, porque los ingresos son escasos e irregulares. En cuanto a la oferta, están los arrendatarios que tienen características socioeconómicas similares a las de los inquilinos y para quien este negocio representa una parte esencial del ingreso familiar (Gilbert 2005, 194); pero también están los arrendatarios, que se mueven entre la ilegalidad y extraen la mayor renta posible a costo de esta población (190).

Estos factores mencionados son dinámicas presentes en la sociedad colombiana, que no solo han repercutido en la producción de inquilinatos, sino también en la producción de barrios de invasión. Pero mientras estos barrios son visibles ante los ojos de la ciudad, los inquilinatos permanecen escondidos detrás de las fachadas (Hernández 2015, 92). Los barrios informales, muchos en proceso de consolidación, hoy en día forman parte de un discurso político y un ejercicio académico; en tanto que los inquilinatos son poco estudiados, no entran en la política pública y son sistemáticamente invisibilizados en las estadísticas (Ocampo Ríos 2013, 110).

Acceso Habitaciones Servicios Patios
Piso 2 Piso 1 Lote
A Administrador B Baño C Cocina L Lavadero
Vista superior
Dearq 31
Fig. 4_ Distribución espacial de un inquilinato. Fuente: Miriam Kuehler.

No existe un número determinado de personas que vivan en inquilinatos ni de los inmuebles que funcionan bajo esta modalidad. Por lo tanto, para este caso en especí co, la estimación se basó en datos obtenidos en la Encuesta SISBÉN III del 2017, donde un 25,1 % de los hogares encuestados vive en habitaciones, y un 7,2 %, en hacinamiento (Secretaría Distrital de Planeación 2017, 11). Tomando el número de hogares en hacinamiento como dato aproximado y teniendo en cuenta que, en promedio, están conformados por tres personas, según esta misma encuesta, se podría decir que alrededor de 250.000 personas habitan en inquilinatos. Sin embargo, hay varios factores que indican que el número puede ser mayor o va en aumento.

Por una parte, es necesario entender que los datos o ciales subestiman la realidad (Ocampo Ríos 2013, 111); por otra, es cierto que la migración por parte de población venezolana no se detendrá mientras continúe la crisis en el país vecino (Banco Mundial 2018). Además, se predice un aumento signi cativo de pobreza y desigualdad, debido a la crisis económica, consecuencia de la COVID-19, y para muchos, el inquilinato será la única opción de techo (Cepal 2020, 2).

el inquilinato desde otro punto de vista

El inquilinato, aunque evidencia situaciones socioespaciales difíciles y complejas, es una alternativa que ayuda a solventar el dé cit de vivienda para la población vulnerable (Cuervo-Calle 2009, 19). Como modelo de habitar, responde a un contexto socioeconómico real, cosa que no hace el modelo de vivienda formal en Colombia. Cabe resaltar que el habitante del inquilinato es una persona cuya capacidad adquisitiva es baja o nula, que en la mayoría de los casos no solo tiene que velar por sí mismo, sino que también por toda su familia, lo que lo deja por fuera del mercado privado formal. Para acceder a la vivienda de interés social, se tienen unos requerimientos de nanciación que esta población no puede cumplir (Gilbert 2005, 166). Esto sin contar que su ubicación en la periferia de la ciudad di culta el acceso a oportunidades de trabajo informal que, por lo general, se encuentran en el centro, lo que signi ca costo en tiempo y trasporte. Lo mismo sucede con los asentamientos en barrios informales: además de ubicarse en las afueras, se necesitarían ahorros para construir una casa o un salario regular, para arrendar una alcoba en una vivienda multifamiliar.

El inquilinato, en cambio, funciona de acuerdo con las lógicas socioeconómicas de la población. La ubicación central les permite estar cerca de oportunidades de trabajo y servicios públicos; acceden a este de forma inmediata sin necesidad de garantías o adores y, por último, el pago por día se adapta al ingreso diario.

Así, la investigación del habitar en inquilinatos y su expresión arquitectónica y urbana da un giro interesante, cuando se reconoce que existen múltiples aspectos positivos y potenciales. El cohabitar tiene ventajas socioeconómicas, como el uso colectivo de espacios y recursos; además del valor social que se puede obtener en una situación de cohabitar adecuado, en términos de solidaridad y apoyo mutuo (Coupé 2018). Conjuntamente, son una forma e ciente de habitar con un impacto positivo ecológico y urbano, como la reducción del dé cit cuantitativo de vivienda y la redensi cación de la ciudad, aprovechando el uso de inmuebles vacíos o reutilizando casas patrimoniales en desuso (Álvarez 2003, 30).

Volver el inquilinato una vivienda digna se convierte en una manera de crear una oferta de vivienda colectiva y social en arriendo, cuya producción promueve el derecho a la ciudad y contribuye a crear una ciudad más equitativa e inclusiva. Garantiza la existencia de vivienda en el centro, contrarresta la gentri cación y aporta a la creación de una ciudad de usos mixtos. Pensándolo más allá, el desarrollo de los inquilinatos como intervenciones de acupuntura urbana generaría proyectos a pequeña escala que se incorporarían al territorio, promoviendo la integración social de los habitantes y, así mismo, previendo la creación de territorios con ictivos (María Eugenia Martínez Delgado, en entrevista con Miriam Kuehler, 12 de junio del 2018).

investigación 64 – 65

Ahora bien, para hacer realidad estos potenciales es necesario empezar un debate multidisciplinario acerca de los inquilinatos, que tenga en cuenta aspectos sociales, económicos y jurídicos, como la convivencia, la regulación jurídica y programas de desarrollo personal; pero, principalmente, este debate debería incluir aspectos arquitectónicos y urbanos, como el mejoramiento y la rehabilitación de inquilinatos existentes y la construcción de nuevos, como vivienda social en arriendo. Lo anterior, con el n de responder a una demanda en aumento con ciertas dinámicas sociales especí cas.

propuesta arquitectónica habitacional

Ahora, con el n de demostrar los potenciales de esta forma de habitar y la hipótesis de que los inquilinatos son una problemática resultante de factores económicos y sociales que se re ejan en el aspecto espacial; entonces, si se plantean desde la arquitectura, tienen el potencial de convertirse en una alternativa digna de vivienda, se propone un proyecto arquitectónico con base en el entendimiento de la realidad social y el funcionamiento actual de la tipología del inquilinato.

El proyecto Hábitat Micro Temporal plantea un modelo de habitar colectivo que tiene como prioridad la integridad del individuo. Este parte del análisis especíco del barrio Siete de Agosto, donde por medio de cartografías sociales ( g. 5) se encontró la aparición de nuevos inquilinatos, debido a que este es un sector altamente comercial. La calle se convierte en el lugar de trabajo (trabajo informal) que atrae a una gran proporción de población migrante, y consigo, la aparición de inquilinatos (Abello Aldana 2020).

Dearq 31
Fig. 5_ Cartografia social del barrio Siete de Agosto. Fuente: Valeria Abello Aldana

La propuesta parte de comprender las dinámicas sociales actuales, proponiendo un sistema de micro habitar compuesto por unidades exibles, que no solo responden a las necesidades más básicas, sino que también pueden agruparse y desagruparse temporalmente, a n de responder a distintas clases de familia. Las unidades cuentan con los elementos mínimos necesarios para garantizar unas condiciones de vida adecuadas, haciendo que los espacios colectivos sean espacios potencializadores y no espacios indispensables. Se reinventa la forma de habitar en comunidad, además de funcionar adecuadamente en situación de pandemia.

hábitat micro temporal

El proyecto se implanta de tal manera que se aísla lateralmente del contexto existente y genera un espacio verde y permeable como se muestra en la gura 6. De esta manera, los bordes se desdibujan y la calle entra en el espacio, con el n de que esta forma de habitar se integre al tejido urbano. Por otro lado, teniendo en cuenta que los inquilinatos están surgiendo en diferentes puntos de la ciudad, se propone un sistema adaptable y replicable, donde después de un análisis morfológico y predial, se proponen tres módulos diferentes de cinco metros de ancho que funcionan hasta en el lote más angosto del lugar.

Los módulos ya mencionados se traducen en bloques de siete, nueve y once personas, debido a que se pretende minimizar el número de personas que viven juntas, para establecer círculos de con anza, reducir la inseguridad y crear comunidad. Estos bloques se adaptan dependiendo del largo del lote, y generan múltiples posibilidades ( g. 7). Así, puede aumentar el número de personas por predio, pero se mantiene el número de personas bajo el mismo techo.

investigación 66 – 67
Fig. 6_ Romper el límite. Fuente: Valeria Abello Aldana. CINCO METROS lote mínimo DIEZ METROS retranqueo unilateral DIEZ METROS retranqueo bilateral
Dearq 31
DIEZ METROS retranqueo bilateral

Existen tres tipos de implantación que, además de adaptarse al ancho del lote, como se observa en la gura 8, si se tiene un lote de mayor tamaño, es posible jugar con estas implantaciones, alternando los modulos para así generar un espacio dinámico que promueva la interacción humana, como se muestra en la gura 9. A gran escala, la apuesta urbana que tiene este modelo es romper la manzana de manera progresiva ( g. 10) y generar una grieta verde, o si se tiene un mayor número de lotes, un eje híbrido de espacio verde, vivienda y comercio, lo que se puede observar en la posible implantación de la gura 11. Por medio de zonas productivas en el primer piso, esta forma de habitar se vuelve parte de la dinámica socioeconómica del barrio, pero también una calle que es parte de la realidad del lugar y un elemento que genera vida urbana.

El proyecto está compuesto por unidades óptimas y unidades comunes. Aquí, las unidades individuales se complementan con espacios colectivos, mas no dependen de ellos, lo cual es fundamental en una situación de pandemia. Las unidades óptimas se plantean con base en una pregunta clave: ¿cuáles son los elementos mínimos necesarios para garantizar unas condiciones adecuadas de vida?

En primer lugar, iluminación y ventilación, que se consigue planteando una circulación perimetral capaz de asegurar que sin importar el lote o la implantación, siempre se contará, al menos, con el mínimo de estas ( g. 12). En segundo lugar, baño propio, ya que en los inquilinatos, espacios como este se convierten en lugares inseguros, principalmente para mujeres y niñas. Esto se logra por medio de la estructura espacial del bloque, donde el edi cio se compone a partir de un núcleo central, que optimiza la distribución de espacios, a tal punto que se conforman dos baños en el espacio de uno ( g. 13). A partir de este núcleo, se parte de la misma estructura espacial para conformar los tres bloques del sistema, como se puede evidenciar en la gura 14. Por último, para garantizar los elementos mínimos necesarios, todas las unidades cuentan con cocina propia, debido a la di cultad de comunizar este espacio, por problemas de salubridad y convivencia.

Ahora, más que lo mínimo, se quiere pensar en un hogar. La circulación se convierte en una extensión del espacio cerrado de la cual las personas se pueden apropiar. Cada unidad cuenta con un espacio abierto, espacio verde. De este modo, la circulación perimetral, más que ser un recorrido, es un lugar de encuentro, con diferentes tipos de nichos verdes, terrazas y huertas elevadas que sirven de sustento propio para las personas, como se aprecia en la gura 17.

Teniendo en cuenta las limitantes de área, el desnivel permite distintas relaciones espaciales, múltiples con guraciones y diversos usos, como espacios de estudio y trabajo. Del mismo modo, el mueble se convierte en un elemento fundamental que responde a la falta de espacio para almacenar, sin representar espacio adicional. De esta forma, el desnivel y el mueble hacen de las unidades espacios exibles que responden al hecho de que así como la población varía, sus necesidades también lo hacen. Además, se plantean muebles sencillos pero que, por sus medidas, cambian de uso dependiendo de la relación que adquieren con el cuerpo. Así, se proponen diez tipos de unidades diferentes, como se observa en la gura 15.

Las unidades de aproximadamente quince metros cuadrados pueden agruparse y desagruparse temporalmente, esto se debe a que no siempre se trata de una sola persona, sino también de familias enteras, donde el número de personas cambia. Lo anterior, responde a una de las principales lógicas de la migración, donde la cabeza de familia es quien viene primero y posteriormente trae a su familia (Banco Mundial 2018). Las unidades se agrupan y desagrupan por medio de un límite exible que no solo convierte el espacio, sino que también es una extensión del espacio en sí ( g. 16).

Fig. 7_ Adaptabiliad del sistema. Fig. 8_ Tipos de implantación. Fig. 9_ Versatilidad del sistema. Fig. 10_ Sistema potenciable.
investigación 68 – 69
Fuentes fig. 7-10: Valeria Abello Aldana.
Dearq 31

Fig. 11_ Posible implantación en el barrio Siete de Agosto.

Fig. 12_ Cortes transversales.

Fig. 13_ Estructura espacial.

Fig. 14_ Cortes longitudinales.

Fig. 15_ Catálogo de unidades óptimas.

Fig. 16_ Límite flexible = espacios temporales.

Fig. 17_ Espacio abierto.

Fuentes fig. 11-17: Valeria Abello Aldana.

investigación 70 – 71

Las unidades colectivas no son algo de lo que las personas dependen, sino elementos que potencializan el desarrollo humano ( g. 18). Se pretende repensar el espacio generando articulación social y resigni cando lo que los inquilinatos son hasta hoy, con el objetivo de hacer de esta forma de habitar una oportunidad para la población más vulnerable. El proyecto Hábitat Micro Temporal parte del entendimiento del individuo de una población en especí co, pero sin dejar de lado que este hace parte de una familia y de una comunidad. Esta es solo una de las múltiples formas en las que se puede repensar el inquilinato y la vivienda social en general. Se trata de reinventar sus bases, teniendo en cuenta las verdaderas necesidades; para así reinventar la manera de vivir ( g. 19) (Abello Aldana 2020).

conclusiones

El presente artículo trata el tema de los inquilinatos en Bogotá como forma de habitar, solución de vivienda y oportunidad urbana. Analiza sus lógicas sociales, sus características espaciales y sus dinámicas urbanas subyacentes, teniendo en cuenta el contexto actual de la crisis sanitaria. Igualmente, resalta sus potenciales como solución habitacional digna para comunidades vulnerables, a partir de re exiones teóricas y una propuesta arquitectónica, cuyo diseño no pretende ser una única solución a la difícil problemática, sino una exploración espacial que puede funcionar de punto de partida para futuras aproximaciones.

Se concluye que, aun cuando los inquilinatos representan una problemática socioespacial, también cuentan con distintos potenciales humanos y urbanos. Además de ser una de las soluciones de vivienda más acertadas en cuanto a dinámicas socioeconómicas, de ahí que más de 250.000 personas en condiciones de pobreza y vulnerabilidad vivan en inquilinatos en Bogotá. Por esta razón se considera que la solución no radica en su desaparición, sino en su mejoramiento y, a futuro, su potencialización.

Finalmente, se encuentra que la temporalidad, la colectividad y el micro habitar son estrategias resultantes de las condiciones sociales y económicas que, bien aplicadas, pueden entenderse como pautas de diseño, mas no limitaciones, que hacen de los inquilinatos una solución habitacional digna y asequible para esta población en especí co. De este modo, la arquitectura cuenta con un papel decisivo a la hora de repensar el inquilinato, por medio de distintas estrategias de concepción del espacio que puedan hacer de este, el hogar de la población más vulnerable.

Dearq 31
Fig. 18_ Unidades comunes. Fig. 19_ Hábitat micro temporal. Fuentes fig. 18-19: Valeria Abello Aldana.

bibliografía

1. Abello Aldana, Valeria. 2020. “Hábitat Micro Temporal”. Tesis de grado, Universidad de los Andes. https://issuu. com/valeriaabelloaldana/ docs/h_bitat_micro_ temporal

2. Álvarez, Mónica. 2003. “Los inquilinatos y su influencia en el deterioro urbano del barrio Las Cruces”. Tesis de maestría, Pontificia Universidad Javeriana.

3. Bähr, Jürgen y Günter Mertins. 1995. Die lateinamerikanische Großstadt. Darmstadt: Wissenschaftliche Buchgesellschaft.

4. Banco Mundial. 2018. Migración desde Venezuela a Colombia: Impactos y estrategias de respuesta en el corto y largo plazo. Washington.

5. “Casos de COVID-19 en Bogotá D.C”. 2020. Saludata. Acceso el día 11 de diciembre de 2020. https://saludata. saludcapital.gov.co/osb/ index.php/datos-desalud/enfermedadestrasmisibles/covid19/

6. CEHAP. 2006.

“Identificación y caracterización de los inquilinatos de San Benito, San Lorenzo y San Pedro de la ciudad de Medellín y formulación de propuestas de gestión”. Trabajo investigativo, Universidad Nacional de Colombia. https://repositorio.unal. edu.co/handle/unal/51903

7. Cepal (Comisión Económica para América Latina y el Caribe). 2020. “El desafío social en tiempos del COVID-19”. Informe especial. Washington: Naciones Unidas. https://repositorio. cepal.org/bitstream/ handle/11362/45527/5/ S2000325_es.pdf

8. Coupé, Françoise. 2018. “Inquilinatos en Latinoamérica: La ciudad migrante, solitaria e informal”. LA Network, 3 de julio del 2018. https:// la.network/inquilinatoslatinoamerica-ciudadmigrante-solitaria/

9. Cuervo-Calle, Juan José. 2009. “Una aproximación desde el habitar a la vivienda compartida en Niquitao, Medellín”. Cuadernos de Vivienda y Urbanismo 2, n.º 3: 38-71.

10. Gilbert, Alan. 2005. “Vivienda en alquiler en Colombia: Algunas reflexiones iniciales”. En Vivienda, habitabilidad y sostenibilidad, editado por Alberto Saldarriaga Roa et al., 189-217. Bogotá: Pontificia Universidad Javeriana.

11. Harms, Hans, Peter Pfeifer y Wiley Ludeña. 1996. Vivir en el “centro”: Viviendas en inquilinatos en metrópolis latinoamericanas Hamburg: Technische Universität HamburgHarburg.

12. Hernández, Juan Fernando. 2015. “Retrospectiva y reconocimiento del inquilinato en Medellín”. Escenarios: Empresa y Territorio 4, n.º 4: 81-97. https://www. academia.edu/34561346/ Retrospectiva_y_ reconocimiento_ del_inquilinato_en_ Medell%C3%ADn

13. “La resistencia de los emberá”. 2018. Bogotá Indígena. 23 de mayo del 2018. https://www. agendapropia.co/ bogotaindigena/drama-em bera?platform=hootsuite

14. Moreno, Camilo. 2016. “Adaptación del patrimonio cultural a vivienda comunal en arriendo: ‘Inquilinatos’ en el sector del Voto Nacional, Bogotá”. Vivienda & Ciudad 3: 3950. https://revistas.unc. edu.ar/index.php/ReViyCi/ article/view/16265/16116

15. Ocampo Ríos, Sandra Cristina. 2013. “Lógicas de reproducción del inquilinato en Medellín: Entre permanencias y tránsitos”. Tesis de maestría, Universidad Nacional de Colombia. https://repositorio.unal. edu.co/handle/unal/75147

16. “Plan piloto para mejorar inquilinatos”. 1994. El Tiempo, 9 de febrero de 1994. https://www. eltiempo.com/archivo/ documento/MAM-37475

17. Secretaría Distrital de Planeación. 2015. “Encuesta multipropósito 2014”. Alcaldía Mayor de Bogotá. http:// www.sdp.gov.co/sites/ default/files/boletin_ resultados_encuesta_ multiproposito_2014.pdf2

18. Secretaría Distrital de Planeación. 2017. “Caracterización socioeconómica ENCUESTA SISBÉN III”. Alcaldía Mayor de Bogotá. http://www.sdp.gov. co/sites/default/files/ final_caracterizacion_ diciembre_2017.pdf

investigación 72 – 73

Entrevista a Jacob van Rijs

Interview with Jacob van Rijs

Jacob van Rijs Cofundador y arquitecto principal de MVRDV Róterdam, Países Bajos

Ignacio Borrego Gómez-Pallete estudio@ignacioborrego.com Technische Universität Berlin, Alemania

Juan Manuel Medina del Río jm.medinad@uniandes.edu.co

Universidad de los Andes, Colombia

DOI: https://doi.org/10.18389/dearq31.2021.07

Entrevista
Dearq 31

A lo largo de la historia, el programa residencial, y especialmente la vivienda colectiva y social, ha sido un campo de investigación muy fructífero para la arquitectura y una herramienta muy e caz para la con guración de las ciudades.

Cada vivienda es una célula necesaria en el tejido urbano y su consideración como unidad estructuradora no solo de la vida doméstica, sino también del espacio colectivo, determina el éxito de las distintas intervenciones. En la medida en que con uyen en su diseño no solo los aspectos funcionales domésticos y constructivos, sino la escala urbana, desde los puntos de vista social y medioambiental, permite, con los mismos recursos, generar una ciudad más amable y habitable.

Los agentes que participan en el diseño de la vivienda no siempre están presentes en las decisiones urbanísticas preliminares y, generalmente, la rentabilidad de las operaciones condiciona el resultado, al limitar la calidad potencial del conjunto a favor del aspecto comercial a corto plazo.

La diversidad tipológica e integración de diferentes usos en un mismo edi cio, la consideración de los espacios colectivos como un valor adicional al de las viviendas que los disfrutan y la integración del espacio público y el privado como una mejora en la calidad del espacio urbano, que repercutiría en el valor de las viviendas, va contra unos agentes económicos determinados por una rentabilidad a corto plazo y una reglamentación anticuada e in exible. A esta inercia se unen en algunos contextos culturales las reticencias de los propios habitantes a la disolución de los límites de la propiedad y el disfrute de los espacios colectivos.

La vivienda debe evolucionar para adaptarse a las necesidades contemporáneas de una población más diversa y con estructuras más complejas. En pro de ello, parece necesario fomentar los laboratorios en los cuales se experimente para contrarrestar la dinámica de un sector que obstaculiza de forma generalizada cualquier tipo de innovación. No hay avance sin riesgo, y acometer la vivienda colectiva de nuevas maneras es necesario para mejorar nuestro entorno doméstico y poder descubrir la vivienda y la ciudad por venir.

Cómo citar: van Rijs, Jacob, Ignacio Borrego Gómez-Pallete y Juan Manuel Median del Río. "Entrevista a Jacob van Rijs". Dearq no. 31 (2021): 74-78. DOI: https://doi.org/10.18389/dearq31.2021.07
Fig. 1_ Silodam en Amsterdam, Holanda. 2003. Proyecto de MVRDV © Rob 't Hart.
investigación 74 – 75
Fig. 2_ Patio Island en La Haya, Holanda. 2005. Proyecto de MVRDV © Rob 't Hart.

A pesar de todo, la investigación en vivienda colectiva existe, y aunque deberíamos apostar por una audacia mayor en el sector residencial, también debemos hacernos eco de las numerosas experiencias experimentales que se desarrollan en diferentes niveles y geografías urbanas. En este sentido, parece especialmente oportuno acudir a una o cina como la de MVRDV, que en los últimos treinta años se ha caracterizado por acometer cada proyecto residencial con una vocación desprejuiciada y rompiendo moldes constructivos, tipológicos y urbanos.

Desde su proyecto ganador, en 1991, de un Europan en Berlín, pronto comenzaron a materializar sus visionarias propuestas residenciales como el Silodam, en Ámsterdam, y El Mirador, en Madrid. Hoy en día realizan proyectos por todo el globo y se enfrentan a todo tipo de circunstancias económicas y sociales sin perder su voluntad de atención a la diversidad.

Aprovechamos una cita con Jacob van Rijs, uno de los tres fundadores y directores de MVRDV, para compartir y comentar con él las cuestiones que abordamos en esta nueva edición de Dearq

Ignacio Borrego y Juan Manuel Medina (IB + JMM): Considerando su amplia experiencia en vivienda en contextos sociales, culturales y tecnológicos muy diferentes, ¿cuál ha sido su aprendizaje de esta diversidad? ¿Adapta de alguna manera su discurso o aproximación dependiendo del contexto en el que está trabajando?

Jacob van Rijs (JvR): En muchos de nuestros proyectos de vivienda, tratamos de averiguar qué grado de diversidad ofrece la mejor combinación. Diversidad es una palabra con muchos signi cados y realidades. Puede referirse al tamaño, precio, forma, material, grupo social. Cómo mezclar y qué mezclar es siempre la cuestión. El contexto social y político también cumple un papel importante. En los Países Bajos, los ayuntamientos hacen parte de esto, y recientemente los aspectos de asequibilidad se han convertido en un gran problema en muchas ciudades. La diversidad de precios podría ser una herramienta para crear una mejor combinación y calidad. De este modo, en caso de que haya menos diversidad en precio y tamaño, puede implementarse más variedad en el diseño y la tipología.

Dearq 31
Fig. 3_ Traumhaus Funari en Mannheim, Alemania. 1997. Proyecto de MVRDV © MVRDV.

(IB + JMM): ¿Qué papel desempeña la exibilidad y progresividad de los espacios habitables, espacios productivos, colectividad, etc.? Tiene desarrollos profesionales y académicos en programas híbridos y trabajo en casa. ¿Qué tan necesario es este acercamiento para la vivienda?

(JvR): Recientemente, la edi cación abierta (open building) se ha convertido en un tema popular entre los arquitectos en los Países Bajos. El “padrino” Habraken ha inspirado a una nueva generación que está combinando el concepto de edi cación abierta con durabilidad y sostenibilidad. Las nuevas colectividades de viviendas —cooperativas privadas— también, en su mayoría por necesidad, se están convirtiendo en una nueva forma de desarrollar un edi cio en conjunto. La presión sobre el mercado de la vivienda, que ahora está en todas partes, pero bastante intensa en los Países Bajos, hace posibles nuevas soluciones.

(IB + JMM): ¿Es la con guración de la vivienda un elemento clave para regular los desplazamientos y la productividad remota en las grandes ciudades?

(JvR): ¿Se re eren a trabajar y vivir en el mismo lugar? Tiene dos lados. Las áreas para vivir y trabajar pueden volverse más mixtas y animadas. Y, por otro lado, se puede ver cómo la gente se va de la ciudad, ya que es posible estar en la o cina menos días a la semana y aceptar un viaje más largo. La división estándar entre el centro de la ciudad y los suburbios adormecidos se vuelve menos blanca y negra. Tanto la ciudad como el suburbio pueden bene ciarse de cierta manera.

(IB + JMM): ¿Qué opina sobre de la asequibilidad, la autoconstrucción y la vivienda mínima como regenerador del tejido social?

(JvR): A ver, es interesante, pero en muchos casos estos desarrollos son resultado de los problemas del mercado inmobiliario. Se necesita más experimentación, ya que el mercado de la vivienda está literalmente estancado y estas iniciativas pueden ser inspiradoras y son necesarias para crear nuevas soluciones que podrían ser un agente de cambio.

investigación 76 – 77
Fig. 4_ Parkrand en Amsterdam, Holanda. 2006. Proyecto de MVRDV © Rob 't Hart.

(IB + JMM): ¿Qué opina de la intervención participativa como método de construcción de programas de vivienda?

(JvR): Están surgiendo muchos buenos ejemplos. Hace un par de años, el concepto de klus-houses (casas de bricolaje) tuvo mucho éxito en Róterdam. Se podía comprar una casa grande en mal estado por un precio bajo con la obligación de reformarla para así poder vivir en ella. La propuesta no fue interesante para los promotores o inversores, pero resultó en una mejor cohesión social en estos proyectos y en los barrios.

(IB + JMM): ¿Cuáles son los principales desafíos de la vivienda y su impacto ambiental?

(JvR): La asequibilidad, cómo asegurarse de que el aumento de los costos de materiales y mano de obra no conduzca a una reducción de la calidad de vida, porque los apartamentos se vuelven demasiado pequeños o costosos. Podría abrir nuevas direcciones, como se discutió, pero también requiere esfuerzos adicionales de muchos.

Y la ubicación, ubicación, ubicación... Es lo que dicen los agentes inmobiliarios. Los precios del suelo están subiendo demasiado en muchas ciudades.

Sin embargo, cuando no hay nada disponible, cualquier lugar se vuelve interesante. Esto signi ca que los vecindarios difíciles ahora se están desarrollando más rápido que otros. Algunos dicen que eso es gentri cación, pero eso es demasiado simple. También tiene un efecto secundario positivo, aunque se deben tener en cuenta las desventajas.

(IB + JMM): Gracias, Jacob, por su tiempo y sus re exiones sobre la exibilidad, la colectividad, el medio ambiente, la productividad y las personas. Lo hemos contactado con motivo de este número especial de Dearq sobre la vivienda y le agradecemos por inspirarnos con su actividad profesional, que reúne un acercamiento visionario de la arquitectura con la realidad.

Dearq 31
Fig. 5_ WoZoCo en Amsterdam, Holanda. 1997. Proyecto de MVRDV © Rob 't Hart.

Housing 2.0

Housing 2.0

Proyectos

Vivienda 2.0. Imaginando un futuro

Housing 2.0. Imagining a future

DOI: https://doi.org/10.18389/dearq31.2021.08

El mundo avanza, se desarrolla y transcurre a velocidades nunca antes conocidas. En esta vorágine desmedida, la arquitectura intenta —aunque tímida— acompañar su tiempo con velocidades asimétricas y aproximaciones más o menos exitosas a las demandas más urgentes. La superpoblación mundial, el consumo de recursos, la falta de agua, los desplazamientos humanos o las reclusiones por efecto de la pandemia han sido retos de los últimos años a los que la arquitectura ha intentado responder, vacilante e indecisa.

La vivienda hoy, en su condición de célula originaria del tejido del hábitat humano y al mismo tiempo punto de partida del que surge el entramado de la ciudad, cumple una función trascendental en la ecuación arquitectónica que rige el espacio construido. Esta función determinante la convierte en un argumento clave esgrimido en los debates sociales y políticos, económicos, de normativa y sostenibilidad más signi cativos de nuestra era.

El panorama sociopolítico de las últimas décadas del siglo XX y principios del siglo XXI supuso, en el panorama pos-Guerra Fría, un giro profundo hacia la exaltación del desarrollo del individuo sobre el colectivo. Un giro que gravita, fundamentalmente, en torno a la idea de una sociedad meritocrática que ensalza el éxito y el ascenso social como aspiracional de vida. Los gobiernos de los países desarrollados centraron sus políticas sociales en la “igualdad” de oportunidades entre sus ciudadanos para lograr un territorio de libre competencia. Esta política individual y centrada en el mérito como justi cación del éxito, que hace al ser humano merecedor de lo que consigue con su preparación, trabajo y esfuerzo (con sus virtudes), trae consigo un lado oscuro: la sociedad de los ganadores y

proyectos 80 – 81
Cómo citar: Medina del Río, Juan Manuel e Ignacio Borrego Gómez-Pallete. "Vivienda 2.0. Imaginando un futuro". Dearq no. 31 (2021): 78-119. DOI: https://doi.org/10.18389/dearq31.2021.08

los perdedores. Los ganadores, autocomplacidos, son los que se prepararon y lograron acumular riqueza y reconocimiento y los perdedores son aquellos no lo lograron. Esta división entre ganadores y perdedores ha provocado gran parte de las revoluciones sociales de nuestra era, ya que los primeros entienden que “se merecen” lo que tienen y esto hace difícil que puedan pensar en términos de empatía sobre aquellos que no se esforzaron lo su ciente. Por otro lado, los perdedores proyectan una dosis de resentimiento sobre aquellos que acumulan el mérito y las ganancias propias de la globalización y los avances tecnológicos (Sandel 2020).

La consecuencia económica de esta tendencia sociopolítica es que las diferencias sociales y la brecha entre la riqueza y la pobreza se disparó. Así, el 1 % más rico de la población mundial posee más del doble de riqueza que 6900 millones de personas, y ello se acentúa de manera más grave en los países en desarrollo (Oxfam Internacional 2021). En lo referente a la vivienda, los “ganadores” de nuestra era —aquellos que supieron adaptarse a la globalización y al avance del tiempo— adquirieron con éxito gran parte del parque inmobiliario de vivienda en el mundo, supieron administrarlo y acumularlo, poniéndolo al servicio del resto de sus ciudadanos; entre tanto, los “perdedores” —aquellos que no lograron generar lo su ciente con sus propios méritos— apenas lograron generar, en el mejor de los casos, una deuda vitalicia asociada a la consecución de un espacio mínimo en el que vivir, un esquema de arriendo que supedita su quehacer vital hasta convertirse en una losa económica de difícil manejo o, incluso, en el caso de las poblaciones socioeconómicamente más golpeadas de los países en desarrollo, un esquema de autoconstrucción no regulada y carente de condiciones vitales dignas.

Esta brecha social y económica obliga a una urgente y profunda re exión acerca de la importancia de lo colectivo sobre lo individual, del derecho sobre el bien común, de la arquitectura diseñada para todos y de la fuerza de la colectividad (el hombre y no el Hombre) como motivadora de “espacios comunes y lugares públicos donde aprendemos a negociar y tolerar nuestras diferencias, donde llegamos a interesarnos por el bien común” (Sandel 2020, 291).

Si nos jamos en lo que ocurre con las discusiones sobre cómo se debían construir las viviendas de nales del siglo pasado y hasta nuestros días, nos encontramos con el argumento de la urgencia de las posguerras europeas del siglo XX como desencadenante de las primeras oleadas de viviendas sociales modernas. Esta urgencia social y económica motivó los primeros e incipientes avances técnicos necesarios para el nacimiento de las normas prescriptivas que sirvieron como arranque de una nueva forma de proyectar hogares. Hasta el día de hoy, normas urbanísticas, desarrollos constructivos predeterminados y documentos de idoneidad técnica validados suponen una evolución moderna de lo que antiguamente signi caban los tratados de construcción y han ido condicionado las pautas de diseño casi de manera dogmática. Una especie de autosu ciencia justi cada o de complacencia de diseño, por la cual seguir las guías, se convierten de manera casi dogmática en el camino de autorreconocimiento y validación proyectual. Este hiperdesarrollo del pensamiento técnico provoca, igualmente, una deuda pendiente sobre las preguntas acuciantes de nuestro tiempo.

Con la expresión vita activa me propongo designar las tres actividades fundamentales del ser humano: labor, trabajo y acción… De las tres actividades la acción es la única actividad que se da entre los hombres sin la mediación de cosas o materia y corresponde a la condición humana de la pluralidad, al hecho de que los hombres, no el Hombre, vivan en la Tierra y habiten el mundo.
Hannah Arendt
Dearq 31

En términos naturales, la conciencia colectiva sobre la nitud del soporte habitable y sus recursos naturales arranca también el siglo pasado, en la década de 1980, y se hace verdaderamente visible en este siglo XXI (Bi ani 1997). Las discusiones naturalistas que comienzan desde las inquietudes de organizaciones independientes trascienden hasta impregnar los debates políticos de nales de siglo con las consabidas cumbres internacionales sobre el estado de la Tierra y los compromisos que los países rmaron para sostener el avance del deterioro galopante del planeta (IUCN, UNEP y WWF 1991). Estos primeros avances pusieron sobre la mesa la dicotomía existente entre crecimiento y sostenibilidad, algo que parecía antagónico e inalcanzable y, sin embargo, actualmente, la agenda de desarrollo sostenible de los territorios hace parte del debate político, en mayor o menor medida, de los gobiernos de todo el mundo. La vivienda es causante de gran parte de las emisiones de dióxido de carbono al ambiente y, por ello, las normativas de los países recorren un camino de reconocimiento inexcusable de la construcción en términos de mitigación, adaptación, resiliencia y sustentabilidad (Martin et al. 2013). Este pensamiento global obliga a una re exión profunda acerca del papel de la vivienda como respuesta al futuro medioambiental y social: la huella ecológica y la habitabilidad.

la vivienda 2.0

Sentadas las bases teóricas del problema en sus diferentes facetas, la publicación de un número de arquitectura dedicado a la vivienda en el panorama de incertidumbre y reto actual se convierte en un ejercicio de discernimiento sobre las preguntas legítimas que miran al futuro con determinación y responsabilidad. Estas profundizan sin soslayo las diatribas del momento y se sustancian fundamentalmente en dos: ¿es la vivienda actual proyectada por sus habitantes y para ellos? ¿Responde la vivienda a un mundo en crisis social, política y medioambiental?

Este número de la revista Dearq es una llamada a mirar la vivienda dentro de un mundo marcado por profundas desigualdades latentes y tiene que ver con una alternativa, con un entendimiento sobre la necesidad de volver a la raíz del problema y a la razón más profunda de ser del hecho de la vivienda y sus retos trascendentales como ejercicio táctico de arquitectura: la persona, como detonante del hecho de habitar; la intervención participativa como método de diseño; la alta densidad como garantía de infraestructuras públicas e cientes; la exibilidad y progresividad de adaptación a los cambios futuros; la productividad, a través de la compatibilidad de usos dentro de la vivienda para reducir los desplazamientos pendulares; la asequibilidad, para regenerar el tejido social; la propuesta material sincera; la vivienda como ejercicio de inserción urbana y la renovación de áreas degradadas de la ciudad; lo material y su relación con los nuevos procesos constructivos, y, en de nitiva, la sostenibilidad social y ambiental como ejes principales de mitigación de las consecuencias del hecho construido.

Esta mirada compleja, basada en los desafíos del mañana, derivó en la selección de tres proyectos de arquitectura que sustentan, de un modo u otro, los argumentos proyectuales deseados y nos sirven de guía para la discusión de cada reto de manera particular. El recorrido detenido por estos tres casos de estudio marca la pauta discursiva global del texto y nos permite, a su vez, visualizar cómo cada uno de los desafíos son deseables y, sobre todo, posibles.

82 – 83 proyectos

Los concursos, como el convocado por el instituto Eduardo Torroja (España, 1949), cuyo objetivo era trazar el camino de la industrialización en España, o en el ámbito Latinoamericano, el concurso Previ (Perú, 1960), iniciaron una serie de consultas para explorar nuevas formas de habitar en las migraciones campo-ciudad y fueron caminos pioneros en la búsqueda de nuevos imaginarios en vivienda.

vivienda 2.0 (1): la persona , lo progresivo, lo asequible, lo material , lo replicable y lo común

Un concurso sobre vivienda social, como el convocado en Hidalgo (México), y liderado por un Laboratorio de Investigación y Experimentación Práctica en Vivienda como es Infoavit (México), desencadenó, como ya ocurrió en el pasado,1 una suerte de preguntas pertinentes y de experimentación aplicada en vivienda, un imaginario de nuevas oportunidades para Latinoamérica. El promotor de la idea reunió a las mejores mentes pensando en la arquitectura del mañana en México y, por extensión, en Latinoamérica. Fueron 32 propuestas para 32 locaciones distintas del vasto territorio de México, construidas como prototipo de variaciones utópicas de (pequeños) grandes cambios en torno a una forma de habitar Latam.

Una de esas propuestas es el proyecto del Estudio Tatiana Bilbao, que propone el elemento mínimo construido como base nuclear del rito del habitar. Una célula destinada a la reproducción viva, autocontenida y expandible; un modelo teselar de multiplicación a base del ritmo entre lo construido y lo vacío; una suerte de secuencia dentro-fuera que proyecta una progresividad aleatoria e íntima. La célula es (in)dependiente y con otras tres (in)dependencias conforma la unidad básica, el átomo estable dispuesto por las tensiones propias de su carga y signo, un conjunto de miembros activos de una familia de elementos construidos que contienen lo íntimo y que enmarcan lo relacional en una suerte de composición simbiótica indisoluble. Pero, adicionalmente, como si de un átomo inestable se tratara, muestra la cara opuesta libre para atraer otro electrón y así equilibrarse, uniéndose a otra unidad habitacional, en una “relación de oposición cuyos principios no son otros que aquellos que organizan tanto el espacio interior de la casa como el resto del mundo, y, de manera más general, todos los dominios de la existencia” (Bourdieu 2007, 428). Los átomos se unen entre sí con la carga necesaria (espacio) que mantiene la distancia justa, la distancia que provoca el espacio social. Lo progresivo es, por tanto, compatible con lo replicable y el bien común En esta disposición de crecimiento exponencial, un nuevo imaginario de vacíos poderosos en su justa tensión entra a ser el protagonista del desarrollo, ya que no se replican los llenos, sino los vacíos y el aire que mantiene los llenos compensados. Esta suerte de replicabilidad virulenta propone que lo social (lo vacío) sea el agente multiplicador, y que lo íntimo (lo construido), la consecuencia particular que da cabida a la habitabilidad del individuo, al reconocimiento de lo personal. La arquitectura al servicio de la búsqueda del bien común propagado, el aire que se convierte en el lugar donde se da la “condición humana de la pluralidad” (Arendt 1958, 23), en encuentro de personas dos a dos, cuatro a cuatro, comunidad a comunidad.

El proyecto se decanta también por el reto de la asequibilidad Una materialidad sincera y elemental que responde a su territorio y que no esconde su realidad, sino que se muestra poderosa, cede el protagonismo a lo accesible frente a lo presumible: iniciar es fundar, lo demás son sueños. A partir de la “célula inicial asequible” (la factible), la imaginación y el tiempo determinarán el futuro espacial del conjunto y de las relaciones. Lo asequible es fundar, es dar nombre al espacio y marcar las reglas del crecimiento; por eso, esta primera célula fundadora, descarnada y asequible, da nombre a un futuro de progreso,

Fig. 1_ Apan Housing. Vivienda Mínima Ocoyoacac, México, 2017. Tatiana Bilbao y socios 1.
Dearq 31

iteración y composición formal diverso para nuevos habitantes, nuevos vacíos, nuevas relaciones. Un plan arquitectónico en complicidad con el tiempo.

Llenos y vacíos y progresividad (des)programada como recurso compositivo con vida propia para alternar privacidad y comunidad en un territorio con tiempo. Células mínimas fundadoras como germen de una asequibilidad replicable. Y, por último, el bien común como generador de la forma de asociación espacial, un proyecto, en de nitiva, que busca responder a una suerte de preguntas del mañana.

vivienda 2.0 (2): la regeneración urbana , la persona y el colectivo, la intervención participativa , el tiempo, productividad y la compatibilidad de usos

Dentro de la estrategia de regeneración urbana (brown elds) de la ciudad de Barcelona (NICOLE 2011), en un ejercicio responsable de pensamiento circular del (des)uso del suelo industrial, surge una iniciativa de personas (ciudadanos) en torno a unos lugares comunes de vida, unos colugares, entendidos como “aquellos espacios que articulan lo público —la ciudad, el entorno urbano, el barrio— con lo privado, la casa” (Rocca 2011). El disruptivo punto de partida pone en entredicho el camino comúnmente establecido y esquiva las lógicas predeterminadas del mercado: la presión del suelo, la propiedad privada, la toma de decisiones y el consabido marco de actores habituales en la gestión de las viviendas de nuestro tiempo, en lo que se puede considerar una creación legítima que parte de sus legítimos usuarios.

Pensar en un colectivo o “conjunto de personas que tienen problemas e intereses comunes”,2 es pensar en la unidad básica nuclear de la parte pública del ser humano. Ello nos lleva a la pregunta de Sandel (2020) sobre el bien común, y nos permite adivinar que la intervención participativa es quizás la forma más democrática para la conceptualización de nuestros espacios domésticos: los privados y, sobre todo, los compartidos. En primer lugar, porque esquiva la promoción de hogares para usuarios fantasma, usuarios tipo a priori, y, en segundo lugar, porque pone de mani esto la importancia sobre el orden de los factores: pensar antes por qué y, sobre todo, para quién se hacen los espacios de arquitectura antes de proyectarlos e incluso materializarlos. Ello parece una buena estrategia para que los espacios resultantes sean lugares para todos, exibles y afectados por su uso tornadizo en el tiempo. En todos los procesos de pensamiento y construcción, la persona (el hombre) está primero, está antes que la vivienda y, por tanto, los anhelos son primero y los espacios después, en una suerte de fórmula mágica que desencadena el sentido de pertenencia y comunidad: “este es mi sitio y esta es mi gente” (Garriga citado en Rodríguez Bosh 2020).

La propiedad del uso, más allá de la propiedad privada, ha provocado una amalgama de posibilidades cambiantes que dibujan un edi cio construido como una infraestructura abierta que permite adaptarse en el tiempo a las necesidades de sus habitantes. Esta estructura de propiedad conlleva un alineamiento comprometido de los usuarios con la vida comunitaria y el consenso para el uso de los recursos espaciales y obliga a la inte2.

“colectivo”, sustantivo. Definición tomada de Oxford Languages.
84 – 85 proyectos
Fig. 2_ Cooperativa de vivienda La Borda. Barcelona (España), 2014

“La pobreza energética se refiere a la situación en la que un hogar es incapaz de pagar una cantidad de energía suficiente para la satisfacción de sus necesidades domésticas y/o cuando se ve obligado a destinar una parte excesiva de sus ingresos a pagar la factura energética de su vivienda” (Asociación de Ciencias Ambientales s. f.).

racción continua y el “crecimiento juntos”, en torno al espacio compartido, un ejercicio comprometido, en de nitiva, de exibilidad y convivencia, que promueve los espacios productivos a través de la compatibilidad de los usos comunales. El proyecto es más un conjunto de reglas de relación que el resultado construido de un proceso lineal de pensamiento arquitectónico típico, ya que estas reglas determinarán el uso en el tiempo, gestionadas por el entorno, las necesidades y las condiciones cambiantes de los habitantes y sus particularidades; contrario a lo proyectado: estático y predeterminado.

La materialización de un proyecto colectivo como el presentado es también una oportunidad para la sostenibilidad en su marco más amplio, aquel que afecta lo social, lo económico y lo ambiental. En lo social, como ya fue descrito, gracias a un ejercicio inteligente y comprometido con la intervención participativa. En lo económico es un proyecto construido pensando en el poder adquisitivo de su comunidad, pensado por fases, con una construcción inicial de lo mínimo y con la materialidad sincera mínima y descarnada que pueda ser complementada por sus usuarios en el tiempo a medida que se pueda. Y en lo ambiental, porque gracias al diseño de un conjunto de estrategias ambientales pasivas, construido con materiales de baja huella ecológica, es pensado como un contenedor de vida asequible que lucha contra la pobreza energética3 con un consumo casi nulo y que regula la energía consumida con la producida.

Ello, en últimas, es una intervención participativa que despliega el poder de la iniciativa colectiva como arma de pensamiento, asertividad exible, espacios productivos y compatibilidad de usos en un ejercicio de regeneración urbana que pone de mani esto que la densidad edi cada puede ser sinónimo de desarrollo sostenible.

vivienda 2.0 (3): la inserción urbana y los desplazamientos pendulares, el reciclaje y lo temporal , lo material y los procesos constructivos

Las ciudades consolidadas de todo el mundo sufren de un régimen de movilidades pendulares perpetuas e insostenibles (Dirección de Análisis y Programación Sectorial de la Vicepresidencia de Infraestructura de CAF 2011). La presión del suelo en los centros urbanos y la condición in exible de lo inmobiliario hacen que las personas mermen su calidad de vida a razón de interminables desplazamientos; por ello, la vivienda planteada en el centro se presenta en este proyecto de arquitectura táctica como una oportunidad de inserción urbana que salta a nuestra imaginación desde lo anecdótico hacia lo estratégico, por arte y magia del pensamiento sistémico y la escalabilidad. Este “sencillo ejercicio” se convierte en un prototipo replicable de captura de vacíos de los centros urbanos y, en general, de los restos espaciales donde aplicar el sentido de oportunidad de la regeneración urbana inteligente del futuro. Una esquina baldía se convierte en el lugar ideal para prototipar el relleno formal, la

3.
Dearq 31
Fig. 3_ Aprop Ciutat Vella, Eulia Arkitectura, Barcelona (España)

pieza que falta, que propone una segunda vida a la medianera y que reconstruye el rastro de lo sobrante. Un ejercicio de arquitectura que ocluye el vacío descon gurado y que restituye el paramento en un ejercicio de acupuntura morfológica.

De nuevo, el pensamiento material se vuelve estrategia conceptual replicable: la reutilización de estructuras metálicas recicladas, espacios otrora móviles que, acostumbrados a transportar enseres, sufren una revisión estética para inmovilizarse y servir como hogar temporal de personas que se mueven, que vienen y van, como lo hacen los contenedores que ahora los albergarán, al menos por un tiempo. Este viaje de ida y vuelta entre lo temporal (nosotros) y lo atemporal (lo construido), resuelto con materiales que antes se movían y hoy viven una segunda vida al servicio del habitar en el centro de las ciudades, habla de las segundas oportunidades de los materiales (y los espacios) reciclados.

Pero también nos habla de las nuevas formas de afrontar el hecho de construir, de lo sostenible y lo inteligente y, en de nitiva, de la economía circular táctica en búsqueda de procesos constructivos de montaje y desmontaje, de ensamblados y tornillos, de aquellos procesos que permiten soñar que la arquitectura un día estará y otro día se marchará, dejando una estela de lo que hubo, personas que habitan temporalmente un lugar de la ciudad.

imaginando un futuro. conclusiones

La forma de revisar estos proyectos de arquitectura buscando una huella del cambio es una propuesta de mirada múltiple y compleja, tras el rastro de nuevos imaginarios más empáticos y sensibles que permitan renovar nuestro compromiso con la bella disciplina de proyectar lugares para el habitar. La vivienda responde, como hemos visto, a temas tan diversos y trascendentales como son los relacionados con lo cotidiano y, al tiempo, con lo social, lo asequible, pero con sostenibilidad, y desde la unidad hasta la ciudad.

Estos proyectos nos permiten volver a las preguntas, aquellas que se planteaban al principio del ejercicio: ¿responde la vivienda a un mundo en crisis social, política y medioambiental? Y, de manera un poco más precisa, ¿es la vivienda actual proyectada por sus habitantes y para ellos?

Una mirada nueva de la vivienda es necesaria para acercarnos a una vida deseable en un futuro incierto. El impacto de la arquitectura nos obliga a orientar el foco de la innovación hacia el planeta y sus habitantes, con mirada compleja y sistémica, pero sobre todo con una vuelta al pensamiento antropocéntrico y de la ética del medio ambiente. Si bien los tres proyectos de arquitectura revisados no parecen la solución completa a las preguntas planteadas, son capaces de provocar, como poco, un cosquilleo, una leve corriente de esperanza en que el camino está marcado y, en de nitiva, el convencimiento de que la arquitectura táctica de vivienda bien pensada puede ser la solución.

bibliografía

1. Arendt, Hannah. 1958. La condición humana Chicago: University of Chicago Press.

2. Asociación de Ciencias Ambientales. s. f. “Qué es la pobreza energética”. https://www. cienciasambientales.org. es/index.php/ique-es-lapobreza-energetica

3. Biffani, Paolo. 1997. Medio ambiente y desarrollo sostenible Guadalajara: Universidad de Guadalajara.

4. Bourdieu, Pierre. 2007. El sentido práctico. Anexo: La casa o el mundo dado la vuelta. Buenos Aires: Siglo XXI.

5. Dirección de Análisis y Programación Sectorial de la Vicepresidencia de Infraestructura de CAF. 2011. Desarrollo urbano y movilidad en América Latina. s. l.: Corporación Andina de Fomento (CAF). https://scioteca. caf.com/bitstream/ handle/123456789/419/ omu.pdf?sequence=1&isAll owed=y

6. IUCN, UNEP y WWF (Unión Mundial para la Naturaleza, Programa de las Naciones Unidas para el Medio Ambiente y Fondo Mundial para la Naturaleza). 1991. Cuidar la Tierra: Estrategia para el futuro de la vida Gland, Suiza: Earthscan.

7. Martin, Carlos, Gisela Campillo, Hilen Meirovich y Jesús Navarrete. 2013. Mitigación y adaptación al cambio climático a través de la vivienda pública: marco teórico para el diálogo regional de políticas sobre cambio climático Banco Interamericano de Desarrollo División

de Cambio Climático y Sostenibilidad. https://publications. iadb.org/publications/ spanish/document/ Mitigaci%C3%B3n-yadaptaci%C3%B3n-alcambio-clim%C3%A1ticoa-trav%C3%A9s-de-lavivienda-p%C3%BAblicaMarco-te%C3%B3ricopara-el-Di%C3%A1logoRegional-dePol%C3%ADticas-sobreCambio-Clim%C3%A1ticodel-BID.pdf

8. NICOLE (Network for Industrially Contaminated Land in Europe).

2011. “Environmental Liability Transfer in Europe: Divestment of Contaminated Land for Brownfield Regeneration”.

9. Oxfam Internacional. 2021. “Cinco datos escandalosos sobre la desigualdad extrema global y cómo combatirla”. https://www. oxfam.org/es/cinco-datosescandalosos-sobre-ladesigualdad-extremaglobal-y-como-combatirla

10. Rocca, María Elisa. 2011. “Sarg Fabric: Hacia una arquitectura del co-lugar”. Documento presentado en las IX Jornadas de Sociología. Facultad de Ciencias Sociales, Universidad de Buenos Aires, Argentina.

11. Rodríguez Bosch, Marta. 2020. “‘Cohousing’: construir comunidad”. La Vanguardia, 1.º de marzo. https://www.lavanguardia. com/magazine/estilo/ cohousing-construircomunidad.html

12. Sandel, Michael J. 2020. La tiranía del mérito: ¿Qué ha sido del bien común? Buenos Aires: Debate.

86 – 87 proyectos

Proyecto: APAN LABORATORIOS DE VIVIENDA: VIVIENDA MÍNIMA OCOYOACAC

O cina: Tatiana Bilbao y socios

Año: 2017—2018

Lugar: Apan, Hidalgo, México

Fotografía: Jaime Navarro

I
Figura 1_ Replicación y transformación del modelo de vivienda. Figura 2_ Propuestas de vivienda mínima construidas en el Laboratorio de Ocoyoacac.
II III IV V Dearq 31
Figura 3_ Unidad básica de vivienda. Figura 4_ Capacidad de transformación de la unidad de vivienda. Figuras 5 y 6_ Unidad de vivienda construida. Fig. 3
Dearq 31
Fig. 4
5
Fig.
6 90 – 91
Fig. 1. Habitación 2. Sala 3. Cocina 4. Baño 1. Habitación 2. Sala 3. Cocina 4. Baño Fig. 7
Dearq 31
Fig. 8 Figura 7_ Planos planta y sección. De izquierda a derecha: Prototipo A, Prototipo B, Prototipo C y Prototipo D Figura 8_ Composición de unidades de vivienda en el tiempo, entre lo construido y lo vacío. 1. Habitación 2. Sala 3. Cocina 4. Baño
92 – 93 proyectos
1. Habitación 2. Sala 3. Cocina 4. Baño
Dearq 31
Figura 9_ La conformación de la comunidad por medio de la relación entre los elementos físicos que la componen.
94 – 95 proyectos

Proyecto: COOPERATIVA DE VIVIENDA LA BORDA

O cina: Lacol

Año: 2014, 2017—2018

Lugar: Barcelona, España

Fotografía: Institut Municipal de l'Habitatge i Rehabilitació de Barcelona, Lacol, Lluc Miralles, Chopo, Baku Akazawa, Anna Bosch Miralpeix

CONTINUIDAD DE LOS ESPACIOS DE RELACIÓN patio, espacio polivalente, circulaciones y terraza

ESPACIOS COMUNALES EN PLANTA BAJA

TRANSICIÓN PÚBLICO-COMÚN-PRIVADO recorrido de la calle a las viviendas, pasando por los espacios comunales en planta baja

SOL orientación sur

SOSTENIBILIDAD galerías, cubrimiento del patio y máxima altura para conseguir el mejor comportamiento bioclimático.

DENSIFICAR LA FACHADA SUR conseguir el máximo número de viviendas con condiciones óptimas de captación de sol. ENTRE MEDIANERAS la volumetría reconoce las medianeras vecinas y se adapta para cerrar el patio.

PATIO CENTRAL (CORRAL) centro de la casa, el núcleo del edificio, espacio de circulación, accesso, relación, convivencia

ESCALA HISTÓRICA el espacio polivalente recupera la cota de los territorios históricos

PASAJE da continuidad a la c/Hartzenbusch, permitiendo una conexión directa entre La Bordeta y el el parque Can Batlló. Acceso principal al edificio.

Figura 10_ Localización. Figura 11_ Insercion del edificio en el contexto y su funcionamiento interno. Figura 12 Los espacios comunes alrededor del patio central. Fig. 10
Dearq 31
Fig. 11 Figuras 13, 14a y 14b_ Construcción del edificio, una estructura de seis plantas de altura de madera contralaminada. Figura 15_ Escalera Figura 16_ Diseño colaborativo del conjunto del edificio entre los futuros habitantes. Fig. 13 Fig. 14b Fig. 15 Fig. 14a
Dearq 31
Fig. 16
98 – 99 proyectos
Figura 17_ Plantas. De arriba hacia abajo: planta baja, planta 3 y 4, planta 6. Figura 18_ Modulación y esquema general del edificio. Figura 19_ Patio central y acceso.
MATRIZ. REGLAS DEL JUEGO modulación PATRÓN. ESQUEMA GENERAL planta 1, 2, 5, 6 SUPERFICIE ÚTIL
NOMENCLATURA
VARIACIONES TIPOLÓGICAS
l planta 3,4 VIVIENDA BÁSICA módulo núcleo galería módulo satélite (simétricas)
18 Dearq 31
Figura 20_ Alzado suroeste.
por módulo
vivienda (HB)
s, m,
Fig.
20 100 – 101 proyectos
Fig.
Dearq 31
Figura 21_ Fachada noreste. Figura 22_ Alzado noreste. Figura 23_ Alzado suroeste. Figura 24_ Sección. Fig. 22 Fig. 23
102 – 103 proyectos
Fig. 24

INFRAESTRUCTURA definido por los socios promotores de la borda, pensando a 75 años

ELECCIÓN DE OPCIONES APROPIACIÓN DEL USUARIO decidido por el usuario durante el uso

selección para cada unidad en el diseño

* posibilidades de distribución

USO

* ejemplo A lavabo inferior

instalaciones + falso techo

1 posición lavabo inferior/superior

2 cerramiento baño lateral/extremo

3 posición cocina lateral/extremo

Fig. 25
Dearq 31
Fig. 26 Figura 25_ Etapas de diseño y posibilidades de transformación de la vivienda. Figura 26_ La vida comunitaria y el espacio compartido. Figuras 27 y 28_ Interior de la vivienda habitada. Fig. 27
104 – 105 proyectos
Fig. 28

Proyecto: APROP CIUTAT VELLA

O cina: Straddle3, Eulia Arkitektura, Yaiza Terré

Año: 2018

Lugar: Barcelona, España

Fotografía: Straddle3, Adrià Goula

Figura 29_ Proceso de construcción. Figura 30_ Es un volumen compacto, esquinero y entre medianeras que ocupa un solar edificable de titularidad municipal.
Dearq 31
Fig. 29
106 – 107 proyectos
1. Pórtico exterior 2. Vestíbulo 3. Recepción 4. Local 5. Patio 6. Pórtico de patio A. Módulo básico B. Módulo doble 7. Salón 8. Cocina abierta 9. Baño 10. Habitación doble 11. Habitación individual 12. Pasillo/Trastero
31
Fig.
Dearq 31
Fig. 32 Figura 31_ Plantas superiores. Figura 32_ Planta baja. Figura 33_ Suelo radiante. Figura 34 y 35_ La fachada sudoeste da a un patio que contiene el núcelo vertical de accesos. Fig. 34 y 35
108 – 109 proyectos
Fig. 33 Figura 36 y 37_ Secciones.
Dearq 31
Fig. 36
37 110 – 111 proyectos
Fig.

DETALLE CONSTRUCTIVO

01 Rastrel metálico 60x30x3mm

02 Montante metálico 30x30x3mm

03 Chapa grecada de alféizar

04 Lámina asfáltica autoprotegida

05 Tableros de encofrado de madera 27x500x2000mm

06 Rastreles metálicos 100x50x4mm

07 Perfiles de acero IPN 240

08 Rastrel metálico 45x45x3mm

09 Montante metálico 70x40x3mm

10 Ménsula metáñoca 70x40x3mm

11 Rastrel de madera de pino 70x45mm

12 Lámina de policarbonato ondulado Stabilit, certificado B S2-DO

13 Chapa galvanizada de remate e=3mm

14 Tablero alistonado de pino tratado al autoclave e=4mm

15 Protección antideslizante en chapa lagrimada e=3mm

16 Barandilla de acero esmaltado, pletina perimetral de 60x10mm y barrotes verticales tubulares de 15mm

17 Losa de hormigón armado con 1% de pendiente. ø10/20 inferior y superior

18 Junta elastomérica

19 Carpinterías Exlabesa modelo Classic y acabado lacado

20 Corner de los contenedores

21 TwistLock para unión entre contenedores

22 Trasdosado de 78mm formado por una placa Knauf CortafuegosDF

y otra placa Knauf Diamante hidrófuga de 15mm con subestructura de aluminio de 48mm y aislante de lana de roca. Sistema Knauf w628B.es.

23 Cartelas de unión estructura a perfil L e=10mm

24 Viga tubular 140x80x6mm

25 Chapa cortada y estirada "deployé"

26 Solera de hormigón armado con fibras y malla electrosoldada ø8/20

27 Poliestireno extruido (XPS)

28 Encachado de grava 15+15 cm

29 Encepado de micropilotes

30 Micropilotes tipo PAK'S 88.9/7.10 ø130

Figura 38_ Corte por fachada.

Figura 39_ Fachada noreste.

Figura 40_ Balcones, fachada noreste.

Fig. 38
Dearq 31
Fig. 39
112 – 113 proyectos
Figura 41_ Fachada sureste.
Dearq 31
Figura 42_ Escalera.

Vivienda 2.0

Housing 2.0

Investigación Creación

La ciudad, de puertas para adentro

The city: An interior look

DOI: https://doi.org/10.18389/dearq31.2021.09

¿Qué puede contar de nosotros el lugar que habitamos? ¿Qué guardamos en un cajón junto a la cama que un día, sin saberlo, podrá revelar lo que fuimos? ¿Qué se ha impregnado de nosotros en la pintura de las paredes y en las alfombras gastadas de nuestra casa? ¿Qué historias incompletas regalamos a la calle o a los vecinos cuando en las noches encendemos una luz tenue junto a una ventana sin cortinas para sentarnos a comer y repasar, solos o acompañados, nuestro día? ¿De qué nos deshacemos cuando tiramos a la basura unas llaves viejas o una nota sin respuesta?

Este libro es el resultado de muchas horas que pasé visitando casas, familias y personas de Bogotá. Quería auscultar lo que habita detrás de esos muros altos, o de esos antejardines espinosos, de esas rejas y esos candados, tras esas puertas solitarias y antiguas o al traspasar esas vistosas recepciones con guardias armados. “En todas las almas, como en todas las casas, además de fachada, hay un interior escondido”, dijo Raul Brandão en una cita que José Saramago usó como epígrafe a una de sus novelas. Quise entrar y recorrer ese adentro oculto, invisible desde el afuera de la calle.

Trabajé con cuatro fotógrafos. De cada familia y cada casa ellos hicieron el retrato con su lente, yo lo hice con mis palabras. Cada fotógrafo aportó su mirada, siempre única: algunos son reporteros con un declive artístico, otros son artistas con una mirada documental. Fue un

experimento para combinar las armas de cada uno, imagen y palabra, en un intento por palpar la vida de los otros que habitan esta ciudad.

“El vecino está muy cerca sin proximidad; está lejos al alcance de la mano o de la voz. Entre nosotros parpadea un débil intercambio de signos, una correspondencia imperceptible y aleatoria”, decía Jean-Luc Nancy en un magistral ensayo sobre las ciudades. Así que estiramos la mano y usamos la voz para aproximarnos. Golpeamos en las puertas y nos presentamos siempre como lo que somos: reporteros, fotógrafos. Sin reparos confesamos ser sgones profesionales: nos hicimos invitar, tomamos café y comimos galletas, pedimos que nos pasearan por habitaciones, cocinas, baños y salones, que nos contaran quiénes eran los habitantes de esas casas. Y así terminamos convertidos en “apartamenteros” de historias: tomamos de forma honrada lo que no era nuestro, la vida de los otros, sin forzar las cerraduras ni revolcar armarios.

El resultado es esta “instantánea” de cómo se vive en Bogotá. Como toda foto, congela algo que se desvanece en el tiempo. No hay aquí ninguna verdad académica, y menos la pretensión de presentar una teoría. Aquí hay solo pedazos de vidas presentes y de casas en pie, recogidos y ordenados uno a uno con paciencia arqueológica. ¿Cómo más se puede contar una megaciudad, de casi ocho millones de individuos, donde en un sector llueve

torrencialmente y en otro hace un sol esplendoroso? Ante esa monstruosa geografía opté por el infalible método del que está perdido: la improvisación. Abrí un mapa de la ciudad y puse un dedo. Fuimos. Puse otro. Fuimos, golpeamos, entramos. Y así, acabamos jugando a los dardos en un inmenso tablero de calles y carreras.

Este libro fue hecho a pedazos, como un álbum. La primera visita se hizo el 3 de enero de 2016; la última, el 23 de enero de 2020. Tal vez por eso cada texto es diferente —en su tono, en su voz—, casi como si lo hubieran escrito distintas personas, otros yo. Durante esos casi cuatro años la ciudad (como el autor) ha cambiado, es su naturaleza. Algunas casas ya no existen, se cayeron o las tumbaron; algunas personas que las habitaron tampoco, desaparecieron o ya no contestan el teléfono.

¿Qué ha pasado con ellos, con sus vidas, desde que se publicó el libro? A algunos los he vuelto a ver, de otros me han llegado noticias. Hernán, el hombre que vivía bajo un puente de Suba, murió de un infarto en 2019. De Rosana, su pareja, no se sabe mucho. Al parecer está en un centro de atención de la ciudad. La pequeña ventana que daba a su casa fue sellada con ladrillos y cemento. Elvira, la elegante señora de El Nogal, sigue como un roble ofreciendo tés en su casa y cuidando sus casas de muñecas. Alejandro, el hombre que vivía en una carreta a orillas de la autopista fue desalo -

jado en 2020. No lo volví a ver y ahora hay un enorme montículo de pasto donde antes tenía gallinas, perro y gatos. Aramis y su mamá, en el barrio Molinos, terminaron de construir el último piso de su casa. Max y Lulú, la pareja trans que vivía en el barrio Maria Paz, se separaron. Tuvieron una hija, algo que cuando los conocí era tan solo un sueño que parecía casi imposible. Bibiana y Daniela, dos hermanas que vivían solas en los límites de Usme, se graduaron de la universidad y pañetaron las paredes, arreglaron las ventanas. La foto que quedó registrada en el libro les parece que no les hace justicia. Mario, un hombre elegante que se había recluido en las lavanderías de un edi cio que heredó en Chapinero, ha ido perdiendo la memoria; no contesta el teléfono y solo recuerda su pasado más lejano.

A veces pienso en ellos y en todas las personas que visité, desconocidos entre sí, que terminaron por obra de este libro convertidos en vecinos de un lugar a la vez real e imaginario, viviendo estrechamente unos junto a otros, próximos pero lejanos, separados y unidos por la costura de unas páginas. “Adentro”, el libro que recoge esas historias es, digamos, un nuevo barrio.

Libro: Adentro: vida en Bogotá

Editorial: Ediciones Uniandes / IDCP

Año: 2020

Páginas: 326

Agosto de 2021

Autores: Lorenzo Morales, Mateo Pérez, Miguel Winograd, Nadège Mazars, Juanita Escobar.

https://doi.org/10.18389/dearq31.2021.09 creación 116 – 117
Cómo citar: Morales, Lorenzo. “La ciudad, de puertas para adentro”. Dearq no. 31 (2021): 116-136.
DOI:
Fotografía: Mateo Pérez
Dearq 31
Fotografía: Miguel Winograd
120 – 121 creación
Fotografía: Miguel Winograd Fotografía: Miguel Winograd Fotografía: Miguel Winograd
Dearq 31
Fotografía: Miguel Winograd
122 – 123 creación
Fotografía: Miguel Winograd
Fotografía: Mateo Pérez
Fotografía: Miguel Winograd
Dearq 31
Fotografía: Miguel Winograd
126 – 127 creación
Fotografía: Miguel Winograd Fotografía: Miguel Winograd
Dearq 31
Fotografía: Miguel Winograd Fotografía: Miguel Winograd
128 – 129 creación
Fotografía: Miguel Winograd
Fotografía: Mateo Pérez
Fotografía: Miguel Winograd
Dearq 31
Fotografía: Miguel Winograd Fotografía: Miguel Winograd
132 – 133 creación
Fotografía: Miguel Winograd
Dearq 31
Fotografía: Miguel Winograd

Índice Anual

Dearq 29

Colombia desde Afuera __Colombia from the Outside

Enero 2021

INVESTIGACIÓN

Arquitectura de Colombia vista desde fuera. Una breve introducción. Felipe Hernández, Fernando Lara.

Letter to my Colombian Friends. Fernando Lara.

De la excelencia al olvido. Sobre la emergencia y la desaparición de dos décadas de arquitectura en Colombia. Giaime Botti, Jorge Francisco Liernur.

La historia olvidada de la arquitectura en Colombia: La vivienda rural y la modernización durante la República Liberal. Susana Romero Sánchez.

Modern Fetishes, Southern Thoughts. Felipe Hernández.

Magical Modernism: Latin American Urbanisms and the Imaginary of Social Architecture. Daniel Cardoso, Llach Nida Rehman.

Consagrar y excluir: El canon en disputa de la arquitectura colombiana, 1951-1981. Hugo Mondragón Manola Ogalde.

Interview with Carlos Comas. Felipe Hernández, Fernando Lara, Carlos Eduardo Dias Comas.

Dearq 30

Espacios en la migración __Spaces in migration

Mayo 2021

INVESTIGACIÓN

Acogida y hospitalidad.

Camilo Salazar Ferro, Lucas Ariza Parrado.

Tres aproximaciones a las arquitecturas de la deportación en la frontera española. Antonio Giraldez López.

Arquitecturas de la sujeción. Desplazamientos entre campos de concentración y poblados para gitanos. María García Ruíz.

El territorio del tránsito. Estrategias espaciales de movilidad transfronteriza de los migrantes en la zona fronteriza España-Marruecos. Maria Rocco.

Habitar tras el destierro. Desplazamiento forzado y retorno como configurador de nuevos hábitats en el Putumayo. Jheisson Joseph Lasso Imbachi.

Transformaciones territoriales y desbordes en la zona rurbana de la localidad de Bosa (Bogotá) desde la perspectiva de movimientos urbanos de base. Ana María López-Ortego.

Infraestructuras de arribo: una aproximación al espacio migrante en ciudades destino como Bogotá. Camila Pinzón, Juanita Fonseca.

Chinatown 2.0: El difícil florecimiento de una zona comercial de temática étnica. Jan Rath, Annemarie Bodaar, Thomas Wagemaakers, Pui Yan Wu.

Dearq 31

Vivienda 2.0

__Housing 2.0

Septiembre 2021

INVESTIGACIÓN

La vivienda de nuestro tiempo. Camilo Salazar Ferro, Lucas Ariza Parrado.

Casa, ciudad, territorio: una investigación colectiva sobre las transformaciones del habitar urbano contemporáneo. Miguel Paredes Maldonado.

La vivienda colaborativa en la era digital como proceso sostenible. Lucía de Molina Benavides, Elisa Valero Ramos.

Cinco principios para una arquitectura vulnerable e íntima: dibujando límites y aperturas alternativos al hogar y al yo. Maya Orzechowska.

Modelado paramétrico en el proceso de diseño: estrategias para crear flexibilidad y adecuación espacial para la vivienda social. Wilson Florio, Ana Tagliari.

Los inquilinatos en Bogotá: desde la problemática socioespacial hasta una propuesta arquitectónica habitacional. Valeria Abello Aldana, Miriam Kuehler. Entrevista a Jacob van Rijs. Jacob van Rijs, Juan Manuel Medina del Río, Ignacio Borrego Gómez - Pallete.

PROYECTOS

La cuarta geografía. Sebastián Trujillo Torres

INVESTIGACIÓN - CREACIÓN

Colombia desde afuera: La fotografía de Leonardo Finotti. Claudia Rueda Velázquez

PROYECTOS

Arquitectura migrante. Daniela Sanjinés

INVESTIGACIÓN - CREACIÓN

Texto introductorio sobre Los indocumentados: La arquitectura de la detención migratoria. Tings Chak.

PROYECTOS

Vivienda 2.0. Imaginando un futuro. .Juan Manuel Medina del Río, Ignacio Borrero Gómez-Pallete

INVESTIGACIÓN - CREACIÓN

La ciudad, de puertas para adentro. Lorenzo Morales.

Índice Autores Índice Temático

Abello Aldana, Valeria ( No. 31)

Ariza Parrado, Lucas (No. 30)

Bodaar, Annemarie (No. 30)

Borrego Gómez-Pallete, Ignacio ( No. 31)

Botti, Giaime (No. 29)

Cardoso Llach, Daniel (No. 29)

Chak, Tings (No. 30)

De Molina Benavides, Lucía (No. 31)

Florio, Wilson (No. 31)

Fonseca, Juanita (No. 30)

García Ruíz, María (No. 30)

Giraldez López, Antonio (No. 30)

Hernández, Felipe (No. 29)

Kuehler, Miriam (No. 31 )

Lara, Fernando Luis (No.29)

Lasso Imbachi, Jheisson Joseph (No.30)

Liernur, Jorge Francisco (No. 29)

López- Ortego, Ana María (No.30)

Medina del Río, Juan Manuel ( No. 31)

Mondragón López, Hugo (No. 29)

Morales, Lorenzo ( No. 31)

Ogalde Gutiérrez, Manola Constanza (No. 29)

Orzechowska, Maya (No. 31)

Paredes Maldonado, Miguel ( No. 31)

Pinzón, Camila (No. 30)

Piu, Yan Wu (No. 30)

Rath, Jan (No. 30)

Rehman, Nida (No. 29)

Rocco, María (No. 30)

Romero Sánchez, Susana (No. 29)

Rueda Velázquez, Claudia (No. 29)

Salazar Ferro, Camilo (No. 30)

Sanjinés, Daniela (No. 30)

Tagliari, Ana (No. 31)

Trujillo Torres, Sebastián (No.29)

Valero Ramos, Elisa ( No. 31)

Wagemaakers, Thomas (No. 30)

Algoritmo (Florio y Tagliari, No.31); Arquitectura (Trujillo Torres, No. 29); Arquitectura (Rueda Velázquez, No. 29); Arquitectura colombiana (Cardoso y Rehman, No. 29); Arquitectura contemporánea de Colombia (Lara, No. 29); Arquitectura latinoamericana (Cardoso y Rehman, No. 29); Arquitectura moderna (Hernández y Lara, No. 29); Arquitectura moderna (Hernández, No. 29); Arquitectura moderna (Mondragón y Ogalde, No. 29); Arquitectura moderna (Romero, No. 29); Arquitectura moderna en América latina (Hernández y Lara, No. 29); Arquitecturas de la deportación (Giráldez, No. 30); Asentamientos informales (Rocco, No. 30).

Border building (Giráldez, No. 30); Brasil (Hernández y Lara, No. 29); Búsqueda de la forma (Florio y Tagliari, No.31); Campamentos (Rocco, No. 30); Campo de concentración (García, No. 30).

Canon (Mondragón y Ogalde, No. 29); Cartografía colectiva (López Ortego, No. 30); Centro de internamiento de extranjeros (Giráldez, No. 30); Ciudad (Paredes, No. 31); Ciudad arribo (Fonseca y Pinzón, No. 30); Ciudades destino (Fonseca y Pinzón, No. 30); Clase (Hernández y Lara, No. 29); Cohabitación (Florio y Tagliari, No.31); Cohousing (De molina y Valero, No. 31); Colectividad (Paredes, No. 31); Colombia (Mondragón y Ogalde, No. 29); Colonialidad (Hernández y Lara, No. 29); Colonialidad (Hernández, No. 29); Colonización (Lara, No. 29); Colonización (Romero, No. 29); Comunes urbanos (Paredes, No. 31); Comunidad (De molina y Valero, No. 31); Concursos (Paredes, No. 31); Conflicto agrario (Romero, No. 29); Conflicto armado (Lasso, No.30); Consagrar (Mondragón y Ogalde, No. 29).

Descolonización (Hernández y Lara, No. 29); Descolonización (Hernández, No. 29); Desterritorialización (Giráldez, No. 30); Destierro (Lasso, No.30); Discurso (Mondragón y Ogalde, No. 29); Diseño urbano (Lara, No. 29); Disparidad (Orzechowska, No. 31); Dispositivo (Giraldez, No. 30).

Economía urbana (Bodaar, Piu, Rath y Wagemaakers, No. 30); Empatía (Orzechowska, No. 31); Emprendimiento ético (Bodaar, Piu, Rath y Wagemaakers, No. 30); Enclaves étnicos (Bodaar, Piu, Rath y Wagemaakers, No. 30); Espacio de excepción (García, No. 30); Espacio urbano (Fonseca y Pinzón, No. 30); Estrategias de diseño (Florio y Tagliari, No.31); Estructuras (Trujillo Torres, No. 29); Eurocentrismo (Hernández, No. 29); Externalización de fronteras (Rocco, No. 30).

Finotti (Rueda Velázquez, No. 29); Forma de vida (García, No. 30); Fortaleza institucional (Lara, No. 29); Fotografía (Rueda Velázquez, No. 29); Frontera (Giraldez, No. 30).

Género (Hernández y Lara, No. 29); Gentrificación comercial (Bodaar, Piu, Rath y Wagemaakers, No. 30); Gitanos (García, No. 30); Gobernanza (López Ortego, No. 30); Grassroot aproach (López Ortego, No. 30).

Habitante digital (De molina y Valero, No. 31); Hábitat (Lasso, No.30); Histografía (Botti y Liernur, No. 29); Hogar (Orzechowska, No. 31).

Identidad (Botti y Liernur, No. 29); Infraestructuras de arribo (Fonseca y Pinzón, No. 30); Inquilinato (Abello y Kuehler, No. 31) Inserción mixta (Bodaar, Piu, Rath y Wagemaakers, No. 30); Instituto de Crédito Territorial (Romero, No. 29).

Kinopolítica (Giraldez, No. 30).

Levittown (Orzechowska, No. 31); Límites (Orzechowska, No. 31).

Mapear (Trujillo Torres, No. 29); Migración (Fonseca y Pinzón, No. 30); Migración (Lasso, No.30); Migración en tránsito (Rocco, No. 30); Migración indocumentada (Rocco, No. 30); Modernidad (Mondragón y Ogalde, No. 29); Modernismo (Botti y Liernur, No. 29); Modernización (Lara, No. 29); Modernización (Romero, No. 29); MoMa (Hernández y Lara, No. 29); Movimientos urbanos (López Ortego, No. 30).

Parámetro (Florio y Tagliari, No.31); Participación (De molina y Valero, No. 31); Pedagogía (Paredes, No. 31); Poblados (García, No. 30); Política urbana (Bodaar, Piu, Rath y Wagemaakers, No. 30); Porosidad (Fonseca y Pinzón, No. 30); Práctica contemporánea (Trujillo Torres, No. 29); Proceso (De molina y Valero, No. 31); Procesos (Trujillo Torres, No. 29); Propuesta habitacional (Abello y Kuehler, No. 31); Proyecto arquitectónico (Abello y Kuehler, No. 31); Psicoanálisis (Orzechowska, No. 31); Putumayo (Lasso, No.30).

Raza (Hernández y Lara, No. 29); Recepción (Botti y Liernur, No. 29).

Sedentarización (García, No. 30); Seminarios de arquitectura latinoamericana (Hernández y Lara, No. 29); Sostenibilidad (De molina y Valero, No. 31); Sujeción (García, No. 30).

Técnica (Botti y Liernur, No. 29); Teoría urbana postcolonial (Hernández, No. 29); Territorio (Paredes, No. 31); Tipo (Florio y Tagliari, No.31); Transformaciones territoriales (López Ortego, No. 30).

Urbanismo (Fonseca y Pinzón, No. 30); Urbanismo latinoamericano (Cardoso y Rehman, No. 29); Urbanismo social (Cardoso y Rehman, No. 29); Urbano-rural (López Ortego, No. 30); Utopía (Orzechowska, No. 31).

Vivienda (Paredes, No. 31); Vivienda (Lasso, No.30); Vivienda campesina (Romero, No. 29); Vivienda colaborativa (De molina y Valero, No. 31); Vivienda compartida (Abello y Kuehler, No. 31); Vivienda informal (Abello y Kuehler, No. 31); Vivienda social (Romero, No. 29); Vivienda temporal (Abello y Kuehler, No. 31)

Zona fronteriza (Rocco, No. 30)

Proceso Editorial

Dearq es una revista cuatrimestral (enero-abril, mayo-agosto y septiembre-diciembre), que publica al inicio de cada período. Su objetivo es contribuir a la difusión de análisis, investigaciones, reflexiones y opiniones críticas que la comunidad científica nacional e internacional elaboren sobre la arquitectura, la ciudad y sus áreas afines. La revista no realiza cobros a los autores por la sumisión de artículos, evaluación por pares, corrección de estilo o publicación; no cobra cargos monetarios ni de ninguna especie por páginas o cobros de color. La versión impresa de la revista tiene un precio y puede adquirirse en los puntos autorizados para la venta y comercialización. Los autores interesados en someter un artículo a la revista Dearq, acceden a la plataforma de gestión de contenidos a través de la sección Enviar un Artículo, se registran como usuarios de la misma y finalizan el proceso de envío de su manuscrito. A la recepción de un artículo, se notifica al autor y el Equipo Editorial revisa el cumplimiento de los requisitos básicos descritos en las Normas de Publicación y se somete a control de plagio. En caso de detectar plagio o auto-plagio, se rechaza el texto y se notifica a los autores el motivo.

En esta primera etapa, el Equipo Editorial evalúa los artículos, pudiendo rechazar manuscritos en base a los siguientes criterios:

Cumplimiento de las normas de publicación.

• Pertinencia y calidad del documento en relación con las convocatorias.

Coherencia y claridad de la argumentación.

• Relevancia bibliográfica y soporte investigativo.

Claridad en la redacción.

• Generación de nuevo conocimiento.

Todo documento que supera esta primera etapa, es sometido a un proceso de evaluación bajo la modalidad doble ciego.

Evaluación de Pares

Durante la evaluación, tanto los nombres de los autores como los de los evaluadores se mantienen en el anonimato. Los resultados de la evaluación se informan al autor en un plazo máximo de seis meses. Estos son notificados a través del correo electrónico, por el Editor, quien emite uno de los siguientes conceptos:

• Aceptar la publicación del documento sin modificaciones. Aceptar la publicación del documento siempre que se realicen correcciones según los comentarios y observaciones realizadas.

• Rechazar la publicación del documento.

Los autores deberán realizar los ajustes solicitados. Si en una segunda revisión se observa que los cambios no han sido incorporados en la fecha acordada, el Equipo Editorial puede tomar la decisión de no publicar el artículo. La revista se reserva la última palabra sobre la publicación de los artículos, el número en el que se incluyen y el derecho de hacer correcciones menores de estilo, asimismo de ajustar el resumen o las palabras claves. Se sugiere al autor verificar el Formato de Evaluación antes de someter su artículo.

Una vez el texto ha superado el proceso de evaluación y es aprobado para publicación, es deber del autor gestionar la traducción al inglés o al español - en función del idioma original del texto sometido - y enviar el documento acorde al plazo establecido por el Editor. Durante el proceso de edición, los autores podrán ser contactados por el Editor para resolver inquietudes. La plataforma de gestión de contenidos será el medio de comunicación principal entre la revista y los autores durante el proceso de evaluación, edición y publicación.

Nota: Los pares evaluadores se seleccionan conforme a su trayectoria académica, conocimiento y producción en la temática del documento a evaluar. Un porcentaje mayor de los pares evaluadores serán externos a la Universidad de los Andes.

Tipologías

La revista Dearq acepta las siguientes tipologías de documentos:

Artículo de investigación: Documento que presenta de manera detallada los resultados originales de investigaciones concluidas. Su estructura consta por lo general de cuatro apartes: Introducción, metodología, resultados y conclusiones. Extensión máxima: 4000 palabras.

• Artículo de reflexión: Documento que presenta los resultados de una investigación terminada desde una perspectiva analítica, interpretativa o crítica, recurriendo a fuentes originales. Extensión máxima: 4000 palabras.

Entrevista: Transcripción editada que presenta la postura de los/ las entrevistado/a(s) acerca de un tema relevante. El registro debe contemplar referencias y bibliografía pertinente. Extensión máxima: 4000 palabras.

Normas de Publicación

La redacción de documentos debe atender a las siguientes indicaciones. El documento que no cumpla con estas condiciones será devuelto al autor y no podrá participar en el proceso de evaluación. Los artículos se deben presentar en documento Word, fuente Times New Roman, 12 puntos e interlineado doble, con márgenes de 2,5 x 2,5 x 2,5 x 2,5 cm, y sin datos de autoría o nombre(s) de autor(es) en el cuerpo del documento.

La estructura del documento deberá constar de:

• Título: Si el título requiere alguna aclaración adicional deberá consignarse en la primera página, en nota al pie, mediante el uso de un asterisco al final del título.

• Información adicional: En caso de que el artículo sea resultado de una investigación, se debe incluir la información del proyecto del que hace parte y el nombre de la institución financiadora.

Resumen: Debe indicar el propósito de la investigación, los principales resultados y las principales conclusiones. Texto de máximo 100 palabras.

Palabras claves: Siete palabras clave. Las palabras clave deben refljar el contenido del documento. Es necesario que señalen las temáticas precisas del artículo, las áreas de conocimiento en las que se inscribe y los principales conceptos.

Texto del artículo: Se debe indicar el lugar de inserción del material gráfico y sus respectivos pies de figura y créditos.

• Bibliografía: La revista Dearq usa el estilo Chicago autor-año. Consiste en incluir en un listado completo al final del texto toda la información bibliográfica citada en el artículo. Cuando los contenidos utilizados tengan un número de identificación DOI, debe incluirse en este listado. Para mayor información sobre el modelo de citación, puede consultar la Guía de Citación en la plataforma.

Nota: La extensión total del documento no debe exceder las 4.000 palabras.

Tablas y Figuras

La información gráfica que acompaña al manuscrito debe estar referenciada en el texto con su pie de figura correspondiente. En el caso de las tablas, deberán presentarse precedidas por la palabra “Tabla” y el número consecutivo que le corresponda. Debajo de la tabla se debe indicar la fuente de la información presentada. Para el caso de las figuras (diagramas, fotografías o imágenes), deberán presentarse precedidas de la palabra “Figura” y el número consecutivo que le corresponda. Se debe indicar el nombre de la imagen y la fuente de dónde se obtuvo o declarar si es creación propia. Para el caso de figuras múltiples, cada una debe estar referenciada. Las tablas y figuras se publican en blanco y negro. La resolución mínima de las figuras varía según la tipología del manuscrito. Para los artículos de investigación, reflexión y entrevista las figuras deben estar como mínimo en resolución de 300 dpi en formato de 9x13 cm. El número máximo de figuras será 20.

Para compatibilidad con el sistema de evaluación de pares, las piezas gráficas (tablas y figuras) deberán enviarse en una carpeta adicional e independiente del texto, en formato jpeg o tiff. Los nombres de los archivos deben ser correspondientes al tipo y número: fig1, fig2, fig3, etc. o tab1, tab2, tab3, etc.

Referencias bibliográficas

Las referencias bibliográficas deben seguir el manual de estilo Chicago autor-año (datos entre paréntesis). Esto es, en el texto se citan las referencias entre paréntesis y al final del texto se debe incluir una bibliografía que reúna toda la información bibliográfica completa de las fuentes referenciadas. La bibliografía debe estar organizada alfabéticamente según el apellido del primer autor, seguida por el año de publicación. Las publicaciones de un mismo autor deben estar ordenadas del más antiguo al más reciente. Para mayor información sobre el modelo de citación, puede consultar la Guía de Citación en la plataforma.

Envío de material y correspondencia

Durante el proceso de evaluación y de edición, el medio de comunicación con los autores y evaluadores es la plataforma de gestión de contenidos a través del vínculo: Enviar un Artículo

Para casos particulares pueden dirigirse al correo electrónico: dearq@uniandes.edu.co

Política editorial 136 – 137

Editorial Process

Dearq is a quarterly publication (January-April, May-August and September-December), that is published at the beginning of each of these periods. Its objective is to contribute to the dissemination of the research, analyses and opinions that the national and international academic community elaborates on architecture, urbanism and related areas.

The journal does not charge authors for the editorial process including article processing charges (APCs), article submission, peer evaluation process, style correction and publication; either, page charges, colour charges or any instance where money is required to complete the publication process. The printed version has a cost and can be purchased at authorized stores.

Authors who are interested in submitting an article for publication in Dearq should access the content management platform through the Submit an Article section. They should register as users and then send their manuscript. When the article is received, the author will be notified and the editorial team will review compliance with the basic requirements described in the Publication Guidelines and submit it through plagiarism control. In case of detecting plagiarism or auto-plagiarism, the text will be rejected and the author will be notified.

In this preliminary phase, the editorial team will evaluate the articles. They may reject manuscripts based on the following criteria:

• Not fulfilling the publication guidelines.

Relevance and quality of the article regarding the calls for papers.

Coherence and quality of argumentation.

Bibliographic relevance and investigative support.

• Clarity in the writing.

Generation of new knowledge.

Every article that passes this first phase will be submitted to a double-blind evaluation process.

Peer Evaluation

During the evaluation, both the names of the authors and the evaluators will be kept anonymous. The results from the evaluation will be communicated to the author within a maximum period of six months. The authors are notified via email, by the Editor, who issues one of the following concepts:

Publish the document with no modifications required.

Publish the document after corrections have been made based on the comments and observations.

Do not publish the document.

The authors must make the requested adjustments. If in a second review it is observed that the changes have not been incorporated on the agreed date, the Editorial Team can make the decision not to publish the article. Dearq reserves the last word on the publication of the articles, the issue in which they will appear and the right to make minor style correctios, as well as to adjust the abstract or keywords. We suggest that the author checks the Evaluation Form before submitting the article.

Once the text has passed the evaluation process and is approved for publication, it is the author's duty to translate it into English or Spanish - depending on the text’s original language - and send the document according to the deadline established by the editor. During the evaluation process, the authors may be contacted by the editor to resolve any inquiries. The content management platform will be the main communication channel between the journal and the authors during the evaluation, editing, and, publication process.

Note: The peer evaluators are selected based on their academic trajectory, knowledge and cientific production within the evaluated document's thematic. A higher percentage of the peer evaluators will be external researchers from Universidad de los Andes.

Types of Articles

Dearq accepts the following types of articles:

• Research article: An article that presents, in a detailed manner, the original results from completed research. The structure, in general, consist of four sections: introduction, methodology, results, and conclusions. Maximum length: 4000 words

Reflection paper: This article presents the results from completed research in an analytical, interpretative, or critical manner and draws on original sources. Maximum length: 4000 words

• Interview: An edited transcript that presents the position of the interviewees on a relevant topic. It should include references and a relevant bibliography. Maximum length: 4000 words

Publication Guidelines

The documents must meet the following indications. If it does not meet these conditions, it will be returned to the author and may not participate in the evaluation process. Articles should be sent in Word format using Times New Roman size 12, should be double spaced with the following margins: 2.5 x 2.5 x 2.5 x 2.5 cm, and should not include the author's name and or authorship data.

The structure of the document should include:

Title: If the title needs to include any additional clarification, this should be placed on the first page in a footnote using an asterisk at the end of the title.

Additional information: If the article is part of a research project, the project information should be included as well as the financing institution.

• Abstract: This should include the purpose of the research as well as the principal results and conclusions. Maximum length: 100 words

• Key words: Seven key words. The key words should reflect the content of the document. It is necessary to indicate the precise topics of the article and highlight the area of knowledge in which the main concepts are located.

• Text: This should indicate where visual material should be placed as well as figure captions and titles.

Bibliography: Dearq journal uses Chicago Style author-date. This should include in a complete final list at the end of the article all the bibliographic information cited in the text. When the contents used have a DOI identification number, it must be included in the list. For more information on how to reference consult the Citaton Guide on the website.

Note: The total length of the document should not exceed 4.000 words.

Tables and Figures

Any visual information that compliments a manuscript should be referenced in the text with a corresponding image caption.

The word “Table” should come before all the tables as well as its corresponding consecutive number. The source of the information should be presented under the table.

The word “Figures” (diagrams, photographs, and images) should come before all the figures as well as the corresponding consecutive number. The author must indicate the name of the image and the source from where it was obtained or declare if it is his own creation. In the case of multiple figures, each one must be referenced.

Tables and figures are published in black and white. The minimum resolution of the figures varies according to the typology of the manuscript. For research, reflection and interview articles, the figures must be at least 300 dpi resolution in 9x13 cm format. The maximum number of figures will be 20.

In order to be compatible with the peer evaluation system, the graphic material (tables and figures) should be sent in an individual folder that is separate from the text in either JPEG or TIFF format. The file´s names should correspond to the type and number: FIG1- FIG2FIG3, etc. or TAB1-TAB2-TAB3, etc.

Bibliographic references

The Chicago Manual of Style, author-date (date in parentheses), should be used. In the body of the text, citation should be made in parentheses and a bibliography should be included at the end of the text that includes complete bibliographic information from the sources cited. The bibliography should be organized alphabetically according to the first author´s surname followed by the year of publication. Publications from the same author should be ordered from oldest to most recent.

For more information on how to reference, consult the Citaton Guide on the website.

Sending material and correspondence

The content management platform will be used for communication with authors and evaluators during the evaluation and editorial process. It can be accessed via the following link: Submit an Article

In specific cases, inqueries can be answered via the following email: dearq@uniandes.edu.co

Editorial Policy

Publicación y auditoría

La revista Dearq se encuentra adscrita al Departamento de Arquitectura de la Facultad de Arquitectura y Diseño de la Universidad de los Andes, la cual se encarga del soporte financiero de la publicación.

Cuenta con la siguiente estructura: un Equipo Editorial compuesto por un Director, un Editor, Gestor(es) Editorial(es) y Monitor(es); un Comité Editorial y un Comité Científico cuyos miembros son evaluados cada dos años en función de su aporte a la publicación, de su reconocimiento en el área y de su producción académica visible en otras revistas nacionales e internacionales indexadas; y un Equipo de Apoyo que se encarga de la diagramación, soporte, corrección de estilo y traducción.

Los artículos presentados a la revista Dearq deben ser originales e inéditos y no deben estar simultáneamente en proceso de evaluación ni tener compromisos editoriales con ninguna otra publicación. En caso de que un artículo incluido en el contenido de la revista quiera utilizarse en otra revista o publicación, el autor y/o la revista deben solicitar la autorización del Equipo Editorial y la publicación tiene que señalar con claridad y visibilidad los datos de la publicación original en la revista Dearq. Asimismo, cuando el Equipo Editorial tenga interés en traducir y/o publicar un artículo que ha sido previamente publicado se compromete a pedir la autorización y realizar la declaración correspondiente a la revista que realizó la primera publicación.

Responsabilidades del autor

Los autores deben remitir sus artículos a través de la sección Para Autores en el sitio web de la revista Dearq durante las fechas establecidas por la convocatoria vigente.

La revista Dearq ofrece indicaciones y pautas específicas para la presentación de los textos, así como reglas de edición. Esta información se puede consultar en español y en inglés en la sección de Políticas Editoriales, apartado ‘Normas de Publicación’ en la versión digital e impresa de la revista.

En el envío de un artículo el autor debe diligenciar un formato de información personal y académica, aceptar las condiciones de originalidad del texto, declarar el artículo como inédito, sin previas publicaciones en otras revistas, ni estar otros procesos de evaluación paralelos a la revista Dearq, o con compromisos de publicación en otras revistas de investigación. El envío del "Certificado de Originalidad" es obligatorio.

Si bien el Equipo Editorial aprueba los artículos con base en los requisitos básicos de calidad, rigurosidad investigativa y criterios de evaluación, los autores serán los únicos responsables de las ideas allí expresadas, así como de la idoneidad ética del artículo. Los autores deben hacer explícito que el texto es de su autoría y que en el mismo se respetan los derechos de propiedad intelectual de terceros.

Igualmente, es deber de los autores disponer a la revista la "Autorización para el Uso, Reproducción, Impresión y Publicación"del material que no sea de su propiedad o autoría (planos, cuadros, gráficas, mapas, diagramas, fotografías, etc). A su vez, deberán autorizar la utilización de los derechos patrimoniales del autor (reproducción, comunicación pública, transformación y distribución), mediante la firma del “Documento de Autorización de Uso de Derechos de Propiedad Intelectual” a la Universidad de los Andes - Departamento de Arquitectura para incluir su escrito o artículo en la revista Dearq.

Los autores aceptan someter sus textos a las evaluaciones anónimas de dos pares evaluadores y se comprometen a tener en cuenta las observaciones de los evaluadores, así como los ajustes solicitados por el Equipo Editorial. Estas modificaciones y correcciones al manuscrito deberán ser realizadas por el autor en el plazo que le sea indicado por el Equipo Editorial.

Una vez que la revista Dearq reciba el artículo modificado, se le informará al autor acerca de la decisión tomada. Si el texto es aprobado, es deber del autor gestionar la traducción al inglés o al español - en función del idioma original del texto sometido - y enviar el documento dentro del plazo establecido por el Editor para su debida inclusión en la publicación.

Responsabilidad de los evaluadores

La revista Dearq cuenta con un formato de evaluación descargable en el sitio web que contiene preguntas con criterios definidos, que el evaluador debe responder sobre el artículo objeto de evaluación. A su vez, tienen la responsabilidad de aceptar, rechazar o aprobar con modificaciones y/o sugerencias el documento arbitrado y declarar que no existen conflictos de interés. Durante la evaluación, los nombres de los autores y los de los evaluadores serán mantenidos en completo anonimato.

Responsabilidades del equipo editorial

El Equipo Editorial es responsable de definir las Políticas Editoriales y Éticas para que la revista cumpla con los estándares que permiten su posicionamiento como una reconocida publicación científica. De igual manera, cumple las exigencias de divulgación y publicación digital y física de la revista mediante la actualización de plataformas de gestión editorial y canales activos para la divulgación de contenidos.

La selección y escogencia de los artículos está siempre basada en la calidad y relevancia de los mismos, en su originalidad y contribución al conocimiento de los campos de la arquitectura y la ciudad. En este sentido, cuando un artículo es rechazado la justificación brindada al autor se orienta hacia estos aspectos.

El Equipo Editorial vigila y cumple en su totalidad las normas establecidas por el Committee on Publication Ethics (COPE). Durante todo el proceso editorial, aplica mecanismos de confidencialidad, de control de plagio y de evaluación que permiten decidir la publicación o el rechazo de los manuscritos recibidos.

Cuando la revista Dearq recibe quejas de cualquier tipo, el Equipo Editorial debe responder y, en caso de que el reclamo lo amerite, debe asegurarse de que se lleve a cabo la adecuada investigación tendiente a la resolución del problema y publicar correcciones, aclaraciones, rectificaciones o dar justificaciones.

En el caso de que un artículo publicado, presente errores de fondo detectados por el autor y que atente contra la calidad científica, podrá solicitar el retiro o corrección. Si se detecta por un tercero, plagio, publicación previa, conducta no ética o error, es obligación y responsabilidad del autor retractarse públicamente, con lo cual se procederá de inmediato al retiro o corrección pública. La corrección o retractación pública se realizará en el siguiente número impreso de la revista, así como en su versión digital.

Tan pronto un número de la revista Dearq salga publicado, el Equipo Editorial tiene la responsabilidad de su difusión entre los colaboradores, evaluadores y las entidades con las que se hayan establecido acuerdos de intercambio, así como la actualización de contenidos en los repositorios y sistemas de indexación nacionales e internacionales.

Política ética 138 – 139

Publication and authorship

Dearq is a journal ascribed to the Department of Architecture, School of Architecture and Design at Universidad de los Andes, which finances its publication.

The structure of its organization is as follows: An Editorial Team conformed by Director, Editor, Editorial Manager(s) and Assistant(s); an Editorial Committee and a Scientific Committee whose members are evaluated every two years based on their contribution to the publication, their recognition in the area and their visible academic production in other national and international indexed journals; and a Support Team that is in charge of layout, support, style correction and translation.

The articles submitted to Dearq journal must be original, previously unpublished and must not be in an evaluation process or have an editorial commitment with any other publication.

In the event that an article included in the content of the Dearq wants to be published in another journal or publication, the author and / or magazine must request authorization from the Editorial Team, and the publication must clearly and visibly indicate the data of the original publication in Dearq. Likewise, when the Editorial Team is interested in translating and/or publishing an article that has been previously published, it commits to request the corresponding authorization and to indicate the data of the original publication.

Author responsibilities

Authors should submit their articles through the section For Authors at the home page of Dearq's website on the dates established by the call for papers.

Dearq offers specific guidelines for the submission of the texts, as well as editing rules. This information can be consulted in Spanish and English in the Editorial Policies section, in the segment 'Publication Norms' in the digital and printed version of the journal.

When submitting an article, the author must complete a form of personal and academic information, manifest that the text they present is of their own authorship, unpublished and that they are not in a parallel evaluation process or have an editorial commitment to any other research journal. The "Certificate of Originality" is mandatory to send it.

Even though the Editorial Team approves articles based on the basic requirements of quality, research rigor and evaluation criteria, the authors will be solely responsible for the ideas expressed therein, as well as for its ethical suitability. Authors should manifest that the text they present is of their own authorship and that they respect the intellectual property rights of third parties.

Likewise, it is the author’s responsibility to obtain and provide to the journal the "Authorization for the Use, Reproduction, Printing and Publication" of all of the additional material which is not of their property or authorship (plans, tables, graphs, maps, diagrams, photographs, etc). Also, they must authorize the use of the author’s patrimonial rights (reproduction, public communication, transformation and distribution), by signing the “Authorization Document for the Use of Intellectual Property Rights” to the Universidad de los Andes- School of Architecture, in order to include the text in Dearq.

Authors agree to submit their texts to anonymous evaluations of two peer reviewers and to take into account their observations, as well as the adjustments requested by the Editorial Team. These modifications and corrections to the manuscript must be made by the author within the period stablished by the Editorial Team.

Once Dearq receives the modified article, the author will be informed of the final decision. If the text is approved, the author must translate it into English or Spanish - depending on the text’s original language - and send it according to the deadline established by the Editor.

Reviewers responsibilities

Dearq has a downloadable evaluation format on its website, that contains questions with defined criteria, which the evaluator must answer regarding the article under evaluation. Likewise, they have the responsibility to accept, reject or approve with modifications and/or suggestions the arbitrated document and declare that there are no conflicts of interest. During the evaluation, both the names of the author(s) and the evaluators will be kept in complete anonymity.

Editorial Team responsibilities

The Editorial Team is responsible for defining the editorial and ethical policies so that the journal complies with the standards of a renowned academic publication. Likewise, it covers the requirements of dissemination of digital and physical publications through the updating of editorial management platforms and active channels for the dissemination of content.

The selection of the articles is founded on the quality and relevance of the article, as well as its originality and contributions to the field of Architecture and urbanism. In this sense, when an article is rejected, the justification given to the author is oriented through these aspects.

The Editorial Team oversees and fully complies with the standards established by the Committee on Publication Ethics (COPE). Throughout the editorial process, it applies confidentiality, plagiarism control and evaluation mechanisms that make it possible to decide whether to publish or reject a manuscript.

When the Dearq journal receives complaints of any kind, the Editorial Team must respond, and in case the claim warrants it, it must ensure that the appropriate investigation is carried out to resolve the problem. It must also publish corrections, clarifications, rectifications or give justifications.

In the event that a published article presents substantive errors detected by the author and that threatens the scientific quality, he may request the removal or correction. If a third party detects plagiarism, previous publication, unethical conduct or error, it is the obligation and responsibility of the author to retract publicly, which will proceed immediately to the removal or public correction. The correction or public retraction will be made in the next printed issue of the journal as well as in its digital version.

As soon as a volume of the journal is published the Editorial Team has the responsibility of its diffusion among the contributors, reviewers and institutions with whom exchange agreements have been established, as well as the content actualization in national and international repositories and indexation systems.

Ethical Policy

*Este valor está en pesos colombianos y no incluye gastos de envío.

El precio de la suscripción es de $200.000*

La revista se pondrá en contacto con usted.

obtener la suscripción, envíe un correo electrónico a dearq@uniandes.edu.co

años reciba 6 ejemplares de la revista Dearq. Si tiene interés en

SUSCRIPCIÓN Durante
2

INVESTIGACIÓN

__ Casa, ciudad, territorio: una investigación colectiva sobre las transformaciones del habitar urbano contemporáneo

__ La vivienda colaborativa en la era digital como proceso sostenible

__ Cinco principios para una arquitectura vulnerable e íntima: dibujando límites y aperturas alternativos al hogar y al yo

__ Modelado paramétrico en el proceso de diseño: estrategias para crear exibilidad y adecuación espacial para la vivienda social

__ Los inquilinatos en Bogotá: desde la problemática socioespacial hasta una propuesta arquitectónica habitacional

__ Entrevista a Jacob van Rijs

PROYECTOS

__ Vivienda 2.0. Imaginando un futuro

APAN: Vivienda Mínima Ocoyoacac

Cooperativa de vivienda La Borda

APROP Ciutat Vella

INVESTIGACIÓN - CREACIÓN

__ La ciudad, de puertas para adentro

Turn static files into dynamic content formats.

Create a flipbook
Issuu converts static files into: digital portfolios, online yearbooks, online catalogs, digital photo albums and more. Sign up and create your flipbook.