Emily Bigelow Portfolio 2025

Page 1


ABOUT ME

Hello, I’m Emily Bigelow! I recently received my master’s of architecture degree from Lawrence Technological University and am looking forward to starting my professional career. Since the start of my education, I have been passionate about environmental advocacy. It is my firm belief that our built environment can and should support its surrounding ecosystems along with human constituents. In my view, sustainable communities can unlock new, rewarding, and engaging opportunities for all its inhabitants. Through my research-based design approach, I hope to become an innovator in the architectural industry that can make this dream a reality.

CONTACT

PHONE: (517) 743-1036

EMAIL: emilybigelow2000@gmail.com

LINKEDIN: www.linkedin.com/in/emily-bigelow-07222434b

BUILDING BIODIVERSITY 01

ARCHITECTURAL THESIS | FALL 2023 - MAY 2024

PROJECT CONTEXT

Mangrove forests are valuable ecosystems to world health that have been rapidly declining due to human development. Restorative efforts in damaged areas have low success rates due to improper application of site conditions such as sunlight exposure, tidal waves, soil composition, and more. Damaged areas are also popular locations for further human development and aquaculture, which prevents forests from being regenerated due to land ownership issues. This project aims to find a way that architectural developments can coexist with and aid in mangrove restoration through the alteration of improper site conditions.

THESIS STATEMENT

This research seeks to find a symbiotic development strategy, wherein architectural interventions benefit bio-diverse ecosystems along with human constituents. It explores innovative and indigenous strategies for urban integration with mangrove ecosystems which reduce habitat destruction and promote restoration.

As a vehicle for this investigation, I will re-design an existing housing development plan for Nusantara, Indonesia [New Indonesian Capital].

PROJECT LOCATION: NUSANTARA, INDONESIA

PROJECT TYPE: URBAN HOUSING & ECOSYSTEM DESIGN

FACTORS

EXISTING NUSANTARA MASTER-PLAN

SITE RESPONSE

The site for Indon esi a's new capital is located among several damaged sections of mangrove forest. Most are rated low to medium restoration probability due to current land ownership and site conditions. With the change in land ownership and use for the new capital, these sites have potential for restoration with the help of architectural intervention. Thesite arrangement below will support healthy mangrove growth patterns over their lifespan while also meeting the capitals population density demands. The massing of the high density towers reduces mangrove damage caused by excessive shading while low-density areas support fulltermgrowth.

TIDAL CHANNEL DRAINS TO EXISTING RIVER BEYOND
BUSYROAD ISOLATES NURSERY FROM PREDATOR ACTIVITY
LIVING MACHINE

NURSERY TIMELINE

The propagules from the nursery will be transplanted to the appropriate low-density growth zones on the site. Once these trees reach maturity and produce their own seeds, the nursery can remain in operation to fuel other restorative efforts in the area.

LOW-DENSITY STRATEGY

The low-density arrangements on the site will support fullterm mangrove growth from six months onward. This is made possible by combining strategies from indigenous and modern (Nusantara Mid-rise Housing) building typologies as seen below.

LOW-DENSITY PROCESS

The low density communities will utilize temporary shade structures to maintain proper sunlight exposure for the mangroves. These structures will decay, providing nutrients for the trees beneath. Meanwhile, taller structures will be built to accommodate tree growth. This also provides residents with learning opportunities and more comfortable outdoor spaces.

LOW-DENSITY COEXISTENCE

The spacing and height of the low-density settlements will fit within natural mangrove growth patterns without disrupting canopy connectivity. The result is a unique community that provides equally for human and mangrove residents.

REVITALOT FORT WAYNE 02

SPECIAL TOPICS | SUMMER 2023

PROJECT DESCRIPTION

Revitalot was commissioned by The Neighborhood Planning and Activation Workgroup (NPAW) of Fort Wayne Indiana. The goal of this project was to provide new ideas for resident-led site activation and methods of dissemination that would support these interventions.

To achieve this, a three device campaign was designed that would engage a diverse range of community members. Along with this, several site interventions were proposed. I was responsible for designing the campaign strategy, project cards, and Instagram GIF.

GROUP MEMBERS: JONATHAN HAHN, ISAAC FIFELSKI, AAMER SHIRAZIE, & MACKENZIE WILSON

PROJECT LOCATION: FORT WAYNE, INDIANA

PROJECT TYPE: RECYCLED INSTALLATIONS

STARTER PACKS

Starter packs are quick and easy projects that can be completed in 12 hours or less with 1-3 people. These projects, like the Rubber Recliner, are perfect for residents with minimal time and resources who are looking to make improvements. In this case, recycled tires are used which can be obtained for free from local dealers.

ABBREVIATED STEPS:

Cut 1/2 of rim STEP: 2

Insert Small Tire STEP: 3

BASE PACK

Base packs are robust projects that can be completed in 100 hours with 1-5 people. Projects like the Pallet Portal require more man-power, time, and resources to complete. These are ideal for groups of residents who are looking to make large improvements over longer periods of time. In this case, recycled pallets may be obtained for free from local industries or purchased at discounted prices from local shops.

ABBREVIATED STEPS: MATERIALS:

STEPS: 6-7

Rotate 10°

Repeat 9X

STEP: 9
Twisted Tower
New Pallet Foundation 13’
X50 Pallets X300 Screws X1 Power Drill

ENHANCEMENT PACK

Enhancement Packs are additions or adjustments to existing projects from the starter or base pack that can be completed in 48 hours or less with 1-3 people. These projects require varying levels of skill, ranging from simple painting projects, to those like the Wheelie Walkway which require previous knowledge from base packs. Projects like this are intended to promote continued maintenance and improvement of sites over time and are applicable for residents with varying degrees of time and resources.

ABBREVIATED STEPS: MATERIALS:

STEPS: 2-4

Excess Chain Ties to Existing Structure

STEP: 5 & 6

Tire Bridge Connected by Bolts
Photo Credit: Mackenzie Wilson

fortwayne_lots

COMBO PACKS

Combo packs are full lot designs comprised of multiple starter, base, and enhancement packs. These lots are expected to accrue over long periods of time with the combined efforts of multiple residents. They will be presented through the interactive board game and Instagram page. New project ideas and progress updates from residents will be featured here through the use of hashtags.

Check out our newest base pack design! #revitaLOT #PalletPortal #FortWayne

Your story Design.Boom craft_alot artist.tree
Pallet Park Stage 1
Pallet Park Stage 3
Photo Credit: Aamer Shirazie
Pallet Park Stage 2
Pallet Park Stage 4

LITTORAL SPORTSPLEX

COMPREHENSIVE DESIGN | SPRING 2023

PROJECT DESCRIPTION

Littoral Sportsplex is a hypothetical health and wellness facility located on Ashmun Bay in Sault St. Marie, Michigan. The project was intended to service the surrounding community through the use of three key program spaces: a pool, a curling/ice rink, and a fitness room. The building was also required to comply with the performance standards of the Living Building Challenge (LBC), including a particular emphasis on the health petal, materials petal, and water petal.

The resulting design has a deep connection to the surrounding landscape. A series of indoor and outdoor programs cater to the existing activities of the bay while the building itself respects the wildlife living there. This project prioritizes those water-based activities that take place in the littoral zone (from the shore into Ashmun Bay), from which it gets its name.

PROJECT LOCATION: SAULT ST. MARIE, MICHIGAN

PROJECT TYPE: SPORTS FACILITY

FORM & SITE

The building is located at the tip of Ashmun Bay where there is existing development and a surplus of activity. The form of the building was determined by the site forces displayed in the GIF below.

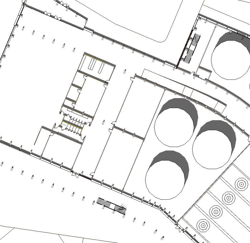
FIRST FLOOR PLAN

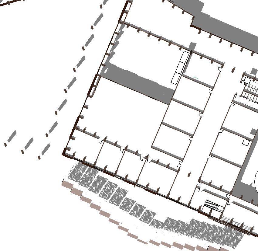
SECOND FLOOR PLAN

PROGRAM CONNECTIONS

The program spaces are interconnected between each other and the outdoors. As required by The Living Building Challenge health petal, views to nature and daylight are accessible from all spaces. Programs like the pool also have direct access to the corresponding outdoor programs.

WATER MANAGEMENT

In accordance with The Living Building Challenge, net positive water is achieved on the site. This is made possible through the use of a living machine fueled by rainwater collection. This recycling and collection is able to produce a closed loop system for water usage.

BUILDING SYSTEMS

Half of the building’s heating and cooling needs are provided by a solar thermal array on the Southern side. The evacuated tubes are inspired by the clear array of Maison Ille de France Universitaire. Hung from the roof structure on thin aluminum frames, the tubes resembles icicles to create an engaging experience from the boardwalk below.

Turn static files into dynamic content formats.

Create a flipbook
Issuu converts static files into: digital portfolios, online yearbooks, online catalogs, digital photo albums and more. Sign up and create your flipbook.