Fangyu Lu 2024 Portfolio

Page 1

FANGYU LU

Selected Works 2024

FLOATING HOMELAB

This is a floating micro home for 2 marine biologists. The house can be in an estuary, a bay, or a marshland. The bumpy bottom surface attracts plankton and other nutrients for fish. In general, the floating homelab helps to promote ecological diversity.

The floating lab is made up of 4 main parts. On sea level, there is the kitchen & dining with a deck which provides ample space for them to do outdoor sampling. The 3 cloud-like pods rotate to enable view in all directions. One pod is the living room the others are labs for the 2 biologists. In both pods, there are skylights that provide a view of the sky. A half part of the micro home is underwater. It contains a washroom and a bedroom. The window in the bedroom enables a view underwater.

MARSHLANDENVIRONM E N T BAY ENVIR ESTUARY MENT PROGRAM Bedroom Washroom KITCHEN Offices Living room

Concept diagram contrasting float boat bottom with the optimized upside-down benthic habitat. (Research information from Buoyant Ecologies Float Lab)

FLAT BOAT BOTTOM

Fouling communities are unified and homogeneous, and usually consist of the most common invasive species. Fouling communities are usually regarded as troubles for ships and other waterfront buildings, which need to be cleaned and maintained regularly.

UPSIDE-DOWN BENTHOS

The undulate surface area provides more “real estate” for the diversity of fouling communities. The fouling communities are more diverse because smaller valleys provide smaller species with a refuge from predators. Greater ecological diversity supports the food chain and enhances the wider ecology. The controlled growth of invertebrates appears as a “wave-attenuating sponge”, which reduces the influence of waves and coastal floods.

KINGSPAN QUADCORE KS GRANITSTONE

Ecological performance, above and below the water, showing possible living organisms on the top and bottom sides of the FLOATING HOMELAB.

SECTION A SCALE: 1:25 A SECTION B SCALE: 1:25 B LOW DENSITY FOAM Help the micro house float. UNDERWATER WINDOW SOLAR BATTERY HEMP BIO RESIN Bio-resin is a commercial compostable polymer.
FLAT BOTTOM MONTH GIRD BOTTOM 2 MONTH BENTHOS 3 MONTH
ECOLOGY
SEL EC *ENVIRONMENT AND ECOSYSTEM DRAWINGS ARE GENRERATED BY AI
SMALL
According to Kingspan, it is a complete, high-performance insulated metal panel. Collect electricity from solar panels on roof.

2

3

4

5

7

7 3 3 4 5 1 0 m FLOOR PLAN 1.6 M FLOOR PLAN 2 1 0 .8 M FLOOR PLAN 2 -1 m FLOOR PLAN 4 3
DOCK
1
KITCHEN AND DINNING
LIVING ROOM
LAB
OUT DOOR TERRACE
70 GALLON WATER TANK A BIOLOGICAL S A M P L E C O L L E C T I O N LAB LAB
70 GAL. WATER TANK SOLAR BATTERY SOLAR PUMP 30 GAL. WASTE HOLDING TANK WASTE DECK PUMP OUT SOLAR PANELS INVERTER SUSTAINABILITY
A SPACE FOR FASHION IN BIELLA, ITALY
BIELLALAND
5 4 3 7 6 6 1 8 RECEPTION AND CLOAK CHECK RESTROOM AND LOUNGE DISPLAY ROOM COMPUTER LAB FABRICATION WORKSHOP FABRIC ARCHIVE OUTDOOR STAGE
to touch and feel wool textures while exploring this transformed wool mill to encounter new fashions designed by young fashion designers. The exhibition strategy is to create rearrangeable fashion settings visible from a curated looped path that allows for a variety of settings for experiencing new fashions produced by on-site fashion designers and artists. TEMPORARY EXHIBITION PERMANENT EXHIBITION SCANNER 3D PRINTING FABRIC ARCHIVE MEETING TRAINING MEETING ROOM ENTRANCE
Viewers are invited

DAYTIME FRONT VIEW

An outdoor woven topiary-like overscaled fabric icon contains a new stair to Michelangelo Pistoletto’s Third Paradise space while also becoming a new beacon for the progressive Fashion Museum. Lighted at night, its glow can be seen from far away.

NIGHTTIME

Pandemic Modular Student Residence

Personal project

Location: Waterfront, Toronto

Display

Assembly

Each module can hold one to two people. Modular
3X3 4X2 2X2 2X2_2 3X2 3X2_2 4X3 Generate different modules Create gaps for air ventilation Leave empty space for public area Modular
3X2_2 3X2 3X2 3X2 -4X2 -3X2 2X2 3X2_2 3X2 4X2 -3X2 3X3 4X2 -2X2 3X3 4X3 2X2_2 2X2 3X2_2 4X3 2X2_2 3X2_2 -4X2 58cm 3X2_2 3X2 3X2 -2X2 3X2 -4X2 -3X2 2X2 3X2_2 3X2 4X2 -3X2 3X3 4X2 -2X2 3X3 4X3 2X3 2X2 3X2_2 4X3 2X3 3X2_2 -4X2 3X3 3X2_2 3X2 2X2 3X2_2 3X2 -2X2 4X2 3X2 -4X2 4X3 -2X2 -3X2 2X2 2X3 3X3 3X2_2 3X2_2 3X2 4X3 4X2 -3X2 2X3 -4X2

SITE

Waterfront, Toronto, Canada

Site Map Design Rationale
Residents will take the closest elevator to his unit, entering the public corridor and then go in their units from their private
By placing residential area face to face, a communral atrium is
Starting with dividing space into multiple modules. Inspired by Unité d'habitation
Le
Residents on every three floor will share one corridor. Unlike a typical residential housing layout, the horizational circulation (corridor) "surrounds" residential units. The purple cubes in this diagrams are representing balcony modules.
George Brown College
balconies.
formed.
by
Corbusier.
Master plan General Floor Plan

Vertical Campus in Mexico City

Location: Mexico City

Year: 2023

The project, College of Design and Art Plus or CDA+ is to be a building as a campus, “a campus within a campus, a city within a city, condensed and cohered as a vehicle to explore architecture as urbanism”. The campus is a nested structure comprised of layers of porous shells, which creates a blur between outdoor and indoor space, and forms a connection between the campus and its vernacular.

There are 3 shells in total: the outer shell, in-between shell & the inner shell, people can feel a gradual change of domain from private to public as they travel from outer shell to inner shell.
Inner shell In-between shells Outer
The outer shell is 6 to 8 meters thick, which contains array of small individual units, for example, design studios on the middle levels and residential units on the upper levels.
shell

SECTION

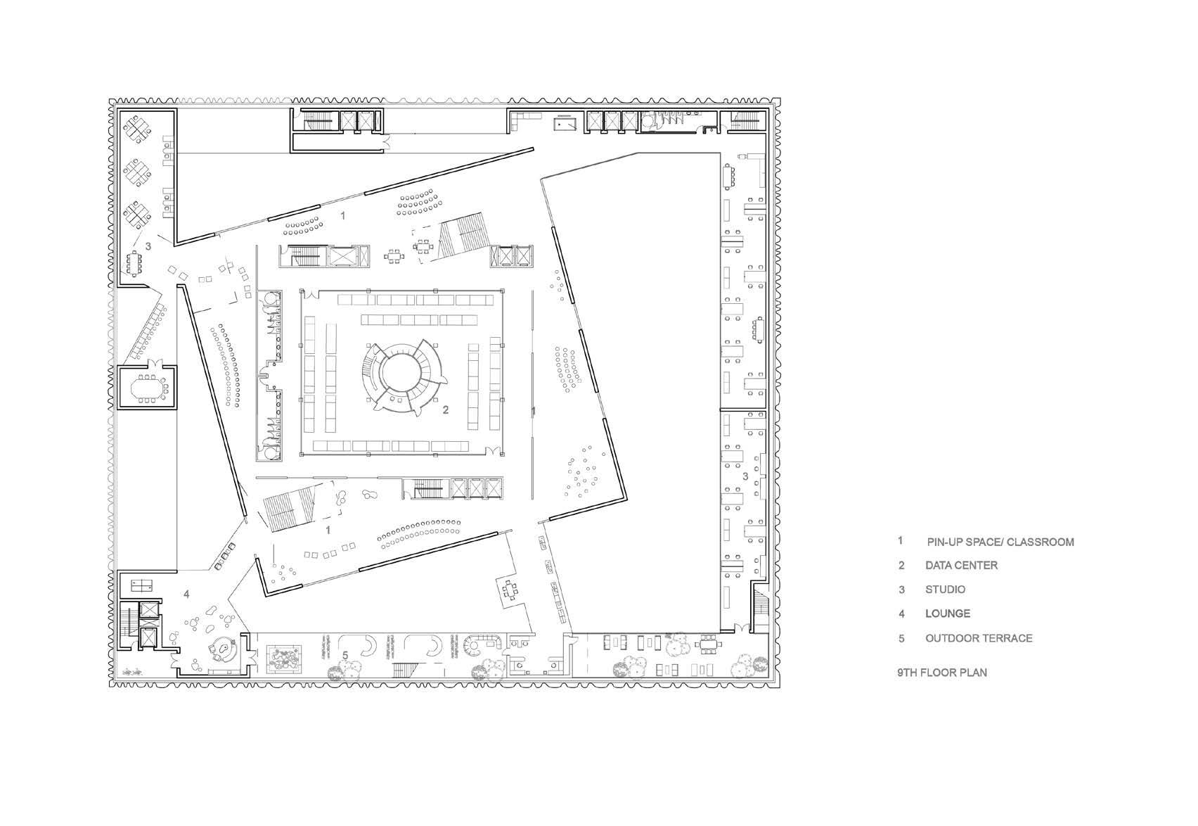
MODEL OF INNER SHELL The inner shell receives the least amount of natural light, so it holds large public space that does not need muuch natural light, like library stack area on the ground floor, lecture hall on the second and third floor, and a data center as the plus program in this project. In terms of building envelop, the facade is made up by preforated metal with different scale of undulation so that the facade can manipulate the amount of light enters into the interior. The In-bewteen shell holds open communal space like pin-up space, classrooms and workshops.

SuperMuseum

Loction: North Adams, United States

Year: 2022

Instructor: Devyn Weiser; Paige Davidson Collabrator: Tethys Xu

Supermarket + Museum = SuperMuseum

This project introduces a new museum type. Instead of a private, indifferent exhibition space, Supermuseum highlight the community vibe and the sense of engagement.

The SuperMuseum, aligns itself with the institution as an informal place for engaging and viewing art. We would like to have our museum more like a neighborhood market, free and open to the public, easy access and non-monumental.

+ Activitiy in Museum = Possiblilities of the SuperMuseum Activity in Supermarket Scenario 1: Exhibtion Scenario 2: Art Fair Scenario 3: Workshops Scenario 4: Lecture Scenario 5: Preformance Concept
+ Museum circulation = SuperMuseum Circulation Supermarket circulation Mass Moca Map Proposal Existing Building SuperMuseum SM-Blackbox Theater 3 1 1 3 4-5 6 7 2 2 4 6 7 5 The Gallery at TABF Mass Moca Ticket Office Cafe

The large open space of super museum allows flexible arrangement of various activities happening inside and outside.

The museum connect Marshall street and Hoosic River activate outdoor space by having operable doors open seasonally for art market and other outdoor activities

The Blackbox with double floor height holds performance, and event with theatrical experience

Scenario 1: Art Fair

Scenario 2: VR Experience

Animation Video Link: https://fangyulu424.wixsite.com/portfolio

Mass Moca Existing Building Mass Moca Existing Building

Turn static files into dynamic content formats.

Create a flipbook
Issuu converts static files into: digital portfolios, online yearbooks, online catalogs, digital photo albums and more. Sign up and create your flipbook.