
ARCHITECTURE PORTFOLIO
Selected works 2019-2024
joeyfong2002@gmail.com +852 66754022
ARCHITECTURE PORTFOLIO
Selected works 2019-2024
joeyfong2002@gmail.com +852 66754022
The University of Hong Kong (First Class Honours) Bachelor of Arts in Architectural Studies (2020-2024)
University of Toronto
John H. Daniels Faculty of Architecture, Landscape and Design Term time exchange, year4 semester1
Aedas
Architectural Graduate (Jul 2024-)
The University of Hong Kong Student Teaching Assistant (Sep-Dec2022)
Ronald Lu & Partners
Architectural Intern (Jun-Jul2022)
This portfolio shows a variety of projects I did, all of which raise a “what if,” “why,” or “how” question, revealing the exciting design journey that stems from my innate curiosity.
I am drawn to architecture as it is a bridge between desires and emotion, the past and future, creating enduring impacts. The following projects not only present a viable structure and functional spaces, but they also respond to a historical dialogue, investigate innovative building technology, or react to their cultural and social contexts.
Many hand drawings, hybrid drawings, and physical models can be found in my portfolio because they are what I enjoyed the most in this journey. I love their process of thinking and exploring while making, and their nature of embracing “wrong” moves. To me, architecture is fun because it does not have a definite answer; rather, one seeks it through their unique lens and methods.
In my postgraduate studies, I wish to continue this journey of purposeful design, and take a step further by engaging in cross-department collaboration that creates innovative designs to address the issue of our times.
Flexible and Domesticated Communal Space within an Universal Housing Typology
Project type: ARCH4080:
Date:
Project Location:
Academic- The Univsersity of Hong Kong
Studio Elspeth Lee M.
Spring 2024 - 1/2 Semester Project
Tokyo, Japan
“A House is an extension of a city”
This realization has served as the starting point for my project, which aims to explore how communal and domestic spaces can coexist and thrive within a dwelling block, recreating a sense of community and daily encounters reminiscent of the alleys of Tsukishima.
At the core of this project is the idea of “ DOMESTICATION ” –the intrusion of the “living” volume both vertically and horizontally, creating voids that are then filled up by communal rooms and areas. Each communal space serves as an extension of the urban space, seamlessly connecting the city to the block.
“FLEXIBILITY” is another key aspect of the design, achieved through the use of a fundamental kit of parts, taking inspiration from steel-framed projects. These elements can be arranged and assembled in various ways to create different types of spaces and functions Rather than prescribing a fixed design, this project offers a flexible, universal proposal that can be adapted across diverse housing types. It is not a singular housing solution, but an adaptable framework that addresses the challenges of housing and urban development.
Tsukishima, in Chuo ward, is an artificial island located on the mouth of the Sumida River. Tsukishima is famous for its narrow roji alleys, which offer its residents everyday opportunities for informal, intimate encounters and give the area a strong sense of community.
A 10-day field trip was organized to thoroughly observe the site. I studied not only the architecture but also the local life, unexpected gathering spaces, and communal areas.
My observations and emotions were documented through filming, journaling, and sketching. I also had a meaningful desk critique with guest professor from Tokyo University, who provided valuable feedback and guidance on my design.
The semester began with an examination of selected precedent studies – and an identification of their failures, constraints, opportunities, and philosophies. I explored the process of ‘unbuilding’ the New Sky Building, in an effort to understand its underlying structural logic, the durability of its constituent parts, and to assess both its architectural philosophy as well as its overall functionality within the context of climate, weathering and maintenance.
The New Sky Building is a project by Yoji Watanabe built in Higashi-Shinjuku, Tokyo. The building is made up of a central core, which includes main circulations, and modular rooms repeated on the two sides of the core. However, the idea of detachment only exist as an idea but not made possible in real life. On each floor, 2-4 rooms are connected with spine-like corridor to form one apartment. Its battleship appearance isn’t accidental as Watanabe,supposedly born on a US navy ship, borrowed techniques from submarine building.
The precedent suggests a highly individualistic housing scheme, possibly due to the building’s small and narrow site. I wanted to challenge the “privatized corridor” and the extremely individualized approach of it, where communal spaces are embraced and introduced within living spaces.
In response to my reading of the precedent study, I created a configurable tectonic system, both material and structural, which demonstrates an ability to grow and adapt. This growth and adaptation are thought about at the scale of a pre-designed communal “room” unit, which is assembled with a set of fixed “kits of parts”. Building elements are identical, but spaces designed are unique. The relationships between elements and the matrix are tested iteratively.
As I reflect on the legacy of Metabolism in architecture, I recognize both its aspirations and its limitations. Metabolism promised a future where buildings could evolve alongside changes. However, this very promise led to a very modular and repetitive design. Metabolism’s failure lies in its struggle to break free from the rigidity of its own principles. Buildings became predictable.
In response, my design proposal seeks to honor Metabolism’s core tenets while transcending its limitations. I propose a communal housing project built from a standardized set of building elements—a kit of parts. But within this framework, I introduce deliberate variations. Each communal space—whether a garden, library, or meditation room—takes on a distinct form, responding to the unique needs of its users.
The ten constructed spaces illustrated below accommodate various functions such as a zen garden, sento, and shared kitchen. Each space corresponds to specific urban and public programs related to japanese culture, sports, or social behaviors. They are all constructed from the same set of building elements but arranged and composed differently to create an unique space for gathering and interaction alongside living.
The Mid-rise housing prototype features a C shape block and a single sided corridor. All units are facing outwards to the street and formed a public courtyard within the dwelling on ground floor. It is a very common mid-rise housing type, therefore is served as an example to demonstrate how the concept works.
The Renderings convey the experiential aspect of my project and help viewers connect with the design on a more personal level, “standing inside the spaces”.
The 1:50 model provides a glimpse into the ground floor to the fourth floor. The preserved original alleyway, a doubleheight lobby, and an open gathering area characterize the ground floor.
Three distinct unit types are showcased. And within the exposed frame grid structure, modular elements can be rearranged to accommodate various layouts, emphasizing flexibility and adaptability.
Rather than prescribing a fixed design, I offer a flexible, universal proposal that can be adopted across diverse housing types. It is not a singular housing solution but an adaptable framework that addresses housing and urban challenges.
1:100 Plans
Axonometric Drawing
The Tower’s central Vertical Core serves as a “Public Spine” that organizes the circulation, consolidates the building’s utilities and infrastructure, and functions as a vertical urban space.
The Nagaya typology addresses the urban leftover spaces in Japan. The “senbiki” method of dividing land into small irregular plots in Japan has resulted in numerous leftover spaces between buildings. By using the design as a plug-in system, these “ma” or “negative spaces” can be activated and transformed into functional communal spaces with an elevated walkway above the street.
Project type:
ARC361:
Date:
Project Location:
Remarks:
Academic- The Univsersity of Hong Kong
Design Studio Prof. R. Shane Williamson
Fall 2023 - 1/2 Exchange Semester Project
Toronto
High Pass (A+) for term time exchange
In the past, publicness was often associated with physical spaces like parks, public transportation, or malls. However, in this era of digital age, publicness is mediated through the internet and virtual spaces. After the pandemic, work-from-home became more common and that is why I ask myself- how could architecture adapt or respond to this new mode of living?
The project centered around rethinking the relationship between work and living environments with inspiration from vernacular houses when people used to work at their homes. The design envisions a hybrid home-office for an ordinary office worker that challenges the conventional belief of home and labor as separate realms. It integrates working spaces with domestic activities, with interesting moments of intersections between the two programs. Spatially visualized as “houses inside a house”, dwellings are represented as separate volumes within an overall envelope and the remaining space serve as the co-working office area. What in the house has to be truly private and what publicness means in today’s context are reassessed. When living spaces are streamlined and compact, work becomes part of the inhabitants’ daily lives.
This exploded axonometric is a hybrid drawing of my handdrawing and digital drawing. It shows that dwellings exist as separated volumes inside the envelope, while all the remaining space and gaps serve as the office space. The living spaces are compressed into a minimal streamlined process, while work emerges as part of the daily lives of the inhabitants
Site: Kensignton Market, Toronto
The site is at 162 Augusta Avenue, in Kensignton Market. At that time, the site is occupied by a garage structure that faces to the East Augusta Avenue, to the South a laneway, to the West an open space / courtyard, and to the North the two semidetached houses. The size of this site is approximately 5m x 11m.
Beyond my research focus on the typology, history and urban fabric of the site, my drawings further explore the upper house-lower store hybrid housing typology where my design starts by challenging this common phenomenon found on site. A booklet of my obervations and reflections was made.
1:100, 1:50. 1:25 Models Top views of 1:25 model
In my studies on workhome history, I discovered that people used to do work and living in the same space, but after the industrial revolution, work and living became segregated, with individuals commuting to their workplaces and returning home to distinct environments. Yet, In the wake of the COVID-19 pandemic, a huge transformation has occurred in the way we approach work and living spaces. Remote work is becoming increasingly prevalent, the boundaries between work and home have become blurred.
One of the key issues that has emerged is the lack of dedicated workspaces within residential environments. Many individuals find themselves confined to makeshift home offices or simply working from their kitchen tables.Therefore, my vision is to design a house for an ordinary office worker where I challenge the belief of home and labor being opposed realms.
In my design, working spaces has merged with domestic activities, and domesticity has been released from the home under the command of taking place within work spaces.
Rooms are designed to protrude floor slabs to create dynamic spaces and various interesting moments. The moments are design that the Dwelling and Working spaces are invading one another. This is to introduce flexibility in living, as well as the idea blurring the boundary between the two programs.
The slanted facade is for the better entering of sunlight into the lower floors. Thresholds are opened strategically to allow sunlight to enter into all the volumes while protecting privacy of spaces like bedrooms. The interior photos of the 1:25 model show how light enter the house.
Project type: ARCH3080:
Date:
Project Location:
Academic- The Univsersity of Hong Kong
Studio Elspeth Lee M.
Spring 2023 - 1/2 Semester Project
Hong Kong
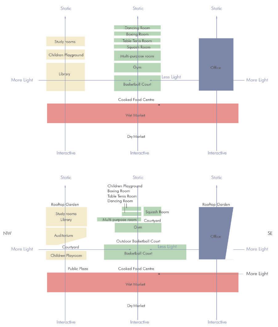
Building construction has evolved to prioritize spectacle over practicality and maintenance, resulting in buildings that are designed for instant dissemination and forgetfulness, rather than enduring use. This culture dismisses architectural maintenance as irrelevant to design.
Hong Kong’s Municipal Services Buildings present a unique opportunity for architecture to become an active participant in the daily life of its community - a multi-programmed neighbourhood centre that has the potential to respond to its context and elevate the everyday experience beyond the expected. This project is interested in what the aesthetics of maintenance could look like through exploring different readings of everyday spaces, how the repeated actions of individuals and communities create patterns of use and occupation, and how these can become drivers in the design process - positioning the MSB as an everchanging framework which serves needs of the municipality.
Ant-eye view Axonometric Drawing: Studies on the Operations and Maintenance of pipes and tubes in wet market
Site: Pei Ho Street Municipal Services Building
The analysis of Pei Ho Street Municipal Services Building was involved to understand the context, and to critically examine the systems and processes at work within the building – assessing the overall functionality in terms of operations and maintenance. Issues were observed to be addressed and opportunities to be leveraged in the design.
The markets of Sham Shui Po are the district’s centre of economic and social life. The historic analysis of the area suggests that its morphological structure has always been somewhat dynamic, expanding and shifting.
Close up Moments capturing our observations and interviews of Maintenance activities around and inside the MSB
Exploded Axonometric Drawing:Ciculation Studies of the three main stake-holders in MSBVisitors, Workers & Cleaners
HSBC Hong Kong is analysed as a structural case stduy. By iterating different structures and testing their performance on Karamba, the final design is logically derived.
1:200 Sectional Axonometric Drawing / 1:25 Detailed Drawing
Design Experiment 01:
Structural Alternative
The result shows that the cable supsending design also hang the floor plates nicely with similar moment to the design with truss beams, while more interior space for people to use.
design can bending while leaving
Experiment 02: Cable Connection Method
The chosen option offers greatest strength and least bending moment, also provides the creation of two space- inside and outside the truss column cores.
My design proposal aims to create a welcoming and recognizable market by reconfiguring the front and back of the house. The design adopts a few strategies derived from the structural case studies and volumetric explorations in earlier phases and was followed throughout the design process:
1) lifting the ground floor to create an open plaza
2) placing services inside structural truss columns
3) adopting a three-volume zoning strategy
Each of the main volumes is equipped with four service cores: a staircase, elevator, cargo lift, and washrooms. These cores house the pipes that provide water, air conditioning, and electricity to the building. Although these service cores are not hidden from the main programs, they are physically separated.
Project type: ARC380Y1:
Date:
Project Location:
Team:
My Role:
Academic- Univsersity of Toronto
Technology Studio
Fall2023 - 1/2 Semester Project
Toronto
Chen, Giatzoylou, Yu Grasshopper scripting (form-finding), Line drawings, Robotic arm’s Execution
The design project seeks to address the question of “how a robotic arm can enhance the production of modular walls?”. The design process encompasses mold making via foam cutting and the implementation of Grasshopper coding to program a UR10 robotic arm. This enables the casting of each 1:1 module using concrete, facilitating their seamless stacking to form a continuous wall structure. The design of the wall is developed by studying minimal surface geometry, and experimenting on their degree of rotation that create various threshold for the entering of sunlight and natural air.
Custom tools were designed to be installed on the robotic arm to perform our scripted actions.
Animated Simulations of our Workflow
By using Grasshopper and Millipede’s component, many TPMS can be generated equations. By recognizing the reflected surfaces, and found the original module as most TPMS with reflecting surfaces through planes. “Shrek chosen as a sample to work on in our project.
Millipede’s “Iso Surface” generated by implicit math surfaces, we dissected TPMS are constructed “Shrek surface” was project.
Project type: ARCH3079:
Date:
Project Location: Remarks:
Academic- The Univsersity of Hong Kong
Studio Miho Hirabayashi
Fall 2022 - 1/2 Semester Project
Hong Kong
Selected Work for Exhibition and Presentation at Public Forum
By challenging the current public school built environment in Hong Kong, the design project is closely addressing the context and examine how building envelops respond to the climate and spatial conditions for human activities The project starts by looking at current school environments in a high density city like Hong Kong, consisting boxlike classrooms. Pupils are mostly in fully air-conditioned spaces with a lack of natural light, air, and spatial quality.
A double-layered facade system is designed as a mediator to let light to enter, allowing air to flow and to articulate space that is suitable for a place of learning, exchange, and play. The design intervention focuses on developing thresholds that connect the outside and inside. Organization of existing space is also altered as a response to the new facade. The negotation between the two layers create multiple new “in between” spaces for students to gather, play and rest outside classrooms.
1.0 SITE ANALYSIS
CLASSROOM
- Large in size
- Most clasrooms cluster at the same side of the whole school
- Regular box-like form
- Waist hieght windows that can look down to the playground
- One way without a loop
- Empty ground of carpark (no activities or facilities) at the right hand side
EASTERN FACADE
- Rigid and modular
- Reptition of form throughout the facade
- Facing the carpark which can potentially be a new gathering space
1:50 Axonometric Drawing
1:150 Exploded Axonometric Drawing
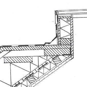
Numerous materials come together in the rooms: the dividing walls between the classes consist of brickwork or pastel-coloured, scrambled concrete and the walls towards the hall are wooden. The facades are glazed-in and the steel construction is visible everywhere. Small glass triangles were worked into the wooden doors, behind the aluminium door handles.
By studying the school, I had derived my interest and spatial typology- habitable In between space.
The exisitng design of the site lacks visual connections which limited the social interaction between students and teachers. To challenge he boxed like classroomsall closed off windows we often see in traditional schools, and see how rooms can be designed differently to introduce natural light and air, I experimented with sketches, diagrams and sketch models to explore how an addition of double layer facade and the tilting of space extracted from the case study can offer new spaces and better micro-climate.
Tilted Facade
Solar gain is reduced by the use of projecting windows, tilted away from the sun on the east, west and south facades, and by the extensive use of opaque panels that comprise more than half of the facade.
The projecting vision glass panels reduce peak cooling demand by up to 27 per cent compared to a flat facade, and consequently plant size is smaller, too. The pattern of the tilted windows eliminates the monolithic effect of the glazed facade, which is further animated by the use of optical lenses in the opaque panels. They act as prisms and reflect light differently depending on the amount of sun and the time of day.
The extra space between the two facades serves as an extension of the classroom and a new gathering space for students between classes. With the displacement of floor slabs, voids are created to connect different levels, encouraging interactions among students from various floors, which was not possible before due to the stacking design of the whole building.
Project type: ARCH2080:
Date:
Project Location:
Academic- The Univsersity of Hong Kong
Studio Oggioni Chiara
Spring 2022 - 1/2 Semester Project Shaanxi, China
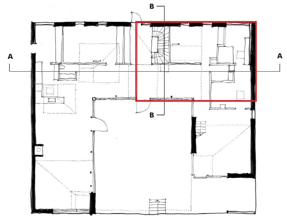
The design project looks at the underground houses in Shilipu village, Shaanxi, Northern China. The particularity of the village is that it has a linear development alongside the main road, which is about 10 meters wide and 6 meters deep. Originally the village was made of pure courtyard houses excavated vertically into the ground while the street was just a narrow strip cutting through it…but with time the street was transformed into a larger road expanded towards the houses. As a result, some houses disappeared, and others got directly connected with the main road. With the passing of time, new constructions above the ground started to emerge as well, bringing the village to a hybrid living condition: above and below the ground.
The studio explores the spatial dimension of the village by rethinking the sectional relationship between human and nature, the individual houses and collective road, the enclosed rooms, and the open courtyard. The design criterias, the design moves and the materials used is a response to the context and a reflection on the phenomenon of traditional houses being abandoned, phasing out from the modern world. The design starts with a design question “ Can Tradition and Modernity coexist?”
1. Existing Site
2. Design: Excavation & Addition of new spaces and roof
1.0 CONTEXT & DESIGN BRIEF
Underground houses in northern China are into the Loess Plateau. The families’ collective while the individual activities are organised into deforestation have led to the degradation of above the ground. Villagers are not choosing spaces are linked in one idea of home and
A new programme “GUESTHOUSE” is added privacy and community in mind becomes the
a unique typology carved into cliff-sides or dug vertically collective life is organised around an open introverted courtyard, into equal rooms carved around it. Years of intense farming and of the soil, while new high-rise concrete-frame structures appear choosing a living condition, above or under, over the other - the two dwellers’ movements often follow the rhythm of the seasons.
added to the site, where re-designing the venecular house with both the challenge.
UnderGround Plan
It is a narrow 2.2m-long vaulted space with various activities arranged in a row, like a train. They are placed such that each activity spill over onto the northeast side in the form of alcoves and projections, and on the southwest under the large 4m overhang provided by the main vaulted roof. The design ensures that activities are cocooned into private secure spaces, while the spillover occurs in the living areas, which are large and open to nature.
The house is simple, with clearly defined lines and masses, yet the interplay in the volumes becomes hard to distinguish where the inside ends and the outside begins. Long steps create a further demarcation of spaces, and they continue on the outside into the garden.
Excavation
- stepped topography - gradual ascent from below ground to the surface - connects the lives on both sides
Addition
- offer indoor spaces above ground - vaulted roofs that mimic the contours of the dug-out caves
Courtyards
- dynamic interplay of open and closed spaces
- privacy of the owner’s house vs community interaction within the guest house
A 3 minutes stop motion video is created to introduce my design through animating with my model and a voice over narrative. The video introduces the history and social values of the site, then explains how the private and public spaces within the design is dissected and merged, finally walk through my design with the sectional model. At the end of the video, it questions the audience the roles of architects in design, what should we keep or change in our design process.
Technical Study- Material Construction Project
Project type: ARCH2058:
Date:
Project Location:
Team:
My Role:
Academic- The Univsersity of Hong Kong
Building Technology
Spring 2021 - 1/2 Semester Project
Fredensborg
Hau Sze Chai
Responsible for Plan & Section Drawings, digital and physical modelling done collectively.
Residence in Fredensborg is a project that completely transforms an existing villa beautifully situated on a large site filled with trees in Fredensborg, Denmark.
Choosing a 6x9meters area for the 1:15 model, the model project cropped out a corner of the house which cut through the top of the roof and the skylight. The project is to investigate the material and structural details of the precedent with analysis drawings and models made.
Nina Park Pavilion Design Competition
Project type:
Date:
Project Location:
Team:
My Role:
Competition - Shortlisted, Honourable Mention
December 2023
Hong Kong
Tang King To & Yeung Ho Pak
Responsible for Renders & Diagrams.
Digital and physical modelling were done collectively.
The pavilion emulates the intricate beauty of trees where they are hermetically isolated but also interconnected with a unique relativity. In echoing Nina Park’s aim of exhibiting and educating fossil woods in an urban park, the pavilion resembles the rejuvenating experience of space sitting under natural trees. Everyone can freely rest and interact with different peowple and activities, which creates a tranquil yet rich experience amongst the interconnected ‘trees’ of the busy urban context.
The pavilion is formed by a cluster of 4 canopies, each supported with 2 columns. Canopies are overlapped and tilted, forming a whole while producing a captivating interplay of shade and light. Different angles of canopies allow sunlight to filter through while efficiently guiding rainwater in a controlled manner. To reflect the shady and natural materiality of trees, wood was extensively used as the main structure while complemented by the top layer of semi-opaque polycarbonate for weather protection. This maintains the lightweight aesthetic and functionality of the pavilion.
1:100 Plan
Workshop: yoga, writing, design Markets: events for arts, craft, fashion, food
Performances: plays, dance, music Gatherings: meetings, events, celebrations, sharing, talking
Movable furnitures extending under the canopies enhances the pavilion’s inclusivity and sense of place. In form, they break the linear sequence of the amphitheatre seating and create a myriad of gatherings around the ‘trunks’ of canopies. This encourages human interaction in all directions, thus allowing greater flexibility in using the pavilion space. For programs, the furniture in different shapes, heights and sizes allows users’ creative interpretation when fitted on various levels of the original seating rather than being specified as tables or chairs. During activities such as workshops or markets, the furniture can be altered and regrouped to create various forms of interactive spaces according to the needs.
The design aims to rejuvenate the salvaged wood planks from the park and give them a new life. The planks are collected and processed into wooden beams with a base area of 60x60mm, which ensures structural stability and the utilization of raw material. Wooden beams of the same dimension are used throughout the various parts to simplify material sourcing and maintenance in the future. In consideration of potential wood length limitations, strategic joints have been incorporated into the design to connect and elongate the columns and beams, ensuring both constructability and structural integrity throughout the pavilion. The canopy structures can be pre-assembled and constructed efficiently on-site by simple bolt and screw connection instead of precise mortise and tenon joints. This reduces the obstruction caused to the park during assembling and dissembling. The whole design has an extremely low carbon footprint, thanks to the extensive reuse of natural materials.
Project type: Office:
Date:
Project Location: My Role:
Practice Experience- Professional Work Aedas Fall 2024 Shenzhen, China
Responsible for 3D Modelling, Rendering & Post-editing, all works produced by author of the porfolio unless specified.
China Horoy Longhua Guancheng mall is a large scale interior deisgn project in schematic design stage. (Representations here only presents partially the project) The design concept is simulated outdoor scenes in an interior space, giving visitors a feeling of being outdoor, blending naturally with the nearby ecology park.Themed key spaces are differtiated by different metal elements/ colours.
Project type: Date:
Project Location: Personal Work- Self Initiated 2019-2024
Hong Kong
24/7 clock (2019)
This artwork presents a real clock with a mosaic of hectic moments of Hong Kong working class. Twenty-four hours of a day is presented by spiral path, from the centre. The artwork is to mock the workaholic life style of Hong Kong people and to reflect on what is the fair-share of career against family and leisure in one’s life.
The knitted wait (2019)
The project is an art installation depicting a scene mother is knitting in loneliness on the chair, waiting children.
This project is a light drawing choreographed by a UR10 Robotic Arm. The light drawing is created by a long exposure photo taken of a moving light. We designed an architectuure as the drawing as we stated a hypothesis that robotic arm can assist in in-situ simulation of architectural construction.
In my postgraduate studies... beside traditional architecctural theory and design methodologues, I wish to contrinue explore the potentials of Robotic in Construction and automation technologies in influencing and adapting to the emerging narratives within the discourse of architectural practices.