July 2024

Page 1


MIDDLE EAST JULY 2024

WE MAKE THINGS GROW. LIKE LANDSCAPES. BUSINESSES. AND EVEN SOLID RELATIONSHIPS.

RELIABLE PERFORMANCE. DEPENDABLE SERVICE. Get growing with Hunter’s best-in-class commercial irrigation solutions! Our highly efficient rotors, valves, and controllers use cutting-edge, water-saving technologies to ensure landscapes thrive while cutting costs. For proven products, professional service, and profitable relationships, partner with Hunter.

This month, we take you on a journey to Tibneh, one of Jordan’s oldest cities. The Al-Alali eco-tourism project hopes to preserve the heritage of the ancient walled city while simultaneously revitalizing it by transforming Tibneh into an ecotourism destination. If successful the project will also provide jobs for the youth in this remote town, fostering economic growth and community development. Read about the rehabilitation plan and repurposing of heritage buildings using traditional conservation techniques and sustainable materials on page 28.

Similar to the extreme heat in this region, Rajasthan in India experiences excessive hot temperatures throughout the year. To combat this heat, architects have to be creative without sacrificing the traditional building techniques that are part of Rajasthan’s charm.

Enter the Narsighar house on page 36, which embodies the traditional planning principles of the regional architecture prevalent for centuries in Rajasthan. The property is situated in the arid desert region of Nokha, where most of the houses and palaces built in this region have courtyards for cooling down and thick stone walls to mitigate the excessive heat.

The architects have designed the home contextual to the climate, location, and heritage of the region, Narsighar revives traditional Indian craftsmanship, creating an energy-efficient home built to last for centuries, for future generations.

In this issue, we also feature an unconventional landscape project for a family garden in Poland located on an island with a picturesque forest as its natural backdrop. The project family’s request was simple: they wanted a modern garden concept with space for their son to practice football and to maintain the forest landscape as much as possible. See the transformation on page 24

Saudi’s tourism industry has witnessed incredible growth in the past few years with new mega-projects being announced every few months. In light of the anticipated large-scale development that is underway, we take a look at the Saudi Green Initiative (SGI) which is a cornerstone of Saudi Arabia’s Vision 2030, aiming to create a sustainable, greener future for all. This initiative is not only a testament to the Kingdom’s commitment to environmental protection but also a blueprint for how landscape design can play a crucial role in achieving sustainability goals. Learn more about how the initiative will play an integral part in the Kingdom’s transformation in the coming years

Enjoy the issue

Managing Partner: Ziad Maarouf Amine

Copy Editor: John Hampton Phillip Higgins

Administrative Assistance: Sarry Gan

Art Director: Ramon Andaya

Contributors:

Dr. Anne A. Gharaibeh , Michelle D’souza, Phillip Higgins, Wiktor Klyl, Bethany Rolston, Tess Dolan, Maria Azzurra Rossi, Mathilda Rodrigues

Printed by: Al Nisr Publishing LLC

Webmaster: www.pdinventive.com

For free subscription and to view the magazine please visit our website: www.landscape-me.com

The First Specialised Landscape magazine in the Middle East

Our magazine is available in app store and google play, search under Landscape Middle East.

Heatherwick Studio wins competition to reimagine Seoul’s

DUBAI MUNICIPALITY ANNOUNCES WINNERS OF

‘DUBAI’S

BEST HOMEGROWN PRODUCE COMPETITION’

HELD UNDER DUBAI FARMS INITIATIVE

Three winning gardens were designed in accordance with the most advanced and innovative practices of sustainable modern agriculture.

• Advanced agricultural systems such as aeroponics and hydroponics, and integrated water treatment and recycling systems were highlighted during the event.

• Competition shed light on a wide variety of vegetables and fruits.

• Out of 109 competitors, 12 emerged as finalists in the competition.

Dubai Municipality announced the three winners of ‘Dubai’s Best Homegrown Produce Competition,’ which aims to promote a culture of sustainable agriculture through the production of agricultural products and crops at home. The initiative was launched to raise community awareness of the latest practices and techniques in modern, sustainable agriculture.

The competition was introduced by the Municipality in March of 2024 as one of the initiatives under ‘Dubai Farms,’ a program that aims to support citizens who are successful agricultural entrepreneurs, encourage local agriculture to boost local production and improve food security in the Emirate of Dubai, in line with the objectives of Dubai Social Agenda 33.

In keeping with Dubai Municipality’s commitment to fostering community practices, the competition encouraged citizens to promote sustainable agriculture for its vital role in supporting food security, self-sufficiency, and the preservation of environmental resources. This commitment further aligns with the objectives of the National Food Security Strategy, as well as the Dubai Food Security Strategy, which seeks to enhance domestic production and reduce food loss and

wastage, thereby solidifying Dubai’s position as a leading destination that seamlessly blends environmental and food sustainability.

Innovative Practices

The winning gardens adopted the most cutting-edge and innovative methods and practices in modern agriculture, which are in line with the national strategic goals for food security, sustainability, and clean energy. As part of the initiative, the Municipality addressed the competition’s positive impact on communities, and its success in promoting local participation in the development of sustainable and selfsufficient societies.

Advanced Agricultural Systems

Dr. Sultana Osman Yousef Suleiman’s Garden, located in District 1, Jumeirah, came in first place and was awarded AED 50,000, in addition to a ‘Medal of Dubai’s Best Homegrown Produce,’ which was presented by the Dubai Municipal

Leaders. Dr. Sultana’s garden met several requirements, including the cultivation of multiple fruit and vegetable varieties using aeroponic systems, which are among the latest agricultural systems used. The garden also employs an advanced system for cooling greenhouses, a water treatment and recycling system, as well as bacteria to improve the quality of irrigation water, all of which contributed to its success. In addition, the garden features a drying system for agricultural products, distinctive distillation system for aromatic plants.

Furthermore, the garden was distinguished by its advanced drying system for agricultural products and a unique distillation system for aromatic plants. Additionally, it boasted a trademark that represented the garden and its commitment to sharing agricultural knowledge and culture.

Agricultural Diversity

Ms. Naeema Mohammed Al Amiri’s garden in Al Garhoud secured the

second position, with a cash award of AED 30,000. The innovative aquaponic system and abundance of plant species made this garden a top pick for the panellists. The garden features lakes for fish and fountains, and since the water from the lake has a significant nutrient content, it is recycled and used as fertiliser which greatly benefits the plants. Moreover, the garden is equipped with an advanced underground irrigation system that effectively minimises water wastage and evaporation. The garden’s ecosystem is further enhanced by an apiary, which plays a crucial role in pollinating plants and producing honey and meshes seamlessly with the landscaping.

Sustainable Practices

The third place and a prize of AED 20,000 went to Mr. Jamal Abdullah Almuheiri’s garden in Nad Al Sheba 2. Mr. Almheiri’s garden showcases a range of cutting-edge agricultural techniques that produce a wide range of fruits and vegetables. Notably, his garden stands out for its cultivation of Azolla, a feed source for poultry and livestock. By using a gravity-powered hydroponic system, Almheiri can produce highquality dried produce, while also

conserving energy. The panellists found this approach to be particularly noteworthy as it complies with the highest health and safety standards.

A total of 109 participated in the contest, out of which 12 qualified for the final stage. Out of these finalists, three winners were selected based on a set of technical and specialized standards. The Dubai Municipality has actively encouraged residents’ agricultural endeavors by offering valuable resources and support. These initiatives aim to promote sustainable agriculture among citizens, as well as increase the contribution of small-scale home agricultural projects to the GDP of the Emirate.

WOODS BAGOT ANNOUNCES NEW CEO, SARAH KAY

Woods Bagot, the global architecture, interior design, and master planning firm operating across 17 studios worldwide, is pleased to announce the appointment of Sarah Kay to the position of CEO. Sarah will assume the role from July 1, 2024, leading the next step in Woods Bagot’s journey towards total place design, with an emphasis on how place design can positively impact society. Sarah succeeds Nik Karalis as CEO after his nineyear tenure and heralds a new chapter for the firm, which was founded in 1869 in Australia.

” I feel compelled as an architect, and now as a CEO, to have a positive impact through our work,” states Sarah. “As architects and place designers, we are perfectly positioned to have a positive influence on the world ahead of us.

It is in fact our responsibility to have a leading voice in shaping our cities and our places with a long-term, sustainable and socially responsible outlook. Woods Bagot is inherently collaborative, and I am excited and buoyed by the future that we can achieve by working together across our diverse skills and services within our industry.”

Sarah has been a member of the Woods Bagot leadership group for 25 years and a director for 15 years. A highly respected architect with an extensive international career spanning North America, Australia and the UK, Sarah has led and designed high-profile projects and integrated precincts across commercial, transport, residential and culture sectors. Most recently, Sarah has led Woods Bagot’s Sydney studio,

The First Specialised Landscape Magazine in the Middle East

a role she has also held in New York. As CEO, Sarah’s expansive business acumen will continue to broaden Woods Bagot’s impact through its diverse specialist brands such as ERA-Co, Customs Bureau, and sustainability consulting business Global Impact Group (GIG).

Sarah takes the reigns from current CEO Nik Karalis, who was appointed CEO of Woods Bagot in 2015. Under Nik’s guidance, Woods Bagot’s global net revenue increased by 33% and saw significant growth across the firms’ Transport, Cities and Places, Civic and Events, Health, Workplace, and Education and Science sectors. Nik’s tenure saw the business complete scores of complex projects including The Londoner, Te Pae Christchurch Convention Centre, Collins Arch, The Amberly, Funan, IRENA Headquarters and Masdar City Square (MC2), and Minthis Hills.

“This is an incredible moment in our history. Driven to reinforce our shared excellence by amplifying the power of design, Sarah’s global career, strategic mindset, business leadership, board experience, and focus on cultural inclusivity make her an incredible leader capable of driving the next chapter of Woods Bagot forward,” says Nik.

Sarah takes over the leadership role at an exceptional time in the 150+ year history of Woods Bagot. The global studio has cemented its reputation as a design leader internationally, while simultaneously beginning to expand its service offerings beyond the core of architecture and interior design to include brand, urban strategies and user strategies – this combined offering has delivered some of the world’s most complex infrastructure projects.

GULF CONTRACTING & LANDSCAPING UNVEILS ONE OF THE UAE’S LARGEST PLANT NURSERIES

The expanded site in Al Rahba covers 1.25 million sqft with another 1 million sqft driving responsible production and propagation of plant life for local climates +300 varieties of plant life are already being seeded to public parks, communities, and private spaces, using advanced agritech to support plans such as the Dubai Quality of Life Strategy 2033 and Abu Dhabi 2030 Urban Structure Framework Plan.

Gulf Contracting & Landscaping (GCL), an Al Khayyat Investments (AKI) company, has unveiled one of the UAE’s largest horticulture nurseries in a move to further optimize local natural resources while serving its customers across the UAE and the GCC region. The expanded nursery is located in Al Rahba, Abu Dhabi,

covering 1.25 million sqft and holding more than a million plants that thrive within the local climate.

The facility has undergone remarkable growth since its formation in 2007, with GCL steadily acquiring adjacent nurseries in Abu Dhabi as well as developing sites in other emirates. Today, GCL nurseries are home to over 300 varieties of plants, shrubs, trees, and ground cover for use in GCL’s landscaping projects as well as for external developments.

Along with the expanded Al Rahba site, GCL is enlarging its nurseries across the UAE and GCC, and is planning to build a new facility - set for completion in 2025 - that will span more than 1.5 million sqft.

The announcement comes at a time when the UAE is rapidly transforming

its outdoor spaces and advancing green developments, embodied in recent plans such as the Dubai Quality of Life Strategy 2033, which includes developing over 200 parks in the emirate alone, and the Abu Dhabi 2030 Urban Structure Framework Plan, which aims to improve the liveability of the capital’s residents.

“At GCL, we are committed to playing an integral role in making the UAE greener in line with the leadership’s vision for enhancing quality of life,” said Rami Hamad, CEO of GCL. “Moreover, we see great potential to provide local, sustainable solutions for such projects, using the latest engineering technologies to maximise efficiencies and preserve natural ecosystems.”

Today, GCL provides end-toend expertise in site preparation, landscaping, infrastructure, civil works, aquatic works, design and fit out, allowing the company to create everything from manicured greens to strikingly designed public and private spaces. GCL’s design and turnkey implementation capabilities span parks, streetscapes, public realms, residential community areas, as well as golf courses, sports fields, and cycling and jogging tracks.

WITH ARTIFICIAL GRASS THAT’S BUILT FOR ATHLETIC PERFORMANCE AND BETTER LIVING. WITH ARTIFICIAL GRASS THAT’S BUILT FOR ATHLETIC PERFORMANCE AND BETTER LIVING.

Sobha Realty, a leading global luxury real estate developer, has commenced the construction of first of its kind Mall for its flagship community Sobha Hartland in the heart of Dubai. With an estimated cost of AED 210 million, the project blends the vibrancy of retail space with the serenity of an urban park, while ensuring exceptional experiences for residents and visitors. The mall is scheduled to be completed in second half of 2026.

The new mall is being meticulously designed to set new standards for a luxury mall, which perfectly combines nature, culture, gastronomy and recreation. The mall’s exquisite features will provide an inspiring and memorable experience, promoting a sense of community and elevating the quality of life for residents of Sobha Hartland.

Ravi Menon, Co-Chairman of Sobha Group, said: “We are delighted to unveil our new mall, which is a testament to our long-standing commitment towards elevating living experiences for our residents. The project underscores our vision to create integrated and community-focused spaces that seamlessly combine convenience while offering multi-tier retail stores, gourmet dining and diverse entertainment options. Beyond a retail space, the mall is designed to be a pivotal hub for community engagement that offers an ideal blend of nature, culture and recreation that will elevate the living quotient of community members and visitors.”

SOBHA REALTY ANNOUNCES AED 210 MILLION MALL PROJECT WITHIN HARTLAND COMMUNITY

With a built-up area of approximately 339,000 square feet and a gross leasable area of around 115,000 square feet, the project will house a variety of amenities, including a supermarket, gym, play courts, a soft play/entertainment zone and diverse restaurants offering a wide range of food choices. It will feature 35 retail shops and F&B outlets, along with over 10 unique dining options, establishing a new gastronomic destination for the community.

In line with its commitment to sustainability, Sobha Realty has designed the mall featuring greenery, water features, natural lighting, energy-efficient lighting, solar panels, green building materials and a skylight roof for natural light. Furthermore, innovative technologies such as interactive displays, smart lighting systems and digital wayfinding will be integrated to enhance visitor experiences.

Additionally, the mall will feature a variety of unique architectural elements, such as a vibrant bowl with a cascading void stretching from the basement to the roof, creating a dramatic retail experience and a media screen strategically placed on the facade to enhance visibility. The biophilic design includes green walls, water features, floating pods and natural lighting to foster a serene atmosphere. The skylight roof will allow natural light to illuminate the interior and support plant growth.

The project marks Sobha Realty’s strategic foray into the UAE’s retail sector, emphasising its commitment to delivering exceptional living experiences. The mall prioritises the convenience and evolving demands of consumers in the community and in line with this it offers a curated retail mix for everyday and specialty needs, diverse global dining options and ample parking spaces. Furthermore, it is strategically located to ensure excellent view from Ras Al Khor Road.

A VISION FOR GREEN SPACES IN THE UAE’S HARSH CLIMATE

IT’S TIME TO SAY GOODBYE TO HIGH TURF MAINTENANCE COSTS

Imagine walking through a lush, vibrant landscape in the heart of the UAE. Despite the blazing sun and soaring temperatures, the green lawn beneath your feet remains as fresh as a cool spring morning. This isn’t a distant dream - it’s the reality that Desert Turfcare General Trading (DTGT) can bring to your commercial property. As a property manager or landscape professional in the UAE, you are well aware of the relentless heat, scarce water, and high maintenance costs associated with natural grass. The constant watering, mowing, and fertilizing not only drain resources but also inflate your budget significantly. DTGT transforms barren spaces into lush, green havens with our artificial grass solutions, designed specifically to overcome the challenges of natural grass.

THE (DTGT) SOLUTION

Our artificial grass solutions are crafted to tackle the unique challenges of maintaining natural grass in the UAE. Here’s how we make it possible:

DURABILITY IN EXTREME CONDITIONS

Our artificial grass withstands the UAE’s extreme weather, maintaining its vibrant green appearance even in extremely high temperatures. Say goodbye to brown, withered lawns and embrace year-round greenery without the hassle.

COST-EFFECTIVE AND LOW MAINTENANCE

Our solutions drastically reduce maintenance needs. Imagine a landscape that doesn’t require watering, mowing, or fertilizing— resulting in significant savings on water bills and maintenance costs. These savings can be redirected to other important areas of your business, enhancing overall efficiency.

WATER CONSERVATION: A KEY BENEFIT

In a region where water conservation is critical, our artificial grass reduces water usage by up to 70%. This not only benefits the environment but also aligns with the UAE’s sustainability goals, positioning your business as a responsible corporate citizen.

TRANSFORMING SPORTS TURF IN THE UAE

Consider a local sports facility in the UAE that struggled with maintaining natural grass. Maintenance costs were high, water usage was unsustainable, and athletes complained about the inconsistent playing surface. Desert Turfcare General Trading (DTGT) provided a tailored artificial grass solution, resulting in lush, green turfs year-round. Maintenance costs plummeted, water usage decreased dramatically, and athlete satisfaction soared. This success story is just one of many.

VERSATILE APPLICATIONS FOR EVERY NEED

Desert Turfcare General Trading offers a range of artificial grass solutions tailored to various applications:

Football Grounds: Our FIFA-certified grass and FIFA standard grass ensures top-notch playing conditions, complete with base preparation for durability and performance. This guarantees a consistent surface meeting international standard, perfect for professional and amateur leagues alike.

Cricket Grounds: Specialized grass for cricket provides a consistent, reliable surface that enhances playability and safety. Our complete package includes supply, installation, and meticulous base preparation.

Tennis, Paddle, Mini Golf Courts & more: High-quality artificial grass designed for optimal traction, durability, and visual appeal ensures an excellent playing experience. We handle everything from supply and installation to base preparation.

Kids Play Areas: Chemical-free, soft grass that’s safe for kids, offering a secure and comfortable play environment. Our comprehensive services ensure a smooth, cushioned surface that reduces injury risks, providing peace of mind for parents.

Dog Parks: Pet-safe, chemical-free grass designed to withstand heavy use, providing a safe, enjoyable space for pets. We offer a complete solution including supply, installation, and base preparation.

Commercial Landscaping: Low-maintenance, durable grass perfect for enhancing the visual appeal and functionality of commercial spaces. From supply to installation and base preparation, our services ensure that your property stands out with pristine, evergreen landscapes.

WHY CHOOSE DESERT TURFCARE GENERAL TRADING?

Expertise: With years of experience, we bring unparalleled expertise to every project.

Quality Products: Our artificial grass products are of the highest quality, designed to meet specific needs.

Comprehensive Service: From supply to installation and base preparation, we offer end-to-end solutions.

Customer Satisfaction: We prioritize customer satisfaction, ensuring that every project is completed to the highest standards.

CONCLUSION: YOUR PARTNER IN GREEN EXCELLENCE

Desert Turfcare General Trading (DTGT) is more than just a supplier of artificial grass. We are your partners in creating sustainable, beautiful, and cost-effective landscapes. Our comprehensive services—from supply to installation and base preparation— ensure that your project is handled with the utmost professionalism and expertise.

Ready to transform your landscape and experience the benefits firsthand? Contact Desert Turfcare General Trading (DTGT) at +971 04 590 4000 or email trading@desertgroup.ae. Visit our website at www.desertgeneraltrading.ae. Let us help you bring the vision of a green, sustainable, and beautiful landscape to life. Don’t wait—start saving on maintenance costs and water today!

Saudi Green Initiative

Paving the Way to a Sustainable Future in the Kingdom

Saudi Arabia, a nation synonymous with vast deserts and immense oil reserves, is undergoing a green transformation with its Saudi Green Initiative (SGI). Launched in 2021, SGI is a cornerstone of Saudi Arabia’s Vision 2030, aiming to create a sustainable, greener future for all. This initiative is not only a testament to the Kingdom’s commitment to environmental protection but also a blueprint for how landscape design can play a crucial role in achieving sustainability goals.

Three Ambitious Targets, Over 80 Initiatives

SGI is driven by three primary targets: reducing carbon emissions, increasing afforestation, and protecting the Kingdom’s natural landscapes. To achieve these targets, Saudi Arabia has activated more than 80 initiatives ranging from emissions reduction and biodiversity protection to the

establishment of new protected areas. These initiatives are a part of the country’s broader strategy to combat climate change and foster sustainable development.

SGI seeks to unify all of Saudi Arabia’s efforts with a common goal to combat climate change under one comprehensive framework. By combining the resources and expertise of both the government and private sectors, SGI aims to foster collaboration and innovation. This unified approach is crucial for achieving the initiative’s goals, which include growing the green economy and accelerating the green transition.

Emissions Reduction: A Multifaceted Approach

One of SGI’s most ambitious targets is to reduce carbon emissions by 278 million tons per annum (mtpa) by 2030,

paving the way for net zero emissions by 2060. The Kingdom is taking a multidimensional approach to this challenge. By committing to generate 50% of its power from renewable sources by 2030, Saudi Arabia is transforming its energy mix. This transition is supported by substantial investments in new energy sources, energy efficiency improvements, and the development of carbon capture and storage programs. Already, efforts across the Kingdom are bearing fruit. Saudi Arabia has connected 2.8 gigawatts (GW) of renewable energy capacity to the grid, which can power approximately

520,000 homes. Additionally, 3.3 GW of renewable energy capacity is under development, and 8.4 GW is under construction. These efforts are crucial in reducing the Kingdom’s carbon footprint and ensuring a sustainable future.

Afforestation: Combatting Desertification and Enhancing Biodiversity

The second target under SGI is to plant 10 billion trees across Saudi Arabia. This massive afforestation effort is equivalent to rehabilitating over 74 million hectares of land. Increasing vegetation cover not only helps combat desertification but also restores vital ecological functions, improves air quality, and reduces sandstorms.

Since the launch of SGI, over 49 million trees and shrubs have been planted, and 94,000 hectares of degraded land

I SUSTAINABLE DEVELOPMENT

have been rehabilitated. These efforts are already having a positive impact on the environment, with a projected temperature decrease of 2.2°C in city centres thanks to increased tree canopy cover. This initiative also provides numerous social and economic benefits, including job creation and improved quality of life for residents.

Protecting Natural Landscapes: Preserving Saudi Arabia’s Biodiversity

The third target of SGI is to protect 30% of Saudi Arabia’s land and sea by 2030. This ambitious goal aims to ensure that the Kingdom’s unique and varied landscapes and natural resources are preserved for future generations. Working in partnership with internationally leading biodiversity protection organizations, Saudi Arabia is committed to protecting its precious ecosystems.

Efforts to protect the Kingdom’s natural landscapes are already underway. Currently, 66,000 square kilometers of land and sea are protected, with plans to establish a 6,693 square kilometre “No-take” Marine Protected Area on the Red Sea coast. Additionally, significant resources are being dedicated to preserving the Arabian leopard, with $25 million allocated to conservation efforts. Since 2021, 1,669 animals have been rewilded, further contributing to the Kingdom’s biodiversity goals.

Landscape Design: A Key Contributor to SGI’s Success

Landscape design plays a crucial role in achieving the goals set forth by SGI. By integrating sustainable design principles, landscape architects can create environments that support the initiative’s targets. Green spaces, for example, are essential in mitigating the urban heat island effect, reducing air pollution, and enhancing the quality of life for residents.

One of the flagship projects under SGI is the King Salman Park (KSP) in Riyadh, which aims to become the world’s largest urban park. This project will significantly enhance the city’s biodiversity and green space per capita. Increasing green space from the current 1.7 square meters to 28 square meters per capita is expected to drastically improve sustainability, reduce ambient air temperatures, and improve air quality.

A Global Leader in Sustainability

Saudi Arabia’s commitment to sustainability extends beyond its borders. The Kingdom aims to be a global leader in the implementation of the Circular Carbon Economy (CCE) approach, which focuses on reducing, reusing, recycling, and removing carbon emissions. This approach is pivotal in achieving net zero emissions and promoting a sustainable future.

The first wave of investment in SGI, currently at SAR 700 billion, is a significant contribution to growing the green economy. This investment not only supports emissions reduction but also creates quality job opportunities for the next generation of leaders in the Kingdom. The potential for job creation in the green economy is phenomenal, with opportunities spanning various sectors, including renewable energy, environmental protection, and sustainable development.

Enhancing International Relationships

SGI also aims to enhance international relationships by collaborating with global partners to address climate change. His Royal Highness Crown Prince Mohammed Bin Salman Bin Abdulaziz Al-Saud has emphasized the importance of SGI in fostering international cooperation and creating a positive impact on the region and the world. By sharing best practices and technologies, Saudi Arabia can contribute to global sustainability efforts and inspire other nations to take similar actions.

Looking Ahead – The Landscape Middle East Awards, Exhibition, and Conference 2024

The Saudi Green Initiative represents a bold and transformative vision for the Kingdom’s future. By setting clear, measurable targets and implementing a wide range of initiatives, Saudi Arabia is taking decisive steps towards a sustainable future.

Landscape design will play a pivotal role in achieving SGI’s goals, creating green spaces that enhance biodiversity, reduce emissions, and improve quality of life.

These critical topics will be at the forefront of discussions at the Landscape Middle East Awards, Exhibition, and Conference on November 20, 2024. This event, dedicated to the development of the landscape industry, will feature presentations from leading industry professionals, real case studies, and engaging panel discussions. The conference is open to all, with registration required for attendance.

As Saudi Arabia continues to invest in and prioritize sustainability, it is poised to become a global leader in environmental protection and sustainable development. The journey towards a greener, more sustainable future has begun, and the Saudi Green Initiative is leading the way.

Heatherwick Studio has won a global competition to transform an uninhabited island on the Han River in the centre of Seoul into a new public park.

HEATHERWICK STUDIO WINS COMPETITION TO REIMAGINE SEOUL’S NODEUL ISLAND

The project, called Soundscape, creates a trail of dramatic spaces on different levels that can host musical performances and artistic interventions in a beautiful, biodiverse landscape. The design draws inspiration from Seoul’s mountainous terrain and the patterns created by soundwaves and was selected following a year-long series of exhibitions, consultations, and a public vote.

Thomas Heatherwick, the founder and design director of Heatherwick Studio, said:

“I am thrilled that Soundscape has been chosen by the people of Seoul. In this hyper-digital age, we’ve had so many amazing innovations in the way

people live but there has also been an increasing sense of loneliness and isolation. We want to make a hyper-physical place that reconnects Seoulites with nature, culture and, most importantly, with each other.

Nodeul Island will give everyone an amazing excuse to escape and embrace the city. A landscape that bends and folds like soundwaves will combine with a new nature-rich waterfront and offer people a place to discover and express the culture of Seoul. We look forward to working with the Metropolitan Government to realise all their bold ambitions for this site.”

I URBAN DEVELOPMENT

Stepping onto the island, visitors will move through a landscape which evolves as the tides and seasons change. At ground level, there will be an arts centre and a public beach. Rather than demolishing the existing artificial landscape, the design will strengthen the riverbanks with soft, naturalistic planting. The landscape will then rise to an events podium which connects to a dramatic 1.2km skywalk. This trail will be formed of a series of small, floating islets, held in the air,

providing resting spaces with spectacular views across the island and the river back to Seoul.

Neil Hubbard, group leader and partner at Heatherwick Studio, said:

“We’ve been really intrigued by how new interventions can really bring Nodeul Island to life. Its not just about an exciting new aerial canopy, but developing a whole creative ecosystem, where spaces above and below the

floating landscape are buzzing with activity. Upon first discovering a serene, restful island where the landscape focuses on native flora and fauna the visitors will then wander up from the water’s edge to experience drama and harmonies in the sky. Soundscape will be a gateway and a getaway worthy of the energy and life of Seoul.”

Nodeul Island will be Heatherwick studio’s first project in South Korea to go into construction. The

studio will now start work with the Metropolitan Government on the next stages of design, and visitors should be able to enjoy the new Nodeul Island in 2027.

In 2023, the studio curated a retrospective exhibition called Building Soulfulness at the Culture Station Seoul 284 which attracted almost 60,000 visitors in just 60 days.

A POLISH FOREST GARDEN

This isn’t a stereotypical island garden, Wiktor Kłyk creates on a modern interpretation of a forest garden on a Polish Island

Before starting any project, I take my coffee with me and explore the area. I observe plants and the landscape to get a sense of nature’s character so I can use it later as inspiration. Every day in life, I absorb architects’ designs, and works of art and explore new varieties of plants so when it’s time to sit down to the project, I rely on memory and intuition, which process previously recorded images. At the beginning of this project, there was an empty plot with single trees and a monoculture of expansive grasses. The conditions were difficult because the soil was buffeted by the wind and exposed to the constant strain of the sun.

In winter, the frost can reach minus 20 degrees, and in summer +35 C. Yet, the potential of this place was visible at first glance — a wall of pine forest to the north provided the ultimate inspiration.

Project challenges

The plot was lined with old pine trees that had grown in difficult, sandy conditions but formed picturesque crowns that became a point of reference for me. I had a lot of freedom with this project, my client’s only request was for a modern garden with some continuation of the forest landscape.

I FOREST ISLAND

The plot was 3000 m2, and the house was 250 m2 accompanied by a lonely garden, which looked like a large island on the map, among smaller plots of land with singlefamily houses bordering the forest. Originally it had a flat surface and the soil was sandy with a pH close to neutral, which means it doesn’t absorb water. During groundwork, we built one wide hill for the cascades. Inspired by the surrounding forest and based on the borrowed landscape, I added Scots pine Pinus sylvestris, and silver birch Betula Pendula to connect the garden with the landscape. They interpenetrate with the surroundings, giving the impression that the garden has no clear border. The sun painted strong shadows that contrasted with the illuminated parts of the fleece. Polish forests in the north are overgrown with moor, blueberry bushes, and low grasses, dominated by Deschampsia flexuosa L. This grass in the summer seems to absorb the sun and increase its power.

Plant and soil condition

The plant selection was determined by the local conditions and since Corten fits perfectly into the local landscape we blended it with aluminum powder coated in a deep, anthracite color. The soil in the deeper layers contains large amounts of iron, highlighted by the bark of the pine shimmers with the colors of orange on a dry day and deep rust on a rainy morning. The lower parts of the pine turn black, thus combining with the color of the aluminum. For better water absorption and to allow forest animals to populate the garden, we mixed the soil with the bark. Ultimately, no agro textile was used and we didn’t add any new fertile soil.

The soil is sandy with trace amounts of humus. There is also no added clay. Since the surrounding meadows are inhabited by invasive grasses, I decided to plant them very densely to prevent them from sowing. Inspired by the

forest groups of Deschampsia flexuosa, I designed grass that can provide the same effects to the garden. I decided to use less fragile and stronger in the face of Deschampsia Caespitosa ‘Goldtau’ that alternate with groups of Sesleria autumnalis, Caluna vulgaris and the foreign but extremely durable ‘Grapenhall’ lavender.

Groups of grasses are divided by the: Aster amellus, Artemisia ludoviciana, Agastache ‘Blue Boa’, Napeta x faassenii, Lythrum salicaria, Kobold ‘Liatris spicata ‘Kobold’, Thymus serpyllum, Veronica longifolia, Sedum spectabile, Eupatorium, maculatum, Salvia nemorosa ‘Mainacht’, garlic blooming in the summer.

I provided single clumps of Molinia arundinacea ‘Karl Foerster’ which are native to Poland; Cornus alternifolia, Ginkgo ‘Saratoga’ also appeared in the garden.

I find deep peace in harmoniously composed spaces. Straight lines lead the viewer’s eye through different parts of the garden, sight is supposed to flow freely from point to point. The garden is divided by a grid on a square plan with paths, terraces, and lawns appearing here only temporarily to facilitate my client’s son to practice football. The whole is closed with large clumps of grasses, perennials, and single specimens of shrubs emphasizing the subtle power of softness.

There is one symbolic place in the garden. A large Corten steel gate leads to the end of the garden. Behind it is the neighbor’s garden. To create the impression of infinity, I planted spruces and tall grass behind it. It’s a gateway to another world, a sort of mirage!

The most important element of the garden is the flow of water. I designed water cascades with strong lines which are my interpretation of forest streams where water gives life and shelter to many beings. Since the garden has to meet the client’s needs, we created - a gradual swimming pool that is 90 cm deep and arrived in one piece made out of large cut slabs of Swedish granite to emphasize the sunny nature of the place. The pool and the cascades are connected by a biological filtration system.

‘’My gardens can be described as a constant dance of contrasts, where strong cubic forms continue alongside the soft, organic shapes of plants. To achieve the desired effect, I mix wild species with well-known garden varieties. “The projects I create reflect my perception of landscape architecture. I grew up in Polish postmodernism deeply immersed in lush nature and I was influenced by raw buildings surrounded by spontaneously sown meadows. ‘’

Al-Alali Eco-Tourism

From a Walled City to a Revitalized and Adapted Tourist Attraction in Tibneh

Article writing and project idea and supervision by: Prof. Anne Gharaibeh

Design Development Contributor: Mohammad Bani Issa

College of Architecture and Design

Jordan University of Science and Technology

The old city of Tibneh is on a flat plateau with deep ravines and gently rounded crests in the north of Jordan. This site, within the county of AlKora in the Governorate of Irbid, is notable for its half-ruined defensive walls that can be seen from a great distance. The forest southeast of Tibneh is probably the best-preserved and largest stand of oak in Jordan, while the surrounding valleys, somber with olive groves with trees that date back to Roman times, add to the place’s wealth. The

main water source for the village of “Tibneh”, is “Ain Sirin” to the east of the town, the Zayadinah wanted to find a stable source of water close to the town’s center of governance, so they built a cistern to collect rainwater in the winter to be used for drinking, domestic use, and animals. This cistern was completed in about 1770 AD, that is, a few months after the completion of the construction of the castle. The pond is located on the northeastern side of the castle.

Other houses are made of mud, with flat, mudplastered, wattled roofs thrown about broadcast. Tibneh offers an interesting variation to the standard Jordanian village house. Besides the one-story houses that are rather typical, one finds a good number of two-story houses; three of which are in one neighborhood east of the old masjed. This type of house is rare in the Jordanian village as building a second story requires a stronger first-floor ceiling than that which is found in the typical house where wood is used. Since having a second story requires a different roof construction, a barrel vault is used on the first level.

Ahmed Zahir al-Zaidani’s ambition (The Governor of Tibneh: 1728-1775 AD) in adopting it was to imitate Acre city, in terms of buildings and fortifications, so that it would truly be the regional capital of northern Jordan. Therefore, the construction of a stone wall around the hill on which the castle is concentrated came about in 1771 AD, and the purpose of building this wall was primarily military, as it overlooks the abyssal valleys on the western side.

According to excavations made in 1987 by the Department of Antiquities, the town of Tibneh dates back to the Neolithic period. Historically, Tibneh had a defensive wall with two gates and four

towers. This wall, from the Al-Zaydaniya period, is approximately 1,142.5 meters long and 4-5 meters high, with gatehouses. There are remnants of the wall on the western side, especially on the southern end of it, where we find these remnants with a length of 67 meters and a height that varies from one place to another. Within the walls, one can find the Zaidani Masjed, the Ottoman Castle, and the Water Cistern (pond). The surroundings have several archaeological findings and caves; Victor Guerin (1821-1891) identified one of them as the tomb of Joshua.

The objective of this project is to raise awareness, preserve heritage, revitalize the city, and transform Tibneh into an ecotourism destination. Central to this endeavor is the rehabilitation and repurposing of heritage buildings using traditional conservation techniques and sustainable materials. By leveraging sustainable modern advancements, the project aims to breathe new life into Tibneh while honoring its rich cultural legacy. Integrating sustainable practices and promoting ecotourism will enhance the city’s long-term viability and attractiveness. Additionally, this project will provide jobs for the youth population in this remote town, fostering economic growth and community development.

The First Specialised Landscape Magazine in the Middle East
The historical site of Tibneh shows the Wall, Towers, Castle, Zaidani Masjed, and the Pond
The First Specialised Landscape Magazine in the Middle East

The urban footprint of Tibneh shows the gentle interventions.

Concept Statement

The concept is to develop a sustainable and culturally rich destination that seamlessly blends heritage preservation with contemporary innovations. By utilizing state-of-the-art technology and innovative materials, the project aims to restore and repurpose historic buildings while paying homage to their historical significance. Through the integration of sustainable practices and the promotion of ecotourism, we strive to ensure the long-term viability and appeal of Tibneh.

Our vision is to create a serene and enjoyable environment for visitors, providing them with an opportunity to unwind and establishing a distinctive and unforgettable destination that will captivate both locals and tourists alike. When tourists visit Tibneh, they will have the opportunity to enjoy breathtaking scenery and purchase local products such as butter, soap, olives, and extra virgin olive oil. The area is also known for its unique household embroidery works and costumes, which reflect the region’s rich cultural heritage

A tourist’s journey in the town

Tourists’ trails around the Zaidani masjed, the Ottoman masjed, and the Castle respectively.

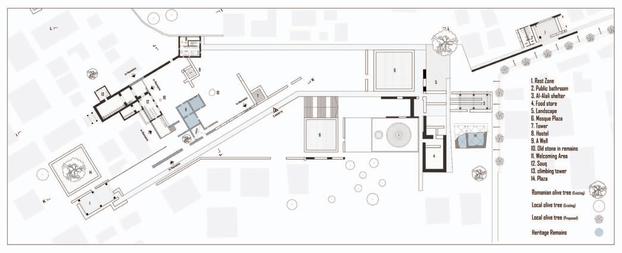
Local markets offer matchless items that visitors can bring back home as mementos. Additionally, tourists can savor exclusive regional cuisines and dine in preserved buildings and landscapes overlooking the rolling hills. As the number of tourists increases, the demand for these markets and the local economy will grow, benefiting the community. This project is essential for creating a sustainable ecotourism destination that honors Tibneh’s past while building a prosperous future. Project sections include the visitor center, the introduced piers, the market (Souq), the masjed plaza, the hostels, the renovated stone pier (originally a wall section), and the landscapes inbetween.

On the northern side of the village, where lie remains of what is called the “castle, is a large depression that was once an old pool. It is now dry, approximately 12 x 20 meters, and 4 to 5 meters deep. Another pool near the “gate, southeast of the village, became the site for a new masjed. Towards the north, at the highest part of Tibneh, a ruin known as the “castle” is now comprised only of two rooms with cross vaults and a staircase built into the wall that leads to the roof. This castle was for the Zayadinah, it was very likely built in the early eighteenth century. Another masjed is now part of the first floor of the Shraideh house (A family which ruled the area until the early 1920s). The third is the largest and the most representative of a traditional masjed.

This house also differs from the villa house in being a two-story building. Because of the crossvaults that are used in spanning the ceilings, a second floor is possible.

The idea revolves around a continuous, enchanting path designed to captivate tourists at every turn through Tibneh. Starting from the visitor center, the path meanders along the ancient city wall, leading to the first gatehouse and into the meticulously renovated pier. From there, it extends to a wooden pier that juts out over the hilltop, revealing a breathtaking panorama of surrounding hills adorned with olive groves.

As the path continues, tourists are gently led back to the historic trail toward the Zaidani Mosque, winding gracefully to the town center. Here, a lush greenway lined with native evergreen ilex oaks creates a serene and inviting atmosphere. The path then circles around renovated buildings, where local products are sold, providing a taste of the region’s unique offerings.

Next, the route leads visitors to Tibneh’s imposing castle, the grand mosque, and a tranquil pond. Nestled here are hostels offering accommodation, inviting visitors to stay and immerse themselves further in the layers of Tibneh’s rich heritage. The longer the visitors stay, the more opportunities they have to engage with local traditions and daily life, forging connections with residents who proudly share their customs, stories, and cultural practices.

Building interventions, renovation, and landscapes in the town heart.

Master plan after the intervention

Reviving traditional building techniques in Rajasthan

The Narsighar house embodies the traditional planning principles of the regional architecture prevalent for centuries in Rajasthan.

Situated in the arid desert region of Nokha in Rajasthan, India, the Narsighar house embodies the traditional planning principles of the regional architecture prevalent for centuries in Rajasthan. Most of the houses and palaces built in this region had courtyards for cooling down from the hot sun, as well as thick stone walls and stone ‘jali’ screens to mitigate the excessive heat.

The Narsighar house is punctuated with a series of courtyards and built with local sandstone. Each of the living spaces opens into sheltered outdoor spaces screened with perforated stone panels. In addition to reducing heat, the screens also protect the inner spaces from the sandstorms prevalent in the region.

The home based on the client’s needs to accommodate four generations has nine bedrooms with multifunctional living spaces, sheltered courtyards and patios all around. In addition to the traditional planning principles, elements of traditional Rajasthan architecture including multifoil arched windows, patterned stone screens, stone pergolas, inlay work, and

carving work accentuate the spaces. Rajasthan is home to many craftsmen with crafts including stone carving, marble inlay, carpentry work, mirror work inlay, lime plaster, and more. Thus, the entire house was revamped by local craftsmen who revived many traditional techniques.

Although the house appears large, over 40% of the area is in the form of open courtyards, circulation spaces, and sheltered outdoor patios. Each volume is articulated individually with the home being perceived as a composition of varying volumes.

An entry car porch opens into a sunlit courtyard that leads to a sheltered stone arcade flanked by water troughs and gardens for passive cooling before one enters the house. The skylit entrance lobby within the house is flanked by a living room and an open seating area and leads one into a large central courtyard.

The main courtyard punctuating the house is naturally ventilated by windows with the circulation skirting its perimeter. Sectionally, there is a flow of different volumes within. Most of the rooms are 4M high with the main living room 6.5M high, the central courtyard 12M high, the north and south courtyards 8M high, and the outdoor patios 3.6M high. Every living space and bedroom in the house opens into sheltered outdoor spaces creating transitional volumes between the inside and the outside to mitigate heat gain. Indirect sunlight permeates all the spaces filtered through arches or stone screens creating different shadow patterns throughout the day.

This house was designed with traditional principles and materials for passive cooling with contract labor from the nearby villages, stone from the vicinity, craftsmen from the region and all materials sourced locally including the marble, stone, wood, lime plaster, and furniture are all procured from Rajasthan.

Designed contextual to the climate, location, and heritage of the region, Narsighar revives the Indian traditional planning principles and revives traditional crafts, creating an energyefficient home built to last for centuries, for future generations.

The First Specialised Landscape Magazine in the Middle East
The First Specialised Landscape Magazine in the Middle East

Inspiring a deeper connection between urban and natural environments

A visionary park that integrates nature, culture, and sustainability will be built in the enchanting Italian coastal town of Sirolo, within the National Mount Conero protected area

ecoLogicStudio, an architecture and design innovation firm specialized in biotechnology for the built environment, will renovate the Parco della Repubblica, an existing public park on the North side of the historical city centre. The new project is driven by the ambition of developing a symbiotic park for humans and wildlife. It will serve as a gateway to the Conero natural reserve and inspire a deeper connection between urban and natural environments.

Claudia Pasquero and Marco Poletto, founders of ecoLogicStudio, state: “Our design attempts to elevate the cultural relevance of the public park as a portal toward another dimension, one where humans and wildlife share a more hopeful future of symbiotic collaboration.”

The project covering an area of approximately 2Ha, will encompass six key layers, also called “dimensions”: Urban, Social and Collective, Playful and Wellbeing, Cultural and Educational, Ecological, and Territorial and Eco-touristic.

The park will propose the pedestrianization of the access road completing a pedestrian loop linking it to the historical city center. A reconfigurable area will host a plethora of sociocultural activities within the park and a circuit for active walking, jogging, and children’s cycling will wrap a central area of the park dedicated to biodiversity. This is dotted with a network of

new outdoor furniture with integrated wildflower gardens to promote a direct connection between local citizens and eco-tourists with the renewed ecological dimension of the site.

The renovation project emerges as a beacon of design innovation, fostering a harmonious coexistence between urban life and the natural world.

Design: ecoLogicStudio (London&Turin)

Project Team: Marco Poletto, Claudia Pasquero with Francesca Turi, Jasper Zehetgruber, Jonas Wohlgenannt, Cristiana Paoletti, Alessandra Poletto.

Academic Partners: Synthetic Landscape Lab at Innsbruck University (Chair of Landscape

Architecture: Prof. Claudia Pasquero).

Client: Municipality of Sirolo

Feasibility study and Design phase: March –July 2024

Date to completion: 2025

I BOOK REVIEW

BOOKS OF INTEREST

LANDSCAPE INSTALLATION ART II

ISBN: 9789810933692

PUBLICATION DATE: 24 Sept. 2015

HARDCOVER: 272 pages

BOOK DESCRIPTION:

A 100 square meter flower pavilion that roams central London; delicate golden rice illuminated to honor the king of Thailand in Bangkok; a heart in Times Square made of planks from boardwalks destroyed by Hurricane Sandy; an entire 65 foot tall tree in Illinois left whole and turned into a swing set, picnic area, and snack kiosk. All of these projects and dozens more are on display in LANDSCAPE INSTALATION ART II, a collection of public installations both large and small from locations worldwide

OUDOLF HUMMELO

ISBN-9781580934183

PRISE-215.00Dhs.

BOOK DESCRIPTION:

“Piet Oudolf is best known for his now-iconic designs for the High Line in New York City and Millennium Park in Chicago. Hummelo, his own garden in The Netherlands, is visited by thousands of gardeners each year. It serves as his personal design and plant propagation laboratory, and is where he has honed his aesthetic and created new varieties of plants for over three decades. This title charts how the garden of one of the world’s best-known and most-loved plantsmen has evolved, and gives frank assessments of his experiments that have gone both well and awry. Hummelo, timed to coincide with Oudolf’s 70th birthday and his acceptance of Holland’s most prestigious cultural award, provides his throngs of followers with a chronology of how his naturalistic style and career has developed. Lush photography documents how the garden has changed and inspired him over the years, and text by prolific garden writer Noel Kingsbury will ensure a lively read for all home garden enthusiast

TITLE: WORLD LANDSCAPING

Publisher: Artpower International; Bilingual edition (9 Sept. 2014)

ISBN: 9789881249173

Hardcover : 416 pages

Price: 747 AED

BOOK DESCRIPTION:

Presents a selection of award-winning and acclaimed projects from top international landscape architecture firms. The design process is shown through numerous drawings and detailed descriptions of each project. The projects are split into ten categories: Residence and Garden, Commercial and Office Space, Waterfront and Ecology, Campus Planning, Planning Design, Parks and Green Places, Leisure and Entertainment, Plazas and Open Spaces, Tourism and Resorts, Traffic and Transportation.

With its headquarter in Tokyo, Japan and world class stores spread over countries like America, Singapore, Indonesia, Malaysia, Thailand, Australia, Taiwan and now in DUBAI – UAE, Kinokuniya is a globally known book seller of repute.

The store in Dubai Mall is a massive 68,000 square feet wide paragon book gallery which stocks more than half a million books and thousand magazines in English, Arabic, Japanese, French, German and Chinese at any given time.

The Store is also a distinct cross cultural hub wide range of time to time multicultural events such a comic art demonstrations, language learning workshops, book launches etc.

The pleasant ambiance, stenographic design and add to it the impressive view of modern skyline – world’s tallest building, Burj Khalifa, Kinokuniya at The Dubai Mall is just the place to evoke emotions and add pleasure to your book shopping. You may like to visit our website for more information. www.kinokuniya.com

RIYADH, SAUDI ARABIA

20 NOVEMBER 2024

SARAJ VENUE

Turn static files into dynamic content formats.

Create a flipbook
Issuu converts static files into: digital portfolios, online yearbooks, online catalogs, digital photo albums and more. Sign up and create your flipbook.