REAL ESTATE AT
SAND VALLEY

Sand Valley is a four-season resort destination set among the prehistoric sand dunes in central Wisconsin. The resort is known for its three award-winning golf courses, Sand Valley (Coore & Crenshaw), Mammoth Dunes (David McLay Kidd) and the 17-hole short course, the Sandbox (Coore & Crenshaw), which evoke Golden Age design with sandy soil and firm, fast playing conditions showcasing massive, 80-foot exposed sand dunes. Two new courses – The Lido (C.B. MacDonald recreated by Tom Doak) and Sedge Valley (Doak) – are in development and will open in 2023 and 2024 respectively.
Sand Valley owners Michael and Chris Keiser showcase Central Wisconsin living through farm-to-table culinary experiences and outdoor adventures such as fat-tire biking, hiking, fishing and unrivaled grass court tennis. Sand Valley is open year-round, with a range of winter activities including sledding, Nordic skiing, pond skating and hockey and holiday, culinary and wellness events.
With 12,000 acres of wide-open space and endless views, Sand Valley helps guests reconnect with the beauty and serenity of the outdoors.
Northworks practices on a philosophy of excellence in design and an appreciation for individuality. Their belief in creating exceptional spaces regardless of architectural style has led to a diverse portfolio ranging from contemporary to historic preservation.
Booth Hansen aims to capture the unique quality of each project. They address an owners functional needs while seeking a direct connection with the human spirit through architecture’s timeless, poetic language vision. With every project, Booth Hansen looks to create beautiful places that people treasure.
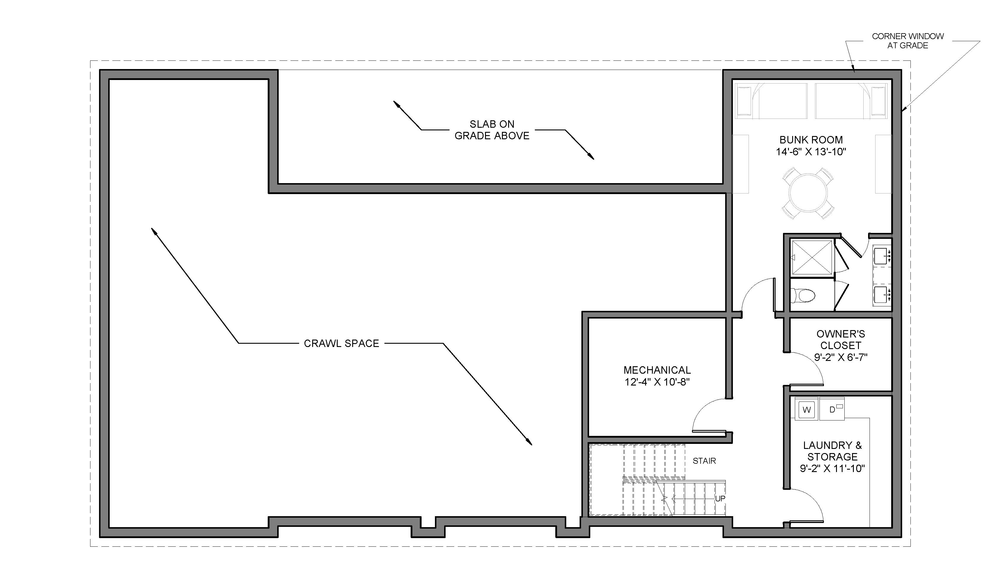
The Kubala Washatko Architects is a collaborative team of creative thinkers, craftspeople and advocates who are passionate about designing regenerative places that strengthen communities. A philosophy of Wholeness is at the heart of every decision. They believe that the idea of sustainable design cannot be separated from the everyday work of creating good architecture.
INDOOR AREA: 2,705 SQ. FT.
PORCH AREA: 350 SQ. FT.
TOTAL AREA: 3,055 SQ. FT.
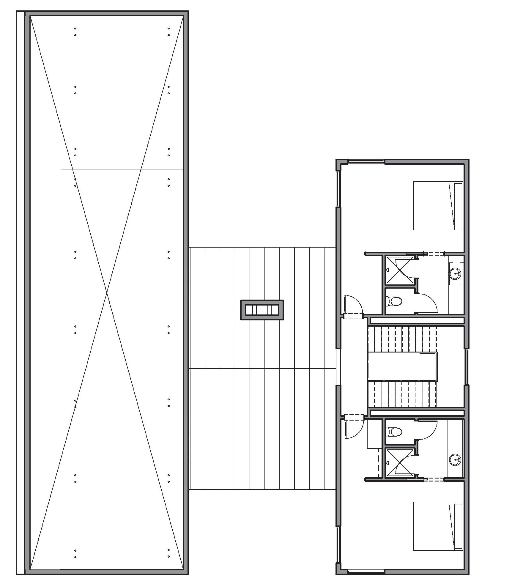
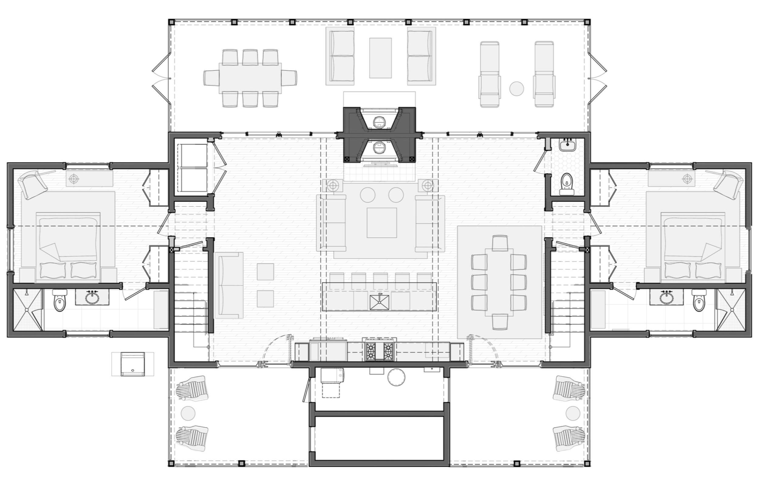
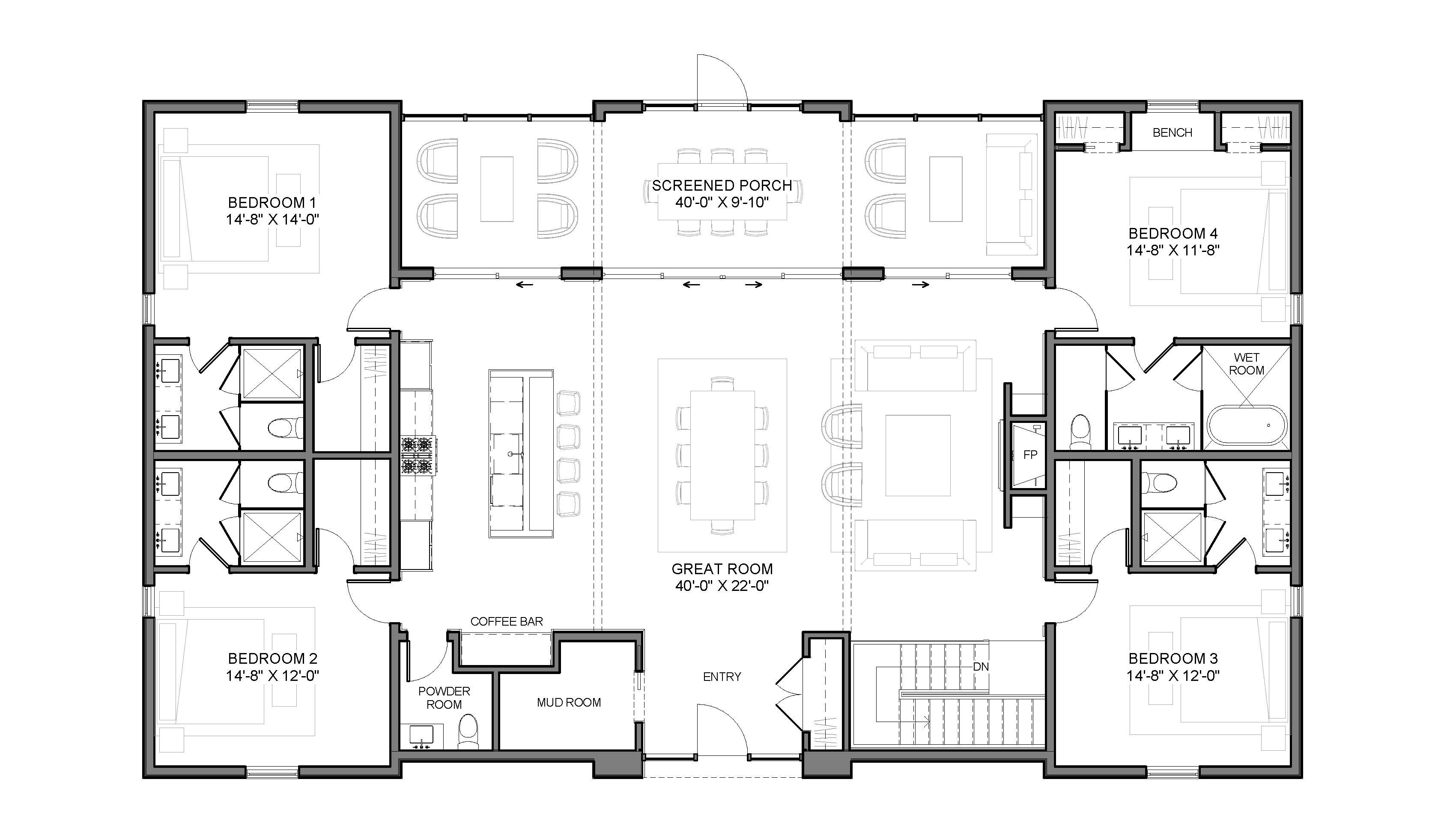
FIRST FLOOR
INDOOR AREA: 2,967 SQ. FT.
PORCH AREA: 831 SQ. FT.
TOTAL AREA: 3,798 SQ. FT.
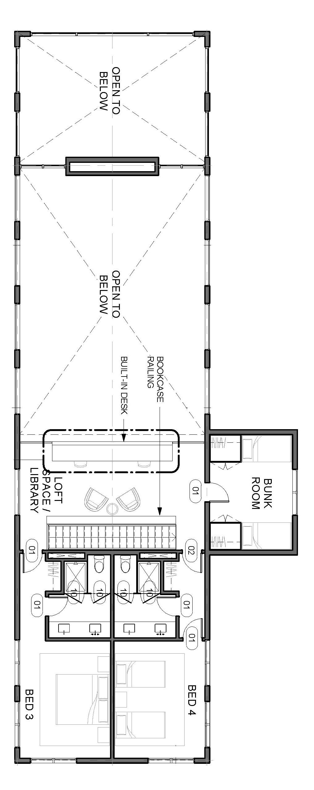
SECOND FLOOR
INDOOR AREA: 3,567 SQ. FT.
PORCH AREA: 367 SQ. FT.
TOTAL AREA: 3,934 SQ. FT.
INDOOR AREA: 3,334 SQ. FT.
PORCH AREA: 395 SQ. FT.
TOTAL AREA: 3,729 SQ. FT.
INDOOR AREA: 3,884 SQ. FT.
PORCH AREA: 393 SQ. FT.
TOTAL AREA: 4,277 SQ. FT.
INDOOR AREA: 2,800 SQ. FT.
PORCH AREA: 270 SQ. FT.
TOTAL AREA: 3,070 SQ. FT.
INDOOR AREA: 2,820 SQ. FT.
PORCH AREA: 350 SQ. FT.
TOTAL AREA: 3,170 SQ. FT.
INDOOR AREA (LEVEL 1): 2,800 SQ. FT.
INDOOR AREA (LEVEL 2): 1,450 SQ. FT.
PORCH AREA: 380 SQ. FT.
TOTAL AREA: 4,630 SQ. FT.
FIRST FLOOR
Thank you for your interest in property ownership at Sedge Village. We have compiled this FAQ based on questions received during previous releases of Sand Valley real estate. If you have additional questions, please email realestate@sandvalley.com.
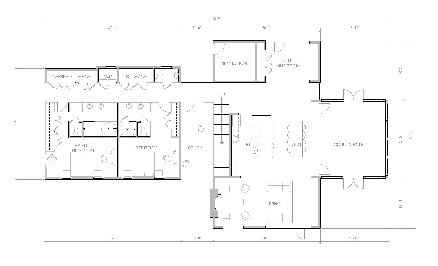
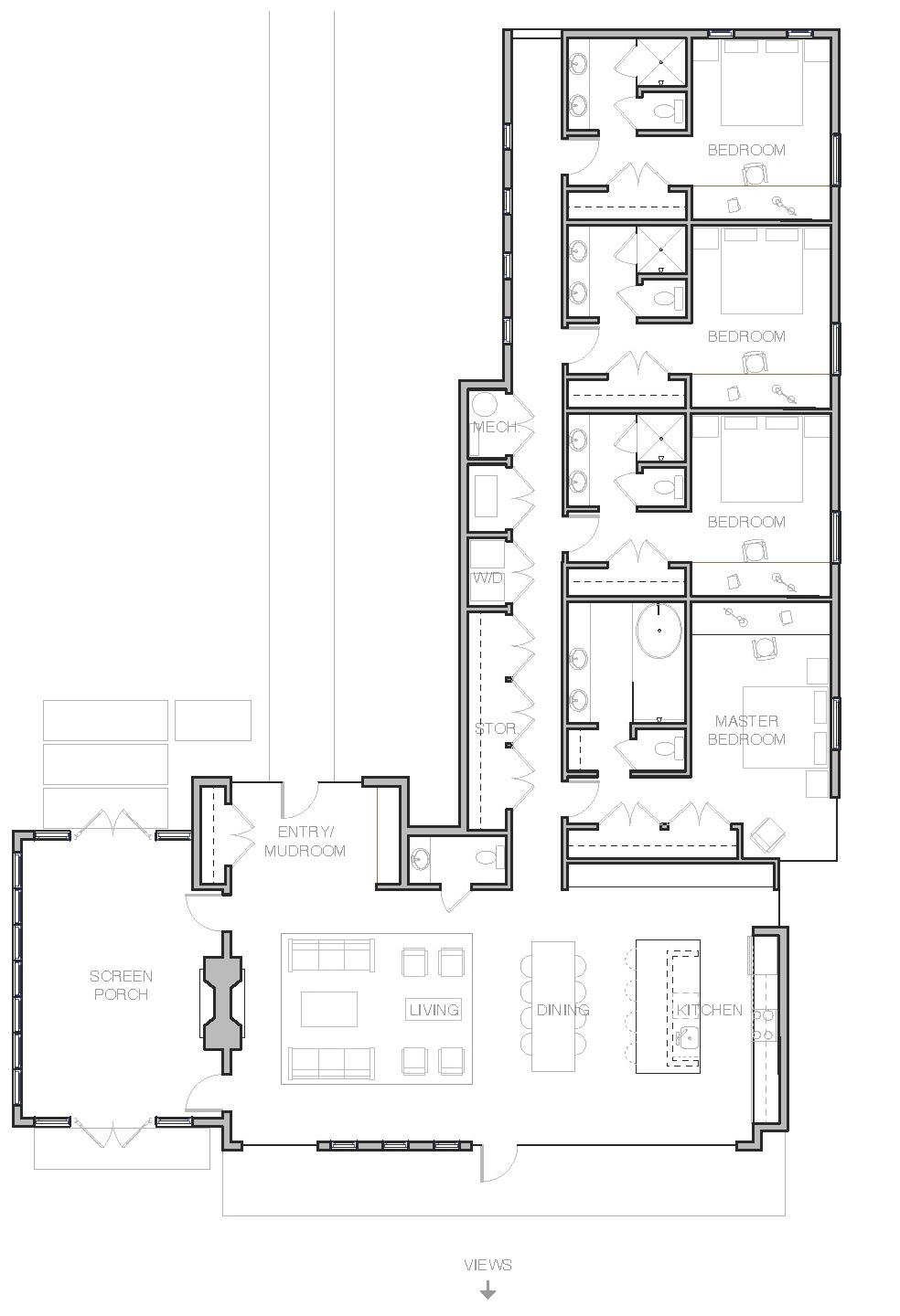
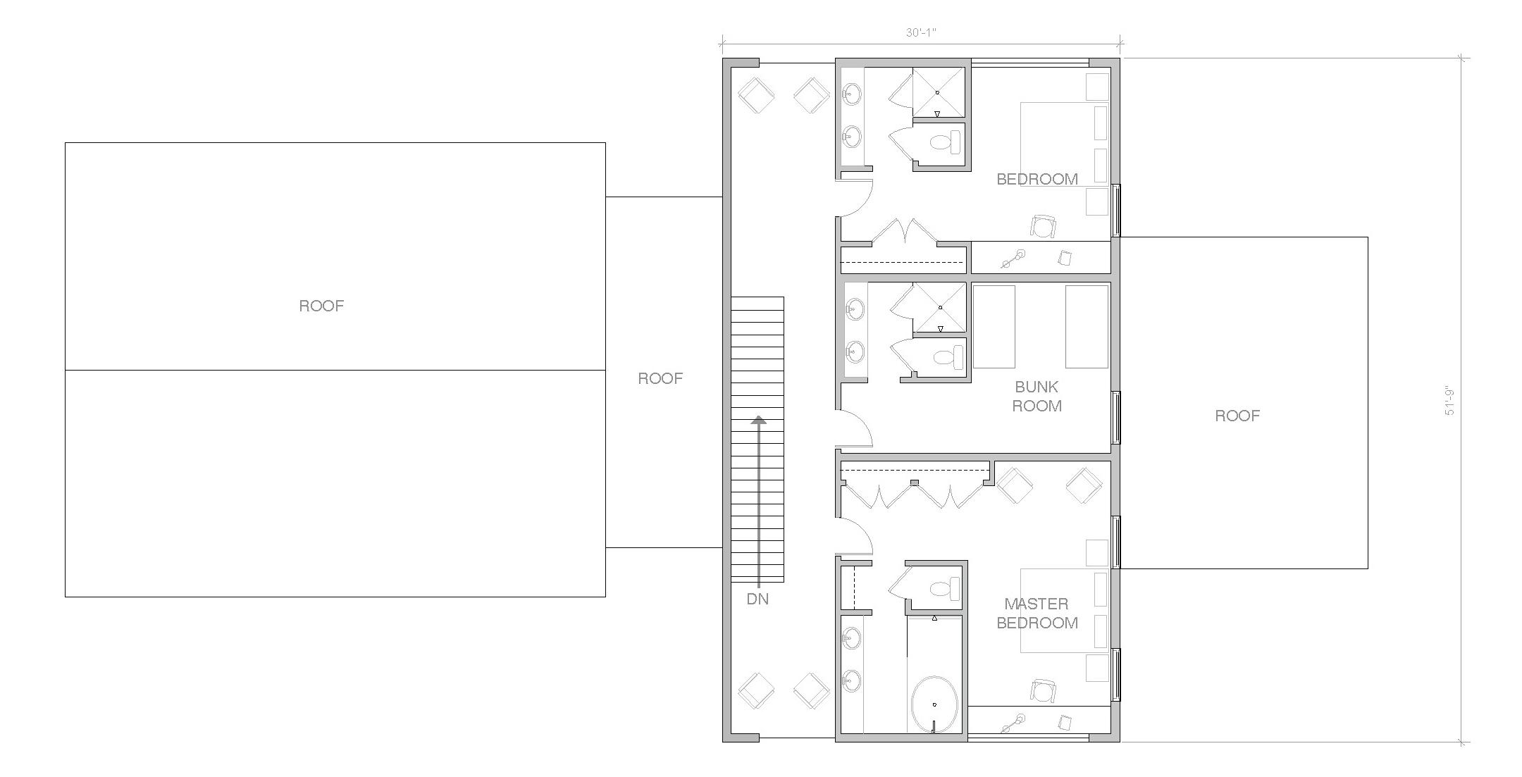
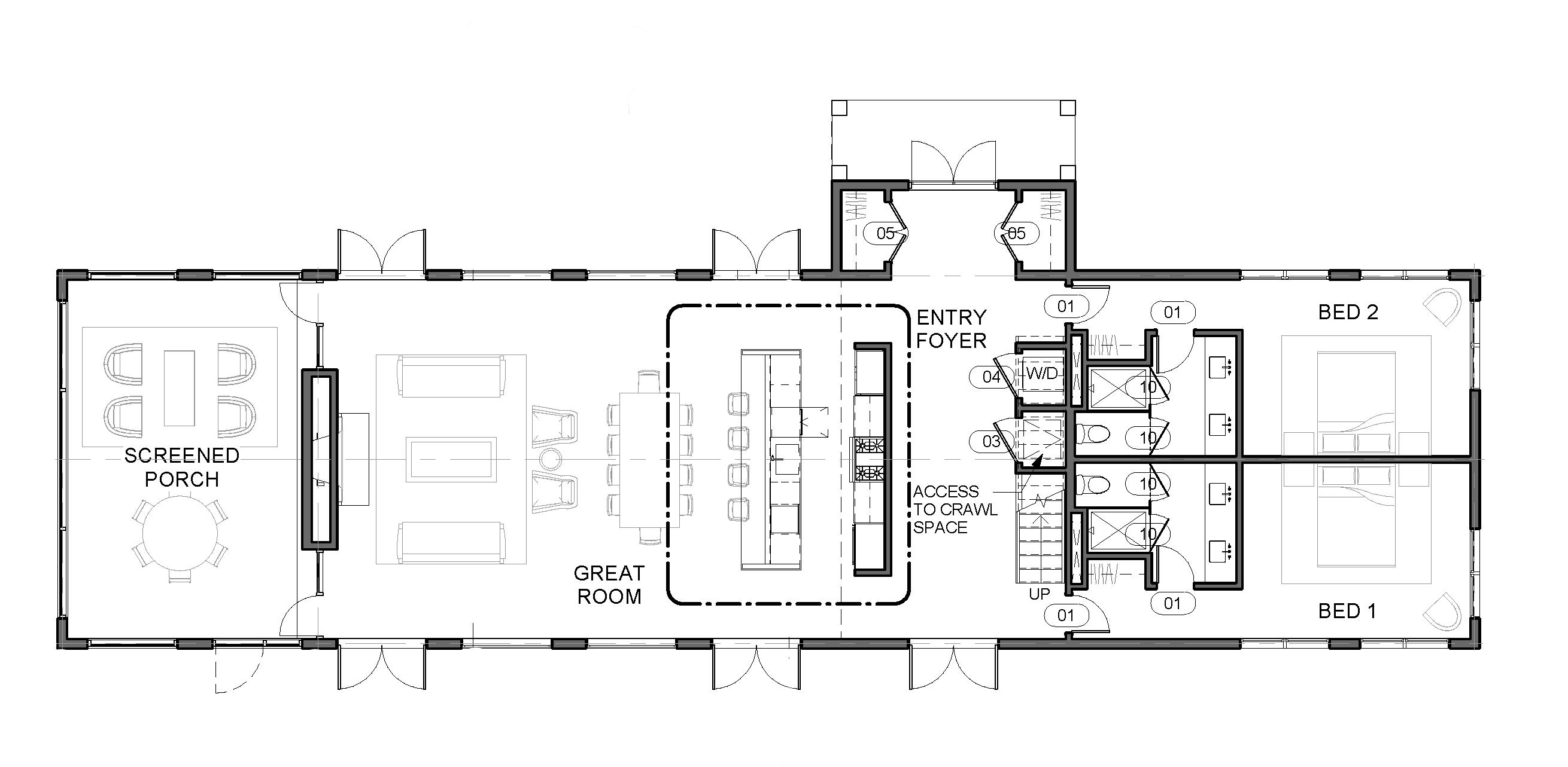
Sedge Village Cottages: Cottage owners choose from a range of thoughtfully designed floor plans. Our design partners – Booth Hansen, Northworks and Kubala Washatko – have created four striking new floor plans inspired by the Sedge Village sites to go along with Sand Valley’s existing floor plans.
Sedge Village Estate Homes: Yes. However, we encourage all owners to engage one of our three recommended architects, who have helped create and define the Sand Valley living experience. Architects and plans are subject to review by the Architectural Review Committee.
Sedge Village Cottages: All Cottage homesites are designed to fit floor plans in this packet.
Sedge Village Estate Homes: Owners can use an existing pre-designed plan and customize it to best suit their needs. Selecting and making changes to a pre-designed plan can help expedite the design process. Homeowners may also choose to design their dream home from the ground up.
Sedge Village Cottages: Cottage homesites support one, fourbedroom/four-bathroom home and a detached garage. No additional living space is permitted above the garage.
Sedge Village Estate Homes: Each homesite has a designated building envelope in which all development must occur. Examples of permitted structures include single-family dwellings, guest homes, pools, private trails and more. All buildings and structures are subject to approval by the Architectural Review Committee.
Sedge Village Cottages: Yes. With first deliveries slated for the 2023 golf season, construction on cottage homesites begins upon closing and will follow purchase order.
Sedge Village Estate Homesites: There is no building requirement on estate homesites. Owners may initiate the building process at their own discretion.
Sedge Village Cottages: Construction is based on purchase order and will begin in Spring, 2023.
Sedge Village Estate Homes: Construction can begin once plans from the architect are complete and approved.
For a four-bedroom Cottage or Estate home, please estimate a six to nine month build time. For a larger, eight-bedroom home or custom home, building times could take 12 months or more.
The exact building cost depends on many factors including finishes, materials, square feet, and more. For your estimated build cost, please use $450 per square foot.
Sedge Village Cottages: Sedge Village Cottages: No. Cottages can participate in the Sand Valley Rental Program when not reserved for personal use but are not required to participate in the program.
Sedge Village Estate Homes: No. Homes can be reserved for owner use at the owner’s discretion or placed in the Sand Valley Rental Program when not in use.
The rental split is 60/40 (resort/owner) regardless of the home size, type, and location. All homes placed in the Sand Valley Rental Program can be rented by any resort guest throughout the year.
Sedge Village Cottages: Owner HOA fees and the rental split cover housekeeping, maintenance, and property checks while you are not staying on property.
Sedge Village Estate Homes: We offer a variety of additional services to Estate owners. Some of the additional services we can arrange include monthly home walk-throughs, routine maintenance issues, pest control, and more.