nmj professional portfolio

Page 1


Nanette M. Janeiro

M. Arch., Assoc. AIA, LEED Green Assoc.

Senior Designer | Project Manager | BIM Lead

10+ years of professional experience

Visioning & Concept Design

Master Planning & Programming

Project Management & Coordination

Drawing Sets Management & Production

BIM Management & Implementation

Sustainable Design Research & Practice

Confidentiality & Client Relations

nanettemg05@gmail.com

786.970.3933

CURRICULUM VITAE

SOFTWARE SKILLS EDUCATION

Revit / BIM — Autodesk Certified Professional, BIM Leader (9+ years)

AutoCAD — Professional Proficiency (10+ years)

Rhino 3D, Grasshopper — Professional Proficiency (10+ years)

SketchUp, 3DS Max, Lumion, Enscape — Professional Proficiency (8+ years)

Adobe Photoshop, Illustrator, InDesign — Professional Proficiency (10+ years)

Microsoft Word, Excel, PP, Outlook — Professional Proficiency (10+ years)

Canvas, Zoom, Teams, Webex — Professional Proficiency (3+ years)

PROFESSIONAL PRACTICE

SB ARCHITECTS, Coral Gables

Associate | Job Captain, BIM Leader

JUNE 2016 — PRESENT

• Design, Develop and Manage high-end hospitality, residential, commercial, and mixed-use projects using the latest Revit and BIM collaboration technologies.

• Manage and Produce Schematic Design, Design Development, and Construction Documents drawing sets of large-scale campus projects such as: Boca Grande Village and Marina, Florida; Hilton Aruba Resort & Casino, Palm Beach, Aruba; Baha Mar Long Cay Island, Bahamas; Esplanade, Aventura, Florida; Caroline Bay Ritz-Carlton Reserve, Bermuda; Six Senses Papagayo Reserve, Turks and Caicos; Cacique del Mar Waldorf, Costa Rica; Ellington Hotel and Residences, Naples, Florida; among others.

• Coordinate Interior Design, Structural, Civil, Mechanical, Electrical, Plumbing, Lighting Design, and Fire Protection disciplines with Architectural drawings.

• Coordinate Life Safety drawings and Project Specs along with Code and Spec consultants.

• Lead Architect, Owner, Consultant meetings according to project schedule and project needs.

• Contribute to the Construction Administration Services by providing input to reviews of shop drawings and submittals, input for responses to contractor questions, inquiries, RFI’s, punch-lists, and field observation reports as required.

• Assess red-lines and comments for coordination and value engineering, resolve RFIs, and conduct site visits as needed.

• Compute data to perform area, cost, and design calculations using BIM parametric capabilities.

• Develop and maintain office-wide BIM project standards, Revit templates, and Revit family libraries to comply with SB quality of documentation.

• Lead colleagues on office-wide BIM project standards, Revit templates, and Revit family libraries to comply with SB quality of documentation as part of SB’s BIM Leadership team.

• Steer recruitment initiatives such as Career Fairs at local universities UM and FIU, expanding mentorship and connecting internship opportunities with students and recent graduates.

• Curate fine arts for the SB Walls program to promote high quality local artists while elevating the office environment for SB employees, leadership, clients and visitors.

MASTER OF ARCHITECTURE — Florida International University, Miami. 2010 – 2015.

Computational Thinking Using Python — Massachusetts Institute of Technology, Online Certificate. 2023

LANGUAGES

English — Professional Proficiency in writing, reading, and speaking. Spanish — Professional Proficiency in writing, reading, and speaking.

STANTEC, Miami

Design Coordinator

MAY 2015 – JUNE 2016

• Managed Schematic Design, Design Development, and Construction Documents sets of drawings of high-end retail facilities in the Miami Design District (DACRA) such as Penny Lane (built project), Stardust East & West (built project), and Sweetbird South (built project).

• Collaborated with team members and consultants from Structural, Mechanical, Electrical, Lighting Design, and Interior Design disciplines

• Set up and attended coordination meetings, developed meeting agenda and meeting minutes.

• Assessed red-lines and comments for coordination and value engineering, resolved RFIs, and conducted site visits as needed.

• Managed BIM / Revit software through project design and construction documentation.

CAMILO ROSALES ARCHITECTURE, Miami

Architectural Intern

AUGUST 2013 – MAY 2015

• Designed and managed small-scale residential projects.

• Worked with Revit and Rhino 3D to produce detail-oriented 3D models for Concept and Schematic Design.

• Worked with AutoCAD to produce architectural drawings and details.

• Utilized V-ray and Photoshop to produce high-definition conceptual renders.

AFFILIATIONS & CERTIFICATIONS

Autodesk Revit Architecture — Certified Professional. 2021 - Present.

NCARB / AIA — Member, Associate AIA. 2015 - Present.

SB Diversity & Inclusion Committee — Steering Associate. 2020 - Present.

Hispanic Scholarship Fund — Essay Reviewer. 2015 - Present.

AIAS FIU Chapter — Secretary. 2011 - 2015.

FIU Architecture And Design Club — Founder, President. 2011 - 2013.

AWARDS & PUBLICATIONS

Wolfsonian Wear This — Spring 2012. Selected for publication.

Paul Cejas Building Installation — Summer 2012. First Place.

Genoa Study Abroad Exhibition — Spring 2014. Design 8 work featured.

HKS Design Charrette — August 2014. First Place.

Vorkurs / Mockplay — Fall 2014. Design 10 work featured.

Foglio 3 — FIU Architecture Select Student Work 2010 – 2011. Design 3 work featured on pg. 37 – 38. Wear This project featured on pg. 272.

RESEARCH

FIU COLLEGE OF ARCHITECTURE & THE ARTS

Adjunct Professor of Architecture

AUGUST 2018 — DECEMBER 2022

• Instruct the lower division Design Studio sequence of FIU CARTA’s NAAB accredited Master of Architecture Program.

• Teach essential architectural design strategies such as site analysis, precedent analysis, and detail development in coordinated studios with other faculty.

• Lead a studio section of 14+ students.

• Direct the design work of each student with critiques, sketches, lectures, and group reviews.

• Meet with students in an open studio at the FIU Paul L. Cejas School of Architecture Building (PCA) and at the FIU Miami Beach Urban Studio (MBUS).

• Meet with students online through Canvas and Zoom to comply with COVID-19 protocols established by the university.

• Hold 2 hours a week of office hours, plus additional availability through online sources such as email, Canvas, and Zoom.

• Follow University rules, regulations, code of ethics, and privacy policy.

FIU

CARTA / ECPA GRANT Graduate Research Assistant

Energy and Climate Partnership of the Americas (ECPA) Grant ECPA/FIU Energy Efficiency Project (http://fiuecpa.com/)

AUGUST 2012 – MAY 2015

• Developed six detailed 3D models of existing municipal buildings located in Valdivia, Chile, Goiania, Brazil, and Trinidad and Tobago using BIM / Revit software.

• Ran energy usage simulations on all six building models using Green Building Studio.

• Created a set of Energy Saving Guidelines to be applied to the buildings in question and other buildings in similar conditions.

• Arranged and coordinated online conference calls to allow instant communication between the three countries.

• Coordinated the purchase, shipping, and handling of specialized electronic equipment necessary to document the environmental conditions of each site.

• Gathered and organized data collected through specialized electronic equipment to input into environmental models.

Professional Practice

Senior Designer | Project Manager | BIM Lead

OBM International Coral Gables, FL

nanettemg05@gmail.com

786.970.3933

Manage team of 2-3 people.

Manage project schedule.

Manage project deliverables per contract requirements.

Manage and Produce Sketches, Concept Design, and SD drawing sets. Lead the project’s BIM technology, strategy & standards as needed.

Establish and Lead weekly design meetings and follow-ups between Owner, Architect and Consultants.

Design architecture to meet client’s requests and project needs.

Coordinate Interior Design, Structural, Civil, Mechanical, Electrical, Plumbing, Lighting, & Fire Protection disciplines with Architectural drawings. Compute data to perform area, cost, & design calculations using BIM parametric capabilities.

HOTEL COURTYARD VIEW

RICO

SR. DESIGNER | PM | BIM LEAD

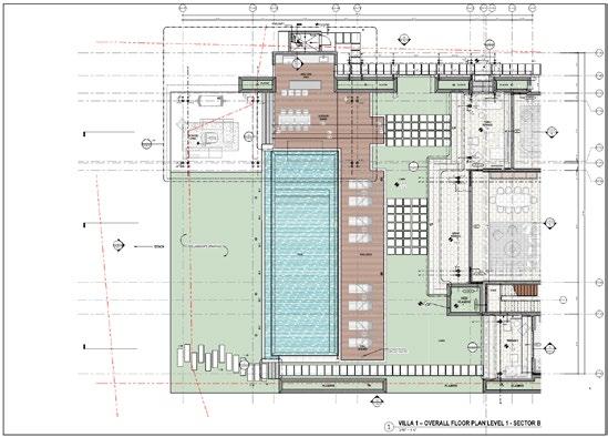
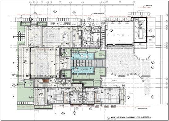
DIMENSIONED PLAN - SECTOR B

DIMENSIONED PLAN - SECTOR A

Manage internal team of 5-6 people and external team of 8-10 consultants.

Manage and Produce SD, DD, & CD drawing sets.

Lead the project’s BIM technology, strategy & standards across disciplines.

Coordinate Interior Design, Structural, Mechanical, Electrical, Plumbing, Lighting, Audiovisuals, Civil and Landscape disciplines with Architectural drawings.

Coordinate Life Safety & Fire Protection drawings & Project Specs with Code & Spec consultants.

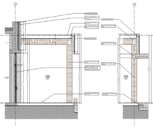
Engineer architectural details for pools and water features in coordination with MEP and structural design.

Foster strong client relationships through clear communication, managing expectations, and ensuring project alignment with their vision and goals.

Compute data to perform area, cost, & design calculations using BIM parametric capabilities.

POOL DETAILS
WALL SECTION WITH ISOMETRIC

RESERVA CONCHAL, COSTA RICA

LUXURY HOSPITALITY CAMPUS PROJECT, ARRIVAL, MAIN LOBBY, 40+ CASITAS & TENTED, BEACH CLUB

SR. DESIGNER | PM | BIM LEAD

Manage internal team of 5-6 people and external team of 8-10 consultants. Manage and Produce SD, DD, & CD drawing sets.

Lead the project’s BIM technology, strategy & standards across disciplines. Coordinate Interior Design, Structural, Mechanical, Electrical, Plumbing, Lighting, Audiovisuals, Civil and Landscape disciplines with Architectural drawings.

Coordinate Life Safety & Fire Protection drawings & Project Specs with Code & Spec consultants.

Engineer architectural details for pools and water features in coordination with MEP and structural design. Foster strong client relationships through clear communication, managing expectations, and ensuring project alignment with their vision and goals. Compute data to perform area, cost, & design calculations using BIM parametric capabilities.

Guardian design intent once the project trasitions to Local Architect for Permit and Construction.

nanettemg05@gmail.com

786.970.3933

Professional Practice

Designer | Project Manager | BIM Lead

SB Architects

Coral Gables, FL

nanettemg05@gmail.com

786.970.3933

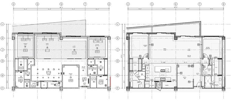
10-STORY MIXED-USE HOTEL, CONDO, RETAIL, PARKING

PROJECT MANAGER | BIM LEAD

BUILDING ELEVATIONS

BUILDING SECTIONS UNIT FLOOR PLANS

Manage team of 3-4 people.

Manage and Produce SD, DD, & CD drawing sets.

Lead the project’s BIM technology, strategy & standards.

Coordinate Interior Design, Structural, Civil, Mechanical, Electrical, Plumbing, Lighting, & Fire Protection disciplines with Architectural drawings.

Coordinate Life Safety drawings & Project Specs with Code & Spec consultants.

Compute data to perform area, cost, & design calculations using BIM parametric capabilities.

DESIGNER | PM | BIM LEAD

Manage team of 2-3 people.

Manage project schedule.

Manage project deliverables per contract requirements.

Manage and Produce Master Planning, Concept, and SD drawing sets.

Lead the project’s BIM technology, strategy & standards.

Establish and Lead weekly design meetings and follow-ups between Owner, Architect and Consultants.

Design architecture to meet client’s requests and project needs.

Coordinate Interior Design, Structural, Civil, Mechanical, Electrical, Plumbing, Lighting, & Fire Protection disciplines with Architectural drawings.

Compute data to perform area, cost, & design calculations using BIM parametric capabilities.

9-STORY HOTEL, 2-STORY RESTAURANT

JOB CAPTAIN | BIM LEAD

Manage and Produce Concept, SD, DD nad CD drawing sets. Lead the project’s BIM technology, strategy & standards.

Lead weekly design meetings and follow-ups between Owner, Architect and Consultants. Design architecture to meet client’s requests and project needs.

Coordinate Interior Design, Structural, Civil, Mechanical, Electrical, Plumbing, Lighting, & Fire Protection disciplines with Architectural drawings. Coordinate local and international code compliance.

JOB CAPTAIN | BIM LEAD

Manage team of 2-3 people.

Manage and Produce SD, DD, & CD drawing sets.

Lead the project’s BIM technology, strategy & standards.

Coordinate Interior Design, Structural, Civil, Mechanical, Electrical, Plumbing, Lighting, & Fire Protection disciplines with Architectural drawings.

Coordinate Life Safety drawings & Project Specs with Code & Spec consultants.

Compute data to perform area, cost, & design calculations using BIM parametric capabilities.

Coordinate Construction Administration, RFIs, & Details under supervision of senior PM.

ARRIVAL VILLAGE MASTER PLAN

LONG CAY ISLAND, BAHAMAS

1-STORY BOUTIQUE CAMPUS PROJECT, BAHA MAR ISLAND RESORT

JOB CAPTAIN | BIM LEAD

Manage team of 2-3 people. Manage and Produce Concept Set, SD & DD drawing sets. Lead the project’s BIM technology, strategy & standards.

Coordinate Interior Design, Structural, Civil & MEP. Coordinate Urban Planning and Landscape Design on-site. Coordinate Life Safety & Project Specs with Code & Spec consultants. Compute data to perform area, cost, & design calculations using BIM.

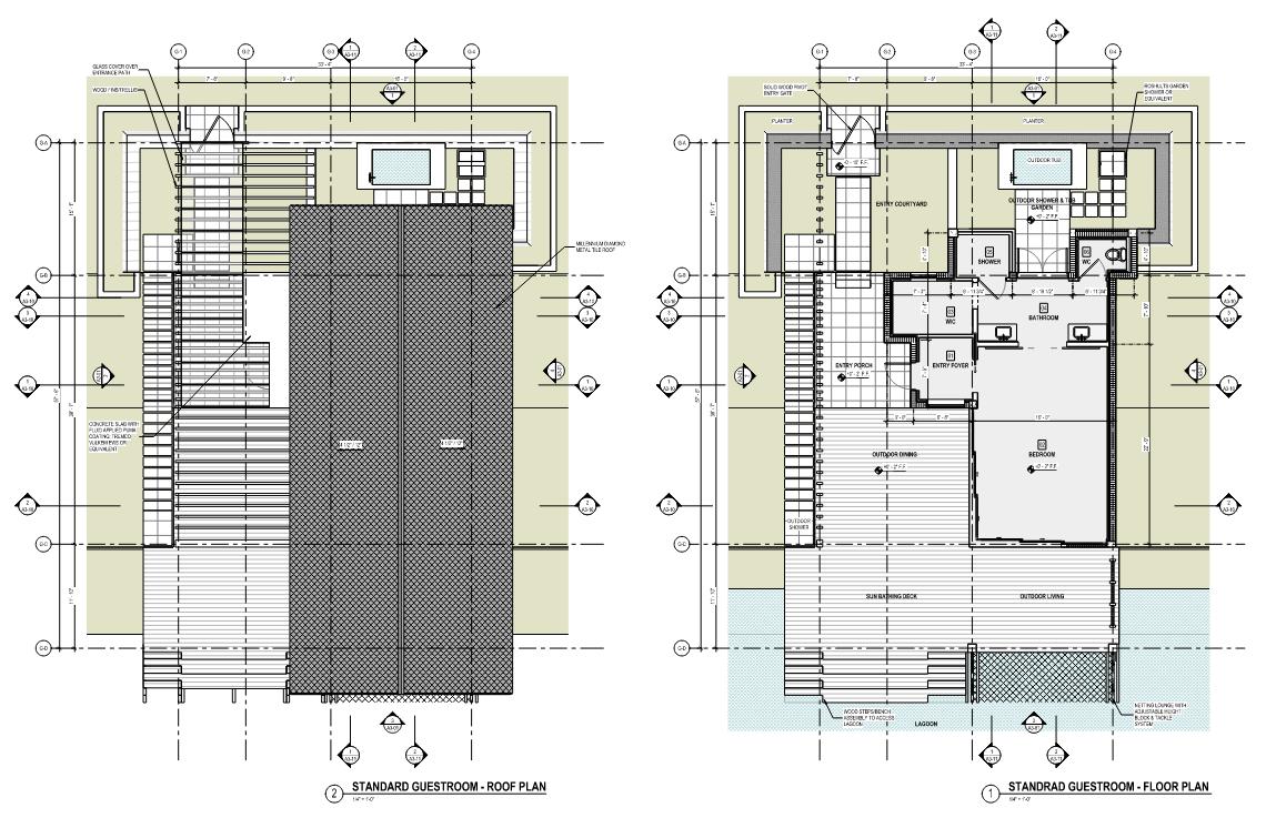
WALL SECTION DETAILS

JOB CAPTAIN | BIM LEAD

Manage team of 2 people.

Manage and Produce SD & DD drawing sets.

Lead the project’s BIM technology, strategy & standards.

Coordinate Interior Design, Structural, & MEP.

Research & Develop Sustainability strategies to approach net-zero emissions. Compute data to perform area, cost, & design calculations using BIM.

PHOTO-VOLTAIC DIAMOND TILE SYSTEM (SUSTAINABLE DESIGN + PARAMETRIC FAMILY)

WOOD JOIST ROOF STRUCTURE (PARAMETRIC ASSEMBLY FAMILY)

POST AND SCREEN SHADING SYSTEM (SUSTAINABLE DESIGN + PARAMETRIC FAMILY)

RAMMED EARTH WALL (SUSTAINABLE DESIGN + PARAMETRIC FAMILY)

RIVANA AT INNOVATION STATION, HERNDON VA

URBAN DEVELOPMENT MASTER PLAN

DESIGNER | JOB CAPTAIN

Concept, SD Town

FIXED CONCRETE PLANTER

HANGING RUST METAL PLANTER

HANGING PLANTERS & STAIR STRUCTURE

Design basement parking oculus. Manage and Produce Concept & SD drawing sets. Lead the project’s BIM technology, strategy & standards.

Research & Develop Sustainability strategies to approach net-zero emissions.

Compute data to perform area, cost, & design calculations using BIM.

CONCEPT PLAN

BIM Management

Parametric Design | BIM Collab | Documentation Standards

SB Architects

Coral Gables, FL

nanettemg05@gmail.com

786.970.3933

BIM EXECUTION PLAN

BIM 360

Community, Education, Arts & Culture

Historic Preservation | Design Pedagogy | Fine Arts Curator

City of Coral Gables

Florida International University

Miami, FL

SB Architects

Coral Gables, FL

nanettemg05@gmail.com

786.970.3933

“THE GARDEN OF OUR LORD”

HISTORIC PRESERVATION EFFORT IN THE CITY OF CORAL GALES, IN COLLABORATION WITH BONNIE BOLTON, MARICRIS LONGO, JOANNA LOMBARD, ROCCO CEO, AND CARLOS MARIN.

DESIGN STUDIO 3

FALL 2019 STUDENTS PRESENTING “LABYRINTH” PROJECT IN COURTYARD AND GALLERY OF FIU SCHOOL OF ARCHITECTURE.

SB WALLS

CURATING FINE ARTS FOR THE SB WALLS PROGRAM TO PROMOTE HIGH QUALITY LOCAL ARTISTS WHILE ELEVATING THE OFFICE ENVIRONMENT FOR SB EMPLOYEES, LEADERSHIP, CLIENTS AND VISITORS.

Thank you!

Academic Works

College of Architecture and The Arts

Florida International University Miami, FL

nanettemg05@gmail.com

786.970.3933

SUSTAINABLE URBANISM: multimodal transit center

GUANTANAMO BAY, CUBA

Proposal for the redevelopment of Guantanamo Bay City is to create a Multi-modal Transit Center by redesigning the existing ferry landing space. The Multi-modal Transit Center offers an international entrance to the city that circulates passengers from the airport and the surrounding Caribbean Islands to connect them with the light rail system within the city. With 175,000 square feet, the transit center combines a ferry terminal, a light rail station, an underground parking garage, and a public roof garden. The building grows from the landscape into a green roof system of shifting platforms that allows for natural cooling and lighting.

URBAN CREUZA: city + building + path

GENOVA, ITALY

The Urban Creuza is an academic project realized during the Study Abroad semester in Genoa, Italy. The exercise proposed an addition behind the municipal building Palazzo Tursi, located on Via Garibaldi, at the foot of the Spianata di Castelleto.

Being in the historic center of Genoa, the project is about the urban connection between Via Garibaldi and Spianata di Castelleto, two historically significant sites that are currently disjointed due to the difference in elevation between them. Therefore the concept of the project is to create a tangible link between both urban contexts: an architectural organism, which integrates the Genovese urban landscape, the slope of the site, a full functioning public building, and a pedestrian network. The Urban Creuza is a synthesis of urban juxtaposition where the connection occurs at all scales, inside and outside, above and under ground.

[strategy]

The connective path celebrates the insatiable pedestrian flow of the city of Genoa by providing direct walkable links with Via Garibaldi, Palazzo Tursi, and the Spianata di Castelleto. The zig-zag nature of the path alleviates the slope of the hill during ascension and allows for a wide range of views during the procession. Sectionally, the project creates an overground walkable landscape while piercing spaces underground to allow for interior connections with Palazzo Tursi.

URBAN FABRIC INTEGRATION

By combining the path with the programmatic massing requirements it becomes an “inhabitable artery” that seamlessly integrates into the city landscape as if it was part of the urban fabric all along.

URBAN MASSING INTEGRATION

URBAN FACADES INTEGRATION

Longitudinal Section

LINCOLN ROAD: public library

MIAMI BEACH, FL

The Lincoln Road Public Library is an academic project that proposes a new end for the west edge of Lincoln Road. The project holds significant urban connotation because it redefines a start/end for the most important pedestrian road in Miami Beach.

miami beach
lincoln road

[concept]

The idea of the project is to separate all programmatic functions into independent objects that are interconnected by a system of floating corridors and stairs. The separation allows for quieter spaces and grants the building objects a wider range of views of the bay and the city.

[strategy]

The volumes are categorized by programmatic function. The “books” box is located in the central area and it becomes the pivot around which all other programs and circulation are arranged. The “reading” boxes stand closer to the bay to provide the readers with views of the bay and Downtown Miami. The “cafe” box falls outside the property line to become the most urbanistically relevant object of the project because it makes an urban statement that defines the west end of Lincoln Road. It faces the street and the bay and it becomes a point of interest that brings attention to the rest of the public library.

MIAMI INFILL: the light box

MIAMI, FL

Infill: The Light Box is an academic project that examines comprehensive mixed-use housing in an urban context. The project focuses on organization and studies of adjacencies of living. The main topic becomes how to bring natural light into the infill space while dealing with the concept of living at many scales: from the relationship with the urban context to the scale of furniture.

The concept for this project is a problem-solving approach that utilizes the issue of natural lighting penetration as the generator of the architecture.

The enclosure of the site due to its length and narrowness presents the problem of how to introduce light and fresh air into such confined space. Thorough analysis of the sun path over the site determines four main axes of light that will define the spatial, programmatic, and structural organization of the project. Carving vents that run in the direction of the four axes previously defined allows full penetration of natural light into the project throughout the entire day.

VORKURS / MOCKPLAY: wall panel

[above] The sequence shows how deforming the sphere by stretching changes its 2D projection (unfolded projections were produced by Pepakura)

[ above ] The sequence shows how deforming the sphere by stretching changes its 2D projection (unfolded projections were produced by Pepakura).

[ below ] The sequence shows how deforming the 2D projection alters the resolution of the sphere and causes volumetric deformations.

[below] The sequence shows how deforming the 2D projection alters the resolution of the sphere and causes volumetric deformations.

2 to 3 in deformation 4 to 6 in deformation

[concept]

The exploration becomes about panelization and how this technique can be applied to design and architecture.

[strategy]

These images reveal the unpredicted deformations that occur when attempting to assemble the projection into a spherical form.

[ above ] Fabrication drawing of a composite wall panel that applies the tab system as structure.

The drive of the project are the deformations caused by the process of transforming 3D forms into 3D forms. The tabs become a crucial element during this process, where their shape and size determine process.

[above] Interior images of panelized sphere assembled using the tab system.

[ right & below ] Mock-up Wall panel exploring the tab system and the extent of deformations that it allows. The panels are made of sheet metal that has been cut and perforated. The tabs are riveted in place to allow for a rigid connection that provides structural support to the system.

[below] Arrangement of half-spheres unfolded as a whole to analyze the complexity of the projection

SKETCHES: on-site

GENOVA, ITALY

During the study abroad travels within Italy we visited several cities such as Rome, Florence, Genova, Milan, Venice, and Verona. These sketches document my on-site reflections of the spatial qualities, proportions, and design I found throughout the trips.

Thank you!

Turn static files into dynamic content formats.

Create a flipbook
Issuu converts static files into: digital portfolios, online yearbooks, online catalogs, digital photo albums and more. Sign up and create your flipbook.