LOOK INSIDE: Civic Purpose

Page 1

CIVIC PURPOSE: URBAN DESIGN IN PRIVATE PRACTICE JOHNSON FAIN

Cont Civic Purpose: Urban Design in Private Practice William H. Fain, Jr. 6 CULTURE 150 CITY 20
ents Appendix Acknowledgments 326 Project Leaders 328 Johnson Fain Team 329 Project Sponsors 330 Project Data 332 Image Credits 335
204
274
KNOWLEDGE
REGION

CIVIC PURPOSE: URBAN DESIGN IN PRIVATE PRACTICE

As urban design and planning practitioners who engage both public and private clients on projects of significant scale, the Johnson Fain team has naturally been at the center of issues regarding the public realm and the environment. Our predecessor firm, William L. Pereira & Associates, historically had dealt with projects requiring an interface between public and private interests. Much of the work done then seemed appropriate for its time given each project’s political and economic context, but today, matters have become more complex, requiring greater reliance on research and user engagement to achieve the highest level of public good. In 1987, when the Johnson Fain office was launched, we felt comfortable working on complex projects, yet recognized that success with projects of scale going forward would require ever-greater attention to public issues and mitigations. This is especially true for clients who initiate projects through public entrepreneurial agencies and public-private partnerships, and for private developers seeking entitlements. In the interest of achieving a successful project for the client, acquiring their entitlements and the requisite community support, we believe it is vitally important to establish a collaborative process of engagement. Listening to the voices of increasingly sophisticated communities allows us to gain clearer understanding about how the community and the client can mutually benefit. In other words, an axiom for Johnson Fain going forward has been that all our projects should achieve some level of civic purpose, so that both our private and public clients and the end users share in the benefits. Our urban designers and planners embrace this outlook, front and center. We consider it to be a priority of the highest order, no matter what the nature of the client or project.

One consequence of Johnson Fain’s quest for shared benefit that underlies civic purpose is a commitment to intensive preparatory research at the broad scale of environmental, programmatic, and contextual data pertaining to urban design and planning. Indeed, a significant part of an urban design project’s budget is devoted to informing ourselves through research to understand the nature of the problem

GLOBAL PRACTICE

6 CIVIC PURPOSE: URBAN DESIGN IN PRIVATE PRACTICE
6 LOS ANGELES SAN FRANCISCO SACRAMENTO HENDERSON FULLERTON DENVER HONOLULU SAN DIEGO ANAHEIM IRVINE HOUSTON SAN ANTONIO COLUMBUS NEW YORK WASHINGTON D.C. ORLANDO BARBADOS OKLAHOMA DALLAS SEATTLE SOLANO NAPA VALEY

LONDON PARIS ROME

AL KHOBAR

NEOM DOHA

YANBU

MUMBAI

BADALING

DANDONG BEIJING

YINCHUANTIANJIN CHANGLI QINGDAO

BANGKOK LUZHOU XI'AN

MIANYANG

CHENGDU XICHANG

OSAKA TOKYO

SHANGHAI

GULIN HENGYANG

TAICHONG

HAINAN GUANGZHOU

SAIPAN

GUAM

COLOMBO

JAKARTA

GOLD COAST

KNOWLEDGE REGION CITY CULTURE

Development of the 300-acre Mission Bay district of San Francisco — the largest addition in the city’s history — presented an opportunity to marshal the physical, social, political and market forces of urban growth all at once, in contrast to typical conditions that unfold incrementally over time. Originally a marshland and later the dump for debris from the 1906 earthquake and fire, Mission Bay was repeatedly planned for redevelopment four separate times over a twenty-year period, consistently failing to garner support and, in the process, hardening the surrounding communities into opposition of real estate development throughout the city. In a bold move, the site’s owners terminated the fourth plan because it lacked economic viability with its low densities and high costs. The new, fifth plan had to achieve greater densities and, critically, gain community support by being attentive to their concerns and unquestionably “San Francisco” in its character.

MISSION BAY

SAN FRANCISCO, CALIFORNIA

The master plan drew from historic research seeking the “DNA of the city” and found the “vara block” (vara being a Spanish unit of measure) used by surveyor Jean-Jacques Vioget in laying out the original twelve blocks of the city in 1839. The block dimensions are an efficient size for today’s development types and yield walkable streets. The plan also adopted the layout of San Francisco’s street grid, nearly always perpendicular to the Bayfront, enabling views of Award

• AIA National, Honor Award for Regional and Urban Design

GOLDEN GATE BRIDGE 22 CIVIC PURPOSE: URBAN DESIGN IN PRIVATE PRACTICE
PACIFIC OCEAN SAN FRANCISCO
OAKLAND BAY BRIDGE
N 23
SAN FRANCISCO BAY

the water. A public open space network helped to organize the neighborhoods and facilitate public access to the waterfront. These formal elements of the plan aimed to provide authenticity to the new neighborhood’s character.

The plan also addresses social and political elements in deference to community interests. Its public access and usable open space reflect public requests to support community use and civic life. A high percentage of affordable residential units mitigates the high cost of housing in San Francisco. Extension of light rail into the site makes the project a Transit First development. Mixed use development throughout the project ensures a walkable city. Finally, the city’s mayor made it very clear that he wanted the UCSF Biotech campus in the Mission Bay project, and that’s where it is. All other urban uses surrounding the university are integrated with the campus so there is no distinction spatially between campus and city. Mission Bay subsequently has become one of the most prominent biotech innovation districts in the country.

CIVIC PURPOSE: URBAN DESIGN IN PRIVATE PRACTICE 24
2022
1993
CITY | MISSION BAY 25 0 300 600 FT N
26 CIVIC PURPOSE: URBAN DESIGN IN PRIVATE PRACTICE
28 CIVIC PURPOSE: URBAN DESIGN IN PRIVATE PRACTICE Walking distance to parks Open space
Streetwalls
Streetwalls
and view corridors
29 CITY | MISSION BAY
Land use Mixed-use Urban design framework
30
Project exhibit Public workshop
31
Public workshop — breakout session Mission Bay Commons
37 CITY | MISSION BAY
38 Mission Bay Kid’s Park
39 CITY | MISSION BAY
Mission Creek King Street promenade

The economic reforms initiated by Deng Xiaoping in 1978 brought major change to China following thirty years of Mao Zedong’s free market shutdown. The reforms focused new attention on Beijing, which never had a Central Business District (CBD). The government intended for China’s capital to compete with world commercial centers and planned for a new Beijing CBD at the outset of the new millennium, with the goal of attracting new global enterprises. Civic leaders commissioned a plan for a four-square kilometer industrial site east of Tiananmen Square at the intersection of the Third Ring Road and Jianguomen Outer Avenue, an intersection known as the “Golden Cross.” One objective was to protect the city’s historic core from demolition or other compromise by locating the new district away from it.

Drawing from traditional Chinese city planning, the master plan divides the site into four distinct districts, each centered around a prominent public park. Each of these parks is connected to the others by four additional linear parks, forming an overall open space network. The four districts have a mix of land uses linked by canals and distinct rights-of-way for pedestrians and vehicles in the parks. The park network contains a “necklace” of premier cultural institutions. The plan draws from historic organizing principles that contribute to Beijing’s distinct identity: lakes linked by canals; a strong plan geometry with axial views; large “super-block”

CENTRAL BUSINESS DISTRICT BEIJING, CHINA

AWARD

• First Place, International Design Competition

42 CIVIC PURPOSE: URBAN DESIGN IN PRIVATE PRACTICE
43 BEIJING
N
FORBIDDEN CITY

development areas with through-block walking streets (hutongs); distinct gateway entrances; sun access that helps to provide heat for housing units during cold weather; and thematic open space. Respectful of its urban context, the plan also establishes a unique skyline for the CBD while fully integrating it with its surroundings.

Since 2001, Beijing’s CBD has emerged as China’s primary global business address, drawing more than 117 Fortune 500 businesses in the financial, media, information technology, and consulting service industries. The plan proposed 150 million square feet of development and is nearly built out today.

44 CIVIC PURPOSE: URBAN DESIGN IN PRIVATE PRACTICE
45 CITY | BEIJING CENTRAL BUSINESS DISTRICT 0 500 1,000 FT N

As cities grow, their traditional centers and districts often shift and change in their balance of uses and intensities. In Mumbai, the primary financial center of India, the two established business districts of Nariman Point and Bandra Kurla are reaching full capacity. The city elected to address this fluid context by developing a third financial district at Wadala, an area halfway between the historic Fort district on the south and the Mumbai International Airport on the north. The 247-acre site was acquired by the Mumbai Metropolitan Region Development Authority (MMRDA) because of its strategic location and connectivity to existing and planned metropolitan infrastructure, including a new commuter rail line being built to and from the site. City officials established a program that included over 40 million square feet of commercial office and retail, high-rise housing, and an array of cultural and public uses. Similar to the Beijing CBD, the new location in Wadala would help to preserve the historic core and essential urban character of Nariman Point.

Building on the city’s historic spatial and landscape traditions and combining social and cultural vitality with the region’s electronic

WADALA CENTRAL BUSINESS DISTRICT MUMBAI, INDIA

• First Place, International Design Competition

70 CIVIC PURPOSE: URBAN DESIGN IN PRIVATE PRACTICE
AWARD
ARABIAN SEA
71 CHHATRAPATI SHIVAJI MAHARAJ INTERNATIONAL AIRPORT
N
MUMBAI

connectedness, the plan proposes predominately commercial office uses while also including diverse types of residential development within the same zone. Active, pedestrian-serving uses are encouraged at ground and lower levels. At two key locations, the plan encourages businessserving hotels, and a focused retail street anchors the largely residential western area of the plan. The block structure provides practical dimensions for the development of major commercial buildings while providing convenient access for enhanced walkability as well as limited vehicular access. The plan incorporates three commuter rail stations currently under construction. In addition to requiring sustainable principles and emerging trends of nature-based practices, the architecture will be modern and highly variegated, reflecting optimism about global markets and commerce.

72 CIVIC PURPOSE: URBAN DESIGN IN PRIVATE PRACTICE
74 CIVIC PURPOSE: URBAN DESIGN IN PRIVATE PRACTICE Land use STATION 0 250 500 FT N Residential Hotel Retail Street Commercial/ Transportation Office/ Resi - Ground Lvl Retail Permitted Office/ Resi - Ground Lvl Retail Required Park Space Open Space
75 CITY | WADALA CENTRAL BUSINESS DISTRICT 0 250 500 FT N Master plan
88 CIVIC PURPOSE: URBAN DESIGN IN PRIVATE PRACTICE

uses provide amenities and a job-housing balance for those living in Henderson West, as well as attracting users from other nearby areas. Housing densities range from twenty-five dwelling units per acre on the low end to a maximum of 200 dwelling units per acre on the upper end. These densities are higher than other more traditional areas of Henderson where densities customarily are in the range of four to eight dwelling units per acre. The goal of the plan is to build upon a growing desire within the community for urban living including a variety of housing densities and amenities that accommodates a range of lifestyles, as well as to set a high standard for future development in the region.

89 CITY | HENDERSON WEST

KNOWLEDGE REGION CITY CULTURE

171 CULTURE | FIRST AMERICANS MUSEUM
173 CULTURE | FIRST AMERICANS MUSEUM
193 CULTURE | DISNEY ABC STUDIOS
203 CULTURE | DREAMWORKS SKG STUDIO

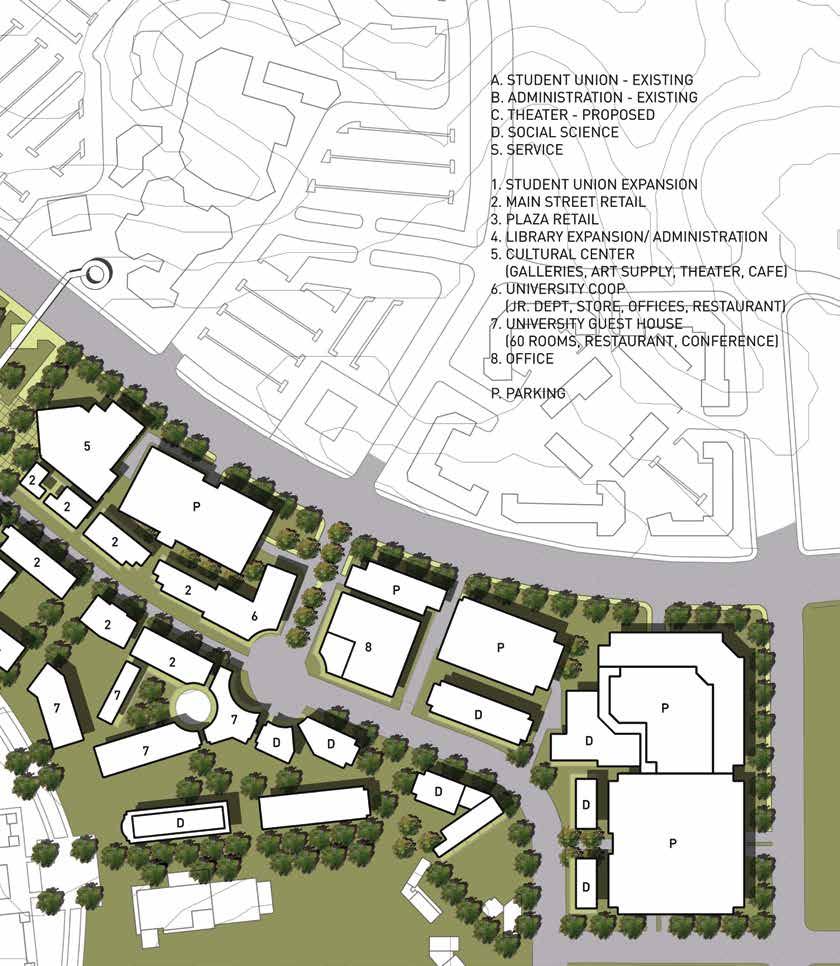
the “gown” in a traditional planning relationship. Ironically, the Main Street plan seeking to turn this about by establishing a connection between the two was proposed by the legacy firm of the planning group that developed the original plan.

The Main Street plan, organized into four conceptual zones, integrates the Main Street development with the campus’s park-like background. Four zones provide transitional spaces and activities for the pedestrian: from the urban mixed-use Main Street to a series of landscaped semi-public courtyards to a set of academic buildings-in-the-park and finally to the bucolic central Aldrich Park itself. The Main Street creates a new sense of place through density and mix of uses, enclosed street edges, architectural scale, and massing relationships. The plan fulfills the daily needs of a burgeoning campus population and is easily accessible on foot or by bicycle.

254 CIVIC PURPOSE: URBAN DESIGN IN PRIVATE PRACTICE 0 100 200 FT N
255 KNOWLEDGE | UC IRVINE MAIN STREET
308 CIVIC PURPOSE: URBAN DESIGN IN PRIVATE PRACTICE 0 1.5 3 MI N Existing
agricultural conditions Existing wetlands

Proposed agro-tourism

Proposed eco-town cross-sectional concept

309 REGION | TIANJIN ANCIENT WETLAND RESTORATION 0 1.5 3 MI N

PROJECT LEADERS

CITY

Mission Bay: William Fain, Juan Carlos Begazo

Beijing Central Business District: William Fain, Larry Ball, Srini Rao, Steve Levine, Juan Carlos Begazo, Neil Kritzinger

Jiangwan New Town: William Fain, Srini Rao, Robert Shaffer

Jiading New Town: William Fain, Juan Carlos Begazo, Daniel Janotta, Chunyan Zhang

Wadala Central Business District: William Fain, Juan Carlos Begazo, Kersu Dalal, Mehr Wani, Trina Gunther

Luxe Lakes Eco-City: William Fain, Robert Shaffer, Mehr Wani, Chunyan Zhang

Henderson West: William Fain, David Alpaugh, John Jackson, Shareefa Abdulsalam

Westfield Promenade: William Fain, Scott Johnson, Juan Carlos Begazo, Greg Verabian, Brian Knight

HemisFair Park Redevelopment: William Fain, David Alpaugh, Kersu Dalal, Trina Gunther, John Jackson

Playa Vista Phase II: William Fain, David Alpaugh, Juan Carlos Begazo, Kersu Dalal

LA Rivertown: William Fain, David Alpaugh, Juan Carlos Begazo, Kersu Dalal, Trina Gunther

Culver City Transit Oriented Development: William Fain, David Alpaugh, Trina Gunther, John Jackson, Mehr Wani

Highway 111: William Fain, Steve Levine, Katherine Rinne, Mark Gershen

CULTURE

First Americans Museum: William Fain, Scott Johnson, Robert Shaffer, Dan Janotta, Jen Spangler, Juan Carlos Begazo, Kersu Dalal, Larry Ball, Douglas Gardner, David Alpaugh, Suma Spina, Craig Lawrence

YMCA Piers: William Fain, Juan Carlos Begazo, Arnold Swanborn

West LA VA Campus: William Fain, David Alpaugh, Kersu Dalal, John Jackson, Mehr Wani

Disney ABC Studios: William Fain, Juan Carlos Begazo, David Alpaugh, Trina Gunther

DreamWorks SKG Studios: William Fain, David Alpaugh, Juan Carlos Begazo

KNOWLEDGE

Amgen: William Fain, Juan Carlos Begazo, David Alpaugh, Steve Levine, Larry Ball, Robert Shaffer, Trina Gunther

Genentech: William Fain, David Alpaugh, Dan Janotta, Abhijeet Mankar

Jet Propulsion Laboratory (JPL): William Fain, David Alpaugh, Srini Rao, Mark Gershen

Knowledge City: William Fain, David Alpaugh, Juan Carlos Begazo, Kersu Dalal, John Jackson, Evan Jenkins

UC Berkeley College of Engineering: William Fain, Scott Johnson, David Alpaugh, Larry Ball, Robert Shaffer, Mehr Wani, Greg Verabian, Patricia Shigetomi

UC Irvine Main Street: William Fain, Juan Carlos Begazo, Mark Gershen, Katherine Rinne

Chadwick School: William Fain, David Alpaugh, Trina Gunther

Los Angeles Unified School District Campuses: Juan Carlos Begazo, Jeffrey Levy

REGION

JinJiang River Corridor: William Fain, Robert Shaffer, Trina Gunther, Chunyan Zhang

Long Quan Yi District: William Fain, Robert Shaffer, Kersu Dalal, Trina Gunther, Chunyan Zhang

Chinese Whiskey Valley: William Fain, Robert Shaffer, Chunyan Zhang, John Jackson, Kersu Dalal, Trina Gunther, Mehr Wani, Mark Gershen

Tianjin Ancient Wetland Restoration: William Fain, Robert Shaffer, Larry Ball, Chunyan Zhang

Guangzhou Economic Development District: Robert Shaffer, Trina Gunther, Chunyan Zhang

LA Greenways: William Fain, Robert Shaffer, Pat Dawe, Katherine Rinne, Mark Gershen

328 CIVIC PURPOSE: URBAN DESIGN IN PRIVATE PRACTICE

JOHNSON FAIN TEAM

Shareefa Abdulsalam

Bridget Ackeifi

Gevo Aelian

Marcella Aguilar

Kiyoshi Akuzawa

Nelson Almendarez

David Alpaugh

Eric Altizer

Morteza Alvani

Kristen Anderson

Paul Anvar

Lauri Arneson

Demetrios Avraamides

Christian Baker

Maria Baldenegro

Larry Ball

Angela Barker

Yasaman Barmaki

Jocelyn Basseporte

Juan Carlos Begazo

Caroline Bell

Adrinee Bodakian

James Brakefield

Tom Brakefield

Sean Briski

Paige Burke

Jessica Campion

Aron Carcamo

Adileni Caro

Jonathan Chang

Helen Chen

Sherry Chen

Warren Chen

Shih-Pu Nora Chen

Helen Cheuk

Max Chirkov

Karen Choi

Hyeyoon Chung

Steve Chung

Becky Cohen

Tricia Converse

Matthew Conway

Joanne Costello

Arlene Cuevas

Weiyan Dai

Kersu Dalal

Patrick Dawe

Philip De Cancio

Ryan Del Poso

Angel De Romana

Margie Dianco

James (JED) Donaldson

Nastasja Dorandi

Shuangdi Dou

Lori East

Kristine Edinchikyan

Natalie Egnatchik

William H. Fain Jr.

Edwin Fang

Mary Faria

Feryal Farahzad

Carol Fisher

Dana Fisher

Christopher Flacke

Peter Flores

Jack Fong

Christina Fujii

Marc Futterman

Garine Gabrielian

Renata Ganis

Shanoa Garcia

Douglas Gardner

Mark Gershen

Linet Ghukasyan

Eric Giragosian

Todd Gish

John Gralewski

Barbara Gray

Nick Guarna

Trina Gunther

Junichi Harada

Amira Hersi

Vera Hetcel

Sapeer Hillel

Megumi Hironaka

Alexandra Holguin

India Howllet

Jeanette Hsu

Joy Huang

Po Yuan Huang

Adriana Jackson

James Jackson

John Jackson

Daniel Janotta

Jelena Jegdic

Evan Jenkins

Kristina Johnson

Scott Johnson

Neil Kaplanis

Oleksandra Kazymirska

Gregory Keating

Aris Keshishian

Celine Khachatourian

Saba Khalili

Esra Kilickan

Caroline Kim

Paul Kim

Brian Knight

Anne Koshalek

Neil Kritzinger

Gunilla Kronvall

Dana Ladd

Amber Langlois

Craig Lawrence

Byungha Lee

Edward Lee

Grace Lee

Jaewon Lee

Leni Lee

Stephen E. Levine

Jeffrey Levy

Li Li

Xue Lin

Lauren MacColl

Kavita Mahabaleshwark

Hung Mak

Ethan Manaster

Abhijeet Mankar

Nicholas Martinez

Kristel Marquez

Michael McCarthy

Gigi McGee

Richelle Leviste-Medina

Rouland Medina

Alexis Melnicki

Jillian Miller

Lex Moloney

Akira Nakano

Daniel Nay

Thomas Nohr

Ron Oster

Mark Owen

Carlo Paganuzzi

Andrew Palmer

Margie Parentela

David Park

Darnell Park

Tigran Parsamyan

Hui-Yi Paterson

Andrea Pavia

Luc Peltier

Sixto Pena

Layton Petersen

Chinh Pham

Alejandro Pijuan

Corey Pope

Isabel Portillo

Lorenz Quinley

Harold Ramirez

Raymond Rangel

Srinivas Rao

Shahrzad Razi

Ian Remulla

Elizabeth Rendon

Stacey Rigley

Katherine Rinne

Arnold Rivera

Chris Roades

Cheaseon Roh

Francois Ruel

Taylor Sanderson

Joey Sandoval

Zlatan Sehovic

Alexander Sexsmith

Robert Shaffer

Keerthi Shekar

Aman Sheth

Ritsuko Shibutani

Patricia Shigetomi

Juan Silva

Jillian Skelton

Dana Smith

Julia Smith

John Son

Boram Song

Leticia SooHoo

Jenifer A. Spangler

Suma Spina

Tom Stallman

Elsa Su

Meng Sun

Matthew Sunseri

Chang Suo

Arnold Swanborn

Bahareh Tabatabaei

Crystal Tan

Scott Taylor

Travis Taylor

Lek Thanavatik

Priyanka Thatte

Bradley Thomas

Todd Thongeiam

Brian Tichenor

Larry Tighe

Hung Ting

Joshua Treiber

Kevin Tyrell

Donna Vaccarino

Gregory Verabian

Robert Villagomez

Nicole Villamin

Dorian Viniegra

Denis Vitoreli

Viviana Vivero

Loann Vu

Li-Hsin Wang

Wenlan Wang

Yang Wang

Mehr Wani

Quincy Wargo

Aran Weng

Bobby White

Allen Wong

Eeechin Wong

Li Wu

Kevin Yan

Esther Yang

Jui-Ni Yang

Jenny Yee

Christian Yen

Vivian Yeung

Sean Yun

Holly Zeiler

Hraztan Zeitlian

Chunyan Zhang

329

PROJECT SPONSORS

Alexandria Real Estate Equities

American Indian Cultural Center Foundation

Amgen

Atlas Capital Group

BaoDing City FuRui Landscape Co.

Barker Pacific Group

*Beijing CBD Administrative Committee

Bel-Air Country Club

BioMarin Pharmaceutical Inc.

Boeing Realty

Booth Estate

Brook Partners, Inc.

Byron Winery

C.C.A. Limited

California Institute of Technology

Catellus Development Corporation

CBRE

CBS Television City

Century City Realty LLC

Cesar Chavez Foundation

Chadwick School

Chateau Western Royal Spring Co.

Chengdu BRC Group

Chengdu Jin Tang LanGuang HeJun Property Development Co.

Chengdu LongQuan Yi District Government

Chengdu ShuangLiu Urban Planning Administration

Bureau

Chengdu Wide Horizon Investment

China Foods Limited

Christ Catholic Cathedral Corporation

City National Bank

City of Beverly Hills

City of Culver City

City of Fullerton

City of Indian Wells

City of Irvine

City of Long Beach

City of Los Angeles

Commonwealth Partners

Concourse Federal Group

Conexant

Constellation Place, LLC

Country of Saudi Arabia

Country of Qatar

County of Los Angeles

County of Solano

Curtis School

Cushman & Wakefield

Co-You Corporation

DanDong JinDi YingDa Real Estate Development Co.

Dandong Nan-Tian-Yuan Real Estate Company

Disney-ABC Television Group

Dotterweich Carlson Mehner Design Inc.

DreamEast Group Limited

DreamWorks SKG

E. & J. Gallo Winery

East Los Angeles College

Experian

Fairplex

Fangshan University

Fashion Institute of Design and Merchandising

Forest City Development

Forest City Residential West

Forest City Washington

Garden Lane Properties, LLC

Genentech

Gilead

GPI Companies

Guam Airport Authority

Guam Housing Corporation

Guangzhou Development District Design Competition

Committee

Gulin District Municipal Government, Sichuan

HemisFair Park Area Redevelopment Corporation

Hillcrest Country Club

Hilton Hotels

Hines

IMT Capital

James Campbell Company

Jamison Properties

Jet Propulsion Laboratory

JMB Realty

JMI Realty

Jones Lang LaSalle

JSB Development

Kamehameha Schools

KB Home

KNBC/ Telemundo

Laguna Beach Company

LA Plaza de Cultura y Artes

LDC Advisors

Legacy Partners

Lennar

Le Plastrier Development Consulting,

Lincoln Property Company

LNR

Lockheed Corporation

Long Quan Yi District Government, Chengdu

Los Altos Hills Estate

Los Angeles Area Chamber of Commerce

Los Angeles Center Studios

Los Angeles Community College District

Los Angeles Country Club

Los Angeles County Department of Public Works

Los Angeles County Metro

Los Angeles County Museum of Art

Los Angeles County Natural History Museum

Los Angeles Dodgers

Los Angeles Times

Los Angeles Unified School District

Los Angeles World Airports

LuoJiang City Government

MacFarlane Partners

Mack Urban

Maguire Thomas Partners

Marlborough School

Marriott

MCA / Universal

McCourt Group

MDI-Miyama Development International

Microsoft

Mills Development Corporation

Mitsui Fudosan America

Mumbai Metropolitan Region Development Authority

Native American Cultural and Educational Authority

NBC / Universal

NEOM

Nestle USA

Newhall Land & Farming

New Urban West

Nolan Capital, Inc.

330 CIVIC PURPOSE: URBAN DESIGN IN PRIVATE PRACTICE

Norton Air Force Base

Ohio State University

Omninet - The Broadway Company

Opus One Winery

Otis Art Institute

Pacific Earth Resources

Pao Chi Development Co.

Pao Huei Construction Company

Paramount Studios

Pepperdine University

Pierce College

Playa Capital Company

PT. Farpoint Realty Indonesia

Pueblo Nuevo Development

QingDao MingHe Construction & Estate Development Co.

Rand Corporation

Reality SF

Republic Metropolitan

Rising Realty Partners

Robert Mondavi Winery

Roman Catholic Diocese of Orange

Sandstone Properties, Inc.

San Jose Redevelopment Agency

Sauvage Real Estate

Shanghai Chia Chun Real Estate Corporation

Shanghai City Planning and Land Resource Bureau

Shanghai Jiading District Government

Shanghai Municipal Investment Group

Shanghai SongJiang District Government

Shanghai Shen-Di Group Company

Sheraton Hotels

Shuangliu District Municipal Planning Bureau, Chengdu

Sichuan LangJiu (Whiskey) Group

Silverstein Properties, Inc.

South Coast Plaza

Stadco

Stanford Research Institute

Stanford University

State of California

State of Oklahoma

SunAmerica

SunCal Companies

Sunkist

The Clarett Group

The Chadwick School

The Los Angeles Country Club

The Lundquist Institute

The Mills Corporation

The Ratkovich Company

The Staubach Company

Thomas Safran & Associates

Tianjin Real Estate Development & Management Group

Ticketmaster

Tishman International

Toyota Motor Sales USA

Trammell Crow Company

Twentieth Century Fox

Twenty-First Century Insurance

Twinwood USA

Unibail-Rodamco-Westfield

Union Bank

United States General Services Administration

Universal Studios

University of California, Berkeley

University of California, Irvine

University of California Los Angeles

University of California Riverside

University of California San Diego

University of California Santa Barbara

University of Southern California

University of Southern California Keck School of Medicine

Unocal

Urban Partners

US Department of Energy

Venus Over Manhattan

Veterans Advocacy

Vista Canyon, LLC

Walt Disney Imagineering

Walter J. Company

Warner Bros.

Wells Real Estate Fund

Welltower

Whittier College

William Morris Rodeo

YMCA San Francisco

Young Nak Church

331 PROJECT SPONSORS

PROJECT DATA

CITY

Mission Bay

San Francisco, California, USA

• AIA National, Honor Award for Regional and Urban Design

Master Plan and Design Standards & Guidelines

Planning and Urban Design Dates: 1996–1998

Site Area: 303 acres

Program: University of California San Francisco Mission Bay campus, Bio-Tech research, private Bio-Tech research and development, hospital, residential, retail, hotel, public school, public library, fire and police stations, community facilities, and public open space

Client: Catellus Development Corporation

Landscape Architect: Laurie Olin, OLIN Studio

Civil Engineer: KCA Engineers, Inc.

Traffic Engineer: Wilbur Smith Associates, Inc.

Public Workshops Consultant: SMWM

Central Business District

Beijing, China

• First Place, International Design Competition

Conceptual Master Plan and Urban Design

International Design Competition: 2000–2001

Site Area: 990 acres

Program: HQ office, services, retail, cultural, civic, and other public amenities, residential, and public open space

Client: Beijing CBD Administrative Committee

Jiangwan New Town

Shanghai, China

• First Place, International Design Competition

Conceptual Master Plan and Urban Design

International Design Competition: 2001

Site Area: 2,500 acres

Program: Mixed-use residential neighborhood, university, research and development, schools, other public amenities, wetland restoration, lakes, and public open space

Client: Shanghai Municipal Investment Group

Jiading New Town

Shanghai, China

Central Business District Master Plan

International Design Competition: 2011

Site Area: 104 acres

Program: Commercial offices, services, retail, conference center and hotel, cultural and civic amenities, residential, and public open space

Client: Shanghai City Planning and Land Resource Bureau and Shanghai Jiading District Government

Wadala Central Business District

Mumbai, India

• First Place, International Design Competition

Central Business District Master Plan

International Design Competition: 2012

Site Area: 270 acres

Program: Commercial office, hotel, retail, cultural and civic, residential, and public open space

Client: Mumbai Metropolitan Region Development

Authority

Landscape Architect: OLIN Studio

Environmental Planning & Engineering: ARUP

Associate Architect & Local Liason: DSP Design Associates

Luxe Lakes Eco-City

Chengdu, Sichuan, China

Programming and Master Plan

Planning and Urban Design Dates: 2005–2007

Site Area: 4,200 acres

Program: Low-impact urban development, residential, creative office, retail, colleges, school, cultural and civic uses, and public open space

Client: Chengdu Wide Horizon Investment

Landscape Architect: Famous Garden

Henderson West

Henderson, Nevada, USA

Master Plan and Urban Design

Planning and Urban Design Dates: 2016

Site Area: 103 acres

Program: Residential, offices, retail, and public Open Space

Client: Sauvage Real Estate, LLC

Landscape Architect: The Office of James Burnett

Civil Engineer: Slater Hanifan Group (SHG)

Real Estate Economics: RCLCO Fund Advisors

Planning Consultant: Richard T. Serfas, American Nevada Company

Westfield Promenade

Warner Center, Los Angeles, California, USA

Master Plan and Urban Design

Planning and Urban Design Dates: 2016–2020

Site Area: 35 acres

Program: Class A and creative offices, lifestyle retail, two hotels, an entertainment venue for athletic events and performances, residential, and public open space including a central park

Client: Westfield Group

Economics: HR&A Advisors, Inc.

Urban Designers: Johnson Fain

Architects: Johnson Fain | Togawa Smith Martin, Inc. | HKS Architects, Inc.

Landscape Architects: Burton Studio

Civil Engineer: INCLEDON Consulting Group

Transportation Consultant: Gibson Transportation

Consulting, Inc

MEP Consultant (EIR): AMA Group, Consulting Engineers

Sustainability Consultant (EIR): GAIA Environmental Consulting

Parking Consultant: Choate Parking Consultants

HemisFair Park Redevelopment

San Antonio, Texas, USA

Redevelopment Framework and Master Plan

Planning and Urban Design Dates: 2010–2011

Site Area: 72 acres

Program: Residential, office, hotel, retail, cultural and civic uses, school, and public open space

Client: HemisFair Park Area Redevelopment Corporation

Landscape Architect: Cindy Sanders, OLIN Studio

Traffic, Transportation, Parking, Hydrology and Civil

Engineer: Pape-Dawson Engineers, Inc.

Civil Engineer: RJ Rivera Associates, Inc.

Historic Preservation: William A. Dupont, FAIA

Economics, Finance & Feasibility: HR&A Advisors, Inc.

Market Overview: CBRE Group, Inc.

Sustainability Consultant: ARUP

Associate Architect: Jim Poteet, FAIA, Poteet Architects, LP

Playa Vista Phase II

Los Angeles, California, USA

• APA California, Planning Award

• APA Los Angeles, Planning Award

Urban Design Standards and Guidelines

Planning and Urban Design Dates: 2006

Site Area: 111 acres

Program: Residential, office, Playa Vista Town Center retail, and public open space

Client: Playa Capital Company, LLC

Landscape Architect: Meléndrez Landscape Architecture

Civil Engineer: Psomas

Traffic Engineer: Raju Associates, Inc.

LA Rivertown

Los Angeles, California, USA

• AIA California Council, Urban Design Award

• AIA Los Angeles, NEXT LA Award

• ASLA California Council, Urban Design Award

Urban Regeneration Master Planning and Urban Design Guidelines

Planning and Urban Design Dates: 2012

Site Area: 27 acres

Program: Residential, office, retail, cultural and civic, and public open space

Client: Young Nak Church and STADCO Broadway Company

332 CIVIC PURPOSE: URBAN DESIGN IN PRIVATE PRACTICE

Culver City Transit Oriented Development

Culver City, California, USA

• APA California, Planning Award

Transit Oriented Development Visioning Study

Planning and Urban Design Dates: 2016–2017

Study Area: Centered on the Metro Station with a one-mile radius, about a twenty-minute walk from the station

Program: Vision for the future of mobility in Culver City

Client: City of Culver City

Mobility Consultant: Steer Davies & Gleave, Ltd.

Transportation Engineer: KOA Corporation

Highway 111

Indian Wells, California, USA

• AIA National, Urban Design Award

• AIA Los Angeles, Urban Design Award

• Progressive Architecture, Urban Design Award

Urban Design and Specific Plan

Planning and Urban Design Dates: 1988–1991

Site Area: 446 acres along 3.5 miles of highway corridor

Program: Establish development controls and urban design standards, determining criteria for land uses, circulation improvements and landscape features as part of an integrated design

Client: City of Indian Wells

Planning Team Coordination and Zoning: The Planning Associates Group, Inc.

Environmental Impact Review Consultant: UltraSystems Environment, Inc.

Traffic Engineer: Weston Pringle & Associates, Linscott Law & Greenspan

Civil Engineer: Haver & Associates LLC

Housing Consultant: Castaneda & Associates, Inc.

Planning Consultant: Cotton Vreeland Associates, Inc.

Consulting Architect: Jonathan Barnett, FAIA, AICP

Plant Consultant: Eric Johnson

CULTURE

First Americans Museum

Oklahoma City, Oklahoma, USA

• AIA Next LA, Honor Award

• AIA Oklahoma City Chapter Merit Award

• AIA Los Angeles, Design Award

• National EPA Phoenix Award, Excellence in Brownfield Development

• ULI, Americas Award for Excellence

Cultural Center & Museum Master Plan and Architectural Design

Master Planning and Architectural Design Dates: 1997–2021

Site Area: 280 acres

Program: Cultural center and museum, lodge and meeting center, specialty retail, artists’ village, foundry, indoor/ outdoor ceremonial area, interpretive landscaping, dance grounds, and outdoor amphitheater

Client: American Indian Cultural Center Foundation

Institutional Planning: Lord Cultural Resources, Inc.

Museum Exhibit Planning and Design: Ralph Applebaum Associates

Indigenous Peoples History Consultant: Don L. Fixico, Ph.D., University of Arizona

Landscape Architect: Hargreaves Jones

Engineering: ARUP, Nabih Youssef Associates, Stantec

Civil Engineer: The Benham Group

Local Architect: Hornbeek Blatt Architects

Art Direction Consultant: Rick Carter

Economics: Harrison Price Company

Agency Representative: Architectural Design Group (ADG), Inc.

Lighting Design: David Weiner Design

Earned Income Consultant for Cultural Institutions: Manask & Associates

Interpretive exhibit planning and design: Andrew Merriell & Associates, LLC

Museum development and facility planning: Exhibition Associates

Museum Retail Consultant: Shelley Stephens + Associates

YMCA Piers

San Francisco Piers 27, 29, and 31, California, USA

Urban Waterfront Redevelopment

Planning and Urban Design Dates: 2001–2002

Site Area: 23 acres

Program: Maritime-related office, recreational enterprises, retail, restaurants and cafes, sports courts, maritime and outdoor oriented public open space

Client: YMCA San Francisco and Mills Development Corporation

Landscape Architect: SWA Group

Civil & Traffic Engineer: Korve Engineering, Inc.

Associate Architect: Michael Willis, FAIA; D’Agostino Izzo

Quirk (D’AIQ) Architects, Inc.

Historical Architect: TreanorHL

Maritime Consultant: TranSystems Corporation

Legal: Kay & Merkle, LLP

Structural Engineer: KL&A, Inc. of California; McNamara Salvia

MEP Consultant: Flack + Kurtz Consulting Engineers

Parking Consultant: Walker Parking Consultants/Engineers

West LA Veterans Administration Campus

Los Angeles, California, USA

• APA California, Urban Design Award

• APA Los Angeles, Planning Award

Campus Master Plan and Urban Design

Planning and Urban Design Dates: 2015–2016

Site Area: 388 acres

Program: Permanent supportive housing, hospital, services, amenities, administrative office, and public open space

Client: Veterans Advocacy Associates (VAA)

Legal 1: Munger, Tolles & Olson (MTO), LLP

Legal 2: Public Counsel

Legal 3: ACLU of Southern California

Environmental Site Assessment: Geosyntec Consultants, Inc.

Cost Consultant: Jones Lang LaSalle (JLL), Inc.

Disney ABC Studios

Santa Clarita, California, USA

Film/Television Studio Master Planning and Urban Design

Planning and Urban Design Dates: 2008–2012

Site Area: 56 acres

Program: Production offices, studio offices, sound stages, talent support space, production support, back lot, studio mills, and commissary

Client: Disney-ABC Television Group

Landscape Architect: Laurie Olin, OLIN Studio

Sound Stage Consultant: Scott Carter

Dreamworks SKG Studio

Los Angeles, California, USA

Film/Television Studio Master Plan

Planning and Urban Design Dates: 1995–1996

Site Area: 100 acres

Program: Production offices, studio offices, sound stages, talent support space, production support, back lot, studio mills, and commissary

Client: Dreamworks SKG

Urban Design Consultant: Jonathan Barnett, FAIA, AICP

Landscape Architect: Laurie Olin, OLIN Studio

Art Direction Consultant: Rick Carter

KNOWLEDGE

Amgen

Thousand Oaks, California, USA

Bio-Tech Campus Planning & Urban Design

Planning and Urban Design Dates: 1995–present

Site Area: 120 acres

Program: Research laboratories, administrative offices, food services, product manufacturing, facilities, warehousing, childcare, athletic facilities and other amenities, arts programs, and open space

Client: Amgen

Landscape Architect: Meléndrez Design Partners, Mia

Lehrer + Associates

Civil Engineer: Crosby Mead Benton & Associates

Traffic Engineer: Crain & Associates, Inc.

Lighting: Horton Lees Brogden Lighting Design

Fountain Consultant: STO Design Group, Inc.

Signage & Graphics: Sussman/Prejza & Company, Inc.

333
PROJECT DATA

Genentech

South San Francisco, California, USA

Bio-Tech Campus Planning & Urban Design

Planning and Urban Design Dates: 2003–2012

Site Area: 98 acres

Program: Research laboratories, administrative offices, food service, athletic facilities and other amenities, and open space

Client: Genentech, Inc.

Jet Propulsion Laboratory (JPL)

Pasadena, California, USA

Science and Technology Campus Master Planning

Planning and Urban Design Date: 2003

Site Area: 130 acres

Program: Research laboratories, administrative offices, food services and other amenities, and open space

Client: Jet Propulsion Laboratory

Landscape Architect: Mia Lehrer + Associates

Civil Engineer: Crosby Mead Benton & Associates

Traffic Engineer: Linscott Law Greenspan, Engineers (LLG)

Knowledge City

Houston, Texas, USA

• AIA Los Angeles, NEXT LA Award

New Town Master Planning and Environmental Resource Master Planning

Planning and Urban Design Dates: 2012–2016

Site Area: 15,000 acres

Program: New town development, nature conservation, urban forestry, and agriculture

Client: Twinwood U.S., Inc.

Development Economics: RCLCO Fund Advisors

Marketing and Positioning: Cecilian Worldwide

Landscape Architect: Hargreaves Jones

Civil Engineering and Hydrology: Sherwood Design Engineers: LJA Engineers

Agricultural Consultant: Daron Joffe, Farmer D Consulting

University of California Berkeley, College of Engineering Berkeley, California, USA

College Facilities Master Plan

Planning and Urban Design Dates: 2001–2002

Site Area: 10 acres

Program: laboratories, offices, auditorium, cafe food service, conference rooms, and classrooms

Client: University of California Berkeley (UCB)

Landscape Architect: Ken Kay Associates

University of California Irvine, Main Street Irvine, California, USA

• AIA National, Urban Design Award

• Progressive Architecture Design Award

University Campus Master Planning and Urban Design

Planning and Urban Design Dates: 1986–1987

Site Area: 35 acres

Program: library and administration, cultural center, university guest house, commercial, retail, parking

Client: University of California Irvine (UCI)

Landscape Architect: SWA Group

Civil Engineer: RBF Consulting, LLC

Traffic Engineer: Kunzman Associates

Transportation Engineer: University of California Irvine Institute of Transportation Studies

Chadwick School

Palos Verdes Peninsula, California, USA

School Campus Master Planning and Programming

Planning and Urban Design Dates: 2007–2008

Site Area: 55 acres

Program: Village school facility, student center, media center, faculty and staff housing, teaching pavilions, and studio classrooms

Client: Chadwick School

Los Angeles Unified School District Campuses

Los Angeles, California, USA

Site Master Planning

Planning and Urban Design Dates: 2013–2015

Site Area: 45 school campuses

Program: Facilities master planning for high schools, middle schools, and elementary schools

Client: Los Angeles Unified School District

REGION

Jinjiang River Corridor

Chengdu, Sichuan, China

• AIA California Council, Urban Design Award

• AIA Los Angeles, Next LA Awards

• Architectural Record, China Awards

Conceptual Master Plan and Land Use Policy Recommendations

Planning and Urban Design Date: 2007

Site Area: 69,000 acres

Program: Low-impact urban development, river watershed protection, historic town redevelopment, agricultural and forest preservation

Client: Shuangliu District Municipal Planning Bureau

Long Quan Yi District

Chengdu, Sichuan, China

• First Place, International Design Competition

Regional Urban and Rural Planning

International Design Competition Date: 2005

Site Area: 138,000 acres

Program: New urban business district, automobile manufacturing expansion, research and development, university, commercial office, retail, cultural and civic, financial, residential, agricultural, tourism, and nature preservation

Client: Long Quan Yi Municipal Government

Chinese Whiskey Valley

Gulin (Luzhou), Sichuan, China

Strategic Master Plan

Planning and Urban Design Dates: 2011–2013

Site Area: 787,000 acres

Program: Watershed and water resources protection, forest resources protection, town and village centers, and mixeduse development

Client: Gulin District Municipal Government

Tianjin Ancient Wetland Restoration

Tianjin, China

Regional Sustainable Development Planning

Planning and Urban Design Date: 2008

Site Area: 83,000 acres

Program: Historic wetland restoration, urban agriculture, residential communities, and two mixed-use urban centers

Client: Tianjin Real Estate Development & Management Group Co., Ltd.

Guangzhou Economic Development District

Guangzhou, Guangdong, China

• First Place, International Design Competition

Redevelopment Plan and Urban Design

International Design Competition Date: 2003

Site Area: 53,000 acres

Program: Mixed-use redevelopment within a manufacturing district

Client: The International Design Competition Committee for Guangzhou Development District Development Master Planning and Urban Design

LA Greenways

Los Angeles, California, USA

• AIA Los Angeles, Urban Design Award

• Progressive Architecture, Award for Urban Design

• MOCA Exhibition, “Urban Revisions”

Regional Open Space and Development Planning

Planning and Urban Design Dates: 1993–1994

Site Area: Los Angeles County, over 3 million acres

Program: Greenways and land use recommendations for 400 miles of abandoned rail rights of way, river and flood control channels, and infrastructure rights of way throughout Los Angeles County

Client: Pacific Earth Resources, Ltd.

334 CIVIC PURPOSE: URBAN DESIGN IN PRIVATE PRACTICE

ORO Editions

Publishers of Architecture, Art, and Design

Gordon Goff: Publisher

www.oroeditions.com

info@oroeditions.com

Published by ORO Editions

Copyright © 2024 JOHNSON FAIN

All rights reserved. No part of this book may be reproduced, stored in a retrieval system, or transmitted in any form or by any means, including electronic, mechanical, photocopying of microfilming, recording, or otherwise (except that copying permitted by Sections 107 and 108 of the US Copyright Law and except by reviewers for the public press) without written permission from the publisher.

You must not circulate this book in any other binding or cover and you must impose this same condition on any acquirer.

Library of Congress Control Number: 2022923666

Author: William H. Fain, Jr.

Book Design: Kurt Hauser

Pre-press assitance: CircularStudio

Project Manager: Jake Anderson

10 9 8 7 6 5 4 3 2 1 First Edition

ISBN: 978-1-957183-97-8

Color Separations and Printing: ORO Editions Inc.

Printed in China

ORO Editions makes a continuous effort to minimize the overall carbon footprint of its publications. As part of this goal, ORO, in association with Global ReLeaf, arranges to plant trees to replace those used in the manufacturing of the paper produced for its books. Global ReLeaf is an international campaign run by American Forests, one of the world’s oldest nonprofit conservation organizations. Global ReLeaf is American Forests’ education and action program that helps individuals, organizations, agencies, and corporations improve the local and global environment by planting and caring for trees.

Turn static files into dynamic content formats.

Create a flipbook
Issuu converts static files into: digital portfolios, online yearbooks, online catalogs, digital photo albums and more. Sign up and create your flipbook.