









Vi presentiamo Pietra Kode: le pietre italiane di un tempo ricodificate da DEKTON per l’architettura di domani.
VICENZA

















Vi presentiamo Pietra Kode: le pietre italiane di un tempo ricodificate da DEKTON per l’architettura di domani.
VICENZA
14 Riken Yamamoto, premio Pritzker 2024
16 La dimensione umana del progetto | ALVAR AALTO
20 L’onda nuragica | MOSTRA A SASSARI
24 Tende, barricate, rifugi sugli alberi | MAK, VIENNA
26 Con le mani e con la mente | MICHELE DE LUCCHI
28 Il Moderno in India e Africa occidentale | V&A
30 Le storie di LPP | UMBERTO RIVA
32 Il maestro dei maestri | PAOLO PORTOGHESI
34 Architetture inabitabili | MOSTRA A ROMA
40 Franco Fontana e i suoi 90 anni | MOSTRE A BRESCIA E MODENA
44 Ritratti d’artista | ERNST SCHEIDEGGER
46 La mutazione della società attraverso la videoarte | BOLOGNA
48 Passato e presente si intrecciano | ROYAL ACADEMY
64 L’espacio escultórico | PREMIO SCARPA 2023-2024
120
98
REPORT
36 Globalizzazione. Le società di architettura straniere in Italia di Aldo Norsa
FOCUS
50 Bianco e terracotta a contrasto | PEDRALI
52 Venature dorate | DEKTON COSENTINO
54 Profili che incorniciano il paesaggio | SECCO SISTEMI
56 Profili minimali | UNIFORM
58 Bianco, rosso e oro | ATLAS CONCORDE
60 Sistema costruttivo Ytong | XELLA
62 Riqualificazione energetica con Isotec | BRIANZA PLASTICA
WORK IN PROGRESS
68 Riehen | PETER ZUMTHOR, FONDAZIONE BEYELER
70 Milano | PARK ASSOCIATI E SNØHETTA, PIRELLI 35
72 Rozzano | 967ARCH E ATELIER(S) ALFONSO FEMIA, SPAZIO PUBBLICO
74 Bergamo | C+S ARCHITECTS, NUOVA SEDE GAMEC
76 Bovisio Masciago | ANDREA MAFFEI, NUOVA SCUOLA
78 Varigotti | BOFFA PETRONE & PARTNERS, EX HOTEL PLAZA
80 Rovereto | B+D+M ARCHITETTI, RSA
82 Sirolo | SIMONE SUBISSATI, UNA SCUOLA SENZA CORRIDOI
84 Ripa Teatina | LAP ARCHITETTURA, CENTRO POLIFUNZIONALE
86 Roma | VITTORIO GRASSI ARCHITECTS, PORTA PAMPHILI
88 Shanghai | MVRDV, MASTERPLAN LUNGO IL FIUME HUANGPU
90 Brisbane | SNØHETTA, QUEENSLAND PERFORMING ARTS CENTRE
THE TOKYO TOILET PROJECT
92 Adesso è adesso | PERFECT DAYS
LPP - ARCHITETTI ITALIANI di Luigi Prestinenza Puglisi
98 Carlo Donati
148
RESIDENZE
108 L’eredità architettonica di Adriano Olivetti | G STUDIO
114 The hole with the house around | ELASTICOFARM
120 La costruzione della relazione tra progetto e città | CINO ZUCCHI
124 L’architettura residenziale democratica | PARK ASSOCIATI
128 Da fabbrica a residenza | ASTI ARCHITETTI
132 Nuovi archetipi | BE ARCHITEKTUR
136 Una residenza isolata | ANDREA DAL NEGRO
140 Una casa-officina | GIANLUCA FERRARO E ANDREA CAPORALI
144 Abitare in un microappartamento | BEATRICE VILLATA
INTERPRETARE LA MATERIA di Carlo Ezechieli
148 Materialmente intangibile | MAURICIO ROCHA ITURBIDE
ARCHIWORKS
164 Leggerezza e dimensione urbana | MONTE ROSA 91, MILANO
Direttore editoriale
Antonio Morlacchi
Direttore responsabile
Sonia Politi
Comitato di redazione
Myriam De Cesco, Carlo Ezechieli
Antonio Morlacchi, Sonia Politi
©
In copertina
Mauricio Rocha.
Patio dello studio di Graciela Iturbide
Città del Messico.
Foto ©Rafael Gamo.
LUCE
172 Un segno per un sogno | FILIPPO CANNATA
174 Silente, il rigore formale di una collezione | NOA
176 Ondaled, fili di luce in giardino | QU
178 Quick Ble e Whisper illuminano l’enoteca Tow | iGUZZINI
180 L’importanza della luce | VIMAR
181 Prodotti e sistemi per l’illuminazione
ELEMENTS
a cura di Elena Riolo
187 Outdoor
187
Marketing e Pubblicità
Elena Riolo elenariolo@ioarch.it
Contributi
Filippo Cannata, Luisa Castiglioni
Valentina Dalla Costa, Carlo Ezechieli
Danilo Lisi, Roberto Malfatti, Aldo Norsa
Alessandra Palazzotto, Mario Pisani
Luigi Prestinenza Puglisi, Elena Riolo
Grafica e impaginazione
Alice Ceccherini
Editore Font Srl, via Siusi 20/a 20132 Milano T. 02 2847274 redazione@ioarch.it www.ioarch.it
Fotolito e stampa Errestampa
Prezzo di copertina euro 9,00 arretrati euro 18,00
Abbonamenti (6 numeri) Italia euro 54,00 - Europa 98,00 Resto del mondo euro 164,00 abbonamenti@ioarch.it
Pagamento online su www.ioarch.it o bonifico a Font Srl - Unicredit Banca IBAN IT 68H02 008 01642 00000 4685386
Reg. Tribunale di Milano n. 822 del 23/12/2004
Periodico iscritto al ROC
Registro Operatori della Comunicazione n. 34540
Spedizione in abbonamento postale 45% D.L. 353/2003
(convertito in legge 27.02.2004 n.46) art. 1, comma 1 - DCB Milano ISSN 2531-9779
Fuorisalone
Via Pontaccio 19, Milano
LE SOGLIE COME SPAZI SOCIALI, LA TRASPARENZA CHE CREA SENSO DI APPARTENENZA A UNA COMUNITÀ. UN’ARCHITETTURA CHE COSTRUISCE RELAZIONI
53esimo vincitore del Premio Pritzker e nono architetto giapponese a ricevere l’ambito riconoscimento, in cinquant’anni di carriera Riken Yamamoto ha sempre visto nell’architettura uno strumento di socialità, in opposizione all’idea corrente dell’abitare come uno spazio esclusivamente privato, mentre invece i membri di una comunità dovrebbero soste-
nersi l’un l’altro. Fin dai primi progetti, come Gazebo (1986), la sua casa a Yokohama, si è così confrontato con il concetto di soglia, intesa come terreno comune e luogo di scambio tra la vita privata e le relazioni con i vicini. Un concetto che nei progetti di scala maggiore – ad esempio Il complesso di edilizia sociale Hotakubo a Kumamoto (1991) o lo sviluppo
Riken Yamamoto Pechino, 1945. Sotto, caserma dei vigili del fuoco Nishi a Hiroshima, 2000 (ph. ©Tomio Ohashi courtesy The Pritzker Architecture Prize).
residenziale Pangyo a Seongnam (Corea del Sud, 2010) – rivisita la logica delle tradizionali abitazioni agricole giapponesi e quella greca, nella quale la ‘oikos’ esisteva in relazione alla città, quando le strade e i commerci erano essenziali alla vita di ogni famiglia. Del resto, come Yamamoto stesso ricorda, la soglia che separa ma unisce gli era ben chiara fin da bambino, quando la casa di sua madre era una farmacia aperta al pubblico sulla strada e abitazione con l’ingresso dal cortile dall’altra parte: “ io sedevo nel mezzo”.
Quanto ai suoi edifici pubblici, essi devono affermare la propria funzione collettiva attraverso la trasparenza. Così, la caserma dei pompieri di Hiroshima (2000) è una casa di vetro anche nei solai e nelle partizioni interne in modo che tutti i cittadini si possano sentire rassicurati dall’abilità – che possono osservare – con la quale i vigili del fuoco sapranno provvedere alla loro protezione in caso di necessità. Il valore del bene comune appare anche nei progetti di scuole e università, con volumi trasparenti e collegamenti tra l’uno e l’altro degli edifici che promuovono le relazioni e gli scambi interpersonali e dove emerge un’idea di ‘generosità’ dell’architettura che era già quella su cui si fondava il programma della Biennale di Architettura di Venezia del 2018 curata da Yvonne Farrell e Shelley McNamara, che hanno ricevuto il Premio Pritzker nel 2020. Nato a Pechino nel 1945 ma rientrato in Giap-
Sopra, complesso residenziale Hotakubo a Kumamoto, 1991 (ph. ©Tomio Ohashi); sotto, scuola elementare Koyasu a Yokohama, 2018 (ph. ©Mitsumasa Fujitsuka). Tutte le foto courtesy of The Pritzker Architecture Prize.
pone con i genitori subito dopo la guerra, Riken Yamamoto si è laureato architetto nel 1968 e nel 1971 ha conseguito il master in arte e architettura all’università di Tokyo. Dopo due anni di viaggi nel Mediterraneo e in Sud America insieme al suo mentore Hiroshi Hara, nel 1973 ha fondato lo studio Riken Yamamoto & Field Shop. Dopo il terremoto e lo tsunami che nel 2011 devastò il Giappone Yamamoto ha fondato Local Area Republic Labo per promuovere attività collettive attraverso l’architettura. Dal 2018 l’istituto premia giovani architetti che operano con coraggio e ideali per progettare il futuro.
Quest’anno la giuria del Pritzker Prize, presieduta da Alejandro Aravena, era formata dallo storico dell’architettura Barry Bergdoll, da Deborah Berke, preside della Yale School of Architecture, dal giudice della Corte Suprema statunitense Stephen Breyer, dal critico brasiliano André Aranha Corrêa do Lago e dai premi Pritzker Kazuyo Sejima e Wang Shu ■
FINO AL 26 MAGGIO, CINQUE DECENNI DI ATTIVITÀ DELLO STUDIO AALTO IN UNA MOSTRA CURATA DA SPACE CAVIAR AL MAXXI DI ROMA
Già impegnato a trasformare il Paimio Sanatorium, oggi restaurato, in una piattaforma internazionale di incontro e di dibattito sul discorso architettonico presente e futuro, Joseph Grima con il suo studio Space Caviar cura la mostra che il Museo nazionale delle Arti del xxi secolo di Roma dedica agli Aalto, incentrata su undici progetti tra i più significativi dello studio, realizzati a partire dagli anni Venti fino all’inizio degli anni Ottanta, e sugli ambiti di ricerca sviluppati con la pionieristica impresa
Artek e sul lavoro con il vetro, i tessuti, le luci e gli arredi per bambini.
Progetti che dalla scala del centimetro a quella del chilometro sono uniti dalla medesima convinzione che “la vera architettura esiste solo quando pone l’essere umano al centro”.
Fondato in Finlandia nel 1923, lo Studio Aalto nasce in un periodo di rapido e turbolento cambiamento, mentre il Paese stava costruendo la sua nuova identità di nazione libera. Aino Marsio, architetto e prima moglie di Alvar, è
Dall’alto in senso orario.
Sanatorio di Paimio, Finlandia 1929-1933, foto ©Gustaf
Welin, The Alvar Aalto Foundation.
Alvar ed Elissa Aalto durante la costruzione della Maison
Carré, foto ©Christian Leclerc, The Alvar Aalto Foundation. Aino e Alvar Aalto, foto
©Herbert Matter, courtesy of the Department of Special Collections, Stanford University Libraries.
Dall’alto in senso orario.
Alvar Aalto dipinge le ceramiche del patio della casa sperimentale di Muuratsalo (1952-1954) foto ©Elissa Aalto, circa 1960. La Paimio Chair, 1932, foto ©Maija Holma. Villa Mairea a Noormarkku, 1938-1939, vista della piscina e della sauna, foto The Alvar Aalto Foundation.
fondamentale nella formazione della filosofia progettuale dello studio nei primi anni. Un sodalizio che darà vita ad alcuni tra i progetti più celebri, come ad esempio il Sanatorium di Paimio (1929-1933), edificio che consacrerà lo studio alla fama internazionale, concepito come uno strumento medico in grado di contribuire alla guarigione dei pazienti.
Nel 1952, tre anni dopo la prematura scomparsa di Aino, Alvar sposa Elissa Mäkiniemi, anch’ella architetto, dando inizio a una nuova e fervida collaborazione creativa che condurrà a un’apertura internazionale senza precedenti nella storia dell’architettura finlandese. Il progetto di allestimento di Space Caviar al
Maxxi si ispira alla composizione di differenti tipologie di mattoni e ceramiche delle facciate della casa sperimentale sull’isola di Muuratsalo (1952-1954), uno dei progetti in mostra insieme al Sanatorium, alla Casa del popolo di Jyväskylä (1924-1925), alla Biblioteca civica di Viipuri (1927-1935), al Centro civico di Säynätsalo, (1949-1952) e a Villa Mairea (193739), uno degli edifici simbolo dell’architettura del Novecento.
Presentati anche i dormitori del Mit a Cambridge (1947-1949), l’insediamento industriale di Sunila (1936-1954) e la chiesa di Riola di Vergato, in Italia (1966-1980), completata dopo la morte di Alvar Aalto.
Completano il percorso espositivo il progetto fotografico For Position Only di Ramak Fazel, invitato dal Maxxi a esplorare le architetture degli Aalto e il loro impatto sulla vita attuale delle comunità, e il videogioco Hide and Seek in Architecture, realizzato dallo studio Space Caviar in collaborazione con Meta, che invita il visitatore a esplorare nell’ambiente VR di Meta Quest la casa sperimentale di Muuratsalo.
La mostra Aalto - Aino, Alvar, Elissa. La dimensione umana del progetto è realizzata con la collaborazione di Eni, Artek (brand di Vitra), Terreal Italia, Sky Arte ■
UNA MOSTRA A SASSARI ESPLORA L’INFLUENZA DELLA PREISTORIA SARDA SULL’ARTE, L’ARTIGIANATO E IL DESIGN CONTEMPORANEI
Fino all’8 luglio un’importante mostra al Padiglione Tavolara di Sassari esplora l’influenza della cultura nuragica e prenuragica sulle diverse forme d’arte, di artigianato e di design del Novecento e del contemporaneo in Sardegna.
L’interesse verso la preistoria sarda nasce già nell’Ottocento con le prime campagne archeologiche ma catalizza l’attenzione internazionale nel 1949 e nel 1950, con le due mostre di bronzetti nuragici di incredibile eccellenza estetica allestite all’Opera Bevilacqua La
Masa di Venezia e alla Galleria Nazionale d’Arte Moderna di Roma. La scoperta, l’anno seguente, dell’imponente reggia nuragica di Barumini nel sud dell’isola contribuisce ulteriormente a fare della preistoria sarda un riferimento ideologico funzionale alla costruzione di una nuova identità regionale. Molti artisti di quegli anni, a cominciare da Costantino Nivola, tramite il quale la suggestione nuragica tocca anche Le Corbusier e Franco Albini, attingono a forme, temi e iconografie della preistoria sarda: Mauro Man-
Mauro Manca (Cagliari, 1913 - 1969). Dall’alto in senso orario: Guerriero nuragico con due scudi, 1955; Guerriero, 1961; Guerrieri nuragici, 1954. Tutti dalla collezione di Fondazione di Sardegna.
ca, Ausonio Tanda, Giovanni Nonnis, Franco d’Aspro, Maria Lai.
La ceramica è un campo privilegiato per l’applicazione dei temi nuragici da parte di artisti e artigiani come Federico Melis, Melkiorre Melis, Giuseppe Silecchia, Gavino Tilocca, Aldo Contini. La suggestione nuragica tocca anche il campo del gioiello, rappresentato in mostra da un focus sull’orafo sassarese Salvatore Puggioni.
Abbandonata ogni pretesa filologica, nei decenni successivi il mondo nuragico influen-
Dall’alto in senso orario.
Eugenio Tavolara, Cavalcata, 1956, Padiglione Tavolara, Sassari (foto ©Davide Virdis).
Costantino Nivola (1911-1988), L’archeologo fortunato, 1987 (Collezione Bibanca) e Pretziada, We Are Thinking of Going to the Island (Collezione Pretziada).
Sotto, Antonio Marras e Patrizia Sardo, De Innui Ses, 2021 (foto ©Antonio Marras).
za in maniera decisiva l’artigianato locale: dapprima, con la trasformazione dell’isola in destinazione turistica privilegiata, con una vasta produzione di oggettistica che raggiunge le vette del kitsch, ma in seguito – come nel caso dei tappeti nuragici di Aldo Rossi, nati da una collaborazione con ARP Studio e realizzati da Mariangela Cubadda e le Tessitrici di Zeddiani – stimolando un artigianato di grande qualità nella tessitura, nella ceramica (con le opere di maestri come Pulli, Sciannella, Scassellati, De Gonare, Demurtas), nel design (Francesca Addari, Monica Casu, Domenico Cubeddu, Giampaolo Mameli, Fernando Mussone, Maria Paola Piras,
Pretziada, Monica Scassellati) e nella moda: il percorso espositivo si chiude infatti con il video De Innui Ses girato a Barumini per la presentazione della collezione Autunno/Inverno 2021 di Antonio Marras.
L’Onda nuragica. Arte, artigianato e design alla prova della preistoria , a cura di Giuliana Altea, Antonella Camarda e Luca Cheri, è organizzata dalla Fondazione Nivola e promossa dal Comune di Sassari in collaborazione con il Museo Archeologico Nazionale Giovanni Antonio Sanna, l’Università degli Studi di Sassari e con il supporto di Fondazione di Sardegna, Bibanca e ARS / Arte Condivisa in Sardegna ■
Dall’iconico al quotidiano, la nostra esclusiva gamma di arredi unisce l’eccellenza dei nostri brand di design.
Grazie all’assortimento del nostro portfolio MillerKnoll, potrai costantemente realizzare l’estetica, la funzionalità e l’esperienza desiderate, personalizzando al meglio il tuo budget.
millerknoll.com
L’ARCHITETTURA DELLA PROTESTA. AL MAK DI VIENNA FINO AL 25 AGOSTO
LA MOSTRA PRODOTTA DAL DEUTSCHES ARCHITEKTURMUSEUM DI FRANCOFORTE
Ambivalenti, a volte utopiche, spesso pericolose: per essere efficaci le rivolte devono essere dirompenti. Le forme di occupazione dello spazio pubblico definiscono un’architettura della protesta che la mostra curata da Oliver Elser del Dam di Francoforte e Sebastian Hackenschmidt del Mak di Vienna (fino al 25 agosto) esamina con una quantità di documenti, modelli e due filmati.
La forma delle proteste, la loro durata, il numero dei manifestanti, i materiali reperibili danno origine a strutture molto differenti tra loro che in alcuni casi hanno permesso ai movimenti di raggiungere i propri obiettivi, come nel caso di Hambi-bleibt!: avviata nel 2012 e tuttora in corso, con più generazioni di rifugi costruiti sugli alberi, collegati tra loro da corde e cavi elettrici, che hanno impedito di radere al suolo la foresta di Hambach per far posto a una miniera di lignite.
Protetti da barricate e malgrado le violente repressioni, nel 2011 le migliaia di manifestanti di piazza Tahir riuscirono a rovesciare il governo di Mubarak e nel 2013-14 le barricate di piazza Maidan portarono alle dimissioni del governo
di Yanukovych: quando la Russia invase la Crimea la piazza di Kyiv si trasformò in una roccaforte con sofisticate strategie di difesa. Tra gli oggetti in mostra, i modelli del ponte di corde tibetano eretto a 16 metri di altezza nella foresta di Hambach (smantellato nel 2018); il monopode alto 10 eretto nella foresta di Fechenheim e gli oggetti di cui avevano fatto pubblica richiesta i manifestanti di Lützerath nel dicembre 2022: raccolti da collaboratori del Dam, di fatto costituiscono una cassetta degli attrezzi dell’architettura della protesta ■
Dall’alto, il Movimento degli Ombrelli a Hong Kong nel 2014.
Foto ©Vicky Chan.
Una vista dell’esposizione di Vienna con la riproduzione del ponte tibetano di Hambach.
Foto ©Stefan Lux/Mak.
Un’immagine della protesta contro la costruzione di una nuova pista dell’aeroporto di Francoforte nel 1981.
Foto ©picture-alliance/dpa Wolfgang Eilmes.
SEMPREVERDE.040
Tavolo picnic / Picnic table design by Basaglia + Rota NodariIn alto, Torre 157, opera in betulla del 2006, una delle testimonianze del processo che lega la ricerca di forme inedite ai progetti professionali. Foto ©Michele De Lucchi.
QUARANT’ANNI DI SPERIMENTAZIONI IN MOSTRA A PIACENZA
Continua la ricerca sul design storico con uno sguardo all’arte contemporanea condotto da Volumnia, lo spazio espositivo dedicato all’arte e al design all’interno dell’ex chiesa di Sant’Agostino a Piacenza, che dal 6 aprile al 29 giugno ospita la mostra Michele De Lucchi. Con le mani e con la mente. Quarant’anni di sperimentazione tra arte, design e architettura a cura di Paola Nicolin.
L’esposizione, dedicata al lavoro più personale di Michele De Lucchi, esplora un’ampia produzione che spazia dai modelli di architettura alle sculture – fino agli oggetti di design di Produzione Privata – che mettono in luce la qualità del lavoro manuale a diretto contatto con la materia, al di là di vincoli pratici e funzionali.
Una selezione di prototipi e pezzi storici, diventati rari nel tempo a causa della produzione li-
mitata, racconta la realtà di Produzione Privata, il laboratorio di design fondato nel 1990 da Michele De Lucchi e Sibylle Kicherer, per dare continuità all’esperienza iniziata quarant’anni fa con Memphis e ideare oggetti sperimentali, indipendenti dalle logiche del mercato. Sono mobili, arredi e lampade tra arte e design realizzati da artigiani in numero limitato. Il percorso prosegue con l’esposizione di oggetti e pezzi d’arte unici, ricerca avviata da Michele De Lucchi nel 2003 e che oggi conta oltre cinquecento sculture, la maggior parte in legno. Per l’occasione, sono inoltre esposti tre modelli di piccole architetture in pietra realizzate nel 2007. Gli schizzi a matita, i disegni a tempera e le incisioni completano la mostra, il cui progetto di allestimento è curato da Simona Agabio e Alberto Nason dello studio Amdl Circle ■
ad D+ studio / ph Pietro Savorelli
Interior, outdoor, bespoke
Dall’alto in senso orario. La Scott House (1961) di Kenneth Scott, Accra (©V&A). Modello della Tower of Shadows a Chandigarh, Le Corbusier, 1957 (©Moma New York e Scala, Firenze). Un’impiegata di Sick Hagemeyer in posa davanti alla sede della Utc ad Accra, 1971 (©James Barnor, Courtesy of galerie Clémentine de la Féronnière).
DA ESPRESSIONE DEL COLONIALISMO
A SIMBOLO DI INDIPENDENZA: UNA
MOSTRA AL V&A ESPLORA IL RUOLO E L’INFLUENZA DELL’ARCHITETTURA
MODERNA NELLE REGIONI TROPICALI DELL’IMPERO BRITANNICO
Fino al 22 settembre, al V&A South Kensington, con modelli, disegni, documenti d’archivio e un’installazione video la mostra Tropical Modernism: Architecture and Independence, curata da Christopher Turner, esplora l’imposizione prima, con i tentativi di adattarne i caratteri al clima tropicale, e l’evoluzione in seguito dell’architettura del Moderno di matrice occidentale in India e in Africa occidentale, in particolare in Ghana, allora parti dell’Impero britannico. Espressione dapprima del colonia-
lismo inglese, furono proprio l’indiano Nehru e il primo ministro ghanese Kwame Nkrumah a commissionare nuovi progetti in stile Moderno come simboli della conquistata indipendenza. Il focus della mostra è sugli architetti inglesi Jane Drew e Maxwell Fry, che lavorarono anche con Le Corbusier a Chandigarh, ma anche sulla nuova generazione di architetti nazionali affascinati da quello stile così moderno, ricco, occidentale ma sensibili alla propria cultura che progressivamente lo adattavano ai contesti lo-
cali. Dagli anni Quaranta a oggi molto è cambiato, sia sul piano culturale – pensiamo alla mostra curata da Lesley Lokko per la Biennale di Architettura di Venezia dello scorso anno – sia di fronte al tema ambientale e climatico, una preoccupazione all’epoca del tutto assente che sembra quasi configurare un rovesciamento dei ruoli, con le tecniche costruttive indigene che assurgono a paradigma di una presunta architettura ecologica che si sta diffondendo oggi in Occidente ■
di Luigi Prestinenza Puglisi
Illustrazioni di Roberto Malfatti
Nato nel 1928 e scomparso nel 2021, Umberto Riva è stato uno dei più dotati progettisti della sua generazione, la stessa di Luigi Pellegrin (1925), Carlo Aymonino (1926), Vittorio Gregotti (1927) e Aldo Rossi (1931). Nonostante abbia realizzato numerose e impegnative opere edilizie, Riva è visto come un progettista di ville, di interni, di appartamenti o di allestimenti, e relegato a una categoria da sempre e a torto giudicata minore. Condividendo così una sorte da outsider simile a quella toccata, per ragioni in parte diverse, a un altro bravissimo, Guido Canali, di sette anni più giovane e, quindi, della generazione appena successiva: quella di Renzo Piano (1937) e di Mario Bellini (1935). Con Guido Canali, Umberto Riva condivide i maestri. Sono i due poeti che l’I-
talia della ricostruzione ha avuto: Franco Albini e Carlo Scarpa. Con una spiccata preferenza per quest’ultimo.
Per avvicinarsi a Umberto Riva può essere utile la metafora del flipper attraverso la quale l’architetto ama raccontare le sue configurazioni mai ortogonali, mai simmetriche, mai armoniche. Sono spazi che costringono l’osservatore-pallina a muoversi in continuazione, a mutare il punto di vista, a fruire la pianta lungo ogni direzione, soprattutto le inclinate. Queste ultime permettono di attraversare con l’occhio gli ambienti, captandone di scorcio gli elementi costitutivi, e quindi di percepirli per i loro valori plastici. Mentre gli oggetti sono costruiti per esaltare punti di vista obliqui, attivando così un cortocircuito virtuoso e, comunque, tale
da non lasciarci mai indifferenti. Inutile chiedersi quanto tale approccio debba all’architettura obliqua teorizzata negli Anni Cinquanta e Sessanta da Claude Parent e messa a punto da André Bloc e dal gruppo Architecture Principe. Il debito alla spazialità di Scarpa, metabolizzata e creativamente reinventata, è a mio avviso così prepotente da porre in secondo piano gli altri influssi, anche se storicamente e formalmente evidenti.
Sono almeno sette gli insegnamenti che proven -
gono dal non-metodo di Umberto Riva.
Primo: che, dall’articolazione dello spazio, occorre far scaturire una pluralità di funzioni, per evitare di cadere nella trappola dell’estetismo e dell’arbitrio formale. La complessità senza corrispettivo funzionale è, infatti, un non senso.
Secondo: che è essenziale considerare gli arredi come parte pulsante dello spazio architettonico, ed è quindi bene disegnarli dotandoli di energia plastica. Esistono sedie, tavoli e porte di serie ma ogni progetto è l’occasione per metterli in discussione. È l’architettura, nella tradizione di Frank Lloyd Wright e di Charles Rennie Mackintosh, che genera il disegno degli arredi e non viceversa.
Terzo: che è consigliabile costruire il volume non per masse compatte ma per piani, in modo da conservare il dinamismo di uno spazio sempre proiettato su più direzioni, che sono appunto quelle delle giaciture dei piani stessi.
Quarto: che bisogna spezzare e unire, articolare e disgiungere lasciando l’oggetto in bilico fra il
troppo finito e il non finito, in modo da non togliere mai energia alla forma, e all’osservatore il piacere della scoperta e il gusto di completare lui, con la sua immaginazione, l’opera. Si deve giocare con gli spessori, le sovrapposizioni, le stratificazioni ed evitare il piano parete liscio e astratto. Quinto: che occorre far traguardare sempre lo sguardo relazionando interno ed esterno, evitare gli spazi chiusi, aprire a un punto di vista inaspettato, esaltare la dimensione obliqua. Sesto: che è necessario giocare sull’altezza, differenziando l’alto dal basso e concependo il soffitto come ulteriore strato sul quale lavorare e verso il quale condurre lo sguardo dell’osservatore. Settimo: che la buona architettura sperimenta tutti i materiali e tutti i colori. Considera il bianco un colore tra i molti e utilizza le altre tinte per individuare meglio lo stratificarsi dei piani e per evitare l’effetto camera operatoria di stampo purista. L’architettura di Riva è massimalista, mai minimalista ■
Nelle illustrazioni di Roberto Malfatti, ritratto di Umberto Riva al lavoro nel giardino di casa con i classici strumenti da lavoro: stecca e squadra illuminati dalla sua lampada da tavolo Tacchini E63.
Qui accanto, la petite chambre alla Triennale di Milano (2016), in legno con le luci soffuse. A sinistra, la chiesa di San Corbiniano (2009-2011), nel quartiere romano dell’Infernetto.
di Mario Pisani
Realizzato da Priori e legato al modo di progettare e all’insegnamento di Portoghesi, questo libro è l’occasione per realizzare una sorta di mosaico di ricordi solidali e partecipi, affettuosi e riconoscenti, sia di appartenenti alla sua generazione: Barbera, Fagiolo, Micara o più giovani come Petruccioli, Passeri, PirzioBiroli e Purini che scrive: «Il recupero della memoria, di matrice proustiana, che si accompagna a quello della storia, non era per lui un semplice e necessario culto del passato, ma il più attivo lievito della ricerca di visioni del futuro nel segno di una verità dell’immaginazione». Tanti gli studenti che lo hanno conosciuto e stimato e i collaboratori come Piero Brega, testimone del cantiere della Moschea e della fucina che è stata lo studio Portoghesi.
L’insieme esprime la complessità di un personaggio unico e affascinante. Raffinato intellettuale, personalità variegata, capace di tenere insieme la vita di tutti i giorni con l’astrazione intellettuale.
Da ricordare alcuni punti della sua esistenza che hanno favorito la svolta nel confronto delle idee: la messa in discussione dello statuto del funzionalismo; ha promosso e sostenuto il postmoderno con la Strada Novissima alla Biennale di Venezia; ha incoraggiato giovani talenti non solo italiani e meno giovani come Makovecz; ha favorito la sintonia tra architettura e il nuovo paradigma della scienza, elemento centrale del pensiero ecologico e del rapporto individuo società.
Paolo Portoghesi è stato un combattente per
Paolo Portoghesi. Il maestro dei maestri nel ricordo di amici e allievi
A cura di Giancarlo Priori
Aracne Editrice, Roma, 2024 184 pp, Ill, 30 euro
ISBN 979-12-218-1040-0
tutta la sua esistenza, con rammarico per chi non ha compreso l’importanza, nel tessuto disgregato delle periferie del mondo, delle piazze e della necessità di progettarle. Ha continuato nello studio consapevole che solo così si svela il percorso della conoscenza nella complessità. Molti nel libro gli interventi sulla sua architettura. La Chiesa di Salerno per Capozzi appartiene a una fase della storia «in cui non ci sono revival o post- o neo o -ismi ma una significativa risemantizzazione autenticante barocca». Giancarlo Priori rammenta il grande amore per la città Eterna. Con Portoghesi si perde un personaggio di profonda sapienza, grande maestro dell’architettura italiana, colui che ancora ci interroga e consulta aspettando la nostra risposta ■
In alto, un cineoperatore riprende l’arrivo del circo Togni nell’area del Gazometro, Roma, 18 ottobre 1955. ©Archivio Storico Luce, Fondo Vedo. Nel poster, Torre Branca, foto ©Francesco Jodice.
IN MOSTRA A ROMA, ALLA CENTRALE MONTEMARTINI, 150 FOTOGRAFIE, VIDEO E TESTI INEDITI SU QUESTE ARCHITETTURE E LA LORO CAPACITÀ DI APRIRE UN VARCO NELL’IMMAGINAZIONE
In programma fino al 5 maggio 2024 presso i musei Capitolini, centrale Montemartini di Roma la mostra Architetture Inabitabili nasce dalla volontà di esplorare la complessità di alcune di queste architetture. L’esposizione ne illustra otto esempi distribuiti su tutto il territorio nazionale attraverso fotografie, video storici e testi inediti che li ritraggono per tipologia, destinazione d’uso ed epoca di costruzione.
Le ‘architetture inabitabili’ raccontate dalla mostra come un invito a immaginare un mondo al di là delle limitazioni pratiche sono il gazometro di Roma, il memoriale Brion ad Altivole (Treviso), il Cretto di Gibellina, il Lingotto di Torino, gli ex seccatoi di Città di Castello, la torre Branca, il campanile semisommerso di Curon, nel lago di Resia in Tren-
tino-Alto Adige e i Palmenti di Pietragalla (Potenza), architettura rupestre formata da oltre duecento costruzioni disposte su diverse quote un tempo utilizzate come laboratori per la produzione del vino.
La mostra, promossa da Roma Capitale - assessorato alla cultura, Sovrintendenza capitolina ai beni culturali, organizzata e realizzata da archivio Luce Cinecittà, è curata da Chiara Sbarigia con Dario Dalla Lana. Tra le circa 150 immagini che ne fanno parte, spiccano le foto di grandi autori come Gianni Berengo Gardin, Guido Guidi, Marzia Migliora, Mark Power, Sekiya Masaaki, Steve McCurry. Appositamente realizzate per la mostra sono infine le fotografie di Francesco Jodice e di Silvia Camporesi ■
Aldo Norsa
Già professore ordinario di tecnologia all’università Iuav di Venezia, associato al Politecnico di Milano, incaricato all’università di Firenze, a contratto all’università di Chieti e ricercatore all’università di Montréal, Aldo Norsa, master all’università di Princeton, è direttore scientifico della società di ricerca e consulenza Guamari di Milano, che anima l’annuale conferenza Tall Buildings e cura i Report on the Italian Architecture, Engineering and Construction Industry e il Rapporto Classifiche - le Prime 65 Imprese dell’Edilizia Privata www.guamari.it
Le principali società di architettura straniere non sembrano diminuire il loro interesse per l’Italia malgrado i grandi investimenti (in particolare nell’edilizia privata) siano attualmente rallentati da nuove incertezze autorizzative e procedurali. Le incursioni italiane di grandi nomi ‘blasonati’ (pur mostrando qualche flessione rispetto all’infatuazione di inizio secolo) avvengono ancora soprattutto nella ricca piazza milanese, come dimostrano i casi, tutti in fase di realizzazione, di Big (per CityWave), Kpf (nell’area dell’ex-Trotto), Oma (Scalo Farini), Snøhetta (‘Pirelli 35’ con Park Associati), Som (Villaggio Olimpico di Porta Romana), mentre Diller Scofidio + Renfro aspetta ancora la decisione di Coima per la ristrutturazione e ampliamento di ‘Pirelli 39’, concorso che ha vinto nel 2021 in collaborazione con Stefano Boeri Architetti. Ma si tratta di società che – grazie anche alla qualità della collaborazione con i progettisti italiani – non si impegnano nelle aperture di filiali. Mentre sono state negli anni più numerose le chiusure di uffici italiani che erano serviti per progetti vinti e avviati o conclusi (basti citare il ritorno a casa di Norman Foster, Daniel Libeskind, Zaha Hadid, Jean Nouvel e, nel settembre 2022, il caso di Chapman Taylor, che ha ceduto l’attività italiana a Progetto Cmr).
Di conseguenza a oggi le società di cui si può censire una filiale italiana sono otto: le britanniche David Chipperfield Architects e Design International, la francese Jean-Michel Wilmotte, la
statunitense Populous (ex divisione sport ed eventi di Hok) e la portoghese Proap, da tempo insediate, mentre più recenti sono le aperture dell’austriaca Baumschlager Eberle, della cinese Mad Architects e dell’irlandese Rkd. In aggiunta la tedesca gmp Architekten ha iniziato a operare nel lontano 1996 sempre appoggiandosi allo studio Cfk di Venezia: i suoi progetti italiani sono descritti in un recente libro nel quale spicca l’intervento maggiore: il Tecnopolo di Bologna, riconversione dell’exManifattura Tabacchi, la cui costruzione è iniziata nel 2017 e attualmente prevede di concludersi nel 2025.
Completata la missione specifica, alcune società si sono ritirate altre sono arrivate. Al momento, nel nostro Paese sono attivi con filiali italiane 8 importanti gruppi di progettazione internazionale
Baumschlager Eberle – La società austriaca attiva dal 1984 con base a Lustenau, nel marzo 2023 ha aperto un proprio ufficio in Italia (gli altri all’estero sono in Cina, Francia, Germania, Liechtenstein, Polonia, Spagna, Svizzera e Vietnam) fondando la Baumschlager Eberle Firenze guidata dall’architetto Giulia Maria D’Arco. In questo primo anno ha partecipato a diverse gare conseguendo il terzo posto al concorso del Museo della Scienza di Roma, mentre all’estero è stata ammessa alla seconda fase della gara per la riqualificazione dell’area Chalupkova a Bratislava (Slovacchia) e per una scuola dell’infanzia a Maloja (Svizzera).
Design International – La storica società londinese, fondata nel 1959 dagli architetti Brian Cranfield e Colin Stephens, dal 2007 ha una propria seconda sede a Milano sotto la direzione dell’architetto Eduardo Vazquez. Se in Italia si è inizialmente specializzata nella progettazione di centri commerciali, recentemente sta ampliando la propria offerta come dimostrano il Centro Stile Ferrari a Maranello inaugurato nel 2019 e, soprattutto, la facciata esterna del Padiglione Zero dell’Istituto Gaslini di Genova, per il quale ha ricevuto l’incarico dall’impresa Cmb nel 2023.
A sinistra render del resort che la filiale italiana di Wilmotte&Associés sta realizzando nel Salento. Sopra, render dell’arena di Santa Giulia che durante le olimpiadi invernali Milano-Cortina 2026 ospiterà le gare di hockey. Il progetto è della sede berlinese di David Chipperfield Architects.
David Chipperfield Architects – La società inglese, fondata nel 1985, opera tramite filiali in Cina, Germania, Spagna e dal 2006 in Italia, dove è presente con una filiale che ha sede a Milano. Guidata dall’architetto Giuseppe Zampieri, ha conseguito più successi delle altre qui citate arrivando a fatturare quattro milioni e mezzo di euro. Nel nostro Paese ha inaugurato nel 2022 il restauro delle Procuratie Vecchie di Venezia per conto di Assicurazioni Generali che ospitano la fondazione The Human Safety Net. Il progetto dell’arena da 10mila posti a Milano Santa Giulia, che ospiterà le partite di hockey durante le olimpiadi invernali di Milano-Cortina 2026, è curato invece dalla sede berlinese in collaborazione con Arup poiché il cliente (Cts Eventim) è tedesco.
Mad Architects – Fondata dall’architetto cinese Ma Yansong nel 2004, la società con headquarters a Pechino ha sedi distaccate a Los Angeles e, dal 2020, a Roma con una filiale guidata dall’architetto Andrea D’Antrassi (che in precedenza aveva fatto un’importante esperienza nella sede centrale). Il primo progetto italiano di Mad riguarda la riqualificazione – in collaborazione con Starching – di un edificio romano degli anni ’70 in via Boncompagni, trasformato in un complesso mixed-use di 30mila metri quadrati per conto di Savills Investment Management. Attualmente è impegnata a Milano, con Open Project, Andrea Nonni e Progeca, in MoLo (Mobility and Logistics) nell’ambito dell’intervento West Gate a Mind, sul sedime dell’ex-Expo 2015.
Populous – La società con headquarters a Kansas City, Londra e Brisbane e quarant’anni di esperienza, prima come divisione sport ed eventi di Hok e dal 2009 con l’attuale marchio, è presente nel mondo con 28 filiali tra cui, dal settembre 2021, quella di Milano diretta dalla designer Silvia Prandelli. A oggi l’unico progetto realizzato in Italia è l’Oval Lingotto, arena realizzata nel 2006 in occasione delle olimpiadi invernali di Torino, ma oggi Populous è impegnata nella progettazione dei nuovi stadi che Roma e Inter vorrebbero realizzare rispettivamente a Pietralata (Roma) e a Rozzano (Milano), dopo aver già firmato nel 2021 la proposta presentata congiuntamente da Inter e Milan per rimpiazzare lo Stadio Giuseppe Meazza di San Siro.
Proap – La società portoghese specializzata in architettura del paesaggio fondata nel 1989 dall’architetto João Nunes possiede sedi distaccate in Angola (a Luanda) e, dal 2008, in Italia, tramite una società con sede legale a Trento (ma operativa a Treviso) diretta dall’architetto Andrea Menegotto. Attualmente collabora con Corvino+Multari a Napoli per la Cittadella della Sicurezza di Scampia (in un raggruppamento guidato da Rina Consulting) nell’ex-Caserma Boscariello e per la riqualificazione della stazione della circumvesuviana di Porta Nolana, e con Matteo Thun sia a Salò per il nuovo Falkensteiner Resort che a Treviso per lo sviluppo ‘Mulini Mandelli’.
Rkd – Società irlandese con una storia ultracentenaria (nasce nel 1913), Rkd è presente in Belgio, Polonia, Regno Unito, Spagna, Svezia e, dal 2020 in Italia, a Roma, sotto la direzione dell’architetto Matteo D’Angelo. L’attività riguarda una vasta gamma di settori, con particolare specializzazione nelle life science e nei datacenter, nell’area Emea. L’obiettivo primario della società è crescere nel numero di collaboratori e nell’entità dei progetti nei prossimi anni, in linea con le
esigenze dei clienti (i cui nomi sono riservati) e con l’espansione della sua rete di contatti.
Wilmotte & Associés – La società francese fondata dall’architetto Jean-Michel Wilmotte può contare su sedi distaccate in Corea del Sud, Regno Unito e Senegal oltre che in Italia dove ha una società milanese, dal 2007, diretta dall’architetto Michela Tonus, a cui nel 2012 si è aggiunta una fondazione a Venezia. La filiale italiana è coinvolta nella progettazione di un resort nel Salento e di un hotel a Salsomaggiore, all’estero di un lussuoso progetto residenziale a Busan (Corea del Sud) e nella conversione del vecchio terminal dell’aeroporto internazionale di Muscat (Oman). È attiva anche nel product design e collabora con marchi quali iGuzzini, Artemide, Lumina, Tecno, Poltrona Frau, Caleido, Margraf e altri.
Sopra, MoLo, hub di accesso all’area West Gate di Mind. Del team di progettazione, guidato da Open Project, fanno parte Mad Architects, Andrea Nonni e Progeca. Sotto, render del progetto di Populous per il possibile futuro stadio dell’Inter a Rozzano.
DUE MOSTRE, A BRESCIA E A MODENA, CELEBRANO UNO DEI PIONIERI DELLA FOTOGRAFIA A COLORI
Franco Fontana. Colore, al museo di Santa Giulia di Brescia fino al 28 luglio, e Franco Fontana. Modena dentro, all’ex Ospedale Estense della città emiliana fino al 16 giugno sono le due mostre organizzate in occasione del novantesimo compleanno del grande fotografo. Curata dallo Studio Fontana, promossa dalla Fondazione Brescia Musei e co-prodotta con Skira Arte, la monografica di Brescia presenta 122 immagini, realizzate tra il 1961 e il 2017. L’esposizione è l’esito di un lungo lavoro di indagine e restauro sulle opere analogiche e digitali di Fontana che dalla fine degli anni Cin-
quanta iniziò a lavorare col colore innescando un cambiamento radicale dalle norme stabilite della fotografia d’arte in bianco e nero, mettendo in discussione i codici di rappresentazione ereditati dal neorealismo e prestando attenzione alla componente estetica e alla ricerca della forma.
La scelta di campo, in controtendenza rispetto alla maggioranza dei suoi colleghi, fu quella di rendere protagonista il colore non come mezzo ma come messaggio, non come fatto casuale ma come attore principale della scena.
Partendo dall’assunto che per Fontana tutto
Due fotografie esposte alla mostra di Brescia. In alto, People, sciatori sull’Appennino, 1962. Sotto, Urban, Parigi, 1979. (©Studio Fontana).
Qualità e attenzione per ogni dettaglio, vocazione artigianale unita ad un’assidua ricerca tecnologica per offrire il meglio in termini di performance, un costante sviluppo per produrre sistemi e soluzioni sostenibili e di alto livello estetico.
Dall’alto in senso orario. Asphalt, Torino, 2006. Landscape, Cortina d’Ampezzo, 1978. Urban, San Francisco, 1979 (©Studio Fontana).
è o diventa paesaggio, la rassegna ne esplora i principali soggetti di ricerca ed è suddivisa in quattro sezioni: People, Urban , Asphalt e Landscape, dove le immagini si caratterizzano per l’intenso contrasto tra colori e geometrie. L’allestimento, curato dall’agenzia Top Tag, inizia con scene dense di umanità nella prima sezione e culmina nei paesaggi astratti e naturali nella sezione finale. Accompagna la mostra il catalogo Skira Arte per Fondazione Brescia Musei, con un’introduzione di Nicolas Ballario e un testo di Caterina Mestrovich.
L’esposizione modenese, ospitata negli spazi rinnovati dell’ex Ospedale Estense, è invece dedicata allo stretto legame tra il fotografo e la sua città natale. La geometria e il colore, il visibile e soprattutto l’invisibile, il tempo e l’attimo sono gli elementi con i quali Fontana scompone la realtà e ricompone l’immagine di ciò che già esiste al di là dell’obiettivo della macchina fotografica.
Franco Fontana. Modena dentro, curata da Lorenzo Respi, presenta una selezione di 15 fotografie di Fontana messe a confronto con opere
di artisti contemporanei italiani e stranieri, provenienti da collezioni pubbliche e private nazionali, che Fontana aveva visto e conosciuto durante i suoi viaggi nel mondo diventando riferimenti iconografici forse inconsci nel suo modo di inquadrare e scattare fotografie. Sono presenti, per un confronto iconografico immediato e suggestivo, proprio le opere di alcuni artisti cari a Franco Fontana, tra i quali Mimmo Rotella, Christo, Giuseppe Uncini, Jannis Kounellis, Michelangelo Pistoletto, Mauro Reggiani, Piero Gilardi ■
AL LAC DI LUGANO UNA MOSTRA DEDICATA AL FOTOGRAFO PITTORE, GRAFICO E REGISTA ERNST SCHEIDEGGER
Fino al 21 luglio 2024 il Masi, Museo d’Arte della Svizzera Italiana di Lugano, nella propria sede al Lac ospita Faccia a faccia, una grande retrospettiva dedicata a Ernst Scheidegger. Personalità sfaccettata e multiforme, il fotografo è stato anche pittore, grafico, regista, gallerista ed editore.
La mostra, curata da Tobia Bezzola e Taisse Grandi Venturi, in collaborazione con il Kunsthaus Zürich e la Fondazione Ernst Scheidegger-Archiv, si concentra sui celebri ritratti d’artista realizzati da Scheidegger su commissione dalla metà degli anni Cinquanta. La mostra si apre con un’ampia scelta di scatti giovanili inediti del decennio 1945-1955: le immagini immortalano le persone e una realtà quotidiana colta con accenti poetici e con
1 Bambini nel Sud Italia, ca. 1948
2. Max Bill insegna teoria delle forme alla Scuola di arti applicate di Zurigo, ca. 1946
3. Dalí nel suo atelier a Portlligat, ca. 1955
4 Alberto Giacometti dipinge Isaku Yanaihara nel suo studio parigino, 1959; works Alberto Giacometti © Succession Alberto Giacometti / 2024, ProLitteris Zürich
Tutte © Stiftung Ernst Scheidegger-Archiv, Zürich
In basso, Alberto Giacometti
Ritratto di Ernst Scheidegger, ca. 1959
Kunsthaus Zürich, 2017 © Succession Alberto Giacometti / 2024, ProLitteris, Zurich
attenzione al sociale. Il “faccia a faccia” tra Scheidegger e i protagonisti dell’arte del Novecento si sviluppa nella seconda parte della sua carriera. In mostra, i suoi ritratti fotografici dialogano con una selezione di importanti opere degli artisti di volta in volta immortalati, tra cui Joan Miró, Salvador Dalí, Max Bill, Marc Chagall, Le Corbusier.
Una sezione a parte, trait d’union tra i due capitoli del percorso, è dedicata allo stretto legame con Alberto Giacometti, conosciuto durante il servizio militare in Engadina nel 1943. La mostra si conclude con il cortometraggio ‘Alberto Giacometti’, realizzato da Scheidegger in collaborazione con Peter Münger tra il 1964 e il 1966, che l’artista poté vedere un giorno prima della morte ■
A BOLOGNA FINO AL 30 GIUGNO 34 VIDEO RESTITUISCONO IL SENSO DI VERTIGINE PROVOCATO DALLA VELOCITÀ DELLE TRASFORMAZIONI
Alcuni frame delle opere di videoarte protagoniste di Vertigo. In senso orario, Eva & Franco Mattes, The Bots (Turkish Market), 2021, ©Eva & Franco Mattes, courtesy of the artists & apalazzogallery; Richard Mosse, Broken Spectre, 2022, ©Richard Mosse; Anna Witt, Unboxing the Future, 2019, ©Anna Witt, by Siae 2024, courtesy of the artist & Galerie Tanja Wagner.
Fino al 30 giugno, alle Galleries della Fondazione mast di Bologna l’esposizione Vertigo - Video Scenarios of Rapid Changes propone uno sguardo intenso e provocatorio sui modi con i quali la videoarte interpreta e comunica la società contemporanea.
Curata da Urs Stahel, Vertigo si compone di 34 opere video che analizzano, commentano, approfondiscono e indagano il rapido cambiamento in ambiti come il lavoro e i processi produttivi, il commercio e i traffici, i nuovi comportamenti, la comunicazione, l’ambiente naturale, il contratto sociale.
La mostra è strutturata in sei sezioni tematiche accompagnate da una serie di Intermezzi, videoinstallazioni disseminate lungo il percorso espositivo che fungono da commenti agli eventi che costellano il presente, allo stato del mondo,
alla condizione globale. Urs Stahel, curatore della mostra, spiega che «l’esposizione nasce dalla riflessione sulla mole di informazioni elaborate da ciascuno di noi ogni giorno, che, combinate alla velocità e alla complessità, si trasforma in un fattore travolgente di cambiamenti nella società. La vertigine – intesa nel senso più ampio come incertezza, ottenebramento, mancanza di chiarezza e capogiro – è diventata la nuova normalità».
Vertigo – Video Scenarios of Rapid Changes è costituita unicamente da opere video di durata molto diversa, alcune anche di ore, il cui audio è fruibile tramite cellulare e cuffie, inquadrando i qr code accanto alle installazioni.
Fondata nel 2013 a Bologna, la sede della Fondazione mast si trova in un complesso progettato dallo studio di architettura Labics ■
A destra, l’Armada di Hew Locke, una flottigila di navi di epoche diverse, evocatrice sia del commercio degli schiavi, sia delle attuali rotte migratorie.
Foto ©Stuart Whipps. Sotto, l’installazione Naming the Money cartonati a grandezza naturale di Lubaina Himid (International Slavery Museum, Liverpool).
L’ARTE DEL PASSATO È DA CANCELLARE? UNA MOSTRA ALLA ROYAL ACADEMY LA METTE IN RELAZIONE CON QUELLA CONTEMPORANEA, PARTE DI UNA STORIA – SE NON CONDIVISA – COMUNE
Sull’onda di Black Lives Matter, a Bristol nel 2020 venne abbattuto il bronzo di Edward Colston: un filantropo per la città, ma con i profitti ricavati come mercante di schiavi. L’episodio fu lo spunto della mostra Entangled Pasts della Royal Academy, che fino al 28 aprile mette in dialogo opere del passato coloniale e arte contemporanea, dando vita a nuovi contesti. La wokeness dettata dalla volontà di rendere attuale un’istituzione nata con l’Impero britannico – la RA è stata fondata nel 1768 – nulla toglie all’eccezionalità delle opere in mostra.
Entangled Pasts, che inizia all’aperto, con la scultura di Tavares Strachan The First Supper (2021-23) collocata nella corte Annenberg, prosegue nelle gallerie della RA nelle tre sezioni Sites of Power, con dipinti del periodo classico della Grande Maniera, Beauty and Difference, che traccia la diffusione di norme estetiche in opere che incorporavano le contraddizioni del periodo vittoriano, e Crossing Waters, che offre una prospettiva internazionale sull’eredità e le conseguenze anche ecologiche delle rotte atlantiche del commercio degli schiavi.
Ai ritratti storici, come l’Ignatius Sancho di Thomas Gainsborough (1768) e ai dipinti e sculture di genere si affiancano opere come Lay Back, Keep Quiet and Think of What Made Britain So Great (1986) di Sonia Boyce o l’installazione Armada di Hew Locke (2017-2019), flottiglia gigante di modelli di navi. Completa la mostra l’installazione in scala umana Naming the Money (2014) di Lubaina Himid, diplomata alla RA e vincitrice nel 2017 del Turner Prize: un’ode alla resistenza, al senso di comunità e alla creatività umane ■
Ecophon Solo™ consente libertà di progettazione e l’opportunità di creare espressioni nuove e sorprendenti. I pannelli sospesi sono disponibili in una varietà di forme, superfici, colori e dimensioni, tutti con eccellenti qualità acustiche.
● Ampia scelta di colori
● Forme personalizzate e grandi formati
● Basse emissioni di CO2
● Facilità di installazione
● Qualità acustiche eccellenti
www.ecophon.it
Sia per la zona pranzo sia per l’area relax di questa terrazza sono stati scelti arredi Pedrali. Foto ©Iván Casal Nieto.
Lo studio Asento di La Coruña ha attrezzato il patio esterno di una residenza a Montrove, nella provincia di La Coruña: un ambiente aperto, in cui i mobili adatti alle più svariate condizioni atmosferiche si armonizzano all’ambiente circostante e al disegno della facciata. Sono stati realizzati due spazi perfettamente integrati tra loro: la zona pranzo e un’area con divani e poltrone. Entrambe sono state allestite con gli arredi di Pedrali, come i divani dalle linee morbide e dimensioni generose Reva Twist di Patrick Jouin. Al divano con cuscini bianchi sono accostati due coffee table Nolita e le poltrone Panarea anch’esse, come i tavolini, progettate da CMP Design.
Le poltrone lounge Panarea si caratterizzano per l’intreccio artigianale in corda di polipropilene 100% Made in Italy, qui nel colore sabbia, che avvolge il telaio in tubo d’acciaio. Sulle sedute i cuscini in poliuretano espanso drenante sono rivestiti con un tessuto in tonalità terracotta realizzato con il medesimo filato dell’intreccio.
Per la zona pranzo sono stati infine scelti il tavolo lineare e rigoroso Arki-Table con gambe a cavalletto in acciaio e ripiano supportato da una cornice in estruso di alluminio, e le sedie Volt di Claudio Dondoli e Marco Pocci.
www.pedrali.com
Il Dekton per tavoli e bancone è stato scelto, oltre che per le sue caratteristiche estetiche, anche per la resistenza a qualsiasi tipo di macchia.
La cantina dell’azienda vitivinicola Claudio Cipressi nel borgo di San Felice del Molise, in provincia di Campobasso, si apre al pubblico con un progetto curato dagli architetti Antonella Cucumo e Gabriele Caterina.
Ne definiscono l’atmosfera l’utilizzo di materiali dal forte impatto visivo e dall’aspetto robusto e naturale, come il cotto, la pietra e il ferro. L’idea della progettista è stata quella di rivestire il bancone e i tavoli della zona reception e degustazione con un materiale compatto e praticamente indistruttibile come Dekton di Cosentino, in linea con lo stile industriale che caratterizza la cantina.
La tonalità scelta è il Laurent, ispirato alla
pietra naturale Port Laurent: un colore scuro e opaco con venature rossastre che ricorda i mattoni di cantine e fabbriche.
Come spiega Antonella Cucumo, «a causa del suo carattere monolitico, il bancone di accoglienza/degustazione non avrebbe potuto essere realizzato con nessun altro materiale senza compromettere l’unicità di questo granito con giunzioni o unioni visibili».
Le venature dorate di Laurent creano un gioco di sfumature e texture che esalta il contrasto tra il calore della terra e lo stile industriale della cantina. La presunta freddezza del colore scuro diventa un’inaspettata fonte di luce grazie alla grande luminosità dello spazio, il-
luminato da ampie finestre e porte scorrevoli rivolte verso le colline, e alla sua combinazione con altri elementi, come il legno utilizzato per i tavoli e i colori rosso e grigio delle sedie che evocano il mattone e il cemento. Oltre all’estetica, requisiti fondamentali dell’intero progetto sono stati la qualità senza tempo, la facile manutenzione, la possibilità di rimuovere facilmente le macchie di vino senza lasciare traccia e di resistere ai tagli e alle abrasioni.
www.cosentino.com
Sono oltre 40 i profili che la serie a taglio termico OS2 di Secco Sistemi mette al servizio del progetto finalizzato alla ricerca della massima trasparenza e della purezza delle linee. Per questa abitazione la soluzione in ottone brunito è stata installata da Gold Group Parisi. Foto ©Luca Ippolito.
A Scopello, in provincia di Trapani, l’architettura di una residenza privata si compone di più volumi accostati, alcuni coperti da tetti a falde altri da tetti piani, a formare un organismo unitario dalla geometria rigorosa. Disposti su due livelli, gli ambienti interni sono spaziosi e luminosi grazie alle grandi aperture vetrate che incorniciano gli scorci e le prospettive che si aprono sul paesaggio, celebrando al meglio panorami e viste tra mare e cielo. Per farlo sono state progettate aperture vetrate minimali e dimensionate in funzione delle viste e della zona climatica, oltre che in coerenza stilistica con il linguaggio architettonico del progetto. Per questo sono stati scelti serramenti OS2 75 di Secco Sistemi in ottone brunito: un diaframma scuro e sottile che contrasta con il bianco delle pareti sottolinenando il valore delle aperture vetrate, delle ampie finestre e delle porte che mettono in connessione l’edificio con il contesto.
I profili minimali di OS2 75 presentano inoltre eccellenti prestazioni di protezione dagli agenti atmosferici. La serie, caratterizzata da proporzioni equilibrate che rimandano ai serramenti in ferro di una volta, è una proposta molto versatile: le numerose varianti dei profili ne trasformano l’immagine in base ai materiali impiegati e alle finiture, che si inseriscono al meglio anche in contesti storici. Spessori sottili e massima trasparenza, coerenza di linguaggio in tutte le componenti del serramento, isolamento termico e acustico: il sistema OS2 si distingue per eleganza e cura artigianale del dettaglio e per la felice soluzione del rapporto fra la trasparenza del vetro e la solida leggerezza del telaio che può essere realizzato in ottone, corten, inox, acciaio zincato. Come accade in Villa dell’Orizzonte, oasi privata di benessere e comfort
www.seccosistemi.com
Un’architettura essenziale, fatta di superfici bianche e linee nette: è la residenza unifamiliare di nuova costruzione progettata dall’architetto Massimo Pellicari sulle colline intorno a Verona. L’edificio basso, che si sviluppa su un solo livello, è circondato da un ampio giardino. Proprio lo spazio all’aperto è uno dei plus del progetto ed è per questo che nella definizione dell’involucro massima attenzione è stata dedicata alla permeabilità tra interno ed esterno. Il collegamento diretto con il giardino è garantito da grandi aperture in cui l’ampiezza delle vetrate è favorita anche dai profili ridotti – di soli 40 mm – dei serramenti del sistema magis40 di Uniform, che ha risposto a tutti gli obiettivi di progetto: comfort, isolamento termico e facilità di utilizzo in totale
sicurezza. Per assicurare il miglior isolamento termico in tutte le stagioni è stato inoltre scelto un vetro a doppia camera.
Per tutte le aperture, dalle finestre di dimensione più contenuta della zona notte ai grandi scorrevoli del living e della zona giorno, il già ridotto spessore quasi scompare grazie alla posa a filo muro interno con telaio a scomparsa e finitura a intonaco. Il sistema magis40 prevede l’utilizzo di due materiali: alluminio nel lato esterno e legno nel lato interno che, in stretto rapporto con le finiture degli ambienti domestici, da elemento tecnico si trasforma in un vero e proprio complemento d’arredo.
www.uniform.it
Per l’abitazione è stato impiegato il sistema di serramenti magis40 nella versione con interno in rovere TR015 naturale ed esterno in alluminio ral 9010 strutturato. Foto ©Andrea Valentini Studio1519.
Località dintorni di Verona Committente privato
Progetto architettonico Massimo Pellicari
Sistemi per serramenti magis40 di Uniform Produttore dei serramenti Falegnameria Antonelli di Cogollo di Tregnago (Verona)
Mapa Architetti Associati
Fondato nel 2001 da Pierpaolo Cancellato e Alessandro Germini, lo studio ha al proprio attivo collaborazioni internazionali con aziende e privati negli ambiti del residenziale, degli headquarters, dell’hospitality, del product design e del retail, con più di 500 spazi commerciali realizzati nel mondo. Collaboratori dello studio gli architetti Eleonora Cantoro e Laura Urbini e l’interior designer Martina Montecucco. Mapa opera nella convinzione che un buon lavoro non possa prescindere dall’assunto che “il bello abiterà sempre nei particolari”.
www.mapa-architetti.com
Località Milano
Progetto architettonico Mapa Architetti
Committente Amedeo Testoni
Contractor Oliviero Vitali
Superficie netta 102 mq
Cronologia dicembre 2022 – 19 giugno 2023
Da sempre a fianco di designer e progettisti, per questo progetto retail Atlas Concorde ha realizzato una serie di tavolini e piani di appoggio personalizzati in esclusiva per Testoni con il brand Atlas Concorde Habitat, dedicato alle interpretazioni del gres porcellanato negli elementi di arredo per l’ambiente bagno e il living. I tavolini sono caratterizzati dal piano in grès porcellanato Marvel
Shine Calacatta Prestigio, in linea con superfici e rivestimenti. In questo modo Atlas Concorde, insieme al suo sistema completo di prodotto che unisce a superfici e rivestimenti le grandi lastre di Atlas Plan, brand dedicato ai piani cucina, ai tavoli e all’arredo, e ad Atlas Concorde Habitat, conferma la propria vocazione di azienda al servizio del progetto.
Come una nuvola dorata, un grande lampadario galleggia sul bianco del grès porcellanato.
Bianco, rosso e oro per la boutique Testoni di Milano
Da Bologna agli Stati Uniti, le calzature di Amedeo Testoni sono diventate un classico in tutto il mondo. Il 1929, anno della nascita del laboratorio artigianale, fa ormai parte del marchio e il compito dello studio Mapa nel progetto della boutique milanese di via del Gesù è stato di interpretare – nell’ambiente e nei dettagli – i caratteri del brand.
Lo spazio aiutava: quote generose dei soffitti, che nello spazio più ampio raggiungono i 384 cm, la posizione su strada, con l’ingresso protetto e rialzato di quattro gradini, l’articolazione interna, sottolineata da portali dorati come i profili degli arredi espositivi e quelli che solcano il bianco luminoso delle lastre in grès porcellanato Calacatta Prestigio di Atlas Concorde scelte anche per i pavimenti.
Ispirate al celebre marmo apuano, la lastre di Calacatta Prestigio, con la purezza del bianco
attraversata da raffinate venature grigie, fanno parte della collezione Marvel Shine linea che esplora e riproduce fedelmente le estetiche dei marmi più pregiati del mondo.
Sul bianco dell’ambiente, oltre all’oro spicca il rosso dei tappeti, degli imbottiti, del marmo del banco di vendita e della base delle colonnine degli scaffali espositivi: un ‘rosso lambrusco’ scelto per ricordare le origini bolognesi di Testoni.
Infine i dettagli, con il motivo dell’esagono, introdotto negli anni Sessanta da Marisa Testoni, figlia del fondatore Amedeo e stylist dell’azienda, che è il modulo di base del grande lampadario, realizzato su disegno degli architetti da Slamp, che galleggia come una nuvola dorata nello spazio principale della boutique.
www.atlasconcorde.com
Il complesso residenziale Uptown sorge sulla prima collina di Torino. Nasce dalla rigenerazione di una precedente struttura e offre ai residenti spazi privati e collettivi di qualità. A sinistra una foto di cantiere: le murature perimetrali sono costruite in blocchi Ytong Thermo.
In posizione privilegiata sulla precollina torinese, il complesso di Uptown Torino nasce dalla riconversione di Villa San Giuseppe, per molti anni uno studentato gestito dall’ordine La Salle. Realizzato da Gruppo Building, il progetto dello studio di architettura BP+P Boffa, Petrone & Partners sviluppa una superficie di 4.500 metri quadrati su quattro piani per un totale di 21 appartamenti. I residenti dispongono di molti servizi comuni, inclusa una cantina vini privata e un orto condominiale. La qualità dell’opera trova riscontro anche nelle tecniche costruttive adottate, tra cui l’impiego dei blocchi Ytong Thermo da 30 cm per le pareti esterne: al loro interno è stato inserito il nastro di rinforzo Ytofor per aumentare la resistenza ai carichi dinamici delle pareti; inoltre, per la realizzazione delle aperture sono stati utilizzati architravi Ytong. Una soluzione che, in abbinamento con il rivestimento ‘a cappot-
to’, ha consentito a Uptown Torino di ottenere la certificazione CasaClima.
I blocchi Ytong Thermo, in accordo con le nuove Ntc 2018, sono studiati per la realizzazione di muri portanti in zona sismica 4, dove non è richiesta resistenza caratteristica minima a compressione del blocco superiore a 5 MPa.
I blocchi Thermo sono ideali anche per la realizzazione di pareti divisorie di compartimentazione al fuoco, anche di notevole dimensione, grazie alle caratteristiche di leggerezza, di isolamento termico e di resistenza al fuoco.
I blocchi maschiati Ytong Thermo sono disponibili negli spessori 24, 30 e 36 cm, e adatti anche, come in questo caso, per l’impiego come murature di tamponamento con cappotto esterno. Presentano alti valori di isolamento termico e protezione acustica ed elevata inerzia termica.
Come tutti i prodotti Ytong il materiale è in-
combustibile (classe di reazione al fuoco A1), risultando un valido alleato per la protezione passiva dagli incendi. Inoltre la natura completamente minerale lo rende ecosostenibile, biocompatibile ed eccezionalmente traspirante, contribuendo in maniera rilevante al raggiungimento di un elevato comfort abitativo e alla prestazione energetica dell’involucro.
www.xella-italia.it
Località Corso Giovanni Lanza, Torino
Committente Gruppo Building
Progetto architettonico BP+P Boffa Petrone & Partners
Slp 4.500 mq
Tamponamenti esterni blocchi Ytong Thermo sp. 30 cm
Certificazione energetica Casaclima
Cronologia 2020-2023
Fondazione Luigi Rovati ha scelto Mitsubishi Electric per la realizzazione di sistemi per il riscaldamento e raffrescamento d’aria e la produzione di acqua calda sanitaria.
Mitsubishi Electric è sempre più coinvolta in prestigiosi e avveniristici progetti, grazie alla qualità delle sue soluzioni tecnologiche e ad un’ampia gamma di servizi dedicati pre e post vendita. Oggi è il partner ideale perché ha a cuore non solo il rispetto ambientale, ma anche il risparmio energetico che si traduce in una significativa riduzione dei consumi.
Mitsubishi Electric, il piacere del clima ideale.
Oltre all’isolamento termico delle parti opache, sono stati installati nuovi infissi a taglio termico, nuovi avvolgibili in pvc e nuovi cassonetti.
L’intervento di ristrutturazione dell’involucro di un condominio a Perugia – condotto dallo studio Area Progetto Associati di Perugia – aveva l’obiettivo di migliorare le prestazioni energetiche del complesso, costituito da due edifici di 12 piani che ospitano locali commerciali e 69 appartamenti ciascuno. L’intervento sull’involucro ha fruttato un miglioramento di tre classi energetiche, dalla classe E alla classe B, generando un sensibile risparmio sui costi delle bollette per riscaldamento e raffrescamento, oltre a una migliore esperienza di comfort abitativo. I progettisti Marco Balducci e Roberto Regni hanno optato per il sistema Isotec Parete Black di Brianza Plastica, pannelli termoisolanti per facciate ventilate con anima in poliuretano espanso
rigido autoestinguente e rivestimento in estradosso in coating minerale ignifugo. Isotec Parete Black si posa completamente a secco mediante fissaggio meccanico al supporto portante. In questo caso è stato fissato mediante tasselli in acciaio zincato al supporto esistente rivestito in intonaco e clinker. Ai correntini metallici del sistema sono state poi ancorate, con ganci a vista, le doghe in grès ceramico, scelte nel formato 30x120 cm e montate in verticale, a ricreare l’aspetto a correre del rivestimento precedente. La posa in opera delle facciate ventilate ha permesso di ottenere tempi molto rapidi di esecuzione e di razionalizzare le operazioni di cantiere. La particolarità dell’esecuzione di un intervento così esteso è stata infatti l’assenza di ponteggi, in
quanto la posa delle facciate è avvenuta mediante ponteggio mobile. La leggerezza dei pannelli e la loro maneggevolezza in quota è stata di grande aiuto nella gestione delle operazioni.
isotec.brianzaplastica.it
Progetto architettonico Area Progetto Associati
General contractor Ecosisma Design
Realizzazione facciate ventilate Impercar Ecology System
Isolamento facciate Isotec Parete Black di Brianza
Plastica (spessore 60 mm, passo 600 mm)
Superfici facciate isolate 5.250 mq
Rivestimento facciate Lastre in grès formato 30x120 cm
Certificazione energetica da classe E a classe B
L’Espacio Escultórico nel Pedregal de San Ángel, a Città del Messico. Foto ©Andrés Cedillo.
IL PREMIO CARLO SCARPA
PER IL GIARDINO A UN’OPERA
D’ARTE E SPAZIO COLLETTIVO DI CITTÀ DEL MESSICO, LUOGO DI
INCONTRO TRA RICERCA ESTETICA E CONSAPEVOLEZZA ECOLOGICA
Il premio internazionale Carlo Scarpa per il giardino è un progetto di ricerca e di cura dedicato a un luogo, ideato e realizzato dal 1990 dalla Fondazione Benetton Studi Ricerche. Il luogo designato dal comitato scientifico della fondazione per il 2023-2024 è l’Espacio Escultórico a Città del Messico, dove una grande opera d’arte collettiva emerge dalla stessa superficie lavica sulla quale, a partire dalla fine degli anni Quaranta, vennero realizzati nuovi quartieri e soprattutto l’intera città universitaria dell’Universidad Nacional Autónoma de México (Unam).
Il volume di 240 pagine della XXXIII edizione del Premio Carlo Scarpa per il giardino uscirà in aprile.
La scultura-paesaggio, inaugurata nel 1979, è un anello dentato composto da 74 prismi di cemento che poggiano su un basamento circolare del diametro di 120 metri, che circoscrive il brano di suolo lavico intatto del Pedregal de San Ángel.
Frutto dell’eruzione del vulcano monogenetico Xitle di circa duemila anni fa, il Pedregal, che in italiano potremmo chiamare pietraia, appare come una distesa di roccia lavica che si evolve nel tempo e si manifesta come un paesaggio vivo e denso di richiami alla storia che lo ha preceduto.
Fortemente voluto dall’Università e inaugurato nel 1979, l’Espacio Escultórico esprime in modo esemplare il valore e il significato del paesaggio forgiato dall’eruzione vulcanica con il quale la città, le istituzioni e le comunità universitarie, l’ambiente culturale e la società messicana si confrontano e dialogano sul piano della sua potenza evocativa e del suo valore ambientale ed ecologico.
Per la realizzazione dell’Espacio Escultórico vennero convocati sei artisti della Escuela Nacional de Artes Plásticas – Helen Escobedo, Manuel Felguérez, Mathias Goeritz, Hersúa, Sebastián e Federico Silva – con la volontà di
creare un’opera totalmente tesa all’interazione con il paesaggio e con la sua eredità storica. L’intervento di land art infatti stabilisce un punto d’incontro tra passato e futuro, a cavallo tra la grande vicenda della costruzione della città universitaria e l’evolversi di una coscienza ecologica e rende manifesta la potenza espressiva di questo paesaggio, ma anche la sua condizione mutevole e fragile.
La mostra dedicata all’Espacio Escultórico e al suo contesto è aperta fino al 30 giugno a Ca’ Scarpa a Treviso ■
Due viste del contesto più prossimo all’Espacio Escultórico: in alto, il vulcano Xitle (ph. ©Santiago Arau) e sopra, il sito preispanico di Cuicuilco e la città universitaria dell’Unam (ph. ©Fabian Martinez).
Siamo una squadra di professionisti, affiatati, motivati e con costante voglia di crescere e migliorare. Fondata da Mauro Zaniboni e Luigi Borghetti, Elettro Dimensione nel corso degli anni ha ampliato il proprio raggio
d’azione arrivando a coprire anche il vasto sistema delle automazioni industriali, della domotica, di servizi, cablaggio strutturato e filodiffusione ed ancora sistemi antintrusione, antifurto, videosorveglianza e di allarme.
Elettro Dimensione
Via Carlo Lodetti, 29 25013 Carpenedolo BS
Tel. 030 996 6553
info@elettrodimensione.it
www.elettrodimensione.it
Foto ©Nanni CulottaAl termine di un’analisi che ha coinvolto undici studi internazionali di architettura di tutto il mondo, un collegio di esperti internazionali ha scelto all’unanimità Peter Zumthor per ampliare la Fondazione Beyeler. Il museo di arte moderna e contemporanea, inaugurato nel 1997 su progetto di Renzo Piano, si trova a Riehen, nei dintorni di Basilea. Il progetto di Peter Zumthor non prevede un unico grande edificio museale, bensì tre architetture relativamente piccole, che si adattano al carattere di villaggio di Riehen. Oltre alla nuova struttura adibita a
museo, Zumthor si è occupato anche di un semplice edificio per l’amministrazione e la logistica e di un padiglione trasparente per eventi. Insieme, i tre edifici creano un legame tra i due parchi: quello che fa già parte integrante del museo e il vicino Iselin-Weber, in precedenza privato e la cui acquisizione ha permesso la genesi del progetto di ampliamento.
Complessivamente 1.500 mq di superficie espositiva, pari a poco meno della metà di quella dell’edificio museale di Renzo Piano, saranno distribuiti su tre piani. Lo spazio sarà utilizzato per presentare un
maggior numero di opere della collezione permanente.
L’interno rivestito in legno del padiglione per eventi, realizzato nell’angolo del muro perimetrale esistente, potrà ospitare fino a 300 persone. Durante il giorno sarà utilizzato come luogo di relax e di socializzazione, di sera per incontri culturali ed eventi privati per aziende e associazioni ■
Invece di seguire un modello, ne abbiamo creato Uno. Nasce Wave, la maniglia minimale che unisce impugnatura e chiusura.
Design lineare, complanare con movimentazione ad onda. Le dimensioni di Wave sono uguali per le tre versioni di chiusura e per tutte le tipologie di porte:
100% made in Italy I www.agb.it
LAVORI IN CORSO PER PIRELLI 35, PROGETTO DI PARK ASSOCIATI CON SNØHETTA
Proseguono i lavori per il completamento di Pirelli 35, un ulteriore intervento di dimensione urbana nell’area milanese di Porta Nuova promosso da Coima Sgr, che per la rigenerazione totale dell’ex-edificio Telecom, a conclusione di un concorso privato di progettazione ha incaricato Park Associati insieme a Snøhetta. Per lo studio norvegese si tratta del primo lavoro in Italia. Il progetto privilegia la riqualificazione e il recupero dell’edificio esistente, limitando in questo modo l’impatto ambientale derivante da una demolizione totale, e la dimensione urbana dell’intervento, con la creazione di un nuovo spazio pubblico. Di fatto, l’operazione dà vita a tre edifici: la ‘stecca’ degli ex-uffici Telecom, in scala
e in continuità con gli edifici contigui; un nuovo volume di sei piani di altezza, rivestito in cotto, a ovest del corpo principale; e un edificio a ponte che collega i due edifici.
Con l’aggiunta di due livelli l’edificio principale riqualificato assume un’altezza di dieci piani, gli ultimi due occupati da un ristorante totalmente vetrato e, sopra di esso, da un livello di uffici dirigenziali che grazie al perimetro totalmente vetrato del ristorante apparirà come sospeso sopra di esso. In tutta la costruzione sono impiegati materiali a ridotta impronta di carbonio. Un grande impianto fotovoltaico alimenterà le pompe di calore acqua-acqua per la generazione termica ■
Località Milano
Committente Coima Sgr
Progetto architettonico Park Associati e Snøhetta
Progetto strutture Ceas
Progetto impianti, sostenibilità, acustica, illuminotecnica, certificazioni Esa Engineering
Progetto facciate Faces Engineering
Coordinamento, esecutivi Mpartner
Progettazione antincendio GAe Engineering
General contractor Carron
Slp 27.000 mq
Cronologia Concorso 2019. Progetto 2019-2021. Realizzazione in corso
LA SOLUZIONE IDEALE, PER IL RISPETTO AMBIENTALE
La direttiva EPBD prevede di raggiungere per gli edifici non residenziali e pubblici la classe di prestazione energetica E entro 2027 e la classe D entro il 2030. Il prodotto Kömmerling, si distingue garantendo il rispetto dei criteri CAM, diventando soluzione ideale nella sfera dei bandi pubblici.
kommerling.it
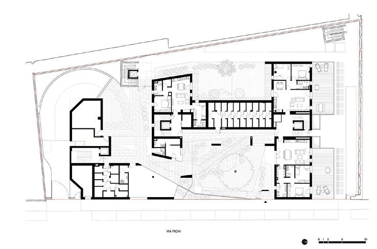
Una piazza, un mercato, un parco: Pop Hub è il progetto degli studi 967arch e Atelier(s) Alfonso Femia per mettere in connessione la chiesa di Sant’Angelo e la piazza del municipio nel centro di Rozzano, comune dell’hinterland milanese. Lo scenario dell’intervento è definito da edifici bassi che ospitano negozi, un parco giochi recintato molto frequentato, un supermercato e uno spazio marginale formato da una piazzetta pavimentata e da verde urbano, entrambi poco utilizzati. Il progetto prevede la realizzazione di un edificio commerciale e di una pensilina circolare che riunisce i volumi e le funzioni. Gli spazi pubblici aperti saranno suddivisi
secondo tre livelli di attività: la corte circolare interna, la piazza della chiesa e un parco rettilineo.
Il mercato si svilupperà su un unico piano, a ridosso del supermercato esistente, lungo una fascia a sviluppo variabile, dapprima rettilinea poi circolare, intorno a una corte di 42 metri di diametro, nella piazza antistante la chiesa.
I volumi saranno scanditi da spazi aperti e raccordati da una pensilina in cemento a vista, sorretta da pilastri circolari, che determinerà una corte interna e tre percorsi verso le direzioni principali: la chiesa, la nuova piazza, che anticiperà l’apertura maggiore, e l’altra verso il Comune ■
Località Rozzano
Progetto architettonico 967arch e Atelier(s) Alfonso Femia
Coordinamento progetto Tommaso Franchi (967arch) e Sara Traverso (Atelier(s) Alfonso Femia)
Progetto strutture Gian Alberto Beretta
Progetto impianti Stain Engineering
Sostenibilità Autentico | architettura e sostenibilità
Acustica Romeo Safety Italia
Geologia Lybra ambiente e territorio
Progetto del paesaggio Michelangelo Pugliese
Fine lavori dicembre 2026
Conclusa la progettazione esecutiva firmata da Carlo Cappai e Maria Alessandra Segantini, titolari dello studio C+S Architects, sono iniziati i lavori per la nuova sede del museo di arte moderna e contemporanea GAMeC di Bergamo che rinnova a nuove funzioni il palazzetto dello sport di via Pitentino. Il progetto non prevede demolizioni radicali e conserva la forma ovale dell’ex impianto sportivo. Saranno invece demolite le tribune e realizzata all’interno dello spazio una grande lanterna in vetro opalino sospesa nel vuoto, che ospiterà le gallerie espositive sfruttando l’altezza dell’attuale campo di gioco.
Le strutture interne esistenti verranno lasciate al grezzo e consolidate con innesti metallici mantenendo la materialità del cemento faccia-a-vista. Il progetto trasformerà l’attuale avancorpo, mantenendone il sedime e abbassandolo in altezza, in modo da costruire un portale che consenta allo spazio pubblico di fluire all’interno dell’edificio. Si creerà così il foyer del museo: una piazza coperta a tutta altezza adatta per esposizioni di opere di grandi dimensioni. All’ultimo piano è stato infine ricavato un volume leggero che ospiterà un ristorante panoramico, accessibile dall’esterno anche quando il museo è chiuso ■
Località Bergamo
Committente Comune di Bergamo
Progetto architettonico C+S Architects, Carlo Cappai e Maria Alessandra Segantini
Progetto strutture F&M Ingegneria
Mep Seingim
Omologazione sismica Studio Musci
Acustica Andrea Breviario
Geologia Giulio Mazzoleni
Superficie 5707 mq
Cronologia 2024-2026
Un volume razionale di due piani –caratterizzato da una cornice bianca rastremata che inquadra i balconi delle singole aule – come sospeso su una base trasparente. Così si presenta l’edificio progettato da Andrea Maffei Architects per la nuova scuola primaria di Bovisio Masciago, che sostituirà quella esistente. I balconi sono caratterizzati da lamelle frangisole in legno ricomposto di colore chiaro e di varie altezze, distribuite in maniera irregolare per donare vivacità alla facciata principale e a quella retrostante, racchiuse alle due estremità dai due volumi ciechi delle scale di sicurezza e dei servizi. La loro collocazione, insieme alle pareti interne in cartongesso, facilmente rimovibili, favorisce la massima flessibilità per le possibili trasformazioni future degli spazi didattici.
Aumenta il numero di aule dedicate a specifiche materie – musica, pittura, informatica – distribuite tra le altre aule per integrarle al meglio con le attività quotidiane.
I balconi, abbastanza profondi, potranno essere utilizzati nei momenti di ricreazione e di pausa e anche per coltivare piccoli orti in vaso.
In copertura sono previsti pannelli solari e fotovoltaici utili al fabbisogno energetico del plesso scolastico.
Il luminoso piano terra, che da un lato affaccia sugli alberi e gli arbusti del cortile – con essenze pensate per creare esperienze multisensoriali nelle quattro stagioni – e dall’altra su un vicino parco pubblico comunale, è occupato dall’ampia hall di ingresso e dal refettorio.
Al livello seminterrato è prevista invece una palestra, con un campo di pallavolo regolamentare, utilizzabile anche in orari extra-scolastici grazie a un ingresso separato.
Sul sedime della vecchia scuola sono previsti un parcheggio e un’area giochi, accanto ai quali una nuova piazza pedonale raccorderà la scuola ad altri edifici pubblici esistenti dando vita a una sorta di ‘campus’ culturale ■
Località Bovisio Masciago (Mb)
Committenti Comune di Bovisio Masciago (Mb), Ministero dell’Istruzione
Progetto architettonico Andrea Maffei Architects
Design team Christophe Colombo, Francesca Montorio
Francesco Conti
Strutture Milan Ingegneria
Impianti e acustica Deerns Italia
Progettazione antincendio Antonio Corbo
Geologo Studio Graziano e Masi
Superficie 4.129 mq
It all hinges on excellence.
Materiali, finiture e sensazioni tattili influenzano il carattere di ogni stanza. Per questo è sempre più importante che tutti i dettagli siano coordinati alla perfezione. I diversi sistemi di cerniere a scomparsa di SIMONSWERK consentono la massima libertà di progettazione unendo design, finiture e funzionalità ai massimi livelli adattandosi, in modo quasi naturale, alle esigenze dei diversi materiali.
www.simonswerk.it
Sarà completato entro giugno 2025 nel comune di Finale Ligure il complesso residenziale 17024Varigotti a cura del Gruppo Building e della famiglia Monetti, con Marco e Stefano Monetti, che recupera l’area da tempo in stato di abbandono dell’ex hotel Plaza sul lungomare del borgo della riviera di Ponente.
Il progetto di recupero e riconversione della struttura ricettiva, realizzato dallo Studio Boffa Petrone & Partners, si inserisce nell’ambito di un ampio intervento di riqualificazione urbana e di
architettura del paesaggio promosso in sinergia con gli enti locali, attraverso il versamento degli oneri di urbanizzazione maggiorati che serviranno a finanziare il completamento del nuovo lungomare di Varigotti e la nascita di un giardino aperto al pubblico dove prima sorgevano i parcheggi dell’albergo.
Il progetto architettonico è definito da finestre a tutta altezza, ampie logge coperte, grandi superfici vetrate, il rovere naturale chiaro dei frangisole mobili e dei listelli fissi, la pietra arenaria della
L’architettura è definita da finestre a tutta altezza e logge coperte.
L’intervento prevede anche la riqualificazione del parcheggio antistante, che diventerà un giardino pubblico.
pavimentazione esterna e l’intonaco in facciata, ispirato alla tradizione del borgo marinaro che dal colore ‘rena’ del basamento degrada alle tonalità ‘sale’ dei piani superiori.
L’edificio di 6 piani disporrà di unità abitative di diverse metrature e con una distribuzione variabile degli ambienti. Tutti gli appartamenti avranno loggiati con vista mare sul lato sud e balconi aggettanti con parapetto in vetro sui lati est e ovest. La commercializzazione è affidata a Logo Immobiliare ■
La luce naturale che fluisce dal tetto piano avvolge e ravviva gli interni. Modifica la percezione degli spazi e regala nuove prospettive. Infonde vitalità ed energia, illumina gli attimi di vita quotidiana.
La luce naturale che fluisce dal tetto piano avvolge e ravviva gli interni. Modifica la percezione degli spazi e regala nuove prospettive. Infonde vitalità ed energia, illumina gli attimi di vita quotidiana.
Le finestre per tetti piatti lasciano entrare la luce zenitale permettendo di ventilare i locali sottostanti e assicurando sia un’elevata funzionalità che ottimi parametri di isolamento termico.
Le finestre per tetti piatti lasciano entrare la luce zenitale permettendo di ventilare i locali sottostanti e assicurando sia un’elevata funzionalità che ottimi parametri di isolamento termico.
Lo studio di Padova B+D+M Architetti di Alex Braggion ha vinto il concorso di progettazione per la costruzione di una nuova Rsa a Rovereto, destinata a ospitare 217 posti letto distribuiti in cinque nuclei assistenziali. L’intervento si realizzerà nell’area ex-Master Tools, acquistata dal comune di Rovereto nel 2015, liberata dalle strutture industriali preesistenti e bonificata, e ora sottoposta a vincolo di destinazione sanitaria per i prossimi 25 anni.
L’edificio si sviluppa su tre piani fuori terra, con una superficie lorda di 8.128 metri quadrati, e si configura come un solido sfaccettato, costituito in pianta da due trapezi uguali tra loro, specchiati e ruotati l’uno rispetto all’altro.
La forma così articolata permette allo spazio esterno di infiltrarsi e collaborare alla diversificazione delle aree; allo stesso modo gli spazi interni si orientano di volta in volta su scorci diversi del paesaggio circostante. Il cuore dell’edificio è rappresentato dalle zone comuni e si trova nel punto d’unione tra i trapezi, a ogni piano, aperto verso l’esterno in due direzioni. Nei nuclei residenziali questo spazio si protende anche nelle due teste dell’edificio.
Le due corti interne di considerevoli dimensioni apportano aria e luce naturale all’interno dell’edificio e richiamano il tipo urbano delle abitazioni del centro storico di Rovereto. Previsto anche un giardino riservato, in prossimità del ‘nucleo
Render, planimetria e dettaglio assonometrico del progetto, che prevede una costruzione mista in parziale prefabbricazione (courtesy B+D+M).
Alzheimer’ da 25 posti letto al piano terra, con un percorso wandering protetto da una pensilina leggera.
Gli spazi di circolazione e di aggregazione della Rsa sono progettati in modo da beneficiare della luce naturale e delle viste esterne verso le aree verdi che circondano l’edificio. La disposizione delle camere in facciata è ordinata, regolare e riconoscibile rispetto alle altre funzioni che hanno un’immagine diversa data dalla geometria delle aperture.
Il legno è, oltre che principale componente strutturale, anche l’elemento compositivo che determina gli spazi dell’edificio. Tutti gli ambienti hanno come denominatore comune l’uso del legno alle pareti e sui pavimenti dei nuclei abitativi ■
L’analisi del tessuto edilizio locale ha portato lo studio Ssa - Simone Subissati Architects a configurare il complesso scolastico con nido e scuola materna di Sirolo (Ancona) lavorando sull’assemblaggio di micro-padiglioni anziché sulla composizione di un unico corpo compatto che, sebbene rappresenti lo schema più frequente dell’edilizia scolastica, avrebbe portato a un volume fuori scala rispetto ai caratteri dell’edificato circostante.
In questo modo le singole aule sono
indipendenti una dall’altra e con doppia esposizione. Si sperimenta così una diversa interazione e coinvolgimento tra le classi sostituendo il classico schema del corridoio con aule in linea. Fra un corpo e l’altro si frappongono dei giardini. Lo spazio centrale distributivo è poi un’area di gioco e condivisione, un’aula diffusa che annulla la netta divisione tra spazi di distribuzione, servizi e aule.
Anche i tetti, precisi prismi piramidali, diventano elementi di una composizione ludica; sono volumi appoggiati sui
Render e sezioni della nuova scuola di Sirolo, concepita come un microvillaggio.
parallelepipedi che compongono le aule ampliandone l’altezza. Per quanto riguarda la tecnologia costruttiva, la struttura e i tamponamenti sono in legno. La gamma dei materiali di finitura è ridotta. All’intonaco autopulente dell’esterno, con colorazione uniforme a parete e sulle falde, fa eco all’interno il legno di pino arauco, sbiancato e finito a olio naturale, di boiserie e pavimenti ■
www.xella-italia.it
I BLOCCHI YTONG in CALCESTRUZZO AERATO AUTOCLAVATO assorbono CO 2 dall’ambiente per l’intero ciclo di vita del materiale , intrappolando le molecole di gas in maniera permanente all’interno della propria struttura, senza più rilasciarle
Blocchi e tramezze in calcestruzzo aerato autoclavato
DURATA ASSORBIMENTO CO2: INFINITA DURATA ASSORBIMENTO CO2: UNA VITARender, pianta e sezione del padiglione in costruzione (courtesy Lap Architettura).
Sono iniziati i lavori, finanziati con fondi Pnrr e del Miur, per la costruzione di ‘Talea’, centro polifunzionale per famiglie progettato da Lap Architettura: un luogo di aggregazione, sport e condivisione che ospiterà laboratori e spazi ludici e creativi nato dalla riqualificazione di un’area inutilizzata nel centro urbano. L’intervento trae ispirazione dal paesaggio del comune della costiera adriatica abruzzese. L’elemento caratterizzante del progetto è il tetto-mantello percorribile, che diventa
elemento di collegamento tra la strada e l’area verde sottostante. L’edificio è quindi proiettato verso l’esterno e l’area verde circostante e nel contempo rivolto all’interno, con la copertura che compensa il dislivello altimetrico e, con il prolungamento della pavimentazione, si trasforma in una duna gradinata che conduce al laboratorio. Lo spazio che ne deriva avrà un carattere aggregativo trasformando l’area in una grande piazza coperta ■
Località Ripa Teatina (Chieti)
Committente Comune di Ripa Teatina
Progetto architettonico Lap Architettura
Design team Daniel Caramanico, Federico Sorgi, Simone Esposito, Mauro D’Angelo, Nicola Ricci, Arianna Di Giampietro, Eugenia Di Biase, Giorgia Ranieri
Rup Mario Rispoli
Strutture Pietro Di Pietro
Impianti Federico Esposito
Impresa I.e.s. Fratelli Mammarella
Superficie 590 mq
Cronologia 2023-in corso
Al via il cantiere di Porta Pamphili, progetto residenziale firmato da Vittorio Grassi Architects. Il complesso nel Municipio XII del comune di Roma, in zona semi-centrale, confina a sud con il grande parco della Valle dei Casali.
L’intervento è gestito da Savills Investment Management Sgr in qualità di gestore del Fondo Rrc Italy, con Lumi Asset Management in veste di advisor. Il complesso residenziale, costituito da una struttura in elevazione di otto piani fuori terra e due livelli interrati di parcheggi, comprende anche tre cortili interni, un giardino con piscina condominiale all’aperto e un’area giochi per bambini.
L’estetica del complesso si caratterizza per un paramento esterno in mattoni pieni di colore chiaro, alternato a porzioni intonacate nelle stesse nuance e a fasce verticali in griglie di laterizio che consentono una corretta aerazione
degli impianti tecnologici nascosti nelle logge. I parapetti dei balconi e le terrazze in copertura sono in muratura con rivestimento in mattoni e ringhiere metalliche, mentre i serramenti, a battente e scorrevoli, sono coordinati con i colori della facciata e con vetri basso emissivi. Al piano terra sono previsti gli ingressi ai quattro vani scala e i servizi a uso condominiale: la palestra, una zona coworking e un ambiente a disposizione delle famiglie e dei bambini. La gamma di opzioni abitative conta un totale di 154 appartamenti, dai monolocali ai quadrilocali, arredati in partnership con la piattaforma Milano Contract District. Al centro del complesso sorgerà inoltre un polo scolastico con un asilo nido per 60 bambini e una scuola dell’infanzia suddivisa in tre sezioni. Le aule, progettate per sfruttare al meglio la luce mattutina, si affacciano sulla vicina riserva naturale ■
Foto: Nicolò Panzeri | Progetto: Studio Melesi Lecco | Serramenti: Falegnameria Menaballi Srl
Lo studio olandese Mvrdv sta lavorando a un vasto masterplan combinato a nuovi progetti architettonici per il quartiere culturale e ricreativo di Shanghai noto come Gate M West Bund Dream Center. Il piano sul fiume Huangpu, già in costruzione, trasformerà l’ex zona industriale composta da un insieme di edifici di diversi stili ed epoche, sfruttando le strutture esistenti e riducendo in questo modo al minimo l’impatto ambientale.
Incentrato sul movimento delle persone, espresso attraverso una rete di percorsi, scale, rampe e ponti di colore arancione
brillante, il progetto trasforma questo patchwork di edifici in disuso e incompleti in un insieme coeso. L’approccio progettuale è duplice: leggero per la ristrutturazione degli edifici più recenti, riconvertiti in hotel, ristoranti, bar e negozi, mentre i vecchi edifici industriali, che diventeranno spazi culturali, sono oggetto di un trattamento più audace. L’edificio principale del distretto è un ex magazzino trasformato in una destinazione combinata per il tempo libero con negozi, bar e ristoranti e un ampio spazio espositivo e per eventi che sfrutta il vasto spazio privo di colonne.
Il masterplan, nella metà settentrionale del sito, prevede anche interventi di Schmidt Hammer Lassen Architects e dello studio di Shanghai Atelier Deshaus ■
Località Shanghai
Committente Hua Zhi Men Capital
Progetto architettonico Mvrdv
Lead architect Peter Chang
Progetto degli interni CL3 Architects, Xu Studio
Progetto strutture Arup
Progetto del paesaggio Field Operations
Superficie 34.000 mq
È quasi terminato a Brisbane il cantiere del nuovo teatro progettato da Snøhetta che si aggiunge al complesso del Queensland Performing Arts Centre disegnato da Robin Gibson (1930-2014) e costruito nel 1986 sulla sponda sud del fiume che attraversa la città.
Con grande coordinamento costruttivo il nuovo teatro si ‘attacca’ nella porzione sud-ovest al complesso esistente e accoglie i visitatori che provengono dalla vicina stazione ferroviaria con un involucro in vetro che appare ‘plissettato’,
rivelando e al contempo celando le attività che vi si svolgono. L’involucro vetrato avvolge un core in cemento armato che contiene l’auditorium, mentre un secondo blocco più alto contiene il palco e la torre scenica.
La copertura riprende i caratteristici motivi a gradoni che caratterizzano l’originaria architettura di Gibson. L’interno dell’auditorium è rivestito da centinaia di pannelli curvi e ritorti di ‘ironbark’, un legno di eucalipto rigido e compatto che deve il suo nome alla
caratteristica corteccia segnata da solchi scuri e profondi, sulle tonalità del grigio. I pannelli e il sistema di rivestimento sono stati ingegnerizzati in collaborazione con il fornitore Supawood per integrare anche l’illuminazione, le ringhiere e gli impianti.
Snøhetta ha portato avanti il progetto e il cantiere, sviluppati su commissione del governo del Queensland e dell’ente che gestisce il Centro, con la collaborazione del locale studio di architettura Blight Rayner ■
Fondata da Enzo Bulla nel 2011, Forme e Stile nasce da una visione tradizionalista e innovativa insieme. Attraverso una metodologia legata a doppio filo tra industria e artigianato concepisce un prodotto ben fatto che diventa presto sinonimo di prodotto di qualità. Forme e Stile è caratterizzata da un importante livello di know-how e un’attenzione sartoriale ai materiali e alle soluzioni tecnologiche, che esaltano il gusto per il dettaglio.
Vita, architettura e generosità. L’ultimo film di Wim Wenders celebra i bagni pubblici di The Tokyo Toilet attraverso la storia di un addetto alle pulizie appagato dall’umile lavoro che svolge al servizio di un bene comune
Invitato a documentare The Tokyo Toilet con una serie di cortometraggi, Wim Wenders suggerì di farne una storia. « Quei bagni erano troppo belli per essere veri, ma non era di loro che avrebbe parlato il film. Lo sarebbe diventato solo se fossimo riusciti a dar vita a un addetto alle pulizie unico, un personaggio realmente credibile e reale. Solo se la sua storia avesse avuto importanza, e solo se fosse valsa la pena guardare la sua vita e quei luoghi e tutte le idee ad essi legate, come ad esempio il forte senso del bene comune giapponese, il rispetto reciproco per la città e gli altri che rendono la vita pubblica in Giappone così diversa dal nostro mondo» ha spiegato in un’intervista il regista tedesco. Il film descrive in maniera poetica la bellezza del quotidiano attraverso l’esistenza modesta ma felice di un uomo. «Un uomo – prosegue Wenders – con un passato privilegiato che a un certo punto ha avuto un’illuminazione, mentre guardava il riflesso delle foglie creato dal sole. La lingua giapponese ha un nome speciale per queste fuggevoli apparizioni: ‘komorebi’, la danza delle foglie nel vento».
PERFECT DAYS
Se nel film Il cielo sopra Berlino, che vidi anni fa al cinema Capranichetta in piazza Monte Citorio in Roma, Wim Wenders ci descriveva la città tedesca, ancora divisa in due dal Muro, con due popolazioni diverse, ma che parlano la stessa lingua, epperò unite dallo stesso cielo, in questa sua ultima opera Wenders ci descrive la città in cui ha deciso di vivere nella vecchiaia: Tokyo. Ma non solo.
Un film di una raffinata e affascinante lentezza, che invita a riflettere sulle piccole cose della vita quotidiana. Incentrato sul personaggio di Hirayama e sulla sua vita, scandita da una perfetta routine: si alza, si lava, esce di casa, sempre con il sorriso sulle labbra, dedicandosi con passione alla cura delle piante e all’amore per i libri, la fotografia, ma soprattutto al suo lavoro, che svolge con scrupolo e dedizione. Metodico nei comportamenti, riesce a cogliere e a nutrirsi dell’unicità dei momenti della vita di tutti i giorni. In particolare Wenders si sofferma sulla vita lavorativa di questo addetto alla pulizia dei bagni pubblici nel centrale quartiere di Shibuya. Senza dubbio questi pic-
coli gioielli di architettura contemporanea, programmati per le Olimpiadi del 2020, con il coinvolgimento di 16 architetti di chiara fama come Tadao Ando, Shigeru Ban, Kengo Kuma, Fumihico Maki, Toyo Ito, Sou Fujimoto, Tomohito Ushiro e altri, aggiungono un fascino in più al film.
L’ultimo blocco-bagni realizzato è quello di Tomohito Ushiro: caratterizzato da 7,9 miliardi di differenti ‘light patterns’, che rappresentavano la popolazione mondiale all’epoca del progetto. Ben identificabile nel film assieme a quelli di Tadao Ando e Shigeru Ban, che, secondo me, ha progettato i due più interessanti: scatole di vetri colorati e trasparenti che si opacizzano quando la porta viene chiusa a chiave. Ciò permette di controllare la pulizia del bagno e se è occupato già dall’esterno. La notte, illuminati, fungono da lanterne nei parchi di Haru-no-Ogawa e di Yoyogi Fukamachi. “Piccoli santuari di pace e dignità ”, così li ha definiti Wim Wenders.
Il film, nel raccontare la vita di Hirayama, è un omaggio ai rituali di questa antica civiltà,
tutti finalizzati al rispetto, all’ossequio, all’accoglienza e alla ricerca della perfezione. Paradigmatica la scena in cui Hirayama, mentre meticolosamente pulisce un water, con uno specchietto, come fa il dentista per controllare la buona riuscita di un intervento, controlla se ha ben pulito e disinfettato dappertutto. E ancora, il rituale di un onsen o di un sentō alla fine della giornata lavorativa, al quale Hirayama non rinuncia mai, anche quando è costretto a raggiungerli in bicicletta sotto una pioggia scrosciante. Lo sviluppo termale diffuso, grazie alla presenza di innumerevoli vulcani e alla vicinanza alla cintura di fuoco del Pacifico, ha determinato nel tempo questa pratica singolare e socializzante: ci si ritrova, a fine giornata,
Immagini tratte da Perfect Days, con cui Wim
Wenders segue la vita monotona ma felice di Hirayama (Koji Yakusho), manutentore di The Tokyo Toilet. Già interprete di Memorie di una Geisha e Babel, recentemente Yakusho (1956) è stato premiato come migliore attore protagonista per la sua magnetica interpretazione di Under the Open Sky (2020). Foto courtesy Lucky Red.
in questi ambienti dove ci si lava accuratamente su un piccolo sgabello, a 20 cm da terra, eppoi ci si immerge nudi in ampie vasche comuni piene di acqua termale calda.
L’umiltà di questo personaggio, interpretato magistralmente da Kōji Yakusho, che appare come un anonimo uomo della strada, ma che invece nasconde un notevole bagaglio interiore, mi ha riportato alla visita che feci anni fa al giardino di Ryoanji a Kyoto, forse il più famoso giardino Zen, risalente alla fine del Quattrocento, realizzato da uno sconosciuto giardiniere, e alla filosofia che lo ha ispirato. Un piccolo rettangolo di circa 250 metri quadrati delimitato su tre lati da un muro e sul quarto lato da una casa da tè. Nessuna essenza arborea, solo
fine ghiaietto ‘pettinato’, con quindici pietre disposte a gruppi di due, tre, cinque e cinque. La particolarità è che sono quindici, ma da nessun punto di vista le vedi tutte assieme.
Apparire non è essere.
Un film toccante, pacato, commovente, ben ritmato da musiche strepitose che vanno da Lou Reed e Patti Smith a Nina Simone. Un film anche istruttivo: nel finale il buon, silenzioso Hirayama, che ascolta tutto e tutti, ma difficilmente ama parlare, si lascia andare e ammonisce la giovane nipote Niko, che preferiva vivere con lui piuttosto che con l’agiata famiglia: “Adesso è adesso, la prossima volta è la prossima volta”.
Un insegnamento per la vita ■
Lanciato nel 2018 in previsione dei Giochi Olimpici e completato nel 2023, il progetto
The Tokyo Toilet ha coinvolto 16 architetti e designer – Nigo, direttore creativo di Kenzo, ha disegnato anche le divise dei manutentori – nell’ideazione di 17 bagni pubblici nel quartiere di Shibuya. L’idea di Koji Yanai, direttore generale di Fast Retailing Co (tra i brand della compagnia anche Uniqlo) era quella di rovesciare gli stereotipi associati ai bangi pubblici – bui, sporchi, pericolosi, non accessibili – con la bellezza dell’architettura e la loro cura. I bagni vengono puliti tre volte al giorno, ispezionati e sottoposti a manutenzione accurata una volta al mese. The Tokyo Toilet è il risultato di una collaborazione pubblico/privato tra la Nippon Foundation, l’amministrazione pubblica di Shibuya e la Shibuya City Tourism Association con il sostegno di Toto, che ha fornito i sanitari, e di Daiwa House che li ha realizzati.
I 17 bagni pubblici sono stati progettati da Shigeru Ban, Sou Fujimoto, Tadao Ando, Toyo Ito, Kengo Kuma, Fumihiko Maki, Junko Kobayashi, Kashiwa Sato, Kazoo Sato, Marc Newson, Masamichi Katayama, Miles Pennington, Nao Tamura, Nigo (Tomoaki Nagao), Takenosuke Sakakura, Tomohito Ushiro.
Sopra, i setti in cemento del bagno di Masamichi Katayama nel parco Ebisu.
Foto Satoshi Nagare, courtesy The Nippon Foundation.
Sotto da sinistra, le opere di Sou Fujimoto e di Shigeru Ban, con i vetri che si opacizzano quando il bagno è occupato. Foto Satoshi Nagare, courtesy TNF.
In alto, l’edificio circolare disegnato da Tadao Ando nel Jingu-Dori Park. Sotto, esterno e interno del bagno pubblico disegnato da Nigo (Tomoaki Nagao) all’incrocio tra Jingumae e 1-chome. Foto Satoshi Nagare, courtesy TNF.
In alto, sottili lastre di metallo piegate come origata per l’involucro del bagno realizzato da Nao Tamura in un acceso colore rosso che lo rende facilmente riconoscibile. Accanto, il secondo bagno pubblico realizzato da Shigeru Ban, sempre in vetro cromogenico. Foto Satoshi Nagare, courtesy TNF.
Qui sopra, legno di ciliegio per gli interni e assi di cedro per il percorso esterno dei bagni pubblici disegnati da Kengo Kuma Foto Satoshi Nagare, courtesy TNF.
Lo spettacolare ingresso di Time Capsule, una delle
4 residenze di Carlo Donati che presentiamo in queste pagine.
A destra, dettaglio di una porta interna dell’abitazione.
Foto ©Franco Chimenti.
Nel libro che ha recentemente scritto, Carlo Donati ha rivelato il suo metodo utilizzando la metafora del frullatore. Le sue “10 case” sono, infatti, il frutto di una sovrapposizione e integrazione di suggestioni che possono provenire dal mondo dell’architettura, dall’arte, dalla musica o, semplicemente, da una immagine che lo ispira e lo appassiona.
Siamo passati definitivamente dalla condizione manierista di alcuni decenni fa, in cui cioè l’architetto si ispirava a pochi e selezionati maestri – spesso a uno solo come i Five Architects al Le Corbusier purista – a una nuova condizione eclettica in cui si gioca a tutto campo. In realtà, almeno nel mondo degli interni (e, direi, non solo) in Italia ci sono precedenti: per esempio nel lavoro di Gio Ponti che non esitava, anche lui, a prendere dall’arte e dalla realtà le più diverse suggestioni per lavorarci, mescolarle e trasformarle.
L’operazione di Donati ha una sua propria peculiarità e originalità perché il gioco lo porta alle estreme conseguenze cercando di investire tutti i sensi. È interessante, per esempio, la presenza nel succitato libro di un codice a barre che accompagna ogni progetto e rinvia a un brano musicale che
UN ECLETTISMO
COLTO CARATTERIZZA
I PROGETTI DI CARLO
DONATI, SPECIALIZZATO
IN RESIDENZE HIGH-END E RETAIL.
PUNTO DI PARTENZA
DI OGNI PROGETTO
UN MOODBOARD
CHE RIASSUME LE ISPIRAZIONI E UN RIFERIMENTO MUSICALE
ne racconta il mood. Tutte le forme d’arte mettono in moto, in un modo o nell’altro, i sensi e quindi hanno tra loro parentele e assonanze. D’altra parte, da sempre l’architettura ha flirtato con la musica e l’arte. E allora tanto vale portare la parentela alle estreme conseguenze, farla diventare il centro della ricerca progettuale. Condizione eclettica e in un certo senso post moderna. Ma con una profonda differenza rispetto al Post-Modern canonizzato dall’accademia. Lacerti formali e citazioni non creano assonanze dal ristretto punto di vista del linguaggio ma della risposta sensoriale. Per capirsi: se è citata la Farnsworth House di Mies van der Rohe non è per un riferimento colto al minimalismo degli anni Cinquanta ma perché di quella casa interessa un certo modo di porsi rispetto allo spazio e alla luce, interessa cioè come dispositivo produttivo di sensazioni e emozioni. E, se viene citato Rothko, non è per parlare delle infinite declinazioni dell’espressionismo astratto, ma solo perché il colore di una sua tela ha colpito l’immaginazione di Carlo. L’architettura è quindi in ultima istanza un gioco di spazi, di
trasparenze, di colori, di luci. Non c’è alcuna sua opera in cui gli ambienti siano statici, immobili, bloccati: gli uni si aprono sugli altri con cucine che diventano parte del soggiorno e camere da letto che dialogano con i corridoi che, a loro volta, diventano spazi fruibili e vivibili anche quando la casa sarebbe sufficientemente grande per funzionare lo stesso compartimentando le funzioni. L’obiettivo è infatti dare dignità a ciascuno spazio, renderlo parte di una composizione che non ha momenti di pausa o di caduta. Accennavamo prima a Gio Ponti e alla sua influenza. È interessante però notare che la formazione di Donati avviene con maestri più rigoristi. Al Politecnico di Milano e poi con il tirocinio professionale presso lo studio di Lodovico Barbiano di Belgiojoso e, infine, di Vittorio Gregotti, anche se poi a salvarlo provvede un lungo soggiorno a New York. Credo che questi anticorpi rigoristi abbiano giovato a evitare derive che la filosofia del frullatore avrebbe potuto generare. La grande sorpresa è, infatti, scoprire che il frullato non impazzisce e che tutte le architetture di Donati, per quanto formalmente azzardate, hanno sempre un solido sottofondo di razionalità che ne garantisce l’unità, il sapore e la consistenza ■
Il pattern geometrico, realizzato con quattro diversi marmi, del pavimento dell’ingresso, dove troneggia un graffito dell’inglese Stik, annuncia la filosofia di questo grande appartamento, 350 metri quadrati all’interno di un edificio dei primi del Novecento a Milano, che Carlo Donati ha trasformato in una residenza colta e anticonvenzionale.
Innumerevoli i rimandi che vi si condensano: a Jean Prouvé con gli oblò con profilo in rame delle porte, alle decorazioni à la Piero Portaluppi, allo stile Space Age della capsula curva della cucina, un’architettura nell’architettura rivestita in poliestere lucido verde.
L’area soggiorno, pavimentata in travertino naturale e con un soffitto voltato che soffonde con continuità la luce e aggiunge tridimensionalità all’ambiente, si affaccia sul giardino interno, mentre sul lato opposto, intagliata nella boiserie in noce cannettato dei rivestimenti verticali, una porta con oblò introduce alla zona più privata dell’abitazione. Elementi metallici in rame e ferro, abbinati al legno cannettato, definiscono il design particolare dei mobili e delle finiture. Una collezione di opere d’arte moderna e di street art connota e completa la casa.
Colonna sonora
Prince - Sign of the Times
Località Milano
Architettura d’interni Carlo Donati
Arredo su disegno Camagni, Proma
Radiatori Antrax IT serie T
Rubinetteria Ritmonio
Superficie 350 mq
Anno 2021
Laureato in architettura al Politecnico di Milano, dopo la collaborazione con lo studio Belgiojoso-Bbpr e Gregotti Associati, nel 1996 Carlo Donati fonda la Farnese Contract e nel 1999 nasce Carlo Donati Studio, focalizzato principalmente sulla progettazione di ville e abitazioni esclusive, negozi e resort in Italia e nel mondo. Dopo aver seguito come consulente per l’architettura a New York il marchio Gianni Versace e in Italia i brand Aldo Coppola, Colefax & Fowler, Linea più, Donati si occupa della direzione artistica del gruppo Slowear per cui ha realizzato showroom e negozi in tutto il mondo. Nel 2008 si è aggiudicato il concorso per la realizzazione del masterplan di Segrate.
www.carlodonati.it
Nel bagno della suite padronale sono installati due termoarredi in estruso di alluminio Serie T di Antrax (design Matteo Thun & Antonio Rodriguez) in colore bianco opaco.
La disposizione in orizzontale garantisce il miglior comfort termico e dà luogo a un’utile mensola sulla quale riporre salviette e altri oggetti.
Le rubinetterie sono Ritmonio, serie Pois in finitura Frosted Rose Gold.
Vista dal soggiorno verso l’ingresso, dove si intravede la libreria a tutt’altezza realizzata su disegno. In primo piano la ‘capsula spaziale’ del blocco cucina, rivestita in poliestere lucido verde. Alla parete, un’opera di street art di Stik. Foto ©Franco Chimenti.
A destra, pianta dell’appartamento.
Sotto, armadiatura in legno cannettato, ferro e ottone.
Foto ©Franco Chimenti.
Località Milano
Architettura e progetto d’interni
Carlo Donati
Superficie 250 mq
Anno 2022
L’abitazione di 250 metri quadrati si trova all’interno del complesso residenziale P19, un edificio di cinque piani in zona Brera a Milano interamente progettato dallo studio di Carlo Donati e caratterizzato da una facciata a lame frangisole vetrate. L’attico del palazzo è stato progettato come un grande open space in cui i diversi ambiti sono schermati da arredi filtro bespoke. Le partizioni filtro tra l’ingresso, il soggiorno e la camera dell’appartamento riprendono il tema delle lame frangisole dei due volumi architettonici, con armadiature in legno cannettato e lame di ottone che sostituiscono la tradizionale parete lasciando filtrare la luce nei tagli tra i moduli.
La zona pranzo è definita da un mobile-bar in can-
nettato, ferro cerato e ottone disegnato da Carlo Donati con una articolazione delle linee e delle partizioni che rimandano alle composizioni di Carlo Scarpa.
La panca del soggiorno e i rivestimenti del bagno sono in marmo Blue Explosion.
L’appartamento è connotato da un grande dipinto a muro site specific realizzato dall’artista Marco Petrus in stretta relazione con il murale nella hall del palazzo: un’interpretazione astratta dei due edifici e dei cromatismi del volume a lame vetrate.
Colonna sonora
Rolling Stones - Miss You
Molto luminoso, nelle partizioni interne Cromo 70 riprende in più maniere il motivo verticale delle
lame frangisole che caratterizzano l’involucro dell’edificio. Nella foto grande, il dipinto murale di Marco Petrus.
Sotto, la linearità del Moderno americano è mitigata dai motivi circolari ritagliati nel rivestimento in corten del piano terra. A destra, la tettoia a sbalzo verso la piscina si lascia attraversare da un albero di sughero.
Foto ©Giorgio Possenti.
Piano terra
Per proteggere le ampie vetrate dall’apporto solare diretto e garantire la privacy degli occupanti sono state scelte le veneziane integrate nella vetrata isolante ScreenLine by Pellini. Il motore brushless inserito nella tenda consente un controllo accurato e silenzioso del movimento di salita, discesa e orientamento delle lamelle, che può essere automatizzato tramite pulsante, telecomando o app, a vantaggio dell’uniformità architettonica dell’involucro e del contatto visivo tra gli interni e il giardino.
Località Lodi
Progetto architettonico e d’interni Carlo Donati
Serramenti Thema
Luci Novalux, Antrox
Schermature integrate Pellini
Rivestimenti facciate Savogi
Marmi Milgem
Superficie 500 mq
Anno 2013
L.A. Modern è il progetto ex novo di una villa unifamiliare all’interno di un’ampia area verde. Il contesto, costituito da villette tradizionali, ha suggerito un’architettura chiusa verso l’esterno e aperta con ampie vetrate verso il patio centrale con piscina. Il linguaggio architettonico richiama le atmosfere delle ville moderniste di Palm Springs ma con l’impiego di materiali contemporanei. La cucina è un volume basso. Un foro circolare nell’ampia tettoia a sbalzo verso la piscina è attraversato da un albero di sughero ad alto fusto.
Le facciate sono giocate su una composizione materica che alterna intonaco bianco, acciaio corten e legno a doghe verticali. Forature circolari di diverse dimensioni ritagliano il corten al piano terra
e illuminano il percorso della zona ospiti e dell’area benessere. Nelle ore serali la luce che le attraversa si riflette nello specchio d’acqua della piscina. Negli interni la palette cromatica riprende le tonalità dell’esterno con la matericità del corten, i grigioazzurri dell’acqua e del cielo, il verde che si ritrova nella panca del camino realizzata in pietra grezza
Bamboo
La grande cappa del camino in acciaio corten funge da filtro tra la zona conversazione e il pranzo nell’ampio open space del living.
Colonna sonora
Red Hot Chili Peppers - Californication
L’arredo sospeso, realizzato su disegno, fa da filtro tra l’ingresso e il living.
Foto ©Franco Chimenti.Rivestimenti in lastre di marmo Explosion Blue per i bagni.
Un attico milanese interamente ristrutturato connotato dalle particolari matericità e texture delle pareti e dagli arredi in lamiere stirate e legno cannettato incrociato.
Un arredo su disegno, sospeso e dal sapore Fifties, scherma il soggiorno dall’ingresso. Il mobile, realizzato in telaio di ottone e costituito da un gioco di elementi pieni e vuoti, diviene parte integrante dell’architettura della casa.
La parete centrale del living, che scherma lo studio, è realizzata con tagli e fresature a scansione geometrica che creano un vibrante effetto chiaroscuro. Il disegno viene richiamato nelle due porte scorrevoli laterali a tutta altezza che aprono la zona living verso lo studio.
Nei bagni l’elegante e avvolgente tinta blu notte della casa è sottolineata dai rivestimenti in grandi lastre di prezioso marmo Explosion Blue accostate a rivestimenti in resina e ad arredi in pietra nera. Tutti gli arredi sono stati disegnati su misura dallo studio.
Colonna sonora
John Coltrane - Blue Train
Località Milano
Architettura d’interni Carlo Donati
Lavori edili, forniture e marmi Floreani e Fornari
Serramenti Carminati
Luci Erco, viabizzuno, Davide Groppi
Parquet Domenico Mori
Rubinetterie Fantini
Superficie 170 mq
Anno 2018
Due viste del living con il parquet di Domenico Mori posato a spina ungherese. La maggior parte degli arredi è disegnata su misura.
Il restauro conservativo condotto da Enrico Giacopelli riporta alle condizioni d’origine
Villa Rossi, dal 2018 nell’elenco degli edifici patrimonio dell’umanità del sito Unesco
Ivrea Città Industriale del XX Secolo migliorandone le prestazioni energetiche
La modernità della villa appare evidente nella scelta dei materiali – da notare i frangisole bianchi in tozzetti ceramici – e nella disposizione dei volumi, organizzati in funzione del dislivello del terreno.
Progettata tra il 1959 e il 1961, Villa Rossi fa parte di un gruppo di quattro ville commissionate da dirigenti dell’Olivetti all’Ufficio Consulenza Case Dipendenti (Uccd), all’epoca guidato da Emilio Aventino Tarpino. Delle quattro, che già costituiscono un’eccezione notevole nell’ambito delle realizzazioni dell’Uccd, orientato verso case unifamiliari a schiera e condomini di livello medio, Villa Rossi è il progetto più eminente e oggi più autentico dell’evoluzione del linguaggio architettonico rispetto al puro razionalismo delle precedenti architetture industriali firmate da Figini e Pollini. Collocata su un lotto di duemila metri quadrati lungo via Jervis, di fronte al parco progettato da Pietro Porcinai e al Palazzo Uffici Olivetti, la villa, su due livelli, sfrutta l’orografia del terreno per determinare la disposizione dei volumi, organizzati seguendo i principi compositivi del nuovo stile.
Il piano superiore è dedicato agli spazi abitativi e il piano inferiore ai servizi, tra cui una sala giochi e un garage. La struttura portante è costituita da pilastri centrali e muri perimetrali in cemento armato. I fronti del primo piano e del piano terreno della testata ovest sono rivestiti con tozzetti in grès di diverse dimensioni, orientamento e tonalità. Le facciate sud e
G Studio
Fondato a Torino nel 1995, lo studio di Enrico Giacopelli (a destra nella foto) e Mauro Falletti è impegnato nel recupero, restauro e valorizzazione delle architetture moderne olivettiane di Ivrea. Attivo in ambito internazionale nei settori della progettazione architettonica, urbanistica e industriale, G-Studio ha maturato anche una particolare esperienza nella progettazione di edifici di alta montagna. Già professore di Progettazione Architettonica del Politecnico, per alcuni anni Giacopelli ha coordinato il Focus Conservazione e Restauro dell’Ordine degli Architetti di Torino. www.g-studio.biz
CREDITI
Località Ivrea
Committente Privato
Progetto e DL G Studio. Enrico Giacopelli, Cristina De Paoli
Analisi energetiche Stefano Fantucci
Progetto impianti Fapa Engineering
Calcoli strutturali e sicurezza Gianfranco Angera
Opere edili, strutturali e di restauro F.lli Perino
Opere di carpenteria leggera Rolla
Restauro serramenti e opere di falegnameria Bertoldo
Sughero Corkpan e Corkgran tostato di Tecnosugheri
Vetri pirolitici Agc Flat Glass Italia
Parquet in acacia Tolin Parquets
Prodotti ceramici Florim, Ceramica De Maio
Frangisole in grés Ceipo
Superficie lotto 2.065,5 mq
Slp 477 mq
Classe energetica B (da precedente non classificato)
Progetto e esecuzione 2020-2023
Foto Fabio Oggero
In alto, l’ingresso all’abitazione. Sopra, il terrazzo della zona giorno e il giardino, su un lotto in pendenza verso via Jervis.
ovest sono caratterizzate da quattro frangisole in elementi di terracotta smaltata bianco madreperla installati da pavimento a soffitto su telai metallici, che aggiungono un tocco di eleganza alla loggia del soggiorno. Un elemento significativo è il muro di cinta della proprietà, lungo circa 65 metri, che presenta in bassorilievo la celebre spirale greca del marchio Olivetti disegnata da Marcello Nizzoli nel 1954. Anche la copertura presenta elementi formali di interesse, tra cui travi di bordo e solai in laterocemento, e una gronda perimetrale mascherata da un profilo metallico argentato che crea l’illusione di un tetto più sottile. All’avanguardia per l’epoca gli infissi, che adottano il ‘sistema Wagner’, una tecnologia caratterizzata da due telai incernierati e vetro semplice da 3 mm che creano un cuscinetto d’aria per migliorare l’isolamento termico e acustico.
Avviato nel 2020, il progetto di riqualificazione di G Studio si è dapprima concentrato sul restauro conservativo delle facciate, dei frangisole, delle parti metalliche e del muro di cinta. Nel corso degli anni, molti dei componenti in terracotta smaltata dei frangisole si erano danneggiati. Per ripristinarli, sono stati smontati con cura e ricostruiti, sia ricorrendo a una scorta di 245 pezzi sia con nuovi elementi in grès. All’interno dell’edificio, le poche modifiche distributive si sono focalizzate sulla razionalizzazione degli spazi per soddisfare le esigenze degli attuali proprietari. I cambiamenti più significativi hanno riguardato i pavimenti, sostituendo i vecchi rivestimenti in ceramica e linoleum con un parquet di legno di acacia. Gli arredi su misura originali, come il camino in Diorite di Brosso, una libreria-balaustra in soggiorno e l’armadio a muro del corridoio sono stati conservati, restaurati e valorizzati. Tuttavia, la vera sfida del progetto è stata
il miglioramento energetico – condotto in collaborazione con l’architetto Stefano Fantucci, ricercatore del Politecnico di Torino – che ha portato l’edificio alla classe B pur preservandone l’integrità architettonica e minimizzando l’impatto visivo degli interventi. L’isolamento è stato migliorato attraverso l’insufflaggio di fiocchi di sughero nelle intercapedini delle pareti esterne, e i ponti termici sono stati corretti mediante l’applicazione di pannelli dello stesso materiale. Per preservare il sistema originale ‘Wagner’ in modo reversibile, gli infissi sono stati restaurati e smontati per installarvi nuovi vetri a bassa emissività. I semitelai non sono stati incollati tra loro ma fissati con viti inserite dalla parte
interna. In questo modo, il sistema a doppio telaio originale è stato mantenuto, e la presenza di silice gel nell’intercapedine tra le due lastre ha notevolmente ridotto il rischio di condensa e polvere sui vetri interni.
Il progetto di retrofit energetico si è infine concentrato sulla copertura, rivestita con una guaina bituminosa di colore biancoargento, mentre all’interno è stato aggiunto un materassino isolante in Pcm a cambiamento di fase per aumentare la massa del solaio e la relativa inerzia termica virtuale. La nuova configurazione ha migliorato anche la circolazione dell’aria attraverso l’aumento del tiraggio dei camini, ora collegati fino alle cantine da canalizzazioni di adeguato diametro ■
Anche gli interni di Villa Rossi, tranne la cucina, sono in larga parte conservati. L’intervento più significativo è il nuovo pavimento in parquet di acacia. Sotto, campo e controcampo della libreria a balaustra in soggiorno.
Il progetto di ElasticoFarm affronta in maniera sperimentale il tema del rapporto con l’esistente. The Hole With the House Around diventa così un’occasione per riflettere sul potenziale del patrimonio edilizio del dopoguerra
Pur basata su una organizzazione di ambienti intorno a una distribuzione centrale simile alla preesistenza, la nuova casa disegnata da ElasticoFarm si riorganizza intorno al vuoto centrale. Foto ©Anna Positano, Gaia Cambiaggi I Studio Campo.
La casa concepita da ElasticoFarm per un giovane chef nasce dalla rielaborazione di un edificio residenziale degli anni Settanta, all’interno di un ampio giardino privato a Cambiano, in provincia di Torino. Totalmente rivestita di lamiera di alluminio ondulata, l’architettura si stacca da terra e si sviluppa all’altezza delle fronde degli alberi configurandosi come l’assemblaggio di volumi diversi attorno al vuoto centrale che permette al cielo di penetrare nel centro della casa. Questi volumi, che corrispondono alle stanze e alle funzioni interne all’abitazione, sono legati tra loro da un percorso continuo che avvolge in quota la corte mettendo in rapporto gli spazi abitati con il vuoto e la vertigine data dalla separazione dal terreno.
La casa originale, una villetta realizzata negli anni Settanta, ha offerto la possibilità di costruire un nuovo edificio completamente indipendente. Pur insistendo sullo stesso lotto di terreno, l’intervento si spinge in alto, come afferma Stefano Pujatti, «per cercare il cielo e per riportarlo dentro l’architettura stessa, sospesa, attraverso l’invenzione di una corte vuota, un nucleo inaccessibile ma che collegando tutti gli ambienti contribuisce a espandere lo spazio domestico».
La scatola architettonica si scompone liberamente in una serie di elementi che lasciano al centro un vuoto attorno al quale la struttura trova un nuovo equilibrio con il paesaggio.
Elasticofarm
Lo studio di architettura e product design fondato da Stefano Pujatti, Alberto Del Maschio e Sara Dal Gallo nel 2005, con sedi a Chieri (Torino), Pordenone e Toronto, si concentra sulla relazione tra le forze e gli elementi della natura, il loro impatto sull’uomo e sull’ambiente costruito. Ogni nuovo progetto costituisce un’opportunità per studiare e sperimentare materiali, tecnologie e geometrie. www.elasticofarm.com
Prospetto Est
Scala 1 : 100
Prospetto Nord
Scala 1 : 100
Prospetto Ovest
Scala 1 : 100
Prospetto Sud
Scala 1 : 100
Sezione A - A’
Scala 1 : 100
Sezione B - B’
Scala 1 : 100
Sopra, la scala metallica appesa e aperta che accompagna alla residenza. Foto ©Anna Positano, Gaia Cambiaggi Studio Campo. A destra, assonometria della scala. Disegni courtesy ElasticoFarm.
La struttura prefabbricata in acciaio zincato poggia su alti pilastri metallici a forcella di colore giallo e solo marginalmente sulla struttura di calcestruzzo della casa originaria. Sia i rivestimenti esterni sia le pareti murarie all’interno sono stati costruiti a secco. L’isolamento poliuretanico applicato a spruzzo offre un contributo rilevante all’alta efficienza energetica dell’edificio. La demolizione del tetto esistente ha permesso di utilizzare il nuovo solaio di copertura come tetto giardino a uso della nuova unità abitativa.
Alla casa si accede direttamente dal parco, tra gli alberi, per mezzo di una scala metallica, appesa e aperta. Nel salirla si scopre un paesaggio mutevole che accompagna alla residenza: la vegetazione penetra e avvolge l’edificio trasformando anche lo spazio domestico. Le pareti interne sono state colorate in diverse tonalità di verde per suggerire il legame con le fronde degli alberi. La corte si scorge subito dopo l’ingresso, luminosa e verdeggiante. Sulla destra, saliti pochi gradini, si accede al living che si espande nella sala da pranzo. Questo ambiente è direttamente collegato con una terrazza dalla quale si può
scendere sul tetto giardino ricavato sulla copertura dell’edificio preesistente. Dalla sala da pranzo, salendo ancora pochi gradini, si raggiunge la cucina, collocata in posizione angolare a nord-est, in contatto visivo anche con la terrazza e il tetto giardino. Dalla sala da pranzo, proseguendo ancora intorno alla corte in senso antiorario, si accede a un percorso che porta a ambienti di servizio e quindi alla zona notte che, distribuita lungo il lato ovest della casa, si ricongiunge infine all’ingresso ■
Nei rivestimenti in lamiera grecata a profilo simmetrico Genus 2000 prodotta da Unimetal, i volumi sospesi di The Hole with the House Around assumono un caratteristico aspetto industriale. Qui impiegate in colore argento e disposte parte in verticale e parte in orizzontale, le facciate ventilate ottenute con la lastra Genus 2000 sono di facile applicazione. Realizzate in profilatura, sono disponibili nelle diverse
finiture preverniciate e nei principali metalli quali alluminio, acciaio inox o preverniciato e zinco titanio. Con un eccellente rapporto qualità/prezzo, il sistema si completa di tutti gli accessori principali per realizzare angoli e finiture laterali. Le sottostrutture disponibili permettono il distanziamento della facciata secondo le esigenze costruttive. www.unimetal.net
CREDITI
Località Cambiano (Torino)
Committente Privato
Progetto architettonico Elasticofarm
Team di progetto Stefano Pujatti, Daniele Almondo, Valeria Brero, Serena Nano, Andrea Rosada
Progetto strutture Corrado Curti
Progetto impianti Pasquale Matarazzo, Bruno Marcon
Impresa di costruzioni De Filippi Costruzioni
Rivestimento involucro Unimetali
Superficie lotto di intervento 5.635 mq
Superficie ampliamento 135 mq
Cronologia Febbraio 2015-dicembre 2016 (progetto); febbraio 2017-giugno 2022 (cantiere); luglio 2022 (completamento)
Negli interni, distribuiti su più livelli, le pareti sono state colorate in diverse tonalità di verde.
Foto ©Anna Positano, Gaia Cambiaggi I Studio Campo.
Il nuovo complesso residenziale firmato da Cino Zucchi Architetti consolida e arricchisce il tessuto urbano con un basamento continuo e uniforme e una distintiva identità visiva
Il complesso residenziale è composto da tre edifici, uno a torre di 9 piani e due più bassi collegati disposti a L, uno di 4 piani e uno di 3, che delimitano e circoscrivono un parco interno piantumato. Foto ©Filippo Poli.
Il quartiere milanese di Turro, dove l’ultimo progetto residenziale disegnato da Cino Zucchi Architetti prende il posto di un precedente edificio industriale, pur con costruzioni di periodi diversi conserva un’identità novecentesca, quando era abitato da operai dei vicini complessi industriali, caratterizzata da una cortina stradale almeno in parte ancora continua e animata da piccoli esercizi commerciali. Il progetto consolida e arricchisce questo tessuto urbano, prestando particolare attenzione all’angolo dell’isolato dove le vie limitrofe convergono su via Valtorta. Evidente risulta l’impegno per creare un senso di unità e coesione tra le pre-esistenze e il nuovo complesso, formato da tre corpi edilizi di altezza diversa, uno a torre di nove piani e due più bassi collegati disposti a L, di quattro e tre piani. Al centro si apre una corte verde. All’integrazione urbana contribuisce la distribuzione delle altezze dei diversi volumi, con il blocco più basso collocato in continuità degli edifici storici lungo via Valtorta. Arretrata sull’angolo nord del lotto, la torre residenziale più alta, con uno sbalzo in corrispondenza del blocco di quattro piani che ne smussa lo spigolo, caratterizza invece in maniera distintiva l’insieme. Ma la singolare geometria si può osservare solo dal giardino interno, o
dalla strada a est del lotto.
La variazione delle altezze dei volumi tiene conto anche delle diverse prospettive e delle viste panoramiche, rispondendo al tempo stesso ai vincoli del terreno e all’orientamento solare nel corso della giornata e dell’anno. Il basamento su via Valtorta è attraversato dagli accessi pedonali alle abitazioni, trasparenti
Cino Zucchi Architetti Alla costante ricerca di nuove soluzioni spaziali nel complesso e stratificato carattere dei territori contemporanei, lo studio ha progettato e realizzato numerosi edifici pubblici, residenziali, commerciali e per uffici e progettato masterplan e recuperi di aree industriali e storiche. Tra i lavori più noti il masterplan per l’area di Keski Pasila a Helsinki, gli Hq di Salewa a Bolzano (con Park Associati), il nuovo centro direzionale Lavazza a Torino. Cino Zucchi (1955) è docente di Architettura e Disegno Urbano al Politecnico di Milano. www.zucchiarchitetti.com
Lo spigolo smussato della torre, in corrispondenza del volume vicino, è uno degli elementi che caratterizzano il progetto. L’altro è dato dalle scelte materiche, con un rivestimento in pannelli di mattoni faccia a vista preassemblati, e cromatiche. Le facciate a nord e verso via Valtorta sono scandite da finestre delimitate da riquadri color marrone e azzurro incorniciati da lesene bianche. Foto ©Filippo Poli.
per rendere visibile il giardino dalla strada, e abitato da spazi commerciali.
Gli appartamenti, connessi tramite una scala centrale, presentano spazi ampi e luminosi di differenti metrature, fino ai tagli più ampi dei piani superiori della torre dove sono presenti appartamenti duplex. Gli affacci principali dei locali giorno a sud presentano sempre importanti logge-balconi sulle quali insistono grandi vetrate; il resto del prospetto è caratterizzato da una cortina muraria relativamente compatta e regolare sulla quale si articolano gli affacci delle camere e dei bagni. La scelta dei materiali e dei colori riflette un’attenta considerazione per l’architettura
milanese del Novecento e il desiderio di creare un’identità visiva distintiva. L’intonaco per i fronti principali sulle strade è posato su un sistema di isolamento a cappotto, mentre il basamento e i fronti minori sono caratterizzati da un rivestimento in laterizio. Per quanto riguarda invece i parapetti degli affacci a sud, prevalentemente vetrati, sono completati da porzioni inclinate realizzate in bacchette di metallo che articolano i prospetti affacciati sul giardino. Questa diversificazione dei materiali esprime la volontà di continuare quella ricerca di relazioni, che contraddistingue l’intero il progetto, tra la nuova architettura e i lotti contigui senza riproporne forme e materiali ■
Località Milano
Committente Volcan Immobiliare
Progetto architettonico Cino Zucchi Architetti
Lead architect e team Michele Corno (Project Leader), Andrea Bergamini, Alberto Caddeo
Sviluppo e direzione lavori R4M Engineering
Progetto e DL strutture Holzner & Bertagnolli Engineering
Progetto e DL impianti Ai Engineering
Pannelli in laterizio faccia a vista
Terracoat SanMarco
Superficie 4.270 mq
Cronologia 2017-2023
Prospetto e sezione. I tre edifici sono differenti per altezze e materiali. L’accesso ai garage interrati avviene da via Rovetta (courtesy CZA).
Un elemento caratterizzante del progetto è il nuovo fronte urbano sulle vie Valtorta e Rovetta.
A sinistra: mute su strada, le abitazioni dispongono di ampie logge/balconi verso la corte interna. Dettaglio dello spigolo smussato dell’edificio più alto. Foto ©Filippo Poli.
La soluzione di SanMarco, brand di Terreal Italia, consiste in un cappotto termoisolante con una elevata performance di risparmio energetico e di comfort abitativo. È costituito da pannelli prefabbricati realizzati mediante l’assemblaggio di lastre di eps addizionato con grafite e di listelli in terracotta faccia a vista a pasta molle in due tonalità di grigio della linea Vivo SanMarco, la stessa che ha caratterizzato anche altre architetture
realizzate da Cino Zucchi Architetti. Il sistema scelto per via Valtorta rappresenta un importante passo avanti nel campo della prefabbricazione delle finiture in laterizio faccia a vista, in precedenza affidata in cantiere alla posa manuale di un mattone o di un listello alla volta.
Le dimensioni ridotte e il peso limitato rendono il sistema di facile movimentazione in cantiere.
www.sanmarco.it/it/tecnologia/sistema-parete/terracoat/
Eleganza discreta, razionalità e citazioni del moderno milanese in un piccolo complesso residenziale completato di recente in zona Navigli per un consorzio di cooperative di abitazione
Vista dell’ingresso dalla corte dell’edificio, filtro tra le abitazioni e lo spazio pubblico. Foto ©Francesca Iovene.
Originariamente pensato per un’utenza abitativa di studenti e giovani professionisti legata ai vicini poli universitari di Naba e Bocconi, il progetto Pichi 12 firmato da Park Associati nel tessuto urbano dei Navigli a Milano si è sviluppato nella sua forma definitiva come una residenza per una fruizione più ampia e diffusa. Dal segno architettonico discreto, l’edificio costruito sul sedime di un’ex-autorimessa si sviluppa su tre livelli oltre al piano terra, riservato ai locali per le attività comuni e la socializzazione. I trenta appartamenti dei livelli superiori sono di diverse tipologie abitative e metrature. Per la realizzazione sono state studiate tecnologie di costruzione a secco e sono stati utilizzati materiali che creano contemporaneamente leggerezza e solidità. Il progetto reinterpreta il modernismo dell’architettura residenziale milanese ed è caratterizzato da elementi distintivi decisi, come il gioco di volumi puri intonacati di bianco e le logge in ceramica, le finestre in lamiera e i bow window che movimentano i prospetti. Le facciate si snodano in volumi semplici e geometrici, con gli spazi delle logge scavati in negativo a creare un andamento discontinuo e, insieme, armonico tra i pieni
Prospetto su via Pichi
Park Associati Fondato a Milano nel 2000 da Filippo Pagliani (a sinistra) e Michele Rossi, Park si occupa di progettazione architettonica, urbanistica, landscape, interior e product design. Che si tratti di Palazzo Sistema, della digital factory di Luxottica o dell’ex-hotel Michelangelo, ogni progetto è un’occasione di ricerca di soluzioni innovative e sartoriali. www.parkassociati.com
e i vuoti, tra le aperture e i punti ciechi. Gli svuotamenti delle logge sono stati rivestiti con un materiale ceramico che richiama il clinker, come omaggio al rivestimento molto usato nelle facciate milanesi nel secondo dopoguerra. Il verde foresta delle logge è l’unica nota di colore dell’edificio, che arretra rispetto al bianco delle facciate dei volumi, in sintonia col verde della vegetazione della corte interna. Quest’ultima, al cui centro è stato piantato un acero, rappresenta il cuore della residenza, una citazione del cortile urbano che, nelle residenze storiche milanesi, è sempre interno e privato e che qui invece, aperto sulla strada, si rivolge all’esterno e alla vita pubblica e funge da filtro tra l’individualità dell’abitare e la collettività della convivenza urbana ■
Piante del piano terra e piano tipo. Sotto, vista di dettaglio della facciata del vano scale. Foto ©Francesca Iovene.
CREDITI
Località Milano
Committente Consorzio Cooperative Lavoratori
Progetto architettonico Park Associati
Team di progetto Filippo Pagliani, Michele Rossi, Alessandro Rossi, Alberto Ficele, Sharon Ambrosio, Alexia Caccavella, Antonio Cinquegrana, Sofia Dalmasso, Andrea Dalpasso, Lorenzo Merloni, Andrea Riva, Cristina Tudela Molino, Marco Vitalini.
Direzione Lavori Generale Marinella Nidasio
Direzione Lavori e strutture Mauro Grossi
Progetto preliminare e definitivo delle discipline strutturali, impiantistiche e prevenzione incendi General Planning General contractor Mariani
Rivestimento facciate Bronco Coperture, Lattoneria Mada, Coriges
Rivestimento facciate delle logge Ragno
Pavimento esterno Marazzi
Serramenti degli appartamenti Cocif, Italjolly, Alpac Strutture e parapetti Sacif
Superficie 2.080 mq
Cronologia 2014 (concorso), 2023 (realizzazione)
ALPAC
Dai serramenti di ampie dimensioni, che all’interno sono in legno e all’esterno in alluminio, fino agli oscuranti che da chiusi sono pressoché invisibili, è evidente il desiderio di pulizia delle linee da cui è scaturito il progetto di Park Associati. Per mantenere l’equilibrio tra le anime dell’edificio, i serramenti e i parapetti a francesina sono in facciata con idonei sistemi di fissaggio inseriti appositamente nel monoblocco. Alpac, che si era già cimentata in simili interventi su altri progetti, ha provveduto alla realizzazione custom del monoblocco Presystem Sps che prevede un alloggio per scuri a scomparsa, facendo arrivare le persiane a filo serramento e ricavando un imbotte laterale, rivestito in alluminio, che si integra perfettamente con la facciata.
www.alpac.it
Soluzioni invisibili per un benessere che si sente
Alpac propone soluzioni prefabbricate per la gestione del foro finestra sia per nuovi edifici, sia per riqualificazioni energetiche, con l’obiettivo di soddisfare le necessità tecniche di ogni progetto. I servizi offerti permettono una collaborazione fin dalle prime fasi del progetto,
per customizzare i prodotti scelti nell’ottica di adattarli perfettamente alle aspettative dei clienti. Soluzioni prefabbricate innovative per migliorare l’efficienza energetica del foro finestra, il comfort abitativo e la salubrità degli ambienti.
www.alpac.it
Il rapporto con la strada e con l’intorno, un griglia bianca che protegge gli interni e caratterizza la residenza, la corte giardino interna. Un altro pezzo di città che cambia nel progetto di Asti Architetti
Una vista dell’immobile da via Faravelli e, nella cartolina d’epoca, l’edificio precedente che è stato demolito. In alto, l’assonometria del piano terra evidenzia i possibili punti di vista dalla strada verso l’interno (courtesy Asti Architetti).
Specializzato nel recupero e nella valorizzazione del patrimonio edilizio milanese, Asti Architetti opera con la sensibilità che nasce dalla profonda conoscenza del tessuto urbano della città e dei suoi edifici. Nella convinzione che gli immobili possiedano una loro potenziale continuità storica, lo studio trasforma edifici e interi isolati figli di un’altra epoca in architetture del presente, marcando il ritmo della trasformazione della città moderna, in costante rinnovamento.
Significativa in questo senso la trasformazione da produttivo a residenziale di un complesso un tempo occupato dagli uffici e dagli stabilimenti di Irradio in via Faravelli, nell’area delimitata dall’asse di viale Certosa a nord, dall’ex fiera campionaria (oggi Citylife) e dal Portello (già stabilimenti Alfa Romeo) a ovest.
Le 71 unità abitative di diverse metrature di Faravelli 14 occupano due corpi di fabbrica,
uno disposto a ‘elle’ a definire la cortina stradale e l’altro all’interno del cortile, in aderenza al lato più lungo. Risultato di un progetto di demolizione e ricostruzione, il blocco su strada si caratterizza per una maglia regolare fatta di una struttura metallica bianca che dal primo al quarto piano si antepone alla facciata vera e propria, formata da ampie superfici vetrate a loro volta protette da scuri scorrevoli. « Abbiamo pensato – spiega Patrizia Alessandrini di Asti Architetti che ha guidato il progetto – a un sistema a strati successivi di facciate che rendessero morbido l’approccio dalla città all’appartamento, per formare una sorta di “bozzolo”. Gli appartamenti a Milano sono concepiti sempre più come dei nidi».
La maglia si arresta prima degli ultimi due livelli, arretrati rispetto al fronte strada, dove gli appartamenti dispongono di ampie terrazze
Asti Architetti
Fondato a Milano nel 2004 da Paolo Asti, nel corso degli anni lo studio Asti Architetti si è specializzato nel recupero del patrimonio edilizio della città. Numerosi gli immobili di pregio riqualificati, prima tra tutti la Torre Velasca il cui restauro è oggi in via di completamento. Nella convinzione che gli immobili abbiano una loro potenziale continuità storica, lo studio li riporta a nuova vita interpretando al meglio le norme urbanistiche e le esigenze dei committenti. www.astiarchitetti.it
e godono di una vista sulla città e in particolare sulle torri di Citylife.
L’attacco a terra, rivestito con lastre di ceramica in due tonalità, ripropone la pietra che fasciava l’edificio preesistente. Gli ingressi vetrati all’edificio consentono ai passanti di traguardare la corte/giardino interna che copre i due livelli interrati e i 18 ulivi – segno distintivo degli interventi dello studio –disposti in grandi vasi di corten che danno spazio alle radici.
Sul giardino affacciano direttamente, con i parapetti vetrati dei balconi, gli appartamenti ricavati dal volume interno, dove un tempo si assemblavano i televisori, che è stato conservato, riportato a rudere e trasformato. L’afflusso della luce all’interno è stato un altro degli elementi che hanno guidato il progetto: tutti gli appartamenti, spiega Paolo Asti, «nella logica che il rapporto con l’intorno fosse il più felice possibile, sono stati organizzati in maniera diversa al fine di godere al meglio dell’illuminazione naturale» ■
CREDITI
Località Milano
Committente Nexity Holding Italia
Progetto architettonico Asti Architetti (Paolo Asti, Patrizia Alessandrini)
Impresa di costruzioni Smv Costruzioni
Opere a verde Andrea Losa Giardini
Serramenti, facciate continue, oscuranti e frangisole Italserramenti
Porte interne appartamenti Albed
Illuminazione Telmotor
Parapetti vetrati Aluvetro
Pavimentazioni e rivestimenti ceramici Marazzi, Florim
Ascensori Schindler
Slp 5.560 mq
Conclusione lavori 2023
Foto Matteo Cirenei, Stefano Gusmeroli
Nella pagina di sinistra il giardino interno con gli ulivi inseriti in vasi di corten e sezione degli ultimi 4 livelli del corpo su strada (courtesy Asti Architetti).
La griglia metallica bianca che caratterizza la facciata e si arresta agli ultimi due piani, leggermente arretrati dal fronta strada e dotati di terrazze.
Protetta da una maglia regolare di travi e pilastri che crea un gioco di pieni e vuoti e dona plasticità al fronte su strada e a quello interno, la facciata continua di alluminio in colore marrone seppia (Ral 8014) dell’edificio di via Faravelli è stata prodotta da Italserramenti al pari degli elementi a persiana in alluminio sublimato (modello Garigliano) dello stesso colore, che scorrono su guide in alluminio a scomparsa.
Sempre di Italserramenti – modello Raffaello – i serramenti sono in legno lamellare a lista intera, verniciati in noce medio all’esterno e laccati in bianco puro (Ral 9010) all’interno. Le finestre accolgono un doppio vetro 55.2 Optimus 70 con camera ad Argon con un valore rW di abbattimento acustico di 36 dB.
www.italserramenti.it
Chiusa all’esterno come un tipico
Schüür agricolo, scultorea all’interno. L’abitazione di nuova costruzione di Be Architektur nei pressi di Zurigo
L’edificio riprende a suo modo l’effetto semplice e grezzo di un fienile attraverso la scelta dei materiali. La facciata è rivestita in legno di abete. Foto ©Vito Stallone.
Pur non trattandosi della rifunzionalizzazione di un fabbricato rurale bensì di una nuova costruzione, nel quadro di un piccolo sviluppo residenziale di 15 abitazioni a Rieden bei Baden, un borgo a breve distanza da Zurigo, con il carattere esteriore semplice e disadorno di un fienile tradizionale la nuova casa progettata da Be Architektur entra in dialogo tematico con il paesaggio e con gli edifici agricoli circostanti. La facciata esterna è rivestita in legno di abete rosso, lo stesso legno dei fienili svizzeri. Allo stesso modo è stato progettato un tetto a falde, con copertura in tegole tipica dell’architettura locale. Le finestre e le generose vetrate fisse sono fronteggiate da porte scorrevoli in legno che, chiuse, rendono l’edifcio ermetico e forniscono protezione solare e privacy. Una trave in acciaio
grezzo funge da grondaia, sporgendo oltre la base e il profilo del tetto. Sono stati omessi i pluviali: l’acqua piovana defluisce lateralmente come una cascata.
Inoltre, l’edificio è stato progettato rispondendo alla topografia del sito. Costruire su un pendio richiede solitamente lo scavo dietro e il riempimento davanti, ma questo approccio è stato deliberatamente scartato. Il piano terra è invece disposto su una serie di livelli a quote diverse per seguire la pendenza del terreno. Un fienile viene generalmente utilizzato come deposito e come laboratorio per la produzione agricola. Questo dato di fatto è stato sviluppato da Be Architektur nella disposizione interna degli ambienti, con volumi chiusi e figurativamente impilati uno sull’altro: spazi abitativi aperti e interconnessi verticalmente
Be Architektur
Fondato nel 2022 a Rieden bei Baden da Boris Egli, in precedenza socio amministratore di L3P Architekten e consulente architettonico del comune di Wallisellen, lo studio mette al centro di ogni progetto il cliente e le sue esigenze. Questo approccio conduce a un’architettura progettata meticolosamente fino all’ultimo dettaglio, in un insieme sostenibile e funzionale.
www.be-architektur.ch
L’abitazione è disposta su una serie di livelli a diverse altezze che seguono la pendenza del terreno. Foto ©Vito Stallone.
La zona lettura in mansarda è caratterizzata da un soffitto basso e spiovente e pareti angolari. Foto ©Vito Stallone.
Località Rieden bei Baden
Committente Privato
Progetto architettonico Be Architektur
Ingegneria civile Suisseplan Ingenieure
HVAC Elsner-Klima
Building physics Wichser Akustik & Bauphysik
Lighting design Lichtblick
Rubinetterie Ritmonio
Superficie 215 mq
Fine lavori Agosto 2022
In tutta l’abitazione il pavimento è costituito da lastre di cemento non trattato e le pareti sono rifinite con intonaco. Foto ©Vito Stallone.
First floor
L’interno scultoreo nei toni della terra e dei grigi si apre con ampie vetrate sul paesaggio agricolo dell’intorno. Foto ©Vito Stallone.
Attic storey
Al primo piano i volumi si intersecano creando vuoti a tutt’altezza e pieni per le camere da letto, i bagni e lo studio. A sinistra, pianta del piano terra.
e orizzontalmente avvolgono questi blocchi sfalsati, contribuendo a collegare i differenti ambienti della casa. A destra dell’ingresso, la cucina e la sala da pranzo sono caratterizzate da elementi di falegnameria in legno inseriti nelle pareti di cemento. Accessibile tramite alcuni gradini, il soggiorno è annidato tra altri volumi squadrati al piano inferiore. Al primo piano, i volumi che si intersecano creano due camere da letto, i bagni e uno studio. La mansarda contiene infine uno spazio polivalente e un ripostiglio, oltre a una zona
lettura caratterizzata da un soffitto basso e spiovente e pareti angolari. Le lastre di cemento per il pavimento e il rivestimento delle pareti suggeriscono un’atmosfera quasi grezza e incompiuta. I due materiali, diversi eppure dall’effetto simile, sono utilizzati in tutto l’interno. Il garage autoportante in cemento a vista è stato realizzato usando la stessa cassaforma in legno utilizzata per la facciata della casa. Sul tetto a due falde in cemento, leggermente inclinato, è stato installato un impianto fotovoltaico ■
1. ingresso
2. living
3. pranzo
4. cucina
5. camera
6. cabina armadio
7. bagno
8. studio
9. vuoti sul piano terra
10. angolo lettura
11. sala multifunzione
12. dispensa
13. cantina
14. locale tecnico
15. deposito
16. portico esterno
Per l’ambiente bagno dell’abitazione progettata da Be Architektur è stata scelta la serie di rubinetteria Diametro35 Inox Concrete di Ritmonio. Coerentemente con le scelte materiche compiute da Boris Egli la soluzione abbina l’acciaio inox del corpo e il comando in resina cementizia. Qui il cemento esprime le sue potenzialità tattili: oltre che solido e resistente, diventa morbido, caldo e poroso, laddove le irregolarità danno valore al prodotto e ne attestano l’unicità. www.ritmonio.it
Linguaggio e morfologia in armonia con il contesto esistente: nel suo primo progetto autonomo dopo l’esperienza con noa*, Andrea Dal Negro ha trasformato la semplicità del programma abitativo in un ottimo caso di architettura
Tre volumi frammentano l’architettura di Andrea Dal Negro realizzata in elementi di legno lamellare prefabbricato, al piano terra rivestito da un intonaco velato, mentre al livello superiore la facciata ventilata è in listelli verticali di legno di larice, scuriti da un trattamento protettivo. Foto ©Giulia Maretti.
In località Credai, nel comune di Sfruz, alle pendici del monte Roen in Trentino, l’architetto Andrea Dal Negro ha progettato un’abitazione a due passi dal bosco sviluppata come celebrazione della vita semplice e del legame con la natura.
Casa Credai rappresenta il primo progetto autonomo di Andrea Dal Negro, classe 1990, dopo le esperienze con ecoLogicStudio a Londra e con noa* - network of architecture, di cui ha supervisionato e diretto l’apertura della sede a Berlino.
L’abitazione, di 280 metri quadrati distribuiti su tre livelli, è circondata da un ampio giardino con orto e legnaia. Il piano terra si presenta come un semplice volume rettangolare intonacato, mentre il livello superiore si suddivide in tre volumi più piccoli, che danno ritmo all’edificio giocando con diverse inclinazioni sia del tetto sia della facciata. La loro inclinazione si sovrappone a tratti con la silhouette della cresta delle cime montane antistanti. Questi volumi sono completati da ampie logge vetrate e spioventi che svolgono un importante ruolo nella termoregolazione naturale dell’edificio: durante i mesi invernali agiscono infatti come radiatori naturali, catturando il calore del sole e diffondendolo negli interni. In estate, invece, proteggono la casa dai raggi solari più intensi,
mantenendo una temperatura confortevole. All’interno, il cuore della casa è stato progettato come un ambiente unico, ampio e luminoso. Il piano terra è caratterizzato da un’estesa zona giorno a doppia altezza nella parte del volume centrale, dominata da un camino attorno al quale trovano spazio il soggiorno, la cucina con un’isola in pietra naturale e uno studio. Il resto del piano è completato da una stanza da letto con bagno e lavanderia e da un’autorimessa
Andrea Dal Negro Architect Andrea Dal Negro, nato nel 1990, ha studiato architettura presso l’Università di Innsbruck e l’Università di Tecnologia di Eindhoven. Ha collaborato con lo studio dell’architetto Renzo Gennaro a Bolzano e con EcoLogicStudio a Londra. Nel 2016 ha iniziato a collaborare con noa* e due anni dopo ha supervisionato e diretto l’apertura della sede dello studio a Berlino. Casa Credai rappresenta il primo progetto autonomo di Andrea Dal Negro, nel quale ha personalmente progettato e supervisionato ogni fase del processo. www.andreadalnegro.com
Il cuore della casa è stato progettato come un ambiente ampio e luminoso, a doppia altezza nel volume centrale. L’edificio è stato realizzato secondo gli standard di classe energetica A+ per ridurre al minimo le dispersioni termiche. Foto ©Giulia Maretti.
L’edificio si sviluppa su due livelli fuori terra e un interrato.
Separate tra loro, le camere della zona notte sono percepite come piccole casette in legno individuali affacciate sul panorama.
Il lotto rettangolare su cui si colloca l’abitazione è sviluppato in lunghezza e orientato verso sud-ovest, garantendo quindi un’esposizione ottimale ai raggi solari e una vista panoramica verso valle.
con due posti auto. Da qui si accede al piano interrato adibito a cantina e locale tecnico. Il secondo piano, collegato tramite una scala aperta, si divide in tre zone che rispecchiano i tre distinti volumi architettonici, rivestiti internamente dal tetto in travi di legno a vista. Nel volume centrale a doppia altezza, una biblioteca e uno studio si affacciano direttamente sulla zona giorno del piano terra, collegando visivamente e unendo spazialmente i due livelli e facilitando l’ingresso di luce naturale. Questa soluzione favorisce la socializzazione e la condivisione delle attività quotidiane, in accordo con i ritmi di vita dei committenti, dalle serate di lettura accanto al camino alle preparazioni culinarie e alle sessioni di lavoro.
Attraverso la biblioteca si raggiunge poi la zona notte tramite un ponte sospeso. Le camere da letto sono progettate per garantire intimità e tranquillità. Collocate nei due volumi laterali e quindi separate tra loro, vengono percepite come piccole casette in legno individuali che si affacciano sul giardino e il panorama circostante. Come l’architettura, così anche gli interni sono stati progettati e disegnati da Dal Negro. Oltre che alla scelta di piastrelle e tessuti, l’architetto si è dedicato alla progettazione di tutti gli elementi di arredo presenti in casa, prediligendo il legno di rovere sia per mobili e i pavimenti sia per le porte e le finestre ■
CREDITI
Località Sfruz – Credai (Trento)
Committente Privato
Progetto architettonico e interior design Andrea Dal Negro
Serramenti Internorm
Arredi custom Mobilificio Carli
Sauna Hofer Group
Illuminazione Flos, Lichtstudio, Nordlux
Volume 1.070 mc
Superficie netta 280 mq
Cronologia febbraio-dicembre 2022
Nel disegno degli interni ho inteso tradurre la filosofia e lo stile di vita dei committenti in uno spazio sobrio ma accogliente, caldo, naturale, che potessero chiamare immediatamente casa
Andrea Dal Negro
Il ponte sospeso che dalla biblioteca, affacciata direttamente sulla zona giorno, raggiunge una della camere della zona notte. Foto ©Giulia Maretti.
Gianluca Ferraro e Andrea Caporali trasformano uno spazio ufficio in una confortevole abitazione creando una stretta connessione tra casa e lavoro
Attraverso due porte a vetri dal soggiorno si accede nella zona pranzo-cucina e nella sala biliardo, ottenendo fluidità e luminosità tra gli spazi.
Nella vasta zona industriale di Carpenedolo, a circa 30 km da Brescia, Gianluca Ferraro e Andrea Caporali hanno sviluppato un originale progetto residenziale all’interno di un lotto di proprietà dall’azienda metalmeccanica Orlando, specializzata in taglio laser, piegatura, saldatura, tornitura e lavorazione di ferro e acciaio. Al fabbricato industriale è affiancato, in totale aderenza sul lato sud-est, l’edificio su due piani degli uffici.
L’incarico affidato ai due architetti era di trasformare l’intero primo piano – una superficie complessiva di circa 210 metri quadrati – in residenziale, estendendo l’abitazione già esistente e dando origine a un dialogo serrato tra ‘casa’ e luogo di lavoro.
La prima questione che si poneva era quella di aumentare la luminosità degli ambienti interni, brillantemente affrontata con la creazione di due giardini d’inverno illuminati di luce zenitale che si diffonde nell’ampia zona giorno, Un altro lucernario è stato posto in corrispondenza del corridoio che conduce alla zona notte. I lucernari favoriscono anche la ventilazione e il ricambio dell’aria. Due porte a vetri collegano il living, concepito come un open space, all’area pranzo/cucina da una parte e alla sala da biliardo, direttamente affacciata sull’officina meccanica, dall’altra. Il legame con la fabbrica non è solo visivo
ma anche materico, ad esempio con i sottili profili in ferro verniciato delle partizioni vetrate interne e di parte degli arredi, che riprendono forma e materia di quelli impiegati nei fabbricati industriali. Anche le lampade a soffitto e a sospensione dal design minimalista, nella caratteristica forma ‘a campana’ richiamano quelle che illuminavano capannoni e magazzini industriali.
L’appartamento, di forma regolare, presenta una rastremazione graduale dovuta alla distanza dal confine e dalla strada comunale; la parte più lunga è in aderenza con il fabbricato industriale.
Gianluca Ferraro e Andrea Caporali Entrambi gli architetti si sono laureati all’Università di Palermo e hanno fatto parte del comitato scientifico della Soprintendenza ai Beni Culturali della provincia di Ragusa. Gianluca ha partecipato a numerosi workshop universitari. Andrea ha svolto attività didattica presso le università di Palermo, Enna e Agrigento. Dal 2009 è docente ufficiale Autodesk per i software Bim.
Il corridoio centrale è dotato di cupolini in copertura che garantiscono la presenza di luce naturale e il ricircolo dell’aria in uno spazio privo di aperture perimetrali.
L’intervento denota una particolare cura dei dettagli: tecnologia, design, luce, colori e geometrie dialogano tra loro in ciascuna delle soluzioni progettuali adottate.
Ogni spazio interno della casa è stato pensato e progettato con mobili su misura. Per la zona living sono stati disegnati e realizzati diversi inserti in rovere applicati nella boiserie dando più forza e legame alle superfici orizzontali e verticali dell’ambiente giorno. La boiserie è stata pensata e progettata allo scopo di generare continuità negli ambienti, dove colori tenui si alternano al tono deciso delle lastre di Laminam di molti rivestimenti. Un parquet finitura rovere è stato posato su tutta la superficie della casa, inclusi i bagni, in netto contrasto materico e cromatico con i rivestimenti ceramici, i sanitari e gli elementi di arredobagno ■
L’azienda di Mauro Zaniboni e Luigi Borghetti ha progettato e realizzato l’intero impianto elettrico e domotico, reso complesso dalla presenza del riscaldamento a pavimento, che ha vincolato la gestione dell’impianto a soffitto poi celato da un controsoffitto in cartongesso e da scatole di derivazione ben occultate alla vista. L’impianto domotico gestisce contemporaneamente tutte le funzioni della casa, dal comfort alla aspirazione centralizzata, dall’audio/video effetto cinema all’illuminazione dimmerabile – con cromoterapia nei bagni – fino alla climatizzazione canalizzata. www.elettrodimensione.it
Nell’appartamento di circa 210 mq si riconosce una grande attenzione per quanto riguarda tecnologia, design, luce. Una particolarità voluta da Ferraro è il piccolo giardino d’inverno.
Località Carpenedolo (Brescia)
Committente Francesco Orlando e Biagia Cusumano
Progetto architettonico Gianluca Ferraro, Andrea Caporali
Team di progetto Gian Antonio Lo Guzzo, Riccardo Crisci
Impianto elettrico, domotico, climatizzazione Elettro Dimensione
Impiantistica idraulica Termoidraulica Astori Luigi
Opere in ferro Turchi Flavio di Turchi Angelo
Arredi su misura Forma e Stile
Foto Nanni Culotta
Gli arredi fissi della zona giorno dell’appartamento progettato da Gianluca Ferraro e Andrea Caporali sono stati realizzati da Forma e Stile, azienda siciliana che integra processi automatizzati e tecniche basate sui valori della lavorazione artigianale del legno. Il design lineare dell’ambiente cucina si caratterizza per l’alternanza di legno rovere tabacco, grigio tortora, grès effetto marmo delle colonne, dei
pensili e dell’estesa base di lavoro. Al centro dello spazio l’isola detta i movimenti e completa il layout. La composizione nel living riprende le finiture della cucina adattandole a un sistema lineare che comprende moduli e nicchie contenitrici.
www.formestile.com
Arredi su misura e quinte tessili che modificano lo scenario domestico nel progetto di interni di Beatrice Villata per Unico-Brera, lo sviluppo di Impresa Rusconi per una diversa idea dell’abitare
In alto e sopra, piante e render di UnicoBrera, il futuro edificio residenziale di 27 microappartamenti full-furnished, con il progetto degli interni che forma parte integrante dell’architettura.
Molti inoltre gli spazi comuni a disposizione dei residenti.
Nomadismo digitale, affitti brevi, coworking, forma di investimento: sono molte le istanze emergenti del mercato immobiliare residenziale a cui il progetto Unico-Brera intende rispondere con la qualità di una nuova costruzione in classe A in corso di realizzazione su un piccolo lotto in abbandono in un’area di elevato valore fondiario. Si tratta di una torre di 11 piani + 3 interrati progettata dall’architetto Marco Cerri con Studio ArchiMI: telaio portante antisismico in calcestruzzo e acciaio, tamponamenti isolati con lana di roccia, facciate ventilate rivestite in grès. Pur variando da 42 a 55 metri quadrati, gli appartamenti offrono una speciale qualità dell’abitare. In primo luogo per gli spazi collettivi – l’area gym al primo piano e lo spazio vetrato con terrazza panoramica all’ultimo, utilizzabile per il coworking di giorno e per feste private la sera –ma soprattutto grazie al progetto degli interni di Beatrice Villata.
Full-furnished, i 23 (su un totale di 27) appartamenti ‘Unico’ possono essere scelti in una delle due varianti cromatiche Biz o Pop. In entrambi i casi il progetto d’interni si fa architettura integrandosi nelle strutture. Le partizioni diventano contenitori di volume ridotto; le nicchie al loro interno piani d’appoggio; tende mobili a tutt’altezza
su binario a soffitto separano e uniscono i diversi ambienti; richiudendosi, una piccola postazione di lavoro si trasforma in un letto aggiuntivo. Su misura anche l’illuminazione, con cornici led che percorrono armadiature e pareti e faretti per l’illuminazione puntuale dei piani di lavoro. Pensati anche per essere destinati ad affitti brevi (Italianway è il partner suggerito agli acquirenti che vorranno mettere a reddito l’acquisto), gli appartamenti impiegano materiali robusti, come il Dekton di Cosentino per la cucina, resina e vetro cannettato nei bagni. Scelti anche in un’ottica ‘circolare’: il tessuto delle tende proviene interamente da materie di scarto utilizzate in ambito nautico come i pannelli con cui sono prodotti i tavoli ‘Brera’, disegnati da Beatrice Villata ■
Beatrice Villata
Dopo la laurea in Design degli Interni e le collaborazioni con gli studi Paillard Pellizza a Parigi, Jpa Antorini a Lugano e Longo Palmarini a Milano, Beatrice Villata si specializza in real estate e hotellerie e nel 2015 fonda il suo studio a Milano, dove si occupa di progetti privati e pubblici (hotel, uffici). Lo spirito cosmopolita si esprime in tutti i suoi progetti di architettura d’interni. Peculiare del suo lavoro la capacità di gestire gli spazi attraverso il bilanciamento di luci e colori. www.beatricevillata.com
Gli arredi su misura dell’appartamento campione sono realizzati con materiali durevoli e di qualità: i piani cucina sono in Dekton di Cosentino, i tessuti delle tende provengono da materiale nautico riciclato.
Località Milano Brera
Committente Impresa Rusconi
Progetto architettonico Marco Cerri e Studio ArchiMI
Progetto degli interni Beatrice Villata
Slp 2.300 mq
Cronologia 2024-2026
“E Dio disse loro: crescete e moltiplicatevi, riempite la terra e soggiogatela, abbiate dominio sui pesci del mare, gli uccelli del cielo e ogni cosa che si muove sulla terra”. Forse abbiamo preso troppo alla lettera i versetti 26-31 della Genesi e abbiamo esagerato, rompendo il fragile equilibrio dell’ecosistema con l’incessante estrazione di risorse non rinnovabili e la produzione di rifiuti non degradabili. Un fenomeno che con l’avvento del capitalismo ha assunto gravi risvolti politici e sociali approfondendo il solco che separa il Nord industrializzato dal Sud globale, dove però una nuova scuola di pensiero che nasce dalla necessità di confrontarsi con la scarsità di risorse sembra oggi offrire una diversa visione di lungo termine per un’architettura ‘sostenibile’. Era il tema della seconda Triennale di Architettura di Sharjah, curata dell’architetto nigeriana Tosin Ọshinówò che cura anche questo libro, in pratica il catalogo della Triennale, insieme a Julie Cirelli, co-direttrice di Park Books. Sessanta, per la gran parte provenienti appunto dal Sud globale o dalla diaspora africana, gli architetti, designer, docenti e artisti partecipanti alla Triennale di Sharjah le cui ricerche sono raccolte nel volume. Tra loro anche i contributi di Rahul Mehrotra e Lesley Lokko e la ricerca ‘Cambio’ del duo Formafantasma. La somma di idee e progetti illustrati nel libro fa pensare che, proprio a partire dalla scarsità, sia forse ancora possibile ritrovare un equilibrio tra l’ambiente costruito e la salvaguardia dell’ecosistema. Un equilibrio basato sulla responsabilità dell’architettura.
Field Notes on Scarcity
Tosin Ọshinówò e Julie Cirelli (a cura di)
Sharjah Architecture Triennal, Park Books, Zurigo, 2023
160 pp, 29 CHF - ISBN 978-3-03860-357-3
“Se dovessi pensare a cosa potrei fare invece dell’architetto – dice Kahn in una conversazione con i suoi studenti – penso che scriverei delle nuove favole, perché dalle favole sono venuti l’aeroplano e la locomotiva e i meravigliosi strumenti della nostra mente”. È uno dei modi con cui l’architetto estone-statunitense parla della Meraviglia, ovvero di ciò che motiva la conoscenza e che ogni opera di architettura dovrebbe suscitare in coloro che la percorrono e la abitano. Gli scritti – articoli, interviste, conferenze – molti dei quali inediti in Italia, raccolti in questo volume curato da Marco Falsetti, architetto e PhD ricercatore alla Sapienza di Roma, attraversano l’intera carriera professionale di Louis Kahn. Dal 1931, con le prime posizioni critiche verso la rigidità stilistica della rappresentazione architettonica, fino al 1974, anno della sua morte. Progressivamente si manifesta l’interesse di Kahn intorno ai ‘principi fondamentali’ che verrà meglio esplicitato nel reiterato concetto di Ordine (L’ordine in architettura è del 1957) quale fondamento che precede il progetto: “il progetto è ciò a cui ci appelliamo per realizzare ciò di cui abbiamo consapevolezza. E la consapevolezza
Se mi sparano probabilmente muoio. Non così gli alberi che, privi di organi specializzati, sopravvivono anche a danni severi della loro struttura vitale. Perché non prendere esempio dall’organizzazione modulare delle piante per immaginare città che sappiano resistere agli incombenti cambiamenti che rischiano di rendere inabitabili parti crescenti delle terre emerse? Questo in sintesi il suggerimento che emerge dall’ultimo lavoro di Stefano Mancuso, docente dell’Università di Firenze e direttore del laboratorio di neurobiologia vegetale, che ripercorrendo la storia dell’umanità – siamo esseri arboricoli, per 20mila generazioni di cacciatoriraccoglitori la foresta era la casa, siamo diventati agricoltori solo 500 generazioni fa e dunque la rottura dell’alleanza con la natura, ovvero l’urbanizzazione, è recentissima – e dell’evoluzionismo, propone di ripensare l’idea stessa di città. Una proposta non nuova, ricorda Mancuso: il primo a parlarne fu il botanico scozzese Patrick Geddes, con il suo Città in evoluzione, nel 1915: città concepite come organismi il cui sviluppo è determinato dall’ambiente e che ha a sua volta un’influenza diretta sull’ambiente che lo circonda. Concetto ribadito da José
nasce quando abbiamo percezione del nostro sentire”. Dopo il periodo romano e il contatto con le culture ‘altre’, il suo pensiero si rivolge alla tradizione, che attinge a quanto di più profondo e universale definisce l’esperienza umana, e conduce Kahn alla ricerca di un’architettura capace di rievocare la natura dell’antico senza replicarne le forme.
Louis I. Kahn. Pensieri sull’architettura A cura di Marco Falsetti
Giulio Einaudi Editore, Torino, 2023
370 pp, 27 euro
ISBN 978-8-80626-077-4
Lluís Sert al Ciam nel 1942. Tuttavia, anche lasciando da parte la Cité Radieuse e quel che Le Corbusier effettivamente realizzò a Chandigarh, ancor oggi le metafore che usiamo per parlare di città (il cuore, le arterie, i centri nevralgici) mettono l’uomo al centro di tutte le cose. Dimenticando che la vita animale dipende da quella vegetale, con la fotosintesi, anello che lega il Sole alla Terra, motore della vita.
Fitopolis, la città vivente
Stefano Mancuso
Editori Laterza, Bari, 2023 168 pp, 18 euro ISBN 978-8-85815-260-7
Come tutti i Paesi delle Americhe, il Messico è un ambiente che nel tempo si è rivelato capace di sviluppare un contesto culturale originale. Tuttavia, forse per l’antica combinazione tra civiltà molto differenti, alcune delle quali residenti in quei luoghi da millenni, la cultura messicana è caratterizzata da tratti profondi e da una capacità di assimilazione critica e di rielaborazione ingegnosa di concetti altri. In questo risiede un potenziale di innovazione formidabile, anche in architettura.
Un fondamentale sincretismo, che vede emergere, come pressoché connaturati a molte delle più significative opere dell’America Latina e soprattutto del Messico negli ultimi 40-50 anni, aspetti di derivazione europea ma che in Europa hanno trovato più sviluppo teorico che applicazione pratica. Tra questi, l’assenza di distinzione a livello progettuale tra edificato e paesaggio o altri, tipicamente Moderni, come la continuità spaziale (o spazio-temporale) tra interno e esterno. In questo momento storico e culturale, in cui il tema della progettazione degli spazi aperti è un elemento chiave del dibattito e del progetto di architettura, queste opere non mancano di suscitare un interesse tanto inedito quanto intenso. Come del resto è ormai riconosciuta l’influenza di innovatori assoluti, come il grandissimo Luis Barragàn, nonostante fino a pochi decenni fa a costoro venissero rifilate etichette ‘tradizional-folcloristiche’. Progettare con il paesaggio è una novità messa in pratica e portata ai massimi livelli proprio in Messico, come del resto dimostrano opere come l’ampliamento del Museo Anahuacalli e moltI altri progetti di Mauricio Rocha.
Mauricio Rocha Iturbide
Mauricio Rocha Iturbide, attivo dal 1991 con il Taller de Arquitectura Mauricio Rocha, è membro emerito dell’Accademia Nazionale di Architettura e dell’Accademia Nazionale delle Arti del Messico. Premiato con la medaglia d’oro in due occasioni alla Biennale di Architettura Messicana (2004 e 2010), e per tre volte alla Biennale Panamericana di Architettura di Quito (BAQ) e alla Biennale Iberoamericana di Architettura e Urbanistica (BIAU). Nel 2019 l’Accademia francese di architettura gli ha conferito la Médaille d’Or Palmarés. Brick Award nel 2020. Curatore nel 2021 del Padiglione del Messico alla Biennale di Architettura di Venezia. Ha ricevuto nel 2023 il Mies Crown Hall Americas Prize - Mchap 2023, come riconoscimento per la migliore opera realizzata in America.
INTERVISTA ALL’ARCHITETTO MAURICIO ROCHA, UNO DEGLI AUTORI PIÙ INTERESSANTI DELL’ARCHITETTURA MESSICANA DI QUESTI ANNI
Come descriveresti la tua personale ricerca? Sono cresciuto in un ambiente creativo. Mia mamma è fotografa, mio papà architetto, mio fratello musicista e la domanda che mi sono sempre posto è se l’architettura fosse veramente un mezzo adatto alla costruzione di un pensiero artistico. Temevo fosse una carriera più di tipo commerciale o imprenditoriale. Avevo preso in considerazione anche una carriera nella cinematografia, nella fotografia, o nelle arti plastiche, ma mi sono infine reso conto che l’architettura aveva le qualità che stavo ricercando. Dato che mi piace molto il cinema, leggendo una delle ultime interviste ad Andrej Tarkovskij mi è rimasto impresso che alla domanda su quali fossero dal suo punto di vista i più grandi cineasti rispose che la maggior parte degli autori cinematografici parlano del mondo esteriore, mentre molto pochi parlano del mondo interiore.
In architettura è esattamente la stessa cosa: il
novanta per cento dell’architettura è un’architettura commerciale, molto riferita al mondo esteriore, sotto forma di opere che infine sono oggetto di vendita. Tutto, insomma, si ferma in superficie. In realtà se si pensa alle opere di autori come Barragán, Louis Kahn, Alvar Aalto, Sverre Fehn, emerge immediatamente la capacità di parlare di qualcosa che sta oltre l’edificio.
Per farla breve, mi sono reso conto che anche in architettura – e per questo ho una grande ammirazione per Barragán o Kahn – l’arte si tocca e che possedere un armamentario specifico non conta tanto quanto focalizzarsi su ciò che si vuole esprimere e con quali strumenti. Non mi interessa lavorare per guadagnare soldi, mi interessa costruire un pensiero che riguarda la mia vita, come del resto ho visto in mio padre e in molti amici di mio padre. E tutto questo ha ben poco a che fare con l’ego, con il denaro o con la fama.
Four Seasons Resort Tamarindo.
Taller Mauricio Rocha in collaborazione con Legorreta Arquitectos. Tamarindo, La Huerta; Jalisco. (2016-2023, Messico). Foto ©César Béjar.
Quali sono le cose che ti affascinano di più? Mi interessa, ad esempio, in Tarkovskij la costruzione di atmosfere. Costruisce basandosi sul tempo, la tensione nel tempo e come lui Kurosawa e molti altri. Sono convinto che il compito principale dell’architettura sia quello di costruire atmosfere, come costruire un ambiente e un’esperienza. Come John Cage, che sosteneva che la musica incomincia dal silenzio, anche un oggetto architettonico non è importante, è un risultato, quello che conta è il vuoto, quello che succede dentro. Anche l’architettura è silenzio, è ciò che permette di capire e contemplare quello che succede ma non necessariamente è visibile, è un’esperienza intangibile resa possibile attraverso la materia. Costruire un diaframma che controlli il mutare della luce durante il giorno, ad esempio, genera un’intensità che non richiede alcuna spiegazione razionale ma contiene una risposta che ci può ispirare e questo, in tutte le forme
d’arte, si chiama poesia. Un risultato poetico richiede un grandissimo sforzo, ma se succede è fantastico, ci permette di costruire una metafora e comunicare un’immagine del mondo, ed è proprio questo che mi affascina della dimensione dell’artista.
Tutto questo credi che abbia un riferimento all’individualità, alla conoscenza di sé? Sì certamente, conta anche come impieghi il tuo tempo, anche per pensare. Quello che trovo affascinante dell’architettura è che, mentre il lavoro di un poeta è un lavoro su se stessi, l’architettura, avendo un programma, è un’arte applicata. Un ambito, inclusa la storia del Bauhaus, che mi ha sempre affascinato. Senza contare che malgrado l’attuale intensità di circolazione di immagini, è impossibile avere la reale coscienza di un’opera di architettura se non attraverso un’esperienza diretta. Del resto, anche nell’opera cinematografica di Kurosawa, insieme
alla storia generale sono fondamentali elementi come la qualità della luce, il suono dell’acqua, il silenzio. É per questi motivi che spero che i miei clienti mi cerchino, non per altro.
Come dicevi, in cinematografia e in architettura è una questione di atmosfera, che ho notato essere molto presente nella tua estensione del museo Nahuacalli, con la luce, l’aria, il rapporto con il paesaggio. In genere ho molto timore di aggredire o danneggiare il paesaggio come, nello specifico, di alterare l’opera preesistente di Juan O’Gorman. Abbiamo cercato di intervenire nel modo più delicato possibile e di mettere in risalto il paesaggio, tanto che l’edificio ha determinato una sorta di vincolo rispetto al verde esistente, incredibile, ma sempre considerato un retro, una sorta di verde di risulta. Quando la gente cammina attraversa delle sequenze, passando da piazze o slarghi più grandi ad altri più piccoli.
Qual è la tua relazione con l’artigianato, in un mondo dove fare architettura diventa sempre più un tema di assemblaggio di componenti industriali?
Pensando a Carlo Scarpa negli anni Settanta, oggi non sarebbe possibile. Ci sono un paio di fattori determinanti: i regolamenti e l’economia, e in questo ambito, l’industrializzazione. Qui in Messico, malgrado il grande problema di vivere in un Paese del terzo mondo con i livelli di povertà diffusa che tutti conosciamo, abbiamo il vantaggio di poter pagare manodopera in grado di svolgere lavori artigianali di qualità, unendoli a soluzioni tecnologiche. Come in questo edificio [lo Studio Iturbide, ndr] dove per garantire la resistenza sismica abbiamo rinforzato la trama in mattoni con barre in acciaio. O come nell’ampliamento a Anahuacalli dove le facciate sono formate da quattro elementi in pietra, tagliata e sagomata con macchine moderne e uniti con un sistema a mortasa e tenone. L’altro fattore importante è
naturalmente il clima temperato che permette cose che in Europa sono quasi impossibili.
E come vedi la realtà dell’architettura messicana?
È un dato di fatto che in questo momento in Messico ci sono molte più opportunità per un giovane architetto che non in molti paesi europei, dove un architetto a inizio carriera difficilmente può aspirare a qualcosa di più che qualche piccola ristrutturazione. Come del resto proprio a causa dell’economia e dell’eccessiva specializzazione da molto tempo è difficilissimo vedere della buona architettura negli Stati Uniti, dove sono le imprese che fanno i progetti, e lo stesso capita in parte in paesi come Francia o Inghilterra. Comunque si tratta solo di congiunture, le cose cambiano continuamente.
Nonostante questo quadro credi stiano emergendo delle tendenze?
In Messico la generazione precedente alla mia voleva fare, senza riuscirci tranne rarissime eccezioni di grande qualità come nel caso di Ricardo Legorreta o Teodoro Gonzáles de León, edifici di grandi dimensioni. Oggi, credo in tutto il mondo, c’è un’attenzione particolare ai materiali, alla sostenibilità, al clima o spazi più utili rivolti alla comunità. Al giorno d’oggi, tra l’altro, con Instagram e tutto il resto ci sono molte più possibilità di farsi notare rispetto a quando avevo 25-30 anni, quando l’unico mezzo di pubblicazione era la rivista Arquine con tremila copie e riuscire a farsi pubblicare era un gran successo. Sicuramente c’è un eccesso di informazione ma in realtà le opportunità aumentano. Tra l’altro negli ultimi tempi le opere che non costano molto vengono viste in modo decisamente positivo come pure le opere che hanno un valore a livello politico e etico. Sorprendentemente l’etica ha assunto un valore fondamentale, è una grande opportunità per fare
qualcosa che abbia un senso di responsabilità rispetto all’intorno.
In breve, quello che conta è la qualità dell’esperienza dell’opera di architettura?
Quando ti parlavo di arte e di poesia, quando l’atteggiamento diventa elitario può diventare pericoloso, perché credo che l’esperienza debba essere trasferita a diversi livelli in modo che qualsiasi persona possa dire: qui non so bene cosa sia, ma mi sta comunicando qualcosa. Come del resto la sfida è non ripetersi, non ricercare uno stile, nel senso di paradigma formale. L’importante è una riflessione profonda su tutto ciò che è intangibile. Del resto, Oscar Wilde diceva: la fama è l’ultimo prezzo che l’artista paga. Con la fama arrivano i soldi, uno incomincia a spassarsela ai cocktail senza avere più il tempo per curare i contenuti, e così incomincia a ripetersi.
Non credi di avere uno stile tuo?
Credo sia sempre possibile riconoscere il lavoro di un architetto, ma non in termini puramente formali.
Come ha influito il tuo vissuto sul tuo lavoro?
Per me il fatto di potermi nutrire non solo di architettura ma anche di diverse aree dell’arte, a partire dalla cinematografia da Tarkovskij a Kubrick, è stato un valore enorme. Tutto il periodo dell’architettura e dell’arte degli anni Settanta è per me una fase incredibile e comprende molta architettura, ma anche la land art di Peter Smithson, Michael Heizer, Nancy Holt, come pure Gordon Matta-Clark. Era insomma un’epoca magica, precedente a quella attuale dove il mondo dell’arte è dominato dalle imprese e dall’economia. C’era anche un impulso incredibile verso l’utopia.
Rispetto a quell’epoca così interessante, come vedi il mondo di oggi?
Four Seasons Resort Tamarindo. Taller Mauricio Rocha in collaborazione con Legorreta Arquitectos. Tamarindo, La Huerta; Jalisco. (Messico). Foto ©César Béjar.
Di sicuro è un’epoca di grandi cambiamenti. Anche sul tema dell’intelligenza artificiale che credo sia un aiuto notevole, ma allo stesso tempo non credo ci possa sostituire. Manca l’irrazionale possibilità del dubbio o, posto in altri termini, la capacità di porsi delle domande, che è la componente fondamentale di qualsiasi opera d’arte e anche dell’architettura.
Infine, cosa consiglieresti a un giovane architetto?
Per prima cosa direi di porsi sempre delle domande, di avere una sana vocazione al dubbio. E allo stesso modo credo che l’ozio sia un elemento fondamentale, smettere di lavorare per dedicarsi a pensare, viaggiare e scoprire. E questo è altrettanto importante che mantenere una disciplina costante, fondamentale per raggiungere risultati altrimenti impossibili ■
IL PROGETTO DI
RISTRUTTURAZIONE E AMPLIAMENTO DEL
MUSEO ANAHUACALLI DI MAURICIO ROCHA È NATO
CON L’IDEA DI OFFRIRE
ALLA COMUNITÀ NUOVI
LABORATORI ARTISTICI E SPAZI ESPOSITIVI.
DUE NUOVI EDIFICI
SI INTEGRANO CON
QUELLI ESISTENTI E SI
SVILUPPANO ATTORNO A UNA NUOVA PIAZZA
Negli anni ‘40, il famoso muralista messicano Diego Rivera diede inizio, insieme alla figlia Ruth e all’architetto Juan O’Gorman, al suo sogno di creare la Città delle Arti a sud di Città del Messico, in un incredibile paesaggio di pietra vulcanica ormai avvolto da una lussureggiante vegetazione. Il primo edificio realizzato, il centro focale del progetto, era un pomposo omaggio all’architettura azteca o maya ed era concepito per diventare sia lo studio che la collezione dei pezzi più importanti dell’arte preispanica di Rivera. Tuttavia, nel 1957, a metà dell’opera e al secondo piano di questo edificio, Rivera morì. Juan O’Gorman e Ruth Rivera decisero di continuare il progetto e negli anni ‘60 furono completati altri quattro edifici che si sviluppavano attorno a un grande patio hundido, un patio
ribassato di circa 45 cm rispetto al piano principale di calpestio di ispirazione preispanica. Più di recente, il concorso per l’ampliamento del Museo Anahuacalli, vinto da Mauricio Rocha, è nato con l’idea di offrire alla comunità nuovi laboratori artistici e spazi espositivi. Nel progetto di Rocha, due nuovi edifici si integrano con quelli esistenti e si sviluppano attorno a una nuova piazza che si estende per circa un quarto del grande patio preesistente. A sud si trova un piano seminterrato che ospita 60mila opere della collezione privata di Rivera, mai esposte in precedenza, ma ora visitabili. A ovest si trova l’edificio del laboratorio con una grande sala polivalente per convegni e concerti, portici aperti su un patio interno e due sale per le arti plastiche. A nord l’edificio degli uffici, mentre
a est gli edifici esistenti, ampliano lo spazio della biblioteca. Nei nuovi edifici, rispettando i livelli della piazza centrale, l’aspra topografia del paesaggio vulcanico viene preservata, permettendo anche la realizzazione di spazi coperti per due nuovi laboratori. La cortina in pietra continua, che forma un diaframma permeabile all’aria e alla luce e contiene i portici di distribuzione, rappresenta il tratto distintivo di questa architettura. Tuttavia, la caratteristica principale, che può essere apprezzata solo attraverso un’esperienza diretta, è la notevole sequenza di spazi accompagnata da un’originalità straordinaria nella cura dei dettagli. Il percorso lungo i portici è segnato da fessure di luce che penetrano attraverso la cortina di pietra e mettono in contatto il cielo e il piano
calpestabile con il suolo vulcanico primordiale. La percezione del paesaggio originario, precedentemente considerato, nonostante la sua bellezza, una sorta di spazio di risulta, viene enfatizzata attraverso ampi affacci aperti sulle testate. In un mondo in cui ogni cosa viene urlata, l’estensione del Museo Anahuacalli lavora silenziosamente, rendendo possibile un’esperienza dei luoghi che è propria solo dei capolavori.
Nome del Progetto Ristrutturazione e Ampliamento del Museo Anahuacalli Progetto Architettonico Mauricio Rocha, Taller Mauricio Rocha
Area di Progetto Interno 4.765 mq; Esterno 2.120 mq
Luogo Coyoacán, Città del Messico Cronologia 2016-2021
Foto Onnis Luque; Rafael Gamo
Vista sul paesaggio di origine vulcanica del luogo di intervento. Foto ©Onnis Luque.
SEZIONE LONGITUDINALE - 01
SEZIONE LONGITUDINALE - 02
SEZIONE TRASVERSALE
In questa pagina, vista sulla grande corte centrale.
Nella pagina a fronte, i volumi delle aule sovrapposti alla grande corte centrale, visibili dalla strada.
IL CENTRO DI SVILUPPO
COMUNITARIO LOS CHOCOLATES
DI MAURICIO ROCHA E GABRIELA
CARRILLO È UN GRANDE ESEMPIO
DI ARCHITETTURA ATTUALE E BEN
RADICATA NELLA TRADIZIONE
ARCHITETTONICA E COSTRUTTIVA
MESSICANA
Il concept di questo edificio risponde alle esigenze e alle potenzialità dell’antico quartiere di La Carolina, che pur trovandosi nel cuore del centro storico della città messicana di Cuernavaca è del tutto privo di spazi per la socialità. Un sondaggio condotto dal Segretario di Stato alla Cultura ha rilevato che nel quartiere ci sono più di 25 orchestre, composte da oltre 25 membri ciascuna, oltre a diverse squadre di calcio e molti giovani e bambini interessati alla musica, alla stampa e alla fotografia. Da qui nasce l’idea di creare uno spazio che unisca cultura, svago e sport, diventando un motore di attività per la comunità locale e un motivo per preservare la sua storia. Il Taller Mauricio Rocha ha immaginato un grande spazio vuoto in grado di accogliere qualsiasi
tipo di attività: dalle partite di calcio informali agli spettacoli teatrali, fino alle prove per i concerti musicali. Si tratta di un edificio, o meglio di uno spazio, che sfrutta il meraviglioso clima di Cuernavaca per superare i confini convenzionali tra interno ed esterno.
La semplicità del progetto è alla base della sua straordinaria complessità: una corte, il grande vuoto centrale, scavata nel terreno in pendenza, su cui sono sovrapposti in sequenza volumi a ponte, il tutto collegato a un ampio giardino, l’oasi, circondato da alberi. L’intervallo tra ogni ponte è studiato in modo da permettere la presenza di facciate completamente vetrate rivolte a nord, garantendo una massima illuminazione per ogni aula interna.
Ogni spazio si affaccia sulla corte centrale,
creando un notevole senso di continuità e fluidità. L’edificio è realizzato in cemento a vista e presenta una pavimentazione di colore cioccolato, in sintonia con il soprannome del luogo, Los Chocolates, dato che in precedenza era un deposito di camion chiamati così per il loro colore. Nell’edificio sono presenti materiali della tradizione costruttiva messicana, come i mattoni in adobe prodotti con tecniche semiartigianali che offrono eccellenti proprietà di isolamento acustico e termico, rendendo superflui gli impianti di climatizzazione. Il Centro culturale Los Chocolates dimostra l’importanza di evitare iconografie chiassose e spettacolari in favore di una scrupolosa attenzione al luogo, alle risorse disponibili e alle persone che lo abiteranno.
SEZIONE TRASVERSALE SULLA CORTE CENTRALE
PROSPETTO VISTO DAL GIARDINO
SEZIONE LONGITUDINALE SULLA CORTE INTERNA E SUI CORPI DELLE AULE
Vista aerea del centro
0
PLANTA BAJA
5
PIANTA DEL PIANO TERRENO
Nome del Progetto Centro di Sviluppo Comunitario
Los Chocolates
Progetto architettonico Mauricio Rocha, Gabriela
Carrillo (Taller | Mauricio Rocha + Gabriela Carrillo)
Area di progetto interno 1.763 mq; esterno 1.023 mq
Luogo La Carolina - Cuernavaca, Morelos, Messico
Cronologia 2014-2018
Fotografie Jaime Navarro, Rafael Gamo
Nella pagina a fronte, i collegamenti dei volumi delle aule. L’interno della sala di lettura con vista sul giardino.
Schizzi preliminari di progetto
IL PROGETTO DI MAURICIO
ROCHA E GABRIELA CARRILLO
PER LO STUDIO DELLA CELEBRE
FOTOGRAFA MESSICANA
GRACIELA ITURBIDE
Su un terreno di 7 x 14 metri nel quartiere storico di Coyoacan, in uno dei rari luogi di Città del Messico dove un intricato e incredibile sistema di vicoli rende difficoltoso se non impossibile l’accesso alle auto, si eleva un piccola torre di soli tre livelli. Un solido pezzo di argilla dall’involucro decostruito attraverso finissime trame, rese possibili da impercettibili tiranti in acciaio. All’interno, tre piani di legno, cemento e marmo si estendono da un lato all’altro, creando una coppia di patii a tripla altezza,
trasformati in giardini. Le trame di facciata modulano e ordinano la luce solare, che cambia continuamente durante il giorno, dialogando con i materiali e creando, fatto singolare per uno studio di fotografia, una calda e incredibile atmosfera domestica. Gli spazi di servizio, le connessioni verticali e una grande libreria sono raggruppati in un unico elemento verticale talmente integrato nelle pareti da scomparire nel volume principale in mattoni. Ciò che colpisce di quest’opera è il calore, l’accoglienza, il silenzio,
l’uso coerente, quasi ossessivo, di uno stesso materiale.
La forma e le proporzioni di questo edificio hanno permesso di eliminare virtualmente la presenza del cemento, rendendo il mattone quasi autoportante, in un’alternanza di massa e vuoto tale da trascendere la materia stessa con la quale è costruito.
E’ una sorta di scrigno che racchiude e protegge l’opera della fotografa messicana Graciela Iturbide.
Rinforzo orizzontale inserito nel muro con un piatto in acciaio da 2x3/16 di pollice (=50.8x4.7625 mm)
Rinforzo verticale inserito nel muro con tiranti in acciaio da 3/8 di pollice (=9.525 mm) collegati alle fondazioni
Parete in mattoni da cm 3,5x20x28
Controventatura in cemento con resistenza 250 kg/cm, trave di fondazione in c.a. cm28x100, armato con tondini di acciaio da 3/8 di pollice (=9.525 mm)
Dettagli dell’involucro in mattoni dove è visibile il reticolo di rinforzo e controventatura in sottili tondini di acciaio.
A sinistra, piante dei piani dell’edificio dove è visibile la compartimentazione tra l’ambiente dello studio e lo spazio dedicato a connessioni verticali e vani di servizio.
Vista di uno degli ambienti interni dove è visibile la raffinata trama di elementi in laterizio.
Nome del progetto Estudio Iturbide
Progetto Architettonico Mauricio Rocha (Taller | Mauricio Rocha), Gabriela Carrillo (Studio Gabriela Carrillo)
Area di Progetto 162 mq
Luogo Barrio del Niño Jesús, Coyoacán, Ciudad de México, México
Cronologia 2012 - 2017
Foto Rafael Gamo
MONTE ROSA 91, MILANO
LA RISTRUTTURAZIONE TRASFORMA IL PROGETTO DI RENZO PIANO PER IL SOLE-24 ORE IN UN COMPLESSO MULTI-UTENTI E VALORIZZA IL CARATTERE PUBBLICO DEL CONCEPT DELLE ORIGINI
Il complesso visto dall’esterno e la scala che dall’atrio conduce alla piazza interna. Foto ©Enrico Cano. A sinistra, sezione trasversale, ©Rpbw courtesy Axa Im Alts.
Sintesi felice di progettazione multidisciplinare in cui la tecnologia si fonde armoniosamente con l’oggetto architettonico, al momento della sua inaugurazione nel 2003 il complesso del Sole-24 Ore in via Monte Rosa, prima opera di Renzo Piano a Milano, rappresentò una pietra miliare della moderna architettura della città e diede un forte impulso a quel processo di riconversione di ex-edifici industriali proseguito con successo negli anni successivi. Concepito come unica grande sede del gruppo editoriale di Confindustria, ben presto parte dei 47.000 metri quadrati commerciali (su una superficie costruita di circa 89.000) venne però ceduta ad altre società e la conseguente necessità di ripartizione degli ambienti, non governata a livello progettuale, ridusse l’efficacia dei sistemi, specie impiantistici. D’altra parte anche il piano di manutenzione, in parte disatteso, contribuì al precoce invecchiamento dell’edificio. La ristrutturazione, progettata sempre dallo studio di Renzo Piano insieme a un team in
larga parte composto dagli stessi professionisti che avevano lavorato al progetto originario, ha trasformato il complesso, oggi uno degli asset di Axa Im Alts, in un campus multi-utenti abitato da 17 conduttori.
L’intervento, nelle parole dell’architetto Francesco Rovere, senior development manager della società, è stato «un’occasione di riflessione critica sui problemi e sulle potenzialità dell’edificio» e si è risolto nella valorizzazione delle caratteristiche intrinseche dell’architettura e degli spazi, confermando l’attualità delle scelte e delle soluzioni adottate vent’anni fa: la trasparenza e la connessione tra gli interni e la città, l’impianto a ferro di cavallo che racchiude il cuore verde della ‘collina’ alberata, la piazza/agorà interna, il tetto sospeso, la qualità dei materiali e i sistemi impiantistici ancor oggi evoluti, come il sistema di condizionamento a ‘travi fredde’ con i relativi vantaggi sia in termini costruttivi sia per quanto riguarda il comfort degli occupanti.
Abbiamo avuto la fortuna di ricostituire gran parte del team originale, a partire dall’architetto Renzo Piano e molti altri che avevano lavorato poco più di vent’anni fa
Francesco Rovere
CREDITI
Località via Monte Rosa 91 Milano
Committente Axa Im Alts
Progetto architettonico Renzo Piano Building Workshop
Team Rpbw Elisabetta Trezzani, Simone Lafranconi (partner and associate in charge) con K. Joyce, L. Giordano, S. Eichner e M. Cecchetto
Direzione lavori Pro Iter, ing. Giorgio Ceruti
Project management J&A Consultants
Progetto strutture Ceas
Progetto Impianti Deerns
Prevenzione al fuoco Gae Engineering
Paesaggio Ag&p
Superficie costruita 89.000 mq
Gla 47.000 mq
Cronologia 2019-2023
A livello di volumi e configurazioni ben poco è cambiato: essenzialmente, la sostituzione della volta metallica che concludeva la ‘collina’ verso la piazza interna con un nuovo volume vetrato di uffici su due livelli, e la demolizione e ricostruzione della mensa, spazio ora occupato da un ristorante, e della sala conferenze. A livello di impianti la parte meccanica, la distribuzione del clima e i sistemi di ombreggiamento sono rimasti pressoché invariati, mentre l’implementazione delle pompe di calore elettriche ha portato a un risparmio energetico stimabile nel 40 per cento rispetto ai consumi precedenti. Completamente rifatti gli impianti elettrici e i cablaggi digitali, che fanno di Monte Rosa 91
il primo complesso ristrutturato d’Italia certificato WiredScore Platinum.
Valorizzata anche la dimensione urbana del progetto: oggi il complesso si apre al quartiere con un ristorante e un nido di infanzia che affacciano sulla piazza/agorà interna, con un auditorium da 250 posti che verrà usato anche per incontri pubblici, con una palestra e con servizi commerciali affacciati su strada tra cui una libreria e un’agenzia di viaggi ■
Pianta del piano terra (©Rpbw) e particolare dell’ultimo piano di uno dei tre edifici. Foto ©Enrico Cano.
Cushman & Wakefield
Il Project & Development Services Team di Cushman & Wakefield, guidato da Lamberto Agostini, è composto da architetti, ingegneri e interior designer con un forte knowhow architettonico e tecnico, in grado di comprendere e interpretare esigenze e necessità del cliente e gestire l’intero processo di realizzazione, come dimostrato dall’intervento per la nuova sede di Giuffrè Francis Lefebvre. Attualmente il dipartimento, da oltre 20 anni impegnato nello sviluppo di spazi ufficio, retail e siti industriali, è composto da più di 40 professionisti esperti nella gestione dell’intero processo di sviluppo del progetto: dagli studi di fattibilità al completamento dei lavori. Da sinistra: Lamberto Agostini, Eleonora Bellini, Eleonora Prassino, Paola Migliavacca.
PER LA SUA NUOVA SEDE
LA CASA EDITRICE GIUFFRÈ
FRANCIS LEFEBVRE HA
SCELTO IL COMPLESSO DI
RENZO PIANO. IL PROGETTO
DI INTERNI È DI CUSHMAN & WAKEFIELD
Nuovi modelli operativi e di lavoro in Monte Rosa 91
Per la sua nuova sede Giuffrè Francis Lefebvre, una delle principali realtà italiane nel campo dell’editoria professionale, ha scelto una posizione privilegiata e luminosa: quasi 2.000 mq all’ultimo piano dell’edificio –dei tre che formano il complesso di Monte Rosa 91 – che affaccia direttamente sulla via omonima. Il Project & Development Services Team di Cushman & Wakefield ha supportato la casa editrice sin dalle fasi iniziali del progetto tracciando le linee guida di un modello operativo che ha portato alla defi-
nizione del layout e alle soluzioni di allestimento dei nuovi uffici. Attraverso il servizio di Workplace Strategy è stata individuata la crescente importanza delle attività di comunicazione e collaborazione nella gestione del day-to-day business di Giuffrè, in particolare con clienti e collaboratori esterni. Grazie alla rinnovata policy di remote working e quindi alla riduzione del numero di postazioni, è stato infatti possibile portare al centro del modello la comunicazione, la collaborazione e la ri-energizzazione, con i rispettivi spazi
Cardex, società che opera da più di vent’anni nel campo del contract di arredo per gli spazi del lavoro, è la sintesi della collaborazione tra due architetti milanesi, Pietro Carullo e Paolo Della Salda. È una realtà dinamica e originale nella quale la contaminazione di idee, esperienze e persone hanno generato un nuovo modo di progettare e vivere gli spazi, secondo i nuovi paradigmi degli ambienti del lavoro e i principi del
comfort e della sostenibilità. Con un pull di aziende partner, leader nel campo dell’interior design e del contract, Cardex si affianca a studi di architettura e ingegneria, progettisti e aziende per fornire supporto in qualsiasi fase della progettazione e proponendo specifiche soluzioni d’arredo per ogni tipologia di uffici, spazi collettivi di accoglienza, informali e outdoor. www.cardex.it
Nella pagina accanto, i principali spazi di interazione con clienti e studenti: il digital hub e la sala training. A destra l’open space è corredato da aree con grandi tavoli dedicati alla collaborazione.
specifici, nel rispetto del fabbisogno spaziale convenuto con il cliente.
Lo spazio è stato suddiviso in due principali aree funzionali: una dedicata all’accoglienza dei clienti e un’area operativa destinata ai dipendenti e collaboratori. La creazione di un’area di rappresentanza che simboleggia l’evoluzione del prodotto, dall’editoria tradizionale alla nuova editoria digitale, è il fulcro dell’intervento. Il visitatore viene accompagnato in uno spazio digitale dai volumi iconici di Giuffrè raccolti all’interno di una libreria su misura. Il Digital Hub, con l’ampia gradonata e il led wall è l’ambiente nato per creare il parallelismo tra classico e contemporaneo, fisico e digitale. L’elevata specializzazione dell’attività editoriale di Giuffrè ha poi reso necessaria la creazione di una sala training: di dimensioni generose, pensata per ospitare corsi formativi in collaborazione con scuole e clienti.
Le attività di lavoro quotidiane si articolano invece attorno al pozzo di luce centrale. Qui gli spazi sono contraddistinti da postazioni di lavoro condivise, lockers, sale riunioni di diversa dimensione, phone booths, aree di collaborazione di varie tipologie. Un’ampia area break si contrappone in pianta al Digital Hub: questo spazio è dedicato ai dipendenti dove, oltre ad una zona pranzo delimitata da pareti vetrate, troviamo un’area lounge con corner ludici (calcetto, ping pong), acoustic pod, alcove e un ampio tavolo contornato da una libreria ■
L’ingresso dell’ufficio all’ultimo piano è caratterizzato da una reception che conduce al digital hub. Il visitatore viene accompagnato dai volumi storici di Giuffrè raccolti all’interno di una libreria su misura.
Per i nuovi uffici di Giuffrè Francis Lefebvre sono state scelte le moquette Milliken di Liuni. La localizzazione delle differenti collezioni è stata studiata per esaltare le soluzioni architettoniche e i materiali che definiscono le varie aree. In aggiunta, i pattern a motivi geometrici con colori luminosi differenziano le aree di collaborazione da quelle operative e di rappresentanza. Oltre all’aspetto estetico, le pavimentazioni di Liuni si
contraddistinguono per le loro caratteristiche in termini di durata, prestazioni acustiche e di sostenibilità. Quest’ultima si traduce nell’uso di filati Econyl (made in Italy) che recuperano le reti da pesca abbandonate, e nella scelta di backing con un’elevata percentuale di contenuto riciclato. Degna di nota la gamma di certificazioni ottenute.
www.liuni.com
Nell’ufficio è prevista una zona lounge diffusa in cui i dipendenti possono lavorare e rilassarsi, usufruendo di aree ricreative. A destra il coffee corner dedicato alle sale training.
Grande attenzione è stata riservata all’acustica, negli spazi dedicati al lavoro e alle pause come l’ampia area break.
CREDITI
Località Milano
Committente Giuffrè Francis Lefebvre
Workplace strategy, design e project management Cushman & Wakefield
Project Supervisor Paola Migliavacca
Design Lead Eleonora Prassino
Designer Eleonora Bellini
Workplace Specialist Filippo Cerqua
Progettazione Impianti Pro-tec Milano
Superficie 1.900 mq
Fine lavori Settembre 2023
Arredamenti Cardex, Ferrari Arredamenti
Pavimenti Liuni
Illuminazione Hi Lite
Foto Pietro Agostini
› ARCHIWORKS
Abbiamo proiettato il cliente verso il futuro progettando lo spazio fisico in linea con le necessità di business e del proprio modello operativo
HI
L’illuminazione è uno dei principali elementi della progettazione degli spazi condotta da Cushman & Wakefield, che per le scelte illuminotecniche è stata supportata da Hi Lite Next, società di consulenza specializzata in illuminazione, domotica e audio-video negli ambiti residenziale, terziario e contract.
Nelle aree di rappresentanza e nelle sale riunioni
Filippo Cannata
Dopo la formazione presso il GE Lighting Institute di Cleveland e il Politecnico di Darmstadt Filippo Cannata (Brescia, 1962) apre il proprio studio lavorando tra gli altri con Sottsass, Mendini, Portoghesi, Fuksas, Boeri e l’artista Mimmo Paladino. Al centro della sua ricerca l’uso emozionale e poetico della luce, intesa anche come strumento per il benessere dell’uomo. Tra i progetti di lighting design in corso il parco della Reggia di Caserta, il museo di Capodimonte a Napoli, la torre Unipol e il villaggio olimpico a Milano. www.cannatalight.it
di Filippo Cannata
La luce, eterna meraviglia, che sia naturale o artificiale, plasma il nostro benessere fisico e psicologico in ogni istante del giorno e della notte, svelando la realtà circostante e connettendoci al mondo. A livello internazionale, gli straordinari sviluppi nelle diverse discipline dedicate al benessere dell’uomo e dell’ambiente rivelano un crescente interesse e una diffusione graduale ma costante della cultura della luce.
In Italia, nonostante il riconosciuto legame tra luce e benessere, la figura del professionista della luce stenta ad emergere, sottolineando la necessità di una nuova prospettiva. Attraverso l’integrazione di elementi sensoriali e tecnologici, oggi possiamo creare esperienze che si intrecciano con le emozioni, favorendo una connessione con una varietà di stati sensibili-affettivi. La luce non è più solo un elemento
visivo, ma un’esperienza, l’anima che trasforma lo spazio. La luce diventa la voce dell’architettura. Questo spinge il Lighting designer oltre il dominio visivo, trasformandosi in ‘Sense designer’. Per garantire un ambiente di qualità, è cruciale considerare come gli individui vivono gli spazi, andando oltre le necessità tecniche dell’illuminazione. Il modo di vivere e di abitare sta cambiando con l’accelerazione tecnologica e i cambiamenti sociali. In quest’ottica, richiedere solo la comprensione delle esigenze attuali è riduttivo. Dobbiamo sviluppare una visione in grado di anticipare le necessità future. In questo scenario dinamico, è essenziale abbracciare il cambiamento e cogliere gli stimoli provenienti da molteplici discipline.
La chiave per una progettazione architettonica di successo risiede nella contaminazione di saperi e
Due installazioni luminose di Daan Roosegaarde. A sinistra Spark, scintille di luce composte da materiali biodegradabili fluttuanti nell’aria. Foto ©Roberto Conte.
Sopra, Urban Sun realizzata nel 2021 a Rotterdam, una luce con una lunghezza d’onda di 222 nanometri (a destra dettaglio) in grado di abbattere i virus. Foto courtesy Daan Roosegaarde.
nell’adozione di un approccio multidisciplinare. Per raggiungere questo obiettivo, diventa indispensabile instaurare un dialogo profondo e continuo con l’industria e l’ambiente accademico. Noi, custodi del design italiano, dobbiamo rivoluzionare il paradigma con cui siamo abituati a progettare, arricchendo la nostra eredità e spingendoci oltre i confini dell’innovazione e della creatività.
Davanti a noi abbiamo infinite possibilità di creazione e scoperta, ed è giunto il momento di cogliere queste intuizioni e trasformarle in realtà concrete, consapevoli che ogni segno tracciato sarà un passo verso la realizzazione di un sogno ■
Una lampada disegnata per un hotel, poi messa in produzione in cooperazione con Lichtstudio racconta molto di Noa: della cura per tutti gli elementi progettuali e dello sguardo sempre attento alla contemporaneità
ARCO, HOTEL MONASTERO ARX VIVENDI Silente, il
Gli apparecchi sono studiati nelle versioni piantana, a sospensione, in origine utilizzata per illuminare la grande tavolata dell’ex refettorio e a parete, come lampada singola o con luce doppia. Quest’ultima tipologia è particolarmente adatta per esaltare volte e soffitti storici.
Foto Hotel Monastero Arx Vivendi ©Alex Filz. Foto lampade Silente ©Camilla Cappelli.
Nella pratica progettuale dello studio Noa emerge frequentemente il lavoro sviluppato su diverse scale: dall’architettura all’interior design, fino all’arredo. Ne è un esempio l’intervento per l’hotel Monastero Arx Vivendi ad Arco, sul lago di Garda, che ha interessato un convento di clausura dismesso risalente al XVII secolo. Gli spazi monumentali del monastero sono stati convertiti in un hotel senza perdere le atmosfere delle antiche celle monacali e il senso di pace e meditazione del giardino dove sorge la nuova spa. Per il progetto, Noa ha disegnato e realizzato tre arredi su misura in collaborazione con aziende esterne: un set di lampade e un tavolo con seduta.
La risonanza del progetto e l’entusiasmo degli ospiti
sono stati tali da spingere lo studio a riprodurre questi pezzi di design, che ora compongono la collezione Silente, e renderli disponibili per l’acquisto sul proprio sito.
Le lampade, sviluppate e prodotte tra Alto Adige e Veneto in cooperazione con l’azienda Lichtstudio, sono in acciaio zincato verniciato a polvere nero e caratterizzate da linee dal forte taglio contemporaneo e da un ampio piatto circolare su cui si innesta la lampadina a vista. Gli apparecchi ricordano il cappello ecclesiastico Saturno, in un emblematico gioco di rimandi rispetto al contesto per il quale sono stati creati.
Un nastro luminoso e flessibile si snoda tra le siepi e delimita i confini di un giardino segreto nel cuore di Milano. Altri cerchi di luce illuminano le sedute disegnate attorno agli alberi
Località Milano
Progetto architettonico e di paesaggio
Parisotto + Formenton
Light designer Fulvio Baldeschi
Light Company
Corpi illuminanti QU Ondaled
Realizzazione 2023
Il giardino della residenza milanese e dettagli della barra flessibile Ondaled. Foto ©Pietro Savorelli.
Nel centro di Milano, in uno dei tanti giardini nascosti alla vista dei passanti, QU ha realizzato un sistema di illuminazione dalla forte valenza emotiva. In collaborazione con lo studio Parisotto + Formenton e con il lighting designer Fulvio Baldeschi di Light Company, è nato un concept suggestivo che ha come denominatore la circolarità dei segni. Si chiama Ondaled ed è l’elemento ricorrente che valorizza gli spazi outdoor ed esprime l’approccio concettuale dell’azienda nel realizzare un sistema di illuminazione fruibile e coinvolgente. Un lungo nastro luminoso e flessibile, a stretto contatto con piante e siepi, delinea i confini del giardino dentro il quale si sviluppa una corte elegante e minimalista: un filo che abbraccia lo spazio esterno nella sua interezza creando profondità ed esaltando al tempo stesso le
diverse varietà di piante che concorrono a creare il profilo naturale del giardino.
All’interno della corte, cerchi di luce illuminano i sistemi di seduta intersecandosi con gli alberi e creando giochi di luce sul terreno.
Una soluzione che permette di vivere l’esterno in modo diverso godendo della natura attraverso una luce soffusa ed emozionale.
Il bovindo, che si affaccia con imponente eleganza nel giardino, è un elemento che contraddistingue questa proprietà, di cui è possibile godere la bellezza sia all’interno che all’esterno.
Piante e luci si fondono regalando un’esperienza unica e mutevole sia di giorno che di sera, con suggestioni che cambiano se ammirate dall’interno o vissute dagli spazi esterni.
Ondaled è una barra flessibile resinata progettata e prodotta da QU per offrire una sorgente luminosa in grado di adattarsi alle architetture esistenti, murarie o paesaggistiche, e fondersi con esse per illuminare e al tempo stesso creare suggestioni.
Dotata di grado di protezione IP68, Ondaled viene prodotta in differenti colorazioni di resina e guaina pvc, ed è personalizzabile su richiesta per incontrare ogni genere di esigenza. Disponibile in più modelli, Ondaled è proposta nelle versioni High Top con curvatura parallela alla superficie emittente; High Side, con direzione di curvatura ortogonale rispetto alla superficie emittente; Midi Top, dalle dimensioni estremamente contenute e con direzione di curvatura parallela alla superficie emittente; Midi Side sempre di dimensioni contenute e con direzione di curvatura ortogonale.
Barra flessibile resinata da incasso con grado di protezione IP68 e direzione di curvatura parallela rispetto alla superficie emittente.
Disponibile in differenti colorazioni di resina e guaina pvc e personalizzabile per integrarsi perfettamente all’architettura esistente.
Ondaled è una soluzione che offre innumerevoli spunti alla creatività sposandosi con naturalezza al design indoor e outdoor esistente e garantendo eccellenti risultati nello svolgere la propria funzione primaria di sorgente luminosa discreta ed emozionale.
www.qu-lighting.com
In un’enoteca con cucina all’interno di un palazzo storico del primo Novecento milanese l’illuminazione riesce a creare un’atmosfera sosfisticata ed elegante che valorizza dettagli, finiture e accostamenti
Whisper è una lampada da tavolo ricaricabile in alluminio, solida con uno stelo che dona slancio e leggerezza. Dimmerabile e con diverse tonalità di luce, si accende/spegne con un semplice tocco. Dimensioni 96 x 340 mm.
Tow, acronimo di The Odd Wine, è un’enoteca con cucina situata in via Losanna a Milano, all’interno di un palazzo storico del primo Novecento. Per creare quella speciale atmosfera, sofisticata ed elegante, Matteo Lattuada e Irene Nocerino di Studio Latino hanno posto particolare attenzione all’illuminazione, ai dettagli delle finiture e all’accostamento dei materiali.
L’illuminazione è gestita attraverso 3 interfacce Ble che controllano diverse aree. La scelta è stata fatta per l’estrema semplicità di gestione dell’impianto che ha permesso di evitare il passaggio di altri cavi e per la facilità di utilizzo della app e del sistema Quick Ble. Al piano inferiore, alcuni accenti luminosi gestiti dalla terza interfaccia, sono dovuti a incassi Laser che sono installati sul soppalco e che distribuiscono la luce sull’area di passaggio; sui tavoli in vetro, bronzo e acciaio che dialogano con le forme morbide delle panche in velluto rosa, le lampade Whisper color champagne offrono una luce gentile e localizzata. Ulteriore elemento di flessibilità nella gestione della luce è l’uso della pulsantiera e di un gateway per il collegamento da remoto.
Elena RioloLocalità Milano
Anno 2023
Cliente Tow
Progetto architettonico Studio Latino (Matteo Lattuada, Irene Nocerino)
Progetto illuminotecnico Studio Latino
Foto Fabio Di Carlo, Nicolò Panzeri
Prodotti iGuzzini
Laser Ø25
View speciali 2700K
Underscore 15
Bos speciali 2700K
Whisper
Quick Ble
Al piano inferiore, sui tavoli in vetro, bronzo e acciaio le lampade Whisper offrono una luce gentile e localizzata.
Whisper è un classico contemporaneo: l’abat-jour ricaricabile senza fili dalla tipica flessibilità funzionale, ideale sia per l’abitare che per l’hospitality. Una forma essenziale costruita su proporzioni slanciate, con la funzione interruttore/dimmer touch integrato nella sommità del paralume. Il controllo touch garantisce una gestione ideale della temperatura (2200K; 2700K; 3000K) e dell’intensità della luce. Unica concessione al decoro, l’anello alla base del paralume in tre versioni colore – nero, bianco, champagne – da abbinare al corpo bianco, nero, rosso o champagne. Leggera, portatile, è adatta all’uso indoor e outdoor.
Il progetto di design invece si concentra sulla sostenibilità. Il corpo di Whisper è principalmente in alluminio riciclato, materiale ecologico per eccellenza, riciclabile all’infinito. È un oggetto solido e stabile, duraturo, che però si disassembla facilmente per attenersi a un life cycle razionale e programmato.
www iguzzini.com
La serie Linea di Vimar si inserisce in modo naturale con il suo design pulito ed essenziale tra gli arredi di Meridiani, nello showroom ospitato all’interno di un edificio ottocentesco milanese. Le placche e i tasti, scelti nella variante bianca, sono caratterizzati dalla planarità assoluta e da profili distintivi. La leggerezza delle loro forme discrete si integra con armonia negli spazi eleganti e raffinati. Gli installatori elettrici Stefano Pavesi di Pavesi Impianti e Roberto Merati di R&L 95 affermano che «la sfida è stata quella di riuscire a realizzare un progetto in cui i prodotti e le soluzioni si inserissero in maniera naturale all’interno degli ambienti».
L’illuminazione gioca un ruolo fondamentale per poter
La serie Linea di Vimar è qui gestita attraverso il sistema domotico By-me Plus per esempio impostando scenari specifici per l’illuminazione.
vivere in modo immersivo l’esposizione. Per gestire al meglio l’accensione e l’intensità delle luci è stato scelto il sistema domotico By-me Plus, intuitivo e semplice da utilizzare. Tramite l’app View, attraverso smartphone o touch screen bianchi installati con discrezione sulle pareti, vengono gestiti l’accensione e lo spegnimento o l’intensità della luce negli ambienti, creando così le condizioni per una fruizione ottimale degli arredi esposti. L’impianto, in particolar modo per quanto riguarda l’illuminazione, è quindi funzionale allo spazio, proprio per fare risaltare ogni dettaglio, considerando anche che si tratta di un ambiente in continuo divenire e soggetto a periodiche modifiche di layout e d’arredo.
«L’obiettivo era creare una famiglia estremamente flessibile nelle modalità di impiego e modulare nelle configurazioni, così da poter incontrare le esigenze di illuminazione di qualsiasi spazio architettonico». Così Valerio Cometti +V12Design racconta la lampada Tee Outdoor disegnata per Masiero: sfere luminose in polietilene per gli spazi all’aperto, animate da un’incisione di linee parallele a spirale. Il decoro sembra conferire ai globi una lenta rotazione. Ad accogliere le sfere sono steli tubolari in metallo a sezione rotonda, verniciati bianchi o color nocciola, alla cui estremità è posto un tronco di cono in metallo. Diverse le tipologie: sospensioni, plafoniere, applique, da terra e da tavolo.
Con la versione Pro è possibile regolare separatamente l’intensità delle due fonti luminose e modulare la temperatura di colore della luce.
Foto ©Oliver Helbig.
Black Flag, il cui nome è ispirato allo spirito ribelle e pionieristico di una celebre band punk rock, è l’ultima creazione nata dalla collaborazione di Flos con Konstantin Grcic: una lampada da parete estensibile in grado di illuminare fino a 3,5 metri dal suo frame. È composta da tre barre orizzontali e da una verticale, pensata per ingombrare il minimo quando è chiusa e illuminare al massimo quando è aperta. Tutti gli elementi estensibili montano fonti luminose dirette verso l’alto, mentre il terzo elemento orizzontale emette luce sia verso l’alto sia verso il basso. Questo garantisce un bilanciamento della fonte di luce principale per il massimo comfort visivo: si tratta di caratteristiche che rendono la lampada uno strumento ideale per illuminare perfettamente un piano di lavoro anche di ampie dimensioni.
1 2
4 3
1. Snake Eiva di Creative Cables è una lampada portatile da outdoor con spina. Grazie ai 5 metri di cavo di cui è dotata, si presta con facilità a diversi utilizzi: arrotolata al ramo di un albero oppure su un pergolato o su una terrazza. Resistente all’acqua, Snake Eiva può essere completa di paralume o con lampadina a vista.
www.creative-cables.it
2. Zephyr, lo chandelier disegnato da Carlo Colombo per Artemide, si basa su una struttura modulare che consente infinite personalizzazioni. Il doppio diffusore cilindrico in vetro trasparente soffiato a mano dalla forma ondulata con texture che alterna strisce trasparenti e opaline racchiude le sorgenti luminose. www.artemide.com
3. Con Knit di Vibia la designer tedesca Meike Harde ripensa il paralume tradizionale dando vita a una sfera leggermente appiattita rivestita di lycra cucita con una tecnologia di tessitura a maglia, che filtra una luminosità intima. La collezione si compone di 5 lampade a sospensione, 3 piantane e 3 lampade da terra in vari formati. www.vibia.com
4. La novità di Lorelux, brand di lampioni in plastica riciclata, è Cloche Disegnata da Alessandro Stabile, la lampada fa parte della collezione Contemporary coordinata da Raffaella Mangiarotti. La superficie illuminante all’interno della cupola impedisce la retrodiffusione, combattendo così l’inquinamento luminoso.
www.lorelux.eu
5
5. Paralela, il sistema modulare Axolight disegnato dallo studio catalano Nahtrang, è composto da tubolari luminosi in vetro borosilicato e cinture di connessione in materiale riciclato effetto metallo.
L’apparecchio è disponibile in versione sospesa orizzontale e verticale, da tavolo, da terra e da muro con misure differenti e in cinque colorazioni.
www.axolight.it
6. Magia di Davide Groppi è il nuovo sistema di illuminazione a sospensione componibile e adattabile a seconda delle diverse altezze degli ambienti, che può generare luce diretta e indiretta con il modulo orientabile a 360°. Attraverso l’effetto della lente convessa del modulo la parte di emissione della luce è celata. Design Michele Groppi
www.davidegroppi.com
7. I nuovi downlight Evo di Linea Light Group sono caratterizzati da un’illuminazione uniforme e potente. Il sistema permette infinite combinazioni tra filtri, ottiche, temperature colore, potenze e cromie del frontale. Il 61% della materia con cui sono costituiti deriva da materiale riciclato; tutte le parti che lo compongono sono facilmente smontabili e quindi sostituibili e riciclabili www.linealight.com
8. Syphaspot di Catellani & Smith è lo scenografico chandelier modulare per interni che unisce la fonte luminosa 24V di Spot Light alla superficie irregolare della sfera di vetro Syphasfera. Cavi sottili sorreggono i corpi illuminanti, disponibili in molteplici composizioni, con basi di dimensioni e finiture diverse e su misura. www.catellanismith.com
9. Ray del designer danese Christian Flindt per Platek, è un’applique di dimensioni contenute per outdoor, la cui luce diffusa si sviluppa a cono, mono o bi-direzionale per garantire un’illuminazione d’effetto. Le forme concave e convesse delle superfici, pur mantenendo l’ottica incassata per limitare l’abbagliamento, facilitano il deflusso d’acqua. www.platek.eu
10. Ispirata al fenomeno astronomico di cui porta il nome, Comet F67 di Fabbian progettata da Signorotto+Partners è costituita da due elementi: il punto luce e il paralume allungato. Il diffusore è una sfera di vetro soffiato che viene avvolta da un paralume a U di alluminio verniciato antracite, bianco, bronzo, oro regale o Corten. www.fabbian.com
11. OptecNew di Erco rappresenta la nuova generazione dei faretti Optec: apparecchi che fanno parte di un ecosistema con diverse misure, opzioni per la distribuzione della luce, per la tonalità di luce e il controllo, e che sono quindi utilizzabili in molti campi di applicazione. Sono testati per una durata d’uso di 20 anni. www.erco.com
12 . La lampada da tavolo Halley di Stilnovo, disegnata da Richard Sapper nel 2005, è riproposta mantenendo inalterati i principi di funzionamento. Grazie a 6 snodi e 360 0 di rotazione per ciascuno, la lampada può muoversi liberamente. Basta avvicinare la mano per accenderla, spegnerla e regolarne l’intensità luminosa.
www.stilnovo.com
13. Giogali di Vistosi ideato da Angelo Mangiarotti nel 1967, è un sistema d’illuminazione basato sull’elemento del gancio componibile. Il vetro plasmato con un processo manuale, consente di modulare l’oggetto, disponibile in diverse versioni: sospensione, lampada da tavolo, da parete, da terra, da soffitto. www.vistosi.it
14. Con le sue versioni sospensione, parete, soffitto e terra indoor/ outdoor, la vasta famiglia Dip, progettata da Hangar Design Group per Panzeri, porta la luce dove è richiesto attraverso la combinazione di linea, arco e cerchio. Nell’immagine, le versioni a soffitto e a sospensione con cavo di alimentazione regolabile in altezza. www.panzeri.it
15. Per la sua mostra personale alla Basilica Palladiana di Vicenza nel 1999, Álvaro Siza progetta Lorosae. Una lampada con un design senza tempo ora editata da Nemo, caratterizzata da vetro traslucido in differenti colori e finiture pure e brillanti; la parte interna bianca del diffusore preserva invece il colore naturale della luce. www.nemolighting.com
16. L’applique da parete e da soffitto Sottile di Cini&Nils si caratterizza per lo spessore di soli 8 mm e per il corpo in alluminio fresato. La distribuzione indiretta e asimmetrica della luce crea un’atmosfera calda e accogliente. La lampada è disponibile in sei diverse colorazioni e in due dimensioni. www.cinienils.com
Guidato da ragioni economiche, lo sviluppo lineare (energia e risorse in entrata, rifiuti e emissioni in uscita) che dall’inizio del xx secolo ha caratterizzato le città europee è diventato insostenibile dando origine, insieme alle mutate condizioni climatiche, a crisi sempre più acute. La risposta, è la tesi del libro scritto da Marteen van Tuijl e Tom Bergvoest, fondatori di Temp. architecture.urbanism, con l’aiuto di un gruppo di giovani ‘reporter’, è quella di adottare strategie circolari sia in architettura, riqualificando ciò che esiste anziché sostituirlo, sia nell’organizzazione del tessuto urbano. Ma si tratta di processi che non possono essere pianificati a tavolino, come in passato, con masterplan tanto vasti quanto rigidi nell’adattarsi a condizioni che al momento
della stesura sono imprevedibili, quanto invece per passi successivi, un gradino dopo l’altro, non importa la scala o il tempo. Il progetto consisterà nel coordinamento delle diverse azioni, coinvolgendo così gli stakeholder di ogni singolo sviluppo, che avranno maggior voce in capitolo sul processo progressivo e complessivo di adattamento della città. 36 gli strumenti –organizzativi, legali, finanziari e spaziali – che il libro individua, sistematizzando le diverse esperienze già in atto, raccolte e ben descritte nella seconda parte del volume e relative a 15 città europee di tutte le dimensioni, da Parigi al villaggio svedese di Sikhall Vänersborg, che conta solo 1.385 abitanti, dove nel 2022 Naturvillan ha realizzato abitazioni completamente off-grid.
L’albero dell’architettura
Maurizio Oddo
LetteraVentidue, Siracusa, 2023 868 pp, 69 euro
ISBN 978-88-6242-381-6
Come ci ricorda Stefano Mancuso la foresta – e dunque gli alberi – è stata la casa dell’uomo per circa 20mila generazioni e il verde è il colore di cui il nostro occhio riconosce il maggior numero di sfumature. È quindi una relazione ancestrale quella che Maurizio Oddo, ordinario di architettura all’Università di Enna Kore, ricerca nel rapporto tra gli alberi e l’architettura. Con un approccio critico e storico Oddo dà vita a un lavoro monumentale e prende in esame 200 casi di studio tentando una sistematizzazione delle diverse possibili relazioni compositive, formali e spaziali tra l’architettura e l’albero: alberi come parte del contesto; architetture che li racchiudono; spazi sospesi come le case
The Flexible City
Tom Bergevoet & Maarten van Tuijl Nai010 publishers, Rotterdam, 2023 224 pp, ill, En, 34,95 euro
ISBN 978-94-6208-832-0
sull’albero; architetture-metafora dell’albero; boschi inquadrati dalle aperture; terrazze, tetti e facciate alberate (prendiamo volentieri le distanze da quanto Oddo scrive a proposito dei ‘boschi verticali’); alberi che scontrandosi con la planimetria determinano, contribuendo così a definirlo, la modifica del progetto.
Il volume, arricchito da una doppia introduzione, a firma di Cherubino Gambardella e di Giuseppe Barbera, intreccia diversi filoni narrativi, include un’antologia di scritti di studiosi del progetto e della teoria di architettura, tra i quali Lorenzo Degli Esposti, Lorenzo Netti, Mario Pisani, Fausto Provenzano e si completa con una sezione di disegni di celebri autori.
Già in uso in molti settori industriali, la stampa 3D additiva di parti di edifici o di intere architetture promette di rivoluzionare anche i processi di cantiere. Per gli architetti, saltare direttamente dal progetto anche complesso alla costruzione solo con maestranze specializzate è un sogno, ma non sappiamo se e quante possibilità abbia di concretizzarsi. A dire il vero sappiamo ancora troppo poco di questo tipo di stampa, forse nemmeno i materiali che si possono estrudere, che non sono solo plastica o argilla allo stato liquido ma anche cemento e metallo. Il libro di Dom Publishers curato da Kostas Grigoriadis e Guan Lee, architetti e ricercatori alla Bartlett School of Architecture, ci viene incontro con un’analisi aggiornata all’oggi delle potenzialità e dei limiti di questa nuova tecnologia. È un autentico manuale che, partendo dall’analisi approfondita di casi di edifici e componenti già realizzati nel mondo illustra sia la libertà di progettazione che è possibile raggiungere affidandosi a questo metodo sia le maniere in cui
si possono usare, e combinare tra loro, differenti materiali. Un ulteriore aiuto arriva dall’esplicativo corredo iconografico di ogni caso esaminato. Il libro prende infine in esame, con atteggiamento scientifico e non ideologico, gli aspetti ambientali legati alla stampa 3D: il possibile risparmio di risorse, l’energia impiegata e le possibilità concrete di realizzare un’architettura di nuova generazione.
a cura di Elena Riolo
Giardini e terrazzi sono gli spazi più ricercati e amati dell’abitare contemporaneo. In queste pagine una selezione di arredi e complementi studiati nei minimi dettagli.
Belli, resistenti, funzionali.
Isola - Acquarello su carta cotone Alessandra Palazzotto alessandra.palazzottoNARDI
DOGA RELAX E DOGA
TABLE. Realizzato in resina fiberglass a lungo ciclo di vita e completamente riciclabile, il salottino per esterni disegnato da Raffaello Galiotto è formato da una poltroncina lounge e da un tavolino. Il set assolve a molte esigenze: leggerezza, maneggevolezza, impilabilità, facilità di pulizia, resistenza ai normali agenti atmosferici.
www.nardioutdoor.com
CARL HANSEN & SON
E008. La nuova sedia da pranzo disegnata dallo studio viennese Eoos ha struttura in teak non trattato, levigata e assemblata a mano. Progettata per essere utilizzata con o senza il caratteristico rivestimento imbottito resistente agli agenti atmosferici, la sedia può anche essere impilata. Fa parte della nuova serie Embrace Outdoor con il tavolo da pranzo E022 disponibile in tre dimensioni.
www.carlhansen.com
KISSI. La sedia, per in- e outdoor, progettata da Denis Barbiero si caratterizza per lo schienale in corda. Costruita in acciaio e verniciata a polveri per essere protetta dalla corrosione e dai raggi UV, è disponibile in otto colori e può essere completata con un cuscino rivestito con tessuti idonei all’aperto in colori abbinabili alla struttura e alla corda. www.babeld.it
LYXO
RHOR. Il nuovo divano in plastica di LCM Marin Design Studio è formato da un cilindro fuori scala che ne diventa lo schienale, mentre la base è un rettangolo geometrico dallo spessore ridotto. Il progetto si sviluppa intorno a un modulo che si può comporre a piacimento: da lineare il divano può assumere forme sinuose. La collezione si completa di poltrona e tavolino. www.lyxodesign.com
Secondo CMP Design il progetto contiene un aspetto di gratuità, di dono, di dedizione verso chi userà il prodotto, come quando si fa un regalo a una persona che si ama. Gli arredi sviluppati con Pedrali lo confermano.
www.cmp-design.com
Ciò che abbiamo vissuto durante la pandemia è il principale fattore che ha spinto molti a prendersi cura dei propri spazi all’aperto. Nella maggior parte dei casi si tratta di spazi piccoli, terrazzini o porzioni di cortile, ma non per questo meno degni di un giardino, anzi bellissimi luoghi in cui il rapporto intimo con il sole, con una pianta, con un fazzoletto di cielo, assume reale centralità. Ed ecco allora l’arredo come manifestazione della cura di quello spazio. Scelto come funzionale a un bisogno di intimità tra la persona e gli elementi
più prossimi, di cura di sé e del proprio corpo, e perciò libero da necessità ostentatorie. Come per una ricerca di coccole, l’arredo da esterni è diventato più soffice e accogliente. Sembra suggerire un tempo lento, portare al sole un ozio che prima era riservato a un salotto. Di conseguenza il progetto degli oggetti di arredo ha dato crescente importanza ai tessuti e allo studio delle imbottiture, ha distinto nettamente le parti soffici a contatto con la persona dalle strutture portanti, limitando a queste ultime la standardizzazione.
URBANTIME
SEMPREVERDE.040. Il nuovo tavolo picnic del marchio di Diemmebi rappresenta un omaggio allo stare insieme: grazie al piano in metallo di diametro 140 cm e alle quattro panche integrate si possono accomodare otto persone. Le sedute in pietra sinterizzata naturale sono antigraffio e resistenti agli agenti atmosferici.
www.urbantime.it
PEDRALI
GUINEA. Tratto distintivo della poltrona per outdoor di CMP Design sono i braccioli in teak, un legno resistente e tropicale, certificato FSC C114358 e trattato con olio all’acqua. La struttura portante in alluminio è abbinata a una seduta realizzata in rete tessile impermeabile sulla quale appoggia un cuscino removibile. Lo schienale può essere personalizzato con diverse configurazioni: in rete tessile impermeabile, con doghe in alluminio o rivestito in tessuto.
www.pedrali.com
ICON OUTDOOR. La famiglia di sedute disegnata da Marcello Ziliani si completa ora con la nuova proposta destinata agli ambienti en plein air. Alla monoscocca in polipropilene si accompagna la seduta leggermente bombata, sostenuta dalla base in tubolare metallico. La collezione Icon è selezionata nell’ADI Design Index 2023 e quindi candidata al Compasso d’Oro ADI 2024. www.marasrl.it
ARPER
LEAF. La silhouette della collezione ideale per l’outdoor è progettata per ambienti residenziali e contract. Le sedute sono disponibili in versione sedia, anche impilabile, seduta lounge e sgabello realizzati in acciaio verniciato e possono essere completate con un cuscino in poliuretano. La serie, che comprende anche tavoli con piano in Compact hpl, è un progetto di Lievore Altherr Molina. www.arper.com
KETTAL
EOLIAS. La collezione di Antonio Citterio, ispirata all’arcipelago situato al largo della costa siciliana, comprende una vasta gamma di mobili tra cui la serie Eolias Salinas, che presenta una sedia, una poltrona club e una poltrona lounge club realizzate in robusto alluminio con dettagli in vimini intrecciato. Gli arredi sono disponibili sia in versione per interni che per esterni.
www.kettal.com
MOLTENI
COBEA. La sedia con e senza bracciolo, disegnata da Vicent Van Duysen, si caratterizza per lo schienale: un intreccio di nastri in fibra di polipropilene dal finissaggio morbido per garantire l’effetto cotone al contatto. La seduta, in doghe di teak massello, è completata da una cuscinatura personalizzabile nei tessuti e nei colori selezionati da Marta Ferri. www.molteni.it
MILANI
TITANO. Il divano componibile disegnato da Basaglia + Rota Nodari per il nuovo progetto SpazioMilani. La struttura è realizzata in lamiera di metallo intagliata da nove piccoli cerchi, due dei quali diventano le asole dei bottoni in legno di ulivo che fissano i cuscini al telaio. Lo schienale è ricavato dal taglio della base del divano ottimizzando il materiale utilizzato in fase di produzione.
www.sm-milani.com
Marcelllo Ziliani dedica particolare attenzione agli aspetti della sostenibilità, dell’humancentered design e della producibilità agile. Non ama gli assolutismi e le sicurezze incrollabili, gli piace parlare piano e soprattutto ascoltare. Crede che qualsiasi progetto sia un desiderio, una speranza di volo. E crede che prima o poi ogni progetto abbia una possibilità di spiccare il volo, anche solo per poco. www.marcelloziliani.eu
Marcello Ziliani, il progettista impegnato contro la retorica del greenwashing
Stiamo assistendo a una sana contaminazione che ha rotto le barriere che separavano l’indoor dall’outdoor facendo fluire, nei due sensi, elementi tipologici, espressivi e funzionali. In questo scenario noi designer dobbiamo essere capaci di raccogliere la sfida di una progettazione responsabile e innovativa, capace di interpretare e sublimare il desiderio di stare all’aperto soprattutto in termini di una concreta sostenibilità ambientale.
Quello che oggi cambia radicalmente i para-
digmi della progettazione è la pressante istanza di porsi domande serie sulla responsabilità che noi progettisti abbiamo nei confronti delle problematiche ambientali. E lo dico consapevole di quanto questo sia difficile, complesso e faticoso, soprattutto nel momento in cui si vuole evitare di cadere in facili ma colpevoli atteggiamenti di greenwashing.
S CAB
LISA FILÒ NEST. La nuova declinazione della famiglia Lisa Filò disegnata da Marcello Ziliani è una poltroncina per outdoor dalle forme generose adatta come seduta intorno a un tavolo o a un angolo relax. Suo elemento caratterizzante è la fettuccia di corda nautica, intrecciata su telai in acciaio verniciato a polveri per l’ottimale tenuta agli agenti atmosferici.
www.scabdesign.com
TECTONA
EXETER. Il tavolino completa la poltrona Bridge, alleggerita dalla disposizione delle doghe assemblate a traforo. Leggero e facile da spostare, è realizzato in teak massiccio e riprende la stessa disposizione delle doghe della poltrona anch’essa disegnata da Christophe Delcourt.
www.tectona.it
LISSONI OUTDOOR COLLECTION. L’elemento che accomuna tutti gli arredi della collezione è la linearità del disegno. Piero Lissoni si è infatti ispirato allo stile modernista della collezione per esterni disegnata da Richard Schultz nel 1966, qui reinterpretata con struttura in alluminio e motivo microforato del retro dello schienale del divano e della poltrona. www.knolleurope.com
OUTDOOR COLLECTION. La collezione, simile alla linea indoor, mantiene la medesima estetica dalle linee semplici e pulite e offre sempre la possibilità di scegliere tra un’ampia gamma di colori e finiture, cui si aggiungono elettrodomestici e piani di lavoro pensati appositamente per l’utilizzo in esterno: barbecue, piastre, lavelli richiudibili, piani in acciaio o in pietra.
www.verysimplekitchen.com
ATELIER. La linea di cucina outdoor è contraddistinta da forme rigorose, simili a quelle del mondo professionale, e può essere completamente customizzata nelle finiture delle ante, con accenti di colore o l’integrazione di altri materiali. È in acciaio inox, materiale che non subisce gli effetti del contatto con il cloro e le nebbie saline, degli agenti atmosferici, delle alte temperature oltre a garantire la massima igiene e facilità di pulizia. www.abimis.com
FRAME KITCHEN. La cucina workstation disegnata da Salvatore Indriolo è disponibile anche per esterno grazie a un trattamento di cataforesi che previene la formazione della ruggine e consente un’elevata resistenza agli agenti atmosferici. Sono 15 le finiture di colore con top in acciaio inox Barazza. Il sistema può essere dotato di barbecue integrato a gas in inox. www.fantin.com
PROJECT 05. Al centro del progetto di cucina outdoor sviluppato da Carlo Presotto e Andrea Bassanello si trovano l’isola Block, in granito nero assoluto e in finitura millerighe, e il piano operativo Mediterraneo in pietra graphite raw con vasca integrata e piano cottura in acciaio inox. Completa il sistema la madia Sipario, disponibile in diverse modularità.
www.modulnova.it
Il lavoro di Marcel Wanders emoziona, provoca e polarizza, ma non manca mai di sorprendere. Il progettista olandese ha sempre sfidato i dogmi del design, preferendo concentrarsi sulle dimensioni olistiche, poetiche, surreali e archetipiche invece che sul design tecnocratico e su ciò che definisce industrialismo. www.marcelwanders.com
Il design è il linguaggio internazionale delle idee. Pipe nasce e vive da 25 anni su un’idea, un’idea antica, un sistema di tubazioni industriali che corre senza fine attraverso gli impianti industriali e poi nel mondo, magari finendo a casa tua. Un’idea vecchia, non nuova, perché non c’è niente che invecchi più velocemente di quello che viene considerato e proposto come nuovo.
Voglio sempre creare il massimo valore possibile per il periodo di tempo più lungo utilizzando il minor ingombro possibile. In un’epoca in cui si sta intensificando la pressione sulle risorse naturali, spetta al progettista immaginare concetti che affrontino davvero questo tema e il nostro rapporto con queste risorse.
DAMAST
Dobbiamo ascoltare i materiali con rispetto, pazienza e un po’ di fantasia: loro sapranno rivelare la propria saggezza nascosta. Sono convinto che ogni materiale sappia come essere un dono supremo al mondo. Il buon design, quando mobilita un’immaginazione illimitata, dà potere anche a circostanze limitate. Nel dettaglio, Pipe non si propone di essere un prodotto per esterni, ma cerca con successo di trasferire all’esterno il comfort di un vivere ricercato; è infatti realizzato come strumento per una grande sinfonia architettonica, per l’ambizioso soggiorno all’aperto di ognuno di noi. In questo ruolo dà il tono a lunghe e stilose conversazioni felici, con la famiglia e gli amici.
AFRODITE. Il soffione a parete per outdoor in acciaio inossidabile lucidato a specchio è composto da una lastra dalla quale scaturisce un getto a cascata di ben 25 cm di larghezza. Si protende verso l’esterno, incurvandosi, a circa 10 cm dalla parete. Si fissa a muro tramite un unico foro e si completa con il kit Elegance cromato composto da miscelatore incasso, doccia a mano monogetto e flessibile antitorsione. www.damast.it
ABOUTWATER by Boffi Fantini
PIPE. La collezione disegnata da Marcel Wanders per Boffi nel 2000 fa parte dal 2023 del catalogo Boffi Fantini Aboutwater. Composta da molti articoli, dalla rubinetteria ai ganci per asciugamani, alla doccia free standing, la linea si riconosce per la sua inconfondibile maniglia rossa, un segno iconico che evoca l’estetica di manufatti industriali. Nell’immagine, la colonna doccia per l’outdoor. www.fantini.it
DR CEMENTO. Progettata da Marcio Kogan, Mariana Ruzante e Studio MK27, la vasca DR Cemento per outdoor è disponibile in Cementoskin in diverse colorazioni. Realizzata in versione freestanding, senza la struttura esterna può anche essere incassata a pavimento.
www.agapedesign.it
PEPE XL. Dalle linee essenziali, la colonna doccia in acciaio inossidabile, ideale per esterni, centri termali e Spa, è caratterizzata da un corpo colonna autoportante compatto di 2 metri e 38 cm di altezza. Il getto a pioggia è emesso da getti anticalcare direttamente dal braccio doccia che si presenta come prolungamento della colonna stessa.
www.frattini.com
HOOK. Parisotto + Formenton con Natalino Malasorti hanno progettato un innovativo sistema di rubinetteria nato principalmente per l’outdoor ispirato alle tubazioni idriche che un tempo correvano esterne ai muri. La predisposizione a parete dell’impianto idraulico permette di installare le staffe di supporto modulari insieme alla rubinetteria.
www.ceadesign.it
FLEX PERGOLAS. Sono molteplici le possibilità di personalizzazione della nuova collezione di pergole disegnata da José A. Gandía-Blasco Canales in collaborazione con Gensler, tra i principali studi di architettura al mondo. La struttura e i componenti principali sono realizzati in alluminio, disponibili anche con finitura effetto legno.
www.gandiablasco.com
KINEDO by SFA GROUP
HAPPY SPA. La gamma completa di minipiscine con idromassaggio disponibile per l’installazione fuori terra comprende cinque modelli pensati per venire incontro a tutte le esigenze idroterapiche e di spazio. Ogni modello, da due a sei posti, è dotato di un allestimento di serie che semplifica la scelta e offre una soluzione chiavi in mano, comprensiva di tutti i comfort.
www.kinedo.it
Dotazioni Cromoterapia, musicoterapia, copertura termica, telaio autoportante saldato meccanicamente
Rivestimento esterno Due diverse finiture: rattan e color legno U&I
PARÀ
TEMPOTEST STARLIGHT BLUE XL. Il tessuto in pet riciclato in versione grande altezza (325 cm) per la protezione solare è realizzato attraverso un processo sostenibile che permette un risparmio energetico del 60%, il 45% di emissioni in meno di CO2 e una riduzione del consumo d’acqua del 90%. Grazie al recupero elastico e alla resistenza alle trazioni e alle sollecitazioni, il tessuto idro e oleo repellente e antimacchia è ideale per strutture di grandi dimensioni.
www.para.it
Raccolta delle bottiglie in pet
Selezione e lavaggio della materia prima, che viene triturata in piccole scaglie
Fusione della plastica e produzione dei chips
Processo di tintura in massa
Realizzazione delle fibre
Avvolgimento del filo su bobine
Tessitura e finissaggio
Confezione della tenda da sole
CARPET EDITION
DEHOR. Il tappeto, inizialmente pensato per inserirsi in un progetto di interior design, è ideale per ambienti outdoor. Realizzato in polipropilene e viscosa, è in quattro varianti cromatiche – Argento Magnetico, Cool Beige, Grigio Lava, Marrone Gea – che esaltano i decori cuciti a macchina e le alte prestazioni garantite dal filato a treccia. Fa parte della nuova collezione In-outdoor.
www.carpetedition.com
KE
KEPLAN. La pergola in alluminio a tetto piano è nata per integrarsi in qualsiasi soluzione progettuale grazie al suo design minimale. Disponibile sia in versione autoportante sia addossata, la pergola può essere illuminata con un sistema di strip led dimmerabili inseriti nei traversi. Illuminazione e movimentazione del telo a impacchettamento sono regolati da sistemi di domotica integrata.
www.keoutdoordesign.com
IRIS. La collezione di superfici tessili outdoor è composta al 100% da polipropilene intrecciato flat woven. Caratterizzata da particolare resistenza all’acqua e capacità di drenaggio, è disponibile in quattro diverse tonalità ispirate alla natura: Corda, Ecru, Ebano e Stone.
www.radicicarpet.it
VAL CAMONICA OUTDOOR COLLECTION. I tappeti per esterni sono definiti da motivi ripetuti che riproducono l’effetto delle incisioni rupestri, ottenuto grazie alle diverse altezze del materiale fibroso utilizzato. La collezione è realizzata esclusivamente in fibre di PET 100% riciclato, un materiale resistente agli agenti, antistatico, duraturo e facilmente lavabile. www.tapisrouge.it
SOLTIS VEOZIP. Disponibile in 15 colori, il telo per schermature solari esterne deve il suo aspetto trasparente e opaco alla particolare composizione a base di canapa. Le chiusure laterali delle pergole e le tende verticali realizzate con questo tessuto garantiscono eccellente comfort termico, proteggono dal vento e bloccano oltre il 93% del calore.
www.sergeferrari.com
G.T.DESIGN.
RIME. La collezione di tappeti è disegnata da Deanna Comellini, fondatrice e art director del brand, richiamando le sagome delle foglie di felce. Il tappeto, pensato come un elemento da ripetere nello spazio più volte, è realizzato su una traccia fatta a mano in filato tecnico non tossico e sviluppato per resistere all’usura, alla contaminazione batterica e per essere antimacchia. www.gtdesign.it
Paola Lenti è partita nel 1994 da un filo: quello dei tappeti, i primi prodotti lanciati sul mercato realizzati con un’attenzione rigorosa alla qualità dei materiali, sempre alla ricerca di una sintonia speciale tra colori, linee, forme. Oggi l’azienda è una realtà industriale che conta molteplici professionalità – sarti, tappezzieri, intrecciatori, architetti, ingegneri – valorizzando una filiera produttiva interamente italiana. www.paolalenti.it
Quando abbiamo cominciato a lavorare sul tema outdoor esistevano solo prodotti in metallo e plastica: severi, scomodi e con poche varianti di colore e di finitura. Portare il comfort all’esterno è ora un patrimonio di tutti, ma l’esperienza che abbiamo maturato in più di 30 anni di lavoro ci ha insegnato che bisogna tenere in considerazione che indoor e outdoor sono mondi differenti che presuppongono l’uso di materiali dalle prestazioni diverse. Li abbiamo sempre considerati complementari cercando di coordinarli attraverso l’uso di for-
me, materiali e colori. In questo modo abbiamo portato all’esterno la comodità delle sedute per interno e all’interno la praticità informale tipica del vivere all’aperto.
I prodotti per l’outdoor, in particolare, non devono mai togliere importanza al giardino, alla spiaggia, alla terrazza, ovunque siano collocati, ma devono invece servire con eleganza, discrezione e misura. I nostri pezzi non sono sculture, sono pensati per soddisfare le esigenze dell’uomo e per rispettare l’ambiente in cui sono posti.
LINEA. La chaise longue disegnata da Francesco Rota più di 25 anni fa conquista ora gli spazi outdoor grazie alla nuova collezione di tessuti. Nella foto, la seduta con schienale regolabile in tre posizioni è rivestita in Moss: 100% riciclabile, simile a un denso tessuto di spugna, Moss è realizzato a telaio con filati Rope di diversi colori per riprodurre un effetto mélange.
www.paolalenti.it
PERENNIALS
WABI SABI. La nuova collezione di tessuti e tappeti in acrilico 100% tinto in massa è un omaggio all’estetica giapponese che celebra la bellezza dell’imperfezione. La linea di tessuti introduce quattro nuove trame e 19 nuove varianti colore ispirate dalla natura, tutte resistenti allo sbiadimento, alla muffa, ai raggi UV e all’abrasione.
www.perennialsfabrics.com
WATERPROOF. Il nuovo brand con cui Colfert si affaccia sul mercato dell’outdoor presenta una pergola bioclimatica in alluminio caratterizzata da ampie possibilità di personalizzazione unite a durata nel tempo e resistenza agli agenti atmosferici. La versatilità della sua struttura a lamelle frangisole, orientabili con un angolo da 0 a 103°, permette una piena gestione della luce. www.yco-outdoor.com
WOODART. La collezione di piastrelle abbina le texture naturali effetto legno del noce e del rovere alla superficie ceramica. Rilievi tattili sono presenti sulla superficie, per riflettere le tonalità, le sfumature e i motivi lignei autentici. Quattro le varianti colore e diverse le alternative di formato. www.vitraglobal.com
INVICTUS. Ispirata al travertino, la collezione in-out presenta diverse superfici che la rendono adatta ad applicazioni in spazi interni ed esterni. La superficie antiscivolo As garantisce sicurezza e resistenza, assicurando continuità visiva e progettuale. Sono oltre 60 le diverse grafiche e 4 le colorazioni disponibili per la doppia finitura naturale e krystal. www.ceramicasantagostino.it
TIVOLI TECH. La collezione disegnata da Cristina Celestino è ora disponibile anche in versione outdoor. Progettata per resistere agli agenti atmosferici, oltre che agli urti e all’usura, la linea in argilla tecnica colorata in pasta diventa ideale anche per superfici esposte all’acqua e luoghi ad alto transito.
www.fornacebrioni.it
L’azienda di Caltagirone è specializzata nella trasformazione delle argille in manufatti in ceramica e nelle lavorazioni della pietra lavica naturale dell’Etna in pietra lavica ceramizzata. Nell’immagine, i tavoli bar realizzati con piastrelle interamente decorate a mano per la terrazza I Mirador del 21 House of Stories Navigli a Milano. www.madeamano.it
BOOST MINERAL. Grana fine e compatta per la collezione di superfici e rivestimenti in grès porcellanato ispirata alla pietra sedimentaria dell’altopiano delle Ardenne. Ideale per l’integrazione tra indoor e outdoor, la collezione propone cinque colori nella scala dei grigi. Fa parte del progetto Boost World: la raccolta di pavimenti effetto cemento, effetto pietra e terra cruda e rivestimenti ceramici affini che, insieme, moltiplicano le potenzialità progettuali. www.atlasconcorde.com
IPE LAPACHO. Un legno nobile e resistente: l’essenza che proviene dalle foreste del Sud America può resistere infatti più di 25 anni dalla posa, restando immune da umidità, parassiti, agenti atmosferici e sollecitazioni. Inoltre, è un’essenza particolarmente densa e compatta e quindi molto adatta per applicazioni outdoor. www.decodecking.it
DEKTON UKIYO. Ispirata alla cultura giapponese, la collezione testurizzata si connota per le scanalature lineari che creano un movimento di luci e ombre. Sviluppata in collaborazione con l’interior designer Claudia Afshar appositamente per le applicazioni di rivestimento verticale, Ukiyo è disponibile con finitura opaca, due pattern di scanalature e cinque varianti di colore da utilizzare singolarmente e in abbinamento. www.cosentino.com
CROSS. Il design di Marta Martino rielabora il bugnato diamante: gli elementi piramidali a base quadrata sono qui rivestiti da una moltitudine di microsfere tridimensionali. La collezione, disponibile in due formati modulari abbinabili, è in porcellana, in quanto materiale impermeabile e resistente agli agenti atmosferici e agli sbalzi di temperatura che lo rendono adatto anche per i rivestimenti di pareti e facciate esterne. www.demarchiverona.it
La pietra sinterizzata 100% naturale, inventata e prodotta in Italia, è ideale anche per gli spazi esterni: dalle pavimentazioni alle facciate, dal rivestimento di spa e piscine ai top di tavoli e cucine, fino al deck di yacht e imbarcazioni. Il Lapitec è infatti resistente agli agenti atmosferici, alla corrosione, ai graffi, agli urti, ai tagli e al calpestìo.
www.lapitec.com
COQUILLE. La collezione ceramica interpreta le peculiarità delle pietre calcaree in quattro nuance, che declinano i toni neutri del grigio e del beige. La varietà di finiture disponibili include anche la nuova Matt-Pro, morbida al tatto seppur con struttura antiscivolo, e una versione strutturata da rivestimento, caratterizzata da una leggera zigrinatura. www.refin.it
ARCHISTONE 2. Il marchio del Gruppo Ceramiche Ricchetti presenta una raccolta ispirata a pietre naturali provenienti da diverse aree geografiche selezionate per poter essere rese con la massima attenzione ai dettagli. La collezione è disponibile anche con la finitura Cross che garantisce un’eccezionale antiscivolosità (Classe R11 C) in qualsiasi condizione. www.ricchetti-group.com
WOODCO
EXTERNO. Realizzato con un ecomateriale a base di farine di legno e polietilene riciclato ad alta densità, il pavimento per esterni non teme cloro, salsedine e agenti atmosferici. L’ulteriore protezione Extrashield potenzia la resistenza a macchie, muffe, raggi UV, insetti, funghi e all’usura nel tempo, eliminando la necessità di manutenzioni durante l’intera vita del prodotto. Le prestazioni antiscivolo e antischeggiatura, inoltre, consentono di camminare a piedi nudi, rendendo il pavimento adatto anche ai bordi piscina. Grazie al sistema di fissaggio brevettato Techno, Externo semplifica il lavoro di posa riducendo fino al 50% i tempi rispetto alle tecnologie più tradizionali.
www.woodco.it
SKYGRIP. Il rivestimento a base cementizia, qui applicato nel colore Platinum, unisce effetto tridimensionale, ottime caratteristiche tecniche, in particolare resistenza all’usura, agli agenti chimici e atmosferici, all’abrasione, e proprietà antiscivolo e antisdrucciolo, seppur con uno spessore estremamente ridotto.
www.isoplam.it
Composizione Fibre di legno, materie plastiche e additivi
Colorazioni Light Brown, Dark Grey, Ipe, Teak, Antique
Finiture di superficie Zigrinata, levigata o spazzolata
RESYSTA. I pannelli UPB Board made of resysta sono pannelli a base di buccia di riso riciclata molto resistente, dalle caratteristiche estetiche uguali al legno. Grazie alle loro proprietà termoplastiche i pannelli possono essere deformati termicamente. Ciò implica una grande libertà di realizzazione per numerose applicazioni quali facciate, mobili e pavimentazioni indoor e outdoor. www.gruppobonomipattini.com
Gianfranco Frattini
Design 1955/2003
A cura di Emanuela Frattini
Magnusson
Silvana Editoriale, Cinisello
Balsamo, 2023
176 pp, Ill, 32 euro
ISBN 978-88-3665-610-3
Sono numerosi e in gran parte inediti i contributi che compongono la pubblicazione Gianfranco Frattini. Design 1955/2003 di Silvana Editoriale, bel catalogo della mostra promossa nel 2023 dal comune di Cesano Maderno e curata dallo Studio/Archivio Gianfranco Frattini, The Digital Circle con la collaborazione del Centro Studi e Archivio della Comunicazione di Parma.
Il libro mette in luce i diversi ambiti in cui ha operato l’architetto e designer nel corso degli anni, dal disegno industriale all’artigianato, dalla ricerca tessile agli interni di abitazioni,
ristoranti e negozi.
Il volume è corredato da testi – di Emanuela Frattini Magnusson, Massimo de Conti, Alessia Interlandi, Massimo Belotti, Ryan Turf, Maria Chiara Manfredi, Margherita Monica, Matilde Alghisi, Susanna Beatrice Lubiana e Benedetta Patella – che raccontano la capacità di Frattini di applicare il design come processo mentale a tutte le scale.
Le schede dal taglio archivistico descrivono in modo esaustivo arredi e progetti. Tra gli oggetti narrati è il caschetto disegnato per Montecatini nel 1963, uno dei primi prodotti per la sa-
lute e la sicurezza sul lavoro prodotti in Italia, a rappresentare un esempio emblematico di industrial design. Giallo per essere visibile nei grandi siti produttivi, era di plastica anziché di metallo, materiale utilizzato fino ad allora ma scomodo da indossare per lunghi periodi di tempo.
L’apparato iconografico comprende schizzi originali e disegni di alcuni interni, fotografie di pezzi d’archivio e di riedizioni oltre alle fotografie di Max Pescio della mostra che era stata allestita nel secentesco Palazzo Arese Borromeo di Cesano Maderno ■
L’intelligenza del design nei materiali e nell’artigianato