RAKeita

Page 1

TEKNIIKAN

TOIMITTANUT:

Janne Repo

Mari Piipponen

3/2023

ALA

Tuulikki Höglund

Savonia-ammattikorkeakoulu

Julkaisutoiminta

PL 6

70201 KUOPIO julkaisut@savonia.fi

Copyright © tekijät ja Savonia-ammattikorkeakoulu Teksti, kuviot ja taulukot CC BY-SA 4.0

1. painos

ISBN: 978-952-203-313-0

ISSN 2343-5496

Savonia-ammattikorkeakoulun julkaisusarja 3/2022

Kustantaja: Savonia-ammattikorkeakoulu

Kansikuva Emilia Heiskanen

Taitto ja ulkoasu: Patrick Zelikman

Alkusanat

Rakennusarkkitehdin tutkintokoulutuksen opinnot muodostuvat rakennussuunnitteluun liittyvistä käytännönläheisistä teoriatietoa soveltavista opintojaksoista. Opinnot aloitetaan pienen mittakaavan harjoitustöillä. Niissä tutustutaan arkkitehtuurin peruskäsitteisiin kuten massaan, muotoon, tilaan, pintaan, materiaaliin ja rakenteeseen. Harjoitustöiden koko ja suunnittelutehtävän vaativuus kasvavat vuosi vuodelta taidon, tiedon ja työrutiinien karttuessa.

Rakennusarkkitehdin tutkinnon suoritettuaan valmistuva rakennusarkkitehdilla on koulutukselliset valmiudet erilaisten rakennuskohteiden arkkitehtisuunnitteluun ja vaativien rakennuskohteiden kuten esim. kerrostalojen pääsuunnitteluun. Suunnittelijapätevyyteen vaaditaan koulutuksen lisäksi myös valmistumisen jälkeistä työkokemusta. Työkokemusta kartutetaan, opintojen aikana yritysprojektissa konsulttitoimintaa harjoitellen, kesälukukausien harjoitteluopintojaksoilla ja lopuksi vielä työelämään liittyvän opinnäytetyön muodossa.

4
Riina Salo
5 Arkkitehtuurin perusteet 6 Arkkitehtuuri 1 loma-asunto 18 Arkkitehtuuri 2 pientalo 22 3D - visualisointi 26 Puu- ja teräsrakenteet 34 Kaavoitus ja maankäyttö 30 Betonirakenteet 38 Arkkitehtuuri 4 46 Korjaussuunnittelu 2 50 Energiatehokas ja ekologinen rakennussuunnittelu 54 Arkkitehtuuri 3 42 Opinnäytetyöt 70 Arkkitehtuuri 5, julkinen rakennus 58 Korjaussunnittelu 3 62 Contemporary architecture & Art 66 Sommittelu ja visualisointi 12
1. Vuosikurssi 2. Vuosikurssi 3. Vuosikurssi 4. Vuosikurssi

Arkkitehtuurin perusteet (Teoria ja Historia)

Opintojaksolla tutustutaan arkkitehtuurin toiminnalliseen, taiteelliseen, tekniseen, taloudelliseen ja ekologiseen ulottuvuuteen sekä arkkitehtuurin merkitykseen ihmisten ja yhteisöjen hyvinvoinnin lähtökohtana. Tarkoituksena on oppia arvioimaan rakennettua ja luonnon ympäristöä sekä rakentamisen moninaisia olosuhteita.

Opintojaksolla perehdytään myös länsimaisen ja suomalaisen rakennushistorian kehitysvaiheisiin ja eri aikakausina tapahtuneeseen rakennustekniseen ja tyylilliseen kehitykseen. Tavoitteena on ymmärtää arkkitehtuurin merkitys kulttuurien kehityksessä siten, että opiskelija tunnistaa rakennetusta ympäristöstä historiallisia kerrostumia rakennusten arkkitehtonisten tyylipiirteiden avulla ja osaa arvottaa niitä omassa suunnittelutyössään.

Opintojaksolla on arkkitehtuurin teoriaan ja historiaan liittyviä viikkoharjoituksia. Synteesinä ja sovelluksena arkkitehtuurin teorian opetussisällöistä on opiskelijan minitalon suunnittelutehtävä.

Suunnittelutehtävässä suunniteltiin itselle minitalo (20 hum2) Brahenpuiston näköalatasanteelle. Harjoitustyön avulla tutustuttiin arkkitehtisuunnittelun menetelmiin ja työvälineisiin, kuten luonnosteluun, rakennuspiirustuksiin, pienoismalleihin ja valokuvaukseen. Harjoitustyössä sovellettiin henkilökohtaisena tulkintana arkkitehtuurin teoriassa esille tulleita aiheita kuten paikka, massa ja muoto, tila ja toiminta, pinta ja materiaalit, valo jne.

6 Arkkitehtuurin perusteet
Katja Saarivainio
7 Arkkitehtuurin perusteet
8
Jeff Tägström Minitalo Arkkitehtuurin perusteet
Arkkitehtuurin perusteet
9 Arkkitehtuurin perusteet
Minitalo Riina Salo / EA21SP 8.12.2021
Riina Salo Minitalo Arkkitehtuurin perusteet
10 Arkkitehtuurin
perusteet
Reetta Holopainen Minitalo Arkkitehtuurin perusteet
11
Aapo Laine
Arkkitehtuurin perusteet
Historiallinen julkisivu Arkkitehtuurin perusteet

Sommittelu ja visualisointi

Opintojaksolla tutustutaan arkkitehtonisen sommittelun visuaalisiin periaatteisiin, sekä rakennuksen massoittelun ja tilasuunnittelun väliseen yhteyteen. Opiskelijat opettelevat vapaata käden luonnostelua sekä tuntemaan erilaisia graafisia esitystekniikoita. Opintojaksolla opetellaan kuvaamaan rakennussuunnitelmia perspektiivisesti konstruoimalla ja tuottamaan mallinnetuista rakennussuunnitelmista havainnollisia esittelyaineistoja. Opintojaksolla opetellaan myös asemoimaan 3d-perspektiivinäkymä ympäröivään maisemaan havainnollisesti.

Oppitunneilla sommitteluperiaatteita ja rakennetun ympäristön yhteyttä kuvattiin kuvaesimerkein ja teorioin. Oppitunteihin liittyi erilaisia sommittelun ja visualisoinnin viikkoharjoituksia, joissa sovellettiin oppituntien teoria- ja menetelmätietoja.

Viikkoharjoituksien lisäksi kurssilla suunniteltiin projektityönä OHO!-rakennus Kuopion Piispanpuiston reunalle. OHO!-rakennuksen suunnittelussa keskityttiin rakennuksen massoittelun arkkitehtoniseen muotoiluun. Tavoitteena oli tyylikäs ja kiinnostava ulkomuoto, rakennuksen toimintaa tai tiloja ei suunniteltu. Tavoitteena oli suunnitella rakennus tai rakennelma, joka ottaa paikkansa ja herättää huomiota. Rakennuksesta laadittiin pienoismalli ja julkisivukuvat.

Opintojakson päätteeksi koostettiin kaikki opintojakson harjoitustöiden kuvamateriaali yhdeksi portfolioksi. Portfolion sommittelussa käytettiin opintojaksolla opittuja sommittelun periaatteita.

12 Sommittelu ja visualisointi
13
Renny Hagan
Sommittelu ja visualisointi
Platoniset solidit Sommittelu ja visualisointi
14 Sommittelu ja visualisointi
Katja Saarivainio MagicBox Sommittelu ja visualisointi
15 Sommittelu ja visualisointi
Riina Salo OHO-rakennus Sommittelu ja visualisointi
16
Ella Kämäräinen Kuopio- juliste Sommittelu ja visualisointi Sommittelu ja visualisointi
17 Sommittelu ja visualisointi
Ronja Ahola Entre-exit Sommittelu ja visualisointi

Arkkitehtuuri 1 (Loma-asunto)

Opintojaksolla tutustutaan loma-asunnon arkkitehtuurisuunnitteluun. Kurssilla pohditaan, mitä lomailu on toimintana ja miten se ilmenee tilojen tarpeessa, mitoituksessa ja sijoittelussa. Miten ulkotila ja sisätila muodostavat toiminnallisen kokonaisuuden. Tutkitaan rakennuksen sijoittamista rakennuspaikalle huomioiden mm. Ilmansuunnat, näkymät sekä ympärillä oleva rakennettu ja luonnon ympäristö.

Tehtävänä oli suunnitella annetulle rantatontille nelihenkisen perheen yksityiseen käyttöön tarkoitettu kesäasuttava rantarakennus. Työ tehtiin henkilökohtaisena työnä. Suunnittelutehtävään annettiin valmis tilaohjelma. Rantarakennuksen tuli käsittää puulämmitteinen sauna, saunatupa ja osittain katettu terassi.

Tiloja suunnitellessa tuli huomioida tontilta avautuva järvimaisema. Suunnittelussa tuli kiinnittää huomiota mm. tilojen kalustettavuuteen, tilojen toimivuuteen ja tiloista avautuviin näkymiin.

Opintojakson aluksi vierailtiin kohdetontilla, jossa pohdittiin paikan henkeä. Tutustuttiin mm. tontin topografiaan, kasvillisuuteen, näkymiin ja ilmansuuntiin ja pohdittiin, mitä ympäristöstä tulisi huomioida suunnittelussa.

Harjoitustyössä edettiin vaiheittain. Ensimmäisessä vaiheessa pohdittiin suunnitelmalle alustavia tavoitteita: Ketä mökin käyttäjät ovat, mikä on heidän elämäntapa, millaisia lähtökohtia rakennuspaikka asettaa? Toisessa vaiheessa tehtiin alustavat luonnokset tontin käytöstä ja loma-asunnon pohjapiirustuksesta.

Kolmannessa vaiheessa palautettiin lopulliset luonnokset: asemapiirustus, pohjapiirustus, leikkauspiirustukset, julkisivupiirustukset sekä havainnekuvia. Luonnosten pohjalta tehtiin lopulliset pääpiirustukset.

Harjoitustyö tehtiin tietomallina, josta pääpiirustukset laadittiin. Yhtä aikaa Arkkitehtuuri 1 opintojakson kanssa oli BIM-soveltavat kurssi, jossa opiskeltiin Archicad-ohjelmaa.

18 Arkkitehtuuri 1
Nuuti Keinänen
19 Arkkitehtuuri 1
Riina Pietarila Loma-asunto Arkkitehtuuri 1
20 Arkkitehtuuri 1
Paavo Pihlajamaa Loma-asunto Arkkitehtuuri 1
21 Arkkitehtuuri 1
Vili-Oskari Timonen Loma-asunto Arkkitehtuuri 1

Arkkitehtuuri 2 (Pientalo)

Opintojaksolla tutustutaan pientalojen rakennus- ja asuntosuunnitteluun. Kurssilla syvennetään tietämystä asuintilojen mitoituksesta ja kalustuksesta sekä keskeisistä viranomaismääräyksistä. Tavoitteena on, että opiskelija oppii tekemään pientalon pääpiirustukset.

Kurssilla opetellaan sovittamaan omaa suunnitelmaa rakennettuun ympäristöön ja tutustutaan tonttisuunnittelun perusteisiin, sekä ymmärtämään niiden merkitys laadukkaan rakennetun ympäristön kannalta. Teorialuennoilla tutustuttiin asemakaavaan. Lisäksi perehdyttiin rakennuksen massoitteluun ja tilallisuuteen, rakennusmateriaalien ja värien käyttöön sekä rakennuksen yksityiskohtiin arkkitehtuurin ilmentäjinä.

Tavoitteena on, että opitaan tuntemaan pientalorakentamiseen soveltuvia rakennevaihtoehtoja, rakennusmateriaalien ominaisuuksia sekä rakennetyyppejä ja opitaan käyttämään niitä kohteeseen sopivalla ja tarkoituksenmukaisella tavalla.

Tehtävänä oli suunnitella kaksikerroksinen pientalo samalle tontille Arkkitehtuuri 1 –opintojaksolla suunnitellun loma-asunnon kanssa.

Suunnittelutyö alkoi määrittämällä asiakasperhe. Pohdittiin perheen elämäntapaa ja tarpeita, joiden pohjalta pientalolle laadittiin tilaohjelma varsinaisen suunnittelutyön lähtökohdaksi.

Harjoitustyötä tehtiin vaiheittain opetellen rakennussuunnitteluprosessin etenemistä. Välivaiheissa töitä esiteltiin ja myös vertaisarvioitiin opiskelijakollegoiden toimesta. Revit tai Archicad-ohjelmalla tehtiin suunnitelmasta tietomalli, josta tuotettiin palautettavat pääpiirustukset ja havainnekuvat.

22 Arkkitehtuuri 2
Senja Kamula
23 Arkkitehtuuri 2
Jarmo Blohin Villa Lehto Arkkitehtuuri 2
24 Arkkitehtuuri 2
Senja Kamula Villa Pursi Arkkitehtuuri 2
25 Arkkitehtuuri 2
Elviira Niininen Talo Lummerinne Arkkitehtuuri 2

3D-Visualisointi

Opintojaksolla opetellaan tekemään näyttäviä, havainnollisia ja selkeitä esittelymateriaaleja omista arkkitehtisuunnitelmista. Opintojakso koostuu kolmesta eri osioista. 3D-visulaisoinnin osioissa opiskellaan valokuvamaisten havainnekuvien tekoa Archicad ja Revit -ohjelmilla tietomallinnetusta suunnitelmista, tutustutaan arkkitehtuurivalokuvauksen periaatteisiin ja tutkitaan suunnitelmien visuaalisia ominaisuuksia erilaisissa tilanteissa. Viestinnän osuudessa tutustutaan alan julkaisuihin ja harjoitellaan hyvän ja ammattimaisen esittelytekstin kirjoittamista. Kolmannessa osassa tutustutaan graafiseen suunnitteluun, sommitteluun, typografiaan sekä värien käyttöön ja opiskellaan julkaisun tekemistä InDesign-ohjelmalla.

Tehtävä oli tehdä omasta Arkkitehtuuri 2 opintojakson harjoitustyökohteesta kolme A1 kokoista vaakasuuntaista esittelyplanssia. Planssien tuli sisältää esittelytekstin lisäksi tyypilliset arkkitehtisuunnitelmien piirustukset: Lähestymiskartta, asemapiirustus, tonttileikkaus, pohjapiirustukset, leikkauspiirustukset, julkisivupiirustukset, 3D räjäytyskuva sekä havainnekuvia.

3d visualisoinnin osuudessa tehtiin yksinkertaistetut rakennuspiirustukset sekä havainnekuvat Enscapea, Twinmotionia, Vrayta ja Photoshopia käyttäen. Viestinnän osuudessa tuotettiin esittelyteksti. Kuvat ja teksti taitettiin InDesign-ohjelmalla yhtenäiseksi esittelyplanssisarjaksi.

26 3D-visualisointi
27 3D-visualisointi
Jaana Peltokangas Suvanto 3D-visualisointi + Arkkitehtuuri 1
28 3D-visualisointi
Minna-Mari Meriläinen Talo Aittoranta 3D-visualisointi + Arkkitehtuuri 2
29 3D-visualisointi
Emilia Heiskanen Villa Ruuhi 3D-visualisointi + Arkkitehtuuri 1 & 2

Kaavoitus ja maankäytön suunnittelu

Opintojaksolla laajennetaan arkkitehtuurikäsitystä rakennussuunnittelusta kaupunki- ja ympäristösuunnitteluun sekä kaupunkirakennustaiteeseen ja opetellaan tekemään pientä kaupunginosaa koskeva maankäyttösuunnitelma ja asemakaavakartta.

Kurssilla tutustutaan erilaisiin asuinalueen ominaisuuksiin, rakennemalleihin, kaupunkikuvaan ja kaupunkitilaan. Kurssilla pohditaan, mitä ja millaista on hyvä, laadukas asuin- ja elinympäristö kaupungissa ja miten eri liikennemuodot ja maankäyttö yhteensovitetaan. Opintojaksolla perehdytään kortteleiden mitoituksen ja maankäytön suunnittelun kautta asemakaavakartan laadintaan ja valmiin asemakaavan vaikutukseen rakentamisprosessissa.

Tehtävänä oli tehdä maankäyttösuunnitelma uuden Vanuvuoren kaupunginosan keskustakortteleihin. Harjoitustyössä oli yhteistyötahona Kuopion kaupungin strateginen maankäytön suunnittelu, josta annettiin työhön tavoitteita, lähtökohtia ja reunaehtoja.

Pohjana suunnitelmalle oli Vanuvuoren osayleiskaavaluonnos. Maankäyttösuunnitelmissa tutkittiin asemakaavatasolla, millaisilla erilaisilla suunnitteluratkaisuilla tavoitellut toiminnot, liikenne ja asukasmäärä saatiin sovitettua alueelle. Harjoitustyö tehtiin pareittain. Tehtävän aluksi tutustuttiin alueeseen ja lähtöaineistoihin ja määritettiin tavoitteet suunnitelmalle. Osayleiskaavaa tarkennettiin hahmottelemalla alueelle erilaisia rakennemalleja, joiden pohjalta edettiin luonnostelemaan maankäyttösuunnitelmia. Lopullisista maankäyttösuunnitelmista tehtiin alueesta sekä 2d- että 3d-havainnekuvat sekä asemakaavakartta määräyksineen.

Kaavoitus ja maankäytön suunnittelu

30
Nea Happonen & Kaisa Reinikainen

Vanuvuoren keskuskorttelit

Kaavoitus ja maankäytönsuunnittelu

31 Kaavoitus ja maankäytön suunnittelu
Veeti Marjo ja Paavo Pihlajamaa

Minna-Mari Meriläinen ja Jussi Riipinen

Vanuvuoren keskuskorttelit Kaavoitus ja maankäytönsuunnittelu

Kaavoitus ja Maankäytön suunnittelu

32
33 Kaavoitus ja maankäytön suunnittelu
Jaana Peltokangas ja Sauli Jokinen Vanuvuoren keskuskorttelit Kaavoitus ja maankäytönsuunnittelu

Puu- & teräsrakenteet

Opintojaksolla tutustutaan puusta ja teräksestä tehtyihin arkkitehtonisiin rakenteisiin, rakenteiden ominaisuuksiin ja mitoitusperiaatteisiin. Opintojaksolla tehdään aiheeseen liittyvä harjoitustyö, missä opiskelija pääsee pienessä mittakaavassa suunnittelemaan näkyviä rakenneliitoksia osana suunnittelukohteen kokonaisarkkitehtuuria.

Harjoitustyönä oli puu- ja teräsrakenteinen katettu katsomorakenne n. 60 katsojalle. Rakenteille asetettiin vaatimus: katsomosta tulee löytyä näkyviin jäävät puun ja teräksen, puun ja betonin sekä teräksen ja betonin väliset liitokset.

34 Puu- & Teräsrakenteet
Emilia Heiskanen
35 Puu- & Teräsrakenteet
Elviira Niininen Katsomo, Savilahti Puu- ja teräsrakenteet
36 Puu- & Teräsrakenteet
Kaisa Reinikainen Katsomo Puu- ja teräsrakenteet
37 Puu- & Teräsrakenteet
Minna-Mari Meriläinen Katsomo Puu- ja teräsrakenteet

Betonirakenteet

Opintojaksolla tutustutaan teräsbetonista tehtyihin arkkitehtonisiin rakenteisiin, rakenteiden ominaisuuksiin ja mitoitusperiaatteisiin. Opintojaksolla tehdään aiheeseen liittyvä harjoitustyö, missä opiskelija pääsee suunnittelemaan betonirakenteiden näkyviä rakenneliitoksia osana suunnittelukohteen kokonaisarkkitehtuuria.

Harjoitustyönä oli teräsbetonirakenteinen pysäköintitalo. Rakennus tuli suunnitella ns. läpituulettuvana, eli sillä ei tule olla julkisivuverhousta tai verhouksen tulee olla hyvin kevyt ja ilmava. Tällöin rakennuksen rakenteiden suunnittelu nousee keskeiseen rooliin arkkitehtuurissa.

38 Betonirakenteet
Tinka Tapaninen Pysäköintilaitos Betonirakenteet
40 Betonirakenteet
Kaisa Reinikainen Pysäköintilaitos Betonirakenteet Paulus Kähkönen Pysäköintilaitos Betonirakenteet

Arkkitehtuuri 3

Opintojaksolla suunnitellaan asuinkerrostalo annetulle tontille asemakaavan mukaan. Harjoitustyössä keskitytään tonttija asuntosuunnitteluun kerrostalohankkeen pääpiirustuksia edeltävässä luonnossuunnitteluvaiheessa. Kerrostalosta laaditaan tietomalli ja siitä tulostetaan ennakkomarkkinointimateriaali havainnekuvineen.

42 Arkkitehtuuri 3
Noora Lammi
43 Arkkitehtuuri 3
Karoliina Lipponen Kerrostalon luonnokset Arkkitehtuuri 3
44 Arkkitehtuuri 3
Pekka Nykänen Kerrostalo luonnokset Arkkitehtuuri 3
45 Arkkitehtuuri 3
Hannali Lodi Kerrostalon luonnokset Arkkitehtuuri 3

Arkkitehtuuri 4

Opintojaksolla jatketaan Arkkitehtuuri 3 opintojakson kerrostalosuunnittelua etenemällä rakennuslupavaiheeseen ja toteutussuunnitteluun. Kerrostalon tietomallista tulostetaan pää- ja työpiirustukset. Suunnittelussa keskitytään arkkitehtonisesti merkittävien yksityiskohtien suunnitteluun ja detaljipiirustuksiin.

46 Arkkitehtuuri 4
Hannali Lodi
47 Arkkitehtuuri 4
Netta Huikari kerrostalon toteutussuunnittelu Arkkitehtuuri 4
48 Arkkitehtuuri 4
Noora Lammi kerrostalon toteutussuunnittelu Arkkitehtuuri 4
49 Arkkitehtuuri 4
Vilma Nättilä kerrostalon toteutussuunnittelu Arkkitehtuuri 4

Korjaussuunnittelu 2

Opintojaksolla syvennytään kerrostalon korjaushankkeeseen. Opintojaksolla opiskelijat opettelevat muodostamaan oman kokonaisnäkemyksensä kerrostalon korjaustarpeesta ja tämän pohjalta valitsevat oikeat korjausratkaisut ottaen huomioon korjausrakentamista koskevat määräykset ja ohjeet. Korjausratkaisuissa otetaan myös huomioon rakennuksen turvallisuuteen ja terveellisyyteen vaikuttavat tekijät, erityisesti sisäilmastoon vaikuttavat seikat. Opintojakso koostuu kahdesta osasta, korjaussuunnittelun teoriaosasta ja kerrostaloon laadittavan korjaussuunnitelman arkkitehtuurin osiosta.

Arkkitehtuurin osiossa perehdytään eri vuosikymmenten kerrostalojen ominaispiirteisiin ja materiaaleihin. Eri vuosikymmenten kerrostaloja tutkitaan kurssin aluksi ryhmätöinä. Lisäksi opiskelijat laativat korjaussuunnitelman kerrostalosta. Kurssin harjoitustyönä laadittiin korjaussuunnitelma 70-luvun kerrostaloon, joka sijaitsee Kuopion keskustassa Asemakadulla. Jokainen opiskelija laati oman korjaussuunnitelmansa. Korjaussuunnitelman tilaajana oli kuviteltu taloyhtiö, jonka korjaustoivelista oli pitkä. Opiskelijan tehtävänä oli valita akuuteimmat korjaustarpeet. Lisäksi opiskelijan tuli valita lisäkerroksen rakentaminen tai pohjakerroksen autotallien muuttaminen liike- tai asumiskäyttöön. Kumpikin vaihtoehto vaati myös hissille paikan suunnittelemista. Tehtävän aluksi opiskelijat arvottivat tehtyjen ryhmätöiden perusteella rakennuksen arvokkaat ja säilytettävät piirteet.

Lopputuloksena opiskelijat laativat luonnostasoiset suunnitelmat korjattavasta kerrostalosta esittäen pohjapiirrokset, leikkaukset, julkisivupiirrokset, asemapiirroksen sekä havainnekuvan.

50 Korjaussuunnittelu 2
Hannali Lodi
51 Korjaussuunnittelu 2
Ada Pennanen Kerrostalon korotus- ja korjaussuunnitelma korjaussuunnittelu 2
52 Korjaussuunnittelu
2
Netta Huikari Kerrostalon korotus- ja korjaussuunnitelma Korjaussuunnittelu 2
53 Korjaussuunnittelu 2
Vilma Nättilä Kerrostalon korotus- ja korjaussuunnitelma Korjaussuunnittelu 2

Energiatehokas ja ekologinen rakennussuunnittelu

Opintojaksolla perehdytään rakentamisen ja maankäytön aiheuttamiin ympäristövaikutuksiin ja erityisesti energiatehokkuuteen. Luentojen ja kirjallisuuden avulla tutustutaan keinoihin, millä energiaa voidaan säästää ja millä sitä voidaan tuottaa. Soveltavana harjoitustyönä suunnitellaan energiatehokas asuinalue ja sinne sijoittuvat asuinrakennukset. Harjoitustyössä on tarkoitus soveltaa teoriatietoa ja etsiä uusia ratkaisuja koko alueen ja yksittäisten rakennusten energiatehokkuuden parantamiseksi. Tietomallin avulla alueesta ja rakennuksista tehdään energia-analyysejä, joiden perusteella suunnitelmia kehitetään edelleen.

Energiatehokas ja ekologinen rakennussuunnittelu

54
Emma Tikkanen

Asuinalue ja -rakennussuunnitelma

Energiatehokas ja ekologinen rakennussuunnittelu

55 Energiatehokas ja ekologinen rakennussuunnittelu
Jaakko Vierre
56 Energiatehokas ja ekologinen rakennussuunnittelu
57 Energiatehokas ja ekologinen rakennussuunnittelu

Arkkitehtuuri 5

Opintojaksolla tutustutaan julkisten rakennusten suunnitteluun. Opiskelijat pohtivat, miten luodaan paikkaansa sopivaa, kulttuuria vahvistavaa, ajan hengen ja arvomaailman vangitsevaa arkkitehtuuria. Opintojaksolla harjoitellaan toimivan, tarkoituksenmukaisen, taloudellisen, viihtyisän ja elämyksellisen julkisen rakennuksen suunnittelua. Suunnittelussa keskitytään erityisesti arkkitehtoniseen muodonantoon, tilasuunnitteluun, sekä materiaalivalintoihin.

Tehtävänä oli suunnitella Kuopion pääkirjaston pohjoispuolella olevalle tyhjälle tontin osalle uusi julkinen rakennus (kirjasto 2.0), joka sopii kaupunkikuvallisesti ja -toiminnallisesti paikkaansa ja luo ympäristölleen lisäarvoa, vetovoimaisuutta ja viihtyisyyttä.

Tehtäväkuvauksessa kerrottiin, että kirjasto 2.0 on vanhojen ja perinteisten dokumenttien ja lainaamiseen perustuvan kirjastotoiminnan erillinen ja itsenäinen laajennus. Siinä, missä vanha kirjasto on pääasiassa sisäänpäin sulkeutunut ja toiminnallisesti jäykkä aineistovarasto, kirjasto 2.0 tulee olla avoin, toimimaan ja osallistumaan houkutteleva muunneltava ja elämyksellinen kulttuurirakennus.

Tilaohjelmaan oli kirjattu, että kirjasto 2.0 laajuus on 3150 m2. Rakennuksen tuli sisältää yleisö- ja palvelutiloja, tapahtumatiloja, liiketiloja, mediatiloja, oppimisen ja tekemisen tiloja. Osan tiloista tuli olla muuntojoustavia ja yleispäteviä. Osa tiloista tuli suunnitella vain tiettyä käyttötarkoitusta varten, kuten esim. auditorio.

Suunnittelutyössä edettiin vaiheittain kaupunkikuvallisten ja –toiminnallisten analyysien kautta luonnosteluun ja tietomallintamisen avulla tehtävään arkkitehtisuunnitteluun. Opiskelijoiden suunnitteluprosessissa kirjasto 2.0 tarkentui ensimmäisistä skissipaperille tallentuneista mielikuvista lopullisiin havainnekuviin ja arkkitehtonisesti merkittävien kohtien detaljipiirustuksiin.

58 Arkkitehtuuri 5
Henri Vierimaa
59 Arkkitehtuuri 5
Katariina Heikkilä Paussi Arkkitehtuuri 5
Arkkitehtuuri 5
Ville Rahikka Onyksi Arkkitehtuuri 5
61 Arkkitehtuuri 5
Tommi Seppänen Fraktaali Arkkitehtuuri 5

Korjaussuunnittelu 3

Opintojaksolla perehdytään tyhjillään olevien tai heikolla käytöllä olevien rakennusten käyttötarkoituksen muutoksiin ja siinä yhteydessä tehtävään arkkitehtonisten ja historiallisten arvojen pohdintaan.

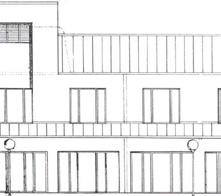
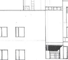
Harjoitustyönä oli Kuopion vanhan Postitalon käyttötarkoituksen muutoksen suunnittelu. Funktionalistista tyyliä olevan Postitalon tiloihin suunnitellut uudet toiminnot edellyttivät vanhan ja komean pääsisäänkäynnin muuttamista liikuntaesteettömäksi siten, että rakennuksen julkisivujen ja sisätilojen arkkitehtonisesti merkittävät piirteet säilyvät. Harjoitustyössä tutkittiin myös rakennuksen laajentamista kattokerroksella sekä rakennuksen osittaista purkamista jäljelle jäävien rakennussiipien olosuhteiden parantamiseksi.

62 Korjaussuunnittelu 3
63 Korjaussuunnittelu 3
Jenni Isosaari Kuopion Postitalo Korjaussuunnittelu 3
64 Korjaussuunnittelu 3
Timo Karhunen Kuopion Postitalo Korjaussuunnittelu 3
65 Korjaussuunnittelu 3
Lauri Hölttä & Henri Vierimaa Kuopion Postitalo Korjaussuunnittelu 3

Contemporary architecture & art

Opintojaksolla selvitetään, mitä nykyarkkitehtuuri on nyt, mitä se oli eilen ja mitä se on mahdollisesti huomenna. Opis kelijat tekevät modernin arkkitehtuurin eri aikakausien tyyleistä seminaariesityksen ja pohtivat, miten ja missä nykyarkki tehtuurin kohteissa kyseinen tyyli vaikuttaa edelleenkin.

Opintojakson taide-osuudessa laajennetaan arkkitehtisuunnittelun kenttää tavanomaisen rationaalisen ajattelun ulko puolelle tutustumalla erilaisiin luoviin suunnittelumenetelmiin.

Soveltavana harjoitustyönä oli suunnitella opiskelijakerrostalojen porrashuoneisiin ja yhteistiloihin sijoittuvat taideteokset.

66
Contemporary architecture
Emma Tikkanen
& art

Hear me out & Rearrangement

Contemporary architecture & art

Hear me out ikohtaamisella visuaalinen teos, jossa lasitauluun on painatettu liukuvärjätty, siluettimainen kuvio. Tämä teos saattaa ilahduttaa ohikulkijaa värikkyydellään ja selkeydellään, vaikka varsinaista keskustelua teoksen ja yleisön välille ei syntyisikään.

Rearrangement

ÄLLÄ - talon toinen, sisääntulokerrokseen sijoittuva osa lähtee vaivihkaa avaamaan yläkerran taideteoksen teemaa.

REARRANGEMENT teoksessa betonista valetut ja pintakäsitellyt laatat muodostavat aluksi pianon koskettimet, jotka loppua kohti alkavat hajota järjestäytyen uudelleen HEAR ME OUT- kappaleen ääniaallon muotoon

67 Contemporary architecture & art

Emma Tikkanen

Hioutuneet & Virta

Contemporary architecture & art

Hioutuneet

Taideteokset usein herättävät näkijässään tunteita ja ajatuksia. Mitä tunteita haluaisit tuntea kotiin tullessasi? Ajattelin, että hektisen ja joskus stressaavankin opiskelijaelämän keskellä koti on rauhoittumisen paikka, jossa tämä teos jo ovesta sisään astuessa voi herättää miellyttäviä tunteita rauhoittavin kuvioin ja harmonisin värein.

Virta

Taideteoksen on tarkoitus myös herättää näkijässään tunteita. Teos on tyyliltään ja muotokieleltään pehmeää ja

68

Hioutuneet & Virta Contemporary architecture & art

CHANGE ME on sosiaalinen, leikkisä ja muuttuva taideteos, johon ohikulkijat voivat halutessaan jättää viestinsä muiden nähtäville. Tätä julkista taiteilua ei tarvitse ottaa turhan vakavasti, sillä kuvat maalaillaan valolaatoilla seinälle pikselimäisiksi sommitelmiksi.

UP AND DOWN on teos, joka kertoo yläkerran oleskelutiloissa aikaa viettäville, tai kerroksessa muuten vain käyville mitä pohjakerroksessa tapahtuu. Up and down on valoteos, joka syttyy päälle aina silloin, kun alakerran club house tiloissa on ihmisiä. Lämmin valon hehku viestii että paikalla on muitakin, ja kutsuu liittymään mukaan joukkoon.

69

Opinnäytetyö

Savoniassa opinnäytetyöt tehdään yrityselämän toimeksiantoina. Opiskelijat etsivät itse opinnäytetyöaiheensa oman kiinnostuksensa perusteella. Opinnäytetyössä opiskelija esittelee laajan projektin yhteydessä tietoja ja taitoja, joita hän on opiskeluaikana hankkinut ja kartuttanut. Tämän lisäksi opiskelija tuo työssään esille oman kykynsä etsiä uutta tietoa tai uusia opeteltuja taitoja, joita opinnäytetyössä on sovellettu tarkoituksenmukaisella tavalla. Opinnäytetyö on pitkä ja kärsivällisyyttä sekä huolellisuutta vaativa prosessi.

Venla Horn

Turun Akselintien alueen suunnittelu: maankäyttösuunnitelman laatiminen ja mallikorttelin, sekä tyyppikerrostalon suunnittelu Opinnäytetyö

71 Opinnäytetyö

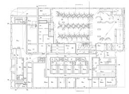
Eveliina Hämäläinen Lehtoniemi -Repokankaan alakoulun luonnossuunnittelu Opinnäytetyö

LEHTONIEMI -REPOKANKAAN ALAKOULUN LUONNOSSUUNNITTELU

72 Opinnäytetyö LEIKKIPUISTO KAUKALO KENTTÄ KSS AN HENKILÖKUNTA AA O EN E LE-AP ap pp HLÖKUNTA 13 pp 20 pp SESITTÄMINEN PÖLKYT SÄÄN TUTKIMINENP VK AK LPA VL AR LP P AO P LP REPOKANKAANTIE LOUH TIE TIKANKATU AO KU II +95.10 +99.10 2 3 3 6 6 YO LEHTONIEMI -REPOKANKAAN ALAKOULUN LUONNOSSUUNNITTELU Opinnäytetyö Eveliina Hämäläinen 28.4.2022 LIITE 2 TONTIN ALA 14428 m² KERROSALAT 1. kerros 2957.5 m² 2. kerros 2081.0 m² yht. 5038.5 m² HYÖTYALA 3502.0 m² MERKINNÄT asf asfaltti nu nurmikko srmr soramurska laat pihalaatoitus hiek hiekka ta turva-alusta kuor kuorikate pp polkupyöräpaikka ap autopaikka le-ap liikuntaesteisten autopaikka +0.00 +4.00 -0.40 +10.15 +9.15 +11.15 +9.15 +10.15 +11.41 1 19 1 15 1:16 1 24 3700 3700 4000 7700 TEKSTIILITYÖ KUVATAIDE MUSIIKKI TK VAATESÄILYTYS NÄYTTÄMÖ RUOKALA AULA TUOLIVAR OPPIMISTORI KÄYT ESIKOULUN MONITOIMITILA - KÄYT -0.40 4000 3700 3700 +0.00 +4.00 +11.15 -0.40 -0.02 KÄYT KÄYT KIRJASTO NEUVOTTELU TAUKO + TYÖTILA -REPOKANKAAN ALAKOULUN LUONNOSSUUNNITTELU LEIKKAUS A-A LEIKKAUS A-B +4.00 +9.15 +9.15 1 6+0.00 +11.15 -0.40 -0.02
Opinnäytetyö Eveliina Hämäläinen 28.4.2022
LEIKKAUS A-A
LEIKKAUS A-B
73

Loppusanat

RAkeita-julkaisu on lukuvuoden 2021–22 aikana Savonia ammattikorkeakoulun rakennusarkkitehtuurin ammattiopinnoissa syntyneistä harjoitustöistä. Tämän läpileikkauksen kautta on nähtävissä kehittyminen opiskelemaan opiskelevista ykkösisistä neljännen vuoden, koko koulutuksen käyneisiin, työelämään valmiisiin rakennusarkkitehteihin.

Rakennusarkkitehtuurin ammattiopintojen opintojaksot koostuvat teoriaopinnoista ja niitä soveltavista harjoitustöistä. Opintojaksot esitellään julkaisussa ensimmäisen vuoden opinnoista alkaen - edeten toisen, kolmannen ja neljännen vuoden opintoihin ja opinnäytetöihin asti. Jokaiselta esitellyltä opintojaksolta julkaisuun on valikoitu muutamia töitä, joiden pohjalta hahmottuu opintojaksolla tehtyjen harjoitustöiden oppimistavoitteet ja sisältö.

Näihin julkaistuihin ja julkaisemattomiin harjoitustöihin sisältyy tuhansia tunteja oppimisien tuskaa ja luomisen iloa, lukematon määrän yritystä, erehdystä, oivallusta, epätoivoa ja onnistumisia. Töiden tekijät ovat janonneet oppia, etsineet tietoa, luoneet ja luonnostelleet usein itseään säästelemättä, innolla ja ilolla.

Lukuvuonna 2021–22 rakennusarkkitehtuurin ammattiopintoja ovat opettaneet ja harjoitustöitä ohjanneet yliopettaja

Janne Repo, lehtori Mari Piipponen, lehtori Tuulikki Höglund sekä tuntiopettaja Mika Leinonen.

Keväällä 2022 pidettiin Savonian Microkadun Kampussydämessä arkkitehtuurimatinea ja sen yhteydessä näyttely opintojaksojen harjoitustöistä. Näyttelyssä esillä olleista töistä on suurelta osin valikoitu työt myös tähän julkaisuun. Savonian rakennusarkkitehtiopintojen arkea ja juhlaa on nähtävissä myös intagram-tilillä @savonia_rakennusarkkitehtuuri.

Turn static files into dynamic content formats.

Create a flipbook
Issuu converts static files into: digital portfolios, online yearbooks, online catalogs, digital photo albums and more. Sign up and create your flipbook.