RAKeita

Page 1

RAKEITA

TEKNIIKAN ALA

TOIMITTANUT: JANNE REPO

MARI PIIPPONEN TUULIKKI HÖGLUND HELENA ARONEN

SAVONIA RAKENNUSARKKITEHDIN OPINNOT 2022-2023
1/2024

Savonia-ammattikorkeakoulu

Julkaisutoiminta

PL 6

70201 KUOPIO

julkaisut@savonia.fi

Copyright © tekijät ja Savonia-ammattikorkeakoulu

Teksti, kuviot ja taulukot CC BY-SA 4.0 1. painos

ISBN 9978-952-203-335-2

ISSN 2343-5496

Savonia-ammattikorkeakoulun julkaisusarja 1/2024

Kustantaja: Savonia-ammattikorkeakoulu

Kansikuva: Katariina Heikkilä ja Jaana Peltokangas

Taitto ja ulkoasu: Senja Kamula

Alkusanat

Rakennusarkkitehdin tutkintokoulutuksen opinnot muodostuvat pääasiassa rakennussuunnitteluun liittyvistä opintojaksoista, joissa teoriatietoa sovelletaan erilaisissa käytännönläheisissä harjoitustöissä. Arkkitehtuurin peruskäsitteisiin, kuten massaan, muotoon, tilaan, pintaan, materiaaliin ja rakenteeseen tutustutaan opintojen alussa pienen mittakaavan suunnittelutehtävissä. Kun taidot, tiedot ja kokemus karttuvat, harjoitustöiden koko ja vaativuus kasvavat vuosi vuodelta.

Opintojen ensimmäisenä vuotena suunnitellaan minitalo ja oho-rakennus, sekä pientaloprojektissa yksikerroksinen pientalo yhteistyössä rakennustekniikan opiskelijoiden kanssa.

Toisena opiskeluvuotena syvennetään pientalosuunnittelun osaamista loma-asunnon ja kaksikerroksisen pientalon suunnitelmilla. Kerrostalon suunnitteluun tutustutaan 2. vuoden kerrostaloprojektissa yhteistyössä rakennustekniikan opiskelijoiden kanssa. Toisen vuoden opinnoissa suunnittelun mittakaava laajenee myös kaupunkisuunnitteluun ja kaavoitukseen.

Kolmantena opiskeluvuotena syvennytään perinpohjaisesti kerrostalosuunnitteluun. Opintoihin tulee tällöin mukaan myös pientalojen ja kerrostalojen korjaussuunnittelua, sekä erityisesti energiatehokkuuteen keskittyvää alue- ja rakennussuunnittelua. Kolmantena vuotena otetaan myös askel julkisen rakentamisen suuntaan yhteisessä padel-halliprojektissa rakennustekniikan opiskelijoiden kanssa.

Neljäntenä opiskeluvuotena keskitytään julkisiin rakennuksiin sekä uudisrakentamisen, että korjausrakentamisen suunnittelun muodossa. Suunnittelukenttää laajennetaan nykyarkkitehtuuriin sekä kuvataiteisiin tutustumisella. Neljännen opintovuoden syksyllä harjoitellaan myös konsulttitoimintaa asiakasprojekteissa ja samalla valmistaudutaan kevään opinnäytetöiden tekemiseen.

Rakennusarkkitehdin tutkinnon suoritettuaan valmistuvilla rakennusarkkitehdilla on koulutukselliset valmiudet erilaisten rakennuskohteiden arkkitehtisuunnitteluun ja vaativien rakennuskohteiden kuten esim. kerrostalojen pääsuunnitteluun. Suunnittelijapätevyyteen vaaditaan koulutuksen lisäksi myös valmistumisen jälkeistä työkokemusta. Työkokemusta kartutetaan opintojen aikana yritysprojektissa konsulttitoimintaa harjoitellen, kesälukukausien harjoitteluopintojaksoilla, ja lopuksi vielä työelämään liittyvän opinnäytetyön muodossa.

4

Arkkitehtuurin perusteet s.06

Sommittelu ja visualisointi s.12

Akkitehtuuri 1 loma-asunto s.18

Akkitehtuuri 2 pientalo s.22

3D-visualisointi s.26

Kaavoitus ja maankäyön suunnittelu s.30

Puu- ja teräsrakenteet s.34

Betonirakenteet s.38

Akkitehtuuri 3 kerrostalo s.42

Akkitehtuuri 4 kerrostalo s.46

Korjaussuunnittelu 2 s.50

Energiatehokas- ja ekologinen rakennussuunnittelu s.54

Akkitehtuuri 5 julkinen rakennus s.58

Korjaussuunnittelu 3 s.62

Contemorary architecture & art s.66

Opinnäytetyö s.70

5
1.Vuosikurssi 3. Vuosikurssi 2. Vuosikurssi 4.Vuosikurssi

Arkkitehtuurin perusteet (Teoria ja Historia)

Opintojaksolla tutustutaan arkkitehtuurin toiminnalliseen, taiteelliseen, tekniseen, taloudelliseen ja ekologiseen ulottuvuuteen sekä arkkitehtuurin merkitykseen ihmisten ja yhteisöjen hyvinvoinnin lähtökohtana. Tarkoituksena on oppia arvioimaan rakennettua ja luonnon ympäristöä sekä rakentamisen moninaisia olosuhteita.

Opintojaksolla perehdytään myös länsimaisen ja suomalaisen rakennushistorian kehitysvaiheisiin ja eri aikakausina tapahtuneen rakennustekniseen ja tyylilliseen kehitykseen. Tavoitteena on ymmärtää arkkitehtuurin merkitys kulttuurien kehityksessä siten, että opiskelija tunnistaa rakennetusta ympäristöstä historiallisia kerrostumia rakennusten arkkitehtonisten tyylipiirteiden avulla ja osaa arvottaa niitä omassa suunnittelutyössään.

Opintojaksolla on arkkitehtuurin teoriaan ja historiaan liittyviä tunti- ja viikkoharjoituksia. Teoriaosuuden tuntiharjoitukset ovat nopeita, luovuutta ja ideointitaitoa kehittäviä pikaharjoituksia. Viikkoharjoituksissa arkkitehtuurin peruskäsitteisiin tutustutaan annettuja aiheita omakohtaisesti pohdiskellen, mutta hyvin käsinkosketeltavalla tavalla. Arkkitehtonisen massan, muodon, tilan, pinnan ja rakenteen ilmenemät ja opiskelijan henkilökohtaiset oivallukset kootaan yhteen ja esitellään reflektion kera arkkitehtuurin perusteiden portfoliossa.

Synteesinä ja sovelluksena arkkitehtuurin teorian opetussisällöistä on opiskelijan minitalon suunnittelutehtävä. Suunnittelutehtävässä suunniteltiin itselle, omien mittojen mukainen minitalo (20 hum2) Brahenpuiston näköalatasanteelle. Harjoitustyön avulla tutustuttiin arkkitehtisuunnittelun menetelmiin ja työvälineisiin, kuten luonnosteluun, rakennuspiirustuksiin, pienoismalleihin ja valokuvaukseen. Harjoitustyössä sovellettiin henkilökohtaisena tulkintana arkkitehtuurin teoriassa esille tulleita aiheita kuten paikka, massa ja muoto, tila ja toiminta, pinta ja materiaalit, valo jne.

Historiaosuudessa tutustutaan länsimaisen arkkitehtuurin kehitysvaiheisiin alkaen esihistorian primitiivirakentamisesta päätyen antiikin Kreikan ja Rooman kautta modernin ajan sekä nykypäivän arkkitehtuuri-ilmiöihin. Harjoitustyönä historiaosuudessa opiskelija suunnittelee ja piirtää historiallisen julkisivun.

6 Arkkitehtuurin perusteet
Julia Häkkinen

Arkkitehtuurin perusteet

7
Pinja Takkinen Inspiroiva muoto
Arkkitehtuurin perusteet

Outi Honkainen

Minitalo

Arkkitehtuurin perusteet

Arkkitehtuurin perusteet

8

Minitalo

Arkkitehtuurin perusteet

9
Kimmo Utriainen
perusteet
Arkkitehtuurin

Kimmo Utriainen

Historiallinen julkisivu

Arkkitehtuurin perusteet

Arkkitehtuurin perusteet

10

Historiallinen julkisivu

Arkkitehtuurin perusteet

11
Pinja Takkinen
Arkkitehtuurin perusteet

Sommittelu ja visualisointi

Rakennusarkkitehtuurin opiskelu on sekä tekniikkaa että taidetta. Sommittelun osuudessa harjoitellaan luonnostelua käsin piirtäen sekä erilaisia graafisen ilmaisun keinoja.

Rakennusarkkitehdin on tärkeää osata välittää suunnittelutavoitteensa ja mielessään olevat suunnitteluratkaisut visuaalisessa muodossa. Visualisointi-osuudessa opiskellaan erilaisia tekniikoita ja esitystapoja omien suunnitelmien havainnollistamiseksi.

Opintojaksolla opiskeltiin sommitteluperiaatteita ja niiden yhteyttä rakennettuun ympäristöön teorian, erilaisten esimerkkien ja viikkoharjoitusten kautta.

Sommitteluosuuden projektityönä suunniteltiin OHO!-rakennus Kuopioon Piispanpuiston laidalle. Työssä tavoitteena oli luoda tyylikäs ja huomioita herättävä rakennelma, jossa keskityttiin rakennuksen massoitteluun ja arkkitehtoniseen muodonantoon. Samalla opittiin tekemään luonnosmainen pienoismalli ja julkisivupiirustukset.

Visualisointiosuudessa harjoiteltiin kuvankäsittelyohjelmaa sovittamalla oma minitalo haluttuun maisemaan. Graafista suunnittelua, kuvittamista ja värien yhdistelemistä harjoiteltiin Kuopio-juliste tehtävässä.

Opintojakson päätteeksi koottiin kaikki harjoitustyöt yhteen portfolioon, jonka teossa hyödynnettiin opintojakson aikana opittuja sommittelun periaatteita.

12
Sommittelu ja visualisointi Kondrad Aura

Lumi Myllylä

Platoniset solidit

Sommittelu ja visualisointi

sommittelu ja visualisointi

13

Arkkitehtuurin

14
Antti Virtanen Magic box perusteet Sommittelu ja visualisointi

OHO!-rakennus

Arkkitehtuurin perusteet sommittelu

15
Lumi Myllylä
ja visualisointi

Kondrad Aura

Kuopio- juliste

Sommittelu ja visualisointi

Sommittelu ja visualisointi

16

Sommittelu ja visualisointi

sommittelu ja visualisointi

17
Milla Hämäläinen Entre-exit

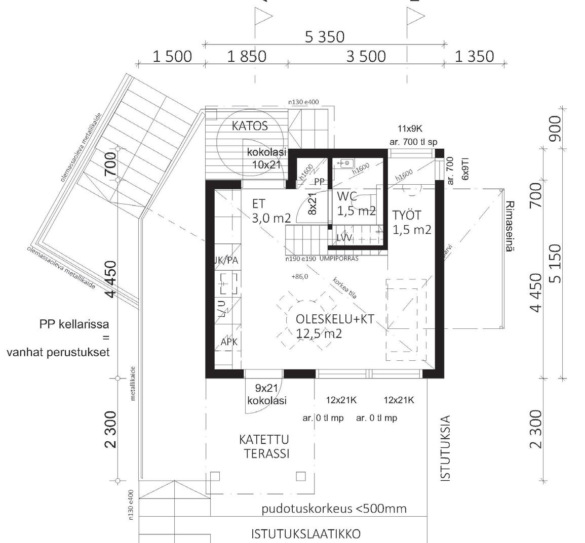
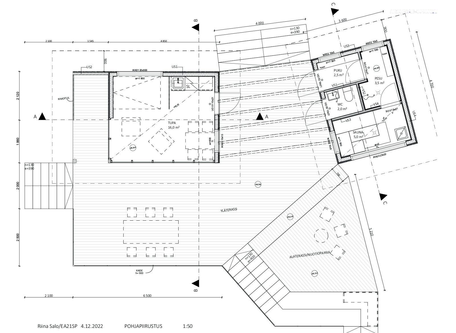
Arkkitehtuuri 1 (loma-asunto)

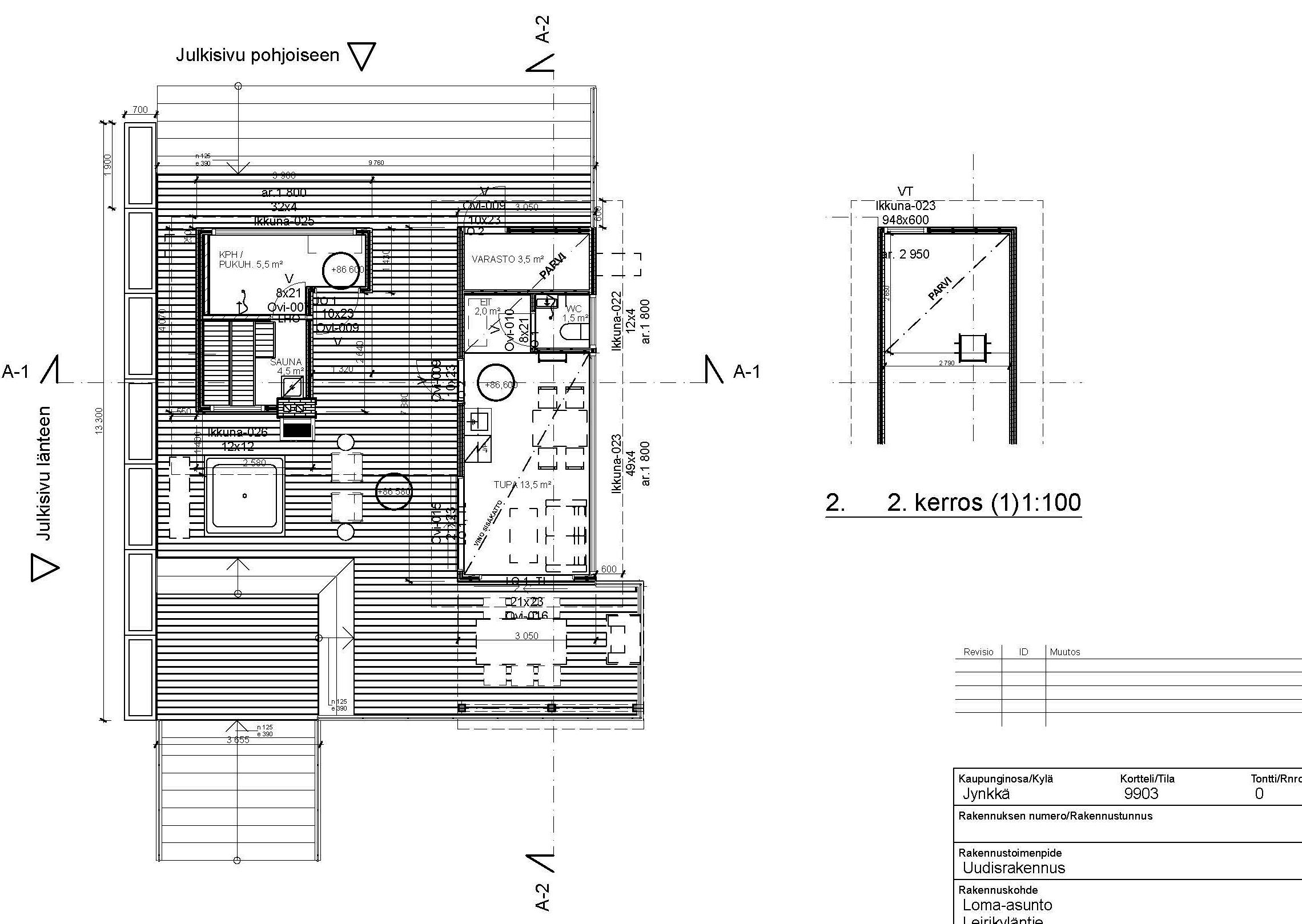
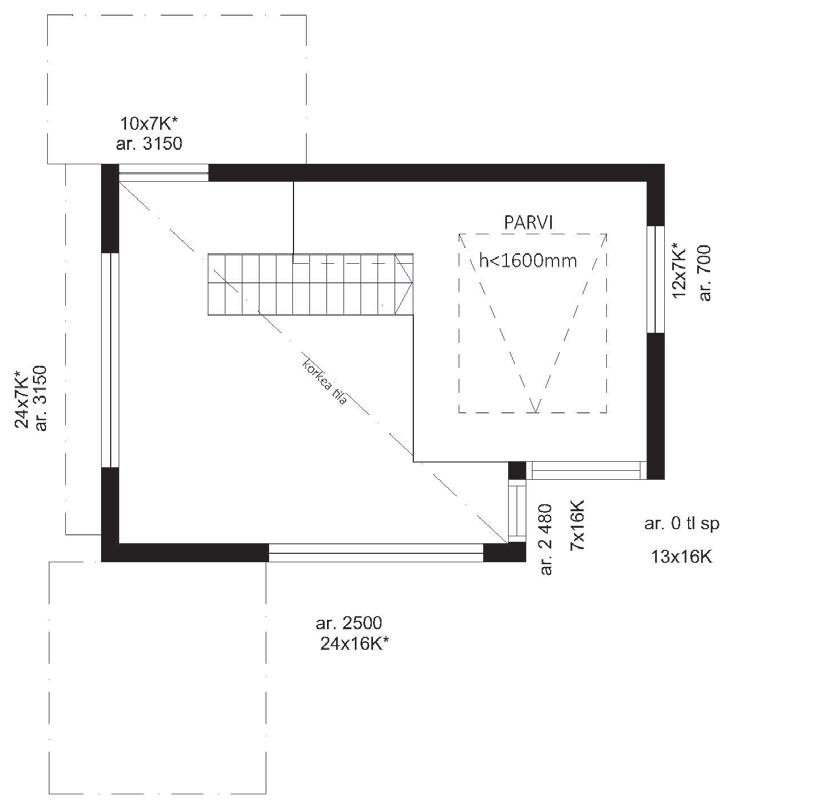
Opintojaksolla perehdytään loma-asuntojen arkkitehtuurisuunnitteluun. Aihetta lähestytään tutkimalla vapaa-ajan asunnon toiminnallisuutta, asukkaiden tarpeita ja tapoja toimia. Harjoitustyössä opetellaan analysoimaan mm. rakennuspaikkaa, ilmansuuntia ja näkymiä ja huomioimaan nämä suunnittelun lähtökohtana. Tehtävään tutustutaan analysoimalla eri lähteistä löytyvyiä loma-asuntokohteita.

Tehtävänä oli suunnitella rantaan sijoittuva vapaa-ajan rakennus neljälle hengelle. Suunnittelutehtävään annettiin valmiiksi määritelty tilaohjelma, joka käsitti mm. puulämmitteisen saunan, saunatuvan ja osittain katetun terassin. Harjoitustyössä opeteltiin rakennuksen sijoittamista annettuun rakennuspaikkaan sekä tilojen mitoitusta, kalustettavuutta ja toimivuutta.

Samanaikaisesti Arkkitehtuuri 1 -opintojakson kanssa opiskelijoilla oli mahdollisuus osallistua BIM-soveltaviin kursseihin, joissa he oppivat käyttämään Archicad-ohjelmaa. Harjoitustyö toteutettiin tietomallina, josta pääpiirustukset laadittiin.

Harjoitustyötä tehtiin ohjatusti ja itsenäisesti useassa vaiheissa alustavista tavoitteista ja luonnoksista pääpiirustuksiin. Lopputuloksena syntyi pääpiirustustasoiset asemapiirustus, pohjapiirustus, leikkauspiirustukset ja julkisivupiirustukset sekä havainnekuvia.

Arkkitehtuuri 1

18
Outi Honkanen

Arkkitehtuuri 1

19 Tiina Mieloinen Loma-asunto
Arkkitehtuuri 1 KERROSALA LOMA-ASUNTO Leirikyläntie KUOPIO KIINTEISTÖTUNNUS 297-25-9903-0 PINTA-ALA +89,951 +91,618 +92,135 +90,173 +90,866 +87,268 +87,299 +87,600 +85,837 4 Julkisivu länteen (1) 1:100 3 Julkisivu etelään (1) 1:100 +91,618 +90,866 86.1
KERROSALA Tupa 24 m² Sauna 12m² LOMA-ASUNTO Leirikyläntie KUOPIO KIINTEISTÖTUNNUS 297-25-9903-0 TONTIN PINTA-ALA 2 842 m² AO II e=0.25 2 ap/as etä-1=2 Tiina Mielonen EA21SP +89,951 +91,618 +92,135 +90,173 +90,866 +87,268 +87,299 +87,600 +85,837 4 Julkisivu länteen (1) 1:100 3 Julkisivu etelään (1) 1:100 +91 618 +90 866 +90 173 YP2 US1 YP1 10° +91,618 +89,654 +89,769 +86,580 +87,600 +86,580 +87,580 +87,319 +86,345 +85,886 (+85,586) +85,851 (+85,586) +90,866 1 Julkisivu itään (1) 1:100 2 Julkisivu pohjoiseen (1) 1:100 Julkisivu Pohjoiseen Julkisivu Länteen
83.3

Riina Salo

Loma-asunto

Arkkitehtuuri 1

20 Arkkitehtuuri 1
1. +89,781 +90,084 +86,550 900 3 00 1 2 3 4 5 6 1 20 GSEduca GSEduca US3 IKK02 10x5 ar=1 560 IKK02 10x5 ar=1 560 UO 02 10x21 O UO 02 10x21 O UO 01 10 x 21 O SO 01 9x21 V SO 01 9x21 O 3 600 4 700 900 4 000 +86,660 C B A US4 VS1 VS3 VS2 VS4 n=130 e=390 AK2255 PENKKI PENKKI PUKU 2 5 m2 WC 2 0 m2 PESU 3,5 m2 4 600 600 4 850 6 500 4 000 3500 3 000 13 770 +85,508 +85,724 +85,760 +85,528 +85,911 +85,597 +85,595 +85,821 +86,600 +86,660 +86,550 TUPA SAUNA I 75 153 7447 4581 VARAUS AUTOTALLILLE NO20 YLÄTERASSI ALATERASSI/NUOTIOPAIKKA LAITURI LAAJUUSTIEDOT: ala: 2829 m2 Rakennusoikeus: 2829 m2 x 2 rakennusoikeus: 36 m2
17,0
Kerrosala:
m2 19,0 m2 36,0 m2

1.

21 RevisioIDMuutos Kaupunginosa/Kylä Kuopio Kortteli/Tila #Kortteli/tila Tontti/Rnro 39 Rakennuksen numero/Rakennustunnus 1 Rakennustoimenpide Uudisrakennus Rakennuskohde MUSH Leirikyläntie 39 70780 Kuopio Suunnittelijan yhteystiedot: yritys, osoite ja puhelinnumero Microkatu 1 (KOULU) 7080 Kuopio Opiskelija Aino Uotila Oy 000 Vastuullinen suunnittelija: nimi, tutkinto, allekirjoitus ja päiväys Rakennusarkkitehti opiskelija Aino Uotila rakennussuunnittelu +5,302 +5,194 +4,373 -1,000 ±0,000 +3,000 -0,234 3 296 US1 US1 VS2 VS2 VS1 MUKAISESTI YP1 AP1 0°-22° S-02 Leikkaus 1:100 Arkkitehtuuri 1 (loma-asunnot) Arkkitehtuuri 1 Aino Uotila Loma-asunto Arkkitehtuuri 1 2 133 15 358 3 171 3 803 6 9 7 4 17 488 400 +89,000 +89,000 S-02 JK VNOSSÄKATTOh 3400 VNOSSÄKATTOh=34 0 MH/OH 5,0m2 WC 2,0m2 11,0m2 K+RT 2,0m2 ET PH S VAR 2,0m2 5,0m2 UO1 900 x 2300 UO2 900 x 2300 UO3 900 x 2300 UO4 1400x2100 IKK 1500x500 IKK 500x500 IKK 4500x2000 IKK 600x1200 IKK 1800x2000 2,0m2 S O 1 8 0 0 x 2 1 0 0 SO2 900x2100 e=300 n=130 lasikaide h=1000 käsijohde h=1000 US2 US1 US2 VS1 VS2 VS3 +89,000 ar=900 TL TL TL TL ar=0 ar= 900 AP +89,000 +89,000 +89,000 TERASSI KATETTU TERASSI 1m 6m 2 133 15 358 3 171 3 803 6 9 7 4 17 488 400 +89,000 +89,000 S-02 JK VNOSISÄKATTOh 3400 VNOSSÄKATTOh 3 00 MH/OH 5,0m2 WC 2,0m2 11,0m2 K+RT 2,0m2 ET PH S VAR 2,0m2 5,0m2 UO1 900 x 2300 UO2 900 x 2300 UO3 900 x 2300 UO4 1400x2100 IKK 1500x500 IKK 500x500 IKK 4500x2000 IKK 600x1200 IKK 1800x2000 2,0m2 S O 1 8 0 0 x 2 1 0 0 SO2 900x2100 e=300 n=130 lasikaide h=1000 käsijohde h=1000 US2 US1 US2 VS1 VS2 VS3 +89,000 ar=0 TL TL TL TL TL ar=600 ar=0 ar= 900 AP +89,000 +89,000 +89,000 TERASSI KATETTU TERASSI 1m 6m 1. 1. kerros (8) 1:100 2 133 15 358 3 171 3 803 6 9 7 4 17 488 400 +89,000 +89,000 S-02 JK VNOSSÄKATTOh 3400 VNOSSÄKATTOh=3 00 MH/OH 5,0m2 WC 2,0m2 11,0m2 K+RT 2,0m2 ET PH S VAR 2,0m2 5,0m2 UO1 900 x 2300 UO2 900 x 2300 UO3 900 x 2300 UO4 1400x2100 IKK 1500x500 IKK 500x500 IKK 4500x2000 IKK 600x1200 IKK 1800x2000 2,0m2 S O 1 8 0 0 x 2 1 0 0 SO2 900x2100 e=300 n=130 lasikaide h=1000 käsijohde h=1000 US2 US1 US2 VS1 VS2 VS3 +89,000 ar=900 TL TL TL TL ar=0 ar= 900 AP +89,000 +89,000 +89,000 TERASSI KATETTU TERASSI 1m 6m
kerros (8) 1:100 RevisioIDMuutos 2 133 15 358 3 171 3 803 6 9 7 4 17 488 400 +89,000 +89,000 S-02 JK VNOSSÄKATTOh 3400 VNOSSÄKATTOh 400 MH/OH 5,0m2 WC 2,0m2 11,0m2 K+RT 2,0m2 ET PH S VAR 2,0m2 5,0m2 UO1 900 x 2300 UO2 900 x 2300 UO3 900 x 2300 UO4 1400x2100 IKK 1500x500 IKK 500x500 IKK 4500x2000 IKK 600x1200 IKK 1800x2000 2,0m2 S O 1 8 0 0 x 2 1 0 0 SO2 900x2100 e=300 n=130 lasikaide h=1000 käsijohde h=1000 US2 US1 US2 VS1 VS2 VS3 +89,000 ar=0 TL TL TL TL TL ar=600 ar=0 ar= 900 AP +89,000 +89,000 +89,000 TERASSI KATETTU TERASSI 1m 6m 1. 1. kerros (8) 1:100

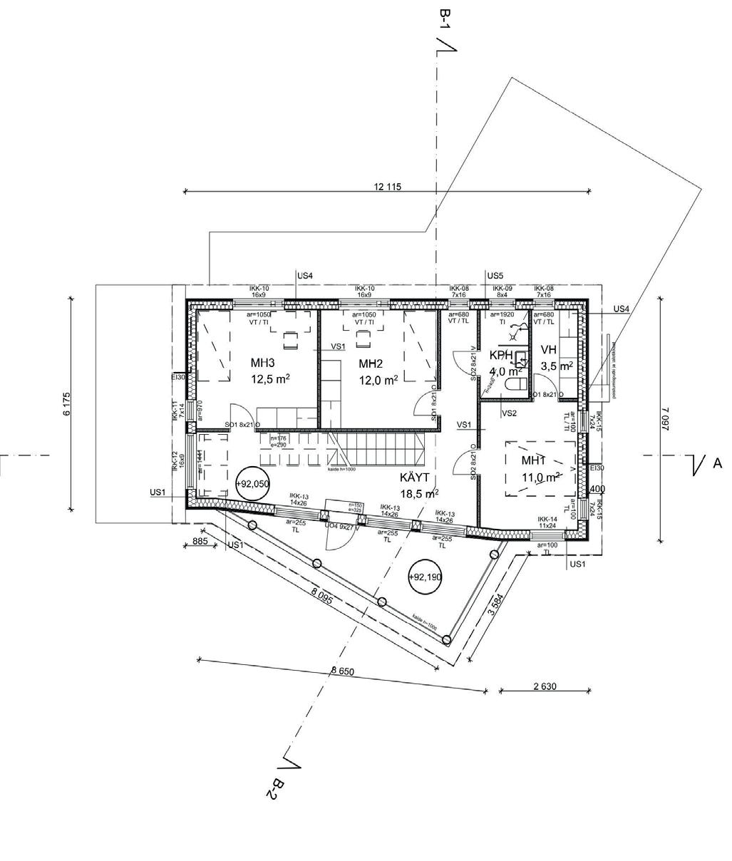
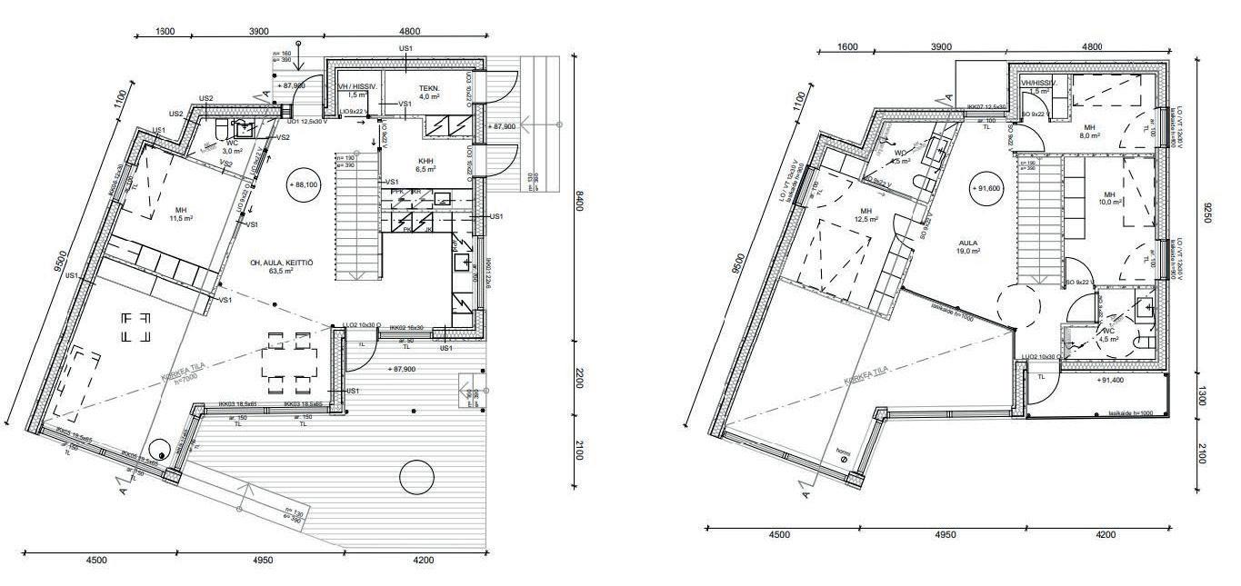
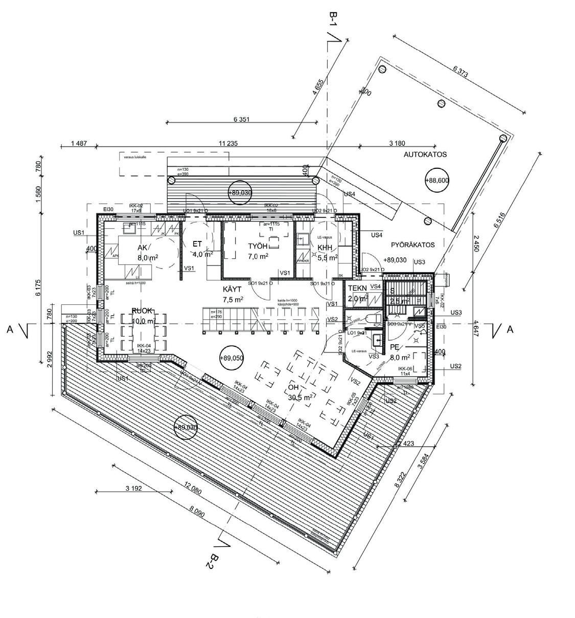
Arkkitehtuuri 2 (pientalo)

Opintojaksolla syvennetään osaamista pientalojen rakennus- ja asuntosuunnittelusta. Tavoitteena on oppia suunnittelemaan toimiva, tiloiltaan ja mitoitukseltaan tarkoituksenmukainen koti määritellylle perheelle ja laatia pientalon pääpiirustukset rakennusmääräykset huomioiden.

Teorialuennoilla käsitellään muun muassa rakennuksen massoittelua, tilallisuutta, rakennusmateriaalien ja värien käyttöä sekä rakennuksen yksityiskohtia arkkitehtuurin ilmaisukeinoina ja pyritään soveltamaan teoriaa harjoitustyössä.

Tehtävänä oli suunnitella kaksikerroksinen pientalo samalle tontille kuin Arkkitehtuuri 1 -opintojaksolla suunniteltu loma-asunto. Opintojakson alussa tutustuttiin erilaisiin pientaloihin tekemällä pientaloanalyysi, joka esiteltiin muille opiskelijoille.

Suunnittelutyö alkoi asiakasperheen määrittämisellä ja perheen elämäntapojen ja tarpeiden pohtimisella, mikä toimi pohjana pientalon tilaohjelman laatimiselle ja suunnittelutyön tavoitteille.

Harjoitustyö eteni vaiheittain, ja opiskelijat oppivat käytännön rakennussuunnitteluprosessin etenemistä. Välivaiheissa töitä esiteltiin ja arvioitiin myös vertaisarvioinnin avulla. Revit- tai Archicad-ohjelmiston avulla luotiin tietomalli suunnitelmasta, josta tuotettiin lopulliset pääpiirustukset ja havainnekuvat.

22
Arkkitehtuuri 2
Mirva Ryhänen

Jasmin Naumanen

Pientalo

Arkkitehtuuri 2

23
2
Arkkitehtuuri

Ronja Ahola

Pientalo

Arkkitehtuuri 2

24
Arkkitehtuuri 2

Pientalo

Arkkitehtuuri 2

25 Arkkitehtuuri 2
Eemeli Lehmusoksa

3D-Visualisointi

Opintojaksolla opiskellaan luomaan vaikuttavia, selkeitä ja havainnollisia esittelymateriaaleja omista arkkitehtisuunnitelmista. Opintojakso on jaettu kolmeen eri osioon. Ensimmäisessä osiossa keskitytään 3D-visualisointiin, jossa opitaan luomaan valokuvamaisia havainnekuvia Archicad- ja Revit-ohjelmilla tietomallinnetuista suunnitelmista. Lisäksi tutustutaan arkkitehtuurivalokuvauksen perusteisiin ja tutkitaan suunnitelmien visuaalisia ominaisuuksia erilaisissa tilanteissa.

Toisessa osiossa keskitytään viestintään, jossa tutustutaan alan julkaisuihin ja harjoitellaan ammattimaisen esittelytekstin kirjoittamista.

Kolmannessa osiossa perehdytään graafiseen suunnitteluun, sommitteluun, typografiaan ja värien käyttöön, ja opiskellaan julkaisun tekemistä InDesign-ohjelmalla.

Opiskelijoiden tehtävänä oli luoda kolme vaakasuuntaista esittelyplanssia A1-kokoisena omasta Arkkitehtuuri 2 -opintojakson harjoitustyökohteesta. Plansseihin sisältyi paitsi esittelyteksti myös tyypilliset arkkitehtisuunnitelmien piirustukset, kuten lähestymiskartta, asemapiirustus, tonttileikkaus, pohjapiirustukset, leikkauspiirustukset, julkisivupiirustukset, 3D räjäytyskuva sekä havainnekuvia.

3D-visualisoinnin osuudessa opiskelijat loivat yksinkertaistetut rakennuspiirustukset ja havainnekuvat käyttäen Enscapea, Twinmotionia, Vrayta ja Photoshopia. Viestinnän osuudessa tuotettiin esittelyteksti, ja kuvat sekä teksti aseteltiin yhtenäiseksi esittelyplanssisarjaksi InDesign-ohjelmalla.

26 3D-visualisointi
Eemeli Lehmusoksa

Sonja Mykkänen

3D-visualisointi & Arkkitehtuuri 2

27
3D-visualisointi
28 3D-visualisointi
Riina Salo 3D-visualisointi & Arkkitehtuuri 2

3D-visualisointi & Arkkitehtuuri 2

29
3D-visualisointi
Outi Honkanen

Kaavoitus ja maankäytön suunnittelu

Opintojaksolla laajennetaan näkemystä arkkitehtuurista kaupunki- ja ympäristösuunnitteluun sekä kaupunkirakennustaiteeseen. Kurssilla opitaan laatimaan maankäyttösuunnitelma ja asemakaavakartta asuinalueelle.

Kurssin aikana tutustutaan erilaisiin asuinalueiden piirteisiin, rakennemalleihin, kaupunkikuvaan ja kaupunkitilaan. Lisäksi pohditaan, millainen on kaupunkiin sijoittuva laadukas ja toimiva asuin- ja elinympäristö ja miten huomioidaan erilaiset liikennemuodot ja maankäyttö.

Tehtävänä oli laatia maankäyttösuunnitelma suunnitteilla olevan Vanuvuoren kaupunginosan keskustakortteleille. Harjoitustyöhön saatiin tavoitteita, lähtökohtia ja reunaehtoja Kuopion kaupungin strategisen maankäytön suunnittelusta ja suunnitelman pohjana toimi Vanuvuoren osayleiskaavaluonnos. Maankäyttösuunnitelmissa tutkittiin asemakaavatason ratkaisuja, joilla voitiin sovittaa alueelle suunnitellut toiminnot, liikennejärjestelyt ja asukasmäärä.

Harjoitustyö toteutettiin pareittain ja ensin tutustuttiin alueeseen ja lähtöaineistoihin sekä määritettiin suunnitelmalle asetetut tavoitteet. Tämän jälkeen tarkennettiin osayleiskaavaa hahmottelemalla erilaisia rakennemalleja, joiden pohjalta luonnosteltiin maankäyttösuunnitelmia. Lopullisista suunnitelmista luotiin sekä 2D- että 3D-havainnekuvat sekä asemakaavakartta määräyksineen.

Kaavoitus ja maankäytön suunnittelu

30
Ella Kämäräinen ja Rose Hartikainen

Mirva Ryhänen ja Sonja Mykkänen Vanuvuoren keskuskorttelit

Kaavoitus ja maankäytön suunnittelu

31
ja
Kaavoitus
maankäytön suunnittelu

Riina Salo ja Salla Rönkkö Vanuvuoren keskuskorttelit

Kaavoitus ja maankäytön suunnittelu

Kaavoitus ja maankäytön suunnittelu

32

Kimmo Utriainen ja Eemeli Lehmusoksa

Vanuvuoren keskuskorttelit

Kaavoitus ja maankäytön suunnittelu

33
ja maankäytön suunnittelu
Kaavoitus

Puu- ja teräsrakenteet

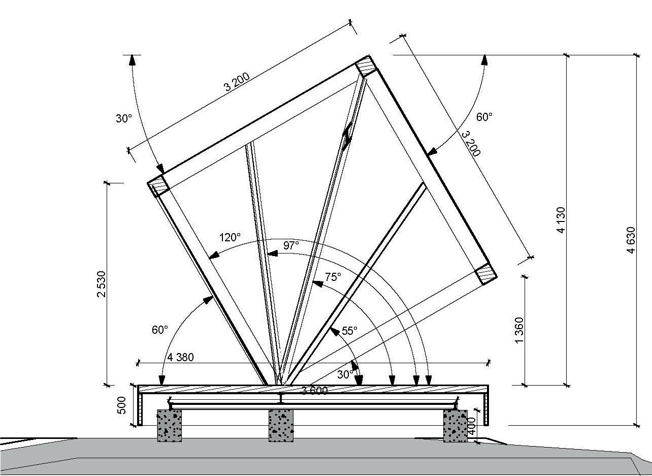
Opintojaksolla tutustutaan puusta ja teräksestä tehtyihin arkkitehtonisiin rakenteisiin, rakenteiden ominaisuuksiin ja mitoitusperiaatteisiin. Opintojaksolla tehdään aiheeseen liittyvä harjoitustyö, missä opiskelija pääsee pienessä mittakaavassa suunnittelemaan näkyviä rakenneliitoksia osana suunnittelukohteen kokonaisarkkitehtuuria.

Suunnittelutehtävänä oli puu- ja teräsrakenteinen, järven rannalle sijoittuva city-laavu, missä kaupunkilaisen on helppoa ja turvallista yöpyä ulkosalla, mutta suojassa tähtitaivasta ihaillen ja aaltojen ääntä kuunnellen. Suunnitelluista rakenteista tuli löytyä näkyviin jäävät puun ja teräksen väliset liitokset.

34
ja
Puu-
teräsrakenteet
Reetta Holopainen

City-laavu

Puu- ja teräsrakenteet

35 Puu ja teräsrakenteet
Reetta Holopainen

Puu- ja teräsrakenteet

36
Puu- ja teräsrakenteet Katja Saarivainio City-laavu

Tiina Mieloinen

City-laavu

Puu- ja teräsrakenteet

37
Puu ja teräsrakenteet

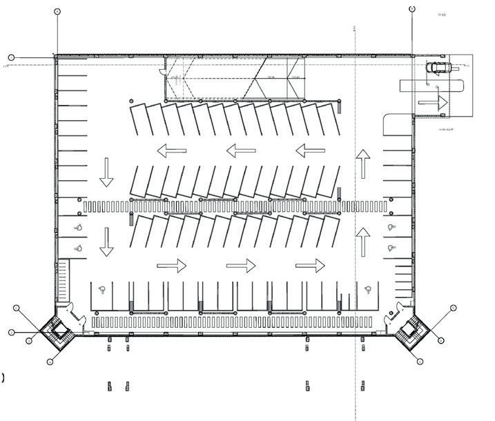
Betonirakenteet

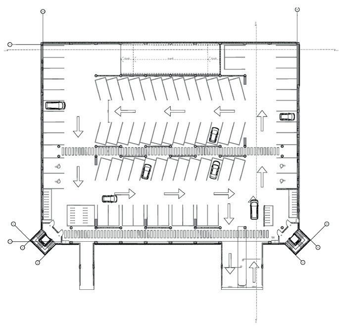
Opintojaksolla perehdytään teräsbetonisiin arkkitehtonisiin rakenteisiin, niiden ominaisuuksiin ja mitoitusperiaatteisiin. Osana opintojaksoa on harjoitustyö, jossa opiskelijat suunnittelevat betonirakenteiden näkyviä liitoksia osana kokonaisarkkitehtuuria.

Harjoitustyönä toteutettiin teräsbetonirakenteinen pysäköintitalo, joka suunniteltiin läpituulettuvaksi ilman perinteistä julkisivuverhousta. Tällä tavoin arkkitehtuurin keskeiseen rooliin nousee rakennuksen rakenteiden suunnittelu. Pysäköintitalon suunnittelualueena oli Niiralan lämpövoimalan monttu.

38 Betonirakenteet
Riina Salo

Pysäköintitalo

Betonirakenteet

39
Betonirakenteet
Katja Saarivainio

Reetta Holopainen

Pysäköintitalo

Betonirakenteet

Betonirakenteet

40

Riina Salo

Pysäköintitalo

Betonirakenteet

41 Betonirakenteet

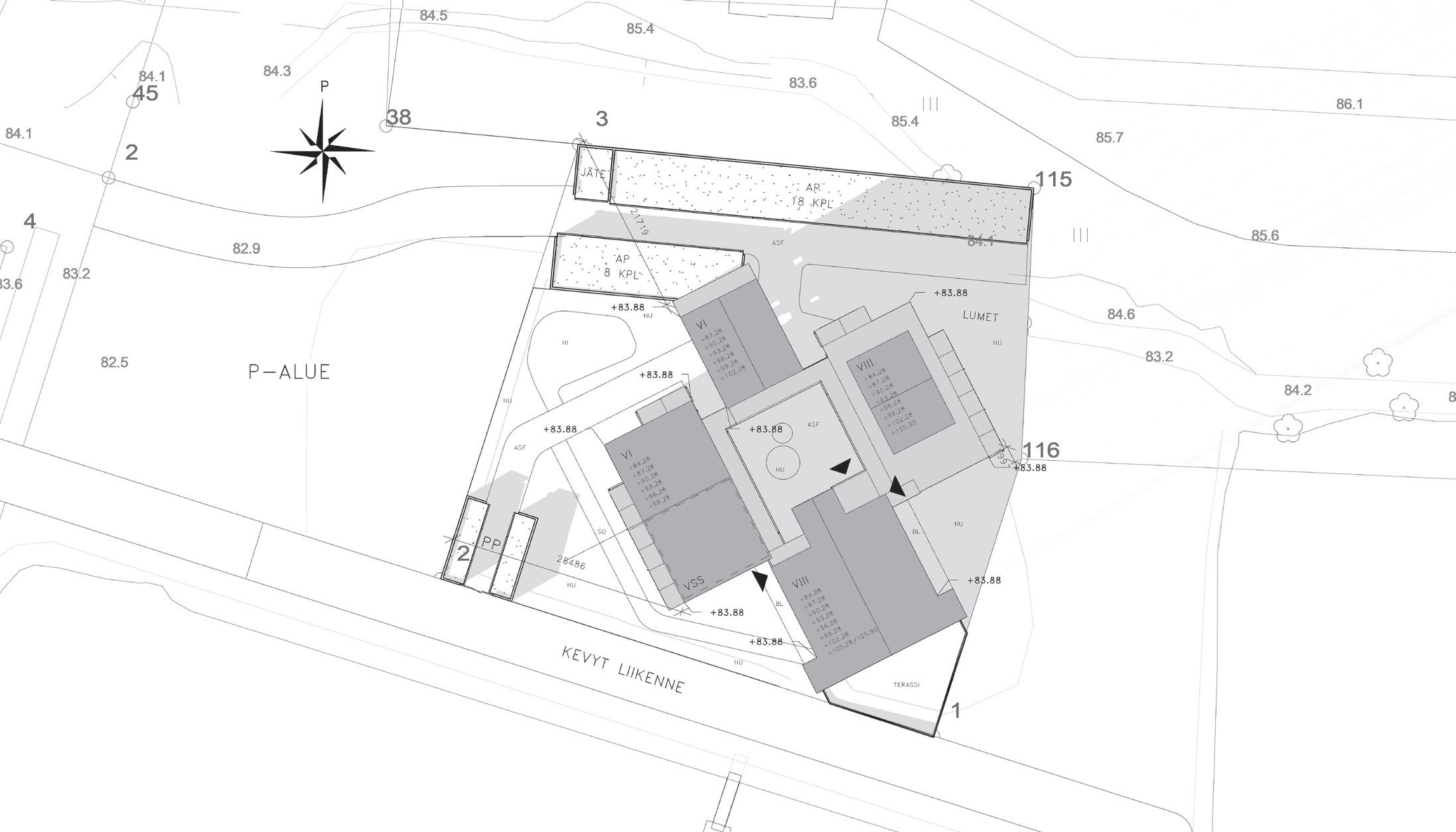
Arkkitehtuuri 3 (kerrostalo)

Opintojaksolla suunnitellaan asuinkerrostalo annetulle tontille asemakaavan mukaan. Harjoitustyössä keskitytään tontti- ja asuntosuunnitteluun kerrostalohankkeen pääpiirustuksia edeltävässä luonnossuunnitteluvaiheessa. Kerrostalosta laaditaan tietomalli ja siitä tulostetaan ennakkomarkkinointimateriaali havainnekuvineen.

Suunnittelualueena ja tonttina oli Itkonniemen rannalle sijoittuva rakentamaton tontti, jonka 5400 m2 rakennusoikeuden sai suunnitella yhteen, kahteen tai kolmeen kerrostalomassaan. Kerrosten enimmäismäärä oli kahdeksan. Haasteena tehtävässä oli hyödyntää rakennusoikeuden lisäksi myös mahtavat järvimaisemat asukkaiden iloksi sekä luoda suojaisa taloille yhteinen piha-alue. Arkkitehtuuri

42
3
Emilia Heiskanen

Kerrostalo

Arkkitehtuuri 3

43 Arkkitehtuuri 3
Emilia Heiskanen

Joona Kokkonen

Kerrostalo

Arkkitehtuuri 3

44 Arkkitehtuuri 3

Kerrostalo

Arkkitehtuuri 3

45 Arkkitehtuuri 3
Kaisa Reinikainen

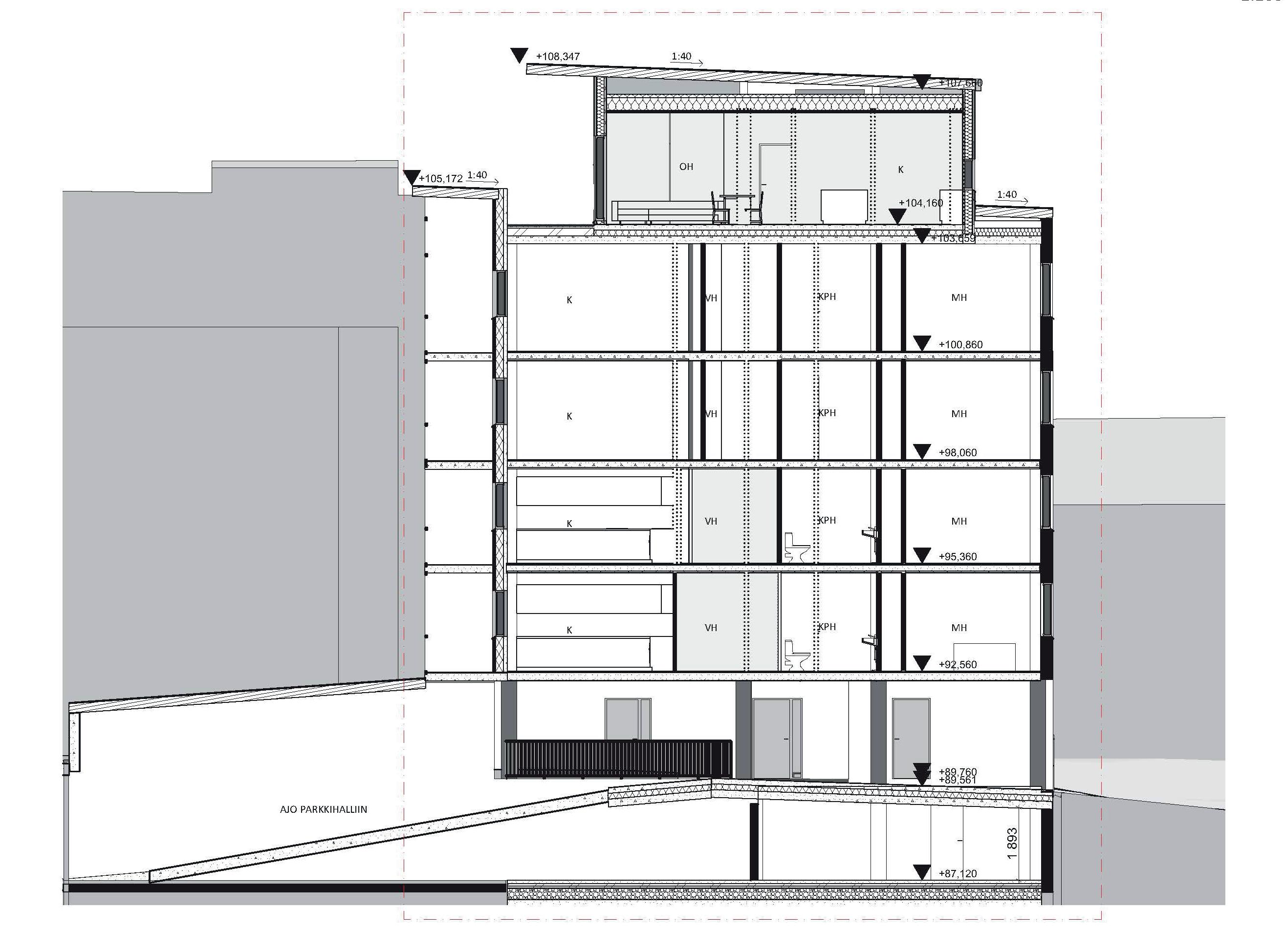
Arkkitehtuuri 4

Opintojaksolla jatketaan edellisen vaiheen kerrostalosuunnittelua etenemällä rakennuslupavaiheeseen ja toteutussuunnitteluun. Kerrostalon tietomallista tulostetaan pää- ja työpiirustukset. Suunnittelussa keskitytään kerrostalojen arkkitehtonisesti merkittävien yksityiskohtien suunnitteluun ja detaljipiirustuksiin.

Tavoitteena opintojaksolla on oppia hallitsemaan toteutussuunnitteluvaiheen tehtävät tietomallin, piirustusten ja selostusdokumentaation osalta.

46
Arkkitehtuuri 4 Vili-Oskari Timonen

Elviira Niininen

Kerrostalo

Arkkitehtuuri 4

47 Arkkitehtuuri 4

Tinka Tapaninen

Kerrostalo

Arkkitehtuuri 4

48
Arkkitehtuuri 4

Oskari Laaksoniemi

Kerrostalo

Arkkitehtuuri 4

49 Arkkitehtuuri 4

Korjaussuunnittelu 2 (kerrostalot)

Opintojakson pääpaino on laajentaa opiskelijoiden ymmärrystä ja näkemystä kerrostalon korjaushankkeista. Opiskelijat harjoittelevat kokonaisnäkemyksen muodostamista kerrostalon korjaustarpeista ja valitsemaan oikeat korjausratkaisut, noudattaen samalla korjausrakentamista koskevia säädöksiä ja ohjeita.

Tärkeänä osana korjausratkaisuja huomioidaan myös rakennuksen turvallisuuteen ja terveellisyyteen, kuten sisäilmastoon, vaikuttavat tekijät. Opintojakso koostuu korjaussuunnittelun teoriaosuudesta ja kerrostalon korjaussuunnitelman arkkitehtuurin osuudesta.

Arkkitehtuurin osuudessa tarkastellaan eri vuosikymmenien kerrostalojen ominaispiirteitä ja rakennusmateriaaleja. Opintojakson alussa opiskelijat tutkivat eri vuosikymmenien kerrostaloja ryhmätöinä. Lisäksi jokainen opiskelija laatii korjaussuunnitelman tietylle kerrostalolle.

Harjoitustyönä opiskelijat laativat korjaussuunnitelman 70-luvun kerrostalolle, joka sijaitsee Kuopion keskustassa Vuorikadulla. Opiskelijat laativat kukin oman korjaussuunnitelmansa. Tilaajana toimivalla taloyhtiöllä oli paljon erilaisia korjaustoiveita. Opiskelijan tehtävänä oli valita kiireellisimmät korjaustarpeet ja toteutuskelpoisimmat tilamuutokset. Aluksi opiskelijat määrittivät ryhmätöiden perusteella rakennuksen arvokkaat ja säilytettävät piirteet.

Kurssin lopputuloksena opiskelijat esittivät luonnostasoiset suunnitelmat korjattavasta kerrostalosta. Lisäksi he laativat valitsemistaan korjaustarpeessa olevista rakenteista olemassa oleva tilannetta vastaavat ja korjatut rakennepiirrokset.

50
2
Korjaussuunnittelu
Emilia Heiskanen

Ria Tamminen

Vuorikatu 44

Korjaussuunnittelu 2

51 Korjaussuunnittelu 2

Minna-Mari Meriläinen Vuorikatu 44

Korjaussuunnittelu 2

Korjaussuunnittelu 2

Vuorikatu 44

Korjaussuunnittelu 2

53 Korjaussuunnittelu 2
Kaisa Reinikainen
Energiatehokas-

ja egologinen rakennussuunnittelu

Opintojaksolla perehdytään rakentamisen ja maankäytön aiheuttamiin ympäristövaikutuksiin ja erityisesti rakennusten energiatehokkuuden kehittämiseen. Luentojen ja kirjallisuuden avulla tutustutaan keinoihin, millä energiaa voidaan säästää ja millä sitä voidaan tuottaa. Soveltavana harjoitustyönä suunnitellaan energiatehokas asuinalue ja sinne sijoittuvat asuinrakennukset. Harjoitustyössä on tarkoitus soveltaa teoriatietoa ja etsiä uusia ratkaisuja koko alueen ja yksittäisten rakennusten energiatehokkuuden parantamiseksi. Tietomallin avulla alueesta ja rakennuksista tehdään energia-analyysejä, joiden perusteella suunnitelmia kehitetään edelleen. Suunnitellulle rakennukselle määritetään E-luku.

54
Energiatehokas ja egologinen rakenussuunnittelu Emilia Heiskanen

Paulus Kähkönen

Asuinalue- ja rakennussuunnitelma

Energiatehokas- ja ekologinen rakennussuunnittelu

55 Energiatehokas ja egologinen rakennussuunnittelu

Veeti Marjo

Asuinalue- ja rakennussuunnitelma

Energiatehokas- ja ekologinen rakennussuunnittelu

Energiatehokas ja egologinen rakenussuunnittelu

56

Elviira Niininen

Asuinalue- ja rakennussuunnitelma

Energiatehokas- ja ekologinen rakennussuunnittelu

57 Energiatehokas ja egologinen rakennussuunnittelu

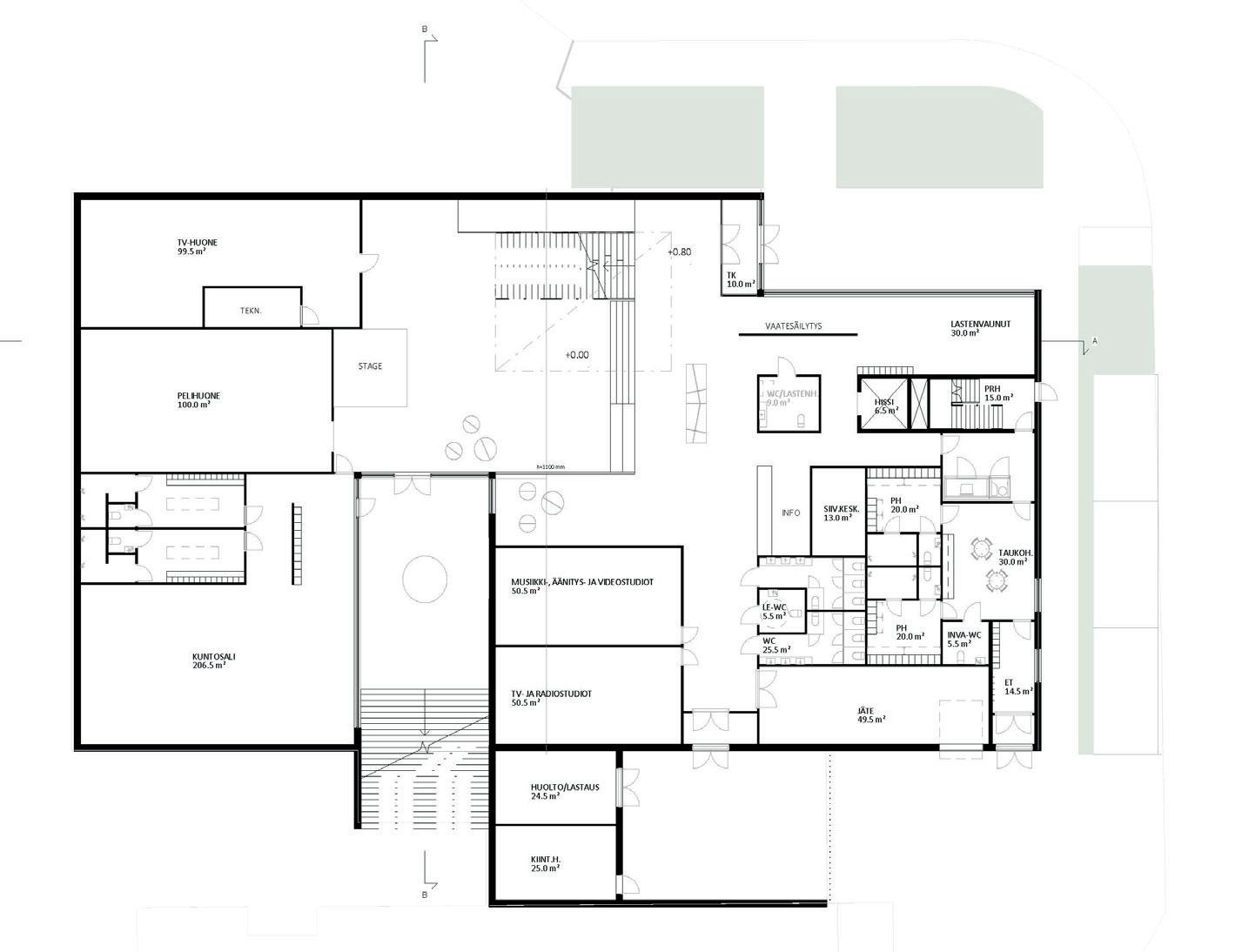
Arkkitehtuuri 5 (julkinen rakennus)

Opintojaksolla tutustutaan julkisten rakennusten suunnitteluun. Opiskelijat pohtivat, miten luodaan paikkaansa sopivaa, kulttuuria vahvistavaa, ajan hengen ja arvomaailman vangitsevaa arkkitehtuuria. Opintojaksolla harjoitellaan toimivan, tarkoituksenmukaisen, taloudellisen, viihtyisän ja elämyksellisen julkisen rakennuksen suunnittelua. Suunnittelussa keskitytään erityisesti arkkitehtoniseen muodonantoon, tilasuunnitteluun, sekä materiaalivalintoihin.

Tehtävänä oli suunnitella Kuopion pääkirjaston pohjoispuolella olevalle tyhjälle tontin osalle uusi julkinen rakennus (kirjasto 2.0), joka sopii kaupunkikuvallisesti ja -toiminnallisesti paikkaansa ja luo ympäristölleen lisäarvoa, vetovoimaisuutta ja viihtyisyyttä.

Tehtäväkuvauksessa kerrottiin, että kirjasto 2.0 on vanhojen ja perinteisten dokumenttien ja lainaamiseen perustuvan kirjastotoiminnan erillinen ja itsenäinen laajennus. Siinä, missä vanha kirjasto on pääasiassa sisäänpäin sulkeutunut ja toiminnallisesti jäykkä aineistovarasto, kirjasto 2.0 tulee olla avoin, toimimaan ja osallistumaan houkutteleva muunneltava ja elämyksellinen kulttuurirakennus.

Tilaohjelmaan oli kirjattu, että kirjasto 2.0 laajuus on 2850 m2. Rakennuksen tuli sisältää yleisö- ja palvelutiloja, tapahtumatiloja, liiketiloja, mediatiloja, oppimisen ja tekemisen tiloja. Osan tiloista tuli olla muuntojoustavia ja yleispäteviä. Osa tiloista tuli suunnitella vain tiettyä käyttötarkoitusta varten, kuten esim. auditorio.

Suunnittelutyössä edettiin vaiheittain kaupunkikuvallisten ja –toiminnallisten analyysien kautta luonnosteluun ja tietomallintamisen avulla tehtävään arkkitehtisuunnitteluun. Opiskelijoiden suunnitteluprosessissa kirjasto 2.0 tarkentui ensimmäisistä skissipaperille tallentuneista mielikuvista lopullisiin havainnekuviin ja arkkitehtonisesti merkittävien kohtien detaljipiirustuksiin.

58
Arkkitehtuuri 5 Netta Huikari

Kirjasto

Arkkitehtuuri 5

59 Arkkitehtuuri 5
Netta Huikari 2.0

Kiia Kortelainen

Arkkitehtuuri 5

Kirjasto 2.0

60
Arkkitehtuuri 5

Arkkitehtuuri 5

Kirjasto 2.0

61
Noora Lammi
5
Arkkitehtuuri

Korjaussuunnittelu

Opintojaksolla keskitytään vajaakäytöllä tai tyhjillään olevien rakennusten käyttötarkoituksien muutoksiin. Samalla tarkastellaan rakennusten arkkitehtonisia ja historiallisia arvoja.

Tehtävänä oli suunnitella Kuopion sataman SOK-rakennuksen siiville käyttötarkoituksen muutos. Funktionalistista tyyliä olevan SOK:n makasiinirakennuksen suunnittelullisena haasteena oli mittava runkosyvyys ja pohjoispuolen julkisivun hyvin pienet ikkuna-aukot, sekä rakennukselle asetettu julkisivujen suojelustatus.

Harjoitustyössä saatiin selvitettyä rakennusrungon ja tilojen soveltuvuutta usealle eri käyttötarkoitukselle asumisesta terveyspalveluihin. Työssä nähtiin myös yllättäviä tilallisia avauksia sisäpihan ja puiston välille.

62 Korjaussuunnittelu 3
3 (rakennuksen käyttötarkoituksen muutos)
Pekka Nykänen

Noora Lammi

SOK-rakennuksen käyttötarkoituksen muutos

Korjaussuunnittelu 3

63 Korjaussuunnittelu 3

Pekka Nykänen

SOK-rakennuksen käyttötarkoituksen muutos

Korjaussuunnittelu 3

BETONILAATOITUS/KIVETYS 60mm 150X150

ASENNUSHIEKKA 40mm

BETONILAATOITUS KAATO 1:60 KUITENKIN ERISTE MATERIAALIN MUKAAN

VEDENERISTE+SALAOJITUSSORA

XPS-ERISTE, URITETTU

SALAOJAMATTO

BETONILAATTA 200mm (OLEMASSAOLEVA)

Korjaussuunnittelu 3

VP 003

28 18

PROFIILIN KANNAKE

RIMOTUS 28MM VÄLI=18MM VESIVANERI TERÄSPROFIILI (ALAKATON RIPUSTUS) RAK. MUKAAN ERISTEEN KIINNIKE FINNFOAM

L-TERÄS (PROFIILIN KIINNITYS)

VANERIN KIINNITYS RUUVI (TERÄS) 5mm

TIILIMUURAUS NRT 135X75X285

VALKO RAPPAUS

TUULETUSVÄLI 45mm

TUULENSUOJALEVY PAROC CORTEX 50mm

MINERAALIVILLA 200mm

ISOVER KL-37

TERÄSBETONI (OLEMASSAOLEVA)

MUURAUSSIDE (RAK.MUKAAN)

US 003

VP 004

KAHVILA

64
VEDENERISTE NOSTO <400MM KELLARI
+82.2 +82.6 +86.9 +78.4
ASUINHUONEISTO

Jutta Varjus

SOK-rakennuksen käyttötarkoituksen muutos

Korjaussuunnittelu 3

65 Korjaussuunnittelu 3

Nykyarkkitehtuuri ja taide (contemporary architecture and art)

Opintojaksolla selvitetään, mitä nykyarkkitehtuuri on nyt, mitä se oli vain hetki sitten ja millaiseksi se ehkä muuttuu tulevaisuudessa. Opiskelijat laativat modernin arkkitehtuurin eri aikakausien tyyleistä, funktionalismista metamodernismiin, seminaariesitykset ja pohtivat, miten nuo tyylipiirteet vaikuttavat ja ilmenevät tämän päivän nykyarkkitehtuurin kohteissa edelleenkin.

Opintojakson taide-osuudessa laajennetaan arkkitehtisuunnittelun kenttää tavanomaisen rationaalisen ajattelun ulkopuolelle tutustumalla erilaisiin luoviin suunnittelumenetelmiin.

Taide-osuuden soveltavana harjoitustyönä oli jalostaa löydetystä, käyttökelvottomasta esineestä taideteos (found object art), löytää sille kampuksen tiloista sellainen sopiva sijoituspaikka, missä teos kommunikoi ympäristönsä kanssa. Teoksesta tuli myös laatia graafisesti edustava lehdistötiedote näyttelyä varten.

66 Nykyarkkitehtuuri ja taide

Jaana Pelotokangas

Vaaka 50

Contemporary architecture & art

67 Nykyarkkitehtuuri ja taide
68 Nykyarkkitehtuuri ja taide
Kiia Kortelainen Romu Contemporary architecture art

x/routes

Contemporary architecture & art

69 Nykyarkkitehtuuri ja taide
Joona Kokkonen

Opinäytetyö

Savoniassa opinnäytetyöt tehdään yrityselämän toimeksiantoina. Opiskelijat etsivät itse opinnäytetyöaiheensa oman kiinnostuksensa perusteella arkkitehtitoimistoilta, rakennuttajilta, kunnilta, seurakunnilta jne.

Opinnäytetyössä opiskelija esittelee laajan projektin yhteydessä tietoja ja taitoja, joita hän on opiskeluaikana hankkinut ja kartuttanut. Tämän lisäksi opiskelija tuo työssään esille oman kykynsä etsiä uutta tietoa tai uusia opeteltuja taitoja, joita opinnäytetyössä on sovellettu tarkoituksenmukaisella ja ammattimaisella tavalla. Opinnäytetyö on pitkä ja kärsivällisyyttä sekä huolellisuutta vaativa prosessi.

Tämän vuoden opinnäytetöissä keskityttiin mm. Historiallisesti ja arkkitehtonisesti arvokkaan ympäristön täydennysrakentamiseen, sekä arvokkaan historiallisen kohteen käyttötarkoituksen muutokseen. Työt osoittavat hienosti opinnäytetyötään tekevien opiskelijoiden ammattimaista kypsyyttä ja kehittynyttä arkkitehtuurinäkemystä.

70
Opinnäytetyö Julia Häkkinen

Opinnäytetyö

71 Opinnäytetyö
Julia Häkkinen Hotelli

Katariina Heikkilä ja Jaana Peltokangas

Aaltokeskus

Opinnäytetyö

72 Opinnäytetyö
73 Opinnäytetyö

Loppusanat

RAkeita-julkaisu on kooste lukuvuoden 2022–23 aikana Savonia ammattikorkeakoulun rakennusarkkitehdin tutkinto-ohjelmassa syntyneistä harjoitustöistä. Tämän kuvallisen läpileikkauksen avulla voi nähdä opiskelijoiden tietojen ja taitojen kehityskaaren neljän vuoden ajalta. Rakennusarkkitehdin tutkinto-ohjelman opintojaksot koostuvat teoriaopinnoista ja niitä soveltavista harjoitustöistä. Opintojaksot esitellään julkaisussa kronologisesti ensimmäisen vuoden opinnoista - edeten toisen, kolmannen ja neljännen vuoden opintoihin ja opinnäytetöihin asti. Jokaiselta esitellyltä opintojaksolta julkaisuun on valikoitu muutamia töitä, joiden pohjalta hahmottuu eri opintojaksoilla tehtyjen harjoitustöiden oppimistavoitteet ja sisältö. Näihin julkaistuihin ja myös julkaisemattomiin harjoitustöihin sisältyy tuhansia tunteja oppimisien tuskaa ja luomisen iloa, lukematon määrä yritystä, erehdystä, oivallusta, epätoivoa ja onnistumisia. Töiden tekijät ovat janonneet oppia. He ovat etsineet tietoa, luoneet ja luonnostelleet usein itseään säästelemättä, innolla ja ilolla. Lukuvuonna 2022–23 rakennusarkkitehdin tutkinto-ohjelmassa ovat opettaneet ja harjoitustöitä ohjanneet yliopettaja Janne Repo, lehtori Mari Piipponen, lehtori Tuulikki Höglund sekä tuntiopettajina Helena Aronen sekä Mika Leinonen. Keväällä 2023 pidettiin Savonian Microkadun Kampussydämessä arkkitehtuurimatinea ja sen yhteydessä näyttely opintojaksojen harjoitustöistä. Tuossa näyttelyssä esillä olleista töistä on valikoitu työt myös tähän julkaisuun. Savonian rakennusarkkitehtiopintojen arkea ja juhlaa on nähtävissä myös intagram-tilillä @savonia_rakennusarkkitehtuuri.

Loppusanat

Tapahtumat

Orientaatiopäivät

Rakennusarkkitehdin opinnot aloitettiin tänä lukukautena ensimmäistä kertaa orientaatiopäivillä syyskuun alussa. Orientaatiopäivien tarkoitus oli edesauttaa opiskelijoiden keskinäistä ryhmäytymistä ja pehmentää opintojen aloittamista. Orientaatiotehtävässä opiskelijaryhmät purkivat kuormalavoja, joiden materiaaleista heidän tuli rakentaa “Häkkyrä Hahmolle”. Tehtävän avulla monet arkkitehtuurin teorian aiheista tuli tutuksi huomaamatta leikkiä ja mielikuvitusta käyttäen. Tehtäviä jatkettiin Hietarannan majalla illanvietossa. Seuraavana päivänä kampuksella oli tehtävien esittely.

Arkkitehtuurin ja muotoilun päivä

Alvar Aallon syntymän 125-vuotispäivänä juhlittiin toista kertaa arkkitehtuurin ja muotoilun päivää, jota suositellaan myös liputuspäiväksi. Juhlan kunniaksi julkaistiin ensimmäinen versio ensimmäisestä RAkeita-julkaisusta, pidettiin pieniä juhlapuheita ja juotiin kakkukahvit rakennusarkkitehtiopiskelijoiden ja –opettajien kanssa kampuksella.

Tapahtumat
Orientaatiopäivä Syksy 2022

Arkkitehtuurimatinea

Huhtikuussa 2023 järjestettiin perinteinen Savonian arkkitehtuurimatinea, joka tällä kertaa onnistuttiin pitämään live-tapahtumana Kampus-sydämessä. Vieraileviksi luennoitsijoiksi saatiin arkkitehti, tekniikan tutkijatohtori Jyrki Tarpio Tampereen yliopistosta sekä Studio Puisto arkkitehdit Oy:n arkkitehti Mikko Jakonen. Matinea avattiin etäyhteydellä ja RIA:n toimitusjohtaja Kimmo Sandbergin puheenvuorolla. Siinä valettiin uskoa tulevaisuuteen vastareaktiona alan hetkelliseen suhdannekuoppaan. Rakennusala on suhdanneherkkää ja aika ajoin on hiljaisempia hetkiä sekä suunnittelussa että rakentamisessa. Hiljaisia aikoja seuraa kuitenkin aina kiireiset ajat ja siksi nyt onkin erityisen hyvä aika opiskella ja kartuttaa osaamistaan. Opintoihin kuuluvien harjoittelujaksojen suorittamiseksi on syytä kehittää keinoja, jotta valmistuminen ei jäisi roikkumaan.

Jyrki Tarpion esityksessä keskityttiin kerrostalojen asuntosuunnittelun kehitykseen muunneltavuuden ja tilojen monikäyttöisyyden kannalta. Mikko Jakonen esitteli luennollaan uutta suomalaista ja myös kansainvälistä matkailu- ja elämysarkkitehtuuria, joista yksi esimerkki on Kuopiosta löytyvä ja vasta valmistunut Luoto.

Matineassa kuultiin myös kansainvälisessä Neptune-projektissa työskennelleiden opiskelijoiden Riina Salon ja Ronja Aholan kuulumiset. Projektin työaiheet ovat joka vuosi yllättäviä ja haastavia ja ehkä juuri siksi niin mieleenpainuvia kokemuksia. Kampussydämen suuren seinän peitti opiskelijatöistä koottu näyttely, jonka satoa esitellään tämän julkaisun sivuilla.

Arkkitehtuurimatinea kevät 2023 Arkkitehtuurimatinea kevät 2023

Turn static files into dynamic content formats.

Create a flipbook
Issuu converts static files into: digital portfolios, online yearbooks, online catalogs, digital photo albums and more. Sign up and create your flipbook.