// Technical

Page 1

TECHNICAL WORK PORTFOLIO

SHIRAZ CHERIYA PARAMBATH

CORNICHE HOSPITAL RENOVATION, UAE

+ Obermeyer Planen+Beraten, Weisbaden, Germany

+ Role - Architect preliminary design, phase wise drawings

+ Year - 2014

23

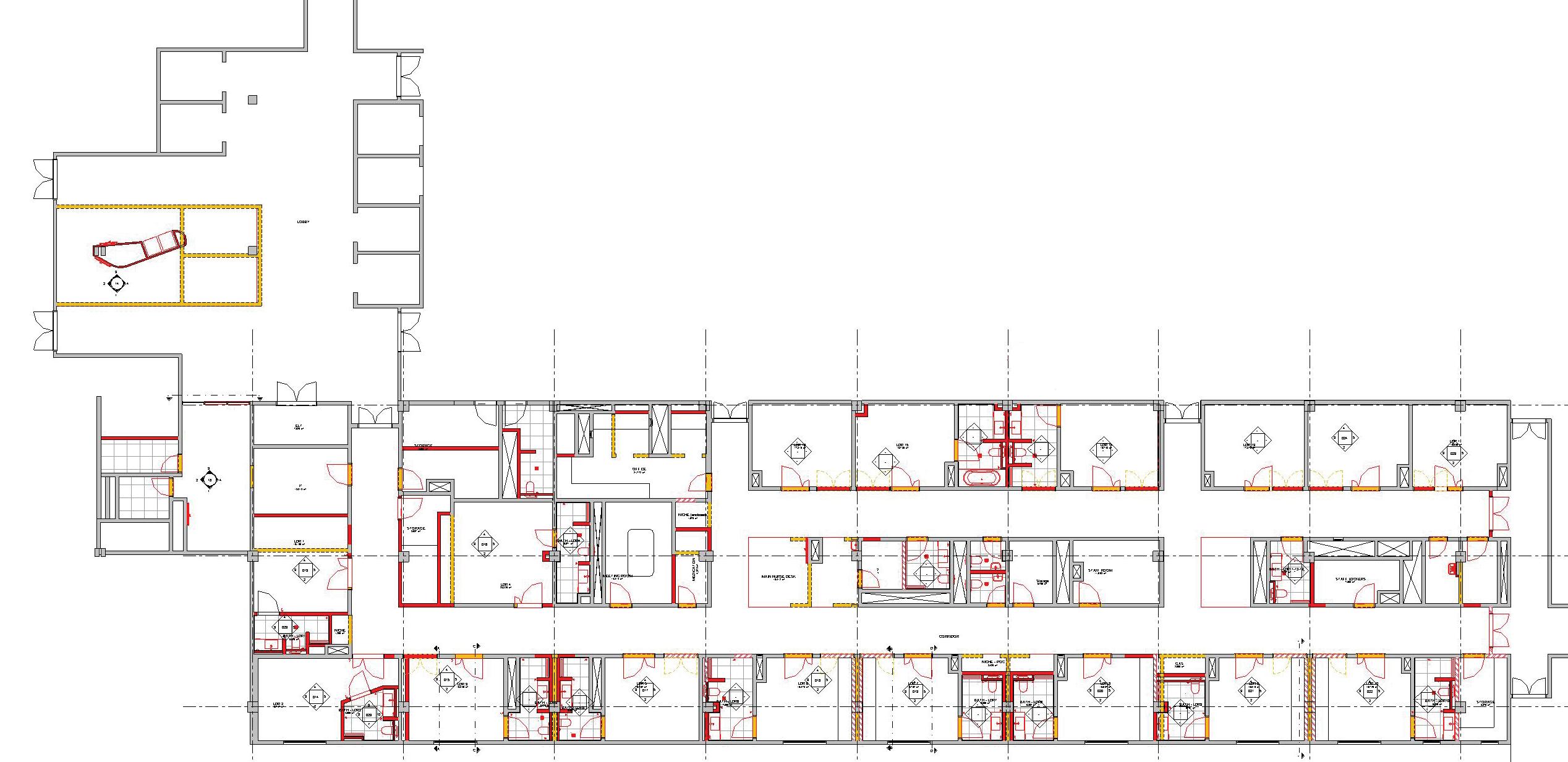
+ PHASING

+ OLD

+ TYPICAL LAYOUT + PROPOSED - PRIVACY

SPACIOUSNESS + NEW LAYOUT WITH ALL REQUIREMENTS

+ EXISTING PHASE + DEMOLISION PHASE + NEW PHASE

24 25
+
+
NEW
DEMOLISHED
+

PROJECT

ZONE :

SECTOR

PROJECT DESCRIPTION:

DRAWING

DRAWING

SUBMISSION

PROJECT

OFFICIAL USE

27
ONLY
ID: PLAN ID:
DATE: SCALE:
NO: REVISION NO:
TITLE:
NO: PLOT NO:
NAME:
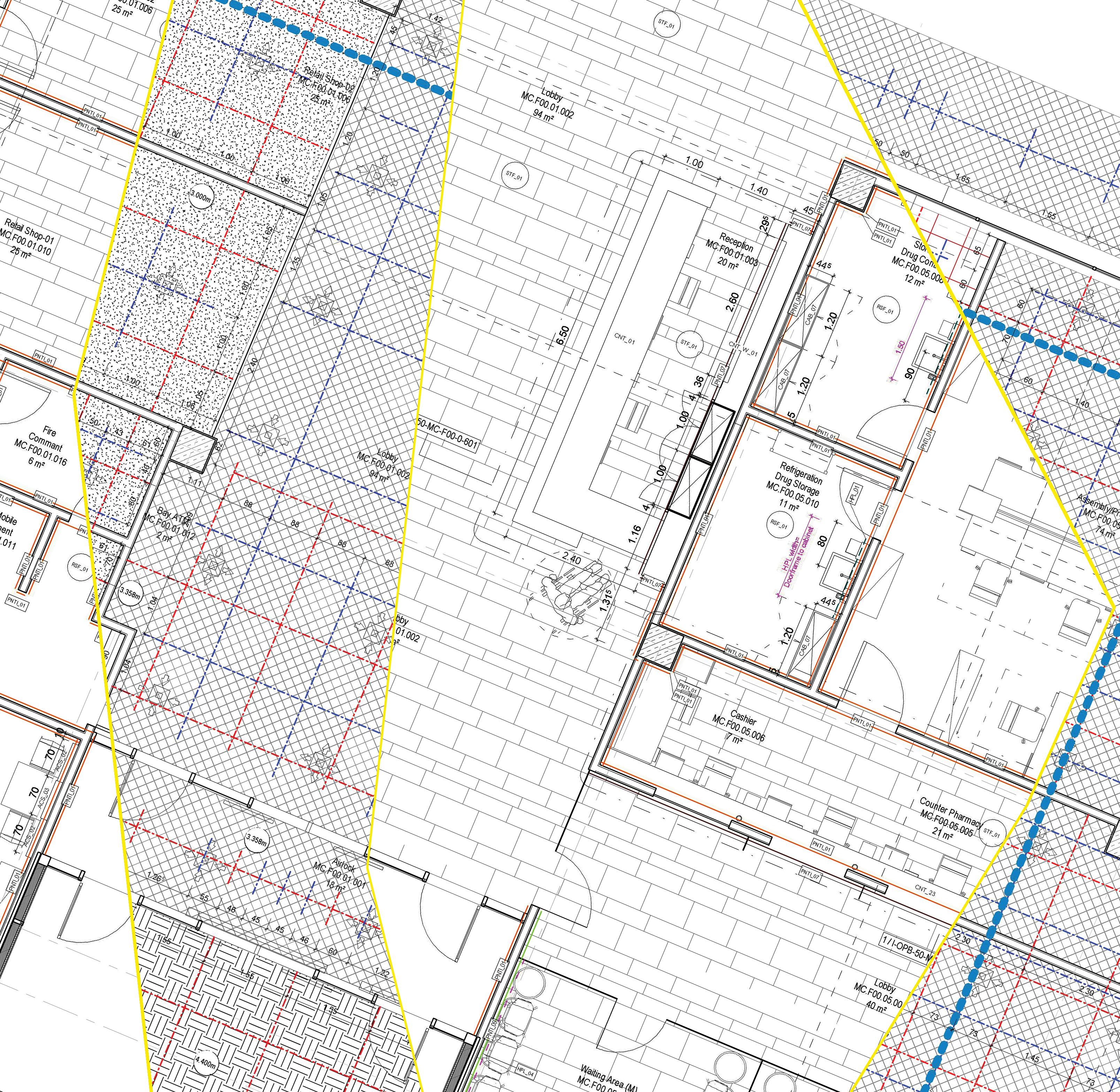
2013-56355 B+G+2 AMBULATORY HEALTHCARE FACILITY 162 WEST-11 ABU DHABI ISLAND ADNOC NEW MEDICAL CENTER Danet Bldg. B Floor P2 Office 31st St., between Airport & Muroor P.O. Box 130783 Abu Dhabi, United Arab Emirates Tel.: + 971 2 449 Fax: + 971 2 449
NO. 7011 - TENDER ENQUIRY NO. 147011C2 2 2015-01-31 IOPB50000000000 COVER SHEET N/A ADNOC HOSPITAL, UAE + Obermeyer Planen+Beraten, Weisbaden, Germany + Role - Architect interior & construction detail drawings + Year - 2014
SUBCONSULTANT:
PROJECT
28 29 1 1 5 5 6 6 7 7 9 9 10 10 11 11 12 12 13 13 14 14 15 15 16 16 17 17 E E F F H H J J K K 4 4 D D 2 2 M M B B A A 3 3 G G C C L L
S
T C I O U D J P V E K Q W F L R X 8 8 OFFICIAL USE ONLY PROJECT DESCRIPTION: ZONE PROJECT ID: PLAN ID: SUBMISSION DATE: SCALE: DRAWING NO: REVISION NO: DRAWING TITLE: SECTOR NO: PLOT NO: PROJECT NAME: SUBCONSULTANT: CONSULTANT OWNER REV. NO. DESCRIPTION DATE 2013-56355 B+G+2 AMBULATORY HEALTHCARE FACILITY 162 WEST-11 ABU DHABI ISLAND ADNOC NEW MEDICAL CENTER Danet Bldg. B Floor P2 Office 01 31st St., between Airport & Muroor Rd. P.O. Box 130783 Abu Dhabi, United Arab Emirates Tel.: 971 449 9582 Fax: 971 449 9519 ABU DHABI NATIONAL OIL COMPANY Abu Dhabi National Oil Company (ADNOC) P.O. Box 898, Abu Dhabi, UAE Office. +971 2 6022000 Fax. +971 2 6023389 NOTES 1. ALL DIMENSIONS ARE IN METERS AND LEVELS ARE IN METERS UNLESS NOTED OTHERWISE. 2. DO NOT SCALE FROM THIS DRAWING ONLY WRITTEN DIMENSIONS ARE TO BE FOLLOWED. 3. ALL DIMENSIONS AND LEVELS ARE TO BE CONFIRMED AND ANY DISCREPANCIES OR ERRORS, SHALL BE REPORTED TO THE ENGINEER PRIOR TO COMMENCEMENT OF THE WORK. 4. ALL DRAWINGS ARE TO BE READ CONJUNCTION WITH ALL OTHER RELEVANT DRAWINGS, TOGETHER WITH THE SPECIFICATIONS. 5. ANY DISCREPANCIES BETWEEN ARCHITECTURAL, STRUCTURAL AND SERVICES SHALL BE BROUGHT TO THE ENGINEER´S NOTICE PRIOR TO THE EXECUTION OF WORK AT SIT 6. THIS DRAWING IS COPYRIGHT PROTECTED. 7. DRAWING DETAILS: 8. +/- 0.00M 3.2M ABOVE SEA LEVEL UNLESS OTHERWISE SPECIFIED. PROJECT NO. 7011 TENDER ENQUIRY NO. 147011C2 0 TENDER SUBMISSION 2014-11-02 1:200 IOPB50MCB010101 B01 - REFLECTED CEILING KEY PLAN 1 : 250 B01 - BASEMENT FLOOR REFLECTED CEILING PLAN 11 11 12 12 13 13 F F H H G G RSF_01 RSF_01 RSF_01 RSF_01 CT_01 RSF_02 CT_01 CT_02 RSF_01 PNTI_01 PNTI_01 PNTI_01 PNTI_01 PNTI_01 PNTI_01 PNTI_01 PNTI_01 PNTI_01 PNTI_01 PNTI_01 PNTI_01 PNTI_01 PNTI_01 PNTI_01 PNTI_01 PNTI_01 PNTI_01 PNTI_01 PNTI_01 PNTI_01 PNTI_01 PNTI_01 PNTI_01 PNTI_01 PNTI_01 PNTI_01 PNTI_01 PNTI_01 PNTI_01 PNTI_01 PNTI_01 PNTI_01 PNTI_01 PNTI_01 PNTI_01 PNTI_01 PNTI_01 PNTI_01 PNTI_01 PNTI_01 PNTI_01 PNTI_06 PNTI_06 PNTI_01 PNTI_01 PNTI_01 PNTI_01 PNTI_09 PNTI_01 PNTI_01 PNTI_01 PNTI_01 PNTI_01 CT_07 CT_07 CT_05 PNTI_01 PNTI_01 CT_09 PNTI_01 PNTI_01 PNTI_01 CT_09 PNTI_02 PNTI_02 PNTI_01 CT_09 CT_05 HPL_03 PNTI_01 PNTI_01 PNTI_01 HPL_04 HPL_04 HPL_04 HPL_04 HPL_04 HPL_04 HPL_03 90 PNTI_07 PNTI_07 PNTI_07 5028 30 30 30 30 30 30 30 5 30 30 30 30 30 30 10 30 7070 HPL_01 1.50 1.25 2.00 CT_01 I-OPB-50-MC-F00-0-210 11 I-OPB-50-MC-F00-0-210 11 I-OPB-50-MC-F00-0-209 CT_09 CT_09 PNTI_01 CT_05 CT_09 CT_09 CT_09 CT_09 CT_09 PNTI_01 CT_09 CT_09 CT_09 CT_09 CT_09 CT_09 CT_09 CT_05 CT_05 CT_05 PNTI_01 PNTI_01 PNTI_100 PNTI_100 PNTI_100 PNTI_07 PNTI_100 LCK_01 LCK_01 LCK_01 LCK_01 LCK_01 LCK_01 LCK_03 LCK_03 LCK_03 LCK_03 LCK_03 LCK_03 LCK_03 LCK_03 LCK_03 LCK_03 LCK_03 ACS_02 ACS_03 ACS_02 PNTI_01 PNTI_01 PNTI_01 PNTI_01 PNTI_01 PNTI_01 1.50 1.039245754575457520 2850 STF_01 PNTI_01 STF_01 STF_01 CT_02 CPS_01 STF_01 STF_01 STF_01 STF_01 RSF_01 RSF_02 RSF_01 1 2 3 4 5 A B C D 1 50 F00 - GROUND FLOOR FINISH PLAN PART I
A G M
B H N
30 31 FD FD 13 13 14 14 15 15 16 16 J J K K L L 2.500m 2.750m 2.750m 2.750m 2.750m 2.750m 2.750m 2.750m 2.500m 2.500m 2.500m 2.500m 2.500m 2.750m 2.750m 2.750m 2.750m 2.750m 2.750m 2.750m 2.750m 2.750m 2.750m 2.750m 3.000m 2.750m RL_01 RL_01 RL_01 RL_01 RL_01 RL_01 RL_01 RL_01 RL_01 85 62 62 72727275 72727275 706060 1.30 838383838383 1.30 838383838383 78781.00 50505050 696969696969 83 1.01 1.01 1.01 1.01 1.01 1.01 7085 8570 808484 1.10 1.22 1.22 1.22 1.22 1.22 1.22 63636363 1.40 74747474 73737373 73737373 1.40 63 63 63 63 74747474 1.33 63 63 63 63 51515151 7575 7575 363636 353535 7575 7575 363636 2.500m 70606060606060606070 9060606030 706060 51 51 51 51 35353535 51 51 51 51 76767676 25505050505050 25 4545303030255050505050551.00 6545373737581.00501.005050505050505050505050505050 RL_01 5045454545454545454545454550 1.10 1.10 4545 99 99 4545 1.84 65 54 874545459445454545 1.39 451.10 381.14 1.14 38846161 1.22 8438 62 90 1.22 1.06 1.0650 2.750m 83 42 42 42 42 83 42 42 FOR MEP ELEMENTS AND THEIR POSITIONS, PLEASE LOOK AT MEP PLANS OFFICIAL USE ONLY PROJECT DESCRIPTION: ZONE PROJECT ID: SUBMISSION DATE: DRAWING NO: DRAWING TITLE: SECTOR NO: PROJECT NAME: SUBCONSULTANT: CONSULTANT OWNER REV. NO. 2013-56355 WEST-11 ADNOC NEW MEDICAL CENTER 1 2 3 4 5 A B C D ABU DHABI NATIONAL OIL Abu Dhabi National Oil Company (ADNOC) PROJECT NO. 7011 TEND NOTES N Q 1. ALL DIMENSIONS ARE IN METERS OTHERWISE. 2. DO NOT SCALE FROM THIS DRAWING FOLLOWED. 3. ALL DIMENSIONS AND LEVELS ARE OR ERRORS, SHALL BE REPORTED TO OF THE WORK. 4. ALL DRAWINGS ARE TO BE READ DRAWINGS, TOGETHER WITH THE SPECIFICATIONS. 5. ANY DISCREPANCIES BETWEEN ARCHITECTURAL, STRUCTURAL AND SERV SHALL BE BROUGHT TO THE ENGINEER AT SITE. 6. THIS DRAWING IS COPYRIGHT PROTECTED. 7. DRAWING DETAILS: 8. +/- 0.00M = 3.2M ABOVE SEA LEVEL KEYPLAN IOPB50MCF02O101 F02 REFLECTED CEILING PLAN 1 : 50 F02 - SECOND FLOOR REFLECTED CEILING PLAN PART O + DETAILED FLOOR PLAN & REFLECTED CEILING PLAN

02_INT_Metal Panel Edge

33 2.20 splash guard (color: NCS S 5040 B10G) 2 60 60 60 3723 60 606060 1.80 2.20 905674 splash guard (color: NCS S 5040 B10G) 606060 1.80 2337 60 2.20 74 56 90 upper cabinet panel, ceiling height, removeable filler panel splash guard (color: NCS S 5040 B10G) single form worktop with integrated sink fridge filler panel integrated waste bin DSP_05 DSP_03 DSP_01 FTG_07 microwave 6060606060 3.00 60 2.20 74 56 90 splash guard (color: NCS S 5040 B10G) 10 6060606060 3.00 60 splash guard (color: NCS 5040 B10G) 12 56060606060 3.00 60 2.20 upper cabinet panel, ceiling height, removeable filler panel splash guard (color: NCS 5005 Y50R) single form worktop with integrated sink fridge filler panel integrated waste bin DSP_05 DSP_03 DSP_01 FTG_07 microwave 14 6060606030 2.70 2.20 splash guard (color: NCS S 5040 B10G) 16 3723 60 107646070 splash guard (color: NCS S 5040 B10G) 18 3723 60 107646070 905674 upper cabinet panel, ceiling height, removeable filler panel splash guard (color: NCS S 5040 B10G) single form worktop with integrated sink fridge filler panel integrated waste bin DSP_01 DSP_03 DSP_05 FTG_07 microwave 20 30 60 60 1.50 3723 60 2.20 56 90 splash guard (color: NCS 5005 Y50R) 22 3723 60 2.20 upper cabinet panel, ceiling height, removeable filler panel splash guard (color: NCS 5005 Y50R) single form worktop with integrated sink fridge filler panel integrated waste bin DSP_05 DSP_03 DSP_01 FTG_07 microwave upper cabinet panel ceiling height, removeable DETAIL CEILING CONNECTION panel attached to continous wood blocking with small, integrated air slots. wood blocking contains a rabbet joint for upper panel connection LED lighting strip integrated in a light chanel NOTE: homogenous illumination required. splash guard single form worktop with integrated sink level adjusters skirting air slots 50/40 35/30 5 upper cabinet panel 20 continous wood blocking with small, integrated air slots; contains rabbet joint wood blocking with slotted insert into rabbet joint ABS-edge, mm ABS-edge, mm OFFICIAL USE ONLY PROJECT DESCRIPTION: ZONE PROJECT ID: PLAN ID: SUBMISSION DATE: SCALE: DRAWING NO: REVISION NO: DRAWING TITLE: SECTOR NO: PLOT NO: PROJECT NAME: SUBCONSULTANT: CONSULTANT OWNER REV. NO. DESCRIPTION DATE 2013-56355 B+G+2 AMBULATORY HEALTHCARE FACILITY 162 WEST-11 ABU DHABI ISLAND ADNOC NEW MEDICAL CENTER Danet Bldg. B Floor P2 Office 01 31st St., between Airport Muroor Rd. P.O. Box 130783 Abu Dhabi, United Arab Emirates Tel.: 971 449 9582 Fax: 971 449 9519 1 2 3 4 5 A B C D ABU DHABI NATIONAL OIL COMPANY Abu Dhabi National Oil Company (ADNOC) P.O. Box 898, Abu Dhabi, UAE Office. +971 6022000 Fax. +971 6023389 PROJECT NO. 7011 TENDER ENQUIRY NO. 147011C2 NOTES N Q ALL DIMENSIONS ARE METERS AND LEVELS ARE IN METERS UNLESS NOTED OTHERWISE. DO NOT SCALE FROM THIS DRAWING ONLY WRITTEN IMENSIONS ARE TO BE FOLLOWED. ALL DIMENSIONS AND LEVELS ARE TO BE CONFIRMED AND ANY DISCREPANCIES OR ERRORS, SHALL BE REPORTED TO THE ENGINEER PRIOR TO COMMENCEMENT OF THE WORK. ALL DRAWINGS ARE TO BE READ N CONJUNCTION WITH ALL OTHER RELEVANT DRAWINGS, TOGETHER WITH THE SPECIFICATIONS. ANY DISCREPANCIES BETWEEN ARCHITECTURAL, STRUCTURAL AND SERVICES SHALL BE BROUGHT TO THE ENGINEER´S NOTICE PRIOR TO THE EXECUTIO OF WORK AT SITE. THIS DRAWING IS COPYRIGHT PROTECTED. DRAWING DETAILS: +/- 0.00M 3.2M ABOVE SEA LEVEL UNLESS OTHERWISE SPECIFIED. KEYPLAN TENDER SUBMISSION 2014-11-02 IOPB50MC0000623 INTERIOR DETAILS PANTRIES 1:50/ 1:20/ 1:2 2 ELEVATION F00.03.004 1 50 F00.03.004 1 1 50 F00.06.016 3 4 ELEVATION F00.06.016 1 50 F02.29.017 5 6 ELEVATION F02.29.017 1 50 F00.02.008 7 8 ELEVATION F00.02.008 1 50 F02.29.037 9 10 ELEVATION F02.29.037 1 : 50 F02.27.013 11 12 ELEVATION F02.27.013 1 50 F00.05.014 13 14 ELEVATION F00.05.014 1 50 F01.14.005 15 16 ELEVATION F01.14.005 1 50 F02.28.006 17 18 ELEVATION F02.28.006 1 50 F02.26.006 19 20 ELEVATION F02.26.006 1 50 F02.25.019 21 22 ELEVATION F02.25.019 PANTRY TYPE A1,80 m PNT_01 PANTRY TYPE B3,00 m PNT_02 PANTRY TYPE C2,70 m PNT_03 PANTRY TYPE D1,50 m PNT_04 MATERIAL: Front Surface/ Skirting: Chipboard (19 mm) laminated with HPL (White, NCS S 0502 Y) Cabinet Corpus: Chipboard (19 mm) melamine coated (White, NCS S 0502 Y) Worktop, ca 40 mm: Solid surface material (12 mm) (White, NCS S 0502 Y), with rounded edge mm, applied on MDF (38 mm) Splash Guard: Glass fibre reinforced composite core (5.8 mm) laminated with HPL (Color: Teal, NCS S 5040 B10G or Beige, NCS S 5005 Y50R) Filler Panel/ Upper cabinet panel/ Plinth Adjusters: Chipboard (19 mm) laminated with HPL (White, NCS S 0502 Y) NOTE: - Use filler panels as required - Ventilation and extraction fo fridge according to manufacturer's instructions 1 20 TYPICAL PANTRY SECTIONDETAIL - CEILING CONNECTION NOTE: Helen NOTE: Helen NOTE: Helen NOTE: Helen 305 BLOCKING AND BRACING AS REQUIRED NOTE: UNDER CABINET LIGHT SHALL BE MOUNTED SO THAT ELECTRICAL CONDUIT IS HIDDEN IN THE WALL AND NOT EXPOSED TO VIEW ADJUSTABLE SHELVES 5/8" GYPSUM BOARD BULKHEAD TAPE AND FINISH JOINTS, AND SEAL ALL PENETRATIONS IN PARTITION HIDDEN BEHIND BULKHEAD AND CABINET UNDER CABINET STRIP LIGHT. LOCATION AS SHOWN OR KEYNOTED ON ELECTRICAL LIGHTING PLANS METAL STUDS @ 16" O.C. VARIES 51 VARIES DATE: PROJECT COMPANY PHASE LEVEL INDEX DISCIPLINE NUMBER PARTPLAN REVISIONDATE: SCALE: PROJECT: SHEET NAME: G:\MY Files\KAPPI\OPD\A14_Standard Detail Library Prep_Cheriya\A14_Standard Detail Library Prep_Cheriya.rvt 1 10 01_01 XXXXXX STANDARD DETAIL LIBRARY Unnamed 1 : 10 01_06-04 TYP. WALL CABINET W/ STRIP LIGHT 1 concrete screwbolt vernier hanger upper section dry wall construction structure Detail: S_004 Type: Metal Ceiling Panel, removeable Detail: Section metal ceiling panel, removeable (every part), 600 x 600 mm, perforated, sound absorbing substructure Installation Space vernier hanger lower section vernier safty split pin bottom edge suspended ceiling hook-on profile b=10 mm 22 600 x 600 mm sound absorbing isolation material sound absorbing insulation material - alternatively positionDATE: PROJECT COMPANY PHASE LEVEL INDEX DISCIPLINE NUMBER PARTPLAN REVISIONDATE: SCALE: PROJECT: SHEET NAME: G:\MY Files\KAPPI\OPD\A14_Standard Detail Library Prep_Cheriya\A14_Standard Detail Library Prep_Cheriya.rvt 1 : 5 02_03 XXXXXX STANDARD DETAIL LIBRARY Unnamed 1 5
1 1CM NATURAL STONE WALL TILES SEALANT (PERMELASTAC) 2CM NATURAL STONE FLOOR TILES BLOCKWORK PLASTER THINBED MORTAR ADHESIVE SCREED BITUMINOUS PRIMER COAT 0.005 THINBED MORTAR ADHESIVE Biebricher Allee 3665187 WiesbadenTel.: (0611) 8904-10 OBERMEYER PLANEN + BERATEN GmbH 2/15/2016 2:42:25 PM 1 5 05_FLOOR TILES- WALL CONNECTION 1 Screw (1) Drywall Screw (1) Metal Stud (1) Structural Floor Detail: W_030 Type: GK 15,0 (2,5+10+2,5) GWA-01A (2) Name: Dry Wall Construction Wet Room Detail: Wall Floor Ceramic Tiles 10251002510 170 Levelling Screed Material (with slope if required) Cement Sreceed, rapid hardening (1) PVC Interlayer Insulation Materials (1) Gypsum Hydroboard (2), first layer Gypsum Hydroboard (2), second layer (1) water-repellent: All components fixtures components have to be wet room suitable (2) usage in all wet rooms fire hose cabinets (3) sliding connection have to be constructed deflection ceiling is > 10 mm (seperated detail) (4) no usage in patient´s room Sealing Coat Barrier Membrane (2) FFL=0.00 m FL=-0.10 m Ceramic Tiles + Glue if required Sealing Coat, where water is to be expected (5) see details suspending ceiling Floor Ceramic Tiles + Glue Concave Ceramic Tiles, r=25 mm (6) (6) position of installation depending on hygiene requirements (7) usage in all acoustically sensitive rooms. Insulation material volumetric weight 40 60 kg/m³ (for Room Class A, B+C). 2265 3 10 100 100 General: For all Room Classes A+B: 2 12.5 mm wall-plaster-boards --> weight per unit area minimum 10,6 kg/m² DATE: PROJECT COMPANY PHASE LEVEL INDEX DISCIPLINE NUMBER PARTPLAN REVISIONDATE: PROJECT: SHEET NAME: Biebricher Allee 3665187 WiesbadenTel.: (0611) 8904-10 OBERMEYER PLANEN + BERATEN GmbH 2/15/2016 3:18:13 PM 11_72 XXXXXX 1 : 5 Floor and Wall_08 1

AS+PArchitekten,Frankfurt

+ Role - BIMOperationSpecialist Revit coordination

+ Year - 2016

34 35
Apartments
Frankfurt
for ABG Holding

H+ Hotel , Frankfurt

KSPJürgenEngelArchitekten,Frankfurt

+ Role - ProjectArchitect&BIMCordinator Design, consultant coordination, BIM coordination

+ Year - 2019

40 41

RWA

(BD) DECKENDURCHBRUCH (DD) BODEN-/DECKENDURCHBRUCH (BD/DD) BODENSCHLITZ BODENAUSPARUNG (BS/BA)

DECKENSCHLITZ

DECKENAUSPARUNG (DS/DA)

WH WANDHYDRANT

WANDAUSSPARUNG (WA) WANDDURCHBRUCH (WD) WANDSCHLITZ (WS)

NACH MONTAGE SCHLIESSEN BAUTEIL MIT VERKLEIDUNG

STAHLBETON MAUERWERK

BETONFERTIGTEIL GIPSKARTON

TÜR-UND BRÜSTUNGSHÖHEN VON OKFB BIS OKR/UKR BEI ABWEICHUNGEN DER BRANDSCHUTZANGABEN GILT DAS BRANDSCHUTZGUTACHTEN DER AUSFÜHRENDE IST VERPFLICHTET, DEN AUFTRAGGEBER AUF ETWAIGE UNSTIMMIGKEITEN DER AUSFÜHRUNGSUNTERLAGEN HINZUWEISEN. (VOB/B, §3.3)

IV XI I VIII VII + TECHNIK Frankfurter Straße Sossenheimer Straße Grundstücksgrenze PARKHAUS Anlieferung Haupteingang Zufahrt Parkhaus Ausfahrt Parkhaus Außenstellplätze Schiebetoranlage BAUTEIL H 123.23 ü.NHN 123.27 m ü.NHN 123.35 ü.NHN 123.35 m ü.NHN Feuerwehr/ Lieferverkehr Zu-/Ausahrt Taxi-Halt Elt. Elt. WDF Gitterrost Lichtschacht BAUTEIL A Überdachter Laubengang Vordach Vordach Attika +25.60 148.97 m ü.NHN Attika +22.535 m 145.905 m ü.NHN Attika +4.67 m 128.04 ü.NHN OK Gitterrost +28.24 151.61 ü.NHN FW Signalleuchte FW Piktogrammtafel Zufahrt von Mergenthalerallee 5 M nicht überbaubar Fahnenmast RAUMSTEMPEL TÜRSTEMPEL DETAILVERWEIS LINIENDARSTELLUNG HINWEIS SCHNITT HINWEIS ANSICHT HÖHENKOTE GRUNDRISS HÖHENKOTE SCHNITTE ANSICHTEN BODENVERSPRUNG (BV) DECKENVERSPRUNG (DV) AUSSPARUNGEN -DURCHBRÜCHE WANDSCHRAFFUREN Zimmer 121 RAUMBEZEICHNUNG H.E02.HO.121 BAUTEIL.GESCHOSS 23.07 m² FLÄCHE ÜBER DER SCHNITTEBENE UNTER DER SCHNITTEBENE GEBÄUDEFÜGE OBERKANTE FERTIGBODEN (OKFB) OBERKANTE ROHBODEN (OKRB) +0.00 -0.15 UNTERKANTE ROHDECKE (UKRD) UNTERKANTE FERTIGDECKE (UKFD) BV OBERKANTE ROHBODEN BV OBERKANTE ROHBODEN BV OBERKANTE FERTIGBODEN BV OBERKANTE FERTIGBODEN DV UNTERKANTE ROHDECKE DV UNTERKANTE ROHDECKE DV UNTERKANTE FERTIGDECKE DV UNTERKANTE FERTIGDECKE BRH BRÜSTUNGSHÖHE LH LICHTE HÖHE FB FERTIGBODEN FD FERTIGDECKE OK OBERKANTE RA ROHRACHSE RD ROHDECKE UK UNTERKANTE UZ UNTERZUG ÜZ ÜBERZUG VK VORDERKANTE RB ROHBODEN LD LUFTDICHTE TÜR RS RAUCHSCHUTZTÜR
RAUCHWÄRMEABZUG T30 FEUERSCHUTZABSCHL.
F90 FEUERSCHUTZABSCHL.
NACHSTRÖMÖFFNUNG
BW BRANDWAND
F FEUERLÖSCHEINRICHTUNG
BODENDURCHBRUCH
+0.00 +1.00 +0.00 +1.00 OBERKANTE FERTIGBODEN (OKFB) UNTERKANTE FERTIGDECKE (UKFD) OBERKANTE ROHBODEN (OKRB) UNTERKANTE ROHDECKE (UKRD) TÜRNR. (ENTSPR. RAUMNR.) MATERIAL ANFORDERUNG GEWERK-INHALT DETAILNUMMER GEBÄUDE A TU-200 001 226.2 HT30 U = 15.50 m UMFANG +1.00 +1.00 RAUMNUTZUNG.RAUMNUMMER BLATTGROESSE [mm] 594 841 (DIN A1) ±0.00 = 123.37m ü. NHN LAGEPLAN PROJEKT F5 Frankfurter Straße 5, 65760 Eschborn Neubau einer Beherbergungsstätte BAUHERR GENERALÜBERNEHMER (AG) G & O Gateway Gardens Erste GmbH Co. KG Speicherstraße 55, 60327 Frankfurt am Main EIN UNTERNEHMEN DER UND DER Groß & Partner Grundstücksentwicklungsgesellschaft mbH Bockenheimer Landstr. 47 60325 Frankfurt a.M Tel: 069 360095 -100 Fax: 069 360095 -300 OFB Projektentwicklung GmbH Speicherstraße 55 60327 Frankfurt a.M Tel: 069 91732 -01 Fax: 069 91732 -799 Gesichtet auf Bauherrenbelange und unter Beachtung der Eintragungen Wiedervorlage wie gesichtet zur weiteren Planung/Ausführung freigegeben (Die Haftung des Planverfassers für die Mängelfreiheit seiner Planung wird durch die Freigabe nicht eingeschränkt) UNTERSCHRIFT DATUM UNTERSCHRIFT DATUM UNTERSCHRIFT DATUM ARCHITEKTUR GENERALUNTERNEHMER FACHFIRMA Hanauer Landstraße 287-289 D-60314 Frankfurt Main Tel: +49 (0) 69. 94 43 94-0 Fax: +49 (0) 69. 94 43 94-38 GOB Projektentwicklung Fünfte GmbH & Co. KG Speicherstraße 55,60327 Frankfurt am Main UNTERSCHRIFT DATUM FACHPLANUNG UNTERSCHRIFT DATUM BAUHERR (bzw. AG) Mit der Unterschrift bestätigen die Unterzeichner, dass die dargestellte Leistung mit allen Fachdisziplinen abgestimmt ist und allen Auflagen bzw. der BAB entspricht. Mit der Unterschrift bestätigen die Unterzeichner, dass die dargestellte Leistung mit allen Fachdisziplinen abgestimmt ist und allen Auflagen bzw. der BAB entspricht. PHASE PLANTYP EBENE/BEZUG GEWERK REFERENZ ARCHITEKTUR REFERENZ FACHPLANUNG PLANNUMMER PHASE BAUTEIL PLANTYP INDEX GEWERK EBENE/BEZUG LAUFENDE NUMMER REFERENZ ANDERE BAUTEIL MASSSTAB PLANSTATUS PROJEKTNUMMER INTERN GEZEICHNET INDEXDATUM PLANBESCHREIBUNG PHASE BAUTEIL PLANTYP INDEX GEWERK EBENE/BEZUG LAUFENDE NUMMER PLANNUMMER PLANINHALT AA AA 4 ARC H LP DA_ 250 33255 GENEHMIGUNGSPLANUNG H 1:250 LAGEPLAN DACHAUFSICHT ARCHITEKTUR FREIGABE JD 20.03.2020 4 ARC H LP DA_ 250 Lageplan INDEX PLANHISTORIE DATUM NAME AA STAND BAUANTRAG 20.03.2020 JD
42 43 3 6 2' 3' 4' 5' 6' A A' B' C' D' E' F' G' H' I' L A-A A-A BB BB B B-B B-B F=3.85 m² Bad F=3.73 Flur F=3.75 Flur F=3.85 m² Bad F=11.42 m² U=13.54 m H.E01.HO.105 Zimmer 105 F=11.39 m² U=13.52 m H.E01.HO.106 Zimmer 106 F=11.39 m² U=13.52 H.E01.HO.107 Zimmer 107 F=11.39 m² U=13.52 m H.E01.HO.108 Zimmer 108 F=11.39 m² U=13.52 H.E01.HO.109 Zimmer 109 F=11.39 m² U=13.52 m H.E01.HO.110 Zimmer 110 F=3.73 Flur F=3.85 m² Bad F=3.85 m² Bad F=3.75 m² Flur F=63.29 m² U=75.96 H.E01.FL.009 Flur F=2.73 m² U=6.66 H.E01.TE.001 ELT F=3.85 m² Bad F=3.73 m² Flur F=3.73 m² Flur F=3.85 m² Bad F=3.85 m² Bad F=3.73 m² Flur F=3.73 m² Flur F=3.85 m² Bad F=3.85 Bad F=3.73 Flur F=17.91 m² H.E01.TH.002 Treppenhaus F=12.02 m² H.E01.AZ.003 AZ. Schacht F=4.24 m² U=8.45 m H.E01.TE.002 HK Schacht Schacht Schacht 110 H.E01.SC.010 Schacht F=15.75 m² U=15.96 H.E01.HO.111 Zimmer 111 F=11.39 m² U=13.52 H.E01.HO.112 Zimmer 112 F=11.39 m² U=13.52 H.E01.HO.113 Zimmer 113 F=11.39 m² U=13.52 H.E01.HO.114 Zimmer 114 F=11.75 m² U=13.72 H.E01.HO.115 Zimmer 115 F=11.48 m² U=13.57 m H.E01.HO.116 Zimmer 116 F=11.66 m² U=13.67 H.E01.HO.117 Zimmer 117 F=11.39 m² U=13.52 m H.E01.HO.118 Zimmer 118 F=11.39 m² U=13.52 m H.E01.HO.119 Zimmer 119 F=11.39 m² U=13.52 m H.E01.HO.120 Zimmer 120 F=11.31 m² U=13.47 H.E01.HO.121 Zimmer 121 F=10.76 m² U=13.12 m H.E01.HO.122 Zimmer 122 F=10.76 m² U=13.12 H.E01.HO.123 Zimmer 123 F=10.76 m² U=13.12 H.E01.HO.124 Zimmer 124 F=10.76 m² U=13.12 H.E01.HO.125 Zimmer 125 F=10.76 m² U=13.12 H.E01.HO.126 Zimmer 126 F=11.96 m² U=13.83 m H.E01.HO.127 Zimmer 127 F=4.36 Flur F=3.73 Flur F=3.73 m² Flur F=3.73 m² Flur F=3.73 Flur F=3.73 m² Flur F=4.74 m² Flur F=3.85 Bad F=3.85 Bad F=3.85 m² Bad F=3.85 m² Bad F=3.85 Bad F=7.09 m² Bad F=4.65 m² Bad F=5.24 Bad F=3.64 m² Bad F=3.61 Flur F=3.32 Flur F=4.74 Bad F=3.32 Flur H.E01.SC.112 Schacht H.E01.SC.113 Schacht H.E01.SC.114 Schacht H.E01.SC.115 Schacht H.E01.SC.116 Schacht H.E01.SC.117 Schacht H.E01.SC.119 Schacht H.E01.SC.120 Schacht H.E01.SC.121 Schacht H.E01.SC.118 Schacht F=17.13 U=18.04 m H.E01.TE.004 HK F=4.74 m² Bad F=13.68 m² U=14.82 m H.E01.TH.001 Treppenhaus1 B F=55.91 m² U=77.55 H.E01.FL.010 Flur H.E01.SC.131 Schacht H.E01.SC.132 Schacht H.E01.SC.130 Schacht F=3.85 m² Bad F=3.73 m² Flur F=3.73 m² Flur F=3.73 m² Flur F=3.85 m² Bad F=3.85 m² Bad F=3.85 m² Bad F=3.85 m² Bad F=3.97 m² Flur F=3.73 m² Flur F=3.85 m² Bad F=3.73 m² Flur F=3.85 m² Bad F=3.85 m² Bad F=3.85 m² Bad F=3.73 m² Flur F=3.66 m² Flur F=3.85 m² Bad F=2.90 m² U=6.84 H.E01.TE.003 ELT Serviceaufzug A02 202049 1.152.2275 1.151.8675 22141.152.2275 1.152.22 1.152.2275 1.151.8675 22 8.24 2020 20201.8775 1.152.2275 1.1514221.8675 1.152.22 1.1514221.86 1.152.22 1.152.19 2375 1.152.201.151.81 4020 20 20 1.89 1.15 12 22 1.94 1.15 2.22 1.15 6 22 1.94 1.15 2.22 1.15 13 22 1.87 1.15 2.22 1.15 26 22 1.74 1.15 2.22 1.15 26 22 1.74 1.15 2.22 1.15 1.22 40 20 1' Personenaufzug A03 Personenaufzug A04 UK AHD +6.24 40x40 60x25 29.66 12.37 11.07 15.65 39.10 25 29.66 ROHBAU GESAMTMAß GESAMTMAß ROHBAU GESAMTMAß GESAMTMAß ACHSEN INNENAUSBAU Schacht Schacht Schacht H.E01.SC.106 F=3.85 Bad F=3.75 m² Flur Schacht Schacht Schacht F=3.85 m² Bad H.E01.SC.123 Schacht Schacht ROHBAU INNENAUSBAU Trockensteigleitung F=2.41 m² Schacht H.E01.SC.128 Trockensteigleitung Stg. 18.8 26 Stg. 18.8 26 Stg. 18.8 26 F=4.69 m² Flur F=4.39 m² Flur F=3.22 m² U=7.34 H.E01.TE.007 RLT Gastro VK AHD F90-A F90-A F90-A F90-A F90-A F90-A F90-A F90-A F90-A F90-A F90-A+M F90-A+M F90-A+M F90-A F90-A F90-A F90-A F90-A F90-A F90-A+M F90-A+M F90-A F90-A F30-B F30-B F30-B F30-B F30-B F30-B F30-B F30-B F30-B F30-B F30-B F30-B F30-B F30-B F30-B F30-B F30-B F30-B F30-B F30-B F30-B F30-B F30-B F30-B F30-B F30-B F30-B F30-B F30-B F30-B F30-B F30-B F30-B F30-B F30-B F30-B F30-B F30-B 20 3.16 22 3.19 15 3.19 22 3.19 15 3.26 22 3.21 15 3.29 22 3.19 15 3.19 22 3.19 15 4.35 20 20 6.30 20 1.45 20 1.10 10 2.22 20 1.01 25 3.35 22 3.08 15 3.35 25 3.57 10 2.83 20 1.45 20 2.83 3.77 20 3.54 15 3.19 22 3.19 15 3.19 22 3.19 15 3.19 221.54202.8310 3.57 20 2.22 +3.99 +3.83 3.98 3.83 BRH. 0.00 VSG VERGLASUNG FEST BIS 1,1m BRH. 0.27 VSG VERGLASUNG +6.57 +6.32 +6.57 +6.24 T30-RS T30-RS T30-RS T30-RS T30-RS RS RS RS RS RS RS RS RS RS RS RS RS RS RS RS RSRS RS RS RS RS RS RS RS RS RS RS LRH 2.10 m LRH 2.10 T30-RS F90-A F=0.80 m² U=4.18 H.E01.TE.005 ELT F90 Decke +3.99 +3.83 +3.99 +3.83 +3.98 +3.83 F90-A Ext. Begrünung H.E01.SC.111 Schacht RS RS ACHSEN ACHSEN INNENAUSBAU ACHSEN 3.30 3.3775 3.3775 3.37 3.3775 3.37 2.11 6.67 3.6475 3.37 3.3775 3.37 3.3775 3.37 1.7725 6.67 6.43 1.69 3.60 1.24 3.58 3.26 3.58 6.67 1.69 6.63 3.32 75 3.37 75 3.37 75 3.37 75 3.45 25 3.40 25 3.47 75 3.37 75 3.37 75 3.37 75 4.48 25 Abgasrohr RS 2.26 1.44 RS 2.26 1.50 RS 2 2 6 1.20 1.01 2 2 1.20 1.01 2 6 1.20 F=4.87 m² H.E01.AZ.002 AZ. Schacht F=11.39 m² U=13.52 H.E01.HO.103 Zimmer 103 F=11.42 m² U=13.54 H.E01.HO.104 Zimmer 104 F=11.39 m² U=13.52 H.E01.HO.102 Zimmer 102 F=11.42 m² U=13.54 H.E01.HO.101 Zimmer 101 F=8.61 m² U=12.08 m H.E01.HO.129 Zimmer 129 F=8.38 m² U=11.94 m H.E01.HO.128 Zimmer 128 F=12.32 m² U=14.16 m H.E01.HO.131 Zimmer 131 F=13.40 m² U=14.70 m H.E01.HO.132 Zimmer132 F=13.40 m² U=14.70 m H.E01.HO.130 Zimmer 130 20202.3725 1.152.21 22 4.32 1.1526221.47 13.58 20 3.20 15 3.19 22 3.19 15 3.20 20202675 1.152.151.151.832242 1.151.97 1.151.84 20 20 1.95 1.15 8.47 20 1.01 25 1.95 1.15 2.22 1.15 2.22 1.15 35 20 1.95 1.15 3.34 25 6.73 1.15 26 20 20 251.44 2.48 Stg. 18.8 27 11 Stg. 18.2 27 20 3.20 15 3.19 22 3.19 15 3.19 22 3.19 15 3.19 221.88 202.77 10 3.62 20 +4.67 OKF Attika +4.57 OKR Attika 2% 2% 2% 2% Not Entw. DN100 NK +3.83 OKR Dach +4.35 OKF Dachhaut NK 20 3.72 101.64 7 19 2217 7 1.66 10 3.71 22 20 1.45 20 3.43 1.22 25 F=3.73 Flur F=3.73 Flur +6.57 keine AHD 20 6.73 20 1.21 1.98 16 1.98 1.21 BRH. 0.00 VSG VERGLASUNG BLATTGROESSE [mm] 594 x 841 (DIN A1) ±0.00 = 123.37m ü. NHN LAGEPLAN PROJEKT F5 Frankfurter Straße 5, 65760 Eschborn Neubau einer Beherbergungsstätte BAUHERR EIN UNTERNEHMEN DER Groß Partner Grundstücksentwicklungsgesellschaft mbH Bockenheimer Landstr. 47 60325 Frankfurt a.M Tel: 069 360095 -100 Fax: 069 360095 -300 Gesichtet auf Bauherrenbelange und unter Beachtung der Eintragungen Wiedervorlag zur weiteren Planung/Ausführung freigegeben (Die Haftung des UNTERSCHRIFT DATUM ARCHITEKTUR GENERALUNTERNEHMER Hanauer Landstraße 287-289 D-60314 Frankfurt Main Tel: +49 (0) 69. 94 43 94-0 Fax: +49 (0) 69. 94 43 94-38 GOB Projektentwicklung Fünfte GmbH Co. KG Speicherstraße 55,60327 Frankfurt am Main UNTERSCHRIFT DATUM BAUHERR (bzw. AG) Mit der Unterschrift bestätigen die Unterzeichner, dass die dargestellte Leistung mit allen Fachdisziplinen abgestimmt ist und Mit der Unterschrift bestätigen die Unterzeichner, dass die dargestellte Leistung mit allen Fachdisziplinen abgestimmt ist und PHASE PLANTYP REFERENZ ARCHITEKTUR REFERENZ FACHPLANUNG PLANNUMMER PHASE BAUTEIL PLANTYP INDEX GEWERK EBENE/BEZUG LAUFENDE NUMMER REFERENZ ANDERE BAUTEIL MASSSTAB PLANSTATUS PROJEKTNUMMER INTERN GEZEICHNET PLANBESCHREIBUNG PHASE BAUTEIL GEWERK PLANNUMMER PLANINHALT Hinweis Das gezeigte Mobiliar kommt nicht vom Vermieter. AF 3 ARC H GR E01 100 33255 ENTWURF H 1:100 GRUNDRISS PRÜFUNG SCP 31.01.20 3 ARC H Grundriss 1. Obergeschoss INDEX PLANHISTORIE ADPLANVERSAND AWARO ELT Verteiler 1.OG Ausgussbecken_HK Raum Absenkung cm alle Bäder Brandschutzqualitäten gem. Brandschutzpläne vom 10.12.19 angepa Anp. Fassade gem. BH Termin 6.12.19 Entwurfsplanung für Mieter zur Prüfung AEPLANVERSAND AWARO Zimmer x12: Gästebad und Möbel gespiegelt Gem. BHJF 10 Abgasrohr Position, Raster angepasst (Achsen A,L und 1 bleiben unverändert) Anpassung Türbreiten gem Ang. ELT Anp.Türbreiten gem. Zarge/ Rohbauöffnung AFPLANVERSAND AWARO ABGABE ENTWURF LPH3 Verschiebung Gebäude (0,690810 m Anpassungen vor Planfreeze + FLOORPLANS
38 39

Tivoli Luxury Aparments, MOXY Marriott Hotel,

Slovenia

KSPJürgenEngelArchitekten,Frankfurt

+ Role - ProjectArchitect&BIMCordinator Design, consultant coordination, BIM coordination

+ Year - 2018/2019

44 45
46 47
+ FLOORPLAN + SITEPLAN
48 49 H2 H3 H4 H5 H6 H7 H8 H9 Einfahrt Tiefgarage gem. API EG OG OG OG OG OG OG Gesamtmaße Attika Abschluss Farbe Gem Bemusterung Pfosten Riegel Fassade Absturzsicherung Glasgeländer Beton Fertigteil Absturzsicherung Glasgeländer Keramikstab-Verkleidung z.B. NBK Terracotta Baguette Farbe gem. Bemusterung z.B. M7.02.0 318.47 üNN OK ATTIKA +20.470 NOTAUSGANG NOTAUSGANG EINFAHRT TIEFGARAGE AUSFAHRT TIEFGARAGE Wittertungshutz Betonfertigteil Technik +5.200 +8.230 +11.260 +14.290 +17.320 +20.470 +0.070 RETAIL EINGANG Perspektivische Ansicht Gerade Ansicht + ELEVATION + FASSADE DETAIL
0.00 3.54 7.07 10.61 14.14 17.68 21.21 24.75 28.28 31.82 35.35 kWh/m2 Total Radiation(kWh/m2) FRANKFURT_AM_MAIN_DEU_1990 1 JAN 1:00 - 31 DEC 24:00 N 10 20 30 40 50 60 70 80 E 100 110 120 130 140 150 160 170 S 190 200 220 230 240 250 260 W 280 290 300 310 320 330 340 350 210 200 190 S 170 160 150 140 130 120 110 100 E 80 70 60 50 40 30 20 10 N Diffuse Radiation(kWh/m2) FRANKFURT_AM_MAIN_DEU_1990 1 JAN 1:00 - 31 DEC 24:00 kWh/m2 23.73 21.36 18.98 16.61 14.24 11.86 9.49 7.12 4.75 2.37 0.00 220 230 240 250 260 W 280 290 300 310 320 330 340 350 210 0.00 2.37 4.75 7.12 9.49 11.86 14.24 16.61 18.98 21.36 23.73 kWh/m2 Direct Radiation(kWh/m2) FRANKFURT_AM_MAIN_DEU_1990 1 JAN 1:00 - 31 DEC 24:00 N 10 20 30 40 50 60 70 80 E 100 110 120 130 140 150 160 170 S 190 200 210 220 230 240 250 260 W 280 290 300 310 320 330 340 350 2.10 3.33 4.56 5.79 7.02 8.25 9.48 10.71 11.94 13.17 14.40 m/s Wind-Rose FRANKFURT AM MAIN_DEU
JAN 1:00 - 31 DEC 24:00 Hourly Data: Wind Speed (m/s) Calm for 0.00% of the time = 0 hours. Each closed polyline shows frequency of 0.1%. = 7 hours. N NNE NE ENE E ESE SE SSE S SSW SW WSW W WNW NW NNW NNW NW WNW W WSW SW SSW S SSE SE ESE E ENE NE NNE N Wind-Rose FRANKFURT AM MAIN_DEU 1 JAN 1:00 - 31 DEC 24:00 Hourly Data: Dry Bulb Temperature (C) Calm for 0.00% of the time = 0 hours. Each closed polyline shows frequency of 0.1%. = 7 hours. C 21.90 21.52 21.14 20.76 20.38 20.00 19.62 19.24 18.86 18.48 18.10 20.00 25.90 31.80 37.70 43.60 49.50 55.40 61.30 67.20 73.10 79.00 % Wind-Rose FRANKFURT AM MAIN_DEU 1 JAN 1:00 - 31 DEC 24:00 Hourly Data: Relative Humidity (%) Calm for 0.00% of the time = 0 hours. Each closed polyline shows frequency of 0.1%. = 7 hours. N NNE NE ENE E ESE SE SSE S SSW SW WSW W WNW NW NNW > FRANKFURT WEATHER
LADYBUG ENVIRONMENTAL ANALYSIS
1
DATAS,
12 AM 6 PM 12 PM 6 AM 12 AM Dec Nov Oct Sep Aug Jul Jun May Apr Mar Feb Jan Dry Bulb Temperature (C) - HourlyFRANKFURT AM MAIN_DEU1 JAN 1:00 - 31 DEC 24:00 C 33.60 29.35 25.10 20.85 16.60 12.35 8.10 3.85 -0.40 -4.65 -8.90 > FRANKFURT WEATHER DATAS, LADYBUG ENVIRONMENTAL ANALYSIS 330 300 W 240 210 S 150 120 E 60 30 N Sun-Path Diagram - Latitude: 50.0521 SEP 12 AM 6 PM 12 PM 6 AM 12 AM Dec Nov Oct Sep Aug Jul Jun May Apr Mar Feb Jan Outdoor Comfort (-3 = Extreme Cold | -2 = Cold | -1 = Cool | 0 = Comfort | 1 = Warm | 2 = Hot | 3 = Extreme Heat) - Hourly FRANKFURT AM MAIN_DEU 1 JAN 1:00 - 31 DEC 24:00 3.00 2.40 1.80 1.20 0.60 0.00 -0.60 -1.20 -1.80 -2.40 -3.00 12 AM 6 PM 12 PM 6 AM 12 AM Dec Nov Oct Sep Aug Jul Jun May Apr Mar Feb Jan Outdoor Comfort (-3 = Extreme Cold | -2 = Cold | -1 = Cool | 0 = Comfort | 1 = Warm | 2 = Hot | 3 = Extreme Heat) - Hourly FRANKFURT AM MAIN_DEU 1 JAN 1:00 - 31 DEC 24:00 -3 = Extreme Cold | -2 = Cold | -1 = Cool | 0 = 3.00 2.40 1.80 1.20 0.60 0.00 -0.60 -1.20 -1.80 -2.40 -3.00
> FACADES, GRASSHOPPER / RHINO 3D Perspektive Blickrichtung Südost

2

2

2

Downlight

GK -Glatt

Zuluftelement

Fortluftelement

Abluftelement

Weitere Elemente dem LV zu entnehmen

Zuluft -Tellerventil

Abluft-Tellerventil Umkleideschränke

für HaustechnikInstallationen Typ HTA -CE 40/22P

Wechselträger

Abhänger Reinraumdecke

Konsole Reinraumdecke

Abhänger bis Wechselträger

Sicherheitsbereitschaftslicht

Rauch-\Wärmemelder

Rauch-/ Wärmemelder mit Sirenensockel

Projektor (Installationstyp Decke)

Einbauteile

ZK ZK A1 A3 A4 A2 21,7 m² 19,600 m Personalschleuse Männer P2.E0.105 Grade 21,5 m² 19,400 Personalschleuse Frauen P2.E0.106 Grade Typ 31 Typ 31 TypT0 31 TypT0 31 2,40 15 2 6 1,00 1,15 10 12 10 93 2 2 6 1,00 15 2,40 1,20 1,20 45 1,40 45 10 45 1,40 45 60 60 1,20 3,20 45 2 2 6 1,00 5 10 5 2 2 6 1,00 45 3,20 Desinfektion + Spiegel 40 40 40 40 40 40 40 40 40 40 40 8 x 2 ZSpinde mit Absaugung schmutzige Kleidung x 2 ZSpinde mit Absaugung schmutzige Kleidung Handwaschbecken + Spiegel 3 x Sitzhocker, mobil 40x40x40 offene Spinde DKleidung, wiederverwertbar Übersteigbank Schuhe neu 4 x 2 offene Fächer Schuhe neu 2 7 offene Fächer Entnahme DKleidung Desinfektion + Spiegel 16 x offene Spinde DKleidung, wiederverwertbar überströmbar, ohne Boden 10 50 4,20 10 Medienpaneel Medienpaneel Medienpaneel Medienpaneel Handwaschbecken + Spiegel Papierspender Mülleimer Papierspender Mülleimer
x 3 offene Staufächer Abwurffach Entnahmewagen 50 4,20 x 3 offene Staufächer Abwurffach Entnahmewagen
x 5 offene Staufächer Schuhe neu 2 7 offene Fächer
x 5 offene Staufächer Schuhe neu 2 7 offene Fächer Schuhe neu 2 x 7 offene Fächer Übersteigbank Schuhe neu 4 x 2 offene Fächer Entnahme DKleidung
3 offene Staufächer Abwurffach Entnahmewagen
2
2
2
2
3 offene Staufächer Abwurffach Entnahmewagen
x 5 offene Staufächer
x 5 offene Staufächer 3 Sitzhocker, mobil 40x40x40 D-ZONE CNC D-ZONE CNC Seifenspender Seifenspender OKFF +0 OKRD -8 P2.E0.105 Personalschleuse Männer 21,7 m² P2.E0.106 Personalschleuse Frauen 21,5 m² TypT0-DS 31 P2.E0.106-02 TypT0-DS 31 P2.E0.105-02 TypT0 31 P2.E0.105-01 TypT0 31 P2.E0.106-01 P2.E0.105 Personalschleuse Männer 21,7 m² P2.T0.810 Technikebene 1026,3 m² P2.E0.106 Personalschleuse Frauen 21,5 m² T0-DS Typ 31 P2.E0.105-02 T0-DS Typ 31 P2.E0.106-02 2,40 2,08 32 2,30 2,40 74 2,26 1,10 90 15 85 Z-Spinde schmutzige Kleidung Z-Spinde schmutzige Kleidung Handwaschbecken + Spiegel Sitzhocker, mobil 38 40 40 40 40 40 16 1,00 55 38 10 12 10 38 77 1,00 15 40 40 40 40 40 40 1,00 1,60 40 Sitzhocker, mobil Handwaschbecken + Spiegel 60 20 60 20 3,00 Oberblende Oberblende 1,00 2,00 OKFF +0 UKAD +3,00 P2.E0.106 Personalschleuse Frauen 21,5 m² P2.T0.810 Technikebene 1026,3 m² 40 1,60 1,00 ZSpinde mit Absaugung schmutzige Kleidung Sitzhocker, mobil Schuhe neu 2 x 7 offene Fächer offene Spinde, DKleidung, wiederverwertbar 50 28 62 40 1,40 1,10 40 5 2,80 12 1,00 1,60 40 Übersteigbank Fächer OKFF +0 UKAD +3,00 P2.E0.106 Personalschleuse Frauen 21,5 m² P2.E0.105 Personalschleuse Männer 21,7 m² P2.T0.810 Technikebene 1026,3 m² T0 Typ 31 P2.E0.106-01 T0 Typ 31 P2.E0.105-01 9,50 1,99 1,01 Desinfektion Desinfektion offene Spinde, D-Kleidung, wiederverwertbar Boden und Decke offen 20 1,80 1,00 12 2,80 3,20 45 1,00 10 1,00 45 3,20 offene Spinde, D-Kleidung, wiederverwertbar Boden und Decke offen UKAD +3,00 OKFF +0 P2.E0.106 Personalschleuse Frauen 21,5 m² P2.T0.810 Technikebene 1026,3 m² Spiegel900x500mm 20 60 515 90 1,10 40 14 60 36 50 60 50 30 50 30 50 Spiegel900 500mm 4,70 ZSpinde mit Absaugung schmutzige Kleidung Sitzhocker, mobil Entnahme DKleidung 2 x 5 offene Staufächer offene Spinde, DKleidung, wiederverwertbar Desinfektion Handwaschbecken Spiegel 4,20 50 S pi e gel 1800 600mm 1,00 2,00 40 UKAD +3,00 OKFF +0 Waschbereich Transportequipment P2.T0.920 CNC -Controlled not classified 123,45 m² 100,0 m LRH: RRH: 3,00 m 4,25 m Typ T30-RS 00.010-01 Wandqualitäten Stahlbeton Mauerwerk Symbole Höhenkote Grundriss Ausbau Höhenkote Grundriss Rohbau Kombiniert Höhenkote Schnitt Ausbau Höhenkote Schnitt Rohbau Kombiniert Wanddurchbruch Bodendurchbruch Schacht Deckendurchbruch Reinraumwand Reinraumwand Glas mit Brüstung Trockenbau Wärmedämmung Eingang Türstempel Brandschutzangaben Türtyp Türnummer Abkürzungen AB Abluft AD Abgehängte Decke AK Aussenkante AWP Prozessabwasser AWPP Prozessabwasser Phenol BD Bodendurchbruch BA Bodeneinlauf BFT Betonfertigteil BR Brüstungshöhe ab FBOK BS Bodenschlitz CLU Clean Utility DA Deckenaussparung DD Deckendurchbruch DE Deckeneinlauf FB Fussboden F30 Feuerhemmende Wand F90 Feuerbeständige Wand ELT Elektro GH Geländerhöhe FBOK bis OKF GK Gipskarton GKI Gipskarton Imprägniert G30 Feuerhemmende Verglasung G90 Feuerbeständige Verglasung RW Reinraumwand RWA Rauchwärmeabzug SAN Sanitär SB Sichtbeton SH Schacht SHS Schachtsohle TRW Trinkwasser UK Unterkante UKAD Unterkante Angehängte Decke UKF Unterkante Fertig UKR Unterkante Roh UKRD Unterkante Rohdecke UKUZ Unterkante Unterzug UZ Unterzug UZD Unterzugsadurchbruch ÜZ Überzug VK Vorderkante VKD Vorderkante Decke VKFA Vorderkante Fassade VW Vorwand WA Wandaussparung WD Wanddurchbruch WS Wandschlitz ZD Zwischendecke Alle Maße sind am Bau zu überprüfen! Die ausführende Firma für die Konstruktion der Ausführung und die Prüfung sämtlicher Maße verantwortlich. Bei Maßabweichungen sind die Architekten und die Bauleitung umgehend zu informieren. Dieser Plan ist nur in Zusammenhang mit den dazu gehörigen Schal- und Bewehrungsplänen des Statikers und den dazu gehörigen Installationsplänen (Haustechnik und Elektro) gültig. Unstimmigkeit sind umgehend der Bauleitung zu melden! Grundlage der konstruktiven Ausführung die Statik. Anderweitig trägt der Unternehmer die alleinige Verantwortung! Türausstattung siehe Elektro-Installationspläne und Türliste. Alle Höhenmasse (Türen, Fenster) ab OKFF, Brüstungshöhen bis OK Roh. Treppenlaufbreite notwendiger Treppenhäuser mind. 1,20 HZG Heizung HL Handlauf KAE Kälte KB Kernbohrung LH Lichte Höhe NA Notausgang NMS Nach Montage Schliessen OK Oberkante OKF Oberkante Fertig OKFF Oberkante Fertigfussboden OKR Oberkante Roh OKRD Oberkante Rohdecke OKSCH Oberkante Schacht OKST Oberkante Sturz (Roh) OKVW Oberkante Vorwand PRO Prozess PZ Putz AWR Regenwasser RD Reinraumdecke RDS Rohdeckensprung RLT Lüftung RÖ Revisionsöffnung RR Regenrohr Raumstempel Bodenschlitz Raumname Raumnummer GMP-Klasse Raumfläche Raumumfang Lichte Raumhöhe Roh Höhe (OKFF-UKRD) Reinraum Vorsatzschale mit Bodenaher Absaugung Schnitt xxx Detailhinweis Deckenspiegel Symbole Erläuterung Einbauleuchte LED Langfeldleuchte Fluchtwegspiktogramm -Deckenausschnitt: vor Ort/bauseits WLAN Access Point im Lampen-Leergehäuse Höhenqote -Bezug auf UK Decke Präsenzmelder Bohrung 20,5mm vor Ort/Bauseits Deckendurchbruch
RR-Absorber Symbole
Montageschienen
nach ELT/GA/Prozessplanung Deckendurchführung Reinraumwände/Türpaneele -Ausführung nach xxx Deckendurchführung IcoTec Raumseitig Strom/Daten -Ausführung Bauseits
Erläuterung Bodendurchbruch Montageschienen für Aufhängung Reinraumdecke Typ HTA -CE 40/22P
Reinraum-Einbauleuchte LED Revisionierbarkeit von unten
Schiene
Haltepunkte
mit 2-3 flexibel platzierbaren
an der Rohdecke Reinraum-Einbauleuchte LED mit Notfallleuchte
Langfelddecke
System
m Reinraum 1,20 X 1,20m (begehbar) Klemkassetten Decke 0,60 0,60 m (E2 Labor) Pendelleuchte LEGENDE O1 O2 P1 B1 P2 0 1 3 4 5 7 8 9 10 11 12 13 14 0 1 3 4 5 7 8 9 10 11 12 13 14 A B C D E F G H J K A B C D E F G H K Partner: Planungsbüro: Rev. Nr. Phase: Disziplin: Projekt: Maßstab: Plangröße: Ersteller: Datum: Unterschrift Freigabe Bauherr Bauherr Ort Datum Plannummer: Planname: Revisionsbeschreibung Ausgegeben an Rev. Datum Ausgegeben von ±0,00 = 14,78 ü NN Planteil: Geprüft von: Bestätigt von: Datum: Datum: Dokumentenstatus: Dieses Dokument ist Eigentum der Pharmaplan GmbH und darf ohne vorherige schriftliche Zustimmung der Pharmaplan GmbH weder vervielfältigt, noch kopiert, noch an Dritte weitergegeben, noch für andere Zwecke als die, für die es ausdrücklich zur Verfügung gestellt wurde, verwendet werden. Revisionsnummer: Unterschrift Verfasser Planungsbüro Verfasser Ort Datum 01 Pharmaplan GmbH Siemensstraße 21 61352 Bad Homburg Richter-Helm BioLogics GmbH & Co.KG Dengelsberg 24796 Bovenau LP5 -Ausführungsplanung Architektur Richter-Helm Site Extension Dengelsberg, 24796 Bovenau DIN A0 C.Müller 2022-02-09 Personalschleuse CNC -D (E0) RHBEX_P2_LP5_302_DTL_UMK_01_E0_--1:50 T +49 4331 1230101 www.richter-helm-biologics.eu T +49 6172 8502 100 germany@pharmaplan.com www.pharmaplan.com RHBEX_P2_LP5_302_DTL_UMK_01_E0_--1 von 1 Ausführungsplanung C.Müller S.Reinke 1 25 PAL Damen/Herren Grundriss 1 1 25 PAL Damen/Herren Deckenspiegel 2 1 25 PAL Damen/Herren Ansicht 1 A1 1 25 PAL Damen/Herren Ansicht 2 A2 1 25 PAL Damen/Herren Ansicht 3 A3 1 25 PAL Damen/Herren Ansicht 4 A4 PAL Damen/Herren 3D 7 00 Planerstellung 2021-11-19 S.Cheriya C.Müller 01 Ausführungspläne Schleusenmöbel 2022-02-09 S.Cheriya C.Müller
-Flur (0,30m breit)
Decke 0,625 X 0,625

TECHNICAL WORK PORTFOLIO

SHIRAZ CHERIYA PARAMBATH

50

Turn static files into dynamic content formats.

Create a flipbook
Issuu converts static files into: digital portfolios, online yearbooks, online catalogs, digital photo albums and more. Sign up and create your flipbook.