Shrida Venkatesh MArch RIBA Part 2 Portfolio 2022

Page 1

SHRIDA VENKATESH

Architecture Portfolio

Masterplanning + Urban Regeneration

MArch Thesis Project | Sep 21’- May 22’ | Individual

This project explores a new approach to designing for a zero-carbon future, combining urban planning and computational methodologies to develop a self sufficient net zero development.

city

THE SELF-SUFFICIENT CITY
| The Self-sufficient
02

Greenspace

The 15 minute city concept

URBAN

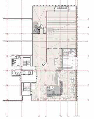
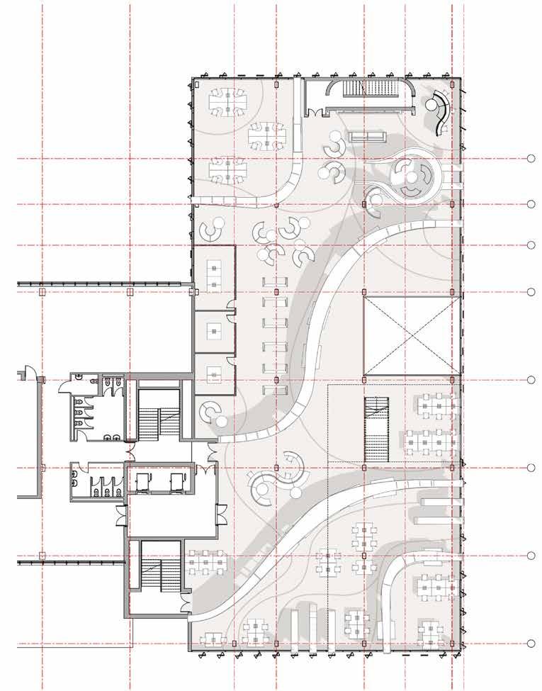
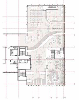
The urban plan of the Northern Gateway looks at developing an accessible, connected and walkable neighbourhood.

Accessibility based urban planning aimed to improve the urban layout, reducing the need to travel long distances to access amenities. Planned walkability and infrastructure for active transportation aimed to reduce the dependency on motorised transport.

Sports centre

General Physician

Amenity

Shopping centers

Secondary School

Elevated Park

Coworking spaces

Primary School

Healthcare centre

Community Centre

Green Amenities

Transit stops

Commercial Block

Everyday Amenity

Residential Block

Axonometric massing of the urban neighbourhood.

| The Self-sufficient city03
Transit Hub Recreational Residential Transit Hub Commercia Educational Healthcare
SCALE DEVELOPMENT
| The Self-sufficient city04 BUILDING SCALE DESIGN THE SELF-SUFFICIENT URBAN BLOCK

The Modular building helps realise the goal of developing the self sufficient city at the building level.

The Axonometric view of the superblock depicting various modular apartment types in the building.

Self-sufficient city

| The
05
View of the walkable neighbourhood View of the Interior courtyards
VISUALISATIONMODULAR CONSTRUCTION

Student Accommodation

MArch Design Project | Sep 20’- Dec 20’ | Group

The project aims to address the unmet student housing demand by implementing the DFMA (Design for Manufacture and Assembly) construction method.

| Manchester 1906 MANCHESTER 19

MASSING DEVELOPMENT PROGRAM DISTRIBUTION

Defining the boundaries of the site to accommodate 1600 beds.

Rotating the volumes slightly to reorganise the relationship between the building and the context.

Defining the two main circulations and creating four simple masses that are split by the circulations.

Creating balconies and assembling the plug-in facade onto the simple massing to obtain a parametric facade.

TWENTY THIRD FLOOR

Defining the main cores for vertical circulation and devoting the lower floors for commercial activity.

TERRACE FLOOR

Open terrace, Lift room, space for solar panels.

FIFTEENTH FLOOR

Communal Bridge, Ensuite rooms & Studio Apartments.

FIFTH FLOOR

Communal Bridge, Ensuite rooms, Studio Apartments, Plant room, Store room & Laundry.

FIRST FLOOR

Ensuite rooms, shared spaces, Studio Apartments & Balconies.

GROUND FLOOR

Cafe, Dining halls, Sports Lounge, Gym, Study spaces & Games room

Creating a bridge connecting two buildings on two levels serve the dual purpose of structural stability and communal space.

The diagram illustrates the programme of the proposed student housing building the main spaces on each floor and the accessibility and connection between the spaces.

| Manchester 1907
1 4 2 5 3 6
Deluxe Ensuite rooms

Steel construction in its traditional form consists of skeletal frames, beams and columns. This form of steel construction uses hot rolled I and H sections that are fabricated with their end connections and are assembled on site using bolts and sometimes by welding. Complete modules made up of multiple units with internal finishes, fixtures and fittings are manufactured in factories and are then transported to site for installation.

MODULE CONSTRUCTION

Two layers of

Partition

FACADE DETAIL

The elevation is manipulated by plug- in facades of various colours and sizes. In dialog with the building’s overall massing, the façade features a subtle gradient of facade sizes.

| Manchester 1908 VOLUMETRIC CONSTRUCTION Insulation Steel joists Plasterboard Steel Ceiling beam Door
wall Steel Column Chipboard flooring Steel floor beam Steel floor joists Window
PPVC
plasterboard

MODULE ASSEMBLY

Modular prefabrication technology promotes off site manufacturing of modules and on site assembly by improving the construction efficiency, safety and productivity. However, the joining of individal modules need special connectors that must be fast to install and robust enough to ensure structural integrity.

MODULE INSTALLATION

A typical junction between two modules to side and above and below is illustrated which shows the components of the modules in detail.

CONNECTION

MODULAR CONSTRUCTION
Plug-in Facade Chipboard
Insulation Light steel joists Two layers of plasterboard Insulation
board
Sheathing
board
Light steel studs
MODULE

APARTMENT TYPES

Parapet Wall

Water Proofing

Flooring

The modules are configured according to the design layout. The geometry of the modules is simplified for ease of production.

EXAMPLE OF A TYPICAL 8 BEDROOM UNIT MODULE

Demarcation of a typical unit module with reference to plan below is as follows:

• Module A: Kitchen with Living Room

gauge

Light gauge steel framing

steel studs

Board

Wool

• Module B: Dining Room

• Module C: Bedroom with In- built Bathroom

• Module D: Terrace Module

1:20 @ A3 Mineral
Insulation
Light
steel framing Windows 2 Layers of Plasterboard Fire proof laminated oak Aluminum Projection Pipes for services Light Steel Studs Water Proofing Flooring Parapet Wall STANDARD ENSUITE MODULE (17 M 2 )
MODULE D MODULE D CORRIDOR MODULE C MODULE CMODULE A MODULE B MODULE C MODULE C MODULE C MODULE C MODULE C MODULE C STUDIO APARTMENT MODULE (39.5 M 2 )
Light
Insulation board Mineral wool Windows 2 Layers of plasterboard Fire proof laminated oak Aluminium projection Pipes for services DETAILED SECTION CONFIGURATION OF PPVC MODULES | Manchester 1910

The MEP strategy for the studio apartment is illustrated in the diagram below. All apartments are serviced from the ground floor to the top floors through the designated riser shafts within the core.

Water strategy

Ventilation strategy

Heating strategy Lighting strategy

View of the Ensuite Apartment bedroom View of the Studio Apartment
MEP STRATEGY INTERIOR VIEWS | Manchester 1911

PLANAR MOTION

Adaptive Reuse MArch Design Project | Jan 21’- Apr 21’ Group

The project aims to propose the adaptive reuse of the existing All Saints Library Building on the MMU Campus as part of a redevelopment strategy for Oxford Road in Manchester.

| Planar Motion12

STRATEGY

Our project mainly focused on creating new learning spaces at the East Wing as a design solution to merge existing physical collection with new digital infrastructure.

A mixture of arts and crafts, science and technology with innovation and play promotes experiential learning to foster creative attributes and empowering learning through making.

The

The exploration of the facade began with the arrangement and configuration of the interior space. Then, voids are imagined and experimented with on the facade of strips, testing the best way to integrate the facade into the interior. Building design is driven by the facade on the outside as well as furniture and space on the inside.

were

programmes
designed to be accessible and to connect each of the various learning spaces. The building is divided into private upper floors and public lower areas. This way students would have the opportunity to engage and interact with external collaborators at the public level while also being able to focus on learning without interruption in the private areas.
Reading spaces Exhibition spaces
| Planar Motion13
DESIGN

The programme are mainly designed based on the accessibility and connection between each ‘new learning spaces’. The building is divided with categorisation of private and public, the bottom floors are open to the public but the top floors are only accessible by University student and staff. This way student would have the opportunity to engage and interact with the external collaborators at the public levels while also being able to focus on learning without interruption from the public (private areas).

Ground floor Sixth floorFourth floor

FLOOR PLANS 14 | Planar Motion
Ground floor First floor Second floor Third floor Fourth floor Fifth floor Sixth floor

Utilising double glazing facade to provide natural ventilation when needed.

Copper Louvre fins that integrates with the interior furniture elements, creating a seamless connection between the inside and outside.

Copper Louvres are bolted directly onto the concrete floor slabs.

Translucent Photovoltaic Panel for the skylight to absorb specific light wavelengths, reducing direct heat gain from the sunlight.

ELEVATIONS

Copper louvres curve in towards the double glazing facade, sealing the end of the louvre and the end of the furniture strip to the glazing, to create an impression of a continuous strip that penetrates the glazing.

This central location of the building makes it the heart of the student experience and the location forms a cornerstone to All Saints Park.

COPPER LOUVRE TO DOOR SLAB CONNECTION DETAIL LOUVRE TO INTERIOR FURNITURE DETAIL
| Planar Motion15

Skylight detail

Ceiling detail

Skylight detail

Window detail

Ceiling detail

Window detail

CONSTRUCTION DETAIL
| Planar Motion16

CHILDREN’S HOSPITAL

Healthcare

BArch Thesis Project | Dec 18’- Apr 19’ | Individual

The project aims to explore opportunities for the architecture and design for young patients with a focus on health and wellbeing.

17 | Children’s Hospital
18 | Children’s Hospital
19 | Children’s Hospital
20 | Children’s Hospital

REVITALISING KASIMEDU

Urban regeneration BArch Design Project Jul 18’- Nov 21’ | Group

The project aims to reimagine the Kasimedu harbour at Chennai revitalizing the physical, economic and social fabric for its neighbouring communities and visitors.

21 | Revitalising Kasimedu
22 | Revitalising Kasimedu
23 | Revitalising Kasimedu

STATIONERY STORE

Retail

BArch Design Project | Jul 15’- Nov 15’ | Individual

The project aims to increase the value of waste material and explore its constructive possibilities.

24 | Stationery store
25 | Stationery store
26 | Stationery store

Urban Design

BArch Design Project | Jun 18’- Nov 18’ | Group

This project aims to research the potential of the built environment in significantly reducing disaster risk and contributing to sustainability. We chose to research how urban design can help reduce Delhi’s smog.

1000:1
27 | 1000:1
28 | 1000:1
29 | 1000:1

INTERNSHIPS

BArch | Jul 17’- May 18’ | Individual Anutham Architecture Studio DesignQube Architects & Interior Designers

After BArch | Feb 20’- Apr 20’ | Individual DesignPro Architects & Planners

MArch | Jun 21’- Dec 21’ | Individual Asante Architecture & Design

30 | Internships

INTERNSHIP WORK AT ANUTHAM

drawing

Ramesh residence, Ground floor plan.

31 | Internships
Working

drawing

Ramesh residence, First floor plan.

32 | Internships Working
INTERNSHIP WORK AT ANUTHAM

Elevation

Plan @

Plan @ lintel level

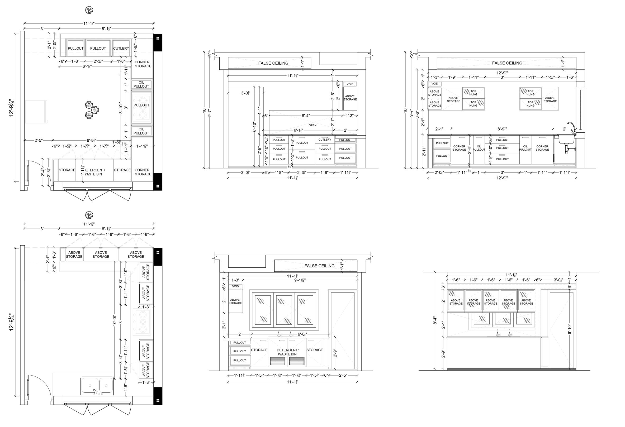
Kitchen detailing INTERNSHIP WORK AT ANUTHAM
sill level
AA’ Elevation CC’
Elevation BB’ Elevation DD’ 33 | Internships

INTERNSHIP WORK AT DESIGNQUBE

Interior detailing of Balcony seater

Furniture layout option & visualization

34 | Internships

I was involved in the design of a Wine cellar for a residential project as part of my assignment at Asante. Our challenge was to design a wine storage solution that could store a minimum of 600 wine bottles. Also, it was interesting to think of creative ways to integrate a pantry into the room under the stairs, which is usually forgotten.

Interior render of a seviced apartment Model of the wine room Interior view of the wine shelvesLayout 2 Layout 1 Interior view of the wine room Top view of the wine room model Interior render of dentist’s clinic INTERNSHIP
WORK AT
DESIGNPRO
INTERNSHIP
WORK AT ASANTE
35 | Internships

Turn static files into dynamic content formats.

Create a flipbook
Issuu converts static files into: digital portfolios, online yearbooks, online catalogs, digital photo albums and more. Sign up and create your flipbook.