Portfolio 2023 - Stefani Tosheva

Page 1

Stephani Tosheva 2 O
3
RTF p O LI O O
2
Interior Design

Частно жилище - Euromebel ЕООД 01

астно жилище - Euromebel ЕООД Ч

астно жилище - Euromebel ЕООД Ч

05 Частен проект - апартамент 68 м2, 02

Люлин, София

Гардероб и шкафове за обувки

Шкаф за почистващи пособия

м2,
05 астен проект - апартамент 68 м2, Ч

София

м2, Люлин,
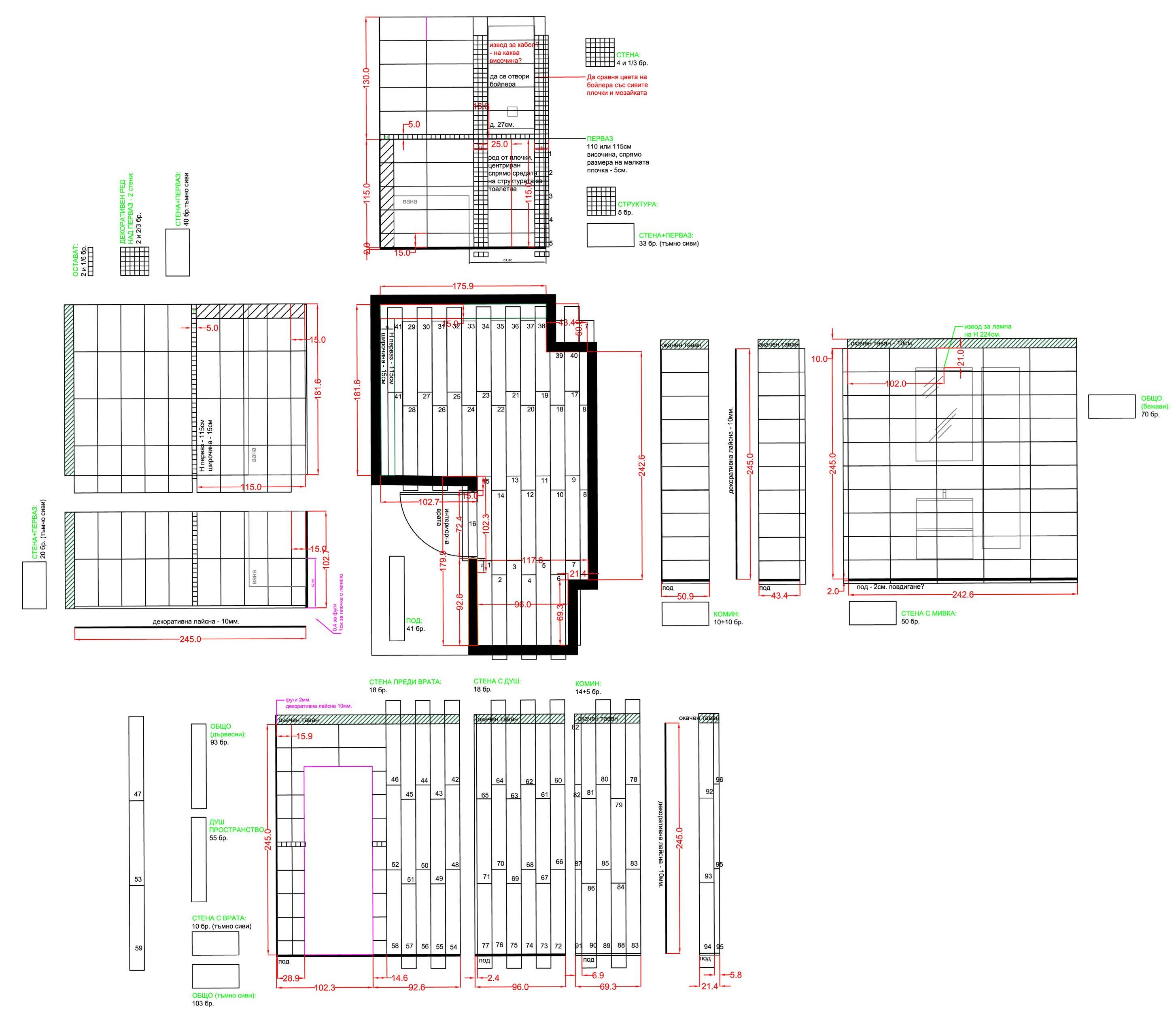
астен проект - разгъвка баня Ч
Частен проект
настилки 68 м2 Ч
-
Таван - спалня Таван - дневна
астен проект - тавани Ч
Пространствено и интериорно оформление 03 Преди: След: Charles
are the details. They the design.”
“The details

на търговски обекти “Аико”

оформление
Charles Eames
“The details not details. make design.”
Най-големият избор за Вашия прекрасен дом!
О
съществяване на цялостна визия за
Преди:
По-добрите идеи за Вашето страхотно настроение! за магазините - реконструкция
атриум След:
съществяване
на О Преди:
на цялостна визия
След:
на магазините - реконструкция касова зона
съществяване
цялостна визия на О ПДЧ стелаж - сейфове ПДЧ стена за изграждане ПДЧ стелаж - сейфове фронтален поглед поглед отгоре ПДЧ стена за изграждане ПДЧ стелаж Стелаж за сейфове + офис столове След: Преди:
на

магазините - реконструкция стелажи

Стелаж за бар столове

ПДЧ рафтове с PVC настилка.

Горният рафт трябва да е укрепен

за носеща структура със стоманени въженца.

на
04
Допълнителни
квалификации: Курс
Курс по
интериорна визуализация - RED VERTEX
опълнителни
по Д
квалификации: Курс

визуализация - RED VERTEX

по
интериорна
опълнителни квалификации: Д Цялостен курс по Интериорен дизайн - Kraftek Design
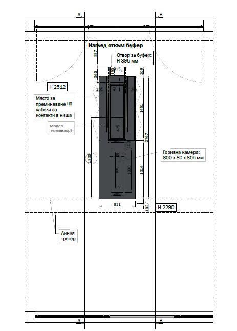
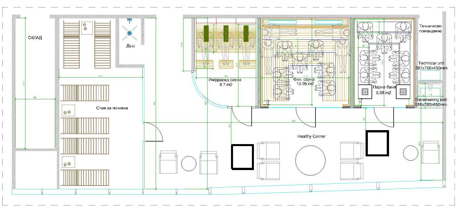
Идеен проект за сертифициране на уелнес и спортен Д Разгъвка финландска сауна Идейно разпределение опълнителни квалификации:

център в NV Tower, София

спортен
разпределение
cOntacts: stosheva14@gmail.com +359 887 098 092 София

Turn static files into dynamic content formats.

Create a flipbook
Issuu converts static files into: digital portfolios, online yearbooks, online catalogs, digital photo albums and more. Sign up and create your flipbook.