CASA TOCHA
PORTIMÃO | ALGARVE

![]()
































PROGRAMA FUNCIONAL E CONCEITO ARQUITECTÓNICO
PISO TÉRREO - ZONA SOCIAL EM OPEN SPACE
LIGAÇÃO ENTRE ESPAÇOS INTERIORES E EXTERIORES
PÁTIO INTERIOR (ZONA LOUNGE)
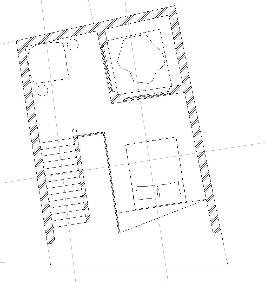
PISO 1 - ESPAÇO MULTIFUNCIONAL - POSSIBILIDADE DE MODIFICAR
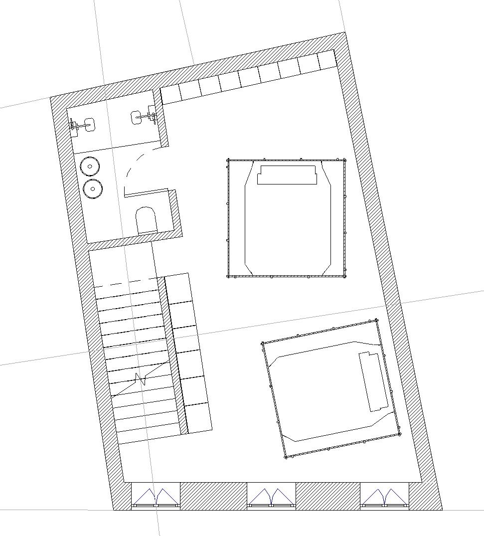
MEZZANINE MULTIFUNCIONAL | TERRAÇO ACESSÍVEL COM PLUNGE POOL





































ARCHITECTS:
JOÃO CARRIÇO– TLM. (+351) 914773149
E-MAIL: joaocarrico@studioarte.info
MARCELO GUILHERME _TLM (+351) 932129553
EMAIL: marcelo@studioarte.info
CREATIVE DIRECTOR AND DESIGN CONCEPT:
ARNOLD AARSSEN – TLM. (+351) 962 042 933
E-MAIL: arnoldaarssen@studioarte.info
STUDIO ARTE RUA 5 DE OUTUBRO Nº 49 R/C 8500-581 PORTIMÃO - PORTUGAL
t: (+351) 282 445 776
web: www.studioarte.info
FACEBOOK: https://www.facebook.com/studioarteportimao/ ISSU: https://issuu.com/studioarte