Manzanita | Village at Gray's Crossing Interior Design

Page 1

MANZANITA BY TURN KEY

FURNITURE | HOME DECOR | DESIGN

Experience the ultimate Turn Key experience by partnering with Tahoe Modern. Immerse yourself in the creative process of home design as we expertly handle all the logistics. Once your customized design is finalized, our team takes charge, managing everything from procurement and tracking to thorough inspections, installation coordination, and even seamless management of warranty claims.

DESIGN, LOGISTICS & SUPPORT

Enjoy the journey of creating your dream home without any of the stress. Our seamless design process offers the following:

1:1 Design Support Purchasing Tracking & Receiving

Inspection & Claims Install & Styling Trash & Recycle Removal A PROUD PARTNERSHIP OF TAHOE MODERN & CAMP CREEDON DESIGN CO.

Designer Mood Boards V1

Mix & Match V1

Designer Mood Boards V2

Mix & Match V2

Mix & Match V1 and V2

Designer Mood Boards

Mix & Match V1, V2, V3

Designer Mood Boards

Mix & Match V1 and V2

GREAT ROOM
BEDROOMS
MEDIA/BONUS
TABLE OF CONTENTS 01 |
02 |
03 |

01 GREAT ROOM Manzanita

Select from two furniture layouts, each perfectly dimensioned and paired with unique furniture choices, ensuring a flawless fit and style infusion in your new home.

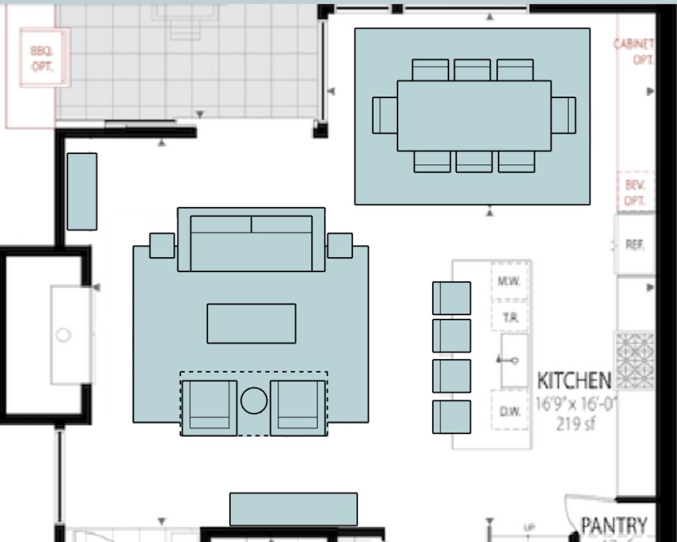
GREAT ROOM | LAYOUT VERSION 1 & 2

Furniture Selections Version 1 (V1)

Furniture Selections V1

1. Sectional - 117” x 117” (Dotted Line: 120” Sectional)

2. Console Table - 80” x 15”

3. Side Table - 20” x 20”

4. Coffee Table - 40 x 40”

5. Area Rug - 10’ x 14’

6. Accent Table - 10” dia.

7. Accent Chair

8. Dining Table - 70” dia.

9. Dining Chairs - 20” x 23”

10. Counter Stools - 20” x 23”

11. Sideboard/Bookshelf - 47” x 18”

Maximized seaing comfort

| MANZANITA
Manzanita
1. 2. 3. 4. 5. 6. 7. 8. 9 10. 11.

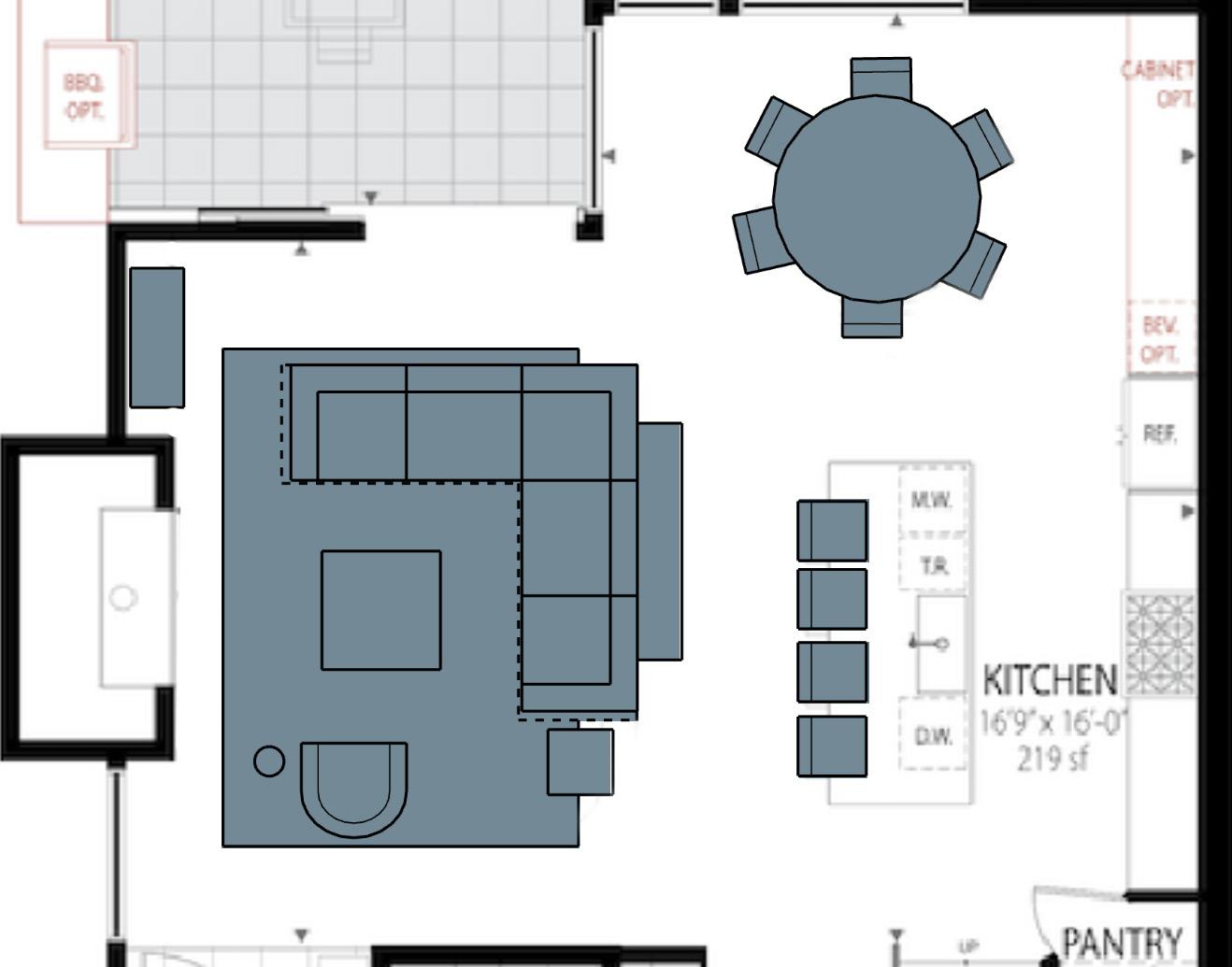
Furniture Selections Version 2 (V2)

Furniture Selections V2

1. Sofa - 90” x 39”

2. Console Table - 78” x 20”

3. Side Table - 15” x 15”

4. Coffee Table - 54” x 24”

5. Area Rug - 9’ x 12’

6. Accent Chair (Dotted Line: Sofa 90” x 39”)

7. Accent Table - 16” dia.

8. Dining Table - 94” x 43”

9. Dining Chairs - 20” x 23”

10. Counter Stools - 20” x 23”

11. Sideboard/Bookshelf - 47” x 18”

A formal seating layout for entertaining guests and encouraging converstaions

1. 2. 3. 4. 5. 6. 7. 8. 9. 10. 11.

DESIGNER MOODBOARDS Manzanita

Explore our Version 1 mood boards, designed to spark your creativity and help guide you in crafting a personalized home decor plan.

GREAT ROOM | LAYOUT VERSION 1 (V1)

This arrangement is perfectly suited for hosting gatherings. Featuring a spacious dining table and adaptable living room seating, the layout accommodates a generous number of guests within the house.

Furniture Selections V1

1. Sectional - 117” x 117” (Dotted Line: 120” Sectional)

2. Console Table - 80” x 15”

3. Side Table - 20” x 20”

4. Coffee Table - 40 x 40”

5. Area Rug - 10’ x 14’

6. Accent Table - 10” dia.

7. Accent Chair

8. Dining Table - 70” dia.

9. Dining Chairs - 20” x 23”

10. Counter Stools - 20” x 23”

11. Sideboard/Bookshelf - 47” x 18”

| MANZANITA
1. 2. 3. 4. 5. 6. 7. 8. 9 10. 11.

MOODBOARD A

1. M - Sectional - COL, 2. M - Accent Chair - OLS, 3. M - Accent Table - FAY, 4. M - Accent Table - COR, 5. M - Coffee Table - IND, 6. M - Area Rug - ALF, 7. M - Cabinet - TOL, 8.
1. 2. 5. 6. 7. 8. 9. 10. 11. 12. 3. 4.
M - ART - MAGNIFICENT STAG, 9. M - Dining Table - POW, 10. M - Dining Chairs - BEN, 11. M - Counter Stool - WAL, 12. Accent Pillows

GREAT ROOM | LAYOUT VERSION 1 (V1)

This arrangement is perfectly suited for hosting gatherings. Featuring a spacious dining table and adaptable living room seating, the layout accommodates a generous number of guests within the house.

Furniture Selections V1

1. Sectional - 117” x 117” (Dotted Line: 120” Sectional)

2. Console Table - 80” x 15”

3. Side Table - 20” x 20”

4. Coffee Table - 40 x 40”

5. Area Rug - 10’ x 14’

6. Accent Table - 10” dia.

7. Accent Chair

8. Dining Table - 70” dia.

9. Dining Chairs - 20” x 23”

10. Counter Stools - 20” x 23”

11. Sideboard/Bookshelf - 47” x 18”

| MANZANITA
1. 2. 3. 4. 5. 6. 7. 8. 9 10. 11.

MOODBOARD B

-
- FER,
-
1. 2. 5. 6. 7. 8. 9. 10. 11. 12. 13. 3. 4.
1. M - Sectional - GRA, 2. M - Accent Chair - TOB, 3. M - Accent Table - SCH, 4. M - Accent Table - COR, 5. M - Coffee Table - ABA, 6. M - Area Rug - AMA, 7. M - Console Table - MAT, 8. M - Ottomans - FEL, 9. M - Art - PACKED POWDER, 10. M - Dining
Table
BRA, 11. M - Dining Chairs
12. M - Counter Stool
BEN, 11. Accent Pillows

MIX & MATCH Manzanita

Customize Version 1 with exclusive alternative furniture options. Tailor your design to match your unique style and preferences, making your living space truly your own.

LEATHER SECTIONALS

M - Sectional - AUG

Color: Palermo Drift | $8,570

Dimensions: 105.5” x 105.5”

M - Sectional - NOL

Color: Natural Washed | $8,960

Dimensions: 120” x 80”

M - Sectional - TIL

Color: Sonoma Butterscotch | $10,265

Type: Power Recliner

Dimensions: 108” x 108”

M - Sectional - LEX

Color: Sonoma Butterscotch | $6,970

Dimensions: 107” x 107”

M - Sectional - COL

Color: Heirloom Cigar | $7,870

Dimensions: 120” x 39”

| MANZANITA Layout V1
Min. Length:105.5” - Max. Length: 120” Dover Crescent Deacon Wolf Orly Natural Sapphire Navy Perpetual Pewter Sonoma Black Capri Ebony Antiguo Natural Heirloom Black

*Performance Fabric | Min. Length: 111” - Max. Length: 117”

M - Sectional - GRA*

Color: Henry Charcoal | $5,880

Dimensions: 111” x 111”

M - Sectional - GRA*

Color: Henry Charcoal | $5,785

Dimensions: 112” x 112”

M - Sectional - WES

Color: Bennett Charcoal | $6,285

Dimensions: 117” x 117”

Dark Spalted Primavera Table Finishes Oatmeal Bennett Moon Bleached Yukas Resin Heron Sand Bayside Pebble

UPHOLSTERED SECTIONALS

M - Sectional - GRA

Color: Bennett Charcoal | $6,280

Dimensions: 119” x 119”

M - Sectional - HAB

Color: Fallon Charcoal | $6,580

Type: Slipcover

Dimensions: 111” x 111”

M - Sectional - SEN

Color: Alcala Graphite | $6,080

Dimensions: 114.75” x 114.75”

V1
Layout
Dark Spalted Primavera Oatmeal Bennett Moon Bleached Yukas Resin Heron Sand Bayside Pebble

*Performance Fabric | Min. Length: 111” - Max. Length: 119”

M - Sectional - ING*

Color: Antwerp Cafe | $6,470

Dimensions: 112.75” x 112.75”

M - Sectional - GRA*

Color: Oatmeal | $5,785

Dimensions: 112” x 112”

M - Sectional - GRA*

Color: Ashby Oatmeal | $5,880

Dimensions: 111” x 111”

Dark Spalted Primavera Table Finishes Henry Charcoal Bleached Yukas Resin Heron Sand

UPHOLSTERED SECTIONALS

M - Sectional - BOY*

Color: Noir Midnight | $2,690

Dimensions: 120” x 94”

M - Sectional - COL

Color: Aldred Silver | $5,085

Dimensions: 120” x 39”

M - Sectional - COL*

Color: Merino Cotton | $5,380

Dimensions: 120” x 39”

| MANZANITA Layout V1
Gaston Pewter Gaston Pewter Merino Cotton Aldred Silver

Min. Length: 114.75” - Max. Length: 120””

M - Sectional - GRA

Color: Oak Sand | $6,280

Dimensions: 119” x 119”

M - Sectional - SEN

Color: Alcala Wheat | $5,975

Dimensions: 114.75” x 114.75”

M - Sectional - BOO*

Color: Thames Coal |$4,480

Dimensions: 118” x 118”

Table Finishes Alcala Graphite Thames Cream Bennett Charcoal Bennett Moon

COFFEE TABLES

| MANZANITA Layout V1
Min. dia: 40” - Max. dia: 48” Color: N/A
|
$1,300 Color: Distressed Iron/Rustic Oak | $2,097 Color: White Marble | $2,490 Color: Guanacaste | $2,300 Color: Gold Guanacaste | $2,300 Color: Burnished Parawood Oak
| $1,245
Color: Blonde | $1,900 Color: Warm Brown Acacia | $2,690 Color: Natural Oak Solid
|
$2,690 M - Coffee Table - SAN M - Coffee Table - BIN
M
- Coffee Table - SKY M - Coffee Table - LUN M - Coffee Table - LUN
M
- Coffee Table - ZAC M - Coffee Table - EXE M - Coffee Table - RYA M - Coffee Table - RYA Min. Length: 40” - Max. Length: 50” dia. Color: Rustic Wormwood Oak | $2,195 Color: Ebony Wormwood Oak | $2,195 Color: Natural Yukas | $1,800 Color: Smoked Black Veneer | $1,900 Color: Spalted Primavera | $2,100 Color: Rustic Grey Veneer | $1,900 M - Coffee Table - ABA M - Coffee Table - ABA M - Coffee Table - IND M - Coffee Table - TOL M - Coffee Table - HUD M - Coffee Table - TOL

DINING TABLES

M - Dining Table - POW

|

71” Round

M - Dining Table - BRA

Color: Aged Ash | $2,028

60” Round

M - Dining Table - BIB

Color: Worn Black Marble | $2,300

60” Round

| MANZANITA Layout V1
Color: English Brown Oak $3,9801 Min. dia. 60” - Max. dia. 71”

M - Dining Table - MER

Color: Misted Ash | $1,590

60” Round

M - Dining Table - SPI

Color: Antique Brown | $2,395 60” Round

M - Dining Table - ELI

Color: Brown | $3,100 54” Round

Min. dia. 54” - Max. dia. 60”

DESIGNER MOODBOARDS Manzanita

Explore our Version 2 mood boards, designed to spark your creativity and help guide you in crafting a personalized home decor plan.

GREAT ROOM | LAYOUT VERSION 2 (V2)

Furniture Selections V2

1. Sofa - 90” x 39”

2. Console Table - 78” x 20”

3. Side Table - 15” x 15”

4. Coffee Table - 54” x 24”

5. Area Rug - 9’ x 12’

6. Accent Chair (Dotted Line: Sofa 90” x 39”)

7. Accent Table - 16” dia.

8. Dining Table - 94” x 43”

9. Dining Chairs - 20” x 23”

10. Counter Stools - 20” x 23”

11. Sideboard/Bookshelf - 47” x 18”

| MANZANITA
1. 2. 3. 4. 5. 6. 7. 8. 9. 10. 11.

MOODBOARD A

1. M - Sofa - BOO, 2. M - Accent Chair - BAU, 3. M - Accent Table - DOU, 4. M - Accent Table - BIN, 5. M - Coffee Table - ERI, 6. M - Area Rug - FRA, 7. M - ART - CORTINA D’AMPEZZO, 8. M -
1. 5. 6. 7. 8. 9. 10. 11. 2. 4. 3.
Dining Table - EAT, 9. M - Dining Chairs - COL, 10. M - Counter Stool - FER, 11. Accent Pillows

GREAT ROOM | LAYOUT VERSION 2 (V2)

Furniture Selections V2

1. Sofa - 90” x 39”

2. Console Table - 78” x 20”

3. Side Table - 15” x 15”

4. Coffee Table - 54” x 24”

5. Area Rug - 9’ x 12’

6. Accent Chair (Dotted Line: Sofa 90” x 39”)

7. Accent Table - 16” dia.

8. Dining Table - 94” x 43”

9. Dining Chairs - 20” x 23”

10. Counter Stools - 20” x 23”

11. Sideboard/Bookshelf - 47” x 18”

| MANZANITA
1. 2. 3. 4. 5. 6. 7. 8. 9. 10. 11.

MOODBOARD B

1. 5. 6. 7. 8. 9. 10. 11. 12. 2. 4. 3.
1. M - Sofa - OTI, 2. M - Accent Chair - CAI, 3. M - Accent Table - VIO, 4. M - Accent Table - BUC, 5. M - Coffee Table - MYL, 6. M - Area Rug - AMA, 7. M - Cabinet - TOL, 8. M - ART - MOUNTAIN SKI LIFT, 9. M - Dining Table - SPI, 10. M - Dining Chairs - FER, 11. M - Counter Stool - KLE, 12. Accent Pillows

MIX & MATCH Manzanita

Customize Version 2 with exclusive alternative furniture options. Tailor your design to match your unique style and preferences, making your living space truly your own.

SOFAS

| MANZANITA Layout V2
Color: Ashby Oatmeal | $2,485 | 94” x 40” Color: Thames Cream | $2,295 | 96.5” x 40” Color: Bayside Pebble | $2,395 | 90” x 39”
| $3,295 | 98” x 39” Color:
| $2,295 | 98” x 39”
Color: Merino Cotton
| $2,395 | 98”
x
39” Color: Merino Cotton
Aldred Silver
| $2,095 | 92”
39.5”
Color: Bennett Moon
x
Color: Destin Flannel | $2,595 | 98” x 42”
|
Color:Heather Twill Pewter $2,295
|
96.5” x 40” M - Sofa - GRA* M - Sofa - PLU*
M -
-
M - Sofa - COL* M - Sofa - COL M - Sofa - GRA M - Sofa - STE* M - Sofa - PLU
M - Sofa - WES*
Sofa
COL*
Color: Black | $2,795 | 96.5” x 37” Color: Bennett Charcoal | $2,095 | 92” x 39.5” Color: Bennett Charcoal | $2,295 90” x 39” Color: Henry Charcoal | $2,485 | 94” x 40” Color: N/A | $2,095 | 88”” x 44” Color: Arden Charcoal | $2,595 |
97”
x 37.5” M - Sofa - MAL M - Sofa - GRA M - Sofa - WES M - Sofa - GRA* M - Sofa - PRE M - Sofa - OTI* Min. Length: 88” - Max. Length: 98” | *Performance Fabric Thames Cream* Ashby Oatmeal

SOFAS

Color: Marseille Camel | $4,595

Dimensions: 89” x 41”

Color: Natural Smoke | $5,275

Dimensions: 96” x 40”

Color: Natural Washed Camel | $5,975

Dimensions: 94” x 32.25”

Natural Washed Sand | $5,675

Dimensions: 99.25”” x 43”

|
Layout V2
MANZANITA
Color: M - Sofa - BAY M - Sofa - BEC M - Sofa - FLE M - Sofa - NOL

Dimensions: 90.5” x 34.5”

Dimensions: 96.5” x 39.75”

Dimensions: 124” x 45.25”

Dimensions:

Color: Palermo Cognac | $4,980 Color: Sonoma Butterscotch | $5,475 Color: Eucapel Cognac | $6,675 Color: Nantucket Taupe | $4,290 97” x 39.5” M - Sofa - CAI M - Sofa - RAD M - Sofa - KAT M - Sofa - DOM Min. Length: 89” - Max. Length: 124”

COFFEE TABLES

| MANZANITA Layout V2
Color: Aged Brown | $1,195 M - Coffee Table - MYL Color: Amber Oak Resin | $900 Color: Dark Iron | $650 M - Coffee Table - EAT M - Coffee Table - SIM Color: Black | $1,195 Color: Dark Grey | $995 Color: Antique Rust | $1,245 M - Coffee Table - SOT M - Coffee Table - HUG M - Coffee Table - SIM Color: Natural Yukas | $1,990 Color: Seasoned Brown Acacia | $995 Color: Natural Yukas | $1,800 Color: Spalted Primavera | $1,990 Color: Spalted Primavera | $1,800 M - Coffee Table - HUD M - Coffee Table - PAD M - Coffee Table - IND M - Coffee Table - HUD M - Coffee Table - IND Min. Length: 46 - Max. Length: 53” (54.75” dia.) Color: Dark Smoked Oak | $855 M - Coffee Table - ERI

DINING TABLES

M - Dining Table - SPI

Color: Bright Brass Clad| $2,700

94” x 38”

M - Dining Table - LAR

Color: Brown | $2,700

94” x 39.5”

M - Dining Table - ORI

Color: Chamcha Wood | $5,400

96” x 41”

| MANZANITA Layout V2

Min. Length: 92.5” - Max. Length: 96”

M - Dining Table - PER

Color: Rustic Fawn | $2,395

93” x 42”

M - Dining Table - BEA

Color: Rustic Fawn Veneer | $1,990

94” x 42”

M - Dining Table - BRA

Color: Rustic Weathered Elm | $2,300

92.5” x 42”

DINING TABLES

- Dining Table - ISA

- Dining Table - MIL

| MANZANITA Layout V2
Color: Black | $1,450 78” x 37.75 Color: Drifted Matte Black | $5,400 96” x 42”
M
M

Extendable 84”/104”

Min. Length: 78” - Max. Length: 104”

M - Dining Table - HAR

Color: N/A

$1,400 | 104” x 38”

M - Dining Table - COV

Color: Matte Brown | $1,990 96” x 42”

MIX & MATCH Manzanita

Customize Version 1 and Version 2 with exclusive alternative furniture options. Tailor your design to match your unique style and preferences, making your living space truly your own.

ACCENT TABLES

| MANZANITA
Color: Dark Petrified Wood | $855 M - Accent Table - BUC Color: Raw Black | $285 Color: N/A
|
$725 Color: Black Marble | $400 Color: Antique White Marble | $400 Color: Antique Rust | $235 Color: Romano Fosse Travertine | $400
M
Accent Table
VIO
M
M - Accent Table - GIN
M - Accent Table - STR M - Accent Table - VIO
-
-
M - Accent Table - DOU
- Accent Table - FAY
Color: Creamy Taupe Marble | $560 M - Side Table - COR All Layouts Color: Bluestone/Powder Black | $355 Color: Warm Umber Burl | $1,150 Color: Antique Rust | $250 Color: N/A | $330 M - Accent Table - COR M - Accent Table - BLA M - Accent Table - SCH M - Accent Table - MIR Color: Distressed Iron | $1,450 Color: English Brown Oak | $650 Color: Rustic Oak Veneer | $1,450 Color: n/a | $650 M - Accent Table - BIN M - Accent Table - SHA M - Accent Table - BIN M - Accent Table - TOM

SIDEBOARD CONSOLES

-

|

| MANZANITA
Color: Drifted Matte Black | $3,590 | 82” x 20” Color: N/A $1,990 | 94.5” x 16” Color: Carved Vintage Brown | $1,695 | 69” x 16” Color: Matte Black | $3,295 | 78” x 17.75” M - Sideboard - TOL M - Sideboard - CAM M - Sideboard - MIL M Sideboard - KEL All Layouts Color: Worn Black Parawood | $1,900 | 70” x 18” Color: Natural Yukas | $3,390 | 71” x 18” Color: Dark Toasted Oak Veneer | $3,390 | 72” x 16” Color: Black Ash Veneer | $2,195 | 68.5” x 19” M - Sideboard - REZ M - Sideboard - CUZ M - Sideboard - CAS
Min. Length:
Max. Length: 94.5”
M - Sideboard - REN
69”-

SIDEBOARD CONSOLES

All Layouts

- Sideboard - ROC

M - Sideboard - SOT

|

- Sideboard - LOR

M - Sideboard - LOR

|

| MANZANITA
Color: Satin Black | $1,695 | 64” x 15” Color: Black | $2,490 74 “x 19” Color: Dusty Reeded Brown $1,495 | 59” x 18” Color: Dark Reeded Totem | $1,495 | 59” x 18” M M Color: Smoked Honey | $1,900 | 70” x 18” Color: Caramel Guanacaste | $3,985 | 77” x 18” Color: Natural Ash Veneer | $2,195 | 68.5” x 19” Color: Auburn Poplar | $1,600 | 72” x 18” M - Sideboard - REZ M - Sideboard - LUN M - Sideboard - CAS
Min. Length: 69”- Max. Length: 94.5”
M - Sideboard - TRE

CONSOLE TABLES

| MANZANITA
Color: Rustic Fawn Veneer | $1,400 | 63” x 17” Color: Aged Brown | $1,400 | 65” x 18” Color: Amber Oak| $995
| 56.5”
x 17” Color: Distressed
Iron | $2,395 | 78.75” x 15.75”
60”
Color:
Tawny
Oak | $1,200 |
x 16”
|
| 79”
Color: Rustic Grey
$2,300
x 20”
Color: Sierra Rustic Natural | $900 | 78.75” x 30.75” Color: Rustic Grey | $2,000 | 80” x 22” Color: Worn Oak Veneer | $1,400 | 78” x 18” M - Console Table - BEA
EAT
M
- Console Table - MYL M - Console Table -
-
- MEA
- HEN
MAT
- LEO
WAR
M - Console Table - BIN M
Console Table
M - Console Table
M - Console Table -
M - Console Table
M - Console Table -
All Layouts Min. Length: 56.5” -
Max.
Length: 86” Color: Auburn Mango | $1,400 | 65” x 18” Color: Rustic Wormwood Oak | $2,395 | 86” x 20.25” Color: Drifted Oak Veneer | $1,800 | 70.75” x 19.75” Color: Rustic Oak Veneer
|
$2,395 | 78.75” x 15.75” Color: Caramel Oak | $1,445 | 78” x 22” Color: Matte Brown Veneer
| $1,800 | 70.75” x 19.75”
Color: Rustic Oak Veneer | $2,395 | 78” x 22” Color: Natural Ash | $1,600 | 60” x 19” Color: Weathered Wheat
| $900 | 78.75”
x 30.75”
- ABA
-
Table - LAM M
- BIN M - Console Table - PAR M - Console Table - LAM M - Console Table - BRI M
- CAS M
Table - MAT
M
-
Console Table
- MYL M - Console Table
M
Console
- Console Table
- Console Table
- Console

CONSOLE TABLES

All Layouts

| MANZANITA
Color: Black Ash | $1,200 | 57” x 17” Color: Drifted Black Oak Veneer | $1,800 | 70.75” x 19.75” Color: Aged Black Pine | $900 |
78.75”
x 30.75” Color: Burnished Black | $995 | 59.75” x 13.75”
86”
Color: Ebony Rustic Wormwood Oak | $2,395 |
x 20.25”
Color: Worn Black Veneer | $1,400 | 78” x 18” M - Console Table - SOT M - Console Table - LAM M - Console Table - MAT M - Console Table - SUK M - Console Table - ABA M - Console Table - WAR Min. Length: 54”- Max. Length: 86” Color: Black Ash | $1,600 | 60” x 19” Color: Grey | $2,395 | 78” x 20” Color: n/a | $1,055 | 60” x 17” M - Console Table - CAS M - Console Table - FEL M - Console Table - BYR Color: Dark Iron | $950 | 54” x 16” Color: Bright Brass Clad | $1,500 | 65” x 18” Color: Weathered Oak | $1,400 | 60” x 20” M - Console Table - SIM M - Console Table - SPI M - Console Table - GLE

CABINETS & BOOKSHELVES

|

| MANZANITA
Charcoal Oak Veneer $2,990 | 44” x 22” Rustic Sandalwood $2,195 | 42” x 17” Matte Black w/Drifted Oak $3,980 38” x 19” Dark Carbon $2,195
| 42” x 17”
Carved Vintage Brown
47” x 19” Black
| 38” x 18” M - Cabinet - CON M - Cabinet - WYE M - Cabinet - TOL M - Cabinet - WYE M - Cabinet - KEL M - Cabinet - SOT
$2,890 |
$2,300
All Layouts Carved Vintage Brown $2,100 | 36” x 16” Dark Reeded totem $1,900 | 38” x 18” Black $1,900 | 39.5” x 15.75” Dusty Reeded Brown $1,900 | 38” x 18” Auburn Poplar $1,800 | 36” x 17” Dark Iron $1,350 | 39” x 16” M
-
Bookshelf - LOR
M -
- TRE
-
M -
- SIM
M -
Bookshelf
-
KEL
M - Bookshelf - LOR
Bookshelf
M
Bookshelf - LOO
Bookshelf

ACCENT CHAIRS | LEATHER

All Layouts

| MANZANITA
Color: Palomino
|
$1,895
|
Color: Palermo Drift $2,195
|
Color: Palermo Nude $1,990
|
Color: Palermo Cognac $1,895
|
M - Accent Chair - BRO M - Accent Chair - ROW M - Accent Chair - SUE M - Accent Chair - KEN M - Accent Chair - CAI
Color: Palermo Cognac $2,300 Color: Dakota Warm Taupe | $2,195 Color: Dakota Tobacco | $2,100 Color: Harness Chocolate | $1,800 Color: Heirloom Black, Heirloom Sienna | $1,695 Color: Umber Black | $1,695 M - Accent Chair - BAU M - Accent Chair - EMM M - Accent Chair - ROM M - Accent Chair - HAL M - Accent Chair - ACE

ACCENT CHAIRS | UPHOLSTERED

All Layouts

| MANZANITA
Color: Cream Sherling | $1,990 Color: Gable Taupe | $810 Color: Thames Cream | $1,400 Color: Gabardine Grey | $1,400 Color: Andes Natural | $1,100 Color: Knoll Domino | $1,150 Color: Taupe Mongolian Fur | $2,300 Color: Merino Porcelain | $995 M - Accent Chair - PAP
M - Accent
ANI M - Accent
VAN*
Accent
TOB
Accent
M - Accent
Chair
- MEM* M - Accent
Chair
- CAI* M - Accent Chair - KEN
Chair -
Chair -
M -
Chair -
M -
Chair - EMM*
Color: Thames Ash | $1,300 Color: Charcoal Worn Velvet | $855 Color: Harrison Black | $2,690 M - Accent Chair - EMM* M - Accent Chair - CLE* M - Accent Chair - CAI Color: Durham Cream | $1,500 Color: Durham Cream | $900 Color: Clay | $1,300 M - Accent Chair - CES M - Accent Chair - GAR M - Accent Chair - PER *Performance
Fabric

SWIVEL CHAIRS | LEATHER

All Layouts

| MANZANITA
Color: Palermo Drift | $2,195 Color: Heirloom Black | $1,150 Color: Heirloom Sienna | $1,600 Color: Marseille Camel | $2,000 Color: Osorno Camel | $1,895 Color: Sonoma Butterscotch $2,195 Dover Crescent Orly Natural
Surrey
Auburn Deacon Wolf
Sapphire
Navy Brazos Dove Henry Charcoal Comal Azure Knoll Natural Knoll Domino Heirloom Black Knoll Natural Palermo Cognac w/ Almond Copenhagen Amber Palermo Cognac w/ White Marble Effie Linen Marseille Concrete Astor Ink Sonoma Black Emerald Worn Velvet M - Swivel Chair - AUG M - Swivel Chair - POR M - Swivel Chair - BRO M - Swivel Chair - OLS M - Swivel Chair - MIL M - Swivel Chair - TOP

SWIVEL CHAIRS | UPHOLSTERED

Color: Sheepskin Camel | $1,300 Color: Abbington Black | $1,800 Color: Sheepskin Camel | $1,150 Color: Modern Velvet Smoke $900 Color: /a | $2,725 Color: Midnight Blue | $1,690 Brazos Dove Henry Charcoal Comal Azure Monterrey Pebble Belfast Heather Grey 41 Dusty Brown Sheepskin Natural Antwerp Taupe M - Swivel Chair - MIL M - Swivel Chair - KAD M - Swivel Chair - BER M - Swivel Chair - YOR M - Swivel Chair - KEN M - Swivel Chair - HAR

DINING CHAIRS | UPHOLSTERED

| MANZANITA
Color: Knoll Sand
|
$745 Color: Nubuck Charcoal
|
$450 Color: Savile Flannel
|
$555 Color: Alcala Nickel
|
$700
|
Color: Herringbone Haze $380
|
Color: Alcala Fawn $550
|
Color: Fiqa Boucle Cocoa $650
|
M - Dining Chair - LEV* M - Dining Chair - FER* M - Dining Chair - BEN* M - Dining Chair - ABI* M - Dining Chair - COL* M - Dining Chair - MOR* M - Dining Chair - CRE* M - Dining Chair - ABI* *Performance Fabric
Color: Alcala Nickel $550 All Layouts

DINING CHAIRS | LEATHER

Color: Sierra Butterscotch | $610 Color: Sierra Butterscotch | $610 Color: Valencia Camel | $995 Color: Sierra Butterscotch | $745 Color: Sierra Butterscotch | $610 Color: Antique Brown | $1,040 Color: Sonoma Butterscotch w/ Sollid Parawood | $750 Color: Tan | $1,040 Color: Distressed Brown | $500 M - Dining Chair - AST
M
- Dining Chair - OMA
M
- Dining Chair - ALM
M
- Dining Chair - KEN M - Dining Chair - CRE
M
- Dining Chair - MAY M - Dining Chair - KEN M - Dining Chair - MAY
M
- Dining Chair - WHA

DINING CHAIRS | WOOD

All Layouts

| MANZANITA
Color: Black | $400 Color: Sonoma Black | $530 Color: Black | $310
M
LEW
Color: Sandy Oak, Whickey Saddle | $450 M - Dining Chair - FRA M - Dining Chair - FRA
M - Dining Chair - MAD
- Dining Chair -

DINING BENCHES & OTTOMANS

Color: Black Wash Poplar | $900 Color: Amber Oak Resin | $610 Color: Frosted Hide | $610 Color: Washed Velvet Grey | $1,145 Color: Boucle Charcoal | $2,300
M
Min. Length: 70.75” - Max. Length: 86”
M - Dining Bench - ISA M - Dining Bench - EAT
- Ottoman -FEL M - Dining Bench - SAR M - Dining Bench - AUG

COUNTER STOOLS | UPHOLSTERED

| MANZANITA
Warm Cotton | $6,635
November Grey | $600 Color: Light Carbon | $410 Color: Modern Velvet Shadow | $650 | Type: Swivel Color: Natural Linen | $690 Color: Zenith Graphite Grey | $700 Color: Savile Flannel | $610 Color: Black | $525 Color: November Grey | $640 Color: Nubuck Charcoal | $650 M - Counter Stool - JAC* M - Counter Stool - WAL M - Counter Stool - KLE* M - Counter Stool - HOL M - Counter Stool - GLE M - Counter Stool - TAS M - Counter Stool - BEN* M - Counter Stool - SHE M - Counter Stool - MCC M - Counter Stool - FER *Performance Fabric All Layouts
Color:
Type: Swivel Color:

COUNTER STOOLS | LEATHER

Tan
|
Color: Sueded
Leather
$800
| $320
Color: Antique Brown
|
Black
| $800 Color: Tan | $745
Espresso Leather Blend | $650
|
Black Leather | $875
|
Black | $1,000
M - Counter Stool - OMA M - Counter Stool - CAL M - Counter Stool - MAY M - Counter Stool - LUL M - Counter Stool - BEN M - Counter Stool - OMA M - Counter Stool - STA M - Counter Stool - STA M - Counter Stool - SAI M - Counter Stool - ARI
Color: Sonoma Chestnut
$745 Color:
Leather
Color:
Color: Brown Leather
$875 Color:
Color: Brown
$695 Color: Castillo
Type: Swivel

COUNTER STOOLS | WOOD

| MANZANITA
Color: Black Oak | $610 Color: Black Oak & Whiskey Saddle | $560 Color: Warm Parawood & Distressed Black | $285 M - Counter Stool - LEW M - Counter Stool - RIP M - Counter Stool - UNI All Layouts

AREA RUGS | 8’ X 10’

Jute | $410
Beige-Silver | $2,302 Color: Beige/Ivory | $890
N/A | $810
Color:
Color:
Color:
Taupe | $ 3,095 Color: N/A | $1,000 Color: Cream | $3,685 Color: Brown/Cream | $1,310 M - Area Rugs - PRI M - Area Rugs - KIR M - Area Rugs - FEN M - Area Rugs - COL M - Area Rugs - NAD M - Area Rugs - BEN M - Area Rugs - COR M - Area Rugs - AMA Additional
Color:
rug sizes available

AREA RUGS | 8’ X 10’ All

Layouts

M - Area Rugs - HQ6 M - Area Rugs - DIA M - Area Rugs - NAD M - Area Rugs - VW1 Color: Ivory | $1,885 Color: Bone/Charcoal | $4,730 Color: Grey/Ivory | $890 Color: Grey | $3,095 Color: Stone Grey | $890 Color: Wool Grey | $1,020 Color: Grey | $2,425 Color: Slate | $2,220 Color: Grey/Charcoal | $2,425 M - Area Rugs - BER M - Area Rugs - EUC M - Area Rugs - RUS M - Area Rugs - ALF M - Area Rugs - ALF
| MANZANITA

Additional rug sizes available

Color: Gray/charcoal | $825 Color: N/A | $835 Color: Black/Ivory | $970 Color: Navy/Stone | $940 Color: Charcoal | $1,280 Color: Gray-Multi | $2,425
- Area
-
M - Area
- KO0 M - Area Rugs - AGS M - Area Rugs - HAS M - Area Rugs - ALF
M - Area Rugs - PRA M
Rugs
TUS
Rugs

AREA RUGS | 8’ X 10’

All Layouts

Color: Slate/white | $1,300 Color: Denim/Sky | $3,580 Color: Navy | $1,280 Color: Navy/Beige | $2,440 Color: Charcoal/cream | $1,300 Color: n/a | $2,930 Color: N/A | $2,730 Color: Indigo | $1,220 M - Area Rugs - LOG M - Area Rugs - GWY M - Area Rugs - FRA M - Area Rugs - ALT M - Area Rugs - AMA M - Area Rugs - HIG M - Area Rugs - NOB M - Area Rugs - RUS
| MANZANITA

Additional rug sizes available

Color: N/A | $715 Color: N/A | $1,590 M - Area Rugs - LEX M - Area Rugs - FUL

02 BEDROOMS Manzanita

Select from three furniture layouts, each perfectly dimensioned and paired with unique furniture choices, ensuring a flawless fit and style infusion in your new home.

PRIMARY BEDROOM | LAYOUT VERSIONS 1, 2 & 3

| MANZANITA
Furniture Selections Version 1 (V1) Furniture Selections Version 2 (V2) 1. 1. 2. 2. 4. 4. 3. 3. 3. 3. 5. 5. 6.
Manzanita
King Bed - 82”w
85”d
Nightstands - 24” x 17” 4. Area Rug - 8’ x 10’ 5. Desk - 60” x 22” 6. Desk Chair 1. King Bed - 82”w x 85”d 2. Bench 3. Nightstands - 24” x 17” 4. Dresser - 62.5”
19.5” 5. Area Rug - 8’ x 10’ 1. King Bed - 82”w x 85”d 2. Bench 3. Nightstands - 32” x 17” 4. Area Rug - 9’ x 12’ Furniture Selections V1 Furniture Selections V2 Furniture Selections V3 Furniture Selections Version 3 (V3) 1. 2. 4. 3. 3.
1.
x
2. Bench 3.
x

BEDROOM 01 | LAYOUT VERSIONS 1, 2 & 3

1. King Bed - 82”w x 85”d

Bench

Nightstands - 34”x17”

4. 8’x10’ Area Rug

5. Dresser - 62.5”x19.5”

Faux Tree - 20”

King Bed - 82”w x 85”d

Nightstands - 34”x17”

8’x10’ Area Rug

Dresser - 62.5”x19.5”

Faux Tree - 20”

Accent Chair

1. King Bed - 82”w x 85”d

Nightstands - 34”x17”

8’x10’ Area Rug

Dresser - 62.5”x19.5”

| MANZANITA Furniture
Version 1 (V1) Furniture
Version 2 (V2) 1. 1. 2. 3. 3. 2. 4. 4. 3. 2. 5. 5. 6. 6. 7.
Selections
Selections
Manzanita
2.
3.
2.
3.
4.
5.
6.
7.
6.
1.
16” Accent Table
3.
4.
5.
Furniture
1. 3. 2. 4. 2. 5.
2.
Chaise Lounger - 70”x35” Furniture Selections V1
Selections V2 Furniture Selections V3 Furniture Selections Version 3 (V3)

BEDROOM 02 | LAYOUT VERSIONS 1,

2 & 3

| MANZANITA Furniture Selections Version 1 (V1) Furniture Selections Version 2 (V2) 1. 1. 3. 3. 3. 4. 2. 2. 2.
2.
3.
4.
1.
2.
3.
1.
2.
3.
Furniture Selections V1 Furniture Selections V2 Furniture Selections V3 Furniture Selections Version 3 (V3) 1. 1. 3. 2.
Manzanita 1. King Bed - 82”w x 85”d
Bench Nightstands - 24”x18”
8’x10’ Area Rug
Queen Bunk Bed
Nightstands - 24”x18”
8’x10’ Area Rug
Twin Bunk Beds
Nightstand - 24”x18”
8’x10’ Area Rug

DESIGNER MOODBOARDS Manzanita

Explore our Bedroom mood boards, designed to spark your creativity and help guide you in crafting a personalized home decor plan.

PRIMARY BEDROOM | LAYOUT VERSION 1 (V1)

Furniture Selections V1

1. King Bed - 82”w x 85”d

2. Bench

3. Nightstands - 24” x 17”

4. Area Rug - 8’ x 10’

5. Desk - 60” x 22”

6. Desk Chair

| MANZANITA 1. 2. 4. 3. 3. 5. 6.
1. 2. 7. 8. 6. 3. 4. 5.
1. M - Bed - LUZ, 2. M - Nightstand - EAT, 3. M - Lamp - MUJ, 4. M - ART - MAGICAL NATURE, 5. M - Area Rug - EUC, 6. Accent Pillows, 7. M - Desk - EAT, 8. M - Desk Chairs - INM
MOODBOARD A

PRIMARY BEDROOM | LAYOUT VERSION 3 (V3)

Primary Bedroom

1. King Bed - 82”w x 85”d

2. Bench

3. Nightstands - 32” x 17”

4. Area Rug - 9’ x 12’

| MANZANITA
1. 2. 4. 3. 3.

MOODBOARD A

-
M - Area Rug
1. 2. 7. 6. 3. 5. 4.
1. M - Bed - MON, 2. M - Nightstand - CUZ, 3. M - Lamp - DOV, 4. M - Bench - OMA, 5. M
ART - MYSTIC MOUNTAIN, 6.
- COL, 7. Accent Pillows

BEDROOM 01 | LAYOUT VERSION

1 (V1)

Bedroom 01

1. King Bed - 82”w x 85”d

2. Bench

3. Nightstands - 34”x17”

4. 8’x10’ Area Rug

5. Dresser - 62.5”x19.5”

6. Faux Tree - 20”

| MANZANITA
1. 2. 3. 4. 3. 5. 6.

MOODBOARD A

M
LEI, 2. M
- TRE, 3. M - Lamp - MAR, 4. M - Bench - BEA, 5. M - ART -
HIGH II & III, 6. M - Area Rug - AGS, 7. Accent Pillows 1. 2. 7. 6. 3. 5. 5. 4.
1.
- Bed -
- Nightstand
MOUNTAIN

BEDROOM 01 | LAYOUT VERSION

1 (V1)

Bedroom 01

1. King Bed - 82”w x 85”d

2. Bench

3. Nightstands - 34”x17”

4. 8’x10’ Area Rug

5. Dresser - 62.5”x19.5”

6. Faux Tree - 20”

| MANZANITA
1. 2. 3. 4. 3. 5. 6.

MOODBOARD B

1. M - Bed - HEN, 2. M - Nightstand - TRE, 3. M - Lamp - MAR, 4. M - Dresser - TRE, 5. M - ART - SUMMIT I, 6. M - Area Rug - ALF, 7. Accent Pillows 1. 2. 7. 6. 3. 5. 4.

BEDROOM 02 | LAYOUT VERSION 3 (V3)

1. Queen Bunk Bed

2. Nightstands - 24” x 18”

3. Area Rug - 8’ x 10’ Furniture Selections V2

| MANZANITA 1. 3. 2. 2.

MOODBOARD A

2. 6. 3. 5. 4.
1.
1. M - Bunk Bed - LAG, 2. M - Nightstand - SOT, 3. M - Lamp - ZIG, 4. M - ART - MR. BEAR, 5. M - Area Rug - AGS, 6. Accent Pillows

MIX & MATCH Manzanita

Customize Version 1, 2, and 3 with exclusive alternative furniture options. Tailor your design to match your unique style and preferences, making your living space truly your own.

BEDS

MANZANITA
|
Color: Auburn Poplar | King: $1,800 Queen: $1,600 Color: Amber Oak Resin | King: $1,990 Queen: $1,800 M - Bed - TRE M - Bed - EAT Dove Poplar Black Wash Poplar All Layouts

All beds are available in Eastern King or Queen. Cal King not available.

Color: Dark Carbon | King: $1,695 (Queen not available.) Color: N/A | King: $2,595 Queen: $2,300 M - Bed - WYE M - Bed - HOL

BEDS

| MANZANITA
Color: Vintage Tobacco | King: $1,600 Queen: $1,400 Color: Vintage Tobacco - Pintuck | King: $1,600 Queen: $1,400 M - Bed - AID M - Bed - NEW Plushtone Linen Pebble Pewter Plushtone Linen Sheepskin Camel Harbor Grey All Layouts

All beds are available in Eastern King or Queen. Cal King not available.

Color: N/A | King: $1,600 Queen: $1,400 Color: N/A | King: $2,795 Queen: $2,500 M - Bed - SAL M - Bed - HAL

BEDS

All Layouts

| MANZANITA
Color: Light Grey | King: $2,770 Queen: $2,430 Color: Light Grey | King: $2,940 Queen: $2,570 M - Bed - LUZ M - Bed - LUZ (Tall Headboard) Slate Slate Deep Forest Deep Forest

beds are available in Eastern King or Queen. Cal King not available.

Color: Dover Crescent | King: $2,300 Queen: $1,990 Color: San Remo Ash | King: $1,695 Queen: $1,495 M - Bed - POT M - Bed - DAP Surrey Olive Sage Worn Velvet
All

BEDS

| MANZANITA
Color: Knoll Charcoal | King: $2,890 Queen: $2,595 Color: San Remo Ash | King: $2,795 Queen: $2,490 M - Bed - AND M - Bed - LEI Knoll Natural Palm Ecru All Layouts

are available

available.

Color: N/A | King: $2,890 Queen: $2,595 Color: Quarry | King: $3,300 Queen: $3,100 M - Bed - GRE M - Bed - EMM Marble Merino Pearl All beds in Eastern King or Queen. Cal King not

BEDS

| MANZANITA
Color: Abbington Charred Brown | Queen: $4,800 Color: Lisbon Charcoal | King: $1,695 Queen: $1,600 (Available in Eastern King or Queen. Cal King not available.) M - Bed - BEC* M - Bed - QUI* Chacha Cream Lisbon Cream All Layouts

All beds are available in Eastern King or Queen. Cal King not available.

Color: N/A | King: $1,990 Queen: $1,800 Color: Cambric Ivory| King: $1,695 Queen: $1,800 M - Bed - MON M - Bed - MAD

BEDS

| MANZANITA
Color: Perrin Oatmeal | King: $2,100 Queen: $1,895 Color: N/A | King: $3,885 Queen: $3.590 M - Bed - DOB M - Bed - HEN All Layouts

All beds are available in Eastern King or Queen. Cal King not available.

Color: Light Grey | King: $1,960 Queen: $1,650 M - Bed - TAK

BUNK BEDS

Bedroom 02 | Layout 2

| MANZANITA
Style: Twin Over Queen | Color: Grey Driftwood | $4,785 Style: Twin Over Queen | Color: Aged Driftwood | $4,785 M - Bed - LAG M - Bed - LAG Style: Twin Over Twin | Color: Grey Driftwood | $4,190 Style: Twin Over Twin | Color: Aged Driftwood | $4,190 M - Bed - LAG M - Bed - LAG
Bedroom 02 | Layout 3

NIGHTSTANDS & DRESSERS

All Layouts

| MANZANITA
Color: Taupe | $2,000 Color: Rustic Sandalwood | $950 Color: Amber Oak | $900 M - Nightstand - CAR M - Nightstand - WYE M - Nightstand - ROA Color: Taupe | $2,800 Color: Amber Oak | $2,100 Color: Rustic Sandalwood | $1,647 M - Sideboard - CAR M - Dresser - ROA
M
- Dresser - WYE Color: Black Wash Poplar | $1,055 Color: Natural Yukas | $1,245 Color: Burnished Black | $900 M - Nightstand - ISA M - Nightstand - CUZ M - Nightstand - SUK Color: Black Wash Poplar | $1,800 Color: Burnished Black | $1,600 Color: Natural Yukas | $9,000 M - Dresser - ISA M - Dresser - SUK
M
- Dresser - CUZ

NIGHTSTANDS & DRESSERS

| MANZANITA
|
|
Size: Large
Color: Auburn Poplar
$1,055
Size:
Large | Color: Black Wash Poplar | $1,055
|
Color:
|
Color: Black Wash Poplar | $610 M - Nightstand - TRE M - Nightstand - TRE M - Nightstand - PER M - Nightstand - TRE M - Nightstand - TRE Color: Black Wash Poplar | $1,990 Color: Auburn Poplar | $1,990 Color: Rustic Fawn | $2,450 M - Dresser - TRE M - Dresser - TRE M - Dresser - PER
Color: Rustic Fawn $745
Auburn Poplar
$610
All Layouts
Size: Large | Color: Amber Oak Resin | $650 Color: Grey Lacquer | $610 Color: Amber Oak Resin | $855 M - Nightstand - EAT M - Nightstand - HOL M - Nightstand - EAT Color: Amber Oak Resin | $1,990 Color: Natural Oak Solid | $3,980 M - Dresser - EAT M - Dresser - MAR

NIGHTSTANDS & DRESSERS

All Layouts

| MANZANITA
Color: Natural Ash Veneer $650 Color: Dark Carbon | $650 Color: Black Ash Veneer $650 M - Nightstand - CAS
M
- Nightstand - WYE
M
- Nightstand - CAS
|
|
Color: Dark Carbon | $1,700 M - Dresser - CAS M - Dresser - CAS M - Dresser - WYE
Color: Natural Ash Veneer
$2,100 Color: Black Ash Veneer
$2,100

BENCHES

Color: Sueded Light Tan Leather | $1,120 Color: Savile Flax/Warm Nettlewood | $900 Color: Ivory Cloud | $530 Color: Palermo drift | $1,600 Color: Modern Velvet Loden | $1,150 Color: Warm Taupe Dakota
|
$1,195 Color: Irving Flax
|
$900
M - Bench - EDM M - Bench - AVE M - Bench - CHA M - Bench - CHA M - Bench - BEA M - Bench - BEA
M - Bench - OMA

LAMPS

|
MANZANITA
|
Color: Ombre Antique Pewter $500
|
|
|
Color:
|
Color: N/A | $300 Color: Ivory LInen | $350 Color: N/A | $450 Color: N/A | $350 M - Lamp - CAM M - Lamp - HIG M - Lamp - KEL M - Lamp - ACC M - Lamp - NOI M - Lamp - MUJ M - Lamp - SAN M - Lamp - MIK M - Lamp - GIN
Color: Black Travertine $440 Color: Black $140
Color: Textured Black Aluminum
$440
N/A
$600 All Layouts
N/A | $500 Color: N/A | $330
|
Color: N/A | $400
|
Color: N/A | $200 Color: N/A | $380 Color: N/A | $360 Color: N/A | $400 Color: N/A | $380 M - Lamp - MAG M - Lamp - ABE M - Lamp - DEM M - Lamp - BIN M - Lamp - NOV M - Lamp - DOV M - Lamp - MAR M - Lamp - PLA M - Lamp - YOR M - Lamp - DUR
Color:
Color: Sun-aged driftwood
$330
Color: Brushed Brass
$290

DESKS

Primary Bedroom | Layout 1

| MANZANITA
Color: Rustic Grey Veneer | $2,795 Color: Auburn Poplar
|
$1,100 Color: Amber Oak Resin | $1,150 Color: Carved Vintage Brown
|
$1,200 Color: Black Wash Poplar | $1,800
|
|
M - Desk - HEN M - Desk - TRE M - Desk - EAT M - Desk - KEL M - Desk - ISA M - Desk - TRE M - Desk - TRE (Modular)
Color: Black Wash Poplar
$1,100 Color: Black Wash Poplar
$2,100

DESK CHAIRS

Natural |
Smoke | $1,245
Natural Wash Mushroom | $1,300
Color:
Knoll
$1,100 Color:
Color:
|
Color: Dover Crescent
$900
|
Color: Sonoma Chestnut
$810
|
Natural | $810 Color: Essence Natural |
Color: Brushed Ebony
$1,000 Color: Harbor
$1,055
|
Color: Orly Natural | $900 M - Desk Chair - ADA M - Desk Chair - BRY M - Desk Chair - MAL M - Desk Chair - WIN M - Desk Chair - LYK M - Desk Chair - LAC M - Desk Chair - REU M - Desk Chair - VER M - Desk Chair - INM M - Desk Chair - INM
Color: Sierra Butterscotch
$900

03 MEDIA/BONUS Manzanita

Select from two furniture layouts, each perfectly dimensioned and paired with unique furniture choices, ensuring a flawless fit and style infusion in your new home.

MEDIA/BONUS ROOM | LAYOUT VERSIONS 1 & 2

1. Sofa Bed - 88”x39”

2. 18” Side Table

3. 28” Coffee Table

4. 6’x9’ Area Rug

5. Desk - 60”x22”

6. Desk Chair

7. Console Table - 62.5”x19.5” Furniture Selections V1

| MANZANITA
Manzanita
1 (V1) 1. 2. 2. 3. 4. 5. 6. 7.
Furniture Selections Version

Furniture Selections Version 2 (V2)

Furniture Selections V2

1. Media Sofa - 84”x65”

2. 20” Side Tables

3. Media Console - 69”x18”

4. Twin Bunk Beds -79”x43”
1. 2. 2. 4. 3.

DESIGNER MOODBOARDS Manzanita

Explore our Version 1 and Version 2 mood boards, designed to spark your creativity and help guide you in crafting a personalized home decor plan.

MEDIA ROOM | LAYOUT VERSION 1 (V1)

Furniture Selections V1

1. Sofa Bed - 88”x39”

2. 18” Side Table

3. 28” Coffee Table

4. 6’x9’ Area Rug

5. Desk - 60”x22”

6. Desk Chair

7. Console Table - 62.5”x19.5”

| MANZANITA
1. 2. 2. 3. 4. 5. 6. 7.

MOODBOARD A

1. 2. 7. 8. 9. 6. 3. 4. 5.
1. M - Sleeper Sofa - COL, 2. M - Accent Table - FAY, 3. M - Accent Table - BIN, 4. M - Media Console - SOT, 5. M - ART - SLALOM, 6. M - Area Rug - NOB, 7. Accent Pillows, 8. M - Desk - TRE, 9. M - Desk Chair - IMN, 10. M - Lamps - DOV

MEDIA ROOM | LAYOUT VERSION 2 (V2)

Furniture Selections V2

1. Media Sofa - 84”x65”

2. 20” Side Tables

3. Media Console - 69”x18”

4. Twin Bunk Beds -79”x43”

| MANZANITA
1. 2. 2. 4. 3.

MOODBOARD A

1. M - Bunk Bed - LAG, 2. M - Sideboard - ROC, 3. M - Media Sofa - ARC, 4. M - Art - SKI PARTY, 5. M - Area Rug - LEX, 6. Accent Pillows, 7. M - Accent Table - DOU
1. 2. 6. 7. 3. 5. 4.

MIX & MATCH Manzanita

Customize Version 1 and Version 2 with exclusive alternative furniture options. Tailor your design to match your unique style and preferences, making your living space truly your own.

SLEEPER SOFAS

| MANZANITA
Color: Chess Pewter | $1,390 M - Sleeper Sofa - BLO Color: Merino Cotton | $3,295 M - Sleeper Sofa - COL*
Layout 1
Color: Aldred Silver | $3,390 M - Sleeper Sofa - COL* Color: Essence Natural | $1,390
Fabric
M - Sleeper Sofa - BLO
*Performance

DESKS

| MANZANITA
Color: Rustic Grey Veneer
|
$2,795 Color: Auburn Poplar
|
$1,100 Color: Amber Oak Resin
|
$1,150 Color: Carved Vintage Brown
|
$1,200 Color: Black Wash Poplar
|
$1,800
|
|
M - Desk - HEN M - Desk - TRE M - Desk - EAT M - Desk - KEL M - Desk - ISA M - Desk - TRE M - Desk - TRE (Modular) Layout 1
Color: Black Wash Poplar
$1,100 Color: Black Wash Poplar
$2,100

DESK CHAIRS

Natural |
Smoke | $1,245
Natural Wash Mushroom | $1,300
Color:
Knoll
$1,100 Color:
Color:
|
Color: Dover Crescent
$900
|
Color: Sonoma Chestnut
$810
|
Natural | $810 Color: Essence Natural |
Color: Brushed Ebony
$1,000 Color: Harbor
$1,055
|
Color: Orly Natural | $900 M - Desk Chair - ADA M - Desk Chair - BRY M - Desk Chair - MAL M - Desk Chair - WIN M - Desk Chair - LYK M - Desk Chair - LAC M - Desk Chair - REU M - Desk Chair - VER M - Desk Chair - INM M - Desk Chair - INM
Color: Sierra Butterscotch
$900

MEDIA SOFAS

| MANZANITA Layouts 2
Color: Thames Grey | $2,800 M - Media Sofa - ARC* Color: Thames Cream | $2,800 M - Media Sofa - ARC*

BUNK BEDS

Style: Twin Over Twin | Color: Grey Driftwood | $4,190 Style: Twin Over Twin | Color: Aged Driftwood | $4,190 M - Bed - LAG M - Bed - LAG

MEDIA CONSOLES

| $2,490 | 74 “x 19”

|

|

|

| MANZANITA
Color: Satin Black | $1,695 | 64” x 15” Color: Dusty Reeded Brown $1,500 | 59” x 18” Color: Dark Reeded Totem $1,500 59” x 18” M - Media Console - ROC M - Media Console - LOR
Min. Length:
Max. Length:
M - Media Console - LOR
60”-
75”
All Layouts Color: Black M - Media Console - SOT Color: Carved Vintage Brown | $1,350 | 56” x 17” Color: Auburn Poplar | $1,500 | 69” x 18” Color: Smoked Pine | $1,745 | 65” x 17.5” Color: Aged Brown | $1,055 | 60” x 17” M - Media Console - KEL M - Media Console - TRE M - Media Console - BAN M - Media Console - BYR Min. Length: 56” - Max. Length: 69”

ACCENT TABLES

All Layouts

| MANZANITA
Color: Rubbed Black | $750 Color: Black Scalloped Marble | $810 Color: Creamy Taupe Marble | $560 Color: Antique Brass | $450 Color: Ombre Pewter | $450 M - Side Table - ORA M - Side Table - CAM M - Side Table - CAM M - Side Table - COR M - Side Table - JUD Color: Dark Petrified Wood | $855 M - Accent Table - BUC Color: Antique Rust | $235 Color: Romano Fosse Travertine | $400 M - Accent Table - DOU M - Accent Table - FAY Color: Antique Rust | $400 M - Side Table - TUL Color: Weathered Dark Elm, White Marble | $1,350 Color: Reclaimed Ashen | $450 Color: Ochre | $950 Color: Seasoned Brown Acacia | $485 M - Side Table - SKY M - Side Table - NOR M - Side Table - RUT M - Side Table - PAD Color: Distressed Iron | $1,450 Color: Rustic Oak Veneer | $1,450 Color: n/a | $650 M - Accent Table - BIN M - Accent Table - BIN M - Accent Table - TOM

ART & ACCESSORIES

ART

All Layouts

| MANZANITA 48” x 48” | $2,990 48” x 48” | $1,600 CORTINA D’AMPEZZO SKI PARTY 60”x40” | $1,600 43” x 50” | $1,340 MAGICAL NATURE PACKED POWDER

All Layouts

72” x 30” | $1,400 22” x 50” | $1,440 14.75” x 18.75” | $300 14.75” x 18.75” | $300 57.5” x 37.5” | $590
MAGNIFICENT STAG NOSTALGIA COLLECTION –ALPINE C. 1964
COLLECTION –SLALOMING C. 1964 SUMMIT I
| MANZANITA ART
MYSTIC
MOUNTAIN LANDSCAPE
NOSTALGIA
|
60”x40” | $945 24”x32” |
|
53.5”
41.5” |
24”x32”
61.5” x 41.5”
$1,450
$700 41” x 61”
$935
x
$1,080
| $700
MOUNTAIN SKILIFT MR. BEAR MOUNTAIN HIGH II SKI VACATION I, C. 1960 SLALOM
HIGH III
MOUNTAIN

OTTOMANS

All Layouts

| MANZANITA Color: Gibson Silver Marble | $410 Color: Frosted Hide | $610 Color: Frosted Hide | $400 Color: Gray | $315 Color: Dover Crescent | $400
M
M
M
Color: Chalk & Ash | $380 M - Ottoman - EDW
- Ottoman - AUG
- OttomanM - Ottoman - LAU
- Ottoman - FEL M - Ottoman - AVI
Color: Fresno Cobalt | $560 Color: Latte | $315 Color: Antique Rust | $400 M - Ottoman - AVI M - Ottoman - AUG M - Ottoman - SIN Color: Sapphire Navy | $450 Color: Butterscotch | $810 M - Ottoman - AUG M - Ottoman - SIN

DECORATIVE PILLOWS

|
MANZANITA
Color: Ivory Cloud | 24” x 24” | $100 Color: n/a | 22” x 22” | $80 Color: n/a | 20” x 20” | $90 Color: n/a | 27” x 27” | $235 Color: Taupe | 22” x 22” | $300 Color: n/a
| 24” x 24” | $95
M - Pillows - AVE M - Pillows - CHA M - Pillows - CAM M - Pillows - HAN M - Pillows - MAR M - Pillows - VIC All Layouts Color: n/a | 24” x 25” | $150 Color: n/a | 22” x 22” | $140 Color: n/a | 22 ”x 22” | $210 Color: n/a | 22” x 22” | $90 Color: n/a | 24” x 24” | $80 Color: Indigo | 22 x 22” | $195 M - Pillows - PER M - Pillows - NEW M - Pillows - CAR M - Pillows - BLY M - Pillows - CHE M - Pillows - LAD

DECORATIVE PILLOWS

| MANZANITA
Color: n/a
| 22”
x 22”
|
$210 Color: n/a | 22” x 22” | $230 Color: Blue | 22” x 22” | $90
|
Color: Natural / Rust 22” x 22”
|
$100
|
20” |
Color: Clay / Natural | 20” x 20” | $80
Color: Refined Grey
20” x
$140
M - Pillows - CRU M - Pillows - CAS M - Pillows - PJB M - Pillows - MAR M - Pillows - BRY M - Pillows - DOL All Layouts Color: Indigo | 22” x 22” | $300 Color: n/a | 24” x 24” | $175 Color: n/a | 22” x 22” | $125 Color: Gold | 22” x 22” | $70 Color: Natural | 22” x 22” | $100 Color: Ivory | 22 x 22” | $120 M - Pillows - MAR M - Pillows - CAR M - Pillows - PLA M - Pillows - PMH M - Pillows - PJB M - Pillows - PII

DECORATIVE PILLOWS

| MANZANITA

Color:
n/a | 20” x 20” | $210
| 22”
22”
Color: Olive | 22” x 22” | $70 Color:
n/a
x 22” | $90 Color: n/a |
x 22” | $230
| 20”
|
| 20”
20”
Color:
Refined Tobacco
x 20”
$140 Color: n/a
x
| $80
M
- Pillows - PEN
M -
M
M - Pillows - PMH
Pillows - WEL M - Pillows - POO
- Pillows - BRY M - Pillows - LAL
All Layouts Color: n/a | 12” x 19” | $70 Color: Ivory | 12” x 9” | $90 Color: n/a | 14” x 26” | $150 Coolor: Ivory / Graphite | 22” x 22” | $90 Color: Taupe | 12”x 19” | $70
12”x 19”
Color: Ivory / Black | | $70 M - Pillows - LEV M - Pillows - AVE M - Pillows - SLD M - Pillows - LAR M - Pillows - ISA M - Pillows - BER

BEDDING PILLOWS

| MANZANITA
22 x 22” | $195 21” x 37” | $330 13” x 36” | $180 27” x 27” | $210 21” x 37” | $210 15” x 26” | $235
M - Pillows - LAU M - Pillows - TRI M - Pillows - HAN
M
MON
M - Pillows - MON
- Pillows - MON M - Pillows -
All Layouts
21”
13”
27” x 27”
|
$235 x 37”
|
$360 x 36”
|
$235 24” x 24” | $260 20” x 20”
|
$210
15”
x 26”
|
$315 M - Pillows - HAN M - Pillows - CAR M - Pillows - KIM M - Pillows - TAO M - Pillows - TAO M - Pillows - TAO

BEDDING PILLOWS

All Layouts

| MANZANITA
16” x 22” | $150 13” x 22” | $250 M - Pillows - MUR M - Pillows - HAP Color: n/a | 22” x 22” | $110 Color: Ivory | 22” x 22” | $70 M - Pillows - DAl M - Pillows - PMH

Megan Bristol megan@tahoe-modern.com

Kelly Huff Creedon kelly@villageatgrays.com

CONTACT

Turn static files into dynamic content formats.

Create a flipbook
Issuu converts static files into: digital portfolios, online yearbooks, online catalogs, digital photo albums and more. Sign up and create your flipbook.