Zikuan Dong UCB Architecture Portfolio 2025

Page 1


PORTFOLIO

Architecture & Urbanism

About this portfolio and the design approach

We are living in a world where urbanization, population, and economic growth are all at a critical turning moment. Then, how should architecture and the built environment reflect and integrated to this changee is the challange for designers. The Berlin Archipelago used to be a unique situation, but now it becomes the reality to most of the cities globally. We have the entire urban system built for expansion and growth, now how should we condense our environment based on the existing framework? How could we further create and redefine the space to make a non-contextural place meaningful?

The selected works in this portfolio are developed from observations and critiques of urban issues, practiced to enrich the built environment with a consistent design logic that transited from the urban scale to the interior scale. Most of the projects are large-scale architectural works, including a mixed-use housing project, a parking garage renovation, and a dual archives complex. Two smaller-scale projects are also included: a compact maternity center and a shotgun house. The designs focus on their spatial and social influence within the surrounding environment, as well as the interplay between contextual strategies and programming

City of Anti-Placeless

Thesis drawing for the CED Arch 229 Urban Drawing Course Instructor: Raveevarn Choksombatchai

The word “city” has varied meanings depending on context. While central city names often describe large urbanized areas, continuous sprawl shifts urban activities along traffic corridors, leaving the central city isolated within the metropolitan fabric. This shift has stretched and dissolved the scales of the urban core and historical city, erasing old forms and creating a homogenous, placeless geography. The qualities that make cities vibrant—diversity, creativity, social exposure, and culture—are disappearing. To counter this, we might embrace the new scale of urbanized space and reimagine cities by building on what already exists.

Once, the Industrial City
The Homogeneous Sprawl Place-Making in the Urbanized Environment

Co-founder of ArchArk (HK)

Intern Architect at Urbanus

Intern Architect at Mume Architecture

Art Director Assistant at 1905 Art and Creative Center

Education the UC Berkeley, CED Master of Architecture the University of Pittsburgh Urban Studies and Architectural Studies FAU USP (Exchange) Urbanism and Architecture

ARCHITECTURE

Contact 1717 Webster St, Oakland, CA. 94612

kevinzid7@gmail.com

zid7@berkeley.edu +1 (517) 940 2857

as Urban

Park Boulvard LA Linear Densification

Individual project

project and urban intervention. Individual project

The Cone Project

architecture. Individual revised project

Vertical Urban Plaza the Z House Senegal Maternity Center

Reuse Practise. Individual project

Zikuan Dong
Looro

LA Linear Densification

Architecture as Urban Condenser integrating the generic sub-urban fabric

Studio: Arch 202 Low Contrast City Studio

Location: San Fernando Valley, Los Angeles, California

Instructors: Michael Maltzan, MMA Ian Miley, Type Five

Time: Spring 2025

This design is a provocation and an experiment for urban densification and contextual reassembly within the generic sprawl environment. Through linear form and vertical confrontation with existing conditions, the architecture transforms isolated fragments previously introverted, incapable of generating context—into a new urban continuity.

The architecture is both program and infrastructure: a mixed-use strip of public intensity, lay ered with retail, institutions, housing, and civic space. It operates as a social condenser, stitching together disjointed surroundings. The resulting spatial field functions like a three-dimensional Nolli map, simultaneously inside and outside, public and private.

The University of California, Berkeley, CED

The spacial framework is designed as vertical nolli-map that the public space is shaped by the both new and existing private space, resulting a comprehensive contextural system that is simultaneously inside and outside, public and private.

In the previous site analysis drawing, each public space parcel is trapped within the infrastructure network with no interconnectivity. In this design proposal, the public spaces are what organized the entire architecture and where the internal and external world are mixed.

Central Corridor

The suburban environment is usually described as a low-contrast, contextless urban condition. Collected and organized by the central corridor, both the existing city on the ground and the newly constructed space are now united and influenced under the same spatial system. The context is reacted to and respected in three dimensions, with the linear structure that utilizes the change of urban densification, to provide a comprehensive system that responds to internal and external context simultaneously.

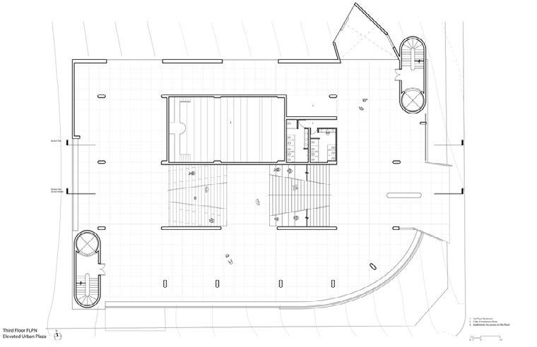
As the void space of the architecture, the central corridor is the main street and urban plaza of the constructed space. Activities happen the most at the places where the corridor shifts to the ground level or the rooftop.

A series of public open spaces are connected through the central corridor, the openings themselve are where people will casually gathering and also where the inside and outside of the architecture are linked.

Cut-Off Isometric Drawing
Exterior Rendering
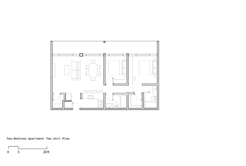
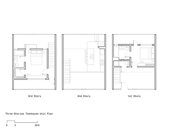
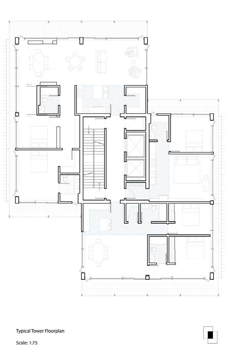
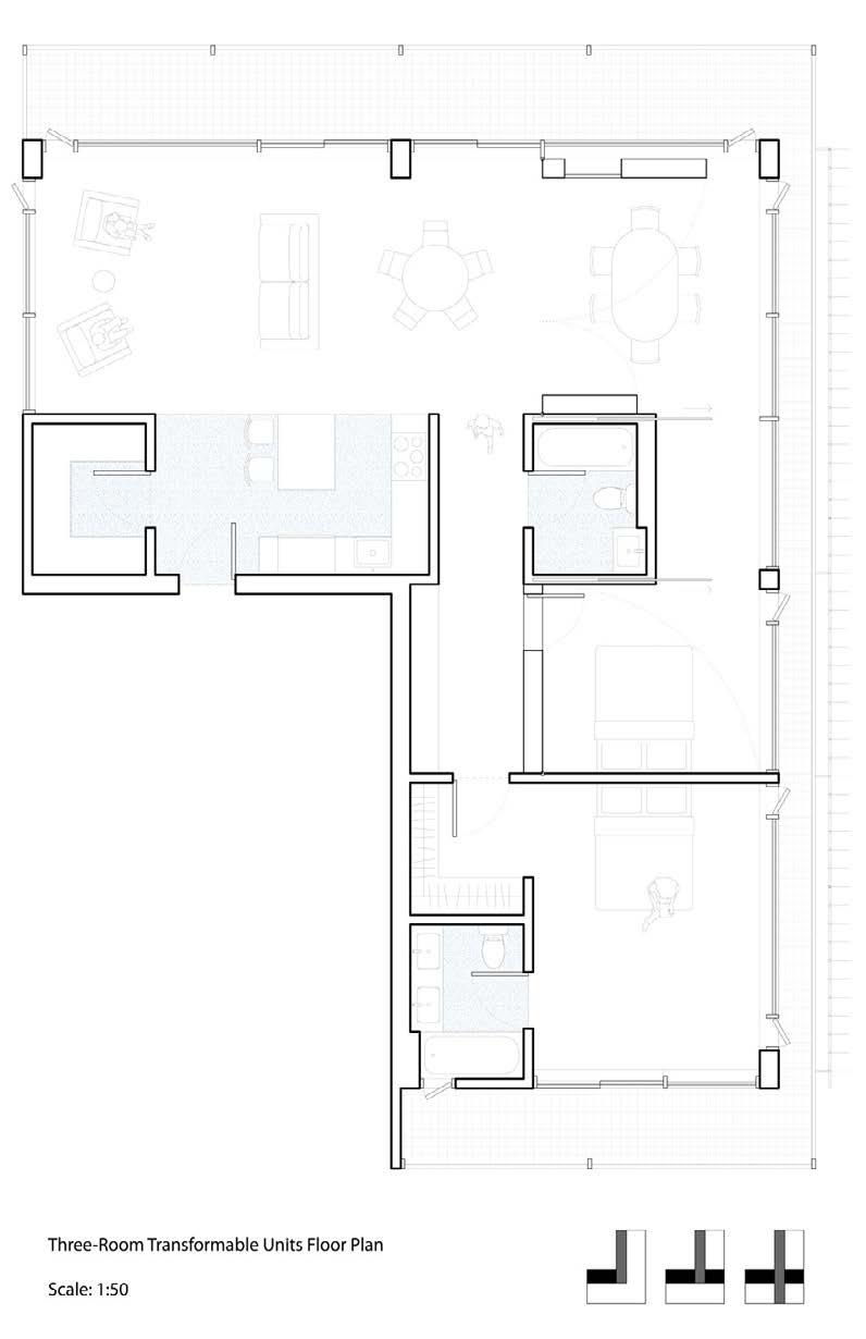
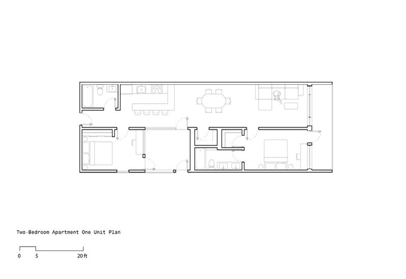
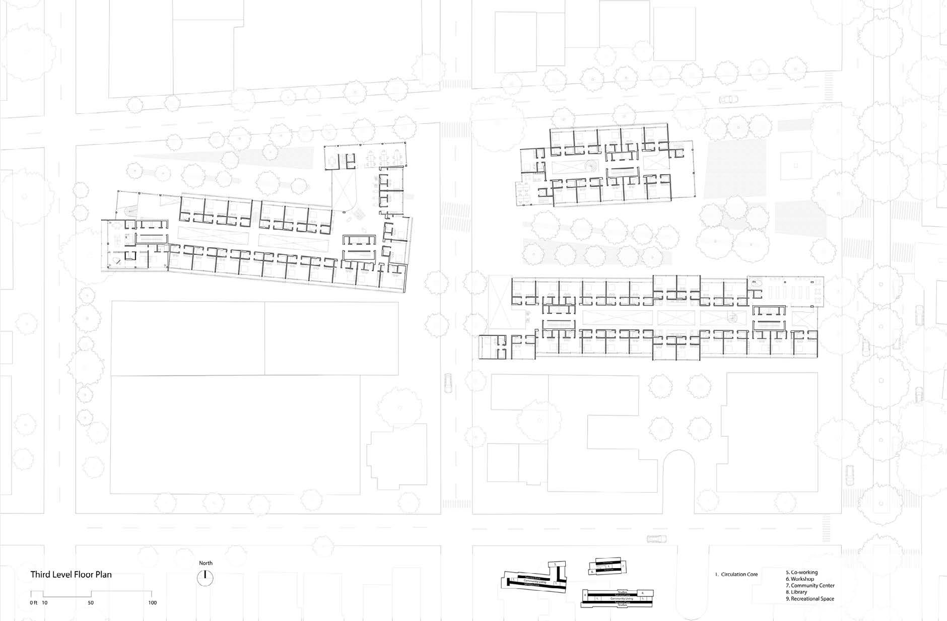
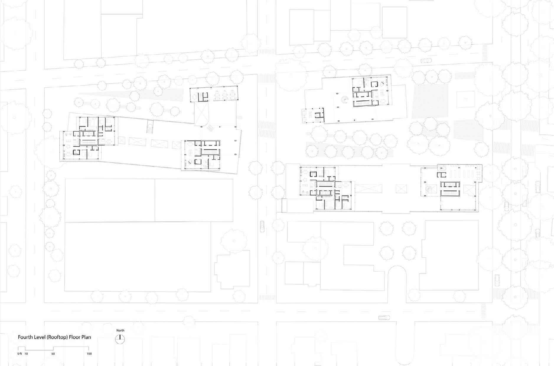
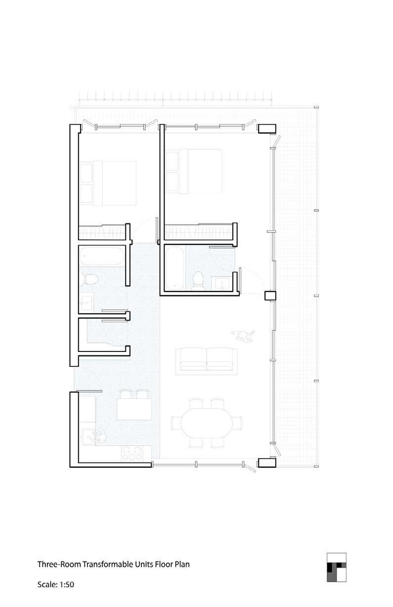
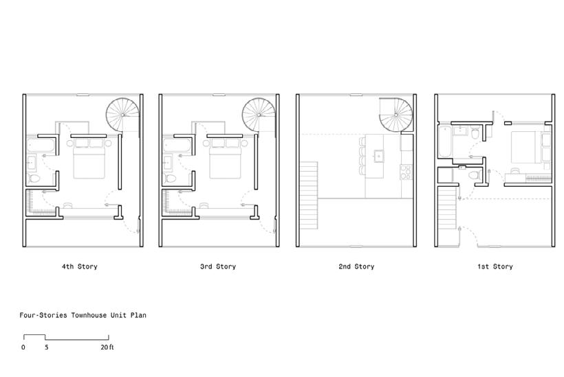
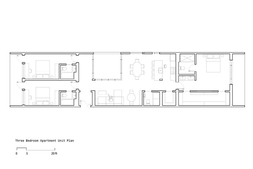
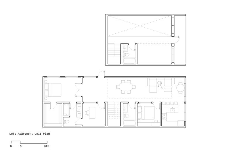
Apartment Group and Facade Design

Unit types varies from studio to 3-bedroom apartments. Each unit is designed in distinction to the balancing of interal public and private and the relationship to the entire architecture and the city. Non of the unit is isolated from the entire environment, but a part of the spatial relationship.

Residential units should never be isolated from the entire environment. The double layer facade, living space, and semi-outdoor patio spaces ensured each unit connects to the city directly, meanwhile ensure the privacy inside each unit.

All townhouses and some of the loft and 3-bedrooms units have direct access to the central space, so that part of the units could be used as non-residential space such as home offices, studios, workshops, or retail spaces.

Park Boulvard

High Density Mixed-Use Residential Architecture

An urban intervention project.

The University of California, Berkeley, CED
Studio:Arch 201
Instructors: Juana Canet and Gines Garrido (Visiting from ETSAM-UPM, Spain)
Software: Rhino, Grasshopper, and Adobe Creativity Suite
Location: Berkeley, California
Time: Fall 2024
Front human-perspective model photography

A Possibility of Breaking the Linear Limitation (Right)

Traffic corridors dominate urban activity, concentrating population and resources along linear patterns. Adapting to this reality means leveraging mobility while disrupting the spatial monopoly of these corridors. One approach is to introduce spatial layers that are local-oriented, activity-driven, or contrasting in form, breaking the corridor’s homogeneous continuity.

In Berkeley, the San Pablo Avenue corridor illustrates these challenges. Commercial and job-related activities cluster along the avenue and major intersections. As a regional boulevard, San Pablo Avenue is wide, vehicle-centered, and designed with centrally placed trees. However, its higher driving speeds and misaligned T-shaped intersections make crossings difficult for pedestrians and vehicles alike.

This proposal explores breaking the spatial limitations of the corridor by creating a more condensed, introverted urban environment. The site, near local attractions like San Pablo Park and the waterfront, provides an opportunity to integrate a pedestrian-friendly, local-focused linear park. Positioned perpendicular to San Pablo Avenue, the design connects two T-shaped intersections, fostering continuity and enhancing the area’s accessibility.

Liberal Citizen or Prisoner, It Is a Question (Left)

the hyperstructure is represented similarly, but the concept is the opposite. Here, it does represent the urban separator, but the linear boulevards stand for the complete urban structure that collects all the activities along them. What exists other than the two continuous strips is not visible or experienceable from the strip.

The full analysis and proposal article is published on the UC Berkeley TRACE magine, fall 2024 issue.

Interconnecting Urban Architecture Plan Collage (Right)

the red and orange elements represent architectural parts that connect each composition group to the ground level, as the in-between grey spaces where interactions are encouraged to happen.

Social impact and surface parking studies (Left Page)

The study of regional building functionality, percenage, social impact, and the quantity and distribution of surface parking lots. Note:

A Human Centered Interconnecting City (Left)

On the ground level, where everything meets together, will be a market-like multi-function space, a sequence of urban plazas, that will have the maximum publicity. The architecture will become a vertical extension of the city that still maintains or enhances the urbanity.

San Pablo Park

From the urban scale to the interior scale, the form-making strategy is consistent: the positioning of distinct volumes and the spatial relationships between them.

As a design result, the entire architecture is inter-connected by the public space and the nessary circulation. The architecture became an extension of the city.

The ground level, where the architecture meets the city, is mostly preserved as gardens and plazas to be open to the public with zero resistance. The upper volumes exist as groups of different houing types and functions.

In the proposal collages, the red and orange elements represent architectural parts that connect each composition group to the ground level, as the in-between grey spaces where interactions are encouraged to happen. The elements should be necessary for circulation, and may also be the potential spaces to design public spaces that break the boundaries of the absolute inside and outside. The red structure, borrowed from the MASP Museum in Sao Paulo, marks a loop that both starts and ends on the ground level, to bond the architecture and the overall environment. On the ground level, where everything meets together, will be a market-like multi-function space, a sequence of urban plazas, that will have the maximum publicity. The architecture will become a vertical extension of the city that still maintains or enhances the urbanity.

In the actural design, the public volumes, including a library, a community center, a co-working space, a workshop, a bike storage, and a leasing office serves as the breakers of the absulote interior which bring together both the residents and visitors. Those spaces all have their own sets of vertical circulations, controling the open public spaces on the ground, and shows the publicity of the space. All the public spaces inserted through the ground floor and the two studio floors, anchoring the entire lower volumes with the urbanscape. Some of the public spaces even go further to connect the roof top terraces. In the daily using senario, the public spaces become the most commonly used circulation pathes because of their accessibility and transparency.

Human perspective photograph of the physical model. Position: in front of the community library
Unit Rendering
Interior Rendering

The Cone Project

combined

How to combine two seperate archives in the same architecture? How to design an architecture in the boarder of urban, nature, and a world-class university campus?

Inspired by constructivist artist Malevich’s White on White, I started to explore the tension created by geometry form and its boundaries. Combined with my teammate’s case study Tres Grande Bibliotheque by OMA, we also brought the thinking of solid and volid into the design discussion.

The design ended up with a combination of these two concepts together to create this final design: an architecture using geometries to define the space into defferent uses and shape the spatial quality. Meanwhile, from inside out, the architecture exists in its specific site, interact, shaping and shaped with the environment.

Both archives are designed with solid components that set and define the space within the limitation of the pre-defined architectural volume, and the mass itself engaging with the surrounding environment.

The two Parti are integrated to interact with each other in terms of circulation, spatial organization, and structure. Both Archives initial the public visiting circulation from the grand lobby along with distinct circulation paths for professional visits and special events.

The University of California, Berkeley, CED

Studio:Arch 200A

Time: Fall 2023

Location: Berkeley, California

Inside the film archive cone. At the back, the cone served as circulation space. In the front, it becomes the main movie theater
Berkeley Film and Photography Archive
A
architecture of two seperated archives.

White on White

Case study one.

The Floating blue square created four spaces between the boundaries of itself and the larger square. The blue square gives dynamic of flow to the four surrending spaces, and they are sligtly different because of the variation of orientation and areas. This interplay of form and movement creates an engaging experience that invites exploration and contemplation.

In the lowerhill side, the spatial experience differs from the uphill side by clearly defined and prominent boundary forms delineating the plaza’s layout.

Inspired by OMA’s Grand Library, a cone is strategically placed in the architectural volume to connect the front and back, providing opportunities for internal circulation and interaction between interior and exterior spaces.

The

Case study Two.

The Très Grande Bibliothèque by OMA showcases a diagrammatic design comprising four transparent towers linked by a central atrium. This layout emphasizes spatial clarity and connectivity, facilitating ease of navigation and interaction. The diagrammatic arrangement symbolizes the library’s role as a hub for knowledge dissemination and intellectual exchange.

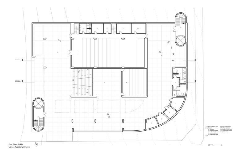
Programming

The shared lobby is on one side of the central cone. Above it and on the other side of the ground floor is the Film Archive, underneath it is the Photo Archive.

This project used to be a two persons project, I am in charge of the lobby and the photo archive design, my teammate was in charge of the film archive. the current version is completely revised by myself.

This image of the art installation serves as a critique of the present-day Berkeley built environment.

Currently, almost every building in downtown Berkeley and the university campus is in cubic shapes and rarely responds to the surrounding environment, like an agglomeration of medieval fortresses. In this specific context, architecture need to respond to the environment to introduce a more conversational urban condition.

Photo Archive Design Parti

Inspired by “White on White,” the design features three nested squares, creating three layers of spaces from inside to outside: the outermost layer comprises the lobby and museum galleries, the enclosed ring in between houses access-restricted and service areas, with the archive space at the center.

The poched enclosed ring also has lower ceiling heights, with the space above dedicated to climate control systems and structure.

Site

The Site is located on the North of Berkeley University campus. The location is one of the only two entries in this direction and the end of two major roads from Berkeley Hills.

The site is also the ending moment of a natural landscape system fromw uphill within the university campus. Beyond the site will be the urban area until it reaches the bay.

Breathing and Extending

Breathing: Leave the front part of the site open to encourage connections between the inside and outside of the university campus.

Extending: Elevating the ground from its meeting point on the uphill side provides an uninterrupted natural experience of the Bay Area. By leaping over the urban area, it extends sights to the other side of the Bay, enhancing the scenic journey and preserving the continuous connection with nature.

Film Archive Design Parti

The film archive cone separated the space into three parts. In the over-reaching part, the cone functions as a “void” circulation pathway, flanked by film archive museum galleries on two sides.

Conversely, the order is reversed in the main building part: the cone serves as the “solid,” and the main movie theatre and the archive and reading space are on the two sides. At the rear, another cone links the film archive to the rest of the building. The back cone collects servant spaces and additional fragment spaces.

Combined Design Parti

The overall operation is about Poche and its boundary limitations. Both archives are designed with solid components that set and define the space within the limitation of the pre-defined architectural volume, mas the mass itself engaging with the surrounding environment.

The two Parti are integrated to interact with each other in terms of circulation, spatial organization, and structure. Both Archives initial the public visiting circulation from the grand lobby along with distinct circulation paths for professional visits and special events.

Tres Grande Bibliotheque
Sinking Villa Savoye
New Campus Gateway

The design of the photography archive is inspired by Malevich’s White on White (1918). The design features three nested squares that creates three layers of spaces from inside to outside: the outermost layer comprises the lobby and museum galleries, the enclosed ring in between houses access-restricted and service areas, with the archive space at the center.

Visitors can enter the space from the two public entries, one from the semi-underground museum courtyard, and one from the shared Reception Hall that connects to the central passage cone. Additionally, the cargo transport space and egress stairs are located on the lower left corner. There, the virtical circulaion will lead to upper floors and backs to the ground at the garden level.

Here on the first floor is where the two archives meets. On the left side is the shared grand entry hall of the two archives. Going up from here is the Film Archive Gallery Spaces, and going down is the photography archive. On the right side is the main movie theater and the actural archive and library space.

On thisfloor, it is clear to see the overall spatial operation is about Poche and its boundary limitations. Both archives are designed with solid components that set and define the space within the limitation of the pre-defined architectural volume, and the mass itself engaging with the surrounding environment. The two Parti are integrated to interact with each other in terms of circulation, spatial organization, and structure. Both Archives initial the public visiting circulation from the grand lobby along with distinct circulation paths for professional visits and special events.

The film archive cone separated the space into three parts. In the over-reaching part of the archtecture, the cone functions as a “void” circulation pathway, flanked by film archive and museum galleries on its two sides.

Conversely, the order is reversed in the main building part: the film archive cone serves as the “solid” component, provide the spatial structure for the main movie theatre and defined the space on its two sides as archive and reading space. At the rear, another cone links the film archive to the shared Lobby and the photo archive. The back cone also collects servant spaces, a gift store, and a cafe.

Vertical Urban Plaza

Converting an existing parking garage to an academic and civic architecture.

Using minimum structural interpertation to achieve a complete spatial reform.

Adaptive Reuse is a growing trend due to land shortages in major metropolitan areas and sustainability concerns. Meanwhile, the knowledgebased economy has been the primary economic engine since the 1960s; related institutes and industries require spatial expansion and urban space transformation to meet constantly changing needs.

This adaptive reuse project is a practice and exploration under this scenario. The original parking garage has a ceiling height of only 8 feet and is situated on a slope with a relatively small floor area. By utilizing the slope height changes, each parking floor has their own ground connections without internal vertical circulations.

The design task is to transform this structure to an academic building. However, the low ceiling height poses a challenge for accommodating large classrooms, and I aim to minimize alterations to the original structure.

Therefore, my design intervention focuses on breaking the vertical limitations to create new internal spatial relationships and extending the original structure framework upwards. Additionally, part of the existing space is transformed into public-use areas.

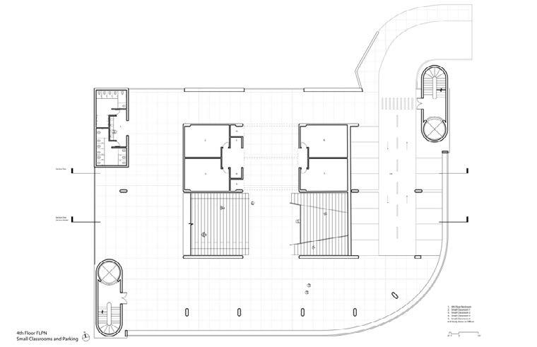
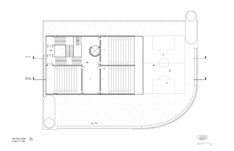
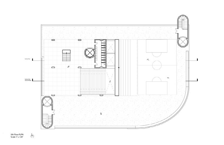
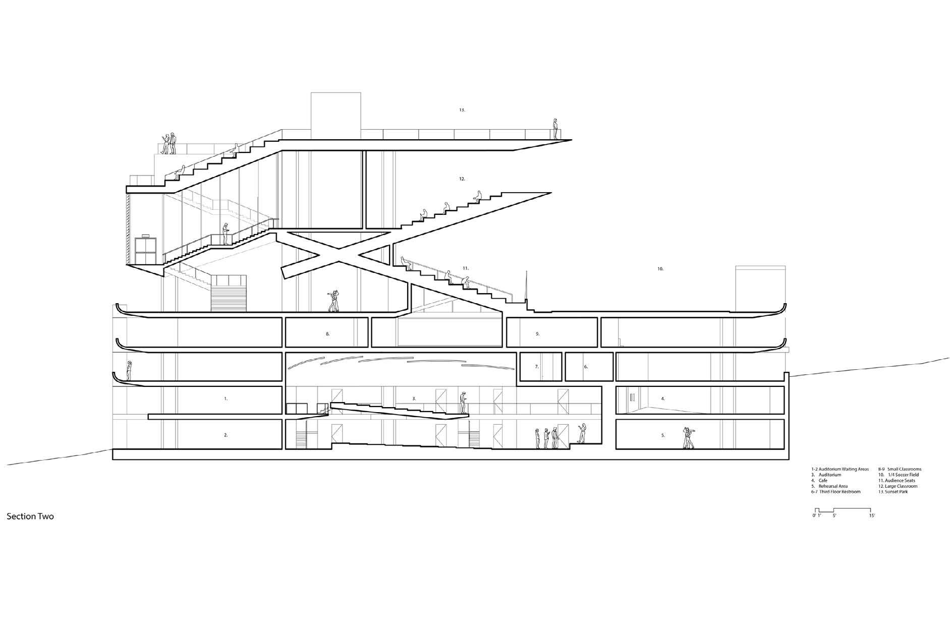
Overall, all the original vertical structure is preserved and extended, and the total floorplate demolition is within 20%. After renovation, the garage became a vertical urban plaza serving the community and supporting varies activities, with minimal interruptions between different functions.

The University of California, Berkeley, CED

Studio:Arch 200B

Time: Spring 2024

Location: Berkeley Hill, California

Current Condition

The garage is positioned on a slope, with its longer side facing north-south.

Current Interior

The garage features a clear grid system, with each floor having its own ground-level access.

Donut Structure

The existing grid structure naturally divides the space into nested layers, resembling a donut.

Programming

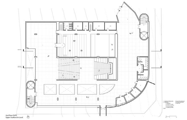
The Auditorium is plWaced at the underground part of the volume, with additional educational space above.

Opened-up the Core

The darkest central area was replaced with swing elements, breaking vertical limitations and adding more usable space.

Public Space

The third floor, serving as the main entry, has been designed as an elevated plaza. The 1/4 soccer field is preserved, and the top floor offers Panamera view of the Bay Area.

Circulation and Structure

Inspired by the original building form, Two circulation cores and an additional elevator have been added.

Final Design

The original garage has been transformed into a functional academic building with comfortable classrooms, study areas, and necessary activity spaces for the university community.

Communal Birthing Center

Maternity center in rural context, a professional medical environment, and also a community social condenser

Medical Architecture

An ArchArk (HK) Project

Time: 2024

Location: Southern Senegal

Addressing the lack of maternity services and awareness in rural Southern Senegal, we designed the new Maternity Center to be a welcoming and professional facility to ensure the safe arrival of new lives and to introduce necessary knowledge to the community.

The architecture form is generated by spatial management and inspired by local building structures. The patient workflow follows a sequence from examination to the ward, delivery, returning to the ward, and going home. Spatially, This workflow is wrapped around the staff quater, allowing staff to monitor and access different zones efficiently. Emergency entry and the perioperative communication place is at the other end of the architecture to provide a secured shortcut to the labour and operating area. The neonatal observation area is surrounded by the ward, so the new moms can stay around with their babies, although the two spaces are separated.

To ensure patient health and community engagement, the reception area is designed as a semi-isolated pavilion, serving as a recreational space for both patients and the community. The reception area and pharmacy are adjacent to the pavilion, allowing staff to monitor patients and interact with the community. Water-using areas are strategically placed to minimize material use and reduce health risks.

Interior Rendering
Inside the ward, we designed a cabinet system for patients and their families. Each patient bed will pair with one cabinet group that provides generous storage space and a sitting area that can fit up to two to three visitors.

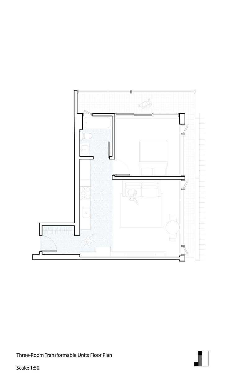
The Z House

We are required to design within the spacial order of four equare squares, and the squares have to be reconizable in the final design. My design strategy started from sub-dividing the rectangular to create a decending and switch special relationship.

By offset the diagonal axis, a folded corridor is formed, and allowed more useable space in the central two squares. Consequently, the smaller triangular space created by this offset became servant spaces, and dissolved into the boundaries naturally.

Utlizing the decending and switching spacial relationship, from outside toward inside, the space transformed from more public to more private: from living spaces to bedrooms and laundry. Until reaching the most private space, the restroom, the special order will switch.

Compact Single-Family House

The University of California, Berkeley

Group project, team of 2

Studio: Arch 200B

Time: Spring 2024

Location unspecified

The Bay Area faces significant housing pressure. This project explored the possibility of maximizing the living experience within a predetermined structural frame of a micro-house.

By introducing a diagonal line, the required rectangular space is divided into two equal triangular spaces, and the publicity of both triangles reduces as the width goes from wide to narrow until reaching the center, where the spatial hierarchy is revered into the other triangle.

From outside to inside, on the two sides are the more public spaces, including the living room, kitchen and dining, and foyer. Further in are the two bedrooms, laundry, and studies, until the washroom is in the heart of the house, representing the ultimate privacy. The diagonal cut per se allows edge triangular spaces to become useable, and disappeared, resolved into the wall naturally. Additionally, the offset operation of the diagonal corridor optimizes the usable areas to suit their functions better.

The dual-butterfly roof shape creates two dormed areas: the wider parts are the occupable spaces, feels like house within the house, and the narrower part is the corridor.

THE END

Thank you for visiting my vision of design and the built environment

Turn static files into dynamic content formats.

Create a flipbook
Issuu converts static files into: digital portfolios, online yearbooks, online catalogs, digital photo albums and more. Sign up and create your flipbook.