azero 45

Page 1


4 Una storia contemporanea Officina Abitare

16 Alta efficienza a costi contenuti

Antonio Gonella DIPIÚ STUDIO

28 Un progetto per il territorio Dalz Architettura

40 Una casa di personalità

Andrea Penello

azero rivista trimestrale – anno XIV n. 45, ottobre 2024

Registrazione Tribunale Gorizia n. 03/2011 del 29.7.2011

Numero di iscrizione al ROC: 8147

ISSN 2239-9445

Direttore responsabile

Ferdinando Gottard

Redazione

Lara Bassi, Gaia Bollini

Editore EdicomEdizioni – Monfalcone (GO)

52 Etica e innovativa CELERI ASSOCIATI

64 Il primo “benvenuto”

Roberto Rossi, Corrado Poggi, Paolo Lanfranconi

76 Sospesa nel verde

Adriana Labella

86 Minimale ed efficiente

Vicenzo Guzzo

Redazione e amministrazione via 1° Maggio 117 – 34074 Monfalcone (GO) tel. 0481.484488 – fax 0481.485721 redazione@edicomedizioni.com www.azeroweb.com

Stampa

Grafiche Manzanesi – Manzano (UD)

Stampato su carta con alto contenuto di fibre riciclate selezionate

Prezzo di copertina 15,00 euro

Abbonamento

Italia (4 numeri): 50,00 euro

Estero (4 numeri): 100,00 euro

Gli abbonamenti possono iniziare, salvo diversa indicazione, dal primo numero raggiungibile in qualsiasi periodo dell’anno

È vietata la riproduzione, anche parziale, di articoli, disegni e foto se non espressamente autorizzata dall’editore

Copertina Il primo “benvenuto”, foto: ©Paolo Bassetti

Officina Abitare Una storia contemporanea

Casa Citerna è il risultato di un intervento di ristrutturazione e di riqualificazione energetica effettuato su un’abitazione privata nel Chianti fiorentino. La casa, originariamente parte di un palazzo storico suddiviso nel tempo in più unità abitative, necessitava di un ripristino filologico, viste le molte variazioni nella distribuzione degli ambienti poco affini al contesto di riferimento e le trasformazioni apportate nel corso del Novecento con interventi radicali, che ne hanno sostituito elementi e tecnologie storiche con soluzioni incongrue, oggi sostituite con altre più coerenti

“Partire dall’origine storica dell’edificio per creare forme contemporanee dell’abitare: così il progetto ha preso vita”. Questa affermazione degli architetti Sara Bartolini e Matteo Pierattini, autori del progetto descritto in questo articolo, riassume non solo il concept di questo lavoro, ma anche il loro approccio al design, sia esso una nuova costruzione o una riqualificazione. In questo intervento, infatti, i caratteri storici del fabbricato sono stati ripristinati sia spazialmente sia costruttivamente, utilizzando materiali tradizionali locali come il cotto, la calce, il legno di castagno e la pietra, con l’obiettivo di creare forme contemporanee dell’abitare e promuovere opere di riqualificazione energetica con materiali naturali. Sono stati inoltre eliminati molti frazionamenti introdotti nel Novecento, ripristinando la continuità e la fluidità spaziale tipica delle abitazioni storiche chiantigiane. Al piano terra,

dunque, la zona giorno si sviluppa senza porte verso tutti gli ambienti, quale spazio continuo a partire dall’ingresso, affacciato sul giardino privato. Quest’area ospita la cucina, il pranzo e il soggiorno, collegati da grandi passaggi quadrati, alcune delle quali riaperte, ricavate nelle murature storiche; un nuovo camino a doppia faccia, posizionato al posto del camino storico, funge da filtro tra cucina e soggiorno, mentre i portali che collegano gli ambienti sono rivestiti in acciaio a rimarcare il nuovo intervento. Durante i lavori, sono state ripristinate le vecchie finestre in facciata al fine di migliorare la luce naturale e la connessione tra gli interni, il giardino e il paesaggio.

La scala storica in pietra serena che conduce al primo piano è stata salvaguardata e alcune opere novecentesche sono state demolite per riportare lo spazio alla semplicità originale, con una distribuzione attorno a un unico muro portante. La zona notte accoglie tre camere da letto, di cui due non modificate spazialmente; la terza camera, una suite, è stata creata unendo due stanze contigue tramite una grande apertura e ospita una camera doppia e lo studio privato del committente, un grafico che necessitava di uno spazio di lavoro riservato e luminoso. Nella suite è stato introdotto un bagno aggiuntivo con due lavabi e sanitari, che funge da parete di appoggio per il letto; dalla camera da letto si accede a uno spazio doccia affacciato sul giardino privato, caratterizzato da un rivestimento in cotto tradizionale dell’Impruneta. Infine molti elementi incongrui del Novecento sono stati cambiati, come ad esempio i solai in latero-cemento che sono stati demoliti e sostituiti con solai in legno di castagno e mezzane in cotto fatte a mano. La copertura è stata rifatta con legno e mezzane e dotata di coibentazione in fibra di legno ad alta densità per migliorarne le prestazioni termiche invernali ed estive.

Progetto architettonico

arch. Matteo Pierattini & arch. Sara Bartolini – Officina Abitare, Firenze

Direttore dei lavori

arch. Matteo Pierattini

Impianti

Nannelli, Firenze

Appaltatore

Edilenvi srl, Prato

Fine lavori

2023

Superficie utile

200 m2

Due vedute dell’affaccio verso ovest della casa sulla via pubblica, dove è collocato uno degli ingressi. Il prospetto rimane chiuso per preservare la privacy dei suoi abitanti.

Nella pagina accanto, tre immagini dell’ampio ambiente giorno: l’affaccio sul giardino privato dalla cucina (in alto), il cono visivo che dalla cucina abbraccia tutto lo spazio inquadrato dal portale in acciaio, al centro, e l’area pranzo dove si nota a destra il nuovo camino a doppia faccia, che ha preso il posto del camino storico e che svolge funzione di filtro tra i diversi ambienti (sotto).

Trasmittanza media pareti esterne

0,549 W/m2K

Trasmittanza media solaio contro terra 0,155 W/m2K

Trasmittanza media copertura 0,199 W/m2K

Trasmittanza media superfici trasparenti 1,2 W/m2K

Fabbisogno energia per riscaldamento EPren 57,11 kWh/m2 anno – EPnren 79,44

Photo © Leonardo Morfini
Photo © Leonardo Morfini
Photo © Leonardo Morfini
Photo © Leonardo Morfini
Photo © Leonardo Morfini
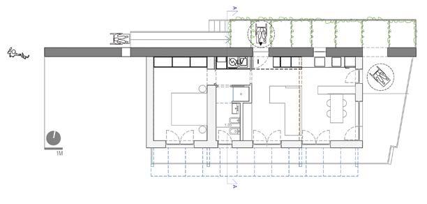
Pianta piano terra
Sezione AA
Sezione CC
Pianta piano primo
Sezione BB
Sezione DD

La camera padronale e gli accessi al bagno e alla doccia rivestita in cotto e affacciata sul giardino privato.

Vedute opposte della suite dove il passaggio tra la zona del riposo e dello studio è sottolineato dalla cornice in acciaio scuro.

Photo
© Leonardo Morfini
Photo
© Leonardo Morfini
Photo
© Leonardo Morfini
Photo
© Leonardo Morfini
Photo
© Leonardo Morfini

Ripristino ed efficientamento

Data la complessità dello spazio originario di questa antica casa, con molti dislivelli e piani differenti, è stato fondamentale l’utilizzo della metodologia BIM che ha permesso di definire ogni dettaglio in fase di progetto. La maggior parte dei solai è stata demolita e ricostruita e molte murature verticali sono state consolidate a causa delle precarie condizioni e dei numerosi interventi di appesantimento effettuati nel corso del Novecento. In dettaglio, lo spazio interno ha visto la ricostruzione di nuovi solai con mezzane in cotto fatte a mano e impalcato in legno di castagno locale. Invece di realizzare un cappotto termico esterno, che avrebbe alterato le forme e gli spessori del fabbricato, è stata prevista la posa, internamente ed esternamente, di un termointonaco in calce e sughero, che si adatta perfettamente alle imperfezioni del fabbricato storico. I nuovi infissi ad anta unica in legno e alluminio, oltre a migliorare le prestazioni energetiche, massimizzano l’apporto di luce naturale. Infine, un nuovo impianto con pompa di calore e pannelli radianti massimizza le prestazioni energetiche della casa, lavorando in tandem con il grande camino termico a piano terra. Tale sistema ha consentito l’eliminazione di radiatori ed elementi di distribuzione, permettendo un design degli spazi ancora più pulito, minimale e aderente alla storia del fabbricato.

Immagini del vano scala e della scala, recuperata, in pietra serena che spicca sulla candida finitura a calce delle pareti. Scorcio di uno dei bagni.
Photo © Leonardo Morfini Photo
Leonardo Morfini
Photo
Leonardo Morfini
Lo sporto del tetto con mezzane in cotto fatte a mano; la posa del termointonaco in calce e sughero; l’impianto radiante a pavimento.

L’isolamento della copertura posto su barriera vapore metallizzata; la fibra di legno come coibentazione del tetto; il pannello di lana di legno mineralizzata sopra l’isolamento in fibra di legno.

Nella pagina accanto, il rifacimento della struttura della copertura e degli impalcati dei solai con legno di castagno.

Copertura (A), dall’esterno

- tegole

- strato impermeabilizzante (5 mm)

- isolante in fibra di legno mineralizzata (20 mm)

- isolante in fibra di legno ad alta densità (180 mm)

- barriera al vapore

- massetto strutturale con rete (40 mm)

- travetto in legno di castagno (sp. 80 mm)

1 cordolo in c.a.

2 mezzane in cotto fatte a mano (sp. 30 mm)

3 mensolotto di gronda in legno di castagno (sp. 80 mm)

4 gronda in rame

5 termointonaco in calce e sughero (30 mm)

Attacco copertura-parete

La cucina con i suoi colori chiari enfatizza la quantità e la qualità della luce naturale entrante dall’ampia apertura cielo terra che dà accesso al giardino.

I materiali

Tutti i materiali sono stati selezionati secondo i criteri della bioedilizia; per le lavorazioni a umido, sono stati scelti prodotti a base di calce NHL al fine di garantire massima compatibilità con le strutture antiche e assicurare traspirabilità e benessere interno. Il termointonaco, impiegato all’interno e all’esterno, è in calce e sughero e permette di preservare la ricchezza di chiaroscuri e le difformità del fabbricato storico, mentre fibra di legno e pannelli di lana di legno mineralizzata isolano la copertura.

Gli impalcati dei solai in legno di castagno creano una trama geometrica e calda che si sposa con un pavimento a superficie continua in calce, protetta con cera d’api, di un tenue colore grigio e con le candide pareti, anche all’interno, tinteggiate a calce; un mix di materiali tradizionali per nuove forme contemporanee.

Photo © Leonardo Morfini

Architetti Sara Bartolini, Matteo Pierattini

Officina Abitare è uno studio di progettazione fondato dagli architetti Sara Bartolini e Matteo Pierattini che opera a Firenze nel campo della ristrutturazione e della nuova costruzione di immobili in ambito urbano e rurale, sviluppando una progettazione integrata con particolare attenzione agli aspetti di efficientamento energetico degli edifici. Allo studio delle tradizioni del costruire e dell’abitare gli architetti affiancano una ricerca sull’uso di materiali naturali e sostenibili, che impiegano sia per le finiture degli interni sia per le riqualificazioni globali degli edifici, reinterpretando in chiave contemporanea le tecniche costruttive della tradizione, l’uso dei materiali e le finiture. L’approccio alla ristrutturazione è legato al concetto di retrofitting, un’attenzione a ripensare gli edifici esistenti rielaborandone gli elementi per rispondere alle esigenze contemporanee dei committenti.

Casa della fonte, Impruneta (FI). Riqualificazione e ampliamento di un fabbricato rurale a energia quasi zero.

Casa Rosa, Firenze. Ristrutturazione e riqualificazione energetica con materiali naturali di un ex fienile.

Photo © Matteo Pierattini
Photo © Matteo Pierattini
Photo © Leonardo Morfini
Il camino bifacciale rivisita in chiave attuale il camino storico sostituito attraverso colori e materiali che richiamano la tradizione.
Photo Matteo Paparella

Antonio Gonella DIPIÚ STUDIO Alta efficienza a costi contenuti

Nel cuore del basso Polesine, la prima villetta unifamiliare certificata CasaClima Gold è stata progettata per costare il meno possibile, garantendo al contempo comfort abitativo e uno straordinario risparmio energetico. Tale risultato è stato raggiunto grazie a un involucro efficacemente coibentato e a tenuta all’aria, a un aggregato compatto, supportato dalla geotermia, e all’impianto fotovoltaico in copertura

“Cosa ne pensate della ventilazione meccanica?”. Questa è stata la prima domanda che i committenti hanno posto ai progettisti durante il primo incontro e da quel momento la loro massima fiducia è stata ricambiata con il massimo impegno progettuale. Nasce dunque da questi presupposti la casa di Silvia e Paolo; sviluppata su un unico piano, presenta un’architettura caratterizzata da linee semplici ma decise. Il living è disposto a sud ovest al fine di massimizzare gli apporti solari e consentire allo sguardo di aprirsi sulla campagna circostante, mentre il reparto notte, che comprende tre camere da letto, due bagni (di cui uno riservato alla stanza padronale), uno studio e una lavanderia utilizzata anche come vano impianti, si colloca alle spalle della zona giorno. Completa il tutto un garage doppio non riscaldato. La struttura portante è stata realizzata in muratura armata, con solai orizzontali in latero-cemento e una copertura a due falde in legno. Gli isolanti termici impiegati includono XPS con spessori diversi per il sotto pavimento e sul soffitto verso il sottotetto non riscaldato, un sistema cappotto in EPS grafitato e fibra di le-

gno a doppia densità per il tetto ventilato. I serramenti in legno-alluminio con triplo vetro basso emissivo e basso fattore solare, con distanziatori migliorati, e le schermature solari esterne tipo veneziana motorizzata chiudono l’involucro edilizio.

Gli impianti meccanici includono un sistema tutt’aria con aggregato compatto e preriscaldamento geotermi-

co orizzontale sotto fondazione. Un impianto fotovoltaico da 6 kWp è installato in copertura.

Pur con caratteristiche come un fabbisogno per riscaldamento di 7 kWh/m2 anno, un’emissione complessiva di 0 kg CO2/m2 anno e un valore di tenuta all’aria n 50 = 0,21 h-1, l’abitazione è costata il 3% in meno rispetto a un edificio tradizionale.

Progetto architettonico geom. dsgn. Antonio Gonella – DIPIÚ STUDIO, Porto Viro (RO)

Strutture ing. Luigi Paroli, Mantova

Direttore dei lavori geom. dsgn. Antonio Gonella

Impianti geom. Tiziano Tumiati, Rovigo

Appaltatore

Impresa Edile Chiarelli Daniele, Bosco Mesola (FE); Legno SMART s.r.l., Monselice (PD)

Certificazioni

• CasaClima Gold

• A4 – verifica nZEB (nazionale)

Superficie utile riscaldata 146,00 m2

Trasmittanza media pareti esterne

0,126 W/m2K

Trasmittanza media solaio contro terra

0,14 W/m2K

Trasmittanza media copertura

0,12 W/m2K

Trasmittanza media superfici trasparenti

0,8 W/m2K

Fabbisogno energia per riscaldamento 7 kWh/m2 anno

L’affaccio a sud ovest dell’abitazione con l’ingresso e l’ampia finestra a tutta altezza del living che assicura un adeguato apporto solare.

Photo Matteo Paparella

Rispetto

del budget

La cosa più difficile per un progettista è rispettare il budget di spesa, soprattutto quando si desidera introdurre concetti come l’efficienza energetica e la durabilità del costruito in un’area dalla poca familiarità con questi temi. Per la riuscita del progetto è stato pertanto fondamentale sfruttare le risorse locali e utilizzare il sistema costruttivo più conosciuto dalle imprese, mantenendo il focus sul comfort abitativo in tutte le stagioni.

La soluzione è stata adottare un involucro in muratura armata, eliminando così i costi per il getto dei pilastri, riducendo l’influenza di molti ponti termici e massimizzando la capacità termica delle strutture, fattore essenziale in una zona climatica particolarmente soggetta a estati sempre più calde. Di conseguenza, è stato

L’ampio open space della zona living.

impiegato un sistema a cappotto in EPS grafitato di 20 cm che, abbinato a una struttura massiva, ha ridotto i costi complessivi mantenendo prestazioni elevate in tutte le stagioni. Per il tetto, costruito in legno, si è reso necessario l’impiego di un isolante a bassissima diffusività termica (fibra di legno da 30 cm), garantendo in tal modo un buon sfasamento termico e una temperatura superficiale interna corretta. Grazie a un as-built dell’involucro e all’interoperabilità con il progetto degli impianti, è stato realizzato un modello BIM che ha permesso di ottimizzare il processo di costruzione e controllare le quantità di tutti i materiali e componenti impiantistici prima dell’inizio del cantiere. L’imprecisione di cantiere ha portato a un extra costo del 2% rispetto al computo iniziale.

Photo Matteo Paparella
Spaccato assonometrico
BIM sulla zona giorno
Pianta piano terra
Sezione AA
Sezione BB

Impianti meccanici e tenuta all’aria

La soluzione impiantistica è stata scelta per ridurre i costi di installazione e garantire il mantenimento del comfort abitativo nei momenti più freddi e caldi dell’anno. Si è optato per un sistema ormai collaudato per edifici a bassissimo consumo, ovvero un aggregato compatto, un generatore all-in-one che gestisce la ventilazione meccanica controllata, la sanificazione dell’aria, la climatizzazione invernale ed estiva e la produzione di acqua calda sanitaria.

La tenuta all’aria, un tema ancora poco conosciuto e applicato in zona, ha giocato un ruolo fondamentale, poiché negli edifici a bassissimo consumo essa incide significativamente sulle dispersioni energetiche complessive. Il risultato del Blower Door Test n50 = 0,21 h-1 dimostra che, anche con operatori inesperti in questo campo, è possibile ottenere risultati eccezionali se guidati correttamente e se disposti a operare in modo innovativo.

Quanto realizzato garantirà l’efficacia del sistema di ventilazione descritto e la durabilità delle strutture.

Il sistema impiantistico della casa

L’aggregato compatto.

Parete (A) dall’esterno

- rivestimento a intonachino e rasatura armata (0,7 mm)

- EPS con grafite (200 mm)

- collante per cappotto (10 mm)

- blocco muratura (250 mm)

- intonaco (15 mm)

Pavimento contro terra (B) dall’interno

- parquet e collante (20 mm)

- massetto (60 mm)

- cemento cellulare leggero (220 mm)

- soletta in cls (100 mm)

- telo in PE

- XPS (200 mm)

- platea di fondazione (300 mm)

- guaina impermeabile

- magrone (10 mm)

Posa della serpentina del pre-temperamento geotermico; isolamento della platea di fondazione; posa della coibentazione a cappotto.

Solaio verso sottotetto non riscaldato (A) dall’estradosso

- soletta in cls (70 mm)

- XPS (200+100 mm)

- telo in PE

- solaio tipo bausta (200+50 mm)

- intonaco (15 mm)

1 scossalina alluminio

2 lastra in cemento rinforzato

3 cornicione in c.a.

4 colla/rasante

5 zoccolatura in EPS (200 mm)

6 guaina liquida

7 tegola portoghese

8 guaina bituminosa adesiva

9 pannello OSB + polistirene (80 mm)

10 massetto (30 mm)

11 tavelloni (60 mm)

12 EPS con grafite (160 mm)

13 cordoli in c.a.

La struttura lignea della copertura; la posa della membrana freno al vapore igrovariabile e barriera all’aria; il controllo degli spessori.

Copertura (A) dall’esterno

- tegola in cemento

- listello ferma tegola (40 mm)

- camera di ventilazione (60 mm)

- membrana traspirante

- fibra di legno (140 kg/m3 20 mm)

- fibra di legno (110 kg/m3 120+160 mm)

- freno al vapore igrovariabile

- perlina (20 mm)

1 intonaco interno (15 mm)

2 cordoli in c.a.

3 schiuma poliuretanica elastica

4 monoblocco coibentato in XPS

5 ferma isolante

6 membrana traspirante

7 tavolato in abete (20 mm)

8 nastro espandente

9 canale di gronda in alluminio

10 falso puntone

11 EPS con grafite (200 mm)

12 colla/rasante

Alla pagina precedente e in alto a sinistra, fasi di coibentazione del tetto; in alto a destra, la struttura in laterizio delle pareti e la coibentazione sotto il davanzale della finestra a nastro; al centro, la posa dei monoblocchi e delle grandi vetrate. Sotto, prova del Blower Door Test e completamento dell’installazione dell’ampia finestra nella zona giorno.

Il living visto dall’angolo sud est.

La camera padronale.
Uno dei bagni della casa.
Photo Matteo Paparella
Photo Matteo Paparella
Photo Matteo Paparella

Geometra Antonio Gonella

Geometra e Industrial designer, Antonio Gonella è anche consulente energetico CasaClima. Appassionato di sostenibilità ed efficienza energetica nell’edilizia, si è specializzato nella progettazione, direzione lavori e ottimizzazione dei processi di costruzione e restauro di edifici in muratura e legno. È fondatore e socio di DIPIÚ STUDIO, dove continua a innovare nel campo della progettazione architettonica sostenibile. Nel corso della sua carriera, ha gestito con successo numerosi progetti di edifici residenziali e commerciali. Tra i servizi offerti dallo studio vi sono consulenze energetiche, audit energetici, progettazione di interni ed esterni e soluzioni su misura per la realizzazione di edifici confortevoli e sostenibili. Ha svolto docenze per CQ-Quality Building, approfondendo i temi della corretta progettazione dell’involucro edilizio.

Casa IV Novembre, Porto Viro (RO). Demoricostruzione con ampliamento di una villetta unifamiliare – Classe A4 nZEB.

Casa G. Falcone, Rosolina (RO). Nuova costruzione di una villetta unifamiliare – Classe A4 nZEB.

Il lungo corridoio della zona notte e servizi. L’ingresso all’abitazione.

Photo
Photo
Altri progetti
Photo
Ph. Alessandro Ruzzier

Dalz Architettura Un progetto per il territorio

Recuperare un edificio con una memoria storica definita adeguandolo ai requisiti prestazionali e normativi odierni ha rappresentato l’occasione per riflettere sul ruolo che l’architettura contemporanea deve avere quando si approccia a un progetto di riqualificazione e per ripensare ai materiali tradizionali e alle tecniche locali con l’obiettivo di rileggere il passato in un’ottica futura

Una delle principali sfide a cui l’architettura contemporanea deve dare risposta mediante azioni concrete consiste nella modalità di intervento nei contesti storici, superando la preoccupazione del rapporto e del contatto che si creano tra il nuovo e l’esistente quando si approccia un progetto di recupero. Il riuso e la riqualificazione urbana e architettonica, associati a metodi operativi come l’aggiunta, la sottrazione e l’innesto, rappresentano sempre di più i temi attorno ai quali ruota lo sviluppo sostenibile del territorio. Al contempo, operare in un ambito costruito significa riconoscere i valori storici e sociali di ciò che è stato e di ciò che è, al fine di individuare azioni future, compatibili sia con le mutate modalità dell’abitare sia con la naturale evoluzione storico-culturale del patrimonio edilizio al fine di definirne la ricchezza e il fascino. Questa premessa risulta necessaria poiché da tali presupposti prende vista il progetto di “La casa della Loli”, in cui il rispetto per la tradizione vernacolare, l’innovazione architettonica e il contenimento dei consumi hanno concorso a realizzare un edificio moderno, confortevole e a energia quasi zero.

Il rapporto del nuovo ballatoio con gli elementi della tradizione architettonica locale.

L’edificio oggetto di ristrutturazione appartiene alle compatte cortine edilizie che affacciano sulle vie dei centri storici della pedemontana friulana e che celano al loro interno spazi e volumi inaspettati; oltrepassando i loggiati, infatti, si aprono aree verdi a misura d’uomo, tracce di vecchi orti, piccoli fabbricati destinati un tempo al ricovero degli animali da cortile e manufatti in pietra abbandonati dall’alto valore architettonico e culturale. L’architettura sulla quale sono intervenuti i progettisti –una delle poche ancora rimaste inalterate a seguito della insensibile ricostruzione post sisma del 1976 – ha indirizzato fin da subito il programma di intervento, a partire dalla salvaguardia della memoria della preesistenza, evitando di intraprendere ambigui recuperi che riprendono superficialmente gli stili tradizionali sfociando nel folclore e in finte prassi precostituite. Il fabbricato esistente è frutto dell’aggregazione di due edifici in pietra costruiti in epoche diverse: il primo, destinato ad abitazione, presumibilmente risalente alla fine del Settecento e presente nella mappa del

Progetto architettonico

arch. Ermes Povoledo – Dalz Architettura, Montereale Valcellina (PN)

Strutture

ing. Marco Pujatti, Prata di Pordenone (PN)

Direttore dei lavori

arch. Ermes Povoledo

Certificazioni

• classe A4 – APE FVG

catasto Austro-Italiano del 1861, il secondo databile ai primi anni del Novecento e destinato a stalla e fienile. In vista del progetto di riqualificazione, tutto l’edificio è stato pertanto oggetto di un’accurata analisi filologica, che ha portato a utilizzare materiali, finiture e gradazioni di colori compatibili con l’esistente, a consolidare la struttura, a riconsiderare la disposizione di alcuni spazi e a efficientare l’involucro dotandolo di un’impiantistica adeguata al fine di consumare meno energia possibile. La rivitalizzazione di questa architettura, inoltre, ha rappresentato un’azione virtuosa, in grado di contenere il consumo di suolo, garantire la sicurezza della comunità – ad esempio per quanto riguarda la vulnerabilità sismica – e scongiurare situazioni di degrado con ricadute negative, oltre che sulla perdita della memoria dei luoghi, sulla qualità urbana e sull’abbandono di queste zone. Il progetto “La casa della Loli” ha pertanto permesso di riattivare un ambito del centro storico disabitato, riportandolo alla vivacità che un tempo caratterizzava tali luoghi.

Consulente

arch. Giorgia Liut – Dalz Architettura, Montereale Valcellina (PN)

Impianti

ing. Barbara Cassan, Rauscedo (PN)

Appaltatore

Toffolon Costruzioni S.r.l., Cinto Coamaggiore (VE)

Superficie utile

62,35 m2

Fabbisogno energia per riscaldamento

EP gl, nren 0,86 kWh/m2 anno

Emissioni di CO2 0,19 kg/m2 anno

Planimetria generale
Prospetto ovest
Prospetto sud
Sezione BB
Sezione AA
Piano terra
Piano primo
Piano sottotetto
Prospetto nord
Prospetto est

Stato di fatto e obiettivi progettuali

L’abitazione originaria, ospitata nel corpo più basso del fabbricato, era composta da due piani fuori terra con una scala esterna che consentiva l’accesso al piano superiore, mentre il corpo di destra, pur essendo anch’esso di due piani fuori terra, risultava più alto in quanto il primo livello era caratterizzato da una doppia altezza utilizzata come fienile. In facciata, infatti, c’era traccia della presenza di due ballatoi in legno, posti a quote diverse e impiegati per la movimentazione del fieno. La struttura è costituita da muratura in pietra, a vista nel corpo della stalla e intonacata nell’abitazione; tale caratteristica –l’associare una determinata finitura alla funzione del manufatto – rappresenta un aspetto diffuso nei centri storici rurali della pedemontana e dell’arco alpino friulano. Pertanto si è deciso di mantenere tale differenza, così da preservarne il carattere storico anche se con funzione interna mutata, e di ripristinare il collegamento tra i due corpi di fabbrica mediante un grande portale che

amplifica la percezione dello spazio, sfruttando la doppia altezza del corpo di destra per ricavare un secondo piano senza alterare le sagoma.

L’intervento più significativo sulle facciate è stato la sostituzione dei ballatoi in legno, in quanto non recuperabili; l’antico “paiol” (ballatoio) è stato infatti reinterpretato usando sottili piatti in acciaio ed è stato esteso anche nella restante porzione dell’abitazione al fine di bilanciare la composizione dei volumi a seguito della rimozione della scala esterna in legno. L’utilizzo di piatti in acciaio ha creato una facciata che muta a seconda del punto di osservazione: da una vista frontale, gli esili piatti tendono a scomparire, scarnificando la nuova aggiunta, mentre lateralmente lo spessore delle lame dà forma a un volume più compatto. La presenza nella stessa corte di un fabbricato che, seppur rimaneggiato nel tempo, conserva la presenza di alcuni ballatoi in legno, definisce un’occasione di confronto con la nuova architettura.

Due immagini dell’edificio esistente affacciato a sud con il corpo abitativo intonacato, a sinistra, e quello destinato a fienile/stalla in pietra a destra.
Schemi comparativi sul prospetto sud e in sezione
Vista notturna e di dettaglio del prospetto principale; il rapporto dell’edificio riqualificato con il contesto storico e un dettaglio del ballatoio metallico.
Photo
Dalz
Architettura
Photo
Photo

La nuova abitazione

La sfida progettuale è stata quella di ricavare un’alloggio funzionale all’interno di un piccolo fabbricato che risulta ormai distante dagli abituali standard dell’abitare. Gli spazi ottenuti riportano a un legame più intimo tra uomo e architettura e, al contempo, a un abitare essenziale. Il nuovo edificio riqualificato ospita la zona giorno al piano terra, mentre le camere e il servizio igienico sono sistemate ai piani superiori. I vari livelli sono collegati da una scala interna in carpenteria metallica che è stata inserita nel corpo di destra. La

Il salotto e la zona pranzoal piano terra.

verticalità degli elementi in ferro del ballatoio esterno viene riproposta anche nel parapetto della scala che diventa un vero e proprio volume con un ruolo dominante nello spazio interno. Un richiamo alla vecchia scala esterna in legno, che appoggiava su uno zoccolo in pietra permettendone uno stacco dal terreno, è il basamento in calcestruzzo levigato a cui si àncora la nuova rampa e che rimette in gioco il confronto tra il diverso peso della materia degli elementi che costituiscono la scala.

Photo

In alto la scala interna al piano terra con il basamento in calcestruzzo levigato; sotto, la camera al primo piano e lo studiolo ospitato nel sottotetto.

Photo © Ph. Alessandro Ruzzier
Photo

Solaio interpiano (C) dall’estradosso

- pavimento in prefinito (14 mm)

- massetto autolivellante (20 mm)

- pannello radiante (35 mm)

- telo in nylon

- tavolato in legno (25 mm)

- lana di roccia posata tra listelli (30 mm)

- freno vapore

- tavolato in abete a spigolo vivo (30 mm)

- trave in legno (120x160 mm)

Solaio contro terra (D) dall’estradosso

- pavimento (15 mm)

- massetto autolivellante (20 mm)

- pannello radiante (35 mm)

- sottofondo alleggerito (100 mm)

- telo in polietilene a giunti nastrati

- isolante in XPS (100 mm) a bordi battentati

- cappa in c.a. su vuoto sanitario (50 mm)

- vuoto sanitario con elementi prefabbricati (250 mm)

- magrone di livellamento (100 mm)

Copertura (A) dall’esterno

- manto in coppi

- guaina bituminosa adesiva

- tavolato grezzo (20 mm)

- listello per ventilazione (40 mm)

- telo impermeabile/ traspirante

- tavolato grezzo (25 mm)

- controventatura in nastro forato

- lana di roccia interposta tra travi (80+80 mm)

- lana di roccia in continuità (20/30 mm)

- freno vapore

- tavolato in abete piallato (20 mm)

Parete esterna (B) dall’esterno

- muratura in pietra

- pannello in poliuretano espanso rigido (50 mm)

- lana di roccia (50 mm) posta tra montanti

- doppia lastra in cartongesso

1 cordolo in c.a. (200x250 mm)

2 trave in legno esistente

3 angolare 75x100x8 collegato su innesto puntuale in cls con barra filettata iniettata con resina

4 architrave in c.a. esistente

5 fondazione in c.a. protetta con guaina in polietilene

L’involucro

La necessità di dotare il fabbricato di un involucro altamente performante sotto il profilo della coibentazione ha orientato le scelte progettuali verso una tecnologia a secco posta verso il lato interno, che funge anche da cavedio di distribuzione per gli impianti, mantenendo inalterata la struttura originaria; un’ipotetica rimozione dell’involucro interno permette infatti di

riportare l’architettura alla sua essenza.

Gli interventi di carattere strutturale hanno consentito di assolvere alla normativa antisismica, preservando il più possibile la struttura in pietra esistente; le parti lignee, invece, sono state sostituite in quanto pesantemente degradate a seguito delle infiltrazioni d’acqua dalla copertura parzialmente crollata.

Gli impianti

Le complessità che emergono nell’operare negli spazi articolati dei centri storici hanno permesso, in questo caso, di definire un forte connubio tra architettura e indipendenza energetica; la difficoltà di accesso alle reti impiantistiche ha privilegiato dunque l’utilizzo di una sola fonte energetica grazie all’installazione di un impianto fotovoltaico da 6 kW con batterie di accumulo da 10 kW che rende autosufficiente il fabbricato.

L’abitazione è dotata di una pompa di calore da 6 kW, con unità interna munita di accumulo integrato da 210 litri posizionata nel piccolo locale tecnico ricavato nell’annesso di fronte all’abitazione; l’unità esterna è stata collocata in prossimità.

L’impianto radiante a pavimento con un collettore per piano fornito di testine elettrotermiche assicura il comfort invernale; per la climatizzazione estiva è prevista la sola predisposizione dello split idronico.

Dalz Architettura

La relazione tra luogo e architettura, la reinterpretazione degli elementi compositivi e l’utilizzo di materiali della tradizione architettonica locale, nonché uno stretto legame tra spazio e necessità funzionali rappresentano la filosofia di Dalz Architettura: un contenitore di idee e progetti rivolti alla produzione di un’architettura di qualità e alla valorizzazione del paesaggio. Il team è composto dagli architetti Ermes Povoledo (1985) e Giorgia Liut (1987) laureati nel 2013 all’Università di Trieste con una tesi in composizione architettonica per il Parco archeologico di Siracusa. Da sempre attenti al legame tra architettura e luogo, gli architetti operano con grande attenzione alla composizione architettonica e al dettaglio.

Casa FE, Aviano (PN), 2021-2022. Demolizione e ricostruzione di fabbricato residenziale. Edificio ad alta efficienza energetica e totalmente a funzionamento elettrico.

Casa MC, Montereale Valcellina (PN), 2018-2019 Ristrutturazione di un fabbricato residenziale attraverso la ridefinizione degli spazi interni, l’efficientamento energetico e la riconfigurazione del primo piano con un nuovo volume con struttura in legno.

Dettaglio della scala e della trave recuperata dalla struttura esistente al secondo piano.

Photo © Dalz Architettura
Photo © Ph. Alessandro Ruzzier
Photo
Ph. Alessandro Ruzzier
Uno scorcio del salotto e della scala al piano terra.
Photo
Mattia Carraro

Andrea Penello Una casa di personalità

Campolongo Maggiore (VE)

Primo intervento di riqualificazione di un’area che ospitava edifici ormai fatiscenti, questa casa si caratterizza per i riferimenti all’architettura vernacolare e per le soluzioni di involucro e impiantistiche che hanno permesso

l’ottenimento della certificazione CasaClima Gold, garanzia di un alto livello di comfort interno con ridottissimi costi di gestione.

Trovano radici nel rigoroso rispetto della tradizione costruttiva del luogo la forma e il linguaggio contemporaneo che caratterizzano questa villa indipendente in cui i rifermenti all’architettura vernacolare emergono con chiarezza. Proponendosi come primo intervento di riqualificazione urbanistica della zona, l’abitazione è armoniosamente inserita nel territorio della provincia di Venezia quale risultato di una demolizione di casolari e magazzini fatiscenti ricostruiti in un’area più ampia. Lo spostamento del volume ha reso possibile in fase progettuale la realizzazione di una casa che ricava dalle proprie peculiarità architettoniche il massimo dei vantaggi in termini di risparmio energetico, di apporti gratuiti interni ed esterni e di illuminazione naturale in ogni stagione. L’obiettivo iniziale, infatti, era perseguire uno standard costruttivo finale equivalente a quello di un edificio passivo, in grado di creare condizioni di benessere abitativo e di comfort con bassissimi costi di gestione o che addirittura portasse l’abitazione stessa a diventare “attiva” nel bilancio termico annuo.

Le alte prestazioni raggiunte dal fabbricato sono da ricercarsi nell’involucro, nell’impiantistica adottata e nella corretta progettazione bioclimatica. A partire dalla tecnologia costruttiva adottata per questa abitazione – una muratura monostrato in blocchi calcestruzzo cellulare autoclavato a tamponamento della struttura a telaio in calcestruzzo armato –, si è prestata grande attenzione ai ponti termici, corretti mediante l’utilizzo di un pannello isolante in idrati di silicati di calcio. La copertura a due falde con struttura in legno lamellare è stata coibentata con fibra di legno, mentre per l’isolamento del solaio controterra sono stati utilizzati pannelli in XPS; i divisori interni sono stati realizzati in continuità con l’involucro esterno in muratura c.a.a. Gli infissi sono in legno-alluminio con triplo vetro basso emissivo, posati su monoblocchi coibentati sui quattro lati. Infine, sono stati applicati pannelli di sughero

a vista sulla zona sotto portico che, oltre a garantire un elevato livello di comfort termoacustico, dona personalità all’abitazione impreziosendone l’involucro.

La casa si sviluppa su due livelli fuori terra: il piano terra accoglie la zona giorno e il living mentre il piano primo ospita lo spazio privato delle camere da letto e dello studio.

Al fine di limitare gli apporti termici dovuti alla radiazione solare nel periodo estivo, tutti gli ambienti sono stati schermati e, in particolare, la zona living utilizza come protezione una pergola bioclimatica a ovest e a sud un porticato, la cui altezza e profondità sono state studiate per favorire l’irraggiamento solare nella stagione invernale e ostacolarne il passaggio in estate.

L’elevatissimo risparmio energetico e l’altissimo grado di comfort sono testimoniati anche dalla certificazione CasaClima Gold ottenuta al termine dei lavori.

Vista da sud est dell’abitazione con l’ampia finestra affacciata sul portico.

Progetto architettonico, Sicurezza, D.L. e Consulente CasaClima geom. Andrea Penello – lab.21, Campolongo Maggiore (VE)

Collaboratore tecnico geom. Andrea Agnoletto, Campolongo Maggiore (VE)

Impianti ing. Aurelio Brunello, Conselve (PD) Strutture e Geologo ing. Simone Martin, Padova

Progetto illuminazione arch. Claudia Bettini, Dolo (VE)

Certificazione

• CasaClima Gold

Appaltatore

Ghiraldo SNC, Vigonovo (VE) Lavori

settembre 2021-ottobre 2022

Superficie Utile 192,00 m2

Trasmittanza media pareti esterne 0,146 W/m2 K

Trasmittanza media solaio contro terra 0,126 W/m2 K

Trasmittanza media copertura 0,116 W/m2 K

Trasmittanza media superficie trasparenti

Uw installata < 0,97 W/m2 K

Fabbisogno energia per il riscaldamento 8 kWh/m2 anno

Photo © Mattia Carraro
Pianta piano terra
Pianta primo piano
Sezione BB
Sezione AA
Prospetto ovest
Prospetto est
Prospetto sud
Prospetto nord
Sezione CC
Pianta copertura

Il comfort

I materiali e le tecnologie costruttive impiegate nell’edificio sono state scelte al fine di ottenere un elevato grado di comfort e salubrità indoor. Uno degli aspetti fondamentali per prevenire possibili patologie dovute a inquinanti esterni o prodotti dall’attività umana è infatti la qualità dell’aria all’interno dell’abitazione. L’impianto di VMC è pertanto dotato di un dispositivo di sanificazione dell’aria e delle superfici interne

delle condotte, in quanto nei sistemi di distribuzione dell’aria si sviluppano inquinanti batterici e chimici che vengono poi trasportati dal flusso dell’aria negli ambienti di vita della casa. Il sistema, con tecnologia avanzata al plasma freddo, elimina in questo caso batteri, muffe, virus, inquinanti chimici, odori e VOC, garantendo la decontaminazione batterica dei canali d’aria dell’impianto di ventilazione meccanica.

Viste da sud e ovest con la pergola bioclimatica e il portico, sulle cui falde è stato installato l’impianto fotovoltaico. La parete affacciata sul portico è rivestita da pannelli sughero lasciato a vista.
Photo © Mattia Carraro
Photo © Mattia Carraro
La zona giorno, un ambiente unico che si prolunga sul portico; uno scorcio della zona cucina e la camera da letto per i piccoli di casa.
Photo
© Mattia Carraro
Photo © Mattia Carraro
Photo © Mattia Carraro

La tenuta all’aria

La tenuta all’aria è uno dei fattori basilari in un edificio certificato CasaClima ed è un elemento fondamentale per garantire il mantenimento dell’efficienza energetica, l’assenza di condense interstiziali e la durabilità delle strutture. Un involucro ad alte prestazioni con una ottimizzazione bioclimatica permette infatti di rinunciare a un impianto di riscaldamento tradizionale e di sostituirlo con un impianto tutt’aria. Per questo motivo, in fase di progettazione esecutiva e poi in fase costruttiva, è stata riservata grande attenzione a tutti i nodi costruttivi, alla posa degli infissi, all’installazione degli impianti, alle nastrature e all’ap-

plicazione di pezzi speciali per i passaggi di sfiati e corrugati. Nella realizzazione dell’involucro ha giocato un ruolo da protagonista la muratura monostrato in c.a.a. che garantisce una tenuta all’aria ottimale, anche dove i blocchi subiscono lavorazioni per le tracce impiantistiche che, eseguite nel blocco pieno, non creano canali d’aria e non richiedono quindi interventi correttivi per ripristinare la tenuta dell’involucro. Al termine dei lavori è stato effettuato il Blower Door Test raggiungendo un ottimo risultato n50 di 0,32 h-1, dimezzando il limite richiesto per la certificazione di una CasaClima Gold.

Attacco a terra

Solaio contro terra (A) dall’estradosso

- pavimentazione interna (15 mm)

- massetto cementizio (50 mm)

- barriera al vapore

- massetto alleggerito per passaggio impianti (200 mm)

- isolamento in XPS (160 mm)

- platea di fondazione (350 mm) idrofobizzata

- magrone (100 mm)

1 guaina impermeabilizzante esterna

2 pannello in idrati di silicati di calcio (160 mm) per correzione ponte termico lato interno

3 tavella in c.a.a. (50 mm) per correzione ponte termico lato interno

4 fascia perimetrale (6 mm)

5 pre intonacatura

6 guaina impermeabilizzante tagliamuro integrata nel letto di posa cementizio

Nodo solaio contro terra-parete: verifica del ponte termico agli elementi finiti

Attacco copertura – parete esterna

Copertura (A) dall’esterno

- manto di copertura

- listello per posa del manto (50x30 mm)

- controlistello

- membrana impermeabile

- triplo strato di fibra di legno (100+100+100 mm; 120 kg/m3)

- freno al vapore

- perlinato in legno (20 mm)

Parete (B) dall’esterno

- pittura minerale e rasatura armata (15 mm)

- telaio in c.a. e tamponamento in blocchi in c.a.a. (480 mm)

- intonaco interno (15 mm)

1 blocco in c.a.a.

2 pannelli in idrato di silicato di calcio, a misura e posati sfalsati

3 giunto elastico in materiale resiliente (20 mm)

4 tavella in c.a.a. sagomata

5 nastro auto espandente di tenuta all’aria

Nodo copertura-parete: verifica ponte termico agli elementi finiti

Nodo serramento

1 nastro adesivo traspirante

2 schiuma elastica

3 architravi ribassate in c.a.a.

4 davanzale in marmo (44 mm)

5 nastro adesivo butilico

6 4° lato monoblocco isolante con pendenza per davanzale

7 sottofinestra, armatura di rinforzo

8 nastro adesivo freno al vapore

9 monoblocco termoisolante

10 guarnizione a espansione

11 intonaco interno (15 mm)

Nodo parete-serramento: verifica ponte termico agli elementi finiti

Gli impianti

Altro obbiettivo del progetto era realizzare un’abitazione dotata di un’impiantistica semplice e snella. Con un involucro molto performante e avendo posto particolare attenzione alla tenuta all’aria, la soluzione scelta è stata quella di un impianto a tutt’aria nel quale la sola rete di distribuzione presente è costituita dai canali della ventilazione meccanica, coibentati in mandata e alimentati dal cuore pulsante della casa, un aggregato compatto all-in-one per i servizi di VMC, riscaldamento, raffrescamento e produzione di acqua calda sanitaria.

L’impianto è integrato da una unità canalizzata in

pompa di calore per la copertura dei carichi di picco invernali ed estivi e da uno ionizzatore al plasma freddo per la sanificazione dell’aria di rinnovo. Il primo contributo termico conferito all’aria in mandata è totalmente gratuito, grazie al pretemperamento geotermico con 200 metri di sonda geotermica orizzontale posata sotto fondazione che consente all’aggregato compatto di ridurre le fasi di sbrinamento e le inefficienze. Il secondo contributo gratuito deriva dall’impianto fotovoltaico da 12,80 kWp, installato sulle falde est e ovest del portico e integrato da due batterie di accumulo da 13,5 kWh/cad.

Geometra Andrea Penello

Lo Studio lab.21 opera nel campo della ristrutturazione di edifici a basso consumo energetico e nella progettazione di nuovi edifici passivi. L’obiettivo è proporre sempre un approccio moderno che pone massima attenzione alla sostenibilità, al risparmio energetico e al comfort mediante una progettazione integrata ed esecutiva. Lo studio offre servizi di analisi degli edifici mediante diagnosi termografiche e di consulenza energetica applicando nei propri progetti protocolli di certificazione quali CasaClima e Passivhaus. Il geometra Penello è Consulente CasaClima e Tecnico Ufficiale Biosafe.

Casa MG, Sant’Angelo di Piove (PD) – 2023. Nuova edificazione casa unifamiliare – Classe A4.
Casa ZP, Galzignano Terme (PD). 2022. Riqualificazione energetica villa unifamiliare – Da classe G a classe A4.
Andrea Penello
Photo © Mattia Carraro

Etica e innovativa

Inizialmente orientati verso un edificio tradizionale, i committenti di questa abitazione certificata Passivhaus hanno compreso e accolto la visione progettuale degli architetti che, rispondendo alle loro richieste di spazi ampi e luminosi per ospitare la collezione di quadri e oggetti antichi raccolti nei loro viaggi, hanno realizzato un edificio energeticamente efficiente con struttura in legno e tamponamento in ballette di paglia

Per realizzare una casa certificata Passivhaus i progettisti hanno condiviso con committenti, consulenti e imprese una visione etica del progetto e innovativa del costruire, mirata a massimizzare il contenimento dell’impatto ecologico e ambientale dell’edificio in ogni fase, dalla progettazione alla costruzione sino alla sua futura gestione. In questa abitazione si è cercato così di promuovere concretamente l’applicazione di soluzioni nuove ed energeticamente efficienti, senza prescindere dalla qualità architettonica dell’intervento edilizio e dal contesto all’interno del quale si inserisce. Inoltre, per la costruzione del fabbricato sono state scelte aziende e maestranze locali, in parte già esperte e in parte formate ad hoc mediante uno specifico corso sulle case passive, portando novità in un territorio tradizionalmente vocato al mattone. La casa, infatti, ha una struttura in legno e balle di paglia, come coibentazione delle pareti perimetrali, cappotto in fibra di legno e isolamento delle coperture in fiocchi di fibra di legno, intonaci di terra cruda e calce così da garantire traspirabilità e il mantenimento del corretto grado di umidità interna.

L’edificio sorge in zona collinare su un’area in pendenza, stretta e lunga, che ne ha vincolato l’orientamento, e si compone di un’autorimessa fuori terra in c.a. e pietra locale, posta fronte strada, alla

quale si integra a monte la parte abitativa, costituita da tre corpi di fabbrica di altezze differenti. Il volume principale a due piani è completamente rivestito da facciate ventilate di lastre di fibrocemento; gli altri hanno tetti a due falde e gronde in legno, tegole di ardesia, rivestimenti esterni in intonaco e pietra, serramenti in legno naturale e un porticato sul lato sud.

Dal punto di vista distributivo, al piano terra sono collocati l’ingresso, con accesso anche dall’autorimessa, il grande soggiorno e lo spazio pranzo, la cucina, il bagno di servizio, la dispensa/stireria, una camera

Progetto architettonico

arch.tti Marco Celeri e Claudia Capeti – CELERI ASSOCIATI

Studio di Architettura, Torre Boldone (BG)

Strutture

ing. Davide Pini, Bergamo

Direttore dei lavori

arch. Marco Celeri

Consulenza/assistenza Passivhaus

Zephir Passivhaus Italia, Pergine Valsugana (TN)

Certificazione

• Passivhaus Classic

da letto e la zona notte padronale con camera, cabina armadio e bagno privato. L’area giorno è a doppia altezza, con elementi di arredo fisso in cartongesso che creano pieni e vuoti e superfici studiate per ospitare le collezioni di oggetti d’arte dei committenti; le aperture del soggiorno e della cucina si affacciano a sud sul porticato, funzionale alla mitigazione degli apporti solari estivi. Il primo piano, invece, accoglie il soppalco affacciato sul soggiorno con l’angolo lettura, una camera con terrazza posta sopra l’autorimessa, un bagno, lo studio e i locali tecnici e di deposito.

Progettazione termotecnica

ing. Simone Giulianelli – Energi, Pesaro

Appaltatore

Impresa edile Rota Giampietro, Nembro (BG)

Carpenterie lignee e pareti di paglia

Punto Legno Snc, S. Giovanni Bianco (BG)

Superficie utile

270 m2

Trasmittanza media pareti esterne

0,112 W/m2K

Trasmittanza media solaio contro terra

0,152 W/m2K

Trasmittanza media copertura

0,095 W/m2K

Trasmittanza media superfici trasparenti

0,67 W/m2K

Fabbisogno energia per riscaldamento 14 kWh/m2 anno

Il fronte nord è caratterizzato da poche aperture e dai differenti materiali di finitura dei vari corpi edilizi.
Photo
© Andrea Ceriani Photography
Photo
© Andrea Ceriani Photography
In primo piano il regolare corpo di fabbrica dell’autorimessa, la cui copertura funge da terrazza per la camera al piano superiore, separa visivamente e acusticamente gli spazi abitati dal fronte strada.

1 ingresso

2 autorimessa

3 pranzo

4 soggiorno

5 cucina

6 disimpegno

7 bagno

8 camera da letto

9 cabina armadio

10 stireria / dispensa

11 locale tecnico

12 ripostiglio

Prospetto sud
Sezione AA
Sezione BB
Piano terra Piano Primo
Prospetto ovest

La tenuta all’aria

Elemento cruciale in tutti gli edifici è la tenuta all’aria dell’involucro che va garantita per evitare le dispersioni termiche e i problemi di muffe legati ai ponti termici. Negli edifici realizzati interamente con materiali naturali, un aspetto fondamentale è lo studio attento dei dettagli così da impedire, a causa di dispersioni localizzate, fenomeni di condensa interstiziale ed eventuali problemi di marcescenze. In questa abitazione, dove la tenuta all’aria delle pareti in legno e balle di paglia caratterizzate da forte permeabilità al vapore è demandata allo strato di intonaco interno in terra cruda o calce, è indispensabile utilizzare materiali di raccordo specifici tra l’intonaco e i teli di tenuta o i componenti di fondazione. Gli elementi di tenuta all’aria devono essere privi di interruzioni e discontinuità nell’intero volume riscaldato; il tutto da verificarsi rigorosamente in opera, sia in fase di rustico sia a struttura finita, mediante l’esecuzione del Blower Door Test secondo lo standard Passivhaus che prevede un n50≤ 0,6h-1

Vista da sud con i volumi di differente altezza dell’abitazione caratterizzati dai diversi rivestimenti (lastre di fibrocemento, pietra, intonaco).
Il fronte sud con il porticato, su cui si affacciano il soggiorno e la cucina e che mitiga gli apporti solari estivi, e l’affaccio sulla strada principale, dove è stata collocata l’autorimessa.

La paglia come materiale da costruzione

Le ballette di paglia, oggi generalmente sostituite dalle rotoballe e da balloni di grande formato, fino a pochi anni fa erano il modo per spostare la paglia a mano, in pezzi di peso contenuto e impilabili tra loro. In un edificio sostenibile, la soddisfazione è grande quando un materiale praticamente di scarto come la paglia in ballette diventa un materiale importante per la costruzione, tanto da costituire la maggior parte del volume dei muri perimetrali dell’edificio, come è accaduto in questa abitazione.

La casa, infatti, è caratterizzata da una struttura intelaiata in legno, tamponata interamente con ballette di paglia della misura di 35x45x90/120 cm, precostruita in falegnameria e successivamente trasportata e montata in cantiere come quella di un normale edificio prefabbricato in legno, con tutte le accortezze del caso rispetto all’esposizione agli agenti atmosferici.

La realizzazione delle pareti in legno e paglia in falegnameria; un particolare delle pareti montate su travi radice isolate; dettaglio delle pareti in costruzione.

Solaio interpiano (A) dall’estradosso

- pavimento (15 mm)

- lastra in fibrogesso (20 mm)

- isolamento di fibra di legno (10 mm)

- sottofondo in miscela granulare

e cemento (190 mm)

- solaio in X-lam (140 mm)

- isolamenti in fibra di legno (200 mm)

- intonaco (10 mm)

1 correnti in legno (140x120 mm)

2 poliuretano (20 mm)

3 guaina a freddo (2 mm)

4 XPS (200 mm)

5 isolante in fibra di legno

6 correnti in larice (140x100 mm)

tassellati alla fondazione

7 pannello di vetro cellulare (80 mm) rasato lato inferiore

8 TNT

9 ghiaia di vetro cellulare (400 mm)

10 magrone

11 pavimento galleggiante su piedini

12 caldana rivestita da guaina (pendenza 3%)

13 massicciata materiale drenante

L’isolamento in ghiaia di vetro cellulare sotto fondazione; una vista del cantiere con il montaggio delle pareti; l’interno prima dell’intonacatura e una fase della stesura degli intonaci in terra cruda e calce.

1 trave di banchina in lamellare sagomata (120x200 mm)

2 pannelli in fibra di legno

3 correnti in legno per struttura parete (100x100 mm)

Copertura (A) dall’esterno

- pannelli fotovoltaici / copertura in lamiera grecata in alluminio

- listelli (50x40 mm) per fissaggio copertura in lamiera grecata

- pannelli ossido di magnesio

- ventilazione con listoni (50x40mm)

- manto impermeabile esterno

- assito (25 mm)

- fibra di legno (19 mm)

- struttura lignea di copertura con travi ad anima sottile e fibra di legno insufflata

- assito (25 mm)

- travetti lamellare (120x160 mm) ancorati a scomparsa a travi di banchina

- trave di banchina (140x200 mm)

Parete esterna (B) dall’interno

- intonaco in calce (25 mm)

- parete di elementi in legno con balle di paglia (360 mm)

- lastra di fibrogesso

- isolante in fibra di legno (60+40 mm)

- listoni

- facciata ventilata

- pannelli in fibrocemento

e delle nastrature; la zona notte padronale con la struttura del tetto a vista.

Vista complessiva del cantiere; insufflaggio della fibra di legno all’interno della struttura lignea della copertura; dettaglio dei teli

L’impiantistica

Per quanto riguarda l’approvvigionamento energetico di questa casa passiva, la sorgente prevalente è costituita dal sistema di pannelli solari fotovoltaici integrati nel rivestimento di copertura sul corpo principale. A integrazione degli apporti solari è stato realizzato un sistema a pompa di calore integrato con la ventilazione meccanica controllata, i cui collegamenti con l’esterno sono tubazioni sfocianti sotto la gronda sulla parete ovest del corpo intermedio e non visibili dagli spazi pubblici. L’unità esterna della pompa di calore è stata installata sulla terrazza sopra il box, in posizione non visibile dalla strada. La produzione di acqua calda sanitaria è demandata a una pompa di calore ad hoc. L’illuminazione naturale è garantita dalle ampie finestre cielo-terra e zenitali. Per quanto riguarda quella artificiale, la casa dispone di apparecchi illuminanti dal disegno pulito e minimale, quali faretti incassati nel controsoffitto e track-light bianchi collocati lungo i travetti della copertura, per consentire di mettere in luce in modo adeguato le opere d’arte collezionate dai committenti.

Sotto l’autorimessa e lo scivolo carrabile vi sono due vasche interrate in c.a., di cui una di laminazione delle acque di prima pioggia in conformità alla normativa regionale sull’invarianza idraulica, e l’altra, previa filtrazione, di raccolta e recupero delle acque meteoriche con riutilizzo per le cassette dei sanitari e l’irrigazione del giardino.

Nelle due immagini si possono notare le contro pareti e i controsoffitti necessari per il passaggio dell’impiantista della casa e, in particolare, le tubazione della ventilazione meccanica controllata e le bocchette della stessa VMC.

La zona giorno dell’abitazione è a doppia altezza e riceve luce naturale dall’alto dai due lucernari e dalla grande apertura verso il porticato. Elementi fissi di arredo caratterizzati da pieni e vuoti sono stati appositamente studiati per celare la parte impiantistica e per ospitare le collezioni di oggettistica e i quadri. A tal proposito, al fine di consentire la libera gestione espositiva delle superfici, garantendo un’ottima resistenza all’infissione dei chiodi, le pareti perimetrali in legno e paglia sono state rivestite con intonaco di calce invece che terra cruda; le superfici degli arredi fissi sono state rinforzate con doppia lastra, rasandole secondo i livelli di qualità più elevati per il massimo requisito visivo.

Photo © Andrea Ceriani Photography
Photo © Andrea Ceriani Photography

CELERI ASSOCIATI

L’arch. Marco Celeri, laureato in architettura presso il Politecnico di Milano, è fondatore con il padre dello studio CELERI ASSOCIATI, in cui si occupa di progettazione civile, industriale e di prevenzione incendi. È esperto in materia paesistico ambientale, professionista antincendio, Passive House Designer e appassionato di permacultura. Negli anni, ponendo sempre maggiore interesse verso un sincero approccio etico alla vita, sia verso l’ambiente sia nei rapporti sociali, ha unito all’animazione di gruppi e alla sostenibilità energetica l’impiego dei materiali naturali come paglia, terra cruda, calce e canapa nella realizzazione dei progetti sviluppati. Laureata in architettura presso il Politecnico di Milano e dopo un periodo di collaborazione in alcuni studi di architettura bergamaschi presso cui matura esperienza nell’ambito della progettazione architettonica e progettazione d’interni, in campo urbanistico e nell’organizzazione di mostre, convegni e seminari, l’arch. Claudia Capeti è libero professionista e collabora con CELERI ASSOCIATI, occupandosi di progettazione edilizia, architettura d’interni e di spazi pubblici verdi. È Certificatore energetico iscritto presso l’albo della Regione Lombardia.

Altri progetti

Edifici residenziali plurifamiliari, Paladina (BG), 2011. Nuova costruzione di due edifici gemelli e di un parco pubblico in piano attuativo.

Il soppalco, non ancora arredato, illuminato dalle finestre zenitali e dai faretti integrati nella struttura del tetto

La zona giorno in attesa degli arredi e delle collezioni dei proprietari.

Edificio residenziale esistente, Dalmine (BG), 2017. Nuova costruzione in ampliamento in legno e paglia.

Roberto Rossi Corrado Poggi Paolo Lanfranconi Il primo “benvenuto”

Finale Ligure (SV)

Una struttura in pietra del Quattrocento, risanata e riqualificata energeticamente, accoglie oggi

il B&B Ca’ del Buio, la prima struttura ricettiva ligure ad aver ottenuto la certificazione CasaClima Welcome. Soluzioni progettuali, materiali naturali e moderni impianti hanno permesso di conservare le caratteristiche e l’aspetto dell’antica casa garantendo al contempo comfort abitativo ai committenti e ai clienti.

Il progetto è stato premiato con il cubo d’oro ai CasaClima Awards 2024

L’efficientamento energetico di una struttura in pietra di Finale, la cui parte più antica risale al 1400, ha portato alla realizzazione di un Bed & Breakfast che può vantare la prima certificazione energetica e ambientale CasaClima Welcome in Liguria. I vincoli normativi, le richieste del cliente di rispettare il luogo con mantenimento del sito e la presenza di un progetto strutturale e architettonico già in corso hanno richiesto una progettazione energetica attenta e specifica da parte dello studio incaricato PLA; pur con le limitazioni appena descritte, il risultato ottenuto ha soddisfatto i requisiti del Protocollo CasaClima per i vari aspetti che sono stati analizzati: involucro, serramenti, impianti di riscaldamento ed energie rinnovabili. Iniziamo dall’involucro, dove per la coibentazione della copertura sono stati utilizzati materiali a base naturale, come la fibra di legno, mentre il discorso si fa invece più articolato per l’isolamento delle strutture verticali; è stato infatti eseguito un

cappotto nella sola parte a nord – in intercapedine e quindi non a vista – mentre sulla muratura perimetrale in pietra, che presenta uno spessore importante già di aiuto nel periodo estivo, si è provveduto a posare un termointonaco così da ottenere buone prestazioni anche in inverno. In alcune zone, sottomesse alla quota del B&B, si è intervenuti con intonaco osmotico.

La parte trasparente dell’involucro è stata completata con serramenti in legno a doppio vetro accompagnati dalle relative schermature solari, a volte interne con scuri per il rispetto del fabbricato, riservando una grande cura alla posa degli stessi in modo da poter garantire la massima tenuta all’aria, valore in seguito verificato con l’esecuzione di due Blower Door Test, durante i lavori e alla fine degli stessi. Così come richiesto dal protocollo di sostenibilità CasaClima

Vista da sud e complessiva del B&B e uno scorcio

Progetto architettonico, Strutture e D.L.

Studio Associato ing. Roberto Rossi e arch. Corrado Poggi, Genova

Consulente energetico arch. Paolo Lanfranconi – PLA, Genova

Impianti ing. Roberto Fraboni, Vallecrosia (IM)

Appaltatore

Impresa Edile Aleksander Goga, Finale Ligure (SV)

Superficie utile

Abitazione: 154 m2

B&B: 75 m2

Certificazioni

• CasaClima R

• CasaClima Welcome

Welcome, un occhio di riguardo è stato riservato all’utilizzo di materiali privi di sostanze nocive.

A completamento della riqualificazione, sono stati installati gli impianti di climatizzazione, una pompa di calore e la ventilazione meccanica controllata supportate dal fotovoltaico.

L’insieme di tutte queste soluzioni progettuali ha dato vita a un immobile che, pur conservando le sue caratteristiche e l’aspetto di un’antica casa in pietra, presenta elementi di involucro e impianti moderni che assicurano, oltre al risparmio energetico, il comfort abitativo sia ai proprietari sia ai clienti della struttura ricettiva.

Il progetto è uno dei vincitori dei CasaClima Awards 2024 quale “...modello di come si possa coniugare innovazione e sostenibilità con la conservazione storica”.

Trasmittanza media pareti esterne (termointonaco int.+cappotto est.)

0,17 W/m2K

Trasmittanza media pareti esterne (termointonaco int.)

0,83 W/m2K

Trasmittanza media pareti esterne (termointonaco int./est.)

0,33 W/m2K

Trasmittanza media solaio contro terra 0,17 W/m2K

Trasmittanza media copertura 0,18 W/m2K

Trasmittanza media superfici trasparenti 1,20 W/m2K

Prestazione energetica involucro per riscaldamento 55,24 kWh/m2

Photo credits© Carlo Lovisolo, Elena Infasceli, Paolo Bassetti e Paolo Lanfranconi

della struttura ricettiva da nord est.

Pianta piano seminterrato

Pianta piano terra

1 bagno

2 studio

3 soggiorno

4 ingresso

5 sala da pranzo 6 cucina

Planimetria generale

Pianta coperture

Pianta piano primo

camera 8 cabina armadi 9 portico

ripostiglio

locale disimpegno

Roberto Rossi, Corrado Poggi, Paolo Lanfranconi
©Studio Associato Ingegneria e Architettura Rossi e Poggi
©Studio Associato Ingegneria e Architettura Rossi e Poggi
©Studio Associato Ingegneria e Architettura Rossi e Poggi
©Studio Associato Ingegneria e Architettura Rossi e Poggi
©Studio Associato Ingegneria e Architettura Rossi e Poggi

Prospetto sud

Prospetto nord

Prospetto est

Prospetto ovest

Ca’ del Buio e CasaClima Welcome

La certificazione di sostenibilità CasaClima Welcome, ottenuta da Ca’ del Buio, si basa sulla certificazione di sostenibilità CasaClima Nature, che integra gli aspetti ecologici ed economici con quelli sociali, ed è dedicata alle piccole strutture ricettive. I protocolli identificano ambiti di valutazione, che riuniscono vari criteri riferiti alla sostenibilità, tra cui la riduzione del fabbisogno energetico dell’edificio per il riscaldamento e il raffrescamento, il comfort abitativo, il mantenimento del ciclo naturale dell’acqua, l’illuminamento, oltre all’impiego di materiali con un ridotto impatto ambientale. Un’altra caratteristica molto importante è la gestione dell’attività mirata a promuovere il benessere dell’ospite e dei collaboratori, con particolare attenzione al comfort acustico e all’utilizzo di luce naturale. Una buona qualità

dell’aria nei locali in cui non solo si lavora ma ci si riposa, indipendentemente se per breve o per lungo tempo, è inoltre decisiva per il benessere e per la salute.

Per continuare a essere sostenibile, un immobile certificato CasaClima Welcome deve indispensabilmente prevedere un continuo controllo del consumo energetico e idrico, in quanto solo così è possibile verificare l’efficacia delle misure di risparmio ed effettuare le ottimizzazioni necessarie per ridurre i costi e contribuire alla tutela dell’ambiente. Un importante obiettivo è anche la riduzione della produzione di rifiuti, attuata facendo la raccolta differenziata, usando prodotti regionali e sensibilizzando collaboratori e clienti sugli obiettivi di sostenibilità.

La certificazione prevede una pre-certificazione e un aggiornamento ogni 5 anni della stessa.

©Studio Associato Ingegneria e Architettura Rossi e Poggi
Roberto Rossi, Corrado Poggi, Paolo Lanfranconi

Solaio contro terra (A) dall’estradosso

- pavimentazione in grès porcellanato (10 mm)

- massetto autolivellante a basso spessore (10 mm)

- pannello radiante (19 mm) accoppiato a pannello in EPS (200-5 mm)

- massetto (50 mm)

- barriera al vapore

- pannello in poliuretano espanso rigido (120 mm)

- pannello in lana di legno mineralizzata

- massetto

- vespaio areato

1 cartongesso (12,5 mm)

2 pannelli in lana di legno mineralizzata (20 mm)

3 blocco in laterizio (300 mm)

4 vetro cellulare

La nuova muratura divisoria posata su blocchi di vetro cellulare, i supporti isolati per i cardini delle imposte e il cappotto sulla facciata a nord.
Nodo pavimenti – muro divisorio

Lo stato della scala di collegamento con il portico prima degli interventi e la posa del termointonaco a calce all’esterno e all’interno in corrispondenza di un’apertura vetrata.

Parete esterna (A) dall’esterno

- lastra in pietra di Finale

- rasante impermeabilizzante (50 mm)

- pannello EPS (120 mm)

- collante (30 mm)

- muro esistente in pietra

- termointonaco a calce (120 mm est., 50 mm int.)

- rasante (5 mm)

Nodo muro esterno –solaio interpiano lato nord

Solaio verso portico (B) dall’estradosso

- pavimentazione

- massetto autolivellante a basso spessore (10 mm)

- pannello radiante (19 mm) accoppiato a pannello in EPS (300-5 mm)

- massetto (50 mm)

- riempimento volta in terriccio esistente

- volta in pietra esistente

- termointonaco a calce (10-30 mm)

- rasante (5 mm)

1 pannello in poliuretano espanso rigido (120 mm)

2 pannello in poliuretano espanso rigido (3 strati; spess. 120 mm, largh. 250 mm)

Roberto Rossi, Corrado Poggi, Paolo Lanfranconi

1 pannello EPS (80 mm)

2 rasante impermeabilizzante (50 mm) e collante (30 mm)

Nodo copertura a falde – copertura piana

Copertura piana (A) dall’esterno

- pavimentazione

- malta cementizia bicomponente elastica e impermeabilizzante

- sottofondo per pendenza

- cls armato (50 mm)

- pannello in poliuretano espanso rigido (120 mm)

- pannello in lana di legno mineralizzata (50 mm)

- barriera al vapore

- tavolato in legno (30 mm)

- travetti in legno

Copertura a falde (B) dall’esterno

- coppi

- listelli di ventilazione

- membrana traspirante e membrana punto chiodo

- isolante acustico (40 mm)

- pannello in lana di legno mineralizzata (50 mm)

- isolante in fibra di legno pressata (150-140 mm)

- membrana freno al vapore

- tavolato in legno

- travetto in legno

- trave in legno

VERIFICA TEMPERATURA SUPERFICIALE
T=19,4°
T=19,9°
La struttura del tetto a falde dell’abitazione, l’isolamento del nodo tetto piano-terrazzo e dettaglio della copertura ventilata della casa con rete parapasseri.

Gli impianti

Sulla base degli interventi di isolamento progettati e poi effettuati sull’involucro, è stato definito il relativo impianto di riscaldamento con pompa di calore e sistema emissivo a pavimento radiante; l’edificio non è dotato di impianto di raffrescamento.

Importante è stato anche l’inserimento della ventilazione meccanica controllata, sistema fondamentale in presenza di un involucro così performante e

l’impianto

al fine di utilizzare correttamente le risorse dell’immobile.

Sempre in ambito di risparmio energetico, tutti gli apparecchi illuminanti installati sono a bassissimo consumo e l’impianto fotovoltaico autoproduce l’energia necessaria alla struttura. Sono inoltre presenti un sistema di recupero delle acque piovane e un impianto di fitodepurazione.

radiante a pavimento, la verifica della

all’aria con il Blower Door Test, le pompe di calore dell’impianto di riscaldamento, il sistema di ventilazione meccanica controllata, il fotovoltaico installato su una pergola adiacente il B&B sotto la quale è posizionata la cisterna per il recupero delle acque piovane e la fitodepurazione.

Nelle immagini
emissivo
tenuta
Roberto Rossi, Corrado Poggi, Paolo Lanfranconi

Camera Ferro: le stanze hanno finiture che richiamano il carattere originale della struttura.

Camera Pietra: le finestre e le porte vetrate garantiscono ampie viste dell’ambiente esterno.

Architetto Paolo Lanfranconi

L’arch. Paolo Lanfranconi si occupa da più di 25 anni di nuove realizzazioni e di risanamenti con una progettazione incentrata sulla bioarchitettura e sul risparmio energetico, con particolare attenzione alla sostenibilità ambientale e indoor. Dopo il conseguimento di un master post-universitario in bioedilizia, è diventato Consulente Energetico CasaClima e tecnico di salubrità ambientale Biosafe. Dal 2010 ha ottenuto certificazioni CasaClima per vari progetti di nuovi edifici residenziali e a uso uffici (in classe Gold e A) e per il risanamento di diversi immobili esistenti (CasaClima R). La certificazione sull’efficienza energetica è sempre affiancata anche da quelle legate alla sostenibilità con protocollo Nature per le abitazioni e uffici e al protocollo CasaClima Welcome per le strutture ricettive. Dal 2013 l’attività di termografia e Blower Door Test, eseguiti come tecnico abilitato e con macchinari propri, sono ulteriori servizi di verifica della buona realizzazione di un edificio a basso consumo.

Edificio bifamiliare, Cogorno (GE), 2018. Nuova costruzione in legno – CasaClima Gold e Nature.

Unità immobiliare a uso uffici, Napoli (2013). Primo edificio certificato CasaClima R in Italia. Il progetto è pubblicato su azero 13.

Camera Legno: alcuni arredi richiamano l’ambito rurale in cui è inserita la struttura.

Roberto Rossi, Corrado Poggi, Paolo Lanfranconi

Adriana Labella Sospesa nel verde

Potenza

Risultato di una demolizione e ricostruzione, quest’abitazione si innalza sospesa sullo spazio verde, declinando criteri di sostenibilità, ecocompatibilità e bioclimatica. Una casa, realizzata con materiali naturali ed ecocompatibili a basso impatto ambientale, che reinterpreta il modello dell’abitazione rurale e ottimizza gli apporti passivi e attivi per garantire efficienza energetica, comfort e benessere

Sviluppato con criteri ecologici e bioclimatici, il progetto di questa casa unifamiliare è un’applicazione del Piano Casa in Basilicata. L’intervento, localizzato in un’area periurbana, ha previsto la demolizione di una piccola unità a schiera e la realizzazione di una nuova costruzione con spostamento di sagoma, per inedificabilità dell’area prevista dai vigenti strumenti urbanistici, e con possibilità di incremento volumetrico del 40% in applicazione di bioedilizia, miglioramento del 30% delle prestazioni energetiche, installazione di fotovoltaico e aumento dello spazio verde privato fino al 60%.

La progettazione della piccola abitazione è stata preceduta dalla fase di analisi bioclimatica, morfologica, biofisica e antropica dei luoghi. Lo studio bioclimatico del sito con i suoi elementi naturali (sole, vento, pioggia, umidità, orografia etc.) ha creato i presupposti per realizzare un’abitazione sospesa sul verde, così da ridurre l’impatto ambientale del costruito e garantire la totale permeabilità dell’area di sedime. Tale soluzione favorisce inoltre il naturale deflusso delle acque di scolo che potrebbero scivolare dal costone che sovrasta a ovest il volume. L’edificio asseconda la morfologia del lotto riducendo le operazioni di scavo ed evitando la costruzione di muri di sostegno in c.a., dal

Photo arch. Adriana Labella

forte impatto ambientale. Il posizionamento nella parte centrale del lotto allungato, più in basso rispetto al precedente, aiuta a migliorare significativamente le condizioni microclimatiche del nuovo volume e degli spazi esterni, oltre a renderlo più sicuro.

La casa reinterpreta il modello dell’abitazione rurale, organizzata su un unico livello con uno sviluppo lineare degli spazi interni ed esterni. Avvolto dalla compatta quinta attrezzata che affonda nel terreno a nord ovest, il volume ottimizza sia l’apporto solare passivo sia quello di tipo attivo a sud est, con la pensilina fotovoltaica sospesa che ombreggia lo spazio aperto aggettante in facciata mentre sulla parte alta della falda di copertura è disposto l’impianto solare termico. A sud est e nord est, il soggiorno open space si proietta sull’ampia area verde sottostante fino alla strada, protetto dal muro attrezzato che, solo in questo punto, si lascia attraversare, verso il pergolato sempreverde dell’ingresso fino alla passerella inclinata, a massimizzare la permeabilità visiva e fruitiva degli spazi aperti sospesi sul verde. A sud ovest la vista della montagna, prima incombente, si allontana definitivamente.

L’involucro è realizzato con materiali naturali ed ecocompatibili a basso impatto ambientale – gli isolanti utilizzati sono certificati per l’ecocompatibilità dei materiali e del processo produttivo – e i componenti rispettano i requisiti prestazionali minimi di isolamento termico definiti dalla normativa vigente.

Progetto architettonico

arch. Adriana Labella, Potenza

Collaboratrice

arch. Benedetta Vita, Potenza

Direttore dei lavori

arch. Adriana Labella, Potenza

Imprese appaltatrici

Rocco Palese, Potenza (lavori edili); Giambattista Pace, Potenza (impianti idrico-sanitario, termico ed esterni)

Superficie utile

49,73 m2

Trasmittanza media pareti

0,28 W/m2 K

Trasmittanza media solaio inferiore

0,282 W/m2 K

Trasmittanza media copertura

0,246 W/m2 K

Trasmittanza media serramenti

1,47 W/m2 K

in blu, i venti prevalenti invernali (tramontana da ponente)

in rosso, i venti prevalenti estivi (libeccio da ponente)

in nero, le barriere per il vento invernale

in rosso, le brezze estive per il raffrescamento naturale

sezione energetica estate/inverno

Studio dei venti sul lotto e sul volume
Photo arch. Adriana Labella
Photo
© Salvatore Taddonio
Prospetto sud est
Pianta piano terra
Prospetto ovest
Prospetto nord est
Prospetto nord ovest

L’involucro

Le pareti sono in muratura portante con blocchi cassero in legno cemento e isolamento integrato in sughero. Il metodo costruttivo con blocchi posati a secco soddisfa contemporaneamente le normative relative all’isolamento termico, all’inerzia termica, all’acustica e alla resistenza strutturale anche in zone sismiche, sfruttando al meglio le caratteristiche del calcestruzzo usato per il riempimento ed eliminando gli inconvenienti derivanti dall’uso della malta. Il solaio inferiore è in legno cemento con EPS grafitato, al fine di massimizzare le capacità di isolamento termico di questo componente opaco dell’involucro, risolvere il problema dei ponti termici e acustici, garantire la resistenza al fuoco, coibentazione termica e

isolamento acustico, giovandosi della maggior inerzia.

Gli unici sbalzi in c.a. sono stati rivestiti con pannelli in lana di legno, in continuità materica con il solaio.

La copertura in legno lamellare è ventilata e isolata con pannelli in lana e in fibra di legno, membrana permeabile al vapore dotata di una superficie metallizzata a bassa emissività che riflette il calore in estate e riduce la dispersione di calore in inverno.

Gli infissi sono in legno-alluminio con triplo vetro basso emissivo e ombreggiamento integrato a bassa manutenzione, costituito da lamelle orientabili in alluminio poste all’interno di un’anta apribile e completamente ispezionabile.

1 quinta a tutta altezza –muro attrezzato frangivento

2 pergolato sospeso sempreverde su ingresso

3 passerella inclinata in legno e acciaio

4 involucro opaco ad alta prestazione energetica

5 involucro trasparente in legno-alluminio e ombreggiamento integrato

6 impianti a basso impatto ambientale

7 pensilina fotovoltaica sospesa ombreggiante

8 solare termico integrato in copertura

9 recupero acque piovane per irrigazione giardino

10 giardino pensile inclinato a secco

11 controsoffito in vetro nel blocco servizi

Il controsoffitto in vetro nel blocco servizi.
L’ingresso a nord con il pergolato sospeso.
Photo arch.
Adriana
Labella
Photo arch.
Adriana
Labella

Il giardino pensile

Il declivio naturale del suolo ad alta permeabilità caratterizza anche l’area sottostante la costruzione con la platea di fondazione che è stata ricoperta e sistemata a “giardino pensile”. Per ridurre il dislivello del terreno retrostante, evitando impattanti muri di sostegno in c.a., e assicurare un ottimo isolamento della platea stessa, il giardino pensile è stato rialzato con il sistema di casseri in plastica riciclata e rete metallica, confinati da blocchi in cemento posati a secco. Il nuovo piano

inclinato è stato realizzato con strato drenante di argilla espansa protetto dal tessuto non tessuto, posato a secco. La finitura a ghiaietto di fiume dello strato finale, sul telo pacciamante garantisce ottime capacità drenanti e bassissima manutenzione, richiesti in particolare per l’area, la quale è praticabile solo per il controllo dei dispositivi connessi all’impianto fotovoltaico, alloggiati nella parte meno visibile della quinta muraria.

Alcune fasi della realizzazione del “giardino pensile” sotto la struttura: dalle fondazioni alla posa degli iglù e dei blocchi di cemento, sino alla stesura del tessuto non tessuto e del ghiaietto di fiume e l’inverdimento.

Copertura (A) dall’esterno

- manto in coppi (0,7 mm)

- controlistelli (40x40 mm)

- listelli (40x40 mm)

- guaina traspirante termoriflettente

- pannello in lana di legno (30 mm)

- fibra di legno pressata (100 mm)

- pannello in lana di legno (30 mm)

- tavolato

- travi in lamellare

Solaio (B) dall’estradosso

- pavimento con materiale riciclato

- massetto fibro-rinforzato ecocompatibile

- impianto di riscaldamento radiante

- isolamento integrato

- strato anticalpestio con risvolto

- massetto alleggerito per impianti

- strato di desolidarizzazione

- soletta strutturale in c.a.

- solaio in legno-cemento

- casseri in lana di legno a perdere

- rasatura e finitura

Solaio terrazza (C) dall’estradosso

- massetto e pavimento

- soletta strutturale in cls

- elemento ribassato (100 mm)

- isolamento in fibra di legno

- rasatura e finitura

1 pannelli fotovoltaici integrati nella pensilina

2 collettori solari

Demolizione dell’abitazione esistente; realizzazione del solaio con elementi in legno-cemento; costruzione delle pareti con elementi in legno-cemento; copertura lignea dall’interno e dall’esterno; completamento della pensilina fotovoltaica ombreggiante.

Impianti e FER

Il riscaldamento dell’abitazione è demandato a una caldaia a condensazione con emissione a pannelli radianti a pavimento con isolamento integrato e termo regolazione ambiente, mentre l’impianto elettrico a stella, nella zona notte, libera la parete della testata del letto dal passaggio di cavi elettrici.

Le acque piovane sono recuperate, filtrate e usate per l’irrigazione del verde; viste le ridotte dimensioni della casa, il sistema di raccolta delle acque piovane provenienti dalla copertura è stato realizzato con un serbatoio di accumulo di 3000 l, completamente interrato, la cui posizione massimizza la fruibilità dello spazio verde con possibilità di piantumazione.

A sud est, la pensilina sospesa integra i pannelli fotovoltaici, producendo energia elettrica e proteggendo l’edificio dalla pioggia e dalla radiazione estiva.

L’impianto fotovoltaico, connesso alla rete e con una potenza installata di 4,86 kWp, è costituito da 12 moduli monocristallini che coprono interamente la struttura in acciaio zincato della pensilina. L’impianto è predisposto per l’accumulo.

La casa è dotata anche di un impianto solare termico, posto in sommità della copertura, in posizione inclinata, compatto e meno impattante che, anche per la particolare disposizione, riprende quella della pensilina fotovoltaica; il sistema solare è prodotto da un’azienda della vicina Puglia.

Photo

Architetto Adriana Labella

L’approccio olistico e innovativo segna l’attività di tecnico bioedile dal 1999 dell’arch. Adriana Labella con studio a Potenza. Già docente a contratto UNIBAS di Composizione architettonica e Scientific Coordinator di progetti europei, autrice di libri, curatrice di scritti critici, è impegnata come esperto in bioedilizia.

I suoi lavori sono presentati come casi-studio in libri, cataloghi di mostre-convegno, tesi, pubblicazioni specialistiche e riviste di settore. La qualità dell’abitare sostenibile segna i progetti di recupero bioclimatico del patrimonio residenziale esistente integrato alla rifunzionalizzazione interna, di Social housing e Hospitality.

L’esaltazione della luce naturale, l’uso di materiali naturali e del verde integrato al costruito si coniugano agli obiettivi di efficienza energetica e comfort abitativo, per tutti, in rinnovati microcosmi di benessere emozionale.

Attico, Roma. Recupero energetico con materiali naturali e cool roof vegetale. Edificio scolastico P. Parisi e via F. Jura, Ginestra (PZ). Lavori di riqualificazione e messa in sicurezza dell’area di pertinenza.

Il progetto si è classificato al 3° posto al Premio di architettura Stefania Annovazzi – Energica-mente 2024

Il muro attrezzato rivolto a nord ovest con il balcone sospeso.

Adriana Labella

Vincenzo Guzzo Minimale ed efficiente

Segrate (MI)

Una nuova abitazione nZEB realizzata in X-lam è il risultato della demolizione e ricostruzione di una casa esistente molto energivora. Grazie agli incentivi fiscali previsti dall’Ecobonus 110% è stato possibile realizzare un edificio dalle ottime prestazioni energetiche con un volume, rigoroso e compatto, che si distingue per il colore bianco che esalta la vegetazione circostante e quella della prevista facciata verde lungo il lato lungo cieco

L’intervento di demolizione e ricostruzione di un edificio residenziale unifamiliare all’interno del Quartiere Ambrosiano a Segrate, quartiere che deve il suo nome alla presenza di una statua del Santo legata a sua volta all’epoca dei primi documenti storici del Comune (830 d.C.), ha portato alla realizzazione di un’abitazione dal volume rigoroso, minimale e compatto. Il fabbricato esistente era a un solo piano fuori terra, ospitante l’abitazione, e uno interrato dove era collocata la cantina con un’autorimessa e un ripostiglio adiacenti all’edificio sul lato nord. La piccola casa con sottotetto non abitabile è stata demolita e sostituita da un edificio di due piani fuori terra e uno interrato. L’intervento ha usufruito degli incentivi fiscali Ecobonus 110% e, grazie a tale forma di incentivazione, è stato possibile trasformare in modo completo ed efficace un immobile assai energivoro in un edificio nZEB.

Il nuovo fabbricato è stato progettato e costruito con tecnologia in legno X-lam, con facciate di tipo ventilato che garantiscono un elevato grado di isolamento sia in inverno sia in estate.

Photo arch. Vincenzo Guzzo

La copertura a due falde dell’abitazione, con inclinazioni diverse al fine di concentrare più superficie a sud da utilizzare per la localizzazione dell’impianto fotovoltaico di circa 12 kW, è in lamiera aggraffata di color grigio antracite.

La struttura e il trattamento materico delle superfici –i prospetti completamenti intonacati in colore bianco avorio e i serramenti in legno con finitura di color grigio chiaro – risultano moderni rispetto a quelli visibili nel quartiere in cui si colloca il nuovo manufat-

to. Nonostante ciò, il volume sobrio, pulito e compatto mantiene una certa linearità di linguaggio rispetto al contesto edilizio, altrettanto semplice, e si svela solo in parte e a seconda della stagione tra le alberature che insistono sulla via. Il contesto naturale viene inglobato dall’edificio stesso; mediante la progettazione secondo i principi BAF (Biotope Area Factor) sono stati previsti elementi, come la futura facciata verde, che renderanno il lato cieco più lungo dell’edificio un vero e proprio giardino verticale.

L’edificio esistente e il volume della nuova abitazione con i vuoti delle logge e dei porticati.

Progetto architettonico

arch. Vincenzo Guzzo – Studio Guzzo & Partners, Cinisello Balsamo (MI)

Strutture

ing. Maurizio Rizzi – TeknoLab & Design, Cinisello Balsamo (MI)

Direttore dei lavori

arch. Vincenzo Guzzo

Consulenti

arch. Savardi Daniele, arch. Ilaria Vanzulli – Studio Guzzo & Partners, Cinisello Balsamo (MI)

Appaltatore

Legno Camuna srl, Darfo Boario Terme (BS)

Certificazione

• Cened Lombardia

Superficie utile

130 m2

Trasmittanza media pareti esterne

0,18 W/m2 K

Trasmittanza media solaio contro terra

0,18 W/m2 K

Trasmittanza media copertura

0,20 W/m2 K

Trasmittanza media superfici trasparenti

1,00 W/m2 K

Photo arch. Vincenzo
Guzzo
Photo arch. Vincenzo
Guzzo

Volumetria e distribuzione

L’impianto dell’edificio è principalmente rettangolare, con alcuni vertici svuotati che diventano al piano terra dei porticati e al piano primo una loggia e un balcone. Entrando dall’ingresso principale si incontra la zona giorno e cottura aperta sul portico e sul giardino a sud e a est. Posto dietro l’ingresso, il corpo scala è collocato tra il soggiorno e l’angolo cottura ed è inserito in una nicchia cieca attraverso cui si accede al disimpegno, il quale si apre sul bagno e sullo studio; quest’ultimo mantiene un’entrata svincolata sul lato opposto a quella principale. Il piano primo accoglie la zona notte con due stanze da

letto e due bagni; la camera rivolta a est si sviluppa sul fronte corto e ha una sua loggia, mentre l’altra, affacciata a sud, occupa il lato più lungo e confina sull’affaccio corto con il balcone. Dal disimpegno, attraverso una botola, si accede al sottotetto non abitabile.

Lo scala conduce anche al piano interrato dove trovano posto la cantina, i locali tecnici e l’autorimessa.

I diversi locali sono ben illuminati grazie alla distribuzione planimetrica, all’esposizione a sud est e alle grandi vetrate della zona giorno che danno sul giardino e sui due porticati.

Copertura
Piano primo
Piano terra
Piano interrato
Prospetto nord
Prospetto sud
Prospetto ovest
Uno scorcio del lato sud, visto dalla strada di accesso.
Photo arch.
Vincenzo Guzzo
Prospetto est Sezione B-B
Sezione A-A

Parete (A) dall’esterno

- lastra in cemento alleggerito fibro-rinforzato rasata (15 mm)

- ventilazione di parete (50 mm)

- guaina per facciate ventilate

- isolamento in fibra di legno (130 mm)

- struttura in X-lam (100 mm)

- montanti in alluminio

- isolamento in fibra naturale (80 mm)

- doppia lastra in cartongesso (25 mm)

- rasatura

Pavimento contro terra (B) dall’estradosso

- pavimento (20 mm)

- sottofondo per passaggio impianti (150 mm)

- caldana (50 mm)

- isolamento (120 mm)

- iglù e cappa in cls (400 mm)

- platea di fondazione (300 mm)

- guaina bituminosa

- magrone

1 cassonetto frangisole (h 270 mm)

2 soglia finestra (30 mm)

Sezione verticale finestra – Nodo parete/cordolo

Lo scavo dopo la demolizione del fabbricato esistente; l’interrato realizzato in c.a; la struttura in X-lam.
L’ossatura in X-lam della casa coadiuvata da travi e pilastri in acciaio in corrispondenza di portici e logge; interno della struttura lignea in costruzione; l’impianto fotovoltaico sulla copertura metallica.

Architetto Vincenzo Guzzo

Laureato a Milano, dopo varie esperienze presso diversi studi apre la propria attività – STUDIO GUZZO & partner con sede a Cinisello Balsamo e a Berlino – iniziando la sua esperienza professionale anche con alcune collaborazioni presso pubbliche amministrazioni. Lo studio è composto da un team di professionisti in grado di garantire un servizio di consulenza a 360°, seguendo il committente in ogni aspetto del progetto. Ponendosi anche come unico referente per le molteplici discipline tecniche e i vari campi progettuali, lo studio coordina i diversi specialisti dei diversi settori della progettazione, trovando il giusto equilibrio tra scelte architettoniche ed esigenze normative. I settori di attività spaziano dalla progettazione architettonica, strutturale, impiantistica, dei giardini e degli spazi aperti alla progettazione urbanistica, piani insediativi, piani attuativi e architettura del paesaggio, sino all’interior design, sicurezza e coordinamento cantieri.

Residenza Vanvitelli 46, Milano, 2024. Demolizione e ricostruzione, certificazione CasaClima.

Residenza Domus Lignea, Cinisello Balsamo (MI), 2016. Nuova costruzione, certificazione Cened.

L’angolo sud est.

L’ingresso all’abitazione protetto dalla zona porticata.

Vincenzo Guzzo

LA TRANSIZIONE DEL PATRIMONIO

EDILIZIO COSTRUITO PASSA DA TORINO

OVAL Lingotto, Torino

Inquadra il QR code e scopri la 36ª edizione!

Area Expo Convegni Workshop Academy

Torna la 36ª edizione di Restructura: un evento imperdibile per i professionisti dell’edilizia, in programma dal 21 al 23 novembre negli spazi di Lingotto Fiere presso l’Oval, a Torino.

Quest’anno, la manifestazione si presenta completamente rinnovata con un’offerta ricca di convegni, workshop, momenti di networking e un’ampia area espositiva.

Restructura si conferma il luogo d'incontro per eccellenza dove aziende leader e professionisti del settore condividono le loro visioni e soluzioni all’avanguardia e si afferma così come un punto di riferimento irrinunciabile per tutti gli attori della filiera edilizia. Quest’anno, il focus principale sarà sul recupero sostenibile dell’ambiente costruito, un tema che Restructura ha saputo anticipare già da diverse edizioni, prima ancora che diventasse centrale nelle politiche europee e globali. Il rinnovamento dell’evento passa attraverso la valorizzazione dei temi che lo hanno reso un appuntamento chiave nel panorama fieristico nazionale. Rivolgendosi a un pubblico di tecnici e professionisti, Restructura propone un approccio integrato all’edilizia.

Con oltre 150 espositori saranno presenti i rappresentanti di tutta la

filiera: dai progettisti alle imprese di costruzione e gestione, dagli sviluppatori immobiliari fino agli amministratori di condominio e le aziende di prodotti. L’area espositiva offrirà una panoramica completa sul mondo dell’edilizia, con un focus particolare su materiali naturali innovativi, con un’attenzione speciale al legno, mezzi e sicurezza in cantiere, software, BIM e digitalizzazione.

A conferma dell’importanza di Restructura come hub di formazione e aggiornamento professionale, il palinsesto di quest’anno prevede oltre 70 eventi, molti dei quali con riconoscimenti dei crediti formativi per diverse categorie professionali, tra cui geometri, architetti, ingegneri, geologi e periti industriali. L’approccio sarà teorico, ma anche concreto, grazie alle aree per dimostrazioni pratiche che si aggiungono al Restructura Stage e alle altre sale che ospiteranno gli appuntamenti.

back page – Bullshit

testi e matita di Michele De Beni

Turn static files into dynamic content formats.

Create a flipbook
Issuu converts static files into: digital portfolios, online yearbooks, online catalogs, digital photo albums and more. Sign up and create your flipbook.