874 Patriotes, St-Mathias-Sur-Richelieu

Page 1


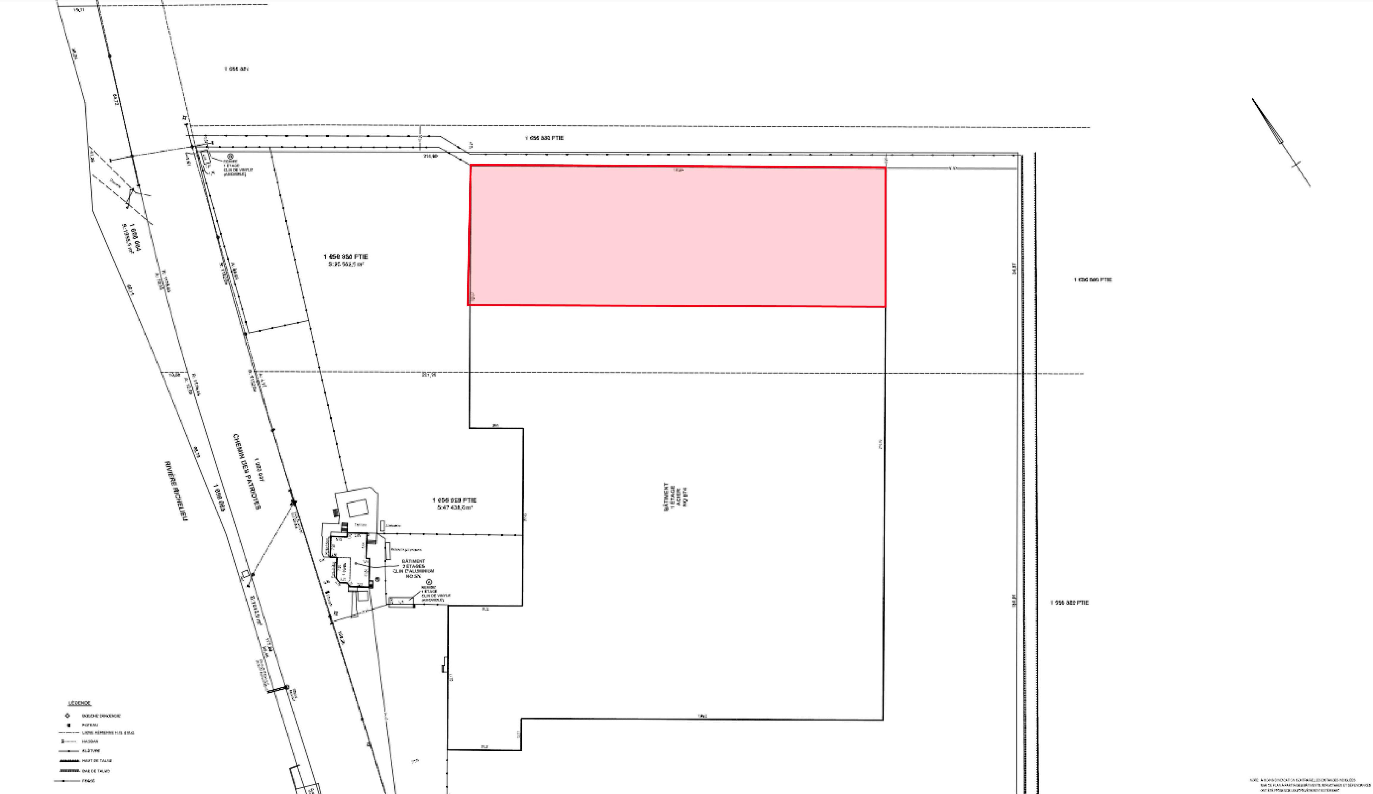
Espace industriel à louer

874 ch. des Patriotes, St-Mathias-Sur-Richelieu

16,00$ / pc triple net + TPS/TVQ

+/- 1,30$/pc nnements

Marine Sports

selon les 2025

essionnant, sa n fort potentiel partie (2PL ou grands axes stribution, tout ules lourds. Sa rents besoins e ou de gestion n situé, pensé

Mathias Sports & Mathias Marine forment une entreprise familiale québécoise de référence dans le domaine des sports motorisés et nautiques. Elle cumule plus de 30 ans d’expérience et s’est imposée au fil des années comme un véritableleaderauCanadaenvolumedeventes.

Reconnue pour sa solide réputation, l’entreprise se distingue par son professionnalisme, son approche humaine et la qualité de son service client. Que ce soit pour l’achat, la vente, l’entretien ou la réparation, Mathias offre un accompagnement complet, adapté aux besoins de chaque passionné.

Elleregroupedeuxpôlescomplémentaires:

Mathias Sports, spécialisé dans les véhicules motorisés terrestres : motos, VTT, côte-à-côte, motoneiges, motocrossetvélos.

Mathias Marine, expert en nautisme : embarcations, bateaux,pontonsetmoteurs.

L’entreprise collabore avec les plus grandes marques de l’industrie, telles que Polaris, Honda, KTM, CFMoto, Indian, Four Winns et bien d’autres. Ce vaste éventail de produits de qualité, combiné à l’expertise de l’équipe et à l’expérience client personnalisée, fait de Mathias une référence incontournable au Québec et au Canada dans l’univers des sportsmotorisés,autantsurterrequesurl’eau.

https://mathiassports.com

Plans

Zonage

- Grille des spécifications

Municipalité de Saint-Mathias-Sur-Richelieu

Située en Montérégie, à seulement 30 minutes de Montréal, Saint-Mathias-sur-Richelieu offre un emplacement stratégique pour les entreprises en quête d’accessibilité, de tranquillité et de potentiel de développement. Sa proximité avec les grands axes routiers (A10, A20, A30) facilite les déplacements vers la grande région métropolitaine, la Rive-Sud et les principaux centres économiques du Québec, ce qui en fait un point névralgique pour les activités commerciales, industrielles ou logistiques.

En plus de son positionnement géographique avantageux, Saint-Mathias se démarque par un environnement d’affaires favorable : un coût d’implantation inférieur à celui des zones urbaines, une main-d’œuvre locale qualifiée, ainsi qu’un cadre de vie paisible et sécuritaire, propice à la stabilité des opérations et à la rétention des employés. La municipalité est également reconnue pour sa collaboration avec les entreprises, son ouverture aux projets d’investissement et la flexibilité de son zonage.

Choisir Saint-Mathias-sur-Richelieu, c’est miser sur un territoire en croissance, bien desservi, offrant à la fois de l’espace, de la tranquillité et un fort potentiel d’expansion.

https://www.saint-mathias-sur-richelieu.org

Carte du te

À propos de Benoit

Je suis déterminé par l’idée de faire une différence, de m’impliquer et de faire croître les projets dans lesquels je m ’ engage. Je crois aux relations respectueuses, au travail bien fait et en l’atteinte de résultats

Cumulant bientôt 20 ans d’expérience et étant affilié à l’agence immobilière la plus réputée au monde, je peux affirmer être un atout précieux à quiconque voulant faire une transaction immobilière Mes clients sont soigneusement sélectionnés et j'accorde une grande importance à bâtir des relations d'affaires durables. Ma connaissance du marché ainsi que mes analyses, complètes et transparentes, facilitent grandement la prise de décision

« Je m’engage à ce qu’aucune transaction ne soit le fruit du hasard et que les retours sur investissement prévus soient respectés. »
- Benoit Sansoucy

Mes implications professionnelles sont la preuve de ma grande passion pour le courtage immobilier et j’ai à coeur de participer à son évolution.

thypothécairechezEngel&Volkers ionnel(formationencours)

ONELLES

commercialdel’APCIQ* ratiquesducourtagedel’APCIQ* Centris.ca ollègedel’immobilier(président2023+) Engel&VolkersMontreal bilierduQuébec

LLES

enplaques randesSoeurs éalpourlesjeunesFIMJ ologiquedeMontréal Vold’unsurvivantàl’autre

mobilieraffilié&agréé sionnel-TransportCanada 1)-Écoled’entrepreneurshipdeBeauce nyRobbins deligne-TransportCanada -UniversitéConcordia d'entreprise-Institutdeleadership -Collègedesadministrateursdesociétés

2025 LeadershipenIA Institutquébécoisd’intelligenceartificielle(MILA)

Turn static files into dynamic content formats.

Create a flipbook
Issuu converts static files into: digital portfolios, online yearbooks, online catalogs, digital photo albums and more. Sign up and create your flipbook.
874 Patriotes, St-Mathias-Sur-Richelieu by Benoit Sansoucy, courtier immobilier agréé chez Engel & Volkers - Issuu